920 résultats
10 m² OFFERT + CUISINE OFFERTE + PACK DECO OFFERT (peintures + parquet des chambres + faïence sdb + placards pour nos 50 ans. Rare : Maison contemporaine sur la commune de Saint Jean avec grand terrain plat piscinable de 430 m². Cette nouvelle maison à vendre sur la commune de Saint Jean de Thurignieux est à proximité des commodités. Avec 111 m², 4 chambres et un séjour cuisine spacieux de 53 m² cette maison contemporaine aux prestations haut de gamme vous séduira avec ses nombreuses options : Volets roulants motorisés et centralisé, pompe à chaleur plancher chauffant, wc suspendu, carrelage 60x60, porte de garage sectionnelle, parquet dans les chambres etc. Possibilité de modifier le plan et les prestations. Arnaud est à votre disposition pour concevoir votre maison sur mesure. Terrain proposé et vendu par notre partenaire foncier selon disponibilités, le constructeur n’étant pas mandaté pour réaliser la vente du terrain. Prix terrain inclus : 145 000 € Frais de notaire non inclus : € Prix maison inclus : 149 000 € VRD non inclus : € Hors aménagements extérieurs (extensions, terrasse, piscine etc), papiers peints, peintures, moquettes dans les chambres (tarif en vigueur au 20 mai 2025, modifiable sans préavis, prix variables suivant les prestations souhaitées). Hors frais d’hypothèque. Différents modèles disponibles pour chaque terrain. Assurance RC professionnelle / décennale / dommage ouvrage groupe Aviva. Garantie de remboursement de l'acompte / livraison à prix et délai convenu CGI. Partenaire financier : à préciser Le numéro de TVA intracommunautaire : FR 14 498 627 272 00012 Contact : contact@maisons-punch.fr.
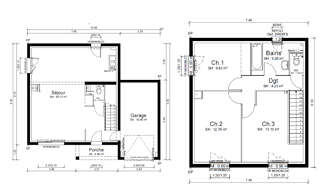
Situé sur la jolie commune de chatillon sur chalaronne dans un cadre calme et arboré. Sur une parcelle de 600 m² entièrement viabilisée, maisons punch vous propose une construction neuve à étage de 97 m² + 10 m² offert. Cette maison est composée d’une partie jour avec une très belle pièce de vie de 45 m² avec cuisine ouverte sur le séjour et un wc au rez de chaussé. La partie nuit est répartie en 3 chambres dont 2 de 13 m² et une de 10 m² ainsi qu’une salle de bain avec baignoire ou douche au choix, un lavabo et un wc séparé. Pour finir, la maison possède un garage de 18 m² permettant de garer une voiture et d’avoir un espace de stockage au fond. Plan entièrement sur mesure, dessin fait avec les clients. Nombreuses prestations possibles construction, terrain et vrd inclus dans le prix. Prestations de qualités : volets roulants intégrés électrique et connectés, pompe à chaleur maison conforme à la re 2020 terrain proposé et vendu par notre partenaire foncier selon disponibilités, le constructeur n’étant pas mandaté pour réaliser la vente du terrain. Prix terrain inclus : 131 000 € frais de notaire non inclus : € prix maison inclus : 191 000 € vrd non inclus : € hors aménagements extérieurs (extensions, terrasse, piscine etc), papiers peints, peintures, moquettes dans les chambres (tarif en vigueur au 20 mai 2025, modifiable sans préavis, prix variables suivant les prestations souhaitées). Hors frais d’hypothèque. Différents modèles disponibles pour chaque terrain. Assurance rc professionnelle / décennale / dommage ouvrage groupe aviva. Garantie de remboursement de l'acompte / livraison à prix et délai convenu cgi. Partenaire financier : à préciser le numéro de tva intracommunautaire : fr 14 498 627 272 00012 contact : contact@maisons-punch.fr.
Maison d'exception. Situé sur la jolie commune de dompierre sur chalaronne dans un cadre calme et arboré. Sur une parcelle de 1040 m² entièrement viabilisée, maisons punch vous propose une construction neuve à étage de 135 m². Cette maison est composée d’une partie jour avec une très belle pièce de vie de 50 m² avec cuisine ouverte sur le séjour et un wc suspendu au rez de chaussé. La partie nuit est répartie en 4 chambres dont 3 de 13,14 et 16 m²et une d'une suite parentale en bas de 18 m² avec dressing et salle d'eau. À l'étage, une salle de bain avec baignoire et douche, un lavabo double vasque et un wc séparé. Pour finir, la maison possède un garage de 27 m² permettant de garer une voiture et d’avoir un espace de stockage au fond. Plan entièrement personnalisables au bon vouloir des futurs acquéreurs. Nombreuses prestations possibles construction, terrain et vrd inclus dans le prix. Prestations de qualités : volets roulants intégrés électrique et connectés, pompe à chaleur maison conforme à la re 2020 terrain proposé et vendu par notre partenaire foncier selon disponibilités, le constructeur n’étant pas mandaté pour réaliser la vente du terrain. Prix terrain inclus : 140 000 € frais de notaire non inclus : € prix maison inclus : 201 000 € vrd non inclus : € hors aménagements extérieurs (extensions, terrasse, piscine etc), papiers peints, peintures, moquettes dans les chambres (tarif en vigueur au 20 mai 2025, modifiable sans préavis, prix variables suivant les prestations souhaitées). Hors frais d’hypothèque. Différents modèles disponibles pour chaque terrain. Assurance rc professionnelle / décennale / dommage ouvrage groupe aviva. Garantie de remboursement de l'acompte / livraison à prix et délai convenu cgi. Partenaire financier : à préciser le numéro de tva intracommunautaire : fr 14 498 627 272 00012 contact : contact@maisons-punch.fr.
10 m² offert + cuisine offerte + pack deco offert (peintures + parquet des chambres + faïence sdb + placards pour nos 50 ans. Produit rare à saisir au plus vite. Situé sur la jolie commune de dompierre sur chalaronne dans un cadre calme et arboré. Sur une parcelle de 600 m² entièrement viabilisée, maisons punch vous propose une construction neuve à étage de 94 m². Cette maison est composée d’une partie jour avec une très belle pièce de vie de 45 m² avec cuisine ouverte sur le séjour et un wc au rez de chaussé. La partie nuit est répartie en 3 chambres dont 2 de 13 m² et une de 10 m² ainsi qu’une salle de bain avec baignoire ou douche au choix, un lavabo et un wc séparé. Pour finir, la maison possède un garage de 18 m² permettant de garer une voiture et d’avoir un espace de stockage au fond. Plan entièrement personnalisables au bon vouloir des futurs acquéreurs. Nombreuses prestations possibles construction, terrain et vrd inclus dans le prix. Prestations de qualités : volets roulants intégrés électrique et connectés, pompe à chaleur maison conforme à la re 2020 terrain proposé et vendu par notre partenaire foncier selon disponibilités, le constructeur n’étant pas mandaté pour réaliser la vente du terrain. Prix terrain inclus : 115 900 € frais de notaire non inclus : € prix maison inclus : 169 100 € vrd non inclus : € hors aménagements extérieurs (extensions, terrasse, piscine etc), papiers peints, peintures, moquettes dans les chambres (tarif en vigueur au 20 mai 2025, modifiable sans préavis, prix variables suivant les prestations souhaitées). Hors frais d’hypothèque. Différents modèles disponibles pour chaque terrain. Assurance rc professionnelle / décennale / dommage ouvrage groupe aviva. Garantie de remboursement de l'acompte / livraison à prix et délai convenu cgi. Partenaire financier : à préciser le numéro de tva intracommunautaire : fr 14 498 627 272 00012 contact : contact@maisons-punch.fr.

Recevez en temps réel les dernières annonces correspondant à votre recherche
10 m² offert + cuisine offerte + pack deco offert (peintures + parquet des chambres + faïence sdb + placards pour nos 50 ans. Situé sur la jolie commune de frans sur les hauteurs. Sur une parcelle de 457 m² entièrement viabilisée, maisons punch vous propose une construction neuve à étage de 97 m² + 10 m² offert. Cette maison est composée d’une partie jour avec une très belle pièce de vie de 45 m² avec cuisine ouverte sur le séjour et un wc au rez de chaussé. La partie nuit est répartie en 3 chambres dont 2 de 13 m² et une de 10 m² ainsi qu’une salle de bain avec baignoire ou douche au choix, un lavabo et un wc séparé. Pour finir, la maison possède un garage de 18 m² permettant de garer une voiture et d’avoir un espace de stockage au fond. Plan entièrement sur mesure, dessin fait avec les clients. Nombreuses prestations possibles construction, terrain et vrd inclus dans le prix. Prestations de qualités : volets roulants intégrés électrique et connectés, pompe à chaleur maison conforme à la re 2020 terrain proposé et vendu par notre partenaire foncier selon disponibilités, le constructeur n’étant pas mandaté pour réaliser la vente du terrain. Prix terrain inclus : 149 900 € frais de notaire non inclus : € prix maison inclus : 199 100 € vrd non inclus : € hors aménagements extérieurs (extensions, terrasse, piscine etc), papiers peints, peintures, moquettes dans les chambres (tarif en vigueur au 20 mai 2025, modifiable sans préavis, prix variables suivant les prestations souhaitées). Hors frais d’hypothèque. Différents modèles disponibles pour chaque terrain. Assurance rc professionnelle / décennale / dommage ouvrage groupe aviva. Garantie de remboursement de l'acompte / livraison à prix et délai convenu cgi. Partenaire financier : à préciser le numéro de tva intracommunautaire : fr 14 498 627 272 00012 contact : contact@maisons-punch.fr.
Maison d'exception. Situé sur la jolie commune de villars les dombes dans un cadre calme et arboré à proximité avec la gare. Sur une parcelle de 500 m² entièrement viabilisée, maisons punch vous propose une construction neuve à étage de 135 m². Cette maison est composée d’une partie jour avec une très belle pièce de vie de 50 m² avec cuisine ouverte sur le séjour et un wc suspendu au rez de chaussé. La partie nuit est répartie en 4 chambres dont 3 de 13,14 et 16 m²et une d'une suite parentale en bas de 18 m² avec dressing et salle d'eau. À l'étage, une salle de bain avec baignoire et douche, un lavabo double vasque et un wc séparé. Pour finir, la maison possède un garage de 27 m² permettant de garer une voiture et d’avoir un espace de stockage au fond. Plan entièrement personnalisables au bon vouloir des futurs acquéreurs. Nombreuses prestations possibles construction, terrain et vrd inclus dans le prix. Prestations de qualités : volets roulants intégrés électrique et connectés, pompe à chaleur maison conforme à la re 2020 terrain proposé et vendu par notre partenaire foncier selon disponibilités, le constructeur n’étant pas mandaté pour réaliser la vente du terrain. Prix terrain inclus : 145 000 € frais de notaire non inclus : € prix maison inclus : 196 000 € vrd non inclus : € hors aménagements extérieurs (extensions, terrasse, piscine etc), papiers peints, peintures, moquettes dans les chambres (tarif en vigueur au 20 mai 2025, modifiable sans préavis, prix variables suivant les prestations souhaitées). Hors frais d’hypothèque. Différents modèles disponibles pour chaque terrain. Assurance rc professionnelle / décennale / dommage ouvrage groupe aviva. Garantie de remboursement de l'acompte / livraison à prix et délai convenu cgi. Partenaire financier : à préciser le numéro de tva intracommunautaire : fr 14 498 627 272 00012 contact : contact@maisons-punch.fr.
Maison d'exception. Situé sur la jolie commune de dompierre sur chalaronne dans un cadre calme et arboré. Sur une parcelle de 1040 m² entièrement viabilisée, maisons punch vous propose une construction neuve à étage de 135 m². Cette maison est composée d’une partie jour avec une très belle pièce de vie de 50 m² avec cuisine ouverte sur le séjour et un wc suspendu au rez de chaussé. La partie nuit est répartie en 4 chambres dont 3 de 13,14 et 16 m²et une d'une suite parentale en bas de 18 m² avec dressing et salle d'eau. À l'étage, une salle de bain avec baignoire et douche, un lavabo double vasque et un wc séparé. Pour finir, la maison possède un garage de 27 m² permettant de garer une voiture et d’avoir un espace de stockage au fond. Plan entièrement personnalisables au bon vouloir des futurs acquéreurs. Nombreuses prestations possibles construction, terrain et vrd inclus dans le prix. Prestations de qualités : volets roulants intégrés électrique et connectés, pompe à chaleur maison conforme à la re 2020 terrain proposé et vendu par notre partenaire foncier selon disponibilités, le constructeur n’étant pas mandaté pour réaliser la vente du terrain. Prix terrain inclus : 140 000 € frais de notaire non inclus : € prix maison inclus : 201 000 € vrd non inclus : € hors aménagements extérieurs (extensions, terrasse, piscine etc), papiers peints, peintures, moquettes dans les chambres (tarif en vigueur au 20 mai 2025, modifiable sans préavis, prix variables suivant les prestations souhaitées). Hors frais d’hypothèque. Différents modèles disponibles pour chaque terrain. Assurance rc professionnelle / décennale / dommage ouvrage groupe aviva. Garantie de remboursement de l'acompte / livraison à prix et délai convenu cgi. Partenaire financier : à préciser le numéro de tva intracommunautaire : fr 14 498 627 272 00012 contact : contact@maisons-punch.fr.
Maison d'exception. Situé sur la jolie commune de dompierre sur chalaronne dans un cadre calme. Sur une parcelle de 6000 m² entièrement viabilisée, maisons punch vous propose une construction neuve à étage de 135 m². Cette maison est composée d’une partie jour avec une très belle pièce de vie de 50 m² avec cuisine ouverte sur le séjour et un wc suspendu au rez de chaussé. La partie nuit est répartie en 4 chambres dont 3 de 13,14 et 16 m²et une d'une suite parentale en bas de 18 m² avec dressing et salle d'eau. À l'étage, une salle de bain avec baignoire et douche, un lavabo double vasque et un wc séparé. Pour finir, la maison possède un garage de 27 m² permettant de garer une voiture et d’avoir un espace de stockage au fond. Plan entièrement personnalisables au bon vouloir des futurs acquéreurs. Nombreuses prestations possibles construction, terrain et vrd inclus dans le prix. Prestations de qualités : volets roulants intégrés électrique et connectés, pompe à chaleur maison conforme à la re 2020 terrain proposé et vendu par notre partenaire foncier selon disponibilités, le constructeur n’étant pas mandaté pour réaliser la vente du terrain. Prix terrain inclus : 115 900 € frais de notaire non inclus : € prix maison inclus : 209 100 € vrd non inclus : € hors aménagements extérieurs (extensions, terrasse, piscine etc), papiers peints, peintures, moquettes dans les chambres (tarif en vigueur au 20 mai 2025, modifiable sans préavis, prix variables suivant les prestations souhaitées). Hors frais d’hypothèque. Différents modèles disponibles pour chaque terrain. Assurance rc professionnelle / décennale / dommage ouvrage groupe aviva. Garantie de remboursement de l'acompte / livraison à prix et délai convenu cgi. Partenaire financier : à préciser le numéro de tva intracommunautaire : fr 14 498 627 272 00012 contact : contact@maisons-punch.fr.
10 m² OFFERT + CUISINE OFFERTE + PACK DECO OFFERT (peintures + parquet des chambres + faïence sdb + placards pour nos 50 ans. Maison d'exception sur la commune de Villeneuve avec grand terrain plat piscinable de 600 m². Cette nouvelle maison à vendre est à proximité des commodités. Avec 111 m², 4 chambres et un séjour cuisine spacieux de 53 m² cette maison contemporaine aux prestations haut de gamme vous séduira avec ses nombreuses options : Volets roulants motorisés et centralisé, pompe à chaleur plancher chauffant, wc suspendu, carrelage 60x60, porte de garage sectionnelle, parquet dans les chambres etc. Possibilité de modifier le plan et les prestations. Arnaud est à votre disposition pour concevoir votre maison sur mesure. prix incluant les frais de notaire (hors vrd) Terrain proposé et vendu par notre partenaire foncier selon disponibilités, le constructeur n’étant pas mandaté pour réaliser la vente du terrain. Prix terrain inclus : 165 000 € Frais de notaire non inclus : € Prix maison inclus : 184 000 € VRD non inclus : € Hors aménagements extérieurs (extensions, terrasse, piscine etc), papiers peints, peintures, moquettes dans les chambres (tarif en vigueur au 20 mai 2025, modifiable sans préavis, prix variables suivant les prestations souhaitées). Hors frais d’hypothèque. Différents modèles disponibles pour chaque terrain. Assurance RC professionnelle / décennale / dommage ouvrage groupe Aviva. Garantie de remboursement de l'acompte / livraison à prix et délai convenu CGI. Partenaire financier : à préciser Le numéro de TVA intracommunautaire : FR 14 498 627 272 00012 Contact : contact@maisons-punch.fr.
Offres exceptionnelles 50 ans : 10 m² offerts + packs deco et cuisine offerts ! * durée limitée - voir conditions en agence maisons punch, constructeur de maison individuelle, vous propose cette parcelle viabilisé de 1008 m² à vescours 0150 cette maison est composée d'une belle pièce de vie de 43 m², 3 chambres ainsi qu'un garage de 19 m² construit sur vide sanitaire, avec normes re2020. Sont incluses dans le tarif proposé, les options suivantes : - volets roulants motorisé connectés, - débords de toit pvc - carrelage 45 x 45 - tuile terre cuite. Prix total de 205 928 euros incluant terrain, frais de notaire, construction, vrd (estimation) projet de construction personnalisable selon vos envies. Pour plus de renseignements, contacter mme da-costa 06 07 11 47 19 terrain proposé et vendu par notre partenaire foncier selon disponibilités, le constructeur n’étant pas mandaté pour réaliser la vente du terrain. Prix terrain inclus : 45 000 € frais de notaire non inclus : € prix maison inclus : 144 000 € vrd non inclus : € hors aménagements extérieurs (extensions, terrasse, piscine etc), papiers peints, peintures, moquettes dans les chambres (tarif en vigueur au 20 mai 2025, modifiable sans préavis, prix variables suivant les prestations souhaitées). Hors frais d’hypothèque. Différents modèles disponibles pour chaque terrain. Assurance rc professionnelle / décennale / dommage ouvrage groupe aviva. Garantie de remboursement de l'acompte / livraison à prix et délai convenu cgi. Partenaire financier : à préciser le numéro de tva intracommunautaire : fr 14 498 627 272 00012 contact : contact@maisons-punch.fr.
Offres exceptionnelles 50 ans : 10 m² offerts + packs deco et cuisine offerts ! * durée limitée - voir conditions en agence maisons punch, constructeur de maison individuelle, vous propose cette parcelle viabilisé de 1008 m² à vescours 0150 cette maison est composée d'une belle pièce de vie de 43 m², 3 chambres ainsi qu'un garage de 19 m² construit sur vide sanitaire, avec normes re2020. Sont incluses dans le tarif proposé, les options suivantes : - volets roulants motorisé connectés, - débords de toit pvc - carrelage 45 x 45 - tuile terre cuite. Prix total de 205 928 euros incluant terrain, frais de notaire, construction, vrd (estimation) projet de construction personnalisable selon vos envies. Pour plus de renseignements, contacter mme da-costa 06 07 11 47 19 terrain proposé et vendu par notre partenaire foncier selon disponibilités, le constructeur n’étant pas mandaté pour réaliser la vente du terrain. Prix terrain inclus : 45 000 € frais de notaire non inclus : € prix maison inclus : 144 000 € vrd non inclus : € hors aménagements extérieurs (extensions, terrasse, piscine etc), papiers peints, peintures, moquettes dans les chambres (tarif en vigueur au 20 mai 2025, modifiable sans préavis, prix variables suivant les prestations souhaitées). Hors frais d’hypothèque. Différents modèles disponibles pour chaque terrain. Assurance rc professionnelle / décennale / dommage ouvrage groupe aviva. Garantie de remboursement de l'acompte / livraison à prix et délai convenu cgi. Partenaire financier : à préciser le numéro de tva intracommunautaire : fr 14 498 627 272 00012 contact : contact@maisons-punch.fr.
Offres exceptionnelles 50 ans : 10 m² offerts + packs deco et cuisine offerts ! * durée limitée - voir conditions en agence opportunité à saisir ! Dernier lot disponible à crottet ! À 15 min de mâcon sur une parcelle calme et viabilisée de 400 m², maisons punch, constructeur de maison individuelle, vous propose un projet de construction neuve de 105 m² habitables, entièrement personnalisable. Cette maison comprend une belle pièce de vie de 45 m², 3 chambres et un bureau ainsi qu'un garage de 19 m² construit sur vide sanitaire, conforme aux normes re2020. Les options suivantes sont incluses dans le prix : volets roulants motorisés et connectés débords de toit en pvc pompe à chaleur avec radiateur menuiseries anthracite carrelage 45 x 45 cm prix total : 253 330 euros, incluant le terrain, les frais de notaire, les vrd (estimation) et la construction. Projet de construction personnalisable selon vos préférences. Pour plus de renseignements, veuillez contacter mme da-costa au 06 07 11 47 19 terrain proposé et vendu par notre partenaire foncier selon disponibilités, le constructeur n’étant pas mandaté pour réaliser la vente du terrain. Prix terrain inclus : 65 000 € frais de notaire non inclus : € prix maison inclus : 170 000 € vrd non inclus : € hors aménagements extérieurs (extensions, terrasse, piscine etc), papiers peints, peintures, moquettes dans les chambres (tarif en vigueur au 20 mai 2025, modifiable sans préavis, prix variables suivant les prestations souhaitées). Hors frais d’hypothèque. Différents modèles disponibles pour chaque terrain. Assurance rc professionnelle / décennale / dommage ouvrage groupe aviva. Garantie de remboursement de l'acompte / livraison à prix et délai convenu cgi. Partenaire financier : à préciser le numéro de tva intracommunautaire : fr 14 498 627 272 00012 contact : contact@maisons-punch.fr.
Offres exceptionnelles 50 ans : 10 m² offerts + packs deco et cuisine offerts ! * durée limitée - voir conditions en agence opportunité à saisir ! Dernier lot disponible à crottet ! À 15 min de mâcon sur une parcelle calme et viabilisée de 400 m², constructeur de maison individuelle, maisons punch vous propose une maison neuve de 79 m² habitables. Cette maison comprend : une spacieuse pièce de vie de 35 m² trois chambres un garage de 19 m² les prestations suivantes sont incluses dans le prix : volets roulants motorisés et connectés débords de toit en pvc pompe à chaleur avec radiateur menuiseries anthracite carrelage 45 x 45 cm prix total : 239 590€, incluant les frais de notaire et les vrd estimés. Ce projet de construction est entièrement personnalisable selon vos envies. Pour plus de renseignements, contactez mme da-costa au 06 07 11 47 19. Terrain proposé et vendu par notre partenaire foncier selon disponibilités, le constructeur n’étant pas mandaté pour réaliser la vente du terrain. Prix terrain inclus : 65 000 € frais de notaire non inclus : € prix maison inclus : 152 500 € vrd non inclus : € hors aménagements extérieurs (extensions, terrasse, piscine etc), papiers peints, peintures, moquettes dans les chambres (tarif en vigueur au 20 mai 2025, modifiable sans préavis, prix variables suivant les prestations souhaitées). Hors frais d’hypothèque. Différents modèles disponibles pour chaque terrain. Assurance rc professionnelle / décennale / dommage ouvrage groupe aviva. Garantie de remboursement de l'acompte / livraison à prix et délai convenu cgi. Partenaire financier : à préciser le numéro de tva intracommunautaire : fr 14 498 627 272 00012 contact : contact@maisons-punch.fr.
Offres exceptionnelles 50 ans : 10 m² offerts + packs deco et cuisine offerts ! * durée limitée - voir conditions en agence plus que 1 lot a la vente a bage dommartin projet personnalisable, sur une parcelle de 709 m² borné et viabilisé, face au collège et école. Maisons punch, constructeur de maison individuelle, vous propose une construction neuve de 77 m² habitables. Maisons punch vous propose une construction aux normes re 2020 cette maison est composée d'une belle pièce de vie de 37 m², 3 chambres ainsi qu'un garage de 15 m². Sont incluses dans le tarif proposé, les options suivantes : - volets roulants motorisé connectés, - débords de toit pvc - pompe a chaleur avec radiateur - menuiserie anthracite - carrelage 45 x 45 cm prix total de 224 000€ incluant construction, terrain, les frais de notaire, vrd (estimation) projet de construction personnalisable selon vos envies. Pour plus de renseignements, contacter mme da-costa 06 07 11 47 19 terrain proposé et vendu par notre partenaire foncier selon disponibilités, le constructeur n’étant pas mandaté pour réaliser la vente du terrain. Prix terrain inclus : 70 000 € frais de notaire non inclus : € prix maison inclus : 135 400 € vrd non inclus : € hors aménagements extérieurs (extensions, terrasse, piscine etc), papiers peints, peintures, moquettes dans les chambres (tarif en vigueur au 20 mai 2025, modifiable sans préavis, prix variables suivant les prestations souhaitées). Hors frais d’hypothèque. Différents modèles disponibles pour chaque terrain. Assurance rc professionnelle / décennale / dommage ouvrage groupe aviva. Garantie de remboursement de l'acompte / livraison à prix et délai convenu cgi. Partenaire financier : à préciser le numéro de tva intracommunautaire : fr 14 498 627 272 00012 contact : contact@maisons-punch.fr.
Offres exceptionnelles 50 ans : 10 m² offerts + packs deco et cuisine offerts ! * durée limitée - voir conditions en agence projet de construction à bagé-dommartin, à 12 km de mâcon découvrez ce magnifique projet de construction sur une parcelle plate de 709 m², idéalement située en face du collège et de l'école de bagé-dommartin (01). Cette maison comprend : un espace de vie lumineux de 40 m² trois chambres un garage attenant les prestations incluses dans le tarif : volets roulants motorisés et connectés débords de toit en pvc pompe à chaleur avec radiateurs carrelage 45 x 45 cm prix total : 229 680 euros, incluant le terrain, les frais de notaire, les vrd estimés, et la construction. Projet de construction entièrement personnalisable selon vos envies. Pour plus d'informations, contactez mme da-costa au 06 07 11 47 19. Terrain proposé et vendu par notre partenaire foncier selon disponibilités, le constructeur n’étant pas mandaté pour réaliser la vente du terrain. Prix terrain inclus : 70 000 € frais de notaire non inclus : € prix maison inclus : 141 000 € vrd non inclus : € hors aménagements extérieurs (extensions, terrasse, piscine etc), papiers peints, peintures, moquettes dans les chambres (tarif en vigueur au 20 mai 2025, modifiable sans préavis, prix variables suivant les prestations souhaitées). Hors frais d’hypothèque. Différents modèles disponibles pour chaque terrain. Assurance rc professionnelle / décennale / dommage ouvrage groupe aviva. Garantie de remboursement de l'acompte / livraison à prix et délai convenu cgi. Partenaire financier : à préciser le numéro de tva intracommunautaire : fr 14 498 627 272 00012 contact : contact@maisons-punch.fr.
Marignieu jean-jacques merlin 06 12 45 58 53 (joignable 7 jours sur 7) vous propose au calme à 01300 marignieu (7km de belley et toutes ses commodités) 45 minutes de chambéry et aix-les-bains, cette grosse maison en pierres sur 2 niveaux de type f7 de 168 m² avec 4chambres dont 2 de plain-pied, 2 séjours avec cuisine aménagée et cheminée avec foyer fermé, 2 salles de bains avec douche, un sous-sol avec une cave et son puit, un atelier et un garage. Gare sncf de culoz à 10 minutes. Compter environ 1 heure pour lyon ou genève. Très beau sol en pierre au rez-de-chaussée. 40 photos et plans sur simple demande. Les honoraires sont à la charge du vendeur. Les informations sur les risques auxquels ce bien est exposé sont disponibles sur le site géorisques : www. Georisques. Gouv. Fr. Réseau immobilier capifrance - votre agent commercial (rsac n°418 854 071 - greffe de bourg en bresse) jean-jacques merlin entrepreneur individuel 06 12 45 58 53 - réf. 926727.
EXCLUSIVITÉ. L’agence Dufossé Immobilier vous propose à la vente cette agréable maison de 120 m² habitables, édifiée sur un terrain clos de 274 m². Dès l’entrée, vous serez séduit par sa pièce de vie lumineuse de 35 m², chaleureuse avec sa cheminée, ouverte sur une cuisine fonctionnelle. Celle-ci offre un accès direct à une terrasse de 8 m² et au jardin, avec une vue imprenable sur la plaine de l’Ain, idéale pour partager des moments conviviaux entre amis ou en famille. À l’étage, un palier dessert quatre chambres confortables, dont trois équipées de placards, ainsi qu’une salle de bains et un WC indépendant. Un garage spacieux et une buanderie complètent ce bien, parfaitement pensé pour la vie de famille. Situation idéale : Située à seulement 19 kms de Villefranche-sur-Saône, la commune de Saint-Jean-de-Thurigneux offre un cadre de vie paisible, tout en restant proche des grands axes et des commodités. Les collèges et lycées les plus proches se trouvent à 6 km, à Saint-André-de-Corcy, facilement accessibles pour les enfants. Une maison où confort, luminosité et sérénité se conjuguent au quotidien, dans un environnement calme et recherché. Pour plus de renseignements et / ou pour programmer une visite : Barbara Emonard-Leclercq 06 62 16 72 18 Christine LENTILHAC 06 69 21 43 21 L'immobilier Passion Christine LENTILHAC 06 69 21 43 21 christine.lentilhac@dufosse-immobilier.com.
Découvrez à Balan cette maison R + 1 à rénover, offrant 148 m² habitables sur un terrain d’environ 740 m², à seulement 30 minutes de Lyon. Située dans un secteur calme et résidentiel, elle bénéficie d’un beau potentiel pour un projet familial ou un investissement. Le plain-pied s’ouvre sur une entrée qui dessert une cuisine séparée et équipée, avec accès direct à la terrasse. Le séjour, lumineux, dispose d’un sol en marbre et d’une cheminée bois, et profite lui aussi d’une ouverture sur l’extérieur. Ce niveau comprend également une salle de bain, des wc séparés et deux chambres avec placards intégrés. À l’étage, une pièce d’environ 65 m² offre de nombreuses possibilités : création de chambres supplémentaires, suite parentale, salle de jeux ou grand bureau. Une salle de bain et des wc séparés complètent cet espace. Le bien dispose également d’un grand sous-sol semi-enterré d'environs 100 m², comprenant une buanderie, deux caves et un garage pouvant accueillir deux véhicules. Parmi les prestations : moustiquaires à l’étage, pompe à chaleur installée en 2022, système d’alarme avec caméras, et panneaux photovoltaïques pour un meilleur confort énergétique. Pour visiter ce bien Eloria Boudes O6.1O. 31.27. O5 Vous pouvez contacter Eloria BOUDES 06 10 31 27 05 eloria.boudes@rhone-saone-immo.com.
ONLY l'Agence Immobilière et Jonathan PIN vous présentent, sur la commune de Fareins, une maison de plain-pied située dans un environnement résidentiel calme, idéale pour un premier achat ou pour un projet d'investissement. Cette maison développe environ 85 m² habitables et se compose d'une entrée avec placard menant à une pièce de vie d'environ 30 m², lumineuse et agréable. La cuisine indépendante, d'une superficie supérieure à 10 m², offre également un bel espace fonctionnel. Ces deux pièces s'ouvrent sur une agréable terrasse couverte orientée à l'Ouest. La partie nuit propose deux chambres, dont l'une accompagnée d'un espace buanderie. Une salle d'eau et un dégagement complètent l'ensemble. La propriété repose sur une parcelle d'environ 750 m², issue d'une division parcellaire en cours, permettant de profiter d'un jardin intimiste et facile d'entretien. La maison a bénéficié de plusieurs améliorations : sols rénovés, peintures rafraîchies, fenêtres récentes. Si vous êtes intéressé ou souhaitez davantage d'informations, n'hésitez pas à me contacter.
Exclusivité, Bien rare sur la commune de Mionnay. Nous vous invitons à découvrir ce superbe ancien corps de ferme, entièrement rénové en 2014 avec un sens du détail remarquable, alliant harmonieusement le charme de l'ancien et une rénovation contemporaine aux prestations haut de gamme. Dès l'entrée, le rez-de-chaussée s'ouvre sur une vaste et lumineuse pièce de vie comprenant une cuisine équipée avec îlot central, prolongée par un salon-séjour à la hauteur cathédrale, offrant un volume remarquable et un accès direct à un patio intimiste. Sur ce même niveau, vous bénéficierez également d'une buanderie parfaitement aménagée, d'une salle de bains ainsi que d'une belle chambre dotée de rangements intégrés. La suite parentale constitue un véritable espace privilégié : organisée sur deux niveaux, elle propose un dressing donnant sur une spacieuse salle d'eau avec douche à l'italienne et WC suspendu. Un escalier privatif mène à l'espace nuit situé à l'étage, ouvrant sur une terrasse couverte avec vue dégagée sur la piscine. L'accès principal à l'étage se fait par un magnifique escalier à limon central mêlant métal et bois massif, débouchant sur une passerelle baignée de lumière. Elle dessert deux grandes chambres supplémentaires, toutes deux équipées de placards. La parcelle de 1 204 m², soigneusement paysagée, s'organise autour d'une généreuse piscine de 12 m × 6 m, dotée d'un volet immergé, d'une filtration au sel et d'un chauffage par pompe à chaleur. Une dépendance avec cuisine d'été vous permettra de profiter pleinement des beaux jours, tandis qu'un espace invité comprenant chambre, salle d'eau et WC vous offrira un confort supplémentaire pour recevoir. Un double garage, un pool house ainsi que deux autres dépendances complètent l'ensemble. Idéalement situé, ce bien se trouve à proximité des accès autoroutiers et de la gare de Mionnay reliant directement les gares de Part-Dieu et Perrache. Référence agence : 2800.
Située au cœur du charmant village de Saint-Étienne-sur-Chalaronne, cette maison d’environ 117 m² combine charme de l’ancien et confort moderne. Idéale pour une famille en quête d’espace, de tranquillité et de proximité avec les commodités. Agencement : Rez-de-chaussée : Séjour lumineux ouvert sur cuisine avec accès à la cour extérieure WC indépendant Espace de rangement pratique Accès intérieur au double garage Étage : 3 chambres avec placards intégrés Espace modulable idéal pour bureau ou coin lecture Salle de bains complète avec baignoire, douche et WC Terrasse d’environ 40 m² Extérieur et équipements : Terrain de 160 m² Double vitrage aluminium et stores électriques Double garage (rare en plein centre du village) Localisation : Au cœur du village de Saint-Étienne-sur-Chalaronne Proximité immédiate de Châtillon-sur-Chalaronne et toutes commodités Atouts : Maison spacieuse et lumineuse Combinaison charme ancien / confort moderne Terrasse et cour agréables Garage double pratique Environnement calme et convivial À visiter sans tarder ! Prix : 205 000€ Consommation : C / Émission de gaz à effet de serre : A. Contact agence : Direct Service Immobilier Téléphone : 04 78 80 32 40 Email : contact@dsi-immo.com Site internet : .
Offre exceptionnelle pour les 50ans : 10 m² offert + 2 pack au choix produit rare à saisir au plus vite. Situé sur la jolie commune d'ambérieux en dombes dans un cadre calme et arboré. Sur une parcelle de 294 m² entièrement viabilisée, maisons punch vous propose une construction neuve à étage de 94 m². Cette maison est composée d’une partie jour avec une très belle pièce de vie de 45 m² avec cuisine ouverte sur le séjour et un wc au rez de chaussé. La pièce de nuit est répartie en 3 chambres dont 2 de 13 m² et une de 10 m² ainsi qu’une salle de bain avec baignoire ou douche au choix, un lavabo et un wc séparé. Pour finir, la maison possède un garage de 18 m² permettant de garer une voiture et d’avoir un espace de stockage au fond. Plan entièrement personnalisables au bon vouloir des futurs acquéreurs. Nombreuses prestations possibles construction, terrain et vrd inclus dans le prix. Me contacter au plus vite pour plus d’informations sur le terrain. Maison conforme à la re 2020 terrain proposé et vendu par notre partenaire foncier selon disponibilités, le constructeur n’étant pas mandaté pour réaliser la vente du terrain. Prix terrain inclus : 110 000 € frais de notaire non inclus : € prix maison inclus : 148 000 € vrd non inclus : € hors aménagements extérieurs (extensions, terrasse, piscine etc), papiers peints, peintures, moquettes dans les chambres (tarif en vigueur au 20 mai 2025, modifiable sans préavis, prix variables suivant les prestations souhaitées). Hors frais d’hypothèque. Différents modèles disponibles pour chaque terrain. Assurance rc professionnelle / décennale / dommage ouvrage groupe aviva. Garantie de remboursement de l'acompte / livraison à prix et délai convenu cgi. Partenaire financier : à préciser le numéro de tva intracommunautaire : fr 14 498 627 272 00012 contact : contact@maisons-punch.fr.
Offre exceptionnelle pour les 50ans : 10 m² offert + 2 pack au choix produit rare à saisir au plus vite. Situé sur la jolie commune de blyes dans un cadre calme et arboré. Sur une parcelle de 277 m² entièrement viabilisée, maisons punch vous propose une construction neuve à étage de 94 m². Cette maison est composée d’une partie jour avec une très belle pièce de vie de 45 m² avec cuisine ouverte sur le séjour et un wc au rez de chaussé. La pièce de nuit est répartie en 3 chambres dont 2 de 13 m² et une de 10 m² ainsi qu’une salle de bain avec baignoire ou douche au choix, un lavabo et un wc séparé. Pour finir, la maison possède un garage de 18 m² permettant de garer une voiture et d’avoir un espace de stockage au fond. Plan entièrement personnalisables au bon vouloir des futurs acquéreurs. Nombreuses prestations possibles construction, terrain et vrd inclus dans le prix. Me contacter au plus vite pour plus d’informations sur le terrain. Maison conforme à la re 2020 terrain proposé et vendu par notre partenaire foncier selon disponibilités, le constructeur n’étant pas mandaté pour réaliser la vente du terrain. Prix terrain inclus : 99 900 € frais de notaire non inclus : € prix maison inclus : 171 800 € vrd non inclus : € hors aménagements extérieurs (extensions, terrasse, piscine etc), papiers peints, peintures, moquettes dans les chambres (tarif en vigueur au 20 mai 2025, modifiable sans préavis, prix variables suivant les prestations souhaitées). Hors frais d’hypothèque. Différents modèles disponibles pour chaque terrain. Assurance rc professionnelle / décennale / dommage ouvrage groupe aviva. Garantie de remboursement de l'acompte / livraison à prix et délai convenu cgi. Partenaire financier : à préciser le numéro de tva intracommunautaire : fr 14 498 627 272 00012 contact : contact@maisons-punch.fr.
Offre exceptionnelle pour les 50ans : 10 m² offert + 2 pack au choix produit rare à saisir au plus vite. Situé sur la jolie commune de blyes dans un cadre calme et arboré. Sur une parcelle de 277 m² entièrement viabilisée, maisons punch vous propose une construction neuve à étage de 94 m². Cette maison est composée d’une partie jour avec une très belle pièce de vie de 45 m² avec cuisine ouverte sur le séjour et un wc au rez de chaussé. La pièce de nuit est répartie en 3 chambres dont 2 de 13 m² et une de 10 m² ainsi qu’une salle de bain avec baignoire ou douche au choix, un lavabo et un wc séparé. Pour finir, la maison possède un garage de 18 m² permettant de garer une voiture et d’avoir un espace de stockage au fond. Plan entièrement personnalisables au bon vouloir des futurs acquéreurs. Nombreuses prestations possibles construction, terrain et vrd inclus dans le prix. Me contacter au plus vite pour plus d’informations sur le terrain. Maison conforme à la re 2020 terrain proposé et vendu par notre partenaire foncier selon disponibilités, le constructeur n’étant pas mandaté pour réaliser la vente du terrain. Prix terrain inclus : 99 900 € frais de notaire non inclus : € prix maison inclus : 171 800 € vrd non inclus : € hors aménagements extérieurs (extensions, terrasse, piscine etc), papiers peints, peintures, moquettes dans les chambres (tarif en vigueur au 20 mai 2025, modifiable sans préavis, prix variables suivant les prestations souhaitées). Hors frais d’hypothèque. Différents modèles disponibles pour chaque terrain. Assurance rc professionnelle / décennale / dommage ouvrage groupe aviva. Garantie de remboursement de l'acompte / livraison à prix et délai convenu cgi. Partenaire financier : à préciser le numéro de tva intracommunautaire : fr 14 498 627 272 00012 contact : contact@maisons-punch.fr.
Offre exceptionnelle pour les 50ans : 10 m² offert + 2 pack au choix (remise de 10 000€ sur le terrain pour la 1ère réservation déja déduit dans le projet total) produit rare à saisir au plus vite. Situé sur la jolie commune de bourg saint christophe dans un cadre calme et arboré. Sur une parcelle de 500 m² entièrement viabilisée, maisons punch vous propose une construction neuve à étage de 94 m². Cette maison est composée d’une partie jour avec une très belle pièce de vie de 45 m² avec cuisine ouverte sur le séjour et un wc au rez de chaussé. La partie nuit est répartie en 3 chambres dont 2 de 13 m² et une de 10 m² ainsi qu’une salle de bain avec baignoire ou douche au choix, un lavabo et un wc séparé. Pour finir, la maison possède un garage de 18 m² permettant de garer une voiture et d’avoir un espace de stockage au fond. Plan entièrement personnalisables au bon vouloir des futurs acquéreurs. Nombreuses prestations possibles construction, terrain et vrd inclus dans le prix. Prestations de qualités : volets roulants intégrés électrique et connectés, pompe à chaleur maison conforme à la re 2020 terrain proposé et vendu par notre partenaire foncier selon disponibilités, le constructeur n’étant pas mandaté pour réaliser la vente du terrain. Prix terrain inclus : 135 000 € frais de notaire non inclus : € prix maison inclus : 172 500 € vrd non inclus : € hors aménagements extérieurs (extensions, terrasse, piscine etc), papiers peints, peintures, moquettes dans les chambres (tarif en vigueur au 20 mai 2025, modifiable sans préavis, prix variables suivant les prestations souhaitées). Hors frais d’hypothèque. Différents modèles disponibles pour chaque terrain. Assurance rc professionnelle / décennale / dommage ouvrage groupe aviva. Garantie de remboursement de l'acompte / livraison à prix et délai convenu cgi. Partenaire financier : à préciser le numéro de tva intracommunautaire : fr 14 498 627 272 00012 contact : contact@maisons-punch.fr.