297 résultats
Découvrez en exclusivité cette maison de plain-pied construite en 2021, idéalement située au coeur de Péronnas, dans un environnement calme, sans bruit et sans vis-à-vis. Un bien rare sur le secteur, offrant des prestations modernes et une excellente performance énergétique (DPE B). Points forts de la maison Plain-pied récent (2021) Grand séjour lumineux Cuisine américaine aménagée Buanderie attenante Placards intégrés 3 chambres avec rangements Salle d'eau contemporaine (douche italienne + double vasque) Véranda conviviale Petit extérieur sans vis-à-vis Garage Chauffage performant par poêle à granulés Aucune nuisance sonore Description détaillée Située au centre de Péronnas, cette maison moderne de 2021 offre un cadre de vie confortable et fonctionnel. L'entrée s'ouvre sur un hall équipé d'un placard, idéal pour optimiser le rangement. Vous accédez ensuite à un vaste séjour très lumineux, parfaitement agencé, avec une cuisine américaine aménagée, moderne et pratique pour la vie quotidienne. Une buanderie attenante apporte un vrai plus pour l'organisation familiale. La partie nuit se compose de 3 chambres, toutes dotées de placards intégrés. Une salle d'eau élégante, avec douche italienne et double vasque, complète cet espace intime. Côté détente, vous profitez d'un espace véranda, idéal en toute saison, ainsi qu'un petit extérieur intime, sans vis-à-vis, parfait pour les repas, le repos ou une partie de boules. La maison dispose également d'un garage et bénéficie d'un chauffage par poêle à granulés, économique et très apprécié pour son confort thermique. Localisation : Centre de Péronnas Un emplacement recherché : Commerces, écoles et services à proximité immédiate Accès rapide Bourg-en-Bresse Quartier calme et résidentiel Maison située hors axes bruyants Pourquoi cette maison est idéale ? Maison récente et très bien entretenue ? Parfaitement adaptée à une famille, un couple, ou une retraite active ? Aucun bruit, aucun vis-à-vis ? Belle performance énergétique (faibles consommations) ? Emplacement ultra-pratique au centre de Péronnas Contact Pour une visite ou plus d'informations, contactez-nous dès maintenant. Opportunité rare sur Péronnas bien à découvrir rapidement. Etienne SALIGNAC O6 I 58 I 88 I 49 I 45 Les informations sur les risques auxquels ce bien est exposé sont disponibles sur le site Géorisques : .
Exclusivité Immosalignac : Venez découvrir cette magnifique maison contemporaine à Viriat (01440), située en limite de Bourg-en-Bresse. Offrant 140 m² habitables sur un terrain clos et paysagé avec piscine, ce bien rare réunit confort moderne, luminosité et prestations haut de gamme. Une maison familiale spacieuse et lumineuse Dès l'entrée, vous profitez d'un espace de rangement fonctionnel qui s'ouvre sur une vaste pièce de vie baignée de lumière, avec de grandes baies vitrées donnant accès à la terrasse. La cuisine américaine équipée, moderne et conviviale, séduira les amateurs de gastronomie et de moments en famille. 4 chambres dont une suite parentale 2 chambres de plain-pied, dont une suite parentale avec salle d'eau moderne, douche à l'italienne et dressing. À l'étage : 2 chambres supplémentaires, toutes deux équipées de dressings ou rangements intégrés, ainsi qu'une salle de bain indépendante. Sanitaires à chaque niveau pour plus de praticité. Des prestations modernes et économiques Cette maison a été entièrement rénovée récemment : Climatisation réversible dans toutes les pièces Cuisine équipée moderne Salle d'eau design avec douche à l'italienne Adoucisseur d'eau Grand garage aménagé pour les passionnés de bricolage ou de mécanique DPE C : consommation maîtrisée et maison économique Un extérieur sans vis-à-vis avec piscine Le terrain clos et paysagé offre un cadre idéal pour vos moments de détente : Piscine avec abris Terrasse ensoleillée Jardin intimiste sans vis-à-vis Localisation idéale La maison est située à Viriat, commune recherchée aux portes de Bourg-en-Bresse. Vous bénéficiez d'un cadre résidentiel calme, à proximité immédiate des commerces, écoles et axes de communication. Cette maison contemporaine avec piscine à Viriat est une opportunité rare à découvrir rapidement ! Contactez dès maintenant Immosalignac pour organiser une visite. Etienne SALIGNAC 06 ? 58 ? 88 ? 49 ? 45 Les informations sur les risques auxquels ce bien est exposé sont disponibles sur le site Géorisques : .
Idéalement située dans un environnement calme et recherché, cette villa entièrement rénovée en 2019 offre un cadre de vie à la fois élégant, moderne et familial. Vous ne pourrez qu'être séduit par son cadre, sa luminosité et ses finitions soignées. D'une superficie d'environ 215 m² dont 200 habitables sur 1566 m², ses volumes généreux en font un lieu de vie agréable. La maison se compose : - Au rez-de-chaussée, d'une entrée cathédrale, d'un espace de vie lumineux et convivial qui se prolonge naturellement vers une cuisine moderne et entièrement équipée. Dans un second espace, se dévoile une suite parentale, pensée comme un véritable cocon privé. Elle comprend une chambre spacieuse ouvrant sur le jardin, un dressing sur mesure et une salle de douche à l'italienne contemporaine. Nous retrouvons aussi une buanderie, un cellier, un WC et un garage sur ce niveau. - L'étage accueille quatre belles chambres, chacune bénéficiant d'une atmosphère douce et apaisante, idéales pour les enfants ou les invités. Une belle salle de bain ainsi qu'une salle de douche supplémentaire renforcent le confort de ce niveau, permettant à toute la famille de profiter de beaux espaces indépendants. L'agencement harmonieux et les prestations soignées créent un ensemble fonctionnel, adapté à une vie familiale active. À l'extérieur, le vaste terrain arboré de 1566 m² est une véritable invitation à la détente. Son charme naturel est sublimé par un cours d'eau qui s'écoule paisiblement au fond de la propriété, offrant un décor unique. Cette villa, rare sur le marché, allie parfaitement standing, confort et qualité de vie. À proximité immédiate des commodités, écoles et services, elle représente l'adresse idéale pour une famille en quête d'un bien d'exception. Les plus : Un jardin paysagé et une très grande terrasse rénovés en 2022, un garage motorisé, du stationnement extérieur avec recharge pour véhicule électrique, climatisation dans toutes les chambres à coucher. Exclusivité Agence BASTIEN St Genis Pouilly - réf 6848- Honoraires à la charge du vendeur.
EXCLUSIVITÉ - CHALEINS - Située dans le coeur du village, cette maison familiale de 317 m² environ développe une architecture organisée autour d’un patio. Elle offre un cadre de vie lumineux et résolument tourné vers l’extérieur sur un magnifique parc arboré avec piscine. Au rez-de-chaussée, le patio d’entrée distribue un vaste salon séjour bénéficiant d’un accès direct aux terrasses, ainsi qu’une cuisine conviviale. Ce niveau se complète d’une suite parentale avec salle de bain et dressing, ainsi qu'un autre espace proposant deux chambres avec une salle d'eau, un grand bureau et une buanderie. L’étage accueille un vaste palier organisé en salle de jeux, deux chambres supplémentaires et un dortoir éclairé par une fenêtre donnant sur le patio ainsi qu'une salle de bain. Une suite de trois combles à usage de greniers permet d’envisager de nombreux aménagements selon les besoins. L’organisation intérieure et les espaces modulables offrent une réelle liberté d’aménagement et s’adaptent aisément à une vie familiale, dans un bel environnement naturel, avec commerces et école primaire accessibles à pied. Ce bien est présenté par Clémentine BOUHY, agent commercial E. I et enregistré au RSAC de Lyon n°897 913 778 Honoraires à la charge du vendeur - Montant estimé des dépenses annuelles d'énergie pour un usage standard, établi à partir des prix de l'énergie de l'année 2021 : 1740€ ~ 2370€.

Recevez en temps réel les dernières annonces correspondant à votre recherche
L'agence immosalignac vous propose en exclusivité cette maison récente de 2014 de 97 m² située à Ceyzeriat. Au rez-de-chaussée : Entrée avec rangements Grand séjour traversant de plus de 30 m², lumineux grâce à ses baies vitrées ouvrant sur la terrasse Cuisine américaine ouverte, moderne et entièrement équipée (installation récente moins de 6 mois) Salle d'eau avec douche WC indépendant Accès direct au garage motorisé avec mezzanine À l'étage : Trois belles chambres, dont deux avec grands placards Salle de bain avec baignoire WC séparés Extérieur : Terrain entièrement clos et arboré, avec terrasse pour profiter des beaux jours. Confort et prestations : Chauffage au sol et poêle à granulés Maison bien isolée (DPE : B) Garage motorisé avec mezzanine Proche de tous les commerces et du centre de Ceyzeriat. Contactez-nous dès maintenant pour une visite. Agent commercial VADI Valentin 0658 ? 30 ? 12 93 Les informations sur les risques auxquels ce bien est exposé sont disponibles sur le site Géorisques : .
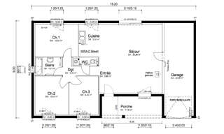
À vendre chez Immosalignac : maison contemporaine de plain-pied construite en 2001, idéalement située rue de l'Abbé Griffon à Péronnas. - Les atouts de cette maison : Quartier résidentiel recherché de Péronnas, calme et proche de Bourg-en-Bresse. Plain-pied contemporain de 120 m² habitables, fonctionnel et lumineux. Pièce de vie spacieuse avec salon et salle à manger ouverts, donnant sur une véranda de près de 20 m² idéale pour profiter de l'extérieur toute l'année. Cuisine indépendante de 14 m², parfaitement agencée. 4 chambres confortables, dont une suite parentale avec salle d'eau attenante et dressing. Salle d'eau familiale (grande douche italienne) + WC séparés pour un confort optimal. Buanderie pratique, garage et carport voiture. Terrain clos sans vis-à-vis, parfaitement entretenu, avec pergola pour vos repas d'été. Maison en état impeccable, aucun travaux à prévoir. - Confort et performance : Chauffage électrique caloporteur + poêle à bois. Menuiseries PVC double vitrage. Isolation performante (murs, combles, vide sanitaire). DPE : Classe D 201 kWh / m2 / an, GES B (6 kg CO2 / m2 / an). - Localisation idéale : Péronnas est prisée pour sa qualité de vie, ses commerces, écoles et services de proximité, tout en bénéficiant d'un accès rapide à Bourg-en-Bresse et à la gare. - Pourquoi choisir cette maison ? Un bien rare sur le secteur : contemporain, de plain-pied, avec 4 chambres et une véranda, sur terrain intime et sans vis-à-vis. Idéal pour une famille recherchant confort, luminosité et tranquillité. Contactez Immosalignac dès aujourd'hui pour organiser une visite et découvrir cette maison coup de coeur à Péronnas. Immosalignac Votre agence immobilière à Péronnas et Bourg-en-Bresse Etienne Salignac O6I58I88I49I45 Les informations sur les risques auxquels ce bien est exposé sont disponibles sur le site Géorisques : .
Très belle maison d'architecte sur sous-sol complet aménagé sur un grand terrain arboré de 2693 m². Descriptif rez-de-jardin accessible par quelques marches depuis la cour, vous arrivez par un grand hall d'entrée desservant à gauche l'espace de vie et à droite l'espace nuit. Magnifique salon-séjour lumineux de plus de 40 m² avec de larges baies vitrées ouvrant sur le terrain, un insert bois et une climatisation réversible. Une grande cuisine toute équipée ouvrant sur la terrasse au sud. Pour la partie privative, une grande salle de bains récemment rénovée, une chambre avec sa salle d'eau et encore 2 grandes chambres. Vous trouverez ensuite sur le palier menant au sous-sol, un wc avec lave-mains et un coin cellier-rangement. Sous-sol le dégagement dessert 1 salle d'eau avec wc, une chambre, un bureau, un espace rangement, un 1er atelier, une chaufferie, une buanderie. Attenant au grand garage de 39 m², une cave et un second espace atelier. Montant estimé des dépenses annuelles d'énergie pour un usage standard : entre 2890 eur et 4000 eur, prix moyens des énergies indexés sur les années 2021,2022, 2023 (abonnements compris) consommation énergie primaire : 240 kwh / m2 / an. Les informations sur les risques auxquels ce bien est exposé sont disponibles sur le site géorisques : notre avis cachée sur les hauteurs de la commune mais à 5mn de toutes les commodités du village, cette belle villa d'architecte de 1975 a été régulièrement entretenue et équipée maintenant d'un système de chauffage performant avec une pac sur radiateurs, des blocs climatisation réversible et un insert bois dans la pièce de vie. L'étanchéité du toit a également été revue. Grand terrain clos et piscinable et un abri de jardin pour les passionnés ! N'hésitez pas à contacter patrick chavel agence ainter-immo 718 grande rue de la côtière 01 160 priay 1.
EXCLUSIVITE - NEYRON. Située sur les hauteurs de la commune de Neyron, cette maison contemporaine d'architecte d’une superficie d’environ 227 m² habitables construite en 2023 offre un cadre de vie unique, alliant modernité, confort et prestations haut de gamme. Au rez-de-chaussée, la maison s’ouvre sur une vaste pièce de vie d’environ 80 m², particulièrement lumineuse grâce à de larges baies vitrées et son exposition plein sud offrant un accès direct à la terrasse et à la piscine. La cuisine fonctionnelle, entièrement aménagée et équipée avec des prestations haut de gamme, bénéficie d’un accès direct à un grand cellier-buanderie attenant au garage, apportant une fonctionnalité supplémentaire au quotidien. Toujours de plain-pied, la suite parentale propose un espace confortable avec un très grand dressing et une salle de bains complète comprenant double douche et baignoire. À l’étage, trois chambres disposent chacune de leur propre salle d’eau ou salle de bains, ainsi que d’un accès à un balcon filant et à un toit-terrasse. Un dégagement lumineux peut accueillir un coin salon TV ou un espace détente, idéal pour les enfants ou les invités. À l’extérieur, le jardin entièrement clos et soigneusement aménagé offre un cadre de vie idéal. Vous profiterez d’une grande terrasse en béton désactivé, d’une cuisine d’été aménagée et équipée, d’une douche et de toilettes extérieurs, ainsi que d’un local technique. La piscine chauffée, en béton armé entourée d’espaces de détente, complète parfaitement l’ensemble. Le système audio avec enceintes connectées permet de profiter de la musique aussi bien à l’intérieur qu’à l’extérieur. Idéalement située à proximité des commodités et des principaux axes autoroutiers reliant le centre de Lyon en 15 minutes cette propriété séduira les amateurs d’architecture contemporaine et de confort moderne. N’hésitez pas à venir la découvrir lors d’une visite, coup de cœur assuré ! Honoraires à la charge du vendeur - Montant estimé des dépenses annuelles d'énergie pour un usage standard, établi à partir des prix de l'énergie de l'année 2021,2022, 2023 : 1150€ ~ 1610€.
265 000 EUR - Frais de notaire offerts Livraison T2 2026 Idéalement située dans un environnement résidentiel calme à 5 minutes d'Ambérieu-en-Bugey, découvrez cette maison neuve T4 de 83 m² habitables avec jardin, terrasse bois et 2 places de stationnement privatives, au sein du programme Le Clos du Stade. Les + du bien : Maison RE2020 à haute performance énergétique 3 chambres, 2 salles de bain, coin bureau Chauffage par pompe à chaleur + plancher chauffant Cuisine ouverte sur un séjour lumineux de 27 m² Terrasse bois de 6 m² + jardin privatif de 39 m² Volets roulants électriques, menuiseries PVC double vitrage 2 places de stationnement incluses Éligible au PTZ (prêt à taux zéro) 10 ans de Dommage ouvrage et garanties décennales Localisation : Située à Saint-Denis-en-Bugey, commune paisible à proximité immédiate d'Ambérieu (gare TER à 5 min, Lyon à 40 min), dans un petit lotissement de 11 logements. Environnement verdoyant, accès rapide aux commerces, écoles et nature du Bugey. Prix : 265 000 EUR TTC Frais de notaire offerts Livraison prévisionnelle : 2e semestre 2026 Plans, notice descriptive et brochure disponibles sur demande. Contactez ImmoSalignac dès aujourd'hui pour visiter le terrain, consulter les plans ou réserver cette maison en exclusivité. Opportunité rare pour habiter ou investir dans le neuf près d'Ambérieu. Les informations sur les risques auxquels ce bien est exposé sont disponibles sur le site Géorisques : .
Succombez au charme d'une maison d'hôtes de caractère à Neyron Située à proximité de Lyon, dans un cadre paisible et verdoyant, cette maison d'hôtes de 330 m² offre un havre de paix idéal pour se détendre et profiter de la vie. Nichée dans un quartier résidentiel calme, elle offre un cadre de vie paisible et verdoyant. D'une superficie de 330 m², cette maison d'hôtes de charme est composée de 10 pièces, dont 5 chambres spacieuses et confortables. Un logement indépendant complète ce bien. Cet actif prêt à l'emploi offre la possibilité à divers projets. Le rez-de-chaussée : Une entrée spacieuse et accueillante Un salon chaleureux avec cheminée Une salle à manger pouvant accueillir jusqu'à 12 personnes Une cuisine équipée et aménagée avec des appareils électroménagers haut de gamme Une chambre avec salle de bain privative Le premier étage : Quatre chambres spacieuses avec salle de bain privative, chacune décorée avec un style unique (entre 15 et 20 m² chacune) Un bureau Les extérieurs : Un terrain arboré et paysagé de 1411 m², véritable havre de paix Une terrasse ensoleillée de 40 m², idéale pour se détendre et profiter du beau temps 8 places de parking extérieures Une piscine chauffée, parfaite pour se rafraîchir en toute saison L'appartement locatif : Un appartement indépendant de 30 m² au sol et 50 m² sur deux niveaux, parfait pour générer des revenus locatifs Une pièce à vivre avec cuisine équipée Une chambre en mezzanine Une salle de bain Pour de plus amples informations, n'hésitez pas à contacter l'agence au 07 65 21 37 13, l'équipe AIO sera ravie de vous renseigner. Mandat no AL / 75. Prix : 1 030 080 EUR, dont 3 % d'honoraires à la charge de l'acquéreur.
GEX - Secteur Pitegny - Situation idéale - Au calme au fond d'une impasse, très agréable villa 5 pièces de 147 m² sur 540 m² de terrain. Cette maison se compose : - Au RDC : une entrée avec placard, une cuisine équipée avec un cellier attenant, un beau salon / séjour traversant et lumineux avec un accès terrasse avec une superbe vue sur le jura, un garage et un WC visiteur. - A l'étage 4 belles chambres, deux avec placards, une salle de bains, une salle de douche et un WC séparé. Maison parfaite pour une famille, disposant d'un beau terrain, 2 terrasses exposées est et ouest, place de parking extérieur. Agence BASTIEN Divonne les Bains - Réf 6817 - Honoraires à la charge du vendeur. Les informations sur les risques auxquels ce bien est exposé sont disponibles sur le site Géorisques : .
Découvrez cette somptueuse maison de maître, alliant charme et élégance, située sur un grand terrain en partie constructible. Profitez d'une vue dégagée exceptionnelle de la vallée de l'ain jusqu'aux contreforts du bugey. Caracteristiques principales surface habitable : + de 320 m² nombre de chambres : 5 terrain : grand terrain de + de 6000 m² dont une moitié constructible vue : dégagée emplacement : à proximité des commerces et commodités de priay, des entrées d'autoroutes et de la gare sncf d'ambérieu description detaillee cette maison de maître, située dans un cadre idyllique, offre un espace de vie généreux et lumineux. Avec ses cinq chambres spacieuses, elle est parfaite pour les familles nombreuses ou pour ceux qui aiment recevoir. Le grand terrain, en partie constructible, offre de nombreuses possibilités d'extension ou de construction supplémentaire. La vue imprenable sur la vallée de l'ain et les contreforts du bugey ajoute une touche de magie à cette propriété exceptionnelle. Montant estimé des dépenses annuelles d'énergie pour un usage standard : entre 6130 eur et 8390 eur, prix moyens des énergies indexés au 1er janvier 2021 (abonnements compris) consommation énergie primaire : 318 kwh / m2 / an. Les informations sur les risques auxquels ce bien est exposé sont disponibles sur le site géorisques : equipements cuisine équipée et moderne salon spacieux avec cheminée salle à manger élégante bureau ou bibliothèque plusieurs salles de bains et toilettes grand garage et espaces de stockage terrain aménagé et terrasses avec vues le + 2 gites attenant de 65 et 70 m², avec accès et terrains indépendants pour une rente locative complémentaire ! Notre avis vous aimez les grandes maisons avec du cachet, des beaux parquets, des poutres, de grands espaces, une vue. Vous aimez entretenir un grand terrain, faire évoluer une maison. Alors cette maison est faite pour vous ! Vous pourrez aisément générer du revenu locatif complémentaire avec les 2 gîtes, ou bien créer un lieu intergénérationnel pour toute une grande famille ! N'hésitez pas à contacter patrick chavel 718 grande rue de la côtière 01 160 priay 1.
Grilly - venez découvrir cette villa individuelle et familiale d'environ 188 m² sur 1000 m² de terrain avec sous-sol ! Elle se compose au rez-de-chaussée : entrée cathédrale, cuisine semi-ouverte sur vaste et lumineux séjour, 1 chambre, 1 salle de douches, 1 wc et 1 cellier. À l'étage : deuxième salon, 3 chambres dont une en suite avec salle de bains et dressing, une salle de douches, wc séparé. Un garage double de plain pied, un sous-sol de plus de 30 m², une belle terrasse et un balcon complètent le bien. Nombreux stationnements à l'avant de la maison. Ref 6841 - agence bastien divonne les bains et st genis pouilly - honoraires à la charge du vendeur. Agence bastien, agence immobilière st genis pouilly et divonne les bains, vente achat villa et maison grilly 01220.
REYRIEUX. Découvrez cette charmante maison d'environ 133 m² rénovée, idéalement située sur la commune de Reyrieux. Profitez de la proximité des écoles et des commerces, ainsi que de l'accès rapide à l'autoroute, à seulement 8 minutes en voiture. Dès votre entrée, vous serez séduit par une cuisine moderne, entièrement équipée et aménagée, parfaite pour concocter vos repas en famille. Le salon spacieux et lumineux, offrant une vue sur les monts d'Or, un accès de plain-pied sur la terrasse est l'endroit idéal pour se détendre ou recevoir vos amis. À l'étage, vous trouverez trois chambres confortables, dont une suite parentale avec salle de bain attenante pour plus de confort et d'intimité. Une seconde salle d'eau avec une douche à l'italienne vient complèter cet espace. À l'extérieur, profitez d'une terrasse clôturée d'environ 70 m² ainsi que deux places de stationnement privatives. Ne manquez pas cette opportunité unique de vivre dans un cadre paisible tout en étant à proximité de toutes les commodités. Contactez-nous dès aujourd'hui pour organiser une visite ! Honoraires à la charge du vendeur - Montant estimé des dépenses annuelles d'énergie pour un usage standard, établi à partir des prix de l'énergie de l'année 2021 : 1428€ ~ 1932€ - Les informations sur les risques auxquels ce bien est exposé sont disponibles sur le site Géorisques : .
Découvrez cette Maison T4 neuve certifiée RE2020 à Montcet, offrant un confort optimal et un cadre verdoyant, à seulement 15 minutes de Bourg-en-Bresse et 2 minutes de Montracol. Descriptif détaillé - Surface habitable : 73 m² avec 2 chambres - Extérieurs : Terrasse privative d'environ 10 m² - Jardin privatif engazonné 250 m² + 2 places de stationnement Pourquoi choisir ce bien ? 1. Conception RE2020 Isolation performante, confort thermique et économies d'énergie toute l'année. 2.Aucun intérêt intercalaire Vous réservez maintenant, et vous ne payez qu'à la livraison définitive du bien. 3.Garantie Sérénité Décennale et dommage ouvrage inclus pour une tranquillité d'esprit totale. 4.Vie moderne, cadre naturel : oGrand séjour ouvert et lumineux pour des moments conviviaux. oDeux chambres à l'étage, idéales pour une famille ou un couple souhaitant un bureau / chambre d'amis. oProximité des commerces, écoles et grands axes, tout en profitant d'un environnement paisible. 5. Des Extérieurs soignés : oTerrasse parfaite pour vos soirées estivales. oJardin privatif déjà engazonné, lieu de détente ou de jeux pour enfants. Localisation idéale : o15 min de Bourg-en-Bresse et 15 min de Vonnas, pour allier vie active et tranquillité. oCommerces et écoles à quelques centaines de mètres. oAccès rapide aux grands axes routiers. Prix attractif : 175 000 EUR pour cette maison neuve, frais de notaire offerts. Une occasion unique de concilier confort, modernité et art de vivre à la campagne. Ne manquez pas cette opportunité Contactez-nous dès maintenant pour plus d'informations ou pour réserver votre visite. Profitez de ce logement neuf au prix accessible et d'une installation sans stress ni intérêts intercalaires ! Agent commercial Valentin VADI 06 ? 58 ? 3012 ? 93 Les informations sur les risques auxquels ce bien est exposé sont disponibles sur le site Géorisques : .
Vous rêvez d'un cadre de vie serein tout en restant proche de la ville ? Découvrez ce Maison T4 neuve certifiée RE2020, offrant un confort optimal et un cadre verdoyant, à seulement 20 minutes de Bourg-en-Bresse et 15 minutes de Vonnas. Descriptif détaillé oSurface habitable : 86,16 m² oRez-de-chaussée : oHall + Rangement (4,24 m²) oWC (1,87 m²) oSéjour + Coin Cuisine (37,02 m²) oPetit Rangement (0,84 m²) oÉtage : oChambre 1 (10,03 m² + rangements) oChambre 2 (11,24 m² + rangements) oChambre 3 (9,95 m² + rangements) oSalle de bains + WC (6,24 m²) oDégagement (4,73 m²) oExtérieurs : oTerrasse privative d'environ 12 m² oJardin privatif engazonné d'environ 40 m² o2 places de stationnement Pourquoi choisir ce bien ? 1. Conception RE2020 Isolation performante, confort thermique et économies d'énergie toute l'année. 2.Aucun intérêt intercalaire Vous réservez maintenant, et vous ne payez qu'à la livraison définitive du bien. 3.Garantie Sérénité Décennale et dommage ouvrage inclus pour une tranquillité d'esprit totale. 4.Vie moderne, cadre naturel oGrand séjour ouvert et lumineux pour des moments conviviaux. oTrois chambres à l'étage, idéales pour une famille ou un couple souhaitant un bureau / chambre d'amis. oProximité des commerces, écoles et grands axes, tout en profitant d'un environnement paisible. 5.Extérieurs soignés oTerrasse parfaite pour vos soirées estivales. oJardin privatif déjà engazonné, lieu de détente ou de jeux pour enfants. Localisation idéale o20 min de Bourg-en-Bresse et 15 min de Vonnas, pour allier vie active et tranquillité. oCommerces et écoles à quelques centaines de mètres. oAccès rapide aux grands axes routiers. Prix attractif : 185 000 EUR pour cette maison neuve de 86 m². Une occasion unique de concilier confort, modernité et art de vivre à la campagne. Ne manquez pas cette opportunité Contactez-nous dès maintenant pour plus d'informations ou pour réserver votre visite. Profitez de ce logement neuf au prix accessible et d'une installation sans stress ni intérêts intercalaires ! Les informations sur les risques auxquels ce bien est exposé sont disponibles sur le site Géorisques : .
Devenez propriétaire à Chaveyriat. Marre de payer un loyer ? C’est le moment de passer le cap avec un projet accessible, moderne et idéal pour un premier achat. Situé sur une belle parcelle de 570 m², ce projet vous offre un cadre de vie calme, tout en restant proche de Mâcon et Bourg en Bresse, Une maison conçue pour démarrer sereinement Maisons Punch vous propose une maison fonctionnelle et bien pensée comprenant : Un espace de vie lumineux et parfait pour recevoir et profiter d’un intérieur moderne 2 chambres, dont une idéale pour télétravailler ou évoluer plus tard Un garage attenant, pratique pour le rangement, motos / vélos ou futur atelier Prestations incluses, sans mauvaise surprise Volets roulants motorisés et connectés Débords de toit en PVC sans entretien Pompe à chaleur AIR / AIR réversible, économique et confortable été / hiver Carrelage 45 x 45 cm contemporain Un budget clair et maîtrisé 198 500 €, incluant : Terrain + VRD (estim.) + construction Maison Punch. Packs Déco OU Cuisine offerts Parfait pour emménager rapidement et aménager votre intérieur sans exploser votre budget. Un projet 100% personnalisable Couleurs, agencement, rangements… adaptez votre maison à votre style et à votre mode de vie. Envie de vous lancer ? Contactez Mme Viana au 06 07 10 89 44 Et devenez enfin propriétaire de votre première maison ! Terrain proposé et vendu par notre partenaire foncier selon disponibilités, le constructeur n’étant pas mandaté pour réaliser la vente du terrain. Prix terrain inclus : 60 500 € Frais de notaire non inclus : € Prix maison inclus : 138 000 € VRD non inclus : € Hors aménagements extérieurs (extensions, terrasse, piscine etc), papiers peints, peintures, moquettes dans les chambres (tarif en vigueur au 20 mai 2025, modifiable sans préavis, prix variables suivant les prestations souhaitées). Hors frais d’hypothèque. Différents modèles disponibles pour chaque terrain. Assurance RC professionnelle / décennale / dommage ouvrage groupe Aviva. Garantie de remboursement de l'acompte / livraison à prix et délai convenu CGI. Partenaire financier : à préciser Le numéro de TVA intracommunautaire : FR 14 498 627 272 00012 Contact : contact@maisons-punch.fr.
Sur une belle parcelle de 570 m², découvrez un projet idéal sur la commune de Chaveyriat pour accueillir vos enfants dans un environnement calme, sécurisé et proche des commodités. Une maison pensée pour les jeunes familles Maisons Punch vous propose une maison moderne et fonctionnelle comprenant : Un séjour lumineux et parfait pour partager les moments du quotidien 3 chambres confortables, adaptées pour bébé, enfant ou bureau Un garage attenant, pratique pour poussettes, vélos et rangements Les prestations déjà incluses (Pour un quotidien simple, confortable et sans surprise) Volets roulants motorisés et connectés Débords de toit sans entretien (PVC) Pompe à chaleur AIR / AIR réversible pour un confort été / hiver Carrelage 45 x 45 cm élégant et facile d’entretien Budget maîtrisé 218 500 € tout compris, incluant : Terrain + VRD (estim.) + construction Maison Punch. Packs Déco OU Cuisine offerts De quoi emménager plus sereinement et créer un intérieur à votre image dès la remise des clés. Un projet 100% personnalisable Plans, agencements, matériaux… nous adaptons tout selon vos envies et votre style de vie. Plus d’infos ? Contactez Mme Viana : 06 07 10 89 44 Et construisons ensemble la maison où vos enfants grandiront. Terrain proposé et vendu par notre partenaire foncier selon disponibilités, le constructeur n’étant pas mandaté pour réaliser la vente du terrain. Prix terrain inclus : 60 500 € Frais de notaire non inclus : € Prix maison inclus : 158 000 € VRD non inclus : € Hors aménagements extérieurs (extensions, terrasse, piscine etc), papiers peints, peintures, moquettes dans les chambres (tarif en vigueur au 20 mai 2025, modifiable sans préavis, prix variables suivant les prestations souhaitées). Hors frais d’hypothèque. Différents modèles disponibles pour chaque terrain. Assurance RC professionnelle / décennale / dommage ouvrage groupe Aviva. Garantie de remboursement de l'acompte / livraison à prix et délai convenu CGI. Partenaire financier : à préciser Le numéro de TVA intracommunautaire : FR 14 498 627 272 00012 Contact : contact@maisons-punch.fr.
? Idéal famille : votre maison neuve dans un cadre paisible, proche de lyon et de la gare ? Offres exceptionnelles 10 m² supplémentaires + pack déco ou pack cuisine offerts !* offre limitée — conditions en agence ? Votre futur projet familial à saint olive à seulement 45 minutes de lyon, avec accès rapide à la gare, profitez d’un environnement calme, sécurisant et idéal pour voir grandir vos enfants. Sur une belle parcelle de 378 m², découvrez un projet pensé pour le confort et la tranquillité au quotidien. ? Une maison conçue pour les jeunes familles maisons punch vous propose une maison moderne, fonctionnelle et lumineuse comprenant : un séjour lumineux, parfait pour les moments partagés 3 chambres confortables, adaptables pour bébé, enfants ou bureau un garage attenant, pratique pour poussettes, vélos et rangements ? Prestations incluses pour un quotidien simple, confortable et sans mauvaises surprises : volets roulants motorisés et connectés pompe à chaleur air / air réversible : confort été / hiver carrelage 45×45 cm, élégant et facile à entretenir ? Budget maîtrisé 276 000 €, incluant : terrain + vrd (estim.) + construction maison punch. Un vrai coup de pouce pour aménager votre intérieur selon vos envies dès la remise des clés. ? Un projet 100% personnalisable plans, agencements, matériaux… tout s’adapte à votre style de vie. ? Plus d’infos ? Contactez mme viana : 06 07 10 89 44 et construisons ensemble la maison où vos enfants grandiront. Terrain proposé et vendu par notre partenaire foncier selon disponibilités, le constructeur n’étant pas mandaté pour réaliser la vente du terrain. Prix terrain inclus : 120 000 € frais de notaire non inclus : € prix maison inclus : 156 000 € vrd non inclus : € hors aménagements extérieurs (extensions, terrasse, piscine etc), papiers peints, peintures, moquettes dans les chambres (tarif en vigueur au 20 mai 2025, modifiable sans préavis, prix variables suivant les prestations souhaitées). Hors frais d’hypothèque. Différents modèles disponibles pour chaque terrain. Assurance rc professionnelle / décennale / dommage ouvrage groupe aviva. Garantie de remboursement de l'acompte / livraison à prix et délai convenu cgi. Partenaire financier : à préciser le numéro de tva intracommunautaire : fr 14 498 627 272 00012 contact : contact@maisons-punch.fr.
Offres exceptionnelles 10 m² supplémentaires + pack déco ou pack cuisine offerts !* offre limitée — conditions en agence votre futur projet familial à sainte olive à seulement 45 minutes de lyon sur une agréable parcelle de 378 m², découvrez un projet idéal pour accueillir votre famille dans un environnement calme, sécurisé et proche de toutes les commodités. ? Une maison pensée pour les jeunes familles maisons punch vous propose une maison moderne, fonctionnelle et confortable comprenant : un séjour lumineux, parfait pour les moments du quotidien 3 chambres adaptées pour enfant, bébé ou bureau un garage attenant, idéal pour poussettes, vélos et rangements ? Prestations incluses pour un quotidien simple, confortable et sans mauvaise surprise : volets roulants motorisés et connectés pompe à chaleur air / air réversible pour un confort été / hiver carrelage 45×45 cm, élégant et facile d’entretien ? Un budget maîtrisé 286 000 €, incluant : terrain + vrd (estim.) + construction maison punch. De quoi emménager sereinement et personnaliser votre intérieur dès la remise des clés. ? Un projet 100% personnalisable plans, agencements, matériaux… tout est adapté selon vos envies et votre mode de vie. ? Plus d’infos ? Contactez mme viana : 06 07 10 89 44 construisons ensemble la maison où vos enfants grandiront. Terrain proposé et vendu par notre partenaire foncier selon disponibilités, le constructeur n’étant pas mandaté pour réaliser la vente du terrain. Prix terrain inclus : 120 000 € frais de notaire non inclus : € prix maison inclus : 166 000 € vrd non inclus : € hors aménagements extérieurs (extensions, terrasse, piscine etc), papiers peints, peintures, moquettes dans les chambres (tarif en vigueur au 20 mai 2025, modifiable sans préavis, prix variables suivant les prestations souhaitées). Hors frais d’hypothèque. Différents modèles disponibles pour chaque terrain. Assurance rc professionnelle / décennale / dommage ouvrage groupe aviva. Garantie de remboursement de l'acompte / livraison à prix et délai convenu cgi. Partenaire financier : à préciser le numéro de tva intracommunautaire : fr 14 498 627 272 00012 contact : contact@maisons-punch.fr.
Offres exceptionnelles 10 m² supplémentaires + pack déco ou pack cuisine offerts !* durée limitée — conditions en agence un projet de vie confortable à péronnas ! Sur une spacieuse parcelle de 400 m², profitez d’un cadre paisible, idéal pour une retraite active ou simplement pour vivre au calme, dans une commune agréable et bien desservie. Une maison pensée pour votre confort au quotidien maisons punch vous propose une maison moderne et fonctionnelle comprenant : un séjour lumineux, parfait pour recevoir famille et amis 3 chambres, dont une pouvant facilement devenir un bureau, un atelier ou une chambre d’amis un garage attenant, pratique pour le rangement, les déplacements et la sérénité prestations incluses pour plus de sérénité (moins d’entretien — plus de confort) volets roulants motorisés et connectés, pour plus de simplicité pompe à chaleur air / eau au sol, pour un confort été comme hiver carrelage 45 x 45 cm, élégant et durable un budget tout compris et sans surprise 215 000 € incluant : terrain + vrd (estim.) + construction maison punch. Une maison prête à vivre, avec un intérieur fonctionnel et agréable à aménager. Un projet personnalisable selon vos besoins possibilité d’adapter les plans : chambre au rez-de-chaussée rangements supplémentaires aménagements pratiques pour anticiper l’avenir nous construisons une maison qui s’ajuste à votre rythme et vos habitudes. Pour plus d’informations contactez mme viana carole : 06 07 10 89 44 et parlons ensemble de votre futur lieu de vie, serein et confortable. Terrain proposé et vendu par notre partenaire foncier selon disponibilités, le constructeur n’étant pas mandaté pour réaliser la vente du terrain. Prix terrain inclus : 87 000 € frais de notaire non inclus : € prix maison inclus : 155 000 € vrd non inclus : € hors aménagements extérieurs (extensions, terrasse, piscine etc), papiers peints, peintures, moquettes dans les chambres (tarif en vigueur au 20 mai 2025, modifiable sans préavis, prix variables suivant les prestations souhaitées). Hors frais d’hypothèque. Différents modèles disponibles pour chaque terrain. Assurance rc professionnelle / décennale / dommage ouvrage groupe aviva. Garantie de remboursement de l'acompte / livraison à prix et délai convenu cgi. Partenaire financier : à préciser le numéro de tva intracommunautaire : fr 14 498 627 272 00012 contact : contact@maisons-punch.fr.
Offres exceptionnelles 10 m² supplémentaires + pack déco ou pack cuisine offerts !* durée limitée — conditions en agence votre futur projet de famille à curtafond sur une belle parcelle de 600 m², découvrez un projet idéal pour accueillir vos enfants dans un environnement calme, sécurisé et proche des commodités. Une maison pensée pour les jeunes familles maisons punch vous propose une maison moderne et fonctionnelle comprenant : un séjour lumineux, parfait pour partager les moments du quotidien 3 chambres confortables, adaptées pour bébé, enfant ou bureau un garage attenant, pratique pour poussettes, vélos et rangements les prestations déjà incluses (pour un quotidien simple, confortable et sans surprise) volets roulants motorisés et connectés pompe à chaleur air / eau au sol pour un confort été / hiver carrelage 45 x 45 cm élégant et facile d’entretien budget maîtrisé 238 000 € incluant : terrain + vrd (estim.) + construction maison punch. De quoi emménager plus sereinement et créer un intérieur à votre image dès la remise des clés. Un projet 100% personnalisable plans, agencements, matériaux… nous adaptons tout selon vos envies et votre style de vie. Plus d’infos ? Contactez viana carole : 06 07 10 89 44 et construisons ensemble la maison où vos enfants grandiront. Terrain proposé et vendu par notre partenaire foncier selon disponibilités, le constructeur n’étant pas mandaté pour réaliser la vente du terrain. Prix terrain inclus : 58 000 € frais de notaire non inclus : € prix maison inclus : 180 000 € vrd non inclus : € hors aménagements extérieurs (extensions, terrasse, piscine etc), papiers peints, peintures, moquettes dans les chambres (tarif en vigueur au 20 mai 2025, modifiable sans préavis, prix variables suivant les prestations souhaitées). Hors frais d’hypothèque. Différents modèles disponibles pour chaque terrain. Assurance rc professionnelle / décennale / dommage ouvrage groupe aviva. Garantie de remboursement de l'acompte / livraison à prix et délai convenu cgi. Partenaire financier : à préciser le numéro de tva intracommunautaire : fr 14 498 627 272 00012 contact : contact@maisons-punch.fr.
Construite en 2025 et conforme à la RT 2020, cette maison individuelle séduit par la qualité de ses prestations, ses volumes généreux et son confort moderne, dans un environnement résidentiel recherché du Pays de Gex. Le cœur de la maison s'organise autour d'un séjour–cuisine lumineux de 51 m², baigné de lumière naturelle, équipé de volets BSO et ouvert sur la terrasse et le jardin. Les sols du rez-de-chaussée sont habillés de pierre naturelle, que l'on retrouve également sur l'escalier menant à l'étage, ainsi que sur le plan de travail d'une cuisine (SMEG) élégamment équipée, pensée pour un usage quotidien aussi fonctionnel qu'esthétique. Le confort est total grâce à un chauffage au sol sur les deux niveaux, complété par une climatisation dans les espaces jour et nuit. À l'étage, les espaces nuit offrent de beaux volumes et une parfaite distribution. Une superbe suite parentale de 28 m² avec douche à l'italienne et dressing optimisé assure intimité et confort. Une salle de bains avec douche à l'italienne dessert les deux autres chambres, toutes deux équipées de placards intégrés, dont l'une bénéficie d'un balcon panoramique. Les trois chambres ainsi que la mezzanine sont sublimées par un plancher en chêne massif, apportant chaleur et élégance. À l'extérieur, le jardin soigneusement arboré et entièrement clôturé, avec portail automatique, invite à la détente et à la convivialité. Un garage en rez-de-chaussée, attenant au cellier et à l'espace cuisine-séjour, complète ce bien. La maison est également équipée d'une alarme avec télésurveillance, pour une sérénité absolue. Une maison comme on les aime avec une situation idéale à Ségny, au cœur du Pays de Gex, à proximité de Genève et de toutes les commodités. Les honoraires sont à la charge du vendeur. Les informations sur les risques auxquels ce bien est exposé sont disponibles sur le site Géorisques : www. georisques. gouv. fr. Réseau Immobilier CAPIFRANCE - Votre agent commercial (RSAC N°752 462 267 - Greffe de BOURG EN BRESSE) Frédéric JANIN Entrepreneur Individuel 06 06 86 44 95 - Réf. 935607.
GRILLY – Maison de caractère au cœur du village, environnement naturel privilégié Située en plein cœur du village de Grilly, au fond d'une impasse au calme, cette maison de caractère datant de 1789 séduit par son authenticité, ses volumes généreux et son environnement naturel exceptionnel. D'une surface habitable d'environ 189 m², la maison offre de beaux espaces de vie lumineux, un salon avec cheminée, une cuisine entièrement équipée avec rangements sur mesure, ouverte sur un espace salle à manger convivial. L'ensemble a conservé de très beaux volumes, dans un esprit chaleureux et authentique. La partie nuit se compose de 5 grandes chambres et de 3 salles de bains, permettant une organisation confortable pour une famille ou des invités. L'environnement est l'un des atouts majeurs de cette propriété : champs à perte de vue, chevaux à proximité immédiate, départs de promenades à pied, et le Jura en toile de fond. Un cadre rare, en plein centre du village, où règnent le calme et la nature. Les prestations sont complétées par un garage double avec portes motorisées, une cave, ainsi qu'un système de chauffage récent par chaudière à granulés, performant et économique. Points forts de la propriété : – Cœur de village, impasse au calme absolu – Environnement naturel exceptionnel (champs, chevaux, balades) – Maison de caractère de 1789 – Beaux volumes et luminosité – 5 grandes chambres, 3 salles de bains – Garage double motorisé, cave – Chauffage récent, économique et écologique – Proximité Divonne-les-Bains et Genève Une propriété rare, à l'adresse confidentielle, destinée à une clientèle en recherche d'authenticité, de sérénité et de qualité de vie. Les honoraires sont à la charge du vendeur. Les informations sur les risques auxquels ce bien est exposé sont disponibles sur le site Géorisques : www. georisques. gouv. fr. Réseau Immobilier CAPIFRANCE - Votre agent commercial (RSAC N°531 224 350 - Greffe de BOURG EN BRESSE) Nathalie CHARNIER Entrepreneur Individuel 06 78 22 48 16 - Réf. 935571.
Vous rêvez de vivre à la campagne tout en restant proche des commodités ? Ne cherchez plus, ce corps de ferme à renover n'attend que vous ! Courtes – à seulement 5 min des commerces et 35 min de mâcon & bourg-en-bresse. Situé au calme absolu, au fond d'une impasse, cet ensemble offre un cadre idéal pour un projet de vie unique. 127 m² habitables de plain-pied avec 3 grandes chambres, une cuisine séparée, un séjour lumineux, une salle d'eau, un espace buanderie et une cave pleine de charme. Combles aménageables permettant de doubler la surface ! Laissez libre cours à votre imagination. Dépendances à foison ! : grange de 93 m² écuries de 85 m² garage fermé dépendance supplémentaire de 86 m² pour vos animaux ou vos projets divers côté technique : double vitrage partiel & volets électriques fibre optique - chaudière fioul fosse septique - puits toiture à revoir un projet de vie à façonner selon vos envies ! Cette propriété pleine de cachet est une véritable opportunité pour les amoureux de l'authenticité et de la nature. Intéressé ? Une visite s'impose ! Contactez moi pour en savoir plus. Les honoraires sont à la charge du vendeur. Les informations sur les risques auxquels ce bien est exposé sont disponibles sur le site géorisques : www. Georisques. Gouv. Fr. Réseau immobilier capifrance - votre agent commercial (rsac n°913 965 943 - greffe de bourg en bresse) alexia convert entrepreneur individuel 06 18 63 84 87 - réf. 905945.