5 résultats
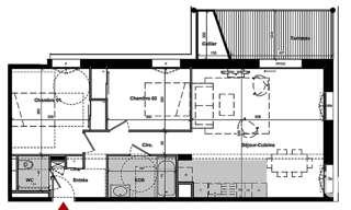
En plein centre du village, à proximité immédiate de l'église, des petits commerces et de l'arrêt TPG vous reliant directement au centre de Genève, cet appartement est idéal pour un frontalier ou un primo-accédant souhaitant allier confort de vie et accessibilité. Situé en rez-de-chaussée d'un immeuble dont la toiture et le crépi ont été rénovés en 1990, il fait partie d'une petite copropriété bien entretenue, avec faibles charges. Un espace extérieur est prévu pour l'installation de cabanons de stockage, pratique pour les besoins du quotidien. L'appartement, traversant et lumineux, se compose d'un séjour avec coin cuisine, de deux chambres, d'une salle de bains avec baignoire et de toilettes séparées. Circulation fluide et agencement fonctionnel. Le chauffage et l'eau chaude sont individuels électriques, pour une gestion simple et autonome. Un bien pratique, bien situé, prêt à vivre ou à rafraîchir selon vos envies. Le bien comprend 1 lot, et il est situé dans une copropriété de 6 lots (il n'y a pas de charges courantes liées à la copropriété et le syndicat des copropriétaires ne fait pas l'objet d'une procédure citée à l'article L. 721-1 du code de la construction et de l'habitation). Les informations sur les risques auxquels ce bien est exposé sont disponibles sur le site Géorisques : Prix de vente : 195 000 € Honoraires charge vendeur Contactez votre conseiller SAFTI : Guy DE PLINVAL, Tél. : 06 70 79 77 67, E-mail : guy.deplinval@safti.fr - EI - Agent commercial immatriculé au RSAC de ANNECY sous le numéro 492 536 503.
Iad france - alexandra rondinelli vous propose : en exclusivite ! Dans un environnement calme et recherché de viry, découvrez ce très bel appartement t3 situé au 1er étage avec ascenseur d’un immeuble sécurisé de seulement 3 étages – une copropriété bien entretenue, gage de tranquillité. Ce bien de qualité se compose de : -deux chambres lumineuses avec armoires intégrées - une salle de bain spacieuse fonctionnelle -une belle cuisine moderne entièrement équipée, ouverte sur le salon spacieux offrant un bel espace de vie de 24 m² environ -une entrée avec rangement intégré profitez également d'une agréable terrasse de 10,50 m² environ sans vis-à-vis, idéale pour vos moments de détente en toute intimité. Atout rare : un garage double en sous-sol, dans un état irréprochable, complète ce bien. Emplacement privilégié, à proximité immédiate des axes principaux, facilitant vos déplacements quotidiens tout en conservant un cadre de vie paisible. Idéal pour un couple, primo accédant et investisseur. À visiter sans tarder ! La presente annonce immobiliere vise 2 lots situés dans une copropriété de 213 lots au total et ne faisant l'objet d'aucune procédure en cours citée à l'article l. 721-1 du code de la construction et de l'habitation. Montant moyen mensuel de charges déclaré par le vendeur : 130€ par mois (soit 1560 € annuel). Honoraires d'agence à la charge du vendeur. Information d'affichage énergétique sur ce bien : classe energie c indice 74 et classe climat c indice 13. Les informations sur les risques auxquels ce bien est exposé, y compris l'obligation légale de débroussaillement, sont disponibles sur le site géorisques : la présente annonce immobilière a été rédigée sous la responsabilité éditoriale de mme alexandra rondinelli mandataire indépendant en immobilier (sans détention de fonds), agent commercial de la sas i@d france immatriculé au rsac de thonon les bains sous le numéro 904390069, titulaire de la carte de démarchage immobilier pour le compte de la société i@d france sas.
Au centre du village, cet appartement profite d'un bon emplacement : commerces, restaurant et surtout arrêt TPG pour circuler en toute simplicité. Idéal pour frontalier ou primo-accédant à la recherche de praticité et de calme. Dans un petit immeuble, seulement 6 logements, vous apprécierez les faibles charges de copropriété et l'accès facile Bonus pratique : un emplacement dédié pour installer un cabanon de rangement. Cerise sur le gâteau ? Une terrasse privative de 11 m², parfaite pour vos repas en plein air, un coin lecture au soleil ou un apéro entre amis. Un vrai atout pour profiter des beaux jours sans quitter chez soi ! À l'intérieur, ce T3 en rez-de-chaussée offre une base solide avec rafraichissement : séjour spacieux avec coin cuisine, deux chambres, salle de bains avec baignoire et toilettes séparées. Chauffage et eau chaude individuels électriques. Le prix a été calculé pour vous laisser libre cours à vos envies de déco et de remise au goût du jour. Un bien fonctionnel, accessible, avec extérieur privé et fort potentiel dans un secteur stratégique ! Le bien comprend 1 lot, et il est situé dans une copropriété de 6 lots (il n'y a pas de charges courantes liées à la copropriété et le syndicat des copropriétaires ne fait pas l'objet d'une procédure citée à l'article L. 721-1 du code de la construction et de l'habitation). Les informations sur les risques auxquels ce bien est exposé sont disponibles sur le site Géorisques : Prix de vente : 210 000 € Honoraires charge vendeur Contactez votre conseiller SAFTI : Guy DE PLINVAL, Tél. : 06 70 79 77 67, E-mail : guy.deplinval@safti.fr - EI - Agent commercial immatriculé au RSAC de ANNECY sous le numéro 492 536 503.
Au cœur du village, à quelques pas de l'église, des commerces et de l'arrêt du bus TPG menant directement au centre de Genève, cet appartement bénéficie d'une localisation très pratique, idéale pour un frontalier ou un jeune couple en quête de tranquillité sans s'éloigner des accès vers la ville. Installé au 2 ? et dernier étage d'un petit immeuble, ce logement à rafraichir sous combles séduit immédiatement par sa luminosité et son charme atypique. La résidence, dont le bâtiment a été rénové (toiture et crépi refaits en 1990), est bien tenue, avec faibles charges de copropriété, et disposera d'un espace extérieur pour cabanons de stockage. L'appartement développe 44,15 m² en loi Carrez et 15,73 m² hors Carrez, soit près de 60 m² au sol. La pièce de vie, traversante et lumineuse, accueille un coin cuisine et offre une belle hauteur. Deux chambres mansardées complètent l'ensemble, ainsi qu'une salle de bains avec baignoire et toilettes séparées. En prime, une mezzanine de rangement d'environ 5,6 m² vient optimiser l'espace sous toit. Un bien plein de charme, fonctionnel et baigné de lumière, dans un secteur recherché ! Le bien comprend 1 lot, et il est situé dans une copropriété de 6 lots (il n'y a pas de charges courantes liées à la copropriété et le syndicat des copropriétaires ne fait pas l'objet d'une procédure citée à l'article L. 721-1 du code de la construction et de l'habitation). Les informations sur les risques auxquels ce bien est exposé sont disponibles sur le site Géorisques : Prix de vente : 220 000 € Honoraires charge vendeur Contactez votre conseiller SAFTI : Guy DE PLINVAL, Tél. : 06 70 79 77 67, E-mail : guy.deplinval@safti.fr - EI - Agent commercial immatriculé au RSAC de ANNECY sous le numéro 492 536 503.

Recevez en temps réel les dernières annonces correspondant à votre recherche
Au centre du village, vous êtes à deux pas de l'église, des commerces de proximité, et surtout de l'arrêt TPG vous permettant de rejoindre rapidement le centre de Genève. Une localisation idéale pour un quotidien fluide, sans renoncer à un cadre de vie paisible et pratique. Situé au 1er étage d'un petit immeuble dont les principales rénovations (toiture, crépi) ont été réalisées dans les années 1990, cet appartement bénéficie d'un accès facile et d'un environnement calme. La copropriété est bien entretenue, avec faibles charges, et prévoit un espace extérieur commun pour des cabanons de stockage. Ce 3 pièces traversant est en bon état général. Il propose une pièce de vie lumineuse de près de 20 m² avec coin cuisine, une salle de bains avec baignoire, des toilettes séparées, ainsi que deux chambres de taille compacte mais fonctionnelle. Le chauffage et l'eau chaude sont individuels électriques, garantissant autonomie et gestion maîtrisée. Un appartement prêt à vivre, dans une localisation recherchée ! Le bien comprend 1 lot, et il est situé dans une copropriété de 6 lots (il n'y a pas de charges courantes liées à la copropriété et le syndicat des copropriétaires ne fait pas l'objet d'une procédure citée à l'article L. 721-1 du code de la construction et de l'habitation). Les informations sur les risques auxquels ce bien est exposé sont disponibles sur le site Géorisques : Prix de vente : 210 000 € Honoraires charge vendeur Contactez votre conseiller SAFTI : Guy DE PLINVAL, Tél. : 06 70 79 77 67, E-mail : guy.deplinval@safti.fr - EI - Agent commercial immatriculé au RSAC de ANNECY sous le numéro 492 536 503.
Autres annonces à proximité de Viry (74580) avec vos critères
5mn de VIRY, VERS, secteur recherché proche de la frontière Suisse et des commodités, situé dans une petite copropriété, cet appartement de type 3 en rez-de-jardin séduit par sa luminosité et son espace extérieur idéalement exposé plein sud. Vous profiterez d'une agréable terrasse et d'un jardin privatif, parfaits pour vos moments de détente. Une place de parking et une cave complètent ce bien, avec la possibilité d'acquérir un garage fermé. Référence agence : 1811.
Iad France - Virginie PASTEUR vous propose : Situé dans un environnement paisible sur la commune de Valleiry, à proximité immédiate des écoles, commerces et autres commodités, cet appartement de type T3 saura vous séduire par ses nombreux atouts et son cadre de vie agréable. Installé dans une petite copropriété à taille humaine, ce bien bénéficie d’un calme absolu tout en étant proche des principaux axes routiers. Ce T3 traversant, d’une superficie de 62.5 m², se compose d’une entrée spacieuse avec un placard intégré permettant un rangement optimal dès l’arrivée. Un cellier buanderie attenant à l’entrée. La pièce principale se compose d’une cuisine équipée ouverte sur un salon salle à manger lumineux. Cet espace de vie spacieux et fonctionnel bénéficie d’une belle exposition, créant une ambiance chaleureuse et conviviale. La cuisine, moderne et bien agencée, dispose de tous les équipements nécessaires pour cuisiner. De plus, le salon salle à manger s’ouvre sur une terrasse privée sans vis-à-vis, offrant ainsi un véritable havre de paix pour profiter des journées ensoleillées ou de moments de détente en extérieur. L’appartement dispose également d’une partie nuit distincte et parfaitement isolée pour plus de tranquillité. Vous y trouverez deux chambres confortables, la salle de bain est équipée d’une baignoire, un WC séparé complète cette partie du logement Un garage fermé en sous-sol, sécurisé, vous permettra de stationner votre véhicule en toute sécurité. Une place de parking privative devant la résidence, pratique pour accueillir vos invités ou stationner un second véhicule. Cet appartement est vendu loué, le bail se termine en octobre 2027, idéal investisseurs pour un rendement locatif stable. Vous bénéficierez ainsi d’une localisation stratégique, permettant à la fois tranquillité et praticité au quotidien. La presente annonce immobiliere vise 3 lots situés dans une copropriété de 402 lots au total et ne faisant l'objet d'aucune procédure en cours citée à l'article L. 721-1 du code de la construction et de l'habitation. Montant moyen mensuel de charges déclaré par le vendeur : 116.67€ par mois (soit 1400 € annuel). Honoraires d'agence à la charge du vendeur. Information d'affichage énergétique sur ce bien : classe ENERGIE D indice 201 et classe CLIMAT B indice 6. Les informations sur les risques auxquels ce bien est exposé, y compris l'obligation légale de débroussaillement, sont disponibles sur le site Géorisques : La présente annonce immobilière a été rédigée sous la responsabilité éditoriale de Mme Virginie PASTEUR mandataire indépendant en immobilier (sans détention de fonds), agent commercial de la SAS I@D France immatriculé au RSAC de thonon-les-bains sous le numéro 844943100, titulaire de la carte de démarchage immobilier pour le compte de la société I@D France SAS.
Situé à Valleiry, cet appartement bénéficie d'un emplacement idéal, offrant un cadre de vie paisible sans vis-à-vis, au sein d'une petite copropriété, dans un environnement calme tout en étant proche des commerces et de la frontière Suisse; Ce charmant appartement de 67 m² situé au 2ème étage avec ascenseur, se compose d'un hall d'entrée avec placard, d'une cuisine ouverte sur le séjour, avec accès au balcon / terrasse de 13 m², de 2 chambres dont une avec placard intégré, d'une salle de bains avec baignoire, et de WC indépendants. L'espace est optimisé et fonctionnel, offrant un confort de vie appréciable. Construit en 2015, et vendu loué jusqu'en 2027, ce bien saura vous séduire si vous êtes à la recherche d'un investissement locatif en toute sérénité; Cet appartement comprend une place de parking extérieure privée, un garage, une cave. Un local à vélo équipe cette copropriété. Le bien comprend 4 lots, et il est situé dans une copropriété de 57 lots (il n'y a pas de charges courantes liées à la copropriété et le syndicat des copropriétaires ne fait pas l'objet d'une procédure citée à l'article L. 721-1 du code de la construction et de l'habitation). Les informations sur les risques auxquels ce bien est exposé sont disponibles sur le site Géorisques : Prix de vente : 315 000 € Honoraires charge vendeur Contactez votre conseiller SAFTI : Maryline THOMASSET, Tél. : 07 84 58 81 00, E-mail : maryline.thomasset@safti.fr - EI - Agent commercial immatriculé au RSAC de Annecy sous le numéro 900 679 861.
Iad France - Mederic MOSTEIRO vous propose : Découvrez ce spacieux T3 de 71 m², situé au 2ᵉ étage d’une résidence calme et sécurisée avec ascenseur, à proximité immédiate du Collège. Ce bien offre un fort potentiel de rénovation pour les amateurs de travaux ou les investisseurs souhaitant créer un bien moderne à leur image. Il se compose de : - Une pièce de vie lumineuse de 23 m² donnant sur balcon - Une cuisine indépendante à aménager selon vos envies - Deux chambres - Une salle de bains et un WC séparé Deux balcons pour profiter de l’extérieur. Les plus : - Ascenseur - Place de parking en sous-sol - Cave privative - Localisation recherchée à proximité de toutes commodités (commerces, écoles, transports). Travaux de rénovation à prévoir, offrant la possibilité de valoriser pleinement ce bien à fort potentiel. La presente annonce immobiliere vise 3 lots situés dans une copropriété de 71 lots au total et ne faisant l'objet d'aucune procédure en cours citée à l'article L. 721-1 du code de la construction et de l'habitation. Montant moyen mensuel de charges déclaré par le vendeur : 276.33€ par mois (soit 3316 € annuel). Honoraires d'agence à la charge du vendeur. Information d'affichage énergétique sur ce bien : classe ENERGIE E indice 252 et classe CLIMAT B indice 8. Les informations sur les risques auxquels ce bien est exposé, y compris l'obligation légale de débroussaillement, sont disponibles sur le site Géorisques : La présente annonce immobilière a été rédigée sous la responsabilité éditoriale de M Mederic MOSTEIRO mandataire indépendant en immobilier (sans détention de fonds), agent commercial de la SAS I@D France immatriculé au RSAC de Thonon les Bains sous le numéro 891732612, titulaire de la carte de démarchage immobilier pour le compte de la société I@D France SAS.
? Nouvelle résidence de standing à saint-julien-en-genevois ! découvrez les 3 moulins, à 2 km de la frontière suisse et 11 km du centre de genève. - appartements lumineux du 2 au 5 pièces avec grands balcons, terrasses ou jardins. - adresse idéale pour habiter ou investir avec forte rentabilité locative. - quartier central et dynamique avec commerces, écoles et transports à deux pas. devenez propriétaire à prix exceptionnels avec le bail réel solidaire (brs) et profitez d’un cadre de vie privilégié aux portes de genève ! ? Contactez vite nos conseillers au 04 13 13 01 34 pour découvrir cette nouvelle résidence et les logements éligibles brs. Les prix affichés sont en tva réduite (5.50 %). Les informations sur les risques auxquels ce bien est exposé sont disponibles sur le site géorisques : .
Opportunité rare à Valleiry. DPE exceptionnel, A & A. Orpi ImmoD vous présente un coup de cœur assuré. Bel appartement T3 livré décembre 2024 de 65 m² avec balcon, double stationnement en sous-sol et ascenseur. Cet appartement vous offre le confort et l'élégance d'un bien quasiment neuf entretenu par des propriétaires très soigneux. Vous serez séduit par ses prestations de qualité et sa fonctionnalité. L'appartement se compose : D'une entrée avec 2 placards, d'un beau séjour lumineux agrémenté d'une très belle cuisine équipée, le tout ouvrant sur un balcon de plus de 6 m² orienté au Sud, de 2 chambres dont une avec placard, ainsi qu'une salle de bain avec baignoire et double vasque. WC séparés pour plus de confort. Orienté au Sud, le logement profite d'une belle luminosité. Emplacement idéal. Deux places pour se garer « box ouverts » en sous-sol complètent ce bien, un atout rare et très apprécié sur le secteur. Nous sommes à votre disposition pour tout complément d'information. Référence agence : 296.
L’office notarial nota frontiere, scp vous propose : appartement à vendre en immo-interactif - adresse du bien : rue du saleve 74160 st julien en genevois - rare a la vente - au coeur de st julien, à proximité immédiate des commerces, services et transports, dans l'espace calme et verdoyant emblématique de la résidence les symphonies, l'office notarial nota frontiere vous propose d'acquérir un appartement de type 3 dans le cadre d'une vente immo interactif. Situé au 1er étage de la résidence, vous serez séduits par sa double exposition sud - nord et ses terrasses associées. Il dispose d'une cuisine équipée ouverte sur un large séjour, de deux chambres avec placard et d'une salle d'eau avec douche et wc. Une cave et un garage complètent l'ensemble. La réception des offres (sur 24 h) est fixée au mardi 23 septembre à partir de 19 h sur le site immobilier. Notaires. Fr. Une visite préalable est indispensable pour pouvoir vous inscrire après avoir complété une demande de participation. Visites possibles à l'une des trois dates indiquées. À votre disposition pour tous renseignements complémentaires, de préférence par mail. - visites : lundi 8 septembre de 12 h à 14 h lundi 15 septembre de 17 h à 19 h vendredi 19 septembre de 8 h à 10 h contact : 06 61 75 88 68 - conditions de la vente : le bien est présenté en immo-interactif à la hausse : - 1ère offre possible : à partir de 360 000 euros (honoraires de négociation inclus) - offres suivantes : multiples de 4 000 euros. - réception des offres du 23 / 09 / 2025 à 19 : 00 au 24 / 09 / 2025 à 19 : 00 sur le site immo-interactif®. - annonce de l’étude nota frontiere - notaires à saint-julien-en-genevois - n° siret : 32595178800018 - immo-interactif® : le système d'enchères immobilières sans contrainte, transparent et sécurisé, proposé par votre notaire.
Iad France - Marine Kerlero De Rosbo vous propose : Appartement d'Exception - 3 Pièces - Saint-Julien-en-Genevois Situé dans la charmante commune de Saint-Julien-en-Genevois, cet appartement d'exception de 75 m² offre un cadre de vie incomparable. Niché au 3ᵉ étage d'un immeuble de standing construit en 1989. L'intérieur étant rénové récemment avec goût, ce bien saura vous séduire par ses finitions soignées et son emplacement idéal. La disposition intérieure vous propose un vaste séjour lumineux, une cuisine spacieuse indépendante et fonctionnelle, deux chambres dont une avec dressing, une salle d'eau, un WC et une buanderie. Chaque espace a été pensé pour offrir un confort optimal, avec des matériaux de qualité et des équipements modernes tel qu'une installation complète de domotique, une climatisation réversible, une porte blindée et des huisseries à isolation phonique renforcée. Vous bénéficierez également d'un garage privatif, d'une cave, ainsi que de place de parking au sein de la résidence pour vos invités. De plus, la copropriété dispose d'un ascenseur, d'un local à vélo collectif et d'un gardien d'immeuble. Les atouts de cet appartement ne s'arrêtent pas là. En effet, vous profiterez d'une proximité immédiate avec les commerces, les écoles et les transports en commun. Le bien se situe à cinq minutes de Genève. Ne manquez pas cette opportunité rare à la vente, un bien d'exception dans un environnement privilégié. N'hésitez pas à me contacter pour organiser une visite. La presente annonce immobiliere vise 3 lots situés dans une copropriété de 120 lots au total et ne faisant l'objet d'aucune procédure en cours citée à l'article L. 721-1 du code de la construction et de l'habitation. Montant moyen mensuel de charges déclaré par le vendeur : 166.67€ par mois (soit 2000 € annuel). Honoraires d'agence à la charge du vendeur. Information d'affichage énergétique sur ce bien : classe ENERGIE C indice 152 et classe CLIMAT A indice 4. Les informations sur les risques auxquels ce bien est exposé, y compris l'obligation légale de débroussaillement, sont disponibles sur le site Géorisques : La présente annonce immobilière a été rédigée sous la responsabilité éditoriale de Mme Marine Kerlero De Rosbo mandataire indépendant en immobilier (sans détention de fonds), agent commercial de la SAS I@D France immatriculé au RSAC de Annecy sous le numéro 992638155, titulaire de la carte de démarchage immobilier pour le compte de la société I@D France SAS.
Centre st julien en genevois 2 min de la douane de perly, des commodités, école et bus appartement de type 3 avec locataire en place. Au 1er étage lumineux appartement comprenant un grand hall d'entrée avec placard, une cuisine indépendante équipée avec un petit balcon et accès à la pièce à vivre avec un balcon de 10 m² exposée sud ouest, deux chambres dont une avec placard, une salle de bains, un wc indépendant. Un cellier rangement. Une cave de 4 m². Locataire en place avec un loyer charges comprises 1 343,35 (dont 60 euros de provisions de charges) retrouvez toutes nos annonces sur notre site : les informations sur les risques auxquels ce bien est exposé sont disponibles sur le site géorisques : .
Saint Julien-en-Genevois (74160) au 1er étage appt T3 neuf de 66 m² année (2022) dans quartier calme, prestations haut de gamme, sans vis-à-vis, hal d'entrée avec placard, séjour / cuisine de 30 m² avec un accès sur un balcon de 14 m² avec vue panoramique sur le Jura, deux chambres dont une avec placard, salle de bains, wc séparé, garage de 15 m² avec mezzanine de 15 m², cave, cellier / buanderie. Charges de copropriété annuelles environ 1200€. Proximité immédiate des transports en commun, centre ville, centres commerciaux, écoles, activités culturelles, centres de loisirs, environnement agréable, Proche d'Annemasse, Archamps, Gaillard, Mornex, Monnetier, Collonges-sous-Salève, Neydens, Valleiry, Frangy, Beaumont, Etrembières, et à 800m de la frontière Suisse. Honoraires à la charge du vendeur. Dans une copropriété de 30 lots. Quote-part moyenne du budget prévisionnel 1 € / an. Aucune procédure n'est en cours. Classe énergie C, Classe climat C Montant moyen estimé des dépenses annuelles d'énergie pour un usage standard, établi à partir des prix de l'énergie de l'année 2022 : entre 570.00 et 830.00 €. Les informations sur les risques auxquels ce bien est exposé sont disponibles sur le site Géorisques : georisques. gouv. fr.
Iad France - Sarah Rozière (06 99 86 19 42) vous propose : Appartement T3 avec terrasse à Saint-Julien-en-Genevois. Au cOEur du premier quartier bas carbone de Haute-Savoie, la résidence contemporaine NOVA – Interface s’inscrit dans une démarche innovante et durable. À deux pas de la douane de Perly, cette adresse unique conjugue proximité avec Genève, modernité architecturale et qualité de vie. Les habitants profitent d’espaces verts communs (verger partagé, aire de jeux, compost collectif) et de mobilités douces optimisées. Disponible 2028. Un appartement raffiné : Situé au 3 ème étage, cet appartement T3 de 68 m² environ habitables se prolonge par une terrasse de 10 m² environ. - Séjour / cuisine de 31 m² environ. - Deux belles chambres. - Salle de bains moderne et wc séparés. - Annexes incluses : 1 box en sous-sol et 1 cellier. Des belles prestations : - Structure innovante en bois et béton bas carbone. - Volets roulants motorisés ou brise-soleil orientables en aluminium. - Production collective de chauffage et eau chaude par chaufferie biomasse avec complément gaz. - Résidence sécurisée avec ascenseur, visiophone et stationnements en sous-sol L’art de vivre à Saint-Julien-en-Genevois : - À seulement quelques mètres de la frontière suisse et de la douane de Perly. - Accès rapide à Genève via bus et futur tramway T5. - Nombreux commerces, services et écoles accessibles à pied. - Gare TER et Léman Express à proximité. - Espaces verts paysagers et verger partagé. N’hésitez pas à me contacter pour plus d’informations ou pour un accompagnement sur mesure. Honoraires d’agence à la charge du vendeur. Bien non soumis au DPE. Les informations sur les risques auxquels ce bien est exposé sont disponibles sur le site Géorisques : . La présente annonce immobilière a été rédigée sous la responsabilité éditoriale de Mlle Sarah Rozière EI (ID 83696), mandataire indépendant en immobilier (sans détention de fonds), agent commercial de la SAS I@D France immatriculé au RSAC de Clermont-Ferrand sous le numéro 978616993, titulaire de la carte de démarchage immobilier pour le compte de la société I@D France SAS. Retrouvez tous nos biens sur notre site internet. .
Iad France - Sarah Rozière (06 99 86 19 42) vous propose : Appartement T3 avec balcon à Saint-Julien-en-Genevois. Au cOEur du premier quartier bas carbone de Haute-Savoie, la résidence contemporaine NOVA – Interface s’inscrit dans une démarche innovante et durable. À deux pas de la douane de Perly, cette adresse unique conjugue proximité avec Genève, modernité architecturale et qualité de vie. Les habitants profitent d’espaces verts communs (verger partagé, aire de jeux, compost collectif) et de mobilités douces optimisées. Disponible 2028. Un appartement raffiné : Situé au 2 ème étage, cet appartement T3 de 70 m² environ habitables se prolonge par un balcon de 15 m² environ. - Séjour / cuisine de 33 m² environ. - Deux belles chambres. - Salle de bains moderne et wc séparés. - Annexes incluses : 1 box en sous-sol et 1 cave. Des belles prestations : - Structure innovante en bois et béton bas carbone. - Volets roulants motorisés ou brise-soleil orientables en aluminium. - Production collective de chauffage et eau chaude par chaufferie biomasse avec complément gaz. - Résidence sécurisée avec ascenseur, visiophone et stationnements en sous-sol L’art de vivre à Saint-Julien-en-Genevois : - À seulement quelques mètres de la frontière suisse et de la douane de Perly. - Accès rapide à Genève via bus et futur tramway T5. - Nombreux commerces, services et écoles accessibles à pied. - Gare TER et Léman Express à proximité. - Espaces verts paysagers et verger partagé. N’hésitez pas à me contacter pour plus d’informations ou pour un accompagnement sur mesure. Honoraires d’agence à la charge du vendeur. Bien non soumis au DPE. Les informations sur les risques auxquels ce bien est exposé sont disponibles sur le site Géorisques : . La présente annonce immobilière a été rédigée sous la responsabilité éditoriale de Mlle Sarah Rozière EI (ID 83696), mandataire indépendant en immobilier (sans détention de fonds), agent commercial de la SAS I@D France immatriculé au RSAC de Clermont-Ferrand sous le numéro 978616993, titulaire de la carte de démarchage immobilier pour le compte de la société I@D France SAS. Retrouvez tous nos biens sur notre site internet. .
Iad France - Sarah Rozière (06 99 86 19 42) vous propose : Appartement T3 avec balcon à Saint-Julien-en-Genevois. Au cOEur de la résidence contemporaine LUMEN, idéalement située avenue de Genève à Saint-Julien-en-Genevois, découvrez une adresse rare à la frontière suisse. Moderne et durable, la résidence s’inscrit dans une démarche environnementale innovante (façades bois biosourcées, espaces verts paysagers) et propose des prestations de qualité. Disponible 2027. Un appartement raffiné : Situé au 3 ème étage, cet appartement T3 de 73 m² environ habitables s’ouvre sur un balcon de 12 m² environ. - Séjour / cuisine de 33 m² environ. - Deux belles chambres. - Salle de bains moderne et wc séparés. - Annexes incluses : 1 parking intérieur et cellier privatif. De belles prestations : - Grandes baies vitrées équipées de brise-soleil orientables bois. - Chauffage collectif par chaufferie biomasse, isolation performante. - Résidence sécurisée avec stationnements en sous-sol, local vélos et caméras dans les parties communes L’art de vivre à Saint-Julien-en-Genevois : - À seulement 230 m de la douane suisse de Perly. - Futur tramway en pied d’immeuble (mise en service prévue en 2028). - Nombreux établissements scolaires, équipements culturels et sportifs à proximité. - Accès rapide à Genève (24 min en voiture) et Annecy (33 min). N’hésitez pas à me contacter pour plus d’informations ou pour un accompagnement sur mesure. Honoraires d’agence à la charge du vendeur. Bien non soumis au DPE. Les informations sur les risques auxquels ce bien est exposé sont disponibles sur le site Géorisques : . La présente annonce immobilière a été rédigée sous la responsabilité éditoriale de Mlle Sarah Rozière EI (ID 83696), mandataire indépendant en immobilier (sans détention de fonds), agent commercial de la SAS I@D France immatriculé au RSAC de Clermont-Ferrand sous le numéro 978616993, titulaire de la carte de démarchage immobilier pour le compte de la société I@D France SAS. Retrouvez tous nos biens sur notre site internet. .
Iad france - lucie paoletti (06 73 99 29 49) vous propose : programme neuf – saint-julien-en genevois centre livraison : 1er trimestre 2027 située en plein coeur de saint-julien-en-genevois, cette résidence neuve propose des appartements du t2 au t5, conformes à la norme re2020 et labellisés nf habitat. Derniers attiques disponibles avec terrasses de plus de 60 m² environ. Chaque logement bénéficie d’une cave et d’un parking en sous-sol. Chauffage individuel au gaz. Local à vélos sécurisé. Grands espaces verts paysagers autour de la résidence. Centre ville, écoles, proche lignes tpg, gare et commerces. Idéal pour une résidence principale ou un investissement. Dossiers complets et plans disponibles sur demande. Honoraires d’agence à la charge du vendeur. Bien non soumis au dpe. Les informations sur les risques auxquels ce bien est exposé sont disponibles sur le site géorisques : . La présente annonce immobilière a été rédigée sous la responsabilité éditoriale de mlle lucie paoletti ei (id 83733), mandataire indépendant en immobilier (sans détention de fonds), agent commercial de la sas i@d france immatriculé au rsac de thonon les bains sous le numéro 918798711, titulaire de la carte de démarchage immobilier pour le compte de la société i@d france sas. Retrouvez tous nos biens sur notre site internet. .
Iad France - Sarah Rozière (06 99 86 19 42) vous propose : Appartement T3 avec terrasse à Saint-Julien-en-Genevois. Au cOEur du premier quartier bas carbone de Haute-Savoie, la résidence contemporaine NOVA – Interface s’inscrit dans une démarche innovante et durable. À deux pas de la douane de Perly, cette adresse unique conjugue proximité avec Genève, modernité architecturale et qualité de vie. Livraison prévue en 2028. D’une surface de 68 m² environ, cet appartement situé au 1 er étage comprend une pièce de vie avec cuisine ouverte de 31 m² environ, deux chambres confortables, une salle de bains moderne, ainsi que des WC séparés. Il s’ouvre sur une terrasse de 10 m² environ, idéale pour profiter de l’extérieur. Un box en sous-sol ainsi qu’un cellier privatif complètent le bien. La production collective de chauffage et d’eau chaude est assurée par une chaufferie biomasse avec complément gaz, garantissant confort et performance énergétique. AUTRES T3 DISPONIBLES À PARTIR DE 466 000 € – Plans et demande d'informations sur simple contact. Nichée dans un environnement innovant et tourné vers l’avenir, la résidence NOVA – Interface se distingue par son architecture contemporaine, ses espaces partagés et son engagement environnemental fort. Pensée pour le bien-être de ses habitants, elle propose un verger partagé, une aire de jeux, un compost collectif et des espaces verts paysagers. À seulement quelques mètres de la frontière suisse et de la douane de Perly, l’adresse profite d’une situation exceptionnelle. Les résidents bénéficient d’un accès rapide à Genève grâce aux lignes de bus et au futur tramway T5, ainsi que de la proximité de la gare TER et du Léman Express. Acheter dans le neuf, c’est bénéficier de frais de notaire réduits, de garanties constructeur et d’un logement conforme aux dernières normes thermiques et acoustiques. Vous pouvez également personnaliser certains aménagements selon vos envies. Vous pouvez me contacter dès maintenant pour recevoir le plan détaillé, obtenir plus d’informations ou bénéficier d’un accompagnement personnalisé. Honoraires d’agence à la charge du vendeur. Bien non soumis au DPE. Les informations sur les risques auxquels ce bien est exposé sont disponibles sur le site Géorisques : . La présente annonce immobilière a été rédigée sous la responsabilité éditoriale de Mlle Sarah Rozière EI (ID 83696), mandataire indépendant en immobilier (sans détention de fonds), agent commercial de la SAS I@D France immatriculé au RSAC de Clermont-Ferrand sous le numéro 978616993, titulaire de la carte de démarchage immobilier pour le compte de la société I@D France SAS. Retrouvez tous nos biens sur notre site internet. .
Iad France - Sarah Rozière (06 99 86 19 42) vous propose : Appartement T3 avec balcon à Saint-Julien-en-Genevois. Au cOEur de la résidence contemporaine LUMEN, idéalement située avenue de Genève à Saint-Julien-en-Genevois, découvrez une adresse rare à la frontière suisse. Moderne et durable, la résidence s’inscrit dans une démarche environnementale innovante (façades bois biosourcées, espaces verts paysagers) et propose des prestations de qualité. Disponible 2027. Un appartement raffiné : Situé au 5 ème étage, cet appartement T3 de 64 m² environ habitables s’ouvre sur un balcon de 7 m² environ. - Séjour / cuisine de 29 m² environ. - Deux belles chambres. - Salle de bains moderne et wc séparés. - Annexes incluses : 2 parkings intérieurs et cellier privatif. De belles prestations : - Grandes baies vitrées équipées de brise-soleil orientables bois. - Chauffage collectif par chaufferie biomasse, isolation performante. - Résidence sécurisée avec stationnements en sous-sol, local vélos et caméras dans les parties communes L’art de vivre à Saint-Julien-en-Genevois : - À seulement 230 m de la douane suisse de Perly. - Futur tramway en pied d’immeuble (mise en service prévue en 2028). - Nombreux établissements scolaires, équipements culturels et sportifs à proximité. - Accès rapide à Genève (24 min en voiture) et Annecy (33 min). N’hésitez pas à me contacter pour plus d’informations ou pour un accompagnement sur mesure. Honoraires d’agence à la charge du vendeur. Bien non soumis au DPE. Les informations sur les risques auxquels ce bien est exposé sont disponibles sur le site Géorisques : . La présente annonce immobilière a été rédigée sous la responsabilité éditoriale de Mlle Sarah Rozière EI (ID 83696), mandataire indépendant en immobilier (sans détention de fonds), agent commercial de la SAS I@D France immatriculé au RSAC de Clermont-Ferrand sous le numéro 978616993, titulaire de la carte de démarchage immobilier pour le compte de la société I@D France SAS. Retrouvez tous nos biens sur notre site internet. .
Saint‑julien‑en‑genevois, dans la résidence haut de gamme villa irena ce magnifique appartement 3 pièces dispose de 73 m² habitables et profite d'une généreuse terrasse de 20 m² exposée sud‑ouest, parfaite pour les repas en plein air ou vos moments de détente. Vous trouverez une entrée avec rangements, un séjour lumineux ouvert sur une cuisine intégrée, deux chambres confortables, une salle de bains soignée et un wc séparé. L'appartement est vendu avec une place de parking en enfilade en sous‑sol, rare dans ce secteur. Un véritable atout de ce bien : la douane de perly se situe à quelques dizaines de mètres, réellement à porte à porte. Idéal pour les frontaliers ou pour toute personne souhaitant un accès très rapide à la suisse. La résidence signée franco suisse est nichée dans un environnement calme, au cœur d'un quartier recherché, à proximité immédiate des commerces, écoles et transports. Ce logement rare sur le marché mérite une visite rapide ! Nombre de lots de la copropriété : 19, montant moyen annuel de la quote-part de charges (budget prévisionnel)(chauffages + eau froide + eau chaude + charges communes) : 2342€ soit 195€ par mois. Les honoraires sont à la charge du vendeur. Les informations sur les risques auxquels ce bien est exposé sont disponibles sur le site géorisques : www. Georisques. Gouv. Fr. Réseau immobilier capifrance - votre agent commercial (rsac n°940 394 810 - greffe de thonon les bains) sebastien mazzeo entrepreneur individuel 06 86 33 08 49 - réf. 911799.
Appartement T3 aux portes de Genève Neydens, superbe T3 de 72 m² en lisière d'une zone naturelle dans une petite résidence à l'inspiration régionale et aux matériaux de qualité : bardage en bois pré grisé, enduit blanc cassé, fins garde-corps en métal brun foncé, couvertures en tuiles brun-rouge. Il comprend une cuisine / séjour de plus de 28 m² ouvert sur une terrasse de près de 16 m² bien orientée, 2 chambres, un dressing, une salle de bains avec toilettes, un cellier ainsi que de nombreux rangements. 2 places de parking. Garage à vélos. Une salle dédiée à la copropriété. Proche de toutes les commodités, bus, commerces, école.
Découvrez notre nouvelle adresse à Saint-Julien-en-Genevois, à deux pas de Genève. Des appartements neufs du 2 au 5 pièces, tous avec des espaces extérieurs, des prestations de qualité et des biens rares à découvrir : 3 maisons sur le toit exceptionnelles et un 4 pièces avec une grande terrasse LUMEN, une résidence sécurisée et une connexion facilitée avec le futur tramway vers Genève au pied de la résidence. Contactez-nous dès à présent au 01 55 18 70 00 pour découvrir notre résidence et rencontrez nos équipes. Les informations sur les risques auxquels ce bien est exposé sont disponibles sur le site Géorisques : .
À seulement quelques minutes de Genève, Saint-Julien-en-Genevois bénéficie d’un emplacement stratégique au cœur de la Haute-Savoie. Dynamique et recherchée, cette commune frontalière séduit par sa qualité de vie, son accès rapide aux bassins d’emploi genevois et ses infrastructures complètes. Parfaitement connectée, elle permet de rejoindre la gare à pied en moins de 15 minutes, tout en profitant d’un environnement paisible en centre-ville. C’est dans ce cadre privilégié que s’inscrit ce programme immobilier neuf, niché dans un quartier résidentiel calme et verdoyant. Inspirée de l’architecture locale, la résidence se distingue par des matériaux nobles et des toitures traditionnelles revisitées. Elle propose un large choix d’appartements neufs, du studio au 5 pièces, aux agencements optimisés pour répondre à tous les styles de vie. Chaque logement bénéficie d’espaces lumineux, ouverts sur l’extérieur grâce à de grandes baies vitrées. Certains appartements disposent de pièces traversantes ou d’orientations multiples pour profiter d’un ensoleillement maximal. Les prestations sont à la hauteur des exigences actuelles : label biosourcé, chaufferie biomasse, parquet contrecollé, placards aménagés, salle de bain équipée, cellier ou cave, selon les configurations. Les extérieurs – loggia, terrasse ou jardin privatif – prolongent les espaces de vie pour des moments partagés en plein air. Un vaste jardin central vient compléter ce cadre de vie serein et convivial. Un projet idéal pour habiter ou investir dans l’immobilier neuf à deux pas de Genève. Découvrez également nos 168 autres résidences dans le 74 : Rendez-vous dans notre Agence Médicis Immobilier Neuf, 77 rue Madame de Staël, Saint-Julien-en-Genevois 74160. Les informations sur les risques auxquels ce bien est exposé sont disponibles sur le site Géorisques : .