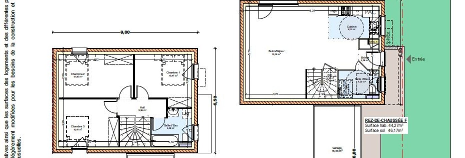
? VOTRE MAISON ALL INCLUSIVE À BISCHWIHR ? ? Un cadre unique pour un quotidien paisible et ressourçant ! ? Découvrez ce nouveau projet HAMO situé rue des Jardins, à Bischwihr, où modernité et tradition se rencontrent. Situé en bordure de champs, avec une vue imprenable sur les Vosges et un environnement non constructible, c'est l'endroit rêvé pour construire votre futur chez-vous. Un projet pensé pour vous : ? Maisons individuelles neuves de 90 m² habitables, conçues pour offrir tout le confort dont vous rêvez. ? Trois belles chambres à l'étage, spacieuses et lumineuses, idéales pour accueillir votre famille dans un cadre cosy. ? Construction traditionnelle avec toiture à deux pans, alliant robustesse et élégance architecturale. ? Cadre naturel exceptionnel : jardin privatif, aucun vis-à-vis côté champs, et vue dégagée sur les Vosges. ? Stationnement pratique : chaque maison est dotée d'un garage et d'une place de parking privative. Un emplacement privilégié : ? Rue des Jardins, à Bischwihr : Un village paisible et dynamique, à seulement quelques minutes de Colmar. Proximité immédiate des écoles, commerces, et services essentiels. Sentiers et balades à portée de main pour les amateurs de nature et de grands espaces. Pourquoi choisir ce projet ? Un cadre unique : profitez d'une tranquillité rare grâce aux champs non constructibles à proximité directe. ? Confort moderne et durable : maisons pensées pour une performance énergétique optimale et une durabilité dans le temps. ? Options de personnalisation : aménagez votre espace à votre image, selon vos besoins et vos envies. Contactez-nous pour en savoir plus ! ? Appelez dès maintenant pour plus d'informations sur ce projet exceptionnel. ? Votre rêve commence ici, à Bischwihr. Faites le choix d'un cadre de vie unique et authentique ! Les informations sur les risques auxquels ce bien est exposé sont disponibles sur le site Géorisques : .
Les informations sur les risques auxquels ce bien est exposé sont disponibles sur le site Géorisques : www.georisques.gouv.fr
Mise en ligne:
Dernière mise à jour:
Référence de l'annonce: JZBISCHWIHR1-2? VOTRE MAISON ALL INCLUSIVE À BISCHWIHR ? ? Un cadre unique pour un quotidien paisible et ressourçant ! ? Découvrez ce nouveau projet HAMO situé rue des Jardins, à Bischwihr, où modernité et tradition se rencontrent. Situé en bordure de champs, avec une vue imprenable sur les Vosges et un environnement non constructible, c'est l'endroit rêvé pour construire votre futur chez-vous. Un projet pensé pour vous : ? Maisons individuelles neuves de 90 m² habitables, conçues pour offrir tout le confort dont vous rêvez. ? Trois belles chambres à l'étage, spacieuses et lumineuses, idéales pour accueillir votre famille dans un cadre cosy. ? Construction traditionnelle avec toiture à deux pans, alliant robustesse et élégance architecturale. ? Cadre naturel exceptionnel : jardin privatif, aucun vis-à-vis côté champs, et vue dégagée sur les Vosges. ? Stationnement pratique : chaque maison est dotée d'un garage et d'une place de parking privative. Un emplacement privilégié : ? Rue des Jardins, à Bischwihr : Un village paisible et dynamique, à seulement quelques minutes de Colmar. Proximité immédiate des écoles, commerces, et services essentiels. Sentiers et balades à portée de main pour les amateurs de nature et de grands espaces. Pourquoi choisir ce projet ? Un cadre unique : profitez d'une tranquillité rare grâce aux champs non constructibles à proximité directe. ? Confort moderne et durable : maisons pensées pour une performance énergétique optimale et une durabilité dans le temps. ? Options de personnalisation : aménagez votre espace à votre image, selon vos besoins et vos envies. Contactez-nous pour en savoir plus ! ? Appelez dès maintenant pour plus d'informations sur ce projet exceptionnel. ? Votre rêve commence ici, à Bischwihr. Faites le choix d'un cadre de vie unique et authentique ! Les informations sur les risques auxquels ce bien est exposé sont disponibles sur le site Géorisques : .
À Colmar, proche de toutes les commodités, découvrez cette maison individuelle de 141 m² offrant de beaux volumes et un agréable espace extérieur. Au rez-de-chaussée, vous trouverez un vaste salon-séjour de plus de 30 m² avec cheminée, une spacieuse cuisine indépendante entièrement aménagée et équipée, prolongée par une véranda donnant sur l'extérieur, ainsi qu'une salle d'eau avec WC. À l'étage, trois grandes chambres dont deux avec balcon vous attendent, accompagnées d'une salle d'eau supplémentaire avec WC. Le deuxième étage dispose d'un superbe comble en partie aménagé, idéal pour créer une grande chambre, une salle de jeux ou un espace de travail selon vos envies. La maison bénéficie également d'un sous-sol complet composé de plusieurs pièces offrant de multiples possibilités d'aménagement, que ce soit pour du rangement, une buanderie, un atelier ou tout autre espace utile. À l'extérieur, vous profiterez d'un grand terrain avec un coin jardin ainsi que d'un grand garage. Équipée d'une pompe à chaleur et d'un adoucisseur d'eau, cette maison offre un cadre de vie confortable, fonctionnel et plein de potentiel. Pour toutes informations complémentaires merci de contacter votre agence au 03 89 29 30 30 Honoraires à la charge du vendeur. Classe énergie D, Classe climat B Montant estimé des dépenses annuelles d'énergie pour un usage standard : entre 2060.00 € et 2840.00 € sur les années 2021,2022 et 2023 (abonnements compris). Les informations sur les risques auxquels ce bien est exposé sont disponibles sur le site Géorisques : georisques. gouv. fr. Votre conseiller KL immo : Burak Kuzu Agent commercial (Entreprise individuelle) RSAC 932306780 RCP 278468689.
Iad France - Anna-Bella CARVALHO vous propose : À la Croix Blanche, proche du quartier Sainte-Marie, cette maison de 2019 en parfait état vous séduira par sa luminosité et sa fonctionnalité. L’entrée avec placard s’ouvre sur une cuisine équipée conviviale et un salon-séjour de 42 m², donnant directement sur la terrasse et le jardin sans vis-à-vis, parfaits pour profiter de l’extérieur en toute tranquillité. À l’étage, vous trouverez trois chambres spacieuses avec placards ainsi qu’une salle de bains moderne avec baignoire, douche et WC. Garage attenant avec remise, chauffage au sol sur les deux niveaux, 2 panneaux solaires pour autoproduction 322kw / h, volets électriques à commande, baie vitrée coulissante en aluminium. Cette maison agréable à vivre, sans aucun travaux, dans un état impeccable et à proximité des commerces avec un accès facile aux axes routiers est prête à accueillir une famille. Une visite s'impose sans aucun doute, contactez-moi sans tarder ! Honoraires d'agence à la charge du vendeur. Information d'affichage énergétique sur ce bien : classe ENERGIE C indice 89 et classe CLIMAT C indice 18. Les informations sur les risques auxquels ce bien est exposé, y compris l'obligation légale de débroussaillement, sont disponibles sur le site Géorisques : La présente annonce immobilière a été rédigée sous la responsabilité éditoriale de Mme Anna-Bella CARVALHO mandataire indépendant en immobilier (sans détention de fonds), agent commercial de la SAS I@D France immatriculé au RSAC de Colmar sous le numéro 838806974, titulaire de la carte de démarchage immobilier pour le compte de la société I@D France SAS.
Iad France - Valérie Lammer vous propose : À 10 min de Colmar, grande maison familiale avec dépendance et cour fermée, offrant 164 m² habitables et deux accès indépendants. Idéale pour une famille nombreuse, un projet bi-famille ou mixte habitation / activité pro. Une cour, une grange et un balcon complètent ce bien à Riedwihr sur 530 m² de terrain. Son double accès permet d’envisager facilement la création de deux logements. 2 cuisines sont déjà présentes. Le rez-de-chaussée de 70 m² environ est composé de la façon suivante : - une entrée principale de 8 m² desservant la cuisine, une chambre et l'étage. - une cuisine traditionnelle équipée, ouverte sur le séjour lumineux formant un bel espace de vie de 40 m² environ. - une chambre de 12 m² environ. - une salle d’eau d'appoint et WC séparé. Le couloir arrière donne accès à une grande cave et à la seconde entrée. À l 'étage soit 94 m² environ, vous trouverez un palier de 11 m² environ qui dessert : - une grande cuisine neuve et équipée de 22,7 m² environ avec accès à un balcon de 10 m². - un salon / bureau de 11,5 m² environ. - 3 chambres (12,3 m² 14,7 m² et 15,8 m² environ ), dont une avec accès au balcon. - une salle de bain avec WC. Le chauffage est au gaz de ville. Atouts complémentaires : - un grenier pour le stockage - une grange / dépendance à l’arrière : atelier, garage, parking, espace de stockage et jardinet. - une cour avec portail électrique récent et places de stationnement. - la façade a été refaite, il y a environ 15 ans et présence de double vitrage PVC couleur bois, porte d'entrée en PVC. Des travaux de modernisation sont à prévoir. Une maison avec un beau potentiel pour qui souhaite adapter les espaces selon ses besoins (habitation principale, locatif, profession libérale, etc.) A découvrir sans tarder. Honoraires d'agence à la charge du vendeur. Information d'affichage énergétique sur ce bien : classe ENERGIE E indice 319 et classe CLIMAT E indice 63. Les informations sur les risques auxquels ce bien est exposé, y compris l'obligation légale de débroussaillement, sont disponibles sur le site Géorisques : La présente annonce immobilière a été rédigée sous la responsabilité éditoriale de Mme Valérie Lammer mandataire indépendant en immobilier (sans détention de fonds), agent commercial de la SAS I@D France immatriculé au RSAC de COLMAR sous le numéro 878793561, titulaire de la carte de démarchage immobilier pour le compte de la société I@D France SAS.
L'Agence Seckler vous propose en exclusivité cette charmante maison alsacienne, idéale pour un premier achat ou pour un investissement en location saisonnière. Le bien se compose de deux chambres, dont une de belle superficie, d'un salon, d'une salle de bain, d'une agréable cuisine donnant directement sur une terrasse, ainsi que d'une cave et d'une cour intérieure. Une partie des combles reste aménageable et offre une possibilité d'extension. Une belle opportunité sur le secteur pour les amateurs de charme et d'authenticité. Pour davantage d'informations ou pour organiser une visite, contactez directement Karine Colnat.

En exclusivité chez Lamy TransactionNous vous invitons à découvrir cette charmante maison, idéalement située dans la commune de Widensolen, au 22 route de Colmar, à proximité des commodités, des axes autoroutiers et de la ville de Colmar. Sur un beau terrain constructible de 10 ares, cette maison à rafraîchir se compose comme suit : au rez-de-chaussée, une entrée, un dégagement, un grand salon-séjour ouvert sur la salle à manger, une cuisine avec possibilité douverture sur le salon, une chambre et un WC. À létage, un dégagement, deux chambres ainsi quune salle de bains avec WC. Au sous-sol, un sous-sol aménageable comprenant un grand garage en longueur, un local technique, ainsi que deux pièces de stockage pouvant servir datelier et de buanderie. Du côté des éléments techniques, la maison est raccordée au tout-à-légout. Le chauffage est assuré par une chaudière au fioul ainsi quune cheminée. Les fenêtres sont en double vitrage PVC. Construite dans les années 1960, cette maison a été bâtie dans les règles de lart. Elle est saine et bien entretenue. Le sous-sol est sec et ne présente pas de traces dhumidité. Le revêtement des planchers est en dalles béton. La charpente est saine et les tuiles sont en bon état. Une possibilité dextension de la maison est envisageable. Les opérations de promotion immobilière sont également possibles, selon la rentabilité du projet. Ne passez pas à côté de cette maison pleine de potentiel. Nous vous invitons à nous contacter pour tout renseignement complémentaire et / ou organiser une visite.