Logo LSI sombre

Maison 4 Pièces 101 m² à vendre à Codognan (30920)
Photo N° 2
2

Vente maison 4 pièces 101 m² Codognan (30920)

332 900 €

Maison T4 Neuve

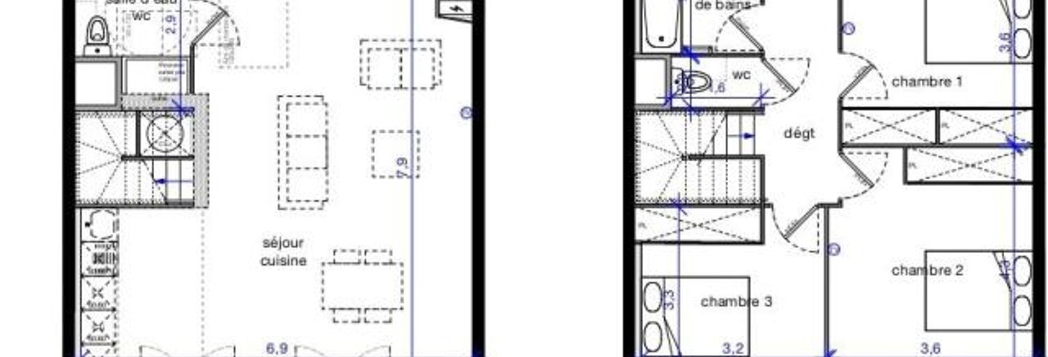
Codognan entre Nîmes et Montpellier, A proximité de toutes les commodités, villa T4 neuve avec jardin et 2 places de parking privatives. Prestations soignées, éligible au prêt à taux et frais de notaires réduits. Référence agence : 7714.

Caractéristiques

Les plus de cette annonce
  • Accès PMR
  • Parking
  • Climatisation
  • Jardin
  • Très bon état
Confort
  • Chauffage Individuel
  • Chauffage Electrique
Pièces
  • 4 pièces
  • 3 chambres
  • 1 WC
  • Salle d'eau
  • Salle de bain
Superficies
  • Surface habitable : 101 m²
Etat
  • Etat general : neuf

Consommation énergétique et gaz à effet de serre

Bilan énergétique (DPE)
NC
Bilan gaz à effet de serre (GES)
NC

Géorisques

Les informations sur les risques auxquels ce bien est exposé sont disponibles sur le site Géorisques : www.georisques.gouv.fr

À propos de la copropriété

  • Nombre de lots de la copropriété : 35

A propos du prix de cette maison

  • Prix : 332 900 € (soit 3 296 € / m²)
  • Honoraires à charge vendeur

À propos de cette annonce

Mise en ligne:

Dernière mise à jour:

Référence de l'annonce: 9EGI-AUC-R25
Orpi Bruno Hermabessière Immobilier agence immobilière à Lunel (34400)
Orpi Bruno Hermabessière Immobilier
Afficher le numéro

Maison similaires à acheter Codognan (30920)

Maison 4 pièces 332000 €
332 000 €
-4 %

Maison 4 pièces 95 m²

Codognan (30920)

Maison récente avec piscine et vue dégagée à Codognan !     Située dans le village dynamique de Codognan, venez découvrir celle belle maison construite en 2021, offrant confort moderne, luminosité et prestations de qualité.    Dés l'entrée, vous serez séduits par une grande pièce de vie lumineuse, idèale pour partager des moments conviviaux en famille ou entre amis.   La maison se compose :     - 3 chambres avec dressing, offrant de beaux espaces de rangement. - 2 WC, pour plus de confort au quotidien - Un garage - Deux places de stationnement   A l'extérieur, vous profiterez d'un agréable espace de vie comprenant :   - Une piscine, parfaite pour profiter des beaux jours  - Une terrasse avec pergola, idèale pour vos repas et moments de détente.  - Une jolie vue dégagée Pour votre tranquilité, la maison est également équipée d'un systéme d'alarme. Construite en 2021, elle bénéficie encore des garanties décenales ainsi que de la garantie dommages-ouvrages, offrant une sécurité supplémentaire pour votre acquisition.    Maison récente, fonctionnelle et sans travaux, idéale pour une famille ou un jeune couple souhaitant s'installer dans un cadre de vie agréable.   A visiter sans tarder ! 1.

Maison 4 pièces 319900 €
319 900 €

Maison 4 pièces 95 m²

Codognan (30920)

Maison neuve avec jardin et parking (ou garage) à Codognan (Gard) - Eligible PTZ (prêt à taux 0%) Idéalement situé entre Nîmes et Montpellier, le charmant village de Codognan offre un cadre de vie paisible à proximité des grands axes, des plages méditerranéennes et des bassins d'emploi. Dans un environnement résidentiel privilégié, découvrez ce nouveau lotissement composé de 35 maisons individuelles avec jardin et stationnement privé (ou garage), ainsi que d'une maison médicale, le tout à 5 minutes à pied du coeur du village et à 6 minutes en voiture du péage de Gallargues-Le-Montueux. L'ensemble du lotissement a été pensé pour proposer un cadre de vie harmonieux, moderne et pratique, à proximité immédiate des écoles, commerces et services. Chaque maison se compose au rez-de-chaussée de : - Un grand séjour cuisine - Une salle d'eau avec douche et wc - Possibilité de créer une chambre au Rdc A l'étage : - 3 chambres confortables avec placard équipé - Une salle de bain entièrement équipée - Un WC séparé Prestations : - Nouvelles normes thermiques - Carrelage 60x60cm toutes pièces (coloris au choix) - Menuiserie PVC pour meilleure isolation - Volets roulants électrique dans toutes les pièces - Placards aménagés - Salles d'eau et de bain équipée (meuble vasque, miroir lumineux, sèche serviette électrique) - Carrelage sur plots pour les terrasses - Peinture lisse sur tous les murs et plafonds - Ballon thermodynamique A l'extérieur : - Une terrasse et / ou un jardin - Deux places de stationnement privatif (ou un garage + 1 place) Conditions : - A partir de 310 000 € - Frais de notaire réduits - Eligible prêt à taux 0% (PTZ) - Seulement 4 maisons avec garage Contactez-nous dès maintenant pour découvrir ce programme, les prix et les disponibilités des lots. Référence agence : 2584.

Maison 4 pièces 324900 €
324 900 €

Maison 4 pièces 98 m²

Codognan (30920)

Villas neuves T4 en duplex à Codognan Jardin, RE 2020, BBC À partir de 306 000 EUR Opportunité rare sur le secteur Découvrez notre nouveau programme immobilier à Codognan : des villas T4 en duplex alliant confort, modernité et performance énergétique. Situées dans un environnement résidentiel calme, à proximité des écoles, commerces et axes routiers, ces villas sont idéales pour y vivre en famille ou investir. -Villas neuves T4 en duplex avec extérieur-Dernières normes RE 2020 et BBC-À partir de 306 000 EUR pour 82 m² -Deux places de stationnement incluses -Une belle pièce de vie lumineuse -Trois chambres -Un jardin privatif idéal pour vos moments en extérieur Découvrez y une villa T4 avec jardin, terrasse et parking. Elle est composée d'une entrée, d'une pièce de vie avec cuisine semi équipée, de trois chambres, d'une salle de bains et d'un WC séparé. Un Garage et un parking inclus dans le prix Contactez-nous pour recevoir la plaquette et planifier une visite Les avantages d'acheter un logement neuf avec PRODEOM : oPrix direct promoteur : pas de frais d'agence. oFrais de notaire réduits entre 2 et 3% (contre 8% dans l'ancien). oPerformance énergétique conforme aux normes RE2020. oExonération partielle de la taxe foncière les premières années. oPossibilité de Prêt à Taux 0% d'intérêts bancaires jusqu'à la MOITIÉ du prix du bien (50%) oMoins de charges et pas de travaux pendant au moins 15 ans. oGarantie de construction pendant 10 ans.

À voir pour le même budget

Maison 4 pièces 324900 €
324 900 €

Maison 4 pièces 98 m²

Codognan (30920)

Villas neuves T4 en duplex à Codognan Jardin, RE 2020, BBC À partir de 306 000 EUR Opportunité rare sur le secteur Découvrez notre nouveau programme immobilier à Codognan : des villas T4 en duplex alliant confort, modernité et performance énergétique. Situées dans un environnement résidentiel calme, à proximité des écoles, commerces et axes routiers, ces villas sont idéales pour y vivre en famille ou investir. -Villas neuves T4 en duplex avec extérieur-Dernières normes RE 2020 et BBC-À partir de 306 000 EUR pour 82 m² -Deux places de stationnement incluses -Une belle pièce de vie lumineuse -Trois chambres -Un jardin privatif idéal pour vos moments en extérieur Découvrez y une villa T4 avec jardin, terrasse et parking. Elle est composée d'une entrée, d'une pièce de vie avec cuisine semi équipée, de trois chambres, d'une salle de bains et d'un WC séparé. Un Garage et un parking inclus dans le prix Contactez-nous pour recevoir la plaquette et planifier une visite Les avantages d'acheter un logement neuf avec PRODEOM : oPrix direct promoteur : pas de frais d'agence. oFrais de notaire réduits entre 2 et 3% (contre 8% dans l'ancien). oPerformance énergétique conforme aux normes RE2020. oExonération partielle de la taxe foncière les premières années. oPossibilité de Prêt à Taux 0% d'intérêts bancaires jusqu'à la MOITIÉ du prix du bien (50%) oMoins de charges et pas de travaux pendant au moins 15 ans. oGarantie de construction pendant 10 ans.

Maison 4 pièces 332900 €
332 900 €

Maison 4 pièces 101 m²

Codognan (30920)

Villas neuves T4 en duplex à Codognan Jardin, RE 2020, BBC À partir de 306 000 EUR Opportunité rare sur le secteur Découvrez notre nouveau programme immobilier à Codognan : des villas T4 en duplex alliant confort, modernité et performance énergétique. Situées dans un environnement résidentiel calme, à proximité des écoles, commerces et axes routiers, ces villas sont idéales pour y vivre en famille ou investir. -Villas neuves T4 en duplex avec extérieur-Dernières normes RE 2020 et BBC-À partir de 306 000 EUR pour 82 m² -Deux places de stationnement incluses -Une belle pièce de vie lumineuse -Trois chambres -Un jardin privatif idéal pour vos moments en extérieur Découvrez y une villa T4 avec jardin, terrasse et parking. Elle est composée d'une entrée, d'une pièce de vie avec cuisine semi équipée, de trois chambres, d'une salle de bains et d'un WC séparé. Un Garage et un parking inclus dans le prix Contactez-nous pour recevoir la plaquette et planifier une visite Les avantages d'acheter un logement neuf avec PRODEOM : oPrix direct promoteur : pas de frais d'agence. oFrais de notaire réduits entre 2 et 3% (contre 8% dans l'ancien). oPerformance énergétique conforme aux normes RE2020. oExonération partielle de la taxe foncière les premières années. oPossibilité de Prêt à Taux 0% d'intérêts bancaires jusqu'à la MOITIÉ du prix du bien (50%) oMoins de charges et pas de travaux pendant au moins 15 ans. oGarantie de construction pendant 10 ans.

Maison 6 pièces 285000 €
285 000 €

Maison 6 pièces 154 m²

Codognan (30920)

Gard (30), à vendre à Codognan, ville dynamique accompagnée de ses commodités (médecins, pharmacie, écoles, grandes surfaces. ) en Nouveauté et en Exclusivité, cette superbe maison individuelle de type T6, de 154 m², située dans un quartier très Calme, à seulement 7 min de l'autoroute. Traversante et naturellement lumineuse, elle est située sur un terrain de 535 m² avec piscine, et vous offre de très beaux volumes. Au rez-de-chaussée, elle se compose d'un grand Salon / Séjour / Salle à manger, d'une cuisine, une grande chambre, une buanderie et des toilettes indépendantes. À l'étage, elle vous propose 4 chambres dont 2 ouvertes sur une terrasse, une salle de bain et des toilettes indépendantes. SES POINTS FORTS : - Maison Saine et ensoleillée; - Climatisation, chauffage central et cummulus à panneaux solaire; - Pièces spacieuses; - Garage de 23 m²; - Piscine avec dôme; - Située dans une impasse et dans un quartier calme; - Terrain de 535 m². Le tout est en excellent état général pour y déposer vos valises immédiatement (hormis le simple vitrage sur une partie de la maison). Ce bien est situé à un emplacement privilégié à proximité d'une voie verte future, à seulement 8 min de l'autoroute, 12 min de Lunel, 25 min de Nîmes, 35 min de Montpellier et 20 min de la Mer. Si vous avez des questions ou souhaitez programmer une visite, n'hésitez pas à me contacter ! Honoraires à la charge du vendeur Les informations sur les risques auxquels ce bien est exposé sont disponibles sur le site Georisques. Selon l'article L. 561.5 du code monétaire et Financier, une pièce d'identité vous sera demandée pour l'organisation de la visite. REF 54584 - Réseau ABESSAN - Denis SAUVESTRE - (06 60 81 00 16) - Votre agent commercial en immobilier (E. I.) RSAC N° 890 295 454 - Tous nos biens sont visibles sur L'immobilier vous intéresse, contactez-moi!

Maison 5 pièces 399000 €
399 000 €
-6 %

Maison 5 pièces 123 m²

Codognan (30920)

Codognan : Une Petite Commune du Gard au Charme Authentique Nichée dans le département du Gard en Occitanie, Codognan séduit par son charme discret et ses attraits authentiques. Cette commune accueillante offre une qualité de vie où tranquillité et modernité se marient harmonieusement, avec toutes les commodités essentielles à portée de main. Elle incarne l'équilibre parfait entre la douceur de la campagne et l'accès aux commodités urbaines, créant un cadre de vie unique où l'authenticité et la qualité de vie se conjuguent. Les écoles, crèches et commerces locaux garantissent une grande praticité au quotidien, tandis que la proximité de l'autoroute A9 et des gares de Nîmes et Montpellier facilite les déplacements. Codognan charme par sa simplicité, son patrimoine riche, sa douceur de vivre et sa convivialité. Située à égale distance entre Montpellier, Nîmes et le bord de mer, cette commune offre un cadre de vie exceptionnel pour ceux qui recherchent une vie équilibrée, dynamique et épanouissante. La Résidence Découvrez notre nouvelle résidence neuve, située en coeur de ville, à deux pas des commerces de proximité et des écoles. Cette situation idéale permet de vivre pleinement le quotidien de ce village de moins de 4 000 habitants, entre tranquillité intimiste et vie de quartier. Avec son architecture contemporaine discrète, la résidence s'intègre parfaitement dans son environnement. Les logements, aux surfaces généreuses, offrent de belles ouvertures sur l'extérieur avec jardins privatifs ou terrasses. C'est un cadre parfait pour profiter en toute quiétude de la nature et du centre-ville. Alliant élégance, confort et sécurité, chaque logement présente des prestations de qualité pour votre confort et votre bien-être. Les volumes intérieurs bénéficient d'une lumière naturelle exceptionnelle, mettant en valeur l'aménagement de chaque espace. Tous les logements disposent de menuiseries en aluminium ou PVC et de volets roulants électriques, garantissant une isolation thermique et phonique performante. Le bien : Découvrez y une VILLA T5 de 123 m² avec une terrasse de 14 m² et un jardin de 86 m². Elle est composée d'une pièce de vie, de quatres chambres avec placards dont une suite parentale avec sa salle d'eau privative, d'une autre salle d'eau et d'un WC. 2 Parking inclus. Conformité RE2020 Prix direct promoteur : pas de frais d'agence. Frais de notaire réduits entre 2 et 3% (contre 7 à 8% dans l'ancien). Performance énergétique conforme aux normes RE2020. Exonération de la taxe foncière les premières années. Possibilité de Prêt à Taux 0% d'intérêts bancaires jusqu'à la MOITIÉ du prix du bien (50%).

Maison 4 pièces 370000 €
370 000 €

Maison 4 pièces 104 m²

Codognan (30920)

À Codognan, entre Nîmes et Montpellier, dans un environnement résidentiel paisible et recherché… à seulement 25 minutes des plages et à proximité des grands axes. Il y a des maisons où l'on se sent bien avant même d'avoir posé ses valises…Celle-ci en fait partie. De plain-pied, entièrement rénovée avec soin et entretenue avec exigence, elle dégage une harmonie rare, où chaque espace semble avoir été pensé pour le confort du quotidien et la douceur de vivre. Dès l'entrée, le regard est naturellement attiré par une magnifique véranda, véritable pièce de vie supplémentaire. Lumineuse et chaleureuse, elle devient un lieu central de la maison, où l'on vit au rythme des saisons, entre détente, repas et moments partagés. La maison offre deux chambres confortables ainsi qu'une pièce polyvalente qui s'adapte aux envies : bureau, chambre, profession libérale avec entrée indépendante. selon les besoins de chacun. Rénovation récente et qualitative, toiture révisée, chauffage gainable, excellente performance énergétique… ici, le confort n'est pas un détail, c'est une évidence. À l'extérieur, le même soin a été apporté : un jardin paysagé, agréable et facile à vivre, prolonge naturellement la maison, avec une piscine récente encore sous garantie pour savourer pleinement les beaux jours. Un garage indépendant, un portail automatisé, un adoucisseur d'eau et des équipements pratiques viennent compléter ce bien pensé pour une vie simple et fluide. Une maison où l'on ne se projette pas… on s'y reconnaît déjà un peu. Et si vous veniez simplement ressentir les lieux ? Je serai ravie d'en parler avec vous et d'organiser une visite. Les informations sur les risques auxquels ce bien est exposé sont disponibles sur le site Géorisques : Prix de vente : 370 000 € Honoraires charge vendeur Contactez votre conseiller SAFTI : Corinne ORTÉGA-DOREY, Tél. : 06 09 97 38 63, E-mail : corinne.ortega-dorey@safti.fr - EI - Agent commercial immatriculé au RSAC de NÎMES sous le numéro 853 498 111.

Maison 4 pièces 267000 €
267 000 €
-6 %

Maison 4 pièces 117 m²

Codognan (30920)

Codognan, entre Nimes et Montpellier. Proche autoroute et dans un quartier calme. Maison à l'étage, récente et lumineuse de 117 m² : séjour de 28 m², cuisine ouverte avec cellier, 3 chambres, rangements. Puis une véranda pouvant servir de quatrième chambres, salle de bain et WC séparé. Jardin, rangements dans chaque pièce. Honoraires inclus dans le prix : 6.2%.