
Copropriété 2026 : charges en hausse, que faire ?
Hausse des charges, travaux obligatoires, énergie : la copropriété devient un enjeu majeur en 2026.
4 résultats
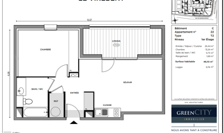
Dans une résidence neuve signée greencity la résidence « meetcity » est située à beauzelle 31700 chemin des amandiers, dans le quartier andromède, à proximité de la coulée verte, des transports en commun (tramway, bus) et du centre-ville. Venez découvrir un bel appartement t2 de 43,67 m² avec une grande terrasse de 15 m² au 3 éme étage. Une place de parking est comprise avec le logement. L'appartement se compose d'une entrée avec un placard et un cellier, d'un lumineux séjour avec sa cuisine ouverte équipée (réfrigérateur, plaque vitrocéramiques, hotte, emplacement four et lave-vaisselle), le tout donnant sur une grande terrasse de 15 m² et son jardin de 20 m² entretenu par la copropriété. Une grande chambre avec placard aménagés et une salle de bain avec baignoire (lave-linge fourni) une place de parking sous-sol accompagne ce logement dpe non requis avant la livraison loyer hc : 577,00€ + 85,00€ de charges (eau entretiens des parties communes) dépôt de garantie : 577,00 € honoraires : 567.71 € (dont 131.01 € pour l'état des lieux d'entrée.) disponible.
Situé au 11 rue de l'autan à quelques minutes à pieds du tramway, venez découvrir un bel appartement t2 sans vis a vis de 45,64 m² avec terrasse de 7,39 m² et une place de parking. L'appartement se compose : d'une entrée avec une cuisine aménagée et équipée (plaque vitrocéramiques, réfrigérateur, hotte aspirante, meubles de rangements hauts et bas) ouverte sur le séjour d'une surface totale de 26.40 m². La pièce de vie lumineuse donne sur une agréable terrasse en bois de 7.39 m² avec vue sur le parc. 1 chambre de 11.91 m² avec ensembles penderie et étagères. Salle d'eau agrémentée d'un meuble sous vasque, miroir lumineux, baignoire et machine à laver. Le montant moyen estimé des dépenses annuelles d’énergie pour un usage standard est de 275,98 euros (année de référence des prix de l’énergie utilisés pour établir cette estimation : 2015) les informations sur les risques auxquels ce bien est exposé sont disponibles sur le site géorisques : un cellier de rangements ainsi qu'une place de parking en sous-sol viennent compléter les prestations. Bâtiment bbc. Chauffage au gaz individuel. Loyer : 589,65 euros hc + charges : 56,00 euros comprenant l'entretien et l'électricité des parties communes et les provisions d'eau froide. Loyer : 640,55 euros honoraires de location : 593,32 euros dont 136.92 euros pour edle depot de garantie : 589,65 euros disponible a partir du 07 / 05 / 2026.
Bel appartement de type 4 à louer au sud de beauzelle. Chauffage inclu dans les charges ! Dans une résidence calme et sécurisée, au 2ème étage (sans ascenseur) grande cuisine, climatisation, volets roulants électriques, beaucoup de rangement. Il se compose de : - une entrée - un grand salon séjour lumineux - une cuisine équipée et aménagée (four, plaque à gaz, hotte, lave-vaisselle) - 3 chambres avec placards, - une salle d'eau - un wc - un cellier - une terrasse - une cave l'appartement est disponible dès maintenant.
À louer sur Beauzelle chambre meublée. Ce logement d'une superficie de 11 m² est disponible immédiatement entre particuliers pour un loyer de 570 €Ce logement est réservé aux étudiants. Avantages du logement : - Cuisine possible - Internet inclus - Stationnement possible - Proximité transport - Proximité commerce Ce propriétaire utilise LocService pour sélectionner ses futurs locataires. Pour proposer directement votre candidature pour ce logement ET toutes les locations conformes à votre recherche, il suffit de vous inscrire sur LocService. Les propriétaires vous contactent directement et les locations sont certifiées sans frais d'agence. Comment ça marche ? 1/ Vous décrivez votre location idéale sur LocService 2 / Votre candidature est transmise aux propriétaires concernés 3 / Les propriétaires vous contactent directement. Vous réglez 29,00 € / mois. Sans engagement - Sans commission. Depuis sa création en 2005, LocService a accompagné plus de 2,9 millions de particuliers. Pourquoi pas vous ? Ce logement est réservé aux étudiants.

Recevez en temps réel les dernières annonces correspondant à votre recherche
Autres annonces à proximité de Beauzelle (31700) avec vos critères
Appt T3 de 67.5 m² situé dans petite résidence calme avec vue sur des espaces verts, à deux pas du centre de Fenouillet, des commerces et transports en commun. Cuisine (meubles haut et bas + hotte) ouverte sur séjour spacieux et clair donnant sur belle terrasse carrelée; 2 chambres (placards aménagés) ; SDB et WC séparés. Appartement fonctionnel + celliers extérieur et 1place de parking couverte.
Dossiers avec garants acceptes - a 5 min. À pied du centre ville, proche commerces et écoles, dans une petite résidence sécurisée fermée, un appartement de type 3 de 59 m², au rez de chaussée, comprenant : une entrée avec placard, une cuisine aménagée ouverte sur un grand séjour lumineux et terrasse couverte, 2 chambres avec placards aménagés, une salle de bains et un wc séparés. 2 places de parking aériennes et un cellier. Les charges comprennent l'entretien des espaces communs et la consommation d'eau individuelle. Logement disponible de suite.
Iad france - jeanne-eva caussade vous propose : location non meublée + appartement t3 lumineux de 54 m² avec terrasse à fenouillet - tres calme + situé dans la charmante commune de fenouillet, à proximité de blagnac, seilh et gagnac, dans une résidence récente bien entretenue et très calme, venez découvrir ce joli t3 en rez-de-chaussée, agréable à vivre et parfaitement agencé. Il se compose d’une pièce de vie lumineuse exposée sud avec coin cuisine aménagé et équipé (plaques et hotte), donnant sur une agréable petite terrasse. L’espace nuit propose deux chambres de plus de 11 m² avec placards intégrés. L’appartement dispose également d’une salle d'eau avec une douche spacieuse et de wc séparés, pour plus de confort. Deux places de parking extérieures privatives complètent ce bien. Idéalement situé, cet appartement est proche des commerces de proximité, des parcs et des transports en commun, offrant un cadre de vie pratique et convivial. Un appartement qui allie confort et fonctionnalité, idéal pour un couple, une petite famille ou toute personne recherchant un cadre de vie moderne et agréable. * ses atouts * - exposition : sud - calme, luminosite - cuisine récente - volets roulants électriques avec commande centralisée - résidence fermée, portail électrique + portillon - fibre installée - petite copropriété - store banne (toile dépliante) sur la terrasse - local vélo sécurisé - 2 places de parking - arrêt de bus à 5 min direction métro la vache ou gare de st jory la commune de fenouillet est située dans un secteur prisé au nord de toulouse. Elle est entourée des communes d’aucamville, castelginest, lespinasse, gagnac-sur-garonne, seilh et beauzelle. Loyer : 869€ charges comprises (119€ de charges) dépôt de garantie : 1 mois de loyer hors charges soit 750€ honoraires locataire : 375€ afin de garantir la pertinence des visites, un échange préalable sera réalisé. Il permettra de vérifier que le bien correspond bien à vos critères (budget, besoins, localisation). * jeanne-eva caussade, conseillère en immobilier disponible 7j / 7 * information d'affichage énergétique sur ce bien : classe energie d indice 202 et classe climat b indice 6. Les informations sur les risques auxquels ce bien est exposé, y compris l'obligation légale de débroussaillement, sont disponibles sur le site géorisques : la présente annonce immobilière a été rédigée sous la responsabilité éditoriale de mme jeanne-eva caussade mandataire indépendant en immobilier (sans détention de fonds), agent commercial de la sas i@d france immatriculé au rsac de toulouse sous le numéro 500139340, titulaire de la carte de démarchage immobilier pour le compte de la société i@d france sas. Location non meublée. Montant du loyer mensuel charges comprises : 869.00 euros / mois. Provision mensuelle avec récupération annuelle : 119.00 euros / mois. Zone soumise à encadrement : non. Dépôt de garantie : 750 euros. Honoraires ttc à la charge du locataire : 375 euros (soit 6€ / m²).
Dans une résidence de 2021 aux prestations de qualités nous vous proposons un magnifique appartement t2 de 41; 85 m² avec jardin dans une petite copropriété au calme à proximité quasi immédiate du géant casino de fenouillet situé au 4 rue des artisans. Le logement comprend une cuisine aux couleurs modernes ouverte sur séjour équipée de meuble hauts et bas, plaques vitrocéramiques, hotte et réfrigérateur, emplacement lave vaisselle et emplacement four. La pièce de vie, spacieuse et lumineuse, donne sur une agréable terrasse, revêtement bois et son jardin. 1 chambre avec placard salle de bain agrémentée de meuble sous vasque, miroir lumineux, baignoire, sèche serviette et machine à laver fournie. Le logement comprend également une place de parking bâtiment bbc, chauffage au gaz individuel. Le montant moyen estimé des dépenses annuelles d’énergie pour un usage standard est de 269,49 euros (année de référence des prix de l’énergie utilisés pour établir cette estimation : 2015) les informations sur les risques auxquels ce bien est exposé sont disponibles sur le site géorisques : a proximité : les lignes de bus : 59 «arrêt tournelle» et 113 «arrêt centre commercial fenouillet». À 900 m de la crèche municipale et haltegarderie, à 1 km de l’école jean monnet et à 1,4 km du collège françois mitterrand. À 8 km de la station la vache (ligne b). À 7 km de la future station de fondeyre (3ème ligne de métro). À 12, km de la gare sncf matabiau. À 14 km de l’aéroport toulouse-blagnac. Loyer : 496,73 hors charges + 40,00 euros de charges. Les charges comprennent : entretiens des parties communes, électricité des parties communes. Dépôt de garantie : 496,73 euros honoraires de location : 544,05 euros dont 125.55 € d etat des lieux disponible le 11 / 05 / 2026.
Pour visiter ce bien, veuillez déposer un dossier directement sur notre site internet : Laforêt Blagnac, pour cela, vous devez aller dans l'onglet LOUER, sélectionner l'annonce et cliquer sur 'constituer votre dossier de location'. Situé 1 impasse Marcel Pagnol : studio de 35 m² dans une jolie résidence sécurisée et arborée. Il se compose d'une pièce a vivre d'environ 27 m², d'un coin cuisine équipé, d'une salle de bains avec toilettes. Place de parking extérieur. Poches du centre de Blagnac et des commodités. - Loyer charges comprises : 532.36 (dont 46.64 de provisions pour charges comprenant l'eau froide, l'entretien des parties communes et la TEOM) - Dépôt de garantie : 532.36 - Honoraires de location à la charges du locataires : 315 (dont 105 pour l'établissement de l'état des lieux d'entrée).
De particulier à particulier, appartement T3 de 67 m² à louer à Blagnac. Location de 3 pièces. Loyer charges incluses 1030 € disponible immédiatement Avantages du logement : - Stationnement possible - Balcon ou terrasse - Dernier étage - Proximité transport - Proximité commerce Ce propriétaire utilise LocService pour sélectionner ses futurs locataires. Pour proposer directement votre candidature pour ce logement ET toutes les locations conformes à votre recherche, il suffit de vous inscrire sur LocService. Les propriétaires vous contactent directement et les locations sont certifiées sans frais d'agence. Comment ça marche ? 1/ Vous décrivez votre location idéale sur LocService 2 / Votre candidature est transmise aux propriétaires concernés 3 / Les propriétaires vous contactent directement. Vous réglez 29,00 € / mois. Sans engagement - Sans commission. Depuis sa création en 2005, LocService a accompagné plus de 2,9 millions de particuliers. Pourquoi pas vous ?
À Aussonne Allées Lucie Aubrac, à proximité immédiate du parc aéronautique, des commerces et du centre commercial de Blagnac, le Cabinet Claude Sanchez vous propose à la location ce bel appartement T2 de 44 m² situé dans une agréable résidence récente, calme, arborée, fermée et sécurisée. Situé au premier étage de la résidence, l'appartement s'ouvre sur une entrée qui mène à un séjour confortable et particulièrement lumineux. Cet espace de vie convivial bénéficie d'une belle ouverture vers l'extérieur et donne accès à une agréable terrasse. La cuisine, semi-ouverte et équipée, dispose de meubles hauts et bas ainsi que d'équipements comprenant plaques de cuisson, hotte et réfrigérateur top, offrant un espace fonctionnel et pratique au quotidien. L'espace nuit se compose d'une chambre confortable équipée d'un placard intégré permettant un rangement optimisé. Une salle de bain avec baignoire ainsi qu'un WC complètent l'agencement de ce logement. Le chauffage est individuel électrique. Une place de parking aérienne privative vient compléter ce bien. Idéalement situé dans un environnement résidentiel calme tout en restant proche des bassins d'emploi aéronautiques et des commodités de Blagnac, cet appartement offre un cadre de vie agréable et pratique au quotidien. Le loyer mensuel est de 612 € dont 89 € de charges. Le dépôt de garantie est de 523 € et les honoraires de location s'élèvent à 577 €. Pour plus de renseignements ou pour organiser une visite, contactez le Cabinet Claude Sanchez au 05 62 27 59 59.
La résidence «villa chopin» est située au 18 vieux chemin de grenade, à seulement 800 m du coeur de ville et à 5 minutes à pied de la salle de spectacles odyssud et du complexe sportif du ramier. Le quartier est desservi par la ligne t1 du tramway, la ligne bus tisseo 70 et la voie lactée venez découvrir un bel appartement t3 en rez de chaussée de 60,93 m² avec terrasse de 6,27 m², son jardin de 75 m², et un parking. Cet appartement comprend une cuisine aux couleurs modernes ouverte sur le séjour. Elle est équipée de meuble hauts et bas, plaques vitrocéramiques, hotte et réfrigérateur, emplacement lave vaisselle et emplacement four. La pièce de vie lumineuse donne sur une agréable terrasse er son jardin d'environ 75 m². 2 chambres avec ensemble penderie et étagères. Un cellier, un wc séparé. Salle de bain agrémentée de meuble sous vasque, miroir lumineux, baignoire, sèche serviette et machine à laver. Le logement comprend également une place de parking en sous-sol et une cave. Le montant moyen estimé des dépenses annuelles d’énergie pour un usage standard est de 484,86 euros (année de référence des prix de l’énergie utilisés pour établir cette estimation : 2015) les informations sur les risques auxquels ce bien est exposé sont disponibles sur le site géorisques : bâtiment bbc, chauffage au gaz individuel. À proximité : - à 200 m des bus 70 et de la ligne t1 du tramway (« place du relais») - à 1,5 km de la voie lactée, sortie «grand noble » - à 3 km de toulouse loyer : 703,20 euros + 32,58 € loyer parking + charges : 87,00 euros (entretiens et électricité des parties communes, provision d'eau froide). Honoraires de location : 792,09 euros (dont 182.88 euros pour edle) depot de garantie : 703,20 euros. Depot de garantie parking : 32,58 euros disponible a partir du 27 / 04 / 2026.
À louer à Aussonne, appartement meublé 3 pièces de plain pied de 76.65 m² dans une maison individuelle sur une parcelle au calme sans vis à vis. Entrée, espace de vie avec cuisine équipée (four, micro ondes, 2 réfrigérateurs, plaque de cuisson au gaz, hotte, lave vaisselle), 2 chambres avec placards et bureau dont une donnant sur une terrasse privative, une salle de bains et des toilettes séparés. Le plus : chauffage au gaz, places de parking aérien dans parcelle clôturée avec portail électrique. Disponible le 25 / 04 / 26. Loyer 753.21 dont 100 de charges comprenant l'électricité, l'eau, le gaz, la taxe d'ordures ménagères et internet. Régularisation annuelle. Dépôt de garantie : 1306.42 Honoraires agence : - Visite, constitution du dossier, bail : 523.26 - Etat des lieux : 229.95 Si vous souhaiter accéder à la visite virtuelle, scannez le flash code que vous trouverez dans les photos ou cliquer sur le lien ci-dessous. Pour plus de renseignements, vous pouvez nous contacter au 05 34 59 24 20 ou au 06 46 22 36 03.
Photos logement temoin situé 137 chemin de ginestou, dans une résidence neuve aux dernières normes d'isolation phonique et thermique, climatisation réversible. T3 duplex de 60,61 m² avec parking et terrasse de 10 m². Il se compose au rdc d'une entrée avec placard et cellier, une chambre avec placard, une cuisine meublée et équipée (plaques vitrocéramiques, hotte, réfrigérateur) ouverte sur séjour, la pièce de vie, spacieuse et très lumineuse donne sur une agréable terrasse de 10 m². À l'étage : une chambre avec placard etune salle de bain agrémentée de meuble sous vasque, miroir lumineux, baignoire, sèche serviette et machine à laver. 1 places de parking dpe non requis avant la livraison. Les informations sur les risques auxquels ce bien est exposé sont disponibles sur le site géorisques : loyer : 790,00€ hors charges charges : 85,00 € comprenant l'eau froide et l'entretien des parties communes. (révision annuelle des charges) honoraires de la location de 787,93 € dont 181,83 € pour l'état des lieux d'entrée. Dépôt de garantie : 790,00 € disponible le 10 / 04.
Photo logement temoin situé 137 chemin de ginestou, dans une résidence neuve aux dernières normes d'isolation phonique et thermique, climatisation réversible. T2 en rez-de-jardin de 47,96 m² avec parking terrasse et jardin de 13 m². Il se compose d'une entrée desservant une cuisine meublée et équipée (plaques vitrocéramiques, hotte, réfrigérateur) ouverte sur séjour. La pièce de vie, spacieuse et très lumineuse donne sur une agréable terrasse et un jardin. D'un couloir avec cellier de rangement, d'une chambre avec placard et d'une salle de bain agrémentée de meuble sous vasque, miroir lumineux, baignoire, sèche serviette et machine à laver. 1 places de parking a compagne ce logement dpe non requis avant la livraison. Les informations sur les risques auxquels ce bien est exposé sont disponibles sur le site géorisques : loyer : 675,00 € hors charges charges : 65,00 € comprenant l'eau froide et l'entretien des parties communes. (révision annuelle des charges) honoraires de la location : 598.91 € dont 143,88 € pour l'état des lieux d'entrée. Dépôt de garantie : 675,00€ disponible le 10 / 04.
« le hameau de mondonville », situé 39 route de daux, bénéficie d’une situation privilégiée proche du coeur de ville et d’un petit centre commercial avec toutes les commodités. Cette résidence récente propose des logements de qualités avec de nombreux équipements. Cet appartement t3 de 67,27 m² se compose d'une cuisine meublée et équipée (plaque vitrocéramique, hotte et frigidaire) ouverte sur séjour. La pièce de vie de 27.15 m² est lumineuse, spacieuse et donne sur une agréable terrasse en bois bien exposée de 11.53 m² et son jardin d'environ 74 m². 2 chambres faisant respectivement 13.29 m² avec ensembles penderies / étagères et 11.01 m² sans placard. Salle de bains agrémentée de meuble sous vasque, lave-linge, miroir lumineux, baignoire et sèche serviette et wc séparés. 2 places de parking aériennes viennent compléter les prestations. À proximité : à 750 m à pied de l’arrêt de bus «église mondonville» de la ligne 17 qui rejoint le tramway station andromède lycée accès à la voie lactée (accès toulouse / blagnac) via la n124 en seulement 8 min accès au périphérique ouest en 20 minutes le montant moyen estimé des dépenses annuelles d’énergie pour un usage standard est de 406,71 euros (année de référence des prix de l’énergie utilisés pour établir cette estimation : 2015) les informations sur les risques auxquels ce bien est exposé sont disponibles sur le site géorisques : loyer : 672,84 euros + charges : 55,00 euros dépôt de garantie : 672,84 euros honoraires de location : 874,51 euros dont 201,81 euros pour l'état des lieux d'entrée. Disponile le 15 / 05 / 26.
Découvrez votre futur nid douillet : un appartement T3 duplex neuf de 60,63 m², baigné de lumière et d'élégance Imaginez-vous, dès le réveil, ouvrir vos fenêtres sur un balcon spacieux de 11 m², où le soleil du matin caresse vos premiers instants de la journée. Bienvenue dans un appartement où chaque détail a été pensé pour votre confort et votre bien-être, au coeur d'une résidence flambant neuve. Un écrin de lumière et d'espace Avec ses 60,63 m² de surface habitable, cet appartement T3 allie fonctionnalité et raffinement. Le séjour généreux de 22 m² s'ouvre sur une cuisine américaine équipée, où chaque ustensile et chaque centimètre compte. Parfait pour recevoir vos proches ou simplement profiter de moments en famille, ce espace de vie respire la convivialité et l'harmonie. Les deux chambres, lumineuses et paisibles, offrent une intimité bienvenue après une longue journée. La salle de bains, moderne et fonctionnelle, est complétée par deux WC, un luxe qui fait toute la différence au quotidien. Un balcon de 11 m² : votre terrasse privée au coeur du ciel Le clou de cet appartement ? Son balcon de 11 m², une véritable extension de votre intérieur. Que ce soit pour déguster votre café du matin en écoutant le chant des oiseaux, pour lire un livre sous le soleil de l'après-midi ou pour organiser des apéros entre amis en soirée, ce balcon est un havre de paix où le temps semble s'arrêter. Conçu avec des matériaux de qualité supérieure, cet appartement neuf allie durabilité et esthétique. Les sols, les murs et les finitions intérieures sont impeccables, reflétant le soin apporté à chaque détail. La cuisine américaine équipée, avec ses plans de travail en stratifié résistant et ses appareils électroménagers intégrés, est prête à accueillir vos plus belles créations culinaires. Visio possible sur place sur demande - Photos non contractuelles Honoraires de 674 € TTC à la charge du locataire comprenant 153 € TTC pour l'état des lieux. Loyer de base 800 € / mois. Provision sur charges 95 € / mois, régularisation annuelle. Dépôt de garantie 800 €. Classe énergie B, Classe climat B Montant moyen estimé des dépenses annuelles d'énergie pour un usage standard, établi à partir des prix de l'énergie de l'année 2021 : entre 372.00 et 503.00 €. Les informations sur les risques auxquels ce bien est exposé sont disponibles sur le site Géorisques : georisques. gouv. fr. Votre conseiller AGECO : Gérant - Eric LAMEZEC Carte T CPI31012016000008928 RCP AXA France IARD S. A., 313 Terrasses de l'Arche 92 727 NANTERRE.
Photos logement temoin a cornebarrieu 31700 situé chemin de mandillet dans une résidence récente et sécurisée, venez découvrir un magnifique t3 de 61,49 m² au premier étage avec une belle terrasse en bois de 7,58 m². Ce dernier comprend : une entrée avec cellier, une cuisine entièrement équipée et meublée (meubles hauts et bas, plaques vitrocéramiques, hotte et réfrigérateur emplacement pour un lave-vaisselle, emplacement pour micro-ondes ainsi que pour un four encastrable) ouverte sur le séjour. La pièce de vie, lumineuse et facile à agencer donne sur une belle terrasse en bois de 7,00 m². Deux chambres avec ensemble penderie / étagère. Une salle de bains agrémentée de meuble sous vasque, miroir lumineux, machine à laver, sèche serviette, baignoire. Le montant moyen estimé des dépenses annuelles d’énergie pour un usage standard est compris entre 361,00 euros et 488,00 €(année de référence des prix de l’énergie utilisés pour établir cette estimation : 2021) les informations sur les risques auxquels ce bien est exposé sont disponibles sur le site géorisques : résidence bbc ce logement de haut standing est équipé d'une alarme anti-intrusion, d'un visiophone ainsi que d'un thermostat. Loyer : 692,35 euros hc + 100,00 euros de provisions pour charges. Les charges comprennent : l'entretien et l'électricité des parties communes. Honoraires de location : 799,37 € dont 184,47 euros pour l'état des lieux d'entrée dépôt de garantie : 692,35 euros disponibilite : 06 / 04 / 2026.
Route de launaguet, résidence soleo, récente, de standing. T2 comprenant un entrée avec pld séjour avec un balcon, coin cuisine. Chambre avec placards. Salle de bain complète. Wc séparée. Place de parking en sous sol. Proche des commerces de proximité, 10 min du centre ville et accès rocade rapide. Bus et métro contact commercial 05 62 27 59 59.
Venez découvrir cet appartement t3 de 65 m² loué non meublé, au premier étage d'une résidence récente et sécurisée. Il est composé d'un hall d'entrée avec placard, amenant sur un séjour avec cuisine ouverte aménagée et semi équipée (plaque de cuisson, hotte aspirante et meubles de rangement), le tout donnant sur un grand balcon faisant angle. Vous beneficierez d'une grande chambre de 12.5 m² sans placard, ainsi que d'une autre chambre avec dressing. Enfin, la salle d'eau est séparée des wc. Vous beneficierez également de 2 places de parkings privatives en sous sol. Chauffage individuel au gaz. Disponible à partir du 01 / 05. Dispositif pinel orpi tt gestion - 37 avenue des minimes, 31200 toulouse 09 74 19 56 56 - location.ttgestion@orpi.com * l'équipe est joignable du lundi au vendredi au 09 74 19 56 56 de 14h à 18h30. En dehors de ces horaires 7j / 7 - 24h / 24 à ce même numéro avec notre agent conversationnel * les horaires d'ouverture restent inchangés du lundi au vendredi de 9h30 à 18h30 * .
Au centre de la commune de Castelginest, dans une petite résidence au calme, proche de tous les commerces et transports. Bel appartement de type 2 DE 43 m² en RDC, meublé et refait entièrement Il se compose d'une entrée avec grand placard, un séjour aménagé, une cuisine meublé et enterrement équipée (lave vaisselle, four, micro-onde et plaque induction), salle d'eau avec machine à laver, wc séparé et chambre avec literie et placard aménagé. Balcon, 1 place de parking, eau froide comprise dans les charges Logement disponible immédiatement.
À louer, appartement T2 meublé d'environ 38 m² situé au 2ème étage d'une résidence sécurisée et au calme, route de Launaguet à Toulouse. Ce logement en très bon état se compose d'une entrée, d'un séjour lumineux avec un agréable balcon, d'une cuisine ouverte entièrement équipée (plaques, hotte, four, réfrigérateur, lave linge), d'une chambre avec salle de douche attenante. Une place de parking privative en sous-sol complète ce bien. La résidence est récente, calme et dispose d'un accès sécurisé. L'appartement est disponible immédiatement. Contactez-nous pour organiser une visite.
Dans une superbe résidence neuve de standing signée greencity, nous vous proposons à la location un appartement t2 au 1er étage de 46,10 m² avec terrasse de 9 m², 1 parking située au 56-58 rue de bordelongue à launaguet, cette résidence est dans un endroit calme et résidentiel pour un cadre de vie idéal. L'appartement dispose d'un beau séjour lumineux avec sa cuisine ouverte totalement équipée et aménagée (plaques, hotte et réfrigérateur). Le séjour donne sur une belle terrasse en bois. Le coin nuit quant à lui dispose d'une chambre avec placard et d'une salle de bain, avec baignoire, meuble vasque, séche serviette et lave linge fourni. Pour compléter ce bien, vous disposez d'une place de parking. Dpe non requis avant livraison les informations sur les risques auxquels ce bien est exposé sont disponibles sur le site géorisques : loyer : 618,00 euros hc + 60,00 euros loyer parking + 80,00 € de provisions pour charges qui comprennent : l'entretien et l'électricité des parties communes, provisions d'eau froide. Révision annuelle des charges. Depot de garantie : 618,00 euros. Depot de garantie parking : 60,00 euros honoraires de location : 599,30 euros (dont 138,30 euros pour edle) disponible.
Appartement meuble - quartier sept deniers pour plus de renseignements, n'hésitez pas à joindre mme guignolle jennifer au o7.83. 78.60. 14 par sms ou par mail contact@belotti-immobilier.fr toulouse (quartier sept deniers), 53 chemin de la garonne, dans une petite résidence sécurisée de standing avec piscine, t3 meublé de 62 m² en rdc avec terrasse bois, 1 place de parking aérienne et 1 place de parking au sous sol. Appartement en très bon état, avec une entrée, un wc séparé, une cuisine ouverte sur le séjour, une salle de bains, deux chambres. Décoration moderne, équipements de qualité, fenêtres double vitrage, clim réversible, sol en parquet, rangements. Disponible tout de suite. Loyer mensuel 1000.00 euros + 90.00 euros de provisions sur charges comprenant l'eau froide et les charges de copropriété soit 1090.00 euros charges comprise. 552.87euros ttc d'honoraires à la charge du locataire au titre des honoraires de visites, de constitution de dossier, de rédaction du bail, ainsi que 122.86euros ttc pour l'état des lieux d'entrée soit un total de 675.73euros ttc (payable en 3 fois) les informations sur les risques auxquels ce bien est exposé sont disponibles sur le site géorisques : .
Toulouse 31200 - 7 / 9 rue de Séville / lotissement pavillonnaire T1 récent en rez de jardin de 28,96 m² comprenant une entrée, salon / cuisine de 17 m² équipée (plaques vitrocéramiques, hotte, frigo, rangements), desservant sur une terrasse bois et son jardin privatif de 10,00 m². Salle d'eau avec douche. Résidence récente sécurisée / Chauffage individuelle au gaz Le montant moyen estimé des dépenses annuelles d’énergie pour un usage standard est de 71,64 euros (année de référence des prix de l’énergie utilisés pour établir cette estimation : 2011) Les informations sur les risques auxquels ce bien est exposé sont disponibles sur le site Géorisques : Loyer : 394,79 € + 34,00 € de charges Dépot de garantie : 394,79 € Honoraires d'agence : 376.48 € dont 86.88€ pour l'état des lieux. DISPONIBLE LE 17 / 04 / 26.

Hausse des charges, travaux obligatoires, énergie : la copropriété devient un enjeu majeur en 2026.

Le logement parfait n’existe pas… et c’est souvent ce qui bloque votre projet. Découvrez pourquoi accepter l’imperfection permet d’acheter mieux et plus sereinement.

Le marché du logement neuf traverse une période de transition. Entre baisse des ventes, prix élevés et évolution des taux immobiliers, acheter un logement neuf en 2026 soulève de nombreuses questions. Analyse du marché et conseils pour les acheteurs.