Logo LSI sombre

Terrain  586 m² à vendre à Agde (34300)
Photo N° 2
Photo N° 3
Photo N° 4
Photo N° 5
5

Vente terrain 586 m² Agde (34300)

850 000 €

GRAU D'AGDE(34) PROJET CONSTRUCTION VILLA CONTEMPORAINE 4 FACES, TERRAIN 586 m2, ACCES MER PROCHE

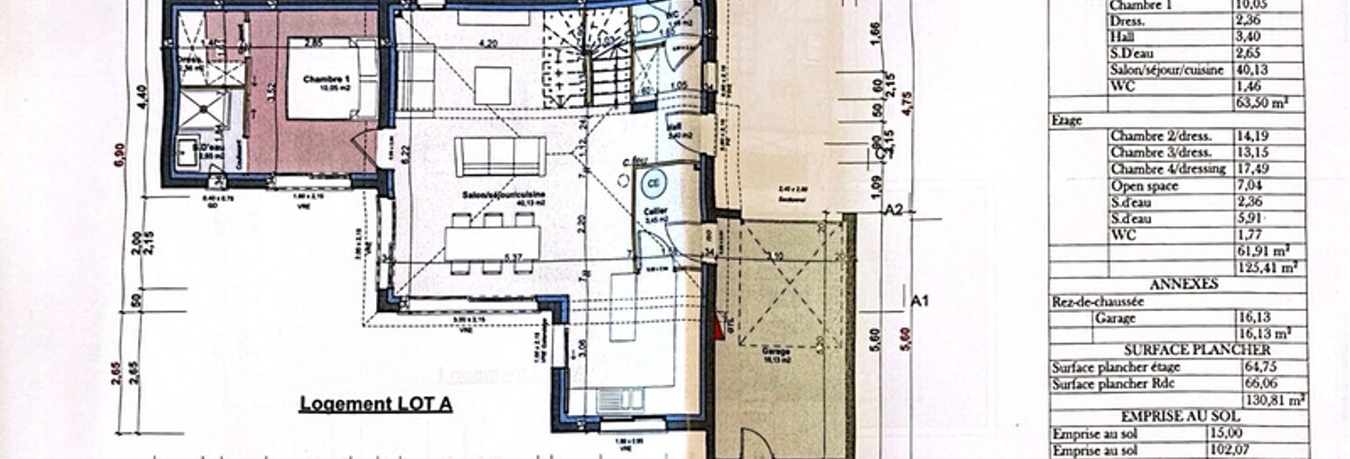
Vous rêvez de bâtir votre villa contemporaine au coeur d'un environnement calme, verdoyant et résidentiel. Le projet est réalisé par un architecte renommé qui saura prendre en compte toutes vos aspirations afin de créer un lieu de vie unique à votre image. Description du projet de construction le projet présenté comprend la construction d'une villa contemporaine p5 en r + 1, d'une surface habitable de 125 m² avec garage. Situé dans l'un des quartiers le plus prisé du grau d'agde, ce terrain viabilisé (piscinable) d'environ 586 m² constitue une opportunité rare pour un projet de construction. Le permis de construire, déjà validé et purgé de tout recours, garantit un démarrage rapide et sécurisé des travaux. Implanté au sein d'une impasse calme et verdoyante, le site bénéficie d'un cadre résidentiel de qualité, à seulement 500 mètres à pied des plages et à proximité immédiate de l'ensemble des commodités. Ce projet réunit emplacement stratégique, environnement privilégié et sécurité administrative, des atouts majeurs pour une opération immobilière de standing. Description du bien rez -de- chaussee - vous disposerez d'un salon / séjour et cuisine ouverte d'environ 40 m². Cote nuit - une chambre avec dressing et salle d'eau - un cellier et un wc séparé viennent parfaire le niveau 1er etage - trois chambres spacieuses dotées de dressing - deux salles d'eau - un open space - un wc separé stationnement privatif un garage d'environ 16 m² et possibilité de stationner deux véhicules supplémentaires sur la propriété. Emplacement privilegie proche des plages et de toutes les commodités, secteur calme et résidentiel. ( lot- a) une opportunité exceptionnelle à ne pas manquer, n'hésitez pas à me contactez pour organiser une visite, pour que votre rêve devienne une réalité. M. Vermot de boisrolin pascal au 06 33 02 41 32 les honoraires sont à la charge du vendeur. Les informations sur les risques auxquels ce bien est exposé sont disponibles sur le site géorisques : www. Georisques. Gouv. Fr. Réseau immobilier capifrance - votre agent commercial (rsac n°511 800 104 - greffe de montpellier) pascal vermot-de-boisrolin entrepreneur individuel 06 33 02 41 32 - réf. 914339.

Caractéristiques

Les plus de cette annonce
  • Garage
  • Jardin
  • Standing
  • Calme
Pièces
  • Salle d'eau
  • Cuisine ouverte

A propos du prix de ce terrain

  • Prix : 850 000 € (soit 1 451 € / m²)
  • Honoraires à charge vendeur

À propos de cette annonce

Mise en ligne:

Dernière mise à jour:

Référence de l'annonce: 340938920436
Capifrance agent mandataire à Castelnau-le-Lez (34170)
Capifrance
Afficher le numéro

Terrain similaires à acheter Agde (34300)

Terrain  850000 €
850 000 €

Terrain 586 m²

Agde (34300)

Vous rêvez de bâtir votre villa contemporaine au coeur d'un environnement calme, verdoyant et résidentiel. Le projet de construction présenté par un architecte renommé qui saura prendre en compte toutes vos aspirations afin de créer un lieu de vie unique à votre image. Description du projet de construction le projet présenté comprend la construction d'une villa contemporaine p5 en r + 1, d'une surface habitable de 121 m² avec garage. Situé dans l'un des quartiers le plus prisé du grau d'agde, ce terrain viabilisé (piscinable) d'environ 586 m² constitue une opportunité rare pour un projet de construction. Le permis de construire, déjà validé et purgé de tout recours, garantit un démarrage rapide et sécurisé des travaux. Implanté au sein d'une impasse calme et verdoyante, le site bénéficie d'un cadre résidentiel de qualité, à seulement 500 mètres à pied des plages et à proximité immédiate de l'ensemble des commodités. Ce projet réunit emplacement stratégique, environnement privilégié et sécurité administrative, des atout majeurs pour une opération immobilière de standing. Description du bien rez-de-chaussee - vous disposerez d'un salon / séjour et cuisine ouverte d'environ 40 m². Cote nuit - une chambre avec dressing et salle d'eau - un wc séparé et un cellier viennent parfaire le niveau 1er etage - trois chambres spacieuses dotées de dressing - deux salles d'eau - un open space - un wc séparé stationnement privatif un garage d'environ 17 m² emplacement privilegie proche des plages et de toutes les commodités, secteur calme et résidentiel. ( lot-b) une opportunité exceptionnelle à ne pas manquer, n'hésitez pas à me contactez pour organiser une visite, pour que votre rêve devienne une réalité. M. Vermot de boisrolin pascal au 06 33 02 41 32 les honoraires sont à la charge du vendeur. Les informations sur les risques auxquels ce bien est exposé sont disponibles sur le site géorisques : www. Georisques. Gouv. Fr. Réseau immobilier capifrance - votre agent commercial (rsac n°511 800 104 - greffe de montpellier) pascal vermot-de-boisrolin entrepreneur individuel 06 33 02 41 32 - réf. 914349.

À voir pour le même budget

Terrain  850000 €
850 000 €

Terrain 586 m²

Agde (34300)

Vous rêvez de bâtir votre villa contemporaine au coeur d'un environnement calme, verdoyant et résidentiel. Le projet de construction présenté par un architecte renommé qui saura prendre en compte toutes vos aspirations afin de créer un lieu de vie unique à votre image. Description du projet de construction le projet présenté comprend la construction d'une villa contemporaine p5 en r + 1, d'une surface habitable de 121 m² avec garage. Situé dans l'un des quartiers le plus prisé du grau d'agde, ce terrain viabilisé (piscinable) d'environ 586 m² constitue une opportunité rare pour un projet de construction. Le permis de construire, déjà validé et purgé de tout recours, garantit un démarrage rapide et sécurisé des travaux. Implanté au sein d'une impasse calme et verdoyante, le site bénéficie d'un cadre résidentiel de qualité, à seulement 500 mètres à pied des plages et à proximité immédiate de l'ensemble des commodités. Ce projet réunit emplacement stratégique, environnement privilégié et sécurité administrative, des atout majeurs pour une opération immobilière de standing. Description du bien rez-de-chaussee - vous disposerez d'un salon / séjour et cuisine ouverte d'environ 40 m². Cote nuit - une chambre avec dressing et salle d'eau - un wc séparé et un cellier viennent parfaire le niveau 1er etage - trois chambres spacieuses dotées de dressing - deux salles d'eau - un open space - un wc séparé stationnement privatif un garage d'environ 17 m² emplacement privilegie proche des plages et de toutes les commodités, secteur calme et résidentiel. ( lot-b) une opportunité exceptionnelle à ne pas manquer, n'hésitez pas à me contactez pour organiser une visite, pour que votre rêve devienne une réalité. M. Vermot de boisrolin pascal au 06 33 02 41 32 les honoraires sont à la charge du vendeur. Les informations sur les risques auxquels ce bien est exposé sont disponibles sur le site géorisques : www. Georisques. Gouv. Fr. Réseau immobilier capifrance - votre agent commercial (rsac n°511 800 104 - greffe de montpellier) pascal vermot-de-boisrolin entrepreneur individuel 06 33 02 41 32 - réf. 914349.

Terrain  725000 €
725 000 €

Terrain 1600 m²

Agde (34300)

Iad France - Michael Travert vous propose : Opportunité Rare - Terrain à Bâtir de 1600 m² à Agde, Idéal pour Projet de Construction Résidentielle Permis déjà posé et accepté pour la construction de 18 logements. Sa localisation à Agde, réputée pour son charme méditerranéen et son atmosphère conviviale. agréable au quotidien. Profitez L a proximité des commerces, des écoles, des transports en commun et des commodités essentielles pour faciliter votre projet. Ne laissez pas passer cette opportunité unique de devenir propriétaire d'un terrain à bâtir à Agde. Contactez-nous dès maintenant pour en savoir plus et commencer à réaliser votre projet de construction. Honoraires d'agence à la charge du vendeur. Bien non soumis au DPE. Les informations sur les risques auxquels ce bien est exposé, y compris l'obligation légale de débroussaillement, sont disponibles sur le site Géorisques : La présente annonce immobilière a été rédigée sous la responsabilité éditoriale de M Michael Travert mandataire indépendant en immobilier (sans détention de fonds), agent commercial de la SAS I@D France immatriculé au RSAC de Bézier sous le numéro 412938268, titulaire de la carte de démarchage immobilier pour le compte de la société I@D France SAS.

Terrain  1020000 €
1 020 000 €

Terrain 4077 m²

Agde (34300)

Votre agence 123webimmo l'immobilier au meilleur prix vous présente : Agde à 6 minutes des plages : terrain d'exception hors lotissement ? Secteur très faiblement urbanisable (5 constructions / hectare) Situation privilégiée : Située dans un environnement naturel préservé, cette adresse rare et confidentielle au centre du triangle Agde / Cap / Grau offre calme et proximité des commodités : écoles et commerces à 5 min, accès rapide à l'A9, aéroports de Béziers / Montpellier, gare TGV Agde à 10 min. La plus belle plage de sable fin est à 6 min, ainsi que le Golf International 27 trous. Le littoral de la commune s'étend sur 14 km, offrant toutes les diversités de la Méditerranée. Le secteur est strictement réglementé, il garantit faible densité, intégration paysagère parfaite, et cadre de vie exclusif. Cadre naturel remarquable : Exposé sud-ouest, le site bénéficie d'une luminosité optimale. Il offre une vue panoramique dégagée sur la Méditerranée à 3 000 mètres, et sur les Pyrénées. En limite sud, un terrain non constructible planté d'oliviers assure une vue imprenable, une intimité durable et un environnement bucolique préservé. Constructibilité validée : Un certificat d'urbanisme opérationnel a été délivré. La faisabilité est déjà confirmée pour une villa haut de gamme aux critères suivants : ? Emprise au sol : 260 m² (jusqu'à 800 m² possibles) ? R+1 autorisé (rez-de-chaussée + étage) ? Liberté architecturale : style contemporain ou traditionnel Aménagements autorisés : piscine (y compris à débordement), pool house, garage intégré ou indépendant, dépendances soignées. Liberté totale hors lotissement, aucune contrainte de copropriété ni projet groupé. Viabilisation réseaux en cours de finalisation (eau potable, électricité, télécoms, assainissement collectif), opérationnels avant l'acte authentique. Les atouts majeurs : ? Surface généreuse ? Exposition sud-ouest idéale ? Vue mer + montagnes ? Environnement protégé en limite ? Secteur recherché d'Agde, pratique et proche de tout ? Très faible densité urbaine ? Potentiel rare pour projet de haut standing Une opportunité exceptionnelle et confidentielle pour une clientèle exigeante, exclusivement chez 123WEBIMMO AGDE Les informations sur les risques auxquels ce bien est exposé sont disponibles sur le site du gouvernement : .