1 résultats
Idéal premier achat ou investisseur ! À proximité du centre ville et des transports, maison de ville offrant un joli potentiel. Vous pourrez profiter du séjour-cuisine lumineux ouvrant sur un jardinet sans vis-à-vis, un bureau, une chambre avec placard et une salle d'eau. À saisir vite ! Honoraires inclus dans le prix : 3.75%.
Autres annonces à proximité de Martignas-sur-Jalle (33127) avec vos critères
Maison construite en 2021 qui bénéficie d'un cadre paisible et d'un environnement située au calme. À l'intérieur, cette maison de 75 m² environ propose un agencement optimal avec un séjour / cuisine lumineux, 2 chambres à l'étage dont une avec balcon, une salle d'eau, 2 toilettes séparés, terrasse. À l'extérieur, cette résidence comprend 1 place de parking privative, assurant praticité et confort pour les résidents. La résidence sécurisée est équipée d'un portail électrique et d'un système de vidéo surveillance, garantissant la tranquillité et la sécurité des habitants. À proximité de l'école maternelle la Garenne et l'école élémentaire Michel Montaigne. Super emplacement, à proximité immédiate des commerces et transports ligne de bus n° G 37-84 Euromédoc Le bien comprend 2 lots, et il est situé dans une copropriété de 11 lots (les charges courantes annuelles moyennes de copropriété sont de 360 € et le syndicat des copropriétaires ne fait pas l'objet d'une procédure citée à l'article L. 721-1 du code de la construction et de l'habitation). Les informations sur les risques auxquels ce bien est exposé sont disponibles sur le site Géorisques : Prix de vente : 241 000 € Honoraires charge vendeur Contactez votre conseiller SAFTI : Grégory AMATO, Tél. : 06 09 10 31 46, E-mail : gregory.amato@safti.fr - EI - Agent commercial immatriculé au RSAC de BORDEAUX sous le numéro 531 136 760.
Idéalement située dans le quartier des Lanciers, maison comprenant une entrée, séjour avec cuisine ouverte, deux chambres et deux points d'eau, avec jardin au calme. Actuellement louée. Honoraires inclus dans le prix : 6%.
À vendre louée A proximité immédiate de Saint-Médard-en-Jalles, découvrez cette maison de ville de 64 m², actuellement louée 970 € par mois, qui vous assure un revenu locatif immédiat et sécurisé. Proche des commerces, des écoles et de la ligne G, elle bénéficie d'un emplacement recherché dans un quartier convivial et dynamique. De plain-pied, elle se compose d'une pièce de vie lumineuse avec cuisine ouverte, de deux chambres confortables et d'une salle d'eau fonctionnelle. Vous profiterez également d'une cour privative de 45 m², rare pour ce type de bien, qui garantit à ses occupants un espace extérieur agréable. Cette maison représente une bonne rentabilité, idéale pour diversifier ou renforcer votre patrimoine immobilier. Les informations sur les risques auxquels ce bien est exposé sont disponibles sur le site Géorisques : Prix de vente : 224 000 € Honoraires charge vendeur Contactez votre conseiller SAFTI : Céline CAZEAUX, Tél. : 06 95 09 36 97, E-mail : celine.cazeaux@safti.fr - EI - Agent commercial immatriculé au RSAC de Bordeaux sous le numéro 911 072 122.

Recevez en temps réel les dernières annonces correspondant à votre recherche
Maison de 3 pièces (100 m²) en vente à Saint-Médard-en-JallesEn vente à Saint-Médard-en-Jalles (33160) : maison neuve 3 pièces de 100 m² et de 420 m² de terrain. Conçue de plain-pied, elle inclut quatre chambres, une cuisine et deux salles de bains. À proximité : gares, établissements scolaires, crèche, commerces, boulangeries, boucherie-charcuterie, poissonnerie et bureau de poste. Marché Place de la république le samedi matin. Accès autoroute A630 à 6 km. Océan Atlantique à 20 km. Cette maison de 3 pièces est proposée à l'achat pour 369 000 €.Prenez contact avec Sébastien CADIX (06 88 58 98 25) pour toute information sur la maison. Maisons de la Côte Atlantique Bordeaux vous accompagne dans tous vos projets immobiliers et dans toutes vos démarches. Les informations sur les risques auxquels ce bien est exposé sont disponibles sur le site Géorisques : .
Située dans un quartier résidentiel calme, à seulement 5 minutes du centre-ville de saint-médard-en-jalles, cette charmante maison de plain-pied vous séduira par son confort et sa rénovation de qualité. ? Caractéristiques du bien : superficie habitable de 90 m² sur sous-sol de 50 m² cuisine équipée moderne et fonctionnelle séjour lumineux agrémenté d'une cheminée chaleureuse deux vastes chambres confortables un bureau idéal pour le télétravail une salle de bain élégante extérieur : terrain piscinable clos de 600 m², idéal pour la détente accès au garage en sous-sol par une rampe pratique prestations : double vitrage pour une isolation optimale chaudière au gaz de ville maison entièrement restaurée avec goût et matériaux de qualité ce bien allie charme, confort et fonctionnalité, dans un cadre résidentiel privilégié. Pour plus d'informations ou organiser une visite, contactez sans attendre jean-marie reix, conseiller safti, qui se fera un plaisir de vous accompagner dans la découverte de cette maison. Les informations sur les risques auxquels ce bien est exposé sont disponibles sur le site géorisques : prix de vente : 339 000 € honoraires charge vendeur contactez votre conseiller safti : jean-marie reix, tél. : 06 09 73 29 14, e-mail : jeanmarie.reix@safti.fr - ei - agent commercial immatriculé au rsac de libourne sous le numéro 487 763 104.
Maison de 3 pièces (49 m²) à vendre à Saint-Médard-en-JallesContactez Sylvie SERRA (O6-23-58-84-08) À découvrir à Saint-Médard-en-Jalles (33160) : maison neuve 3 pièces à vendre. Surface de 49 m² sur 400 m² de terrain. Elle comporte trois chambres, une cuisine et deux salles de bains. À proximité : gares, établissements scolaires, crèche, commerces, boulangeries, poissonnerie, bureau de poste et épiceries. Marché Place de la république le samedi matin. Autoroute A630 à 6 km. Océan Atlantique à 20 km. Cette maison de 3 pièces est à vendre pour la somme de 278 000 €.N'hésitez pas à prendre contact avec notre agence (Sylvie SERRA : O6-23-58-84-08) pour plus de renseignements sur la maison ou sur les démarches à suivre. Maisons de la Côte Atlantique Castelnau-de-Médoc est là pour vous accompagner dans tous vos projets immobiliers. Les informations sur les risques auxquels ce bien est exposé sont disponibles sur le site Géorisques : .
Entre Gajac et le centre ville, à proximité de toutes les commodités, maison neuve de 67 m² sur env. 125 m² de parcelle, livraison prévue pour Septembre 2025. Elle se compose d'une entrée, cellier / buanderie, salon séjour cuisine US équipée aménagée, 2 chambres de belle taille, wc et salle d'eau. Prestations : maison neuve - climatisation réversible dans salon séjour cuisine et les chambres - norme RE2020. Les informations sur les risques auxquels ce bien est exposé sont disponibles sur le site Géorisques : georisques. gouv. fr (5.67 % d'honoraires TTC à la charge de l'acquéreur.).
Située dans le quartier recherché de Cérillan à Saint-Médard-en-Jalles, cette agréable maison individuelle de plain-pied, d'environ 50 m², offre un cadre de vie calme et pratique, à deux pas du centre-ville, des commerces, des écoles, des transports et de la forêt. Elle se compose, d'une entrée avec placards de rangement, d'une belle pièce de vie lumineuse avec cuisine ouverte entièrement aménagée et équipée, idéale pour des moments conviviaux. La chambre, spacieuse et naturellement éclairée, dispose d'un grand dressing offrant un confort appréciable au quotidien. La maison comprend également une salle de bain fonctionnelle avec douche rénovée et WC. Pour prolonger l'espace de vie, une véranda généreuse s'ouvre sur une terrasse et un jardin sans vis-à-vis, véritable havre de paix pour profiter du plein air en toute tranquillité. Vous bénéficierez en plus d'un atelier attenant, ainsi que d'une cave en sous-sol, parfaits pour du stockage, du bricolage ou un projet d'aménagement. Grâce à ses huisseries double vitrage et à son environnement privilégié, cette maison représente une opportunité rare sur le secteur, idéale pour un premier achat, un investissement ou pour ceux qui recherchent la sérénité à proximité de toutes les commodités. Les informations sur les risques auxquels ce bien est exposé sont disponibles sur le site Géorisques : Prix de vente : 199 900 € Honoraires charge vendeur Contactez votre conseiller SAFTI : Joanna BLANCHARD, Tél. : 06 42 12 57 41, E-mail : joanna.blanchard@safti.fr - EI - Agent commercial immatriculé au RSAC de Bordeaux sous le numéro 994027399.
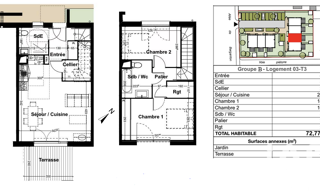
Imaginez votre futur chez-vous dans un environnement calme et agréable. Cette maison neuve en Vente en l'État Futur d'Achèvement offre une surface de 71,81 m² sur un terrain de 48 m², pensée pour allier confort et modernité. Au rez-de-chaussée, vous profitez d'un séjour lumineux ouvert sur la cuisine (à aménager selon vos envies), d'un cellier pratique et d'une salle d'eau avec toilette. À l'étage, deux belles chambres avec parquet stratifié, une salle de bain avec toilette ainsi que des placards aménagés complètent cet espace nuit chaleureux. Les prestations sont au rendez-vous : Carrelage dans toutes les pièces (sauf chambres en parquet) Peinture lisse sur les murs Chauffage au gaz pour un confort optimal Terrasse en dalles sur plots de 8,40 m² Dalle béton dans le jardin pour un futur chalet Deux places de stationnement privatives Livraison prévue premier trimestre 2026, laissez-vous le temps de vous projeter dans un cadre de vie agréable, avec un logement moderne et bien pensé. Un atout : la cuisine est à votre charge pour créer un espace qui vous ressemble ! Contactez-moi dès aujourd'hui pour réserver cette opportunité et concrétiser votre projet immobilier. Le bien comprend 18 lots, et il est situé dans une copropriété de 21 lots (il n'y a pas de charges courantes liées à la copropriété et le syndicat des copropriétaires ne fait pas l'objet d'une procédure citée à l'article L. 721-1 du code de la construction et de l'habitation). Les informations sur les risques auxquels ce bien est exposé sont disponibles sur le site Géorisques : Prix de vente : 339 200 € Honoraires charge vendeur Contactez votre conseiller SAFTI : Orélia VALLARINO, Tél. : 07 60 84 56 16, E-mail : orelia.vallarino@safti.fr - EI - Agent commercial immatriculé au RSAC de Libourne sous le numéro 980 538 730.
Située dans un environnement calme et agréable, cette maison neuve proposée en Vente en l'État Futur d'Achèvement développe une surface de 72,46 m² sur une parcelle de 40 m² elle a été pensée pour offrir un équilibre parfait entre fonctionnalité, confort et modernité Au rez-de-chaussée vous trouverez un séjour lumineux ouvert sur une cuisine à aménager selon vos envies un cellier fonctionnel ainsi qu'une salle d'eau avec toilette À l'étage deux chambres avec parquet stratifié une salle de bain un toilette séparé et des placards aménagés viennent structurer un espace nuit confortable et bien agencé Les prestations sont à la hauteur des attentes actuelles Carrelage dans toutes les pièces sauf dans les chambres Peinture lisse sur les murs Chauffage au gaz Terrasse en dalles sur plots de 8,40 m² Dalle béton dans le jardin pour l'installation éventuelle d'un chalet Deux places de stationnement privatives Ce bien s'adresse aussi bien à des occupants souhaitant un cadre de vie moderne qu'à des investisseurs à la recherche d'un produit locatif qualitatif sur un secteur dynamique La livraison est prévue au premier trimestre 2026 vous permettant d'anticiper votre projet immobilier en toute sérénité La cuisine est à votre charge vous offrant ainsi la liberté de créer un espace qui vous ressemble Pour en savoir plus ou réserver cette opportunité contactez-moi sans attendre Le bien comprend 18 lots, et il est situé dans une copropriété de 21 lots (il n'y a pas de charges courantes liées à la copropriété et le syndicat des copropriétaires ne fait pas l'objet d'une procédure citée à l'article L. 721-1 du code de la construction et de l'habitation). Les informations sur les risques auxquels ce bien est exposé sont disponibles sur le site Géorisques : Prix de vente : 339 200 € Honoraires charge vendeur Contactez votre conseiller SAFTI : Orélia VALLARINO, Tél. : 07 60 84 56 16, E-mail : orelia.vallarino@safti.fr - EI - Agent commercial immatriculé au RSAC de Libourne sous le numéro 980 538 730.
Iad France - Thibaut Faure vous propose : St Jean D'Illac - Le Las A proximité des écoles, dans un secteur calme et résidentiel Maison mitoyenne de 73 m² env de type 3 Elle se compose au rdc, d'une entrée, un cellier, une salle d'eau avec wc, une pièce de vie avec salon-séjour, cuisine ouverte A l'étage : dgt, 2 chambres, salle de bain et wc La presente annonce immobiliere vise 3 lots situés dans une copropriété de 21 lots au total et ne faisant l'objet d'aucune procédure en cours citée à l'article L. 721-1 du code de la construction et de l'habitation. Montant moyen mensuel de charges déclaré par le vendeur : 50€ par mois (soit 600 € annuel). Honoraires d'agence à la charge du vendeur. Bien non soumis au DPE. Les informations sur les risques auxquels ce bien est exposé, y compris l'obligation légale de débroussaillement, sont disponibles sur le site Géorisques : La présente annonce immobilière a été rédigée sous la responsabilité éditoriale de M Thibaut Faure mandataire indépendant en immobilier (sans détention de fonds), agent commercial de la SAS I@D France immatriculé au RSAC de bordeaux sous le numéro 804099117, titulaire de la carte de démarchage immobilier pour le compte de la société I@D France SAS.
Imaginez votre futur chez-vous dans un environnement calme et agréable. Cette maison neuve en Vente en l'État Futur d'Achèvement offre une surface de 75,59 m² sur un terrain de 110 m², pensée pour allier confort et modernité. Au rez-de-chaussée, vous profitez d'un séjour lumineux ouvert sur la cuisine (à aménager selon vos envies), d'un cellier pratique et d'une salle d'eau avec toilette. À l'étage, deux belles chambres avec parquet stratifié, une salle de bain avec toilette ainsi que des placards aménagés complètent cet espace nuit chaleureux. Les prestations sont au rendez-vous : Carrelage dans toutes les pièces (sauf chambres en parquet) Peinture lisse sur les murs Chauffage au gaz pour un confort optimal Terrasse en dalles sur plots de 8,40 m² Dalle béton dans le jardin pour un futur chalet Deux places de stationnement privatives Livraison prévue premier trimestre 2026, laissez-vous le temps de vous projeter dans un cadre de vie agréable, avec un logement moderne et bien pensé. Un atout : la cuisine est à votre charge pour créer un espace qui vous ressemble ! Contactez-moi dès aujourd'hui pour réserver cette opportunité et concrétiser votre projet immobilier. Le bien comprend 18 lots, et il est situé dans une copropriété de 21 lots (il n'y a pas de charges courantes liées à la copropriété et le syndicat des copropriétaires ne fait pas l'objet d'une procédure citée à l'article L. 721-1 du code de la construction et de l'habitation). Les informations sur les risques auxquels ce bien est exposé sont disponibles sur le site Géorisques : Prix de vente : 349 800 € Honoraires charge vendeur Contactez votre conseiller SAFTI : Orélia VALLARINO, Tél. : 07 60 84 56 16, E-mail : orelia.vallarino@safti.fr - EI - Agent commercial immatriculé au RSAC de Libourne sous le numéro 980 538 730.
Iad France - Pierre Palesi (06 79 50 79 33) vous propose : Au coeur de Saint Jean di'illlac, dans le quartier du Las, proche xes écoles, venez découvrir ce programme neuf. Investisseur ou résidence principale, cette maison de 72 m² environ au coeur d'un petit programme à taille humaine et réalisé par un promoteur départemental reconnu pour la qualité de ses programmes Honoraires d’agence à la charge du vendeur. Bien non soumis au DPE. Les informations sur les risques auxquels ce bien est exposé sont disponibles sur le site Géorisques : . La présente annonce immobilière a été rédigée sous la responsabilité éditoriale de M. Pierre Palesi EI (ID 7792), mandataire indépendant en immobilier (sans détention de fonds), agent commercial de la SAS I@D France immatriculé au RSAC de Bordeaux sous le numéro 793425182, titulaire de la carte de démarchage immobilier pour le compte de la société I@D France SAS. Retrouvez tous nos biens sur notre site internet. .
Le centre, commerces, tram et bus accessibles à pied. Agréable maison de plain-pied offrant : Une véranda d'accueil, séjour avec cuisine ouverte, deux chambres, salle d'eau, wc, patio une pièce polyvalente de 13 m² (Buanderie, atelier, chambre d'appoint etc. ). Chf au sol pompe à chaleur. Sur environ 500 m² de terrain avec chalet Proposition d'aménagement virtuel non contractuelle en dernière photo. Honoraires inclus dans le prix : 5.31%.
Mérignac St Augustin - Echoppe de 1927 de plain pied avec entrée, séjour, cuisine, 2 chambres, espace bureau, salle de bains et wc. Le bien comprend un grand garage de 25 m² et une dépendance de 25 m² en plus dans un environnement calme, arboré et proche du centre de St Augustin et du tram A. Honoraires inclus dans le prix : 5%.
Contactez angelina fondecave o7; 76; 18; o2; 21 pour toute information sur le terrain ou sur les démarches à suivre. En vente à mérignac (33700) : maison neuve 3 pièces de 92 m² et de 410 m² de terrain. Elle propose trois chambres, une cuisine et une salle de bains. À proximité : gares, école primaire ferdinand buisson, crèches, tennis, bibliothèque, commerces et épicerie. Accès autoroute a630 à 1 km. Océan atlantique à 17 km. Le prix de vente de cette maison de 3 pièces est de 510 000 €. Les informations sur les risques auxquels ce bien est exposé sont disponibles sur le site géorisques : .
Iad France - Karine Vasseur vous propose : Maison de plain-pied à Chemin Long - Calme et à proximité des commodités Située dans le quartier résidentiel calme de Chemin Long, cette maison de plain-pied est idéale pour un couple recherchant la tranquillité tout en restant proche des commodités. À quelques pas des commerces, boulangeries et restaurants du bourg, ainsi que du centre commercial Mérignac Soleil, avec son tramway (ligne A) à proximité, la maison est également desservie par les lignes de bus 30,33 et 20. Le quartier est pratique pour les jeunes familles avec une assistante maternelle à proximité, une crèche à deux pas, et l’école Rosa Bonheur accessible en seulement 5 minutes à pied. La maison, comprend un salon / salle à manger avec une double exposition Est / Ouest, une cuisine séparée où l’on peut prendre les repas en famille, deux chambres, une salle de bains et des toilettes séparées. Le garage attenant, peut être aménagé en chambre supplémentaire. Une surélévation est également possible. Les photos d'aménagement virtuel peuvent vous aider à vous projeter et imaginer les travaux à faire pour avoir une maison qui vous ressemble. Le jardin, exposé Ouest, est sans vis-à-vis et idéal pour profiter des journées ensoleillées en toute intimité. Enfin, la proximité de la rocade facilite vos déplacements tout en préservant le calme du quartier. Contactez moi pour échanger sur votre projet immobilier et convenir d'une visite si ce bien y répond. Honoraires d'agence à la charge du vendeur. Information d'affichage énergétique sur ce bien : classe ENERGIE D indice 237 et classe CLIMAT B indice 7. Les informations sur les risques auxquels ce bien est exposé, y compris l'obligation légale de débroussaillement, sont disponibles sur le site Géorisques : . La présente annonce immobilière a été rédigée sous la responsabilité éditoriale de Mme Karine Vasseur mandataire indépendant en immobilier (sans détention de fonds), agent commercial de la SAS I@D France immatriculé au RSAC de BORDEAUX sous le numéro 829446335, titulaire de la carte de démarchage immobilier pour le compte de la société I@D France SAS.
Si vous préférez une maison plutôt qu'un appartement, celle-ci vous attend. Avec une surface de 55 m² évolutifs, cette maison dispose de trois chambres et d'un salon séjour lumineux, le tout donnant sur un terrain spacieux de 1000 m². Vivez au cœur de la nature proche de bordeaux et réalisez vos envies ! Ne tardez pas à venir faire connaissance. Votre téléphone est à portée de main ? Contactez-moi pour plus d'informations et pour organiser une visite. Les honoraires sont à la charge du vendeur. Logement à consommation énergétique excessive : classe g les informations sur les risques auxquels ce bien est exposé sont disponibles sur le site géorisques : www. Georisques. Gouv. Fr. Réseau immobilier capifrance - votre agent commercial (rsac n°942 096 397 - greffe de bordeaux) eric paradis-hiaré entrepreneur individuel 06 23 73 23 83 - réf. 933157.
Merignac St Augustin, Arcachonnaise à réhabiliter entièrement ou la possibilité de construire sur une parcelle de 250 m². Joli emplacement proche du tramway, des écoles, des commerces et du centre de St Augustin / CHU. Proposition d'aménagement virtuel non contractuelle en dernière photo. Honoraires inclus dans le prix : 5.5%.
Situé dans le quartier recherché d'Arlac à Mérignac, ce bien de plain-pied de 90 m² sur 400 m² de terrain bénéficie d'un emplacement idéal, à deux pas du tram A, des commerces et des accès vers Bordeaux. Cette maison de plain-pied a été intelligemment divisée en deux espaces indépendants : un local professionnel de 55 m² côté rue, exposé plein sud avec stationnement aisé, et un T1 de 35 m² à l'arrière, disposant d'un agréable jardin privatif d'environ 300 m², sans vis-à-vis. ? Les deux entités disposent de compteurs séparés, assurant une gestion simple et autonome. Libre de toute occupation. En bon état général, avec climatisation et électricité récente, le bien offre de nombreuses possibilités : Investissement locatif, activité libérale, ou réunion des deux espaces pour créer une maison familiale de 90 m². Quartier calme et recherché, à visiter sans tarder ! Les informations sur les risques auxquels ce bien est exposé sont disponibles sur le site Géorisques : Prix de vente : 382 000 € Honoraires charge vendeur Contactez votre conseiller SAFTI : Alan LEGER, Tél. : 06 79 95 89 95, E-mail : alan.leger@safti.fr - EI - Agent commercial immatriculé au RSAC de BORDEAUX sous le numéro 943606822.
MERIGNAC - La Forêt Laissez vous charmer par cette jolie maison de ville 3 pièces entièrement rénovée, située à proximité des commerces, du tram, du BHNS, et autres commodités. Au sein d'une petite copropriété horizontale, elle comprend au rez-de-chaussée un séjour avec cuisine ouverte aménagée et équipée, un cellier, un placard et un agréable extérieur de 20 m² exposé plein sud. Vous retrouverez à l'étage un pallier desservant deux chambres avec dressing et une salle d'eau. Deux places privatives en stationnement aérien au sein d'un parking sécurisé complètent le tout. Elle n'attend plus que vous ! Le bien comprend 3 lots, et il est situé dans une copropriété de 6 lots (les charges courantes annuelles moyennes de copropriété sont de 960 € et le syndicat des copropriétaires ne fait pas l'objet d'une procédure citée à l'article L. 721-1 du code de la construction et de l'habitation). Les informations sur les risques auxquels ce bien est exposé sont disponibles sur le site Géorisques : Prix de vente : 269 000 € Honoraires charge vendeur Contactez votre conseiller SAFTI : Kelvin PHIRMIS, Tél. : 06 32 36 28 32, E-mail : kelvin.phirmis@safti.fr - EI - Agent commercial immatriculé au RSAC de Bordeaux sous le numéro 810 616 391.
Idéale pour des primo-accédants ou un couple de retraités en quête de tranquillité, cette maison de plain-pied située à Mérignac Beutre coche de nombreuses cases. Dans un quartier pavillonnaire calme, elle offre deux chambres, un séjour lumineux, une cuisine indépendante, une salle d'eau, des WC séparés, ainsi qu'un garage de 19 m² pouvant facilement accueillir une troisième chambre. Le jardin, bien orienté, permet d'imaginer un bel espace extérieur, voire l'installation d'une piscine pour profiter pleinement des beaux jours. Des travaux de rafraîchissement sont à prévoir, mais c'est justement ce qui permet de la façonner à son goût, avec modernité et confort. Bien placée entre Bordeaux et le Bassin, avec un accès rapide à l'aéroport, c'est une opportunité rare à ce prix sur le secteur. Un cocon à imaginer pour un nouveau départ en toute simplicité. Les informations sur les risques auxquels ce bien est exposé sont disponibles sur le site Géorisques : Prix de vente honoraires d'agence inclus : 285 000 € Prix de vente hors honoraires d'agence : 272 175 € Honoraires charge acquéreur : 12 825 € soit 4,71 % TTC de la valeur du bien hors honoraires Contactez votre conseiller SAFTI : Dorothée BOGO, Tél. : 06 14 31 01 21, E-mail : dorothee.bogo@safti.fr - EI - Agent commercial immatriculé au RSAC de BORDEAUX sous le numéro 513 445 122.
MERIGNAC. Nous vous proposons à la vente cette charmante maison de ville. Elle se compose d'une vaste pièce de vie avec un espace cuisine, salle à manger et salon, donnant sur une terrasse exposée Sud et un agréable jardinet. À l'étage, un palier dessert deux chambres avec dressing, une salle de bains et une petite lingerie. Un cellier et deux places de stationnements complètent le tout. À découvrir rapidement ! Référence agence : 1054.
EXCLUSIVITE. Située à SAINT AUBIN DE MEDOC à deux pas du centre, cette maison offre le calme d'un quartier prisé et la facilité d'une vie tout à pied. À seulement 5 minutes à pied du centre-ville et des transports (dont la ligne G), avec les écoles, commerces, services médicaux et commodités à portée immédiate, elle propose un quotidien facile dans une atmosphère paisible. À l'extérieur, vous profiterez d'un charmant jardin arboré entièrement clos et sans vis-à-vis pour vos moments de détente, ainsi que d'un espace de stationnement extérieur. Le garage attenant constitue un réel atout. Parfaitement entretenue et pensée pour le quotidien, la maison se compose au rez-de-chaussée d'une entrée avec placard, un salon / séjour bénéficiant d'une vue sur le jardin et la forêt, une cuisine équipée communiquant avec le garage, et WC. À l'étage, un dégagement distribue deux chambres aux volumes agréables avec placards intégrés, une salle d'eau avec grande douche et WC. Le parfait équilibre pour cette maison mitoyenne, entre confort, ville et tranquillité. Une opportunité à saisir ! Le bien comprend 1 lot, et il est situé dans une copropriété de 68 lots (les charges courantes annuelles moyennes de copropriété sont de 470 € et le syndicat des copropriétaires ne fait pas l'objet d'une procédure citée à l'article L. 721-1 du code de la construction et de l'habitation). Les informations sur les risques auxquels ce bien est exposé sont disponibles sur le site Géorisques : Prix de vente : 288 000 € Honoraires charge vendeur Contactez votre conseiller SAFTI : Magalie BOMPAN, Tél. : 06 77 24 13 51, E-mail : magalie.bompan@safti.fr - EI - Agent commercial immatriculé au RSAC de Bordeaux sous le numéro 942041518.