17 résultats
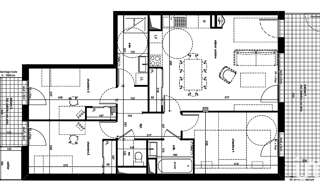
Iad France - Jean Roussilhe (07 82 55 71 64) vous propose : Gemini said Cet appartement de quatre pièces, situé au quatrième étage de la résidence LUMEN, propose une surface généreuse de 89 m² environ parfaitement agencée pour une vie de famille moderne. Grâce à son orientation sud-ouest, il bénéficie d'une luminosité exceptionnelle et d'un ensoleillement optimal durant l'après-midi et la soirée. La pièce de vie s'ouvre sur un balcon de plus de 17 m² environ, offrant un espace extérieur confortable pour profiter de la vue sur l'environnement résidentiel de Saint-Julien. L'utilisation de matériaux durables, tels que la façade à ossature bois, s'accompagne de finitions soignées : carrelage grand format, parquet dans les chambres et chauffage écologique par biomasse. Le confort est complété par des annexes pratiques, notamment deux places de parking sécurisées en sous-sol et un cellier privatif, facilitant l'organisation au quotidien. La situation sur l'avenue de Genève est un atout majeur, plaçant la résidence à seulement 10 km de Genève et à proximité immédiate de la frontière suisse. Le futur tramway, prévu pour 2028 au pied de la résidence, ainsi que l'accès rapide aux bus et à la gare, garantissent une mobilité parfaite pour les travailleurs frontaliers. Les résidents peuvent également profiter d'espaces partagés uniques, comme les vergers communs et la terrasse partagée, créant une atmosphère conviviale et sereine. Ce bien représente une opportunité rare de vivre dans un cadre verdoyant et innovant, tout en restant connecté aux pôles économiques de la région. À seulement 4 minutes à vélo du centre-ville, cette adresse combine la tranquillité d'un quartier prisé avec la praticité des commerces et services de proximité. C'est un cadre de vie idéal qui allie élégance architecturale, performance énergétique et emplacement stratégique aux portes de la Suisse. Honoraires d’agence à la charge du vendeur. Bien non soumis au DPE. Les informations sur les risques auxquels ce bien est exposé sont disponibles sur le site Géorisques : . La présente annonce immobilière a été rédigée sous la responsabilité éditoriale de M. Jean Roussilhe EI (ID 89508), mandataire indépendant en immobilier (sans détention de fonds), agent commercial de la SAS I@D France immatriculé au RSAC de PARIS sous le numéro 988255675, titulaire de la carte de démarchage immobilier pour le compte de la société I@D France SAS. Retrouvez tous nos biens sur notre site internet. .
Iad France - Damien Jaquillard vous propose : Appartement de 84 m² avec parking + garage Venez découvrir cet appartement spacieux, ancien T4 repensé en grand T3, situé au 3ᵉ étage de la résidence « Parc de Paisy », construite en 2007, à seulement 2 minutes de Perly. Entièrement rénové et baigné de lumière, il bénéficie d’une double exposition sud-ouest offrant une vue dégagée sur le Jura, ainsi que d’un agréable balcon tournant de 23 m² L’appartement se compose de : - Une entrée - Un séjour de 40 m² avec cuisine ouverte, donnant accès à un balcon exposé plein ouest - Deux chambres, dont une de 19 m² - Une salle de bains entièrement rénovée - Une salle d’eau - Des WC séparés Confort et performances : - DPE : C - Chauffage individuel électrique à inertie nouvelle génération, économique et performant Annexes : - Une place de parking extérieure - Un garage double fermé de 24 m² en sous-sol, avec zone de stockage Les atouts du bien : - Très bon DPE : C - Faibles charges de copropriété - Appartement confortable et très lumineux - Cuisine neuve de 2024 - Vue sur le Jura et double exposition sud-ouest - Local vélos et places visiteurs - Peut être transformé en T4 - Arrêt de bus (collège et lycée) à proximité immédiate - À 2 minutes en voiture de la douane de Perly - Résidence prisée, calme et familiale Contactez-moi pour organiser une visite ! La presente annonce immobiliere vise 3 lots situés dans une copropriété de 498 lots au total et ne faisant l'objet d'aucune procédure en cours citée à l'article L. 721-1 du code de la construction et de l'habitation. Montant moyen mensuel de charges déclaré par le vendeur : 119.64€ par mois (soit 1435.64 € annuel). Honoraires d'agence à la charge du vendeur. Information d'affichage énergétique sur ce bien : classe ENERGIE C indice 143 et classe CLIMAT A indice 5. Les informations sur les risques auxquels ce bien est exposé, y compris l'obligation légale de débroussaillement, sont disponibles sur le site Géorisques : La présente annonce immobilière a été rédigée sous la responsabilité éditoriale de M Damien Jaquillard mandataire indépendant en immobilier (sans détention de fonds), agent commercial de la SAS I@D France immatriculé au RSAC de Thonon les bains sous le numéro 949285290, titulaire de la carte de démarchage immobilier pour le compte de la société I@D France SAS.
Ce T4 de 2019 est situé dans le recherché quartier Chabloux à St Julien à deux pas du centre ville et du stade de la Paguette. À 2mn en voiture des douanes de Soral et de Perly. Ecole, lycée, crèche, commerces sont à proximité directe. La copropriété est très bien gérée et le bâtiment est en excellent état. Vous serez séduits par la grande pièce de vie de ce T4 de 97 m². Il se compose de : - Trois chambres Deux d'entre elles sont dotées d'un placard aménagé. Un dressing agrémente la troisième. - Une belle salle de bains ainsi qu'un WC séparé jouxtent le coin nuit. - Une grande terrasse abritée vient prolonger le living - Un grand living avec cuisine Américaine de marque Schmidt toute équipée Une cave ainsi qu'un box équipé pour la recharge de véhicules électriques de 4m de hauteur viennent compléter cet ensemble. À visiter sans tarder ! Visite virtuelle sur demande Le bien comprend 3 lots, et il est situé dans une copropriété de 251 lots (les charges courantes annuelles moyennes de copropriété sont de 2300 € et le syndicat des copropriétaires ne fait pas l'objet d'une procédure citée à l'article L. 721-1 du code de la construction et de l'habitation). Les informations sur les risques auxquels ce bien est exposé sont disponibles sur le site Géorisques : Prix de vente : 520 000 € Honoraires charge vendeur Contactez votre conseiller SAFTI : Sylvain HUYTS, Tél. : 06 15 41 00 85, E-mail : sylvain.huyts@safti.fr - EI - Agent commercial immatriculé au RSAC de Thonon-les-Bains sous le numéro 450 361 696.
Situé à Saint-Julien-en-Genevois, cet appartement bénéficie d'un emplacement idéal de par sa proximité à la douane de Perly, des commodités, des écoles et des commerces. Cet appartement T4 duplex refait à neuf de 86 m², situé au 2ème étage et au dernier étage d'une copropriété de quatre bâtiments, dispose d'un balcon offrant une vue dégagée. Avec 3 chambres, 2 salles de bain et 2 WC, il offre tout le confort nécessaire à ses occupants. De plus, un un garage vient compléter cet ensemble. Il s'agence de la manière suivante : Au premier niveau : - Un spacieux séjour avec cuisine Américaine de qualité - Deux chambres - Une salle de bain avec baignoire balnéo - Un WC séparé avec lave mains À l'étage : - Un grand dégagement - Une chambre - Une salle d'eau avec WC Ce bien saura séduire ceux à la recherche d'un logement familial confortable, proche des services, des commodités et de la frontière. Le bien comprend 2 lots, et il est situé dans une copropriété de 108 lots (les charges courantes annuelles moyennes de copropriété sont de 1200 € et le syndicat des copropriétaires ne fait pas l'objet d'une procédure citée à l'article L. 721-1 du code de la construction et de l'habitation). Les informations sur les risques auxquels ce bien est exposé sont disponibles sur le site Géorisques : Prix de vente : 490 000 € Honoraires charge vendeur Contactez votre conseiller SAFTI : Sylvain HUYTS, Tél. : 06 15 41 00 85, E-mail : sylvain.huyts@safti.fr - EI - Agent commercial immatriculé au RSAC de Thonon-les-Bains sous le numéro 450 361 696.

Recevez en temps réel les dernières annonces correspondant à votre recherche
Iad France - Florian Delage vous propose : Appartement T4 de 93 m² avec terrasse et double garage – À vendre à Saint-Julien-en-Genevois (proche Genève) Vous recherchez un appartement à vendre à Saint-Julien-en-Genevois dans une résidence récente et de standing ? Ce magnifique T4 de 93 m² situé au 4ᵉ et dernier étage, avec terrasse de 34 m² et double garage, est fait pour vous. Un appartement lumineux et contemporain Entièrement rénové avec des matériaux de qualité, cet appartement séduit par son espace et sa luminosité. Le séjour de 30 m² avec cuisine ouverte moderne offre un cadre convivial pour partager vos repas en famille ou entre amis. Les larges baies vitrées prolongent la pièce de vie vers une superbe terrasse de 34 m², idéale pour profiter d’une vue dégagée et d’un espace extérieur privilégié. Un espace nuit fonctionnel Le coin nuit comprend 3 chambres confortables, une salle de bain, une salle d’eau avec WC et un WC séparé. Des prestations de standing •Chauffage au gaz de ville •Ventilation mécanique •Fibre optique •Ascenseur •Résidence sécurisée avec digicode et interphone Un emplacement recherché À seulement 200 m des commerces et des transports, vous profiterez d’un quotidien facilité. La proximité de Genève en fait un bien rare et très recherché, parfait pour les frontaliers. Stationnement •Double garage inclus dans le prix •Place de parking couverte disponible en option Cet appartement T4 avec terrasse est une opportunité unique à Saint-Julien-en-Genevois. Contactez-moi dès aujourd’hui pour organiser une visite ! La presente annonce immobiliere vise 3 lots situés dans une copropriété de 213 lots au total et ne faisant l'objet d'aucune procédure en cours citée à l'article L. 721-1 du code de la construction et de l'habitation. Montant moyen mensuel de charges déclaré par le vendeur : 133.33€ par mois (soit 1600 € annuel). Honoraires d'agence à la charge du vendeur. Information d'affichage énergétique sur ce bien : classe ENERGIE C indice 137 et classe CLIMAT C indice 28. Les informations sur les risques auxquels ce bien est exposé, y compris l'obligation légale de débroussaillement, sont disponibles sur le site Géorisques : La présente annonce immobilière a été rédigée sous la responsabilité éditoriale de M Florian Delage mandataire indépendant en immobilier (sans détention de fonds), agent commercial de la SAS I@D France immatriculé au RSAC de BOURG EN BRESSE sous le numéro 901227561, titulaire de la carte de démarchage immobilier pour le compte de la société I@D France SAS.
Iad France - Sarah Rozière (06 99 86 19 42) vous propose : Appartement T4 avec balcon à Saint-Julien-en-Genevois. Au cOEur de la résidence contemporaine LUMEN, idéalement située avenue de Genève à Saint-Julien-en-Genevois, découvrez une adresse rare à la frontière suisse. Moderne et durable, la résidence s’inscrit dans une démarche environnementale innovante (façades bois biosourcées, espaces verts paysagers) et propose des prestations de qualité. Disponible 2027. Un appartement raffiné : Situé au 3 ème étage, cet appartement T4 de 82 m² environ habitables s’ouvre sur un balcon de 16 m² environ. - Séjour / cuisine de 30 m² environ. - Trois belles chambres. - Salle de bains et salle d'eau modernes et wc séparés. - Annexe incluse : cellier privatif. De belles prestations : - Grandes baies vitrées équipées de brise-soleil orientables bois. - Chauffage collectif par chaufferie biomasse, isolation performante. - Résidence sécurisée avec stationnements en sous-sol, local vélos et caméras dans les parties communes L’art de vivre à Saint-Julien-en-Genevois : - À seulement 230 m de la douane suisse de Perly. - Futur tramway en pied d’immeuble (mise en service prévue en 2028). - Nombreux établissements scolaires, équipements culturels et sportifs à proximité. - Accès rapide à Genève (24 min en voiture) et Annecy (33 min). N’hésitez pas à me contacter pour plus d’informations ou pour un accompagnement sur mesure. Honoraires d’agence à la charge du vendeur. Bien non soumis au DPE. Les informations sur les risques auxquels ce bien est exposé sont disponibles sur le site Géorisques : . La présente annonce immobilière a été rédigée sous la responsabilité éditoriale de Mlle Sarah Rozière EI (ID 83696), mandataire indépendant en immobilier (sans détention de fonds), agent commercial de la SAS I@D France immatriculé au RSAC de Clermont-Ferrand sous le numéro 978616993, titulaire de la carte de démarchage immobilier pour le compte de la société I@D France SAS. Retrouvez tous nos biens sur notre site internet. .
Iad France - Sarah Rozière (06 99 86 19 42) vous propose : Appartement T4 avec balcon à Saint-Julien-en-Genevois. Au cOEur de la résidence contemporaine LUMEN, idéalement située avenue de Genève à Saint-Julien-en-Genevois, découvrez une adresse rare à la frontière suisse. Moderne et durable, la résidence s’inscrit dans une démarche environnementale innovante (façades bois biosourcées, espaces verts paysagers) et propose des prestations de qualité. Disponible 2027. Un appartement raffiné : Situé au 5 ème étage, cet appartement T4 de 89 m² environ habitables s’ouvre sur un balcon de 13 m² environ. - Séjour / cuisine de 34 m² environ. - Trois belles chambres. - Salle de bains moderne et wc séparés. - Annexes incluses : 2 parkings intérieurs et 1 cellier privatif. De belles prestations : - Grandes baies vitrées équipées de brise-soleil orientables bois. - Chauffage collectif par chaufferie biomasse, isolation performante. - Résidence sécurisée avec stationnements en sous-sol, local vélos et caméras dans les parties communes L’art de vivre à Saint-Julien-en-Genevois : - À seulement 230 m de la douane suisse de Perly. - Futur tramway en pied d’immeuble (mise en service prévue en 2028). - Nombreux établissements scolaires, équipements culturels et sportifs à proximité. - Accès rapide à Genève (24 min en voiture) et Annecy (33 min). N’hésitez pas à me contacter pour plus d’informations ou pour un accompagnement sur mesure. Honoraires d’agence à la charge du vendeur. Bien non soumis au DPE. Les informations sur les risques auxquels ce bien est exposé sont disponibles sur le site Géorisques : . La présente annonce immobilière a été rédigée sous la responsabilité éditoriale de Mlle Sarah Rozière EI (ID 83696), mandataire indépendant en immobilier (sans détention de fonds), agent commercial de la SAS I@D France immatriculé au RSAC de Clermont-Ferrand sous le numéro 978616993, titulaire de la carte de démarchage immobilier pour le compte de la société I@D France SAS. Retrouvez tous nos biens sur notre site internet. .
Iad France - Sarah Rozière (06 99 86 19 42) vous propose : Appartement T4 avec balcon à Saint-Julien-en-Genevois. Au cOEur de la résidence contemporaine LUMEN, idéalement située avenue de Genève à Saint-Julien-en-Genevois, découvrez une adresse rare à la frontière suisse. Moderne et durable, la résidence s’inscrit dans une démarche environnementale innovante (façades bois biosourcées, espaces verts paysagers) et propose des prestations de qualité. Disponible 2027. Un appartement raffiné : Situé au 2 ème étage, cet appartement T4 de 89 m² environ habitables s’ouvre sur un balcon de 13 m² environ. - Séjour / cuisine de 34 m² environ. - Trois belles chambres. - Salle de bains moderne et wc séparés. - Annexes incluses : 2 parkings intérieurs et 1 cellier privatif. De belles prestations : - Grandes baies vitrées équipées de brise-soleil orientables bois. - Chauffage collectif par chaufferie biomasse, isolation performante. - Résidence sécurisée avec stationnements en sous-sol, local vélos et caméras dans les parties communes L’art de vivre à Saint-Julien-en-Genevois : - À seulement 230 m de la douane suisse de Perly. - Futur tramway en pied d’immeuble (mise en service prévue en 2028). - Nombreux établissements scolaires, équipements culturels et sportifs à proximité. - Accès rapide à Genève (24 min en voiture) et Annecy (33 min). N’hésitez pas à me contacter pour plus d’informations ou pour un accompagnement sur mesure. Honoraires d’agence à la charge du vendeur. Bien non soumis au DPE. Les informations sur les risques auxquels ce bien est exposé sont disponibles sur le site Géorisques : . La présente annonce immobilière a été rédigée sous la responsabilité éditoriale de Mlle Sarah Rozière EI (ID 83696), mandataire indépendant en immobilier (sans détention de fonds), agent commercial de la SAS I@D France immatriculé au RSAC de Clermont-Ferrand sous le numéro 978616993, titulaire de la carte de démarchage immobilier pour le compte de la société I@D France SAS. Retrouvez tous nos biens sur notre site internet. .
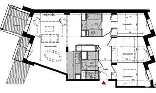
Iad France - Sarah Rozière (06 99 86 19 42) vous propose : Appartement T4 avec terrasse à Saint-Julien-en-Genevois. Au cOEur du premier quartier bas carbone de Haute-Savoie, la résidence contemporaine NOVA – Interface s’inscrit dans une démarche innovante et durable. À deux pas de la douane de Perly, cette adresse unique conjugue proximité avec Genève, modernité architecturale et qualité de vie. Les habitants profitent d’espaces verts communs (verger partagé, aire de jeux, compost collectif) et de mobilités douces optimisées. Disponible 2028. Un appartement raffiné : Situé au 5 ème étage, cet appartement T4 de 104 m² environ habitables se prolonge par une terrasse de 15 m² environ. - Séjour / cuisine de 46 m² environ. - Trois belles chambres. - Salle de bains et salle d'eau modernes et wc séparés. - Annexes incluses : 2 box en sous-sol et 1 cellier. Des belles prestations : - Structure innovante en bois et béton bas carbone. - Volets roulants motorisés ou brise-soleil orientables en aluminium. - Production collective de chauffage et eau chaude par chaufferie biomasse avec complément gaz. - Résidence sécurisée avec ascenseur, visiophone et stationnements en sous-sol L’art de vivre à Saint-Julien-en-Genevois : - À seulement quelques mètres de la frontière suisse et de la douane de Perly. - Accès rapide à Genève via bus et futur tramway T5. - Nombreux commerces, services et écoles accessibles à pied. - Gare TER et Léman Express à proximité. - Espaces verts paysagers et verger partagé. N’hésitez pas à me contacter pour plus d’informations ou pour un accompagnement sur mesure. Honoraires d’agence à la charge du vendeur. Bien non soumis au DPE. Les informations sur les risques auxquels ce bien est exposé sont disponibles sur le site Géorisques : . La présente annonce immobilière a été rédigée sous la responsabilité éditoriale de Mlle Sarah Rozière EI (ID 83696), mandataire indépendant en immobilier (sans détention de fonds), agent commercial de la SAS I@D France immatriculé au RSAC de Clermont-Ferrand sous le numéro 978616993, titulaire de la carte de démarchage immobilier pour le compte de la société I@D France SAS. Retrouvez tous nos biens sur notre site internet. .
Iad France - Sarah Rozière (06 99 86 19 42) vous propose : Appartement T4 avec terrasse à Saint-Julien-en-Genevois. Au cOEur du premier quartier bas carbone de Haute-Savoie, la résidence contemporaine NOVA – Interface s’inscrit dans une démarche innovante et durable. À deux pas de la douane de Perly, cette adresse unique conjugue proximité avec Genève, modernité architecturale et qualité de vie. Les habitants profitent d’espaces verts communs (verger partagé, aire de jeux, compost collectif) et de mobilités douces optimisées. Disponible 2028. Un appartement raffiné : Situé au 4 ème étage, cet appartement T4 de 91 m² environ habitables se prolonge par une terrasse de 9 m² environ. - Séjour / cuisine de 36 m² environ. - Trois belles chambres. - Salle de bains et salle d'eau modernes et wc séparés. - Annexes incluses : 2 box en sous-sol et 1 cellier. Des belles prestations : - Structure innovante en bois et béton bas carbone. - Volets roulants motorisés ou brise-soleil orientables en aluminium. - Production collective de chauffage et eau chaude par chaufferie biomasse avec complément gaz. - Résidence sécurisée avec ascenseur, visiophone et stationnements en sous-sol L’art de vivre à Saint-Julien-en-Genevois : - À seulement quelques mètres de la frontière suisse et de la douane de Perly. - Accès rapide à Genève via bus et futur tramway T5. - Nombreux commerces, services et écoles accessibles à pied. - Gare TER et Léman Express à proximité. - Espaces verts paysagers et verger partagé. N’hésitez pas à me contacter pour plus d’informations ou pour un accompagnement sur mesure. Honoraires d’agence à la charge du vendeur. Bien non soumis au DPE. Les informations sur les risques auxquels ce bien est exposé sont disponibles sur le site Géorisques : . La présente annonce immobilière a été rédigée sous la responsabilité éditoriale de Mlle Sarah Rozière EI (ID 83696), mandataire indépendant en immobilier (sans détention de fonds), agent commercial de la SAS I@D France immatriculé au RSAC de Clermont-Ferrand sous le numéro 978616993, titulaire de la carte de démarchage immobilier pour le compte de la société I@D France SAS. Retrouvez tous nos biens sur notre site internet. .
Iad France - Sarah Rozière (06 99 86 19 42) vous propose : Appartement T4 avec terrasse à Saint-Julien-en-Genevois. Au cOEur du premier quartier bas carbone de Haute-Savoie, la résidence contemporaine NOVA – Interface s’inscrit dans une démarche innovante et durable. À deux pas de la douane de Perly, cette adresse unique conjugue proximité avec Genève, modernité architecturale et qualité de vie. Livraison prévue en 2028. D’une surface de 91 m² environ, cet appartement situé au 1 er étage comprend une pièce de vie avec cuisine ouverte de 36 m² environ, trois chambres confortables, une salle de bains ainsi qu’une salle d’eau moderne, et des WC séparés. Il s’ouvre sur une terrasse de 9 m² environ, idéale pour profiter de l’extérieur. Deux box en sous-sol ainsi qu’un cellier complètent le bien. La production collective de chauffage et d’eau chaude est assurée par une chaufferie biomasse avec complément gaz, garantissant confort et performance énergétique. AUTRES T4 DISPONIBLES À PARTIR DE 627 000 € – Plans et demande d'informations sur simple contact. Nichée dans un environnement innovant et tourné vers l’avenir, la résidence NOVA – Interface se distingue par son architecture contemporaine, ses espaces partagés et son engagement environnemental fort. Pensée pour le bien-être de ses habitants, elle propose un verger partagé, une aire de jeux, un compost collectif et des espaces verts paysagers. À seulement quelques mètres de la frontière suisse et de la douane de Perly, l’adresse profite d’une situation exceptionnelle. Les résidents bénéficient d’un accès rapide à Genève grâce aux lignes de bus et au futur tramway T5, ainsi que de la proximité de la gare TER et du Léman Express. Acheter dans le neuf, c’est bénéficier de frais de notaire réduits, de garanties constructeur et d’un logement conforme aux dernières normes thermiques et acoustiques. Vous pouvez également personnaliser certains aménagements selon vos envies. Vous pouvez me contacter dès maintenant pour recevoir le plan détaillé, obtenir plus d’informations ou bénéficier d’un accompagnement personnalisé. Honoraires d’agence à la charge du vendeur. Bien non soumis au DPE. Les informations sur les risques auxquels ce bien est exposé sont disponibles sur le site Géorisques : . La présente annonce immobilière a été rédigée sous la responsabilité éditoriale de Mlle Sarah Rozière EI (ID 83696), mandataire indépendant en immobilier (sans détention de fonds), agent commercial de la SAS I@D France immatriculé au RSAC de Clermont-Ferrand sous le numéro 978616993, titulaire de la carte de démarchage immobilier pour le compte de la société I@D France SAS. Retrouvez tous nos biens sur notre site internet. .
Iad france - lucie paoletti (06 73 99 29 49) vous propose : programme neuf – saint-julien-en genevois centre livraison : 1er trimestre 2027 située en plein coeur de saint-julien-en-genevois, cette résidence neuve propose des appartements du t2 au t5, conformes à la norme re2020 et labellisés nf habitat. Derniers attiques disponibles avec terrasses de plus de 60 m² environ. Chaque logement bénéficie d’une cave et d’un parking en sous-sol. Chauffage individuel au gaz. Local à vélos sécurisé. Grands espaces verts paysagers autour de la résidence. Centre ville, écoles, proche lignes tpg, gare et commerces. Idéal pour une résidence principale ou un investissement. Dossiers complets et plans disponibles sur demande. Honoraires d’agence à la charge du vendeur. Bien non soumis au dpe. Les informations sur les risques auxquels ce bien est exposé sont disponibles sur le site géorisques : . La présente annonce immobilière a été rédigée sous la responsabilité éditoriale de mlle lucie paoletti ei (id 83733), mandataire indépendant en immobilier (sans détention de fonds), agent commercial de la sas i@d france immatriculé au rsac de thonon les bains sous le numéro 918798711, titulaire de la carte de démarchage immobilier pour le compte de la société i@d france sas. Retrouvez tous nos biens sur notre site internet. .
? Nouvelle résidence de standing à saint-julien-en-genevois ! découvrez les 3 moulins, à 2 km de la frontière suisse et 11 km du centre de genève. - appartements lumineux du 2 au 5 pièces avec grands balcons, terrasses ou jardins. - adresse idéale pour habiter ou investir avec forte rentabilité locative. - quartier central et dynamique avec commerces, écoles et transports à deux pas. devenez propriétaire à prix exceptionnels avec le bail réel solidaire (brs) et profitez d’un cadre de vie privilégié aux portes de genève ! ? Contactez vite nos conseillers au 04 13 13 01 34 pour découvrir cette nouvelle résidence et les logements éligibles brs. Les prix affichés sont en tva réduite (5.50 %). Les informations sur les risques auxquels ce bien est exposé sont disponibles sur le site géorisques : .
Découvrez notre nouvelle adresse à Saint-Julien-en-Genevois, à deux pas de Genève. Des appartements neufs du 2 au 5 pièces, tous avec des espaces extérieurs, des prestations de qualité et des biens rares à découvrir : 3 maisons sur le toit exceptionnelles et un 4 pièces avec une grande terrasse LUMEN, une résidence sécurisée et une connexion facilitée avec le futur tramway vers Genève au pied de la résidence. Contactez-nous dès à présent au 01 55 18 70 00 pour découvrir notre résidence et rencontrez nos équipes. Les informations sur les risques auxquels ce bien est exposé sont disponibles sur le site Géorisques : .
SAINT-JULIEN-EN-GENEVOIS : Situé au centre-ville proche de la gare, des commerces et du futur Tram - à 20 minutes de Genève et aéroport de Genève, cet appartement de type 4 d'environ 79 m² sis au dernier étage d'une résidence avec ascenseur. Il offre une entrée spacieuse, une pièce de vie traversante et lumineuse avec cuisine récente équipée et balcon, trois chambres avec placard, une salle de bains récente et un wc. La résidence est fermée par un portail et l'appartement dispose en annexe d'une cave, d'un garage simple et d'une place de stationnement extérieure. Retrouvez toutes nos annonces sur notre site : Les informations sur les risques auxquels ce bien est exposé sont disponibles sur le site Géorisques : .
Magnifique appartement de 102 m² au rez de chaussée dans le centre de Saint julien en genevois. Idéalement situé à proximité immédiate des commerces, des écoles, et des transports en commun, offrant un cadre de vie pratique et confortable. Il se compose d'une cuisine équipée avec cellier attenant, un spacieux et lumineux salon / salle à manger avec accès à un balcon pour profiter de l'extérieur, trois belles chambres avec espace de rangement, un wc et une salle de bain. un garage fermé et places de parking extérieure sécurisée par une barrière, local à vélos, piscine privée et gardien. L'appartement est situé dans un environnement calme et agréable, parfait pour une famille recherchant confort et commodité. Appartement vendu avec bail en cours.
Située aux portes de la frontière suisse, à environ 20 minutes de genève et à moins de 10 minutes de la technopôle d'archamps, au 1er étage appartement t4 de 84,42 m², comprenant entrée avec placard, séjour-cuisine de 30.24 m² avec un accès sur un balcon orientation sud-ouest, 3 chambres, salle de bains, salle d'eau, wc séparé, volets roulants motorisés, prestations de ualité, chauffage individuel gaz, 2 places de parking, répond aux derniers normes bbc rt 2012, phoniques, thermiques. Proximité immédiate des transports en commun, centre ville, centres commerciaux, écoles, activités culturelles, centres de loisirs, environnement agréable. Livraison 1 t 2019 prix direct promoteur normes de construction : rt2012 offre spéciale jusqu'au 14-10-2018 votre cuisine installee et offerte (1) honoraires inclus de 6.38% à la charge de l'acquéreur. Prix hors honoraires 414 540 €. Dans une copropriété de 70 lots. Aucune procédure n'est en cours. Classe énergie b, classe climat b. Les informations sur les risques auxquels ce bien est exposé sont disponibles sur le site géorisques : georisques. Gouv. Fr.