9 résultats
MCA vous présente son modèle Urbis de 102 m². Cette maison à étage propose deux espaces de vie optimisés et fonctionnels ainsi qu'un garage de 15 m². Familiale et conviviale, elle apportera tout le confort nécessaire à ses habitants. Le rez-de-chaussée en "open-space" est ouvert sur le jardin grâce à deux baies vitrées qui vous permettront de bénéficier d'une luminosité complète sur un terrain idéalement situé à Artigues-près-de-Bordeaux. À l'étage, l'espace nuit se compose de 4 chambres desservies par un palier commun, d'une salle de bain et WC séparé. Ce pavillon citadin, adapté aux exigences urbaines, permet de maximiser la surface du terrain et favorise donc la création d'une terrasse ou d'une aire de jeu pour les enfants. Pour une étude personnalisée de votre projet de vie et une visite contactez Alexandra des maisons MCA au O6 58 62 91 54. Idée de réalisation en modèle prêt à décorer sur l'un de nos terrains partenaires, sous réserve de disponibilités. Voir détails en agence. Les informations sur les risques auxquels ce bien est exposé sont disponibles sur le site Géorisques : .
Située dans un secteur recherché. Maison de 110 m² entièrement rénovée avec des prestations de qualité. Lumineuse et fonctionnelle, elle se compose, d'un séjour salon d'environ 30 m², une cuisine, de trois chambres plus une suite parentale avec salle de bain privative. Elle bénéficie d'un jardin et garage. Honoraires inclus dans le prix : 5.29%.
Iad France - Jérémy DEFORGE vous propose : Propriété Mixte avec Local Commercial et Appartement à Artigues-près-Bordeaux Découvrez cette propriété unique située en bordure de la rocade d'Artigues-près-Bordeaux, offrant à la fois un espace commercial, un logement privé, ainsi qu'une parcelle de terrain attenante. Cette maison de ville divisée en deux unités distinctes représente une opportunité exceptionnelle pour les investisseurs, les professionnels, et particulièrement les promoteurs immobiliers à la recherche d'un lieu combinant travail, vie privée et potentiel de développement. Local Commercial (122 m² environ) : Situé au rez-de-chaussée, cet espace actuellement aménagé en salon d'esthétique comprend plusieurs cabines de soins. L'agencement flexible permet une adaptation facile à divers types d'activités professionnelles, notamment des professions libérales, des services de soins, ou des bureaux. Appartement (116 m² environ) : L'étage supérieur abrite un appartement spacieux comprenant un salon, une salle à manger, trois chambres, un WC séparé et une salle d'eau. Idéal pour une famille ou pour une location, cet appartement offre confort et intimité à deux pas des commodités. Parcelle de Terrain : En plus du bâtiment, la propriété inclut une parcelle de terrain attenante, offrant des possibilités supplémentaires pour l'extension ou le développement. Ce terrain représente une excellente opportunité pour les promoteurs immobiliers intéressés par la création de nouveaux logements ou installations commerciales, sous réserve de l'obtention des permis nécessaires. Une autre parcelle serait éventuellement à la vente pour d'éventuels projet de construction (pas le même propriétaire) Localisation Idéale : Profitez d'une visibilité exceptionnelle grâce à la proximité de la rocade et des zones commerciales. Ce bien est parfaitement positionné pour bénéficier du dynamisme économique et de la facilité d'accès de la région bordelaise. Potentiel d'Investissement : Que vous envisagiez d'exploiter le local commercial vous-même ou de le mettre en location, cette propriété représente un investissement judicieux avec un fort potentiel de rendement. La parcelle de terrain attenante augmente encore le potentiel de valorisation du bien, rendant cette offre particulièrement attrayante pour les promoteurs immobiliers. Pour plus d'informations ou pour organiser une visite, contactez-nous dès aujourd'hui. Ne manquez pas cette occasion unique de posséder une propriété commerciale et résidentielle avec terrain à Bordeaux. Honoraires d'agence à la charge du vendeur. Information d'affichage énergétique sur ce bien : classe ENERGIE E indice 265 et classe CLIMAT D indice 42. Les informations sur les risques auxquels ce bien est exposé, y compris l'obligation légale de débroussaillement, sont disponibles sur le site Géorisques : La présente annonce immobilière a été rédigée sous la responsabilité éditoriale de M Jérémy DEFORGE mandataire indépendant en immobilier (sans détention de fonds), agent commercial de la SAS I@D France immatriculé au RSAC de Bordeaux sous le numéro 510795438, titulaire de la carte de démarchage immobilier pour le compte de la société I@D France SAS.
Maison familiale à fort potentiel Artigues-près-Bordeaux Idéalement située dans un secteur résidentiel calme et recherché, cette maison familiale de172 m² offre un beau potentiel d'aménagement pour ceux qui souhaitent créer un cocon à leur image. Baignée de lumière, elle séduit par ses volumes généreux et son grand jardin arboré de 1030 m², parfait pour profiter des beaux jours en famille. À l'intérieur : Une pièce de vie spacieuse et lumineuse avec cuisine ouverte, idéale pour partager des moments conviviaux, 5 chambres, offrant de nombreuses possibilités d'aménagement (suite parentale, bureau, salle de jeux ), 2 salle de bain, deux wc. Artigues-près-Bordeaux un cadre de vie paisible, proche des commodités, des écoles et des transports, à seulement quelques minutes de Bordeaux. Une maison pleine de charme et de promesses, idéale pour un projet familial ou un investissement. Contactez-moi pour en savoir plus et organiser votre visite ! Les informations sur les risques auxquels ce bien est exposé sont disponibles sur le site Géorisques : Prix de vente : 406 000 € Honoraires charge vendeur Contactez votre conseiller SAFTI : Lola BILLON, Tél. : 07 63 93 63 08, E-mail : lola.billon@safti.fr - EI - Agent commercial immatriculé au RSAC de Bordeaux sous le numéro 948 335 344.

Recevez en temps réel les dernières annonces correspondant à votre recherche
Maison familiale idéalement placée proche de toutes commodités, rénovée en 2017. Au premier étage vous trouverez une pièce de vie comprenant, salon, salle à manger et un séjour bénéficiant d'une double exposition, possibilité d'une chambre parentale. Honoraires inclus dans le prix : 5.43%.
Maison familliale pleine de charme, à deux pas à pied des commerces, située à Artigues près Bordeaux. Elle bénéficie d'un joli jardin sur l'arrière avec piscine. Elle est composée au rez-de-chaussé d'un salon avec toit cathédralé ouvert sur le jardin. À l'étage vous retrouvez deux grandes chambres et un point d'eau. Honoraires inclus dans le prix : 5%.
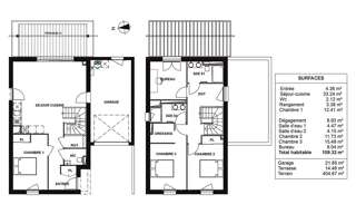
Située à deux pas du centre-ville d'Artigues, des écoles et des commerces, cette jolie maison contemporaine T5, neuve, vous séduira par la qualité de ses prestations et ses volumes généreux. Dotée d'une surface habitable de 109 m² et d'un garage de 22 m² attenant, elle se compose, au rez-de-chaussée, d'une entrée, d'un grand séjour-cuisine, ouvrant à l'Est sur la terrasse, d'une chambre, d'un cellier et d'un wc. À l'étage un bureau, trois chambres dont une avec dressing et salle d'eau privative et une salle de bain avec wc. Le chauffage est électrique avec clim réversible dans le séjour. Le terrain, de 404 m² est en pleine propriété. La voirie est gérée par une association syndicale dont la cotisation annuelle s'élève à 240 euros. La taxe foncière sera de 1900 euros. Les honoraires de l'agence sont à la charge du vendeur. Frais de notaire offerts. Les informations sur les risques auxquels ce bien est exposé sont disponibles sur le site Géorisques : .
Dans un secteur calme d'Artigues et à proximité des transports, cette maison de style landaise est composée d'un double séjour avec cheminée, d'une cuisine ouverte, quatre chambres dont deux en rez-de-chaussée, deux points d'eau et d'un garage. Vous pouvez profiter d'un jardin clôturé sans vis à vis et piscinable d'environ 800 m². Proposition d'aménagement virtuel non contractuelle en dernière photo. Honoraires inclus dans le prix : 5.21%.
Iad france - nadege rieu vous propose : belle maison familiale à artigues. Découvrez cette maison parfaitement entretenue, nichée dans un environnement calme et verdoyant. Elle se compose d'un vaste séjour avec une cheminée, d'une belle véranda ouvrant sur un jardin arboré. Une cuisine aménagée et fonctionnelle. Un grand cellier. Cette maison possède trois chambres spacieuses et une salle de bain de plain- pied. Son grand sous sol aménagé apporte un confort supplémentaire, avec une chambre, une salle d'eau et une buanderie. Un immense garage qui est idéal pour plusieurs véhicules, un atelier ou du stockage. Honoraires d'agence à la charge du vendeur. Information d'affichage énergétique sur ce bien : classe energie d indice 177 et classe climat d indice 38. Les informations sur les risques auxquels ce bien est exposé, y compris l'obligation légale de débroussaillement, sont disponibles sur le site géorisques : la présente annonce immobilière a été rédigée sous la responsabilité éditoriale de mme nadege rieu mandataire indépendant en immobilier (sans détention de fonds), agent commercial de la sas i@d france immatriculé au rsac de bordeaux sous le numéro 449455948, titulaire de la carte de démarchage immobilier pour le compte de la société i@d france sas.
Autres annonces à proximité de Artigues-près-Bordeaux (33370) avec vos critères
Gironde, (33370) tresses proche bordeaux, myriam galmar (06 13 71 63 50) vous présente cette maison familiale récente se situe au calme, entourée de jardins, dans le quartier recherché de mélac, proche de bordeaux bastide. Prix ttc 395000 euros dont 3,95% de commission charge acquéreur, soit 15000 euros ttc (pour 380000 euros prix net vendeur). Elle offre un grand séjour lumineux, avec triple exposition et cuisine ouverte de 2024,4 chambres, dont une grande au rez-de-chaussée, autonome, qui peut être louée ou utilisée comme bureau double. Un beau jardin planté, avec terrasse, piscine très récente, et garage, complètent cette maison pour son agrément et sa fonctionnalité. Deux autres véhicules peuvent stationner sur le terrain devant la maison. Bien entretenue, elle ne nécessite aucun travaux : double vitrage, volets roulants électriques, radiateurs à inertie, poêle à bois de belle facture, buanderie, isolation toiture récente, climatisation. Cette maison n'attend plus que sa nouvelle famille ! Dpe c ges a les informations sur les risques auxquels ce bien est exposé sont disponibles sur le site géorisques : pour visiter et vous accompagner dans votre projet, contactez myriam galmar, au 06 13 71 63 50 ou par courriel à m.galmar@proprietes-privees.com selon l'article l. 561.5 du code monétaire et financier, pour l'organisation de la visite, la présentation d'une pièce d'identité vous sera demandée. Cette présente annonce a été rédigée sous la responsabilité éditoriale de myriam galmar agissant en qualité de conseiller immobilier indépendant sous portage salarial auprès de la sas proprietes privees, au capital de 40 000 euros, zac le chêne ferré - 44 allée des cinq continents 44120 vertou; siret 487 624 777 00040, rcs nantes. Carte professionnelle transactions sur immeubles et fonds de commerce (t) et gestion immobilière (g) n° cpi 4401 2016 000 010 388 délivrée par la cci nantes - saint nazaire. Compte séquestre n°309 32 50 84 67 bpa saint-sebastien-sur-loire (44230) ; garantie galian - 89 rue de la boétie, 75008 paris - n°28137 j pour 2 000 000 euros pour t et 120 000 euros pour g. Assurance responsabilité civile professionnelle par mma entreprise n° de police 120.137. 405 mandat réf : 418891- le professionnel garantit et sécurise votre projet immobilier. (3.95 % honoraires ttc à la charge de l'acquéreur.) myriam galmar (ei) agent commercial - numéro rsac : 539312231 bordeaux -.
Tresse, à vendre, à 10km environ de bordeaux, maison familiale à 5 min à pied du centre de tresse et du tramway dravemont. Construite dans les années 70, non mitoyenne, dotée d'un étage, elle comprend 5 chambres dont deux au rez de chaussée, un vaste salon séjours, une véranda ajoute à l'espace de réception. À l'étage se trouvent 3 chambres et un espace pouvant être aménagé en studio avec un accès indépendant. Un garage complète cette maison qui sera un havre de paix une fois rénové. Tf 1529 euros. Budget 369 000 euros. Honoraires inclus à la charge du vendeur. Dpe ce ges d et c montant estimé des dépenses annuelles d'énergie pour un usage standard entre 2430 euros et 3360 euros indexées aux années 2021,2022 et 2023. Pour visiter et vous accompagner dans votre projet, contactez sylvie guedj, au 06 83 65 62 53 ou, par courriel à sy.guedj@proprietes-privees.com. Selon l'article l. 561.5 du code monétaire et financier, pour l'organisation de la visite, la présentation d'une pièce d'identité vous sera demandée. Cette présente annonce a été rédigée sous la responsabilité éditoriale de sylvie guedj agissant sous le statut d'agent commercial immatriculé au rsac 517781563 bordeaux auprès de sas proprietes privees, au capital de 44 920 euros, zac le chêne ferré - 44 allée des cinq continents 44120 vertou; siret 487 624 777 00040, rcs nantes. Carte professionnelle transactions sur immeubles et fonds de commerce (t) et gestion immobilière (g) n°cpi 4401 2016 000 010 388 délivrée par la cci nantes - saint nazaire. Compte séquestre n°309 32 50 84 67 bpa saint-sebastien-sur-loire (44230). Garantie galian-smabtp - 89 rue de la boétie, 75008 paris - n°28137 j pour 2 000 000 euros pour t et 120 000 euros pour g. Assurance responsabilité civile professionnelle par galian-smabtp n° de police 28137. J mandat réf 422498 : le professionnel garantit et sécurise votre projet immobilier. Sylvie guedj (ei) agent commercial - numéro rsac : 517781563 bordeaux -. Les informations sur les risques auxquels ce bien est exposé sont disponibles sur le site géorisques : www. Georisques. Gouv. Fr.
Venez découvrir cette maison mitoyenne lumineuse offrant un agencement fonctionnel et agréable à vivre. L'entrée dessert deux pièces indépendantes, une cuisine équipée de 10 m² avec accès direct au jardin, ainsi qu'un séjour traversant de 30 m², baigné de lumière naturelle et créant un espace convivial. Le jardin privatif, situé à l'avant et à l'arrière de la maison, dispose également d'un cabanon, parfait pour le rangement. À l'étage, vous découvrirez quatre chambres confortables, une salle de bains ainsi qu'une salle d'eau et un dégagement offrant de beaux espaces pour toute la famille. Cette maison est idéale pour une famille à la recherche de confort, luminosité et espace, dans un quartier proche de toutes les commodités. Une place de stationnement privative, pouvant accueillir deux véhicules, vient compléter ce bien. Un groupe scolaire neuf (maternelle et primaire) se situe à seulement 3 minutes à pied, un collège privé à 100 mètres, et deux autres collèges sont également accessibles à pied. Vous profiterez d'un environnement pratique et familial, à proximité immédiate de toutes les commodités : supermarché, pharmacie de garde, cabinets médicaux, médiathèque et aires de jeux. À propos de la copropriété : pas de procédure en cours. Nombre de lots : 101 charges trimestrielles : 280 euros dpe c ges c montant estimé des dépenses annuelles d'énergie pour un usage standard entre 1350 et 1890 euros indexées aux années 2021,2022 et 2023. Pour visiter et vous accompagner dans votre projet, contactez christopher de sousa, au 06 23 36 19 32 ou, par courriel à c.desousa@proprietes-privees.com. Selon l'article l. 561.5 du code monétaire et financier, pour l'organisation de la visite, la présentation d'une pièce d'identité vous sera demandée. Cette présente annonce a été rédigée sous la responsabilité éditoriale de christopher de sousa agissant sous le statut d'agent commercial immatriculé au rsac libourne 949712129 auprès de sas proprietes privees, au capital de 44 920 euros, zac le chêne ferré - 44 allée des cinq continents 44120 vertou; siret 487 624 777 00040, rcs nantes. Carte professionnelle transactions sur immeubles et fonds de commerce (t) et gestion immobilière (g) n°cpi 4401 2016 000 010 388 délivrée par la cci nantes - saint nazaire. Compte séquestre n°309 32 50 84 67 bpa saint-sebastien-sur-loire (44230). Garantie galian-smabtp - 89 rue de la boétie, 75008 paris - n°28137 j pour 2 000 000 euros pour t et 120 000 euros pour g. Assurance responsabilité civile professionnelle par galian-smabtp n° de police 28137. J mandat réf : 427560. - le professionnel garantit et sécurise votre projet immobilier. Christopher de sousa (ei) agent commercial - numéro rsac : libourne 949712129 -. Les informations sur les risques auxquels ce bien est exposé sont disponibles sur le site géorisques : www. Georisques. Gouv. Fr.
Exclusivité présentée par emmanuel beigbeder, conseiller en immobilier - à lormont 33310 le grand tressan proche bordeaux 33000 maison de plain-pied de 108,5 m² avec jardin de 534 m² et dépendances à lormont 3 chambres + bureau, jardin clos, chalet bois dans un secteur calme et recherché de lormont, découvrez cette maison de plain-pied, alliant confort et fonctionnalité. Elle se compose de : un vaste salon / salle à manger lumineux avec cheminée, ouvert sur la cuisine, 3 chambres confortables + un bureau (idéal télétravail ou chambre d'appoint), 2 salles d'eau et 2 wc, un joli jardin clos avec chalet bois d'environ 17 m² pouvant accueillir une pièce supplémentaire (profession libérale, chambre d'adolescent, etc.) et abri de près de 6 m², grand car port. Atouts : maison de plain-pied, pratique et fonctionnelle, avec très bon classement énergétique (b) espaces extérieurs agréables et bien aménagés, dépendances idéales pour loisirs, stockage ou activité professionnelle, a quelques minutes des écoles, commerces et transports de la métropole bordelaise. Habitable immédiatement, cette maison offre un beau potentiel de personnalisation pour créer un intérieur à votre image. Climatisation réversible, chauffage électrique et cheminée avec insert - tout à l'égout prix 321 800 euros honoraires à la charge de l'acquéreur inclus soit 305 000 euros et vendeur - taxe foncière 1700 euros dpe b - ges a montant estimé des dépenses annuelles d'énergie pour un usage standard entre 883 et 1195 euros indexées aux années 2021,2022 et 2023 pour visiter et vous accompagner dans votre projet, contactez emmanuel beigbeder, au 06 60 14 77 32 ou, par courriel à e.beigbeder@proprietes-privees.com. Selon l'article l. 561.5 du code monétaire et financier, pour l'organisation de la visite, la présentation d'une pièce d'identité vous sera demandée. Cette présente annonce a été rédigée sous la responsabilité éditoriale de emmanuel beigbeder agissant sous le statut d'agent commercial immatriculé au rsac bordeaux 507685550 auprès de sas proprietes privees, au capital de 44 920 euros, zac le chêne ferré - 44 allée des cinq continents 44120 vertou; siret 487 624 777 00040, rcs nantes. Carte professionnelle transactions sur immeubles et fonds de commerce (t) et gestion immobilière (g) n°cpi 4401 2016 000 010 388 délivrée par la cci nantes - saint nazaire. Compte séquestre n°309 32 50 84 67 bpa saint-sebastien-sur-loire (44230). Garantie galian-smabtp - 89 rue de la boétie, 75008 paris - n°28137 j pour 2 000 000 euros pour t et 120 000 euros pour g. Assurance responsabilité civile professionnelle par galian-smabtp n° de police 28137. J mandat réf : 422099 - le professionnel garantit et sécurise votre projet immobilier. (5.51 % honoraires ttc à la charge de l'acquéreur.) emmanuel beigbeder (ei) agent commercial - numéro rsac : bordeaux 507685550 -. Les informations sur les risques auxquels ce bien est exposé sont disponibles sur le site géorisques : www. Georisques. Gouv. Fr.
Maison traditionnelle de plain pied t5 idéalement située sur le haut cenon, à 5 mn du tram à pied., proche des écoles et des commerces. Posée au milieu d'une parcelle fleurie, vous trouverez 1 grande entrée, 1 vaste salon / séjour traversant, 1 cuisine indépendante aménagée, 1 arrière cuisine, 3 chambres généreuses, 1 salle d'eau, 1 salle de bains, et de 2 wc. Le gros plus, possibilité de créer 1 chambre supplémentaire ou 1 grand bureau. Un joli jardin de part et d'autre pour profiter des 2 terrasses, chacune équipée d'un store banne électrique, un abri de jardin bien utile et un garage fermé complètent le bien. Rare sur le secteur, excellent rapport prix / prestations / localisation. - mandat n°432247 - le professionnel garantit et sécurise votre projet immobilier. - le prix indiqué de 294.345 euros comprend les honoraires à la charges de l'acquéreur : 5,5%ttc du prix du bien hors honoraires. Prix hors honoraires : 279.000 euros - diagnostics énergétiques : consommation d 229kwh / m² / an ges d 49kgco2 / m² / an montant moyen estimé des dépenses annuelles d'énergie pour un usage standard entre 1617 euros et 2187 euros indexées aux années 2021,2022 et 2023 pour visiter et vous accompagner dans votre projet, contactez lionel roland, au 06 27 71 55 86 ou par courriel à l.roland@proprietes-privees.com selon l'article l. 561.5 du code monétaire et financier, pour l'organisation de la visite, la présentation d'une pièce d'identité vous sera demandée. Cette présente annonce a été rédigée sous la responsabilité éditoriale de lionel roland agissant sous le statut d'agent commercial immatriculé au rsac bordeaux 418 345 229 garantie axa iard - située au 313 terrasses de l'arche - 92727 nanterre cedex - n° 105 09 58 24 04 03760, auprès de sas proprietes privees, au capital de 44 920 euros, zac le chêne ferré - 44 allée des cinq continents 44120 vertou; siret 487 624 777 00040, rcs nantes. Carte professionnelle transactions sur immeubles et fonds de commerce (t) et gestion immobilière (g) n°cpi 4401 2016 000 010 388 délivrée par la cci nantes - saint nazaire. Compte séquestre n°309 32 50 84 67 bpa saint-sebastien-sur-loire (44230). Garantie galian-smabtp pour 2 000 000 euros pour t et 120 000 euros pour g. Assurance responsabilité civile professionnelle, n° de police 28137 j (5.50 % honoraires ttc à la charge de l'acquéreur.) lionel roland (ei) agent commercial - numéro rsac : bordeaux 418 345 229 -.
Iad France - Laurence Rubio vous propose : Venez découvrir cette jolie maison traditionnelle de plain pied construite en 1989 avec son joli jardin arboré et fleuri et sa piscine de 10.50 X 4.50 exposée plein sud. Elle est composée d'une véranda chauffée de 28 m² environ, avec vue sur la piscine qui donne sur une chambre de 18 m² environ avec placard et sa salle d'eau attenante avec wc. La véranda ouvre ensuite sur une grande pièce de vie de 56 m² environ avec salon salle à manger avec cheminée et cuisine ouverte et un petit cellier. Cette pièce de vie amène de part et d'autre sur 2 chambres de 16.50 et 18 m² environ, avec une salle d'eau commune avec meuble vasque. La maison bénéficie d' un terrain de plus de 1000 m² environ paysager avec sa grande piscine, un carport pour 2 véhicules avec accolé un cabanon bois et vous avez une petite terrasse couverte avec le local technique pour la piscine. Chauffage électrique et cumulus, huisseries aluminium double vitrage dans la véranda et la pièce de vie, le reste des pièces est en huisserie bois double vitrage avec volets électriques en aluminium. La maison se situe dans une rue calme, elle donne sur un champ non constructible et la forêt et de l'autre côté sur un lotissement dont elle ne dépend pas. La maison est à 900 m du bourg de Tresses. Tresses est à seulement 10 minutes de Bordeaux. Le bourg comprend : la mairie, l’église, les écoles, divers équipements, des commerces et un pôle médical , tout ceci font de ce bourg de campagne un lieu de vie agréable avec son marché et ses commerces de bouche et autres. La rocade direction Libourne, Paris ou Bordeaux est proche, avec le tram ligne A à 10 min en voiture. Venez découvrir ce havre de paix à proximité de tout. Honoraires d'agence à la charge du vendeur. Information d'affichage énergétique sur ce bien : classe ENERGIE D indice 239 et classe CLIMAT B indice 7. Les informations sur les risques auxquels ce bien est exposé, y compris l'obligation légale de débroussaillement, sont disponibles sur le site Géorisques : La présente annonce immobilière a été rédigée sous la responsabilité éditoriale de Mme Laurence Rubio mandataire indépendant en immobilier (sans détention de fonds), agent commercial de la SAS I@D France immatriculé au RSAC de BORDEAUX sous le numéro 848846192, titulaire de la carte de démarchage immobilier pour le compte de la société I@D France SAS.
Maison 95 m² de plain pied avec un jardin cloturé et un garage. À 20 minutes de Bordeaux, proche des commerces de proximité à pied. Elle se compose d'un séjour lumineux, traversant et climatisé, trois chambres ainsi qu'une dépendance. Honoraires inclus dans le prix : 5.56%.
Laforêt Fargues-saint-Hilaire vous propose en exclusivité cette charmante maison familiale aux volumes généreux, située dans un emplacement privilégié, au calme. Elle se compose, au rez de chaussée de : cuisine, séjour, cellier, 2 chambres, salle d'eau et WC; à l'étage : une seconde cuisine et séjour, 3 chambres, une salle de bains et WC. Un garage attenant ainsi qu'une grande terrasse couverte idéale pour profiter de l'été complètent ce bien. Le tout sur une jolie parcelle divisible d'environ 1651 m² sans vis-à-vis et joliment arboré. Beaucoup de potentiel pour ce bien grâce à son aménagement et ses deux entrées distinctes qui permettent d'avoir deux appartements séparés ou de créer son activité libérale. Une visite s'impose ! (5.39 % d'honoraires TTC à la charge de l'acquéreur.).
Iad France - Mikael Carrilho vous propose : Nouveauté ! Bien rare en exclusivité sur TRESSES ! À seulement 100 mètres du centre de Tresses, dans un lotissement résidentiel, découvrez cette maison de plain-pied de 115 m². Elle comprend une entrée, une grande pièce de vie avec cuisine, une buanderie, un cellier, trois chambres, une salle d’eau, un WC, ainsi qu’un espace bureau qui peut facilement devenir une quatrième chambre. Le tout est situé sur une parcelle de 650 m². Prévoir quelques travaux de rafraîchissement au niveau des sols et de la salle d’eau. L’environnement est calme, et vous serez à proximité des écoles, des commerces et des transports en commun. Un véritable coup de cOEur, très proche du centre ! Si vous souhaitez avoir plus d'informations n'hésitez pas à m'appeler. Honoraires d'agence à la charge du vendeur. Information d'affichage énergétique sur ce bien : classe ENERGIE D indice 196 et classe CLIMAT B indice 6. Les informations sur les risques auxquels ce bien est exposé, y compris l'obligation légale de débroussaillement, sont disponibles sur le site Géorisques : La présente annonce immobilière a été rédigée sous la responsabilité éditoriale de M Mikael Carrilho mandataire indépendant en immobilier (sans détention de fonds), agent commercial de la SAS I@D France immatriculé au RSAC de Bordeaux sous le numéro 495153405, titulaire de la carte de démarchage immobilier pour le compte de la société I@D France SAS.
Sous compromis - pompignac maison contemporaine récente aux prestations soignées secteur tresses dorémus immobilier vous invite à découvrir cette belle maison contemporaine construite en 2018, située sur la commune de pompignac, à proximité immédiate de tresses, dans un environnement calme et résidentiel. D'une surface habitable de 152 m², elle propose au rez-de-chaussée une vaste pièce de vie de 58 m² avec grande hauteur sous plafond, comprenant une cuisine américaine équipée haut de gamme (poggenpohl), un espace salle à manger lumineux, ainsi qu'une suite parentale de 24 m² avec chambre, dressing et salle d'eau privative. À l'étage, vous trouverez trois belles chambres, une salle de bains avec baignoire et douche, ainsi qu'un espace multimédia idéal pour un coin détente ou bureau. Construite selon la rt 2012 et encore sous garantie dommage-ouvrage, la maison bénéficie d'un chauffage au sol par pompe à chaleur, de la centralisation des volets roulants, et de prestations modernes et confortables. Le tout sur un terrain clos d'environ 1 100 m², à paysager selon vos envies, piscinable, avec garage de 22 m² et espace de stationnement. Une maison familiale moderne, fonctionnelle et économe en énergie à visiter sans tarder ! Les informations sur les risques auxquels ce bien est exposé sont disponibles sur le site géorisques : 1.
Idéalement située dans secteur résidentiel calme aux portes de Bordeaux Cette maison de 195 m² récente lumineuse avec des volumes généreux qui bénéficie d'un jardin, garage et une piscine. Elle se compose de quatre à cinq chambres dont deux suites parentales, un espace de vie d'environ 78 m². Proche des commodités à pied Honoraires inclus dans le prix : 4.58%.
Proche du bourg, des écoles et des écoles, cette maison familiale se situe au calme et bénéficie de beaux volumes. Son séjour est doté d'une cheminée, et donne sur une véranda de 30 m² non comptabilisée, cinq chambres spacieuses. Des travaux sont à prévoir afin de l'embellir. Proposition d'aménagement virtuel non contractuelle en dernière photo. Honoraires inclus dans le prix : 5.9%.
Iad France - Mikael Carrilho vous propose : Nouveauté en exclusivité – Maison de plain-pied rénovée dans un environnement résidentiel calme. Située dans un lotissement demandé, cette maison de plain-pied entièrement rénovée offre une superficie habitable d’environ 107 m² sur une parcelle de 857 m² soigneusement entretenue. Elle se compose d’une entrée, d’une spacieuse pièce de vie avec cuisine aménagée et équipée, d’une buanderie, de trois chambres, d’une salle d’eau moderne et d’un WC indépendant. À l’extérieur, vous profiterez d’un grand garage indépendant de 28 m² ainsi que d’une pièce attenante de 8 m² offrant de nombreuses possibilités (atelier, bureau, rangement…). L’espace jardin accueille une agréable piscine au sel (6 x 3 m), idéale pour les beaux jours. Atouts supplémentaires : Secteur résidentiel calme et recherché. Proximité immédiate des écoles, commerces et transports. Maison rénovée, prête à accueillir ses nouveaux propriétaires. Pour plus d’informations ou pour organiser une visite, n’hésitez pas à me contacter. Honoraires d'agence à la charge du vendeur. Information d'affichage énergétique sur ce bien : classe ENERGIE C indice 154 et classe CLIMAT A indice 4. Les informations sur les risques auxquels ce bien est exposé, y compris l'obligation légale de débroussaillement, sont disponibles sur le site Géorisques : La présente annonce immobilière a été rédigée sous la responsabilité éditoriale de M Mikael Carrilho mandataire indépendant en immobilier (sans détention de fonds), agent commercial de la SAS I@D France immatriculé au RSAC de Bordeaux sous le numéro 495153405, titulaire de la carte de démarchage immobilier pour le compte de la société I@D France SAS.
Située à Cenon (33150), cette maison transformée en bureaux offre un cadre de travail idéal, proche des commodités et bénéficiant d'un environnement agréable. Son emplacement stratégique en fait un choix recherché pour une activité professionnelle, avec un accès facile grâce à sa proximité aux principaux axes routiers. Sur un terrain de 500 m², cette propriété dispose de 3 places de parking privatif, d'un extérieur privatif et d'un accès PMR. Dotée d'une surface habitable de 180 m² répartis sur deux niveaux, elle présente des locaux lumineux, un ravalement récent des façades, une toiture remaniée, et aucun travaux à prévoir. À l'intérieur, cette maison comprend 6 pièces dont 3 chambres, 3 toilettes, et 2 salles de bain. Parfaitement entretenu, ce bien, construit en 1974, offre la possibilité d'être utilisé comme bureau ou de retrouver sa fonction initiale de maison d'habitation, en combinant des espaces fonctionnels et un aménagement confortable. Les informations sur les risques auxquels ce bien est exposé sont disponibles sur le site Géorisques : Prix de vente honoraires d'agence inclus : 399 375 € Prix de vente hors honoraires d'agence : 373 415,63 € Honoraires charge acquéreur : 25 959,38 € soit 6,95 % TTC de la valeur du bien hors honoraires Contactez votre conseiller SAFTI : Christopher EWIG, Tél. : 06 64 47 72 47, E-mail : christopher.ewig@safti.fr - EI - Agent commercial immatriculé au RSAC de Bordeaux sous le numéro 945283844.
Iad France - Cedric Blanchard vous propose : Maison NEUVE aux normes RE 2020 de 105 m² idéalement placée dans le bas Cenon, dans un secteur résidentiel calme recherché à forte attractivité. Le rez-de-chaussée offre un bel espace de vie de 50 m² lumineux avec salon, séjour et cuisine ouverte contemporaine, complété par un WC indépendant et un charmant patio. À l’étage, le dégagement dessert trois chambres dont 2 avec dressings intégrés, une salle d’eau soignée et un second WC. Vous bénéficiez également d’un parking privatif sécurisé avec portail électrique et portillon, véritable avantage dans ce quartier. L’emplacement est un atout majeur : la station de tram Cenon Gare (ligne A) est accessible à quelques minutes à pied, assurant une liaison directe vers le centre de Bordeaux en environ 14 à 15 minutes. La gare SNCF de Cenon est jointe via correspondance tram + marche ou bus, ce qui facilite les déplacements régionaux. Plusieurs lignes de bus locales complètent la desserte et desservent les quartiers environnants. Le stationnement autour de la maison bénéficie du régime de zone bleue avec des facilités pour les résidents. Vous trouverez à proximité le Centre Commercial de la Morlette à 7 min en voiture ainsi que le Centre Commercial Émeraude, pour vos courses quotidiennes. Le secteur est bien pourvu en écoles, crèches et équipements publics dans la commune de Cenon, offrant une solution pour les familles. L’environnement mêle praticité — commerces, services, transports — et douceur de vivre grâce à un quartier paisible, lumineux et résidentiel Honoraires d'agence à la charge du vendeur. Information d'affichage énergétique sur ce bien : classe ENERGIE B indice 2 et classe CLIMAT A indice 2. Les informations sur les risques auxquels ce bien est exposé, y compris l'obligation légale de débroussaillement, sont disponibles sur le site Géorisques : La présente annonce immobilière a été rédigée sous la responsabilité éditoriale de M Cedric Blanchard mandataire indépendant en immobilier (sans détention de fonds), agent commercial de la SAS I@D France immatriculé au RSAC de Bordeaux sous le numéro 899053334, titulaire de la carte de démarchage immobilier pour le compte de la société I@D France SAS.
Maison contemporaine de plus de 180 m² construite en 2022. Ce bien dispose de 5 chambres dont une en rez-de-chaussée, 3 salle d'eau, une grande pièce de vie lumineuse, cuisine entièrement équipée, sauna. L'exterieur cosy et intime avec piscine sera idéal pour vos moments de détente en famille. Un garage complète le bien Proposition d'aménagement virtuel non contractuelle en dernière photo. Honoraires inclus dans le prix : 4%.