
Marché immobilier 2026 : faut-il attendre ou acheter maintenant ?
Faut-il attendre ou acheter en 2026 ? Analyse d’un marché immobilier plus lent mais négociable, entre ajustement des prix, taux stables et stratégies d’achat.
1 résultats
Offre exceptionnelle : 10 m² offert + 1 pack au choix produit rare à saisir au plus vite. Situé sur la jolie commune de pizay dans un cadre calme et arboré. Sur une parcelle de 525 m² hors lotissement, maisons punch vous propose une construction neuve à étage de 94 m². Cette maison est composée d’une partie jour avec une très belle pièce de vie de 45 m² avec cuisine ouverte sur le séjour et un wc au rez de chaussé. La partie nuit est répartie en 3 chambres dont 2 de 13 m² et une de 10 m² ainsi qu’une salle de bain avec baignoire ou douche au choix, un lavabo et un wc séparé. Pour finir, la maison possède un garage de 18 m² permettant de garer une voiture et d’avoir un espace de stockage au fond. Plan entièrement personnalisables au bon vouloir des futurs acquéreurs. Nombreuses prestations possibles construction, terrain et vrd inclus dans le prix. Prestations de qualités : volets roulants intégrés électrique et connectés, pompe à chaleur maison conforme à la re 2020 terrain proposé et vendu par notre partenaire foncier selon disponibilités, le constructeur n’étant pas mandaté pour réaliser la vente du terrain. Prix terrain inclus : 140 000 € frais de notaire non inclus : € prix maison inclus : 186 000 € vrd non inclus : € hors aménagements extérieurs (extensions, terrasse, piscine etc), papiers peints, peintures, moquettes dans les chambres (tarif en vigueur au 20 mai 2025, modifiable sans préavis, prix variables suivant les prestations souhaitées). Hors frais d’hypothèque. Différents modèles disponibles pour chaque terrain. Assurance rc professionnelle / décennale / dommage ouvrage groupe aviva. Garantie de remboursement de l'acompte / livraison à prix et délai convenu cgi. Partenaire financier : à préciser le numéro de tva intracommunautaire : fr 14 498 627 272 00012 contact : contact@maisons-punch.fr.
Autres annonces à proximité de Pizay (01120) avec vos critères
Offre exceptionnelle : 10 m² offert + 1 pack au choix produit rare à saisir au plus vite. Situé sur la jolie commune de pizay dans un cadre calme et arboré. Sur une parcelle de 525 m² hors lotissement, maisons punch vous propose une construction neuve de plain-pied de 80 m². Cette maison est composée d’une partie jour avec une très belle pièce de vie de 38 m² avec cuisine ouverte sur le séjour. La partie nuit est répartie en 3 chambres dont 2 de 10,50 m² et une de 11,50 m² ainsi qu’une salle de bain avec baignoire ou douche au choix, un lavabo et un wc séparé. Pour finir, la maison possède un garage de 15 m². Plan entièrement personnalisables au bon vouloir des futurs acquéreurs. Nombreuses prestations possibles. Construction, terrain et vrd inclus dans le prix. Prestations de qualités : volets roulants intégrés électrique et connectés, pompe à chaleur maison conforme à la re 2020 terrain proposé et vendu par notre partenaire foncier selon disponibilités, le constructeur n’étant pas mandaté pour réaliser la vente du terrain. Prix terrain inclus : 140 000 € frais de notaire non inclus : € prix maison inclus : 158 200 € vrd non inclus : € hors aménagements extérieurs (extensions, terrasse, piscine etc), papiers peints, peintures, moquettes dans les chambres (tarif en vigueur au 20 mai 2025, modifiable sans préavis, prix variables suivant les prestations souhaitées). Hors frais d’hypothèque. Différents modèles disponibles pour chaque terrain. Assurance rc professionnelle / décennale / dommage ouvrage groupe aviva. Garantie de remboursement de l'acompte / livraison à prix et délai convenu cgi. Partenaire financier : à préciser le numéro de tva intracommunautaire : fr 14 498 627 272 00012 contact : contact@maisons-punch.fr.
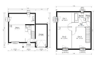
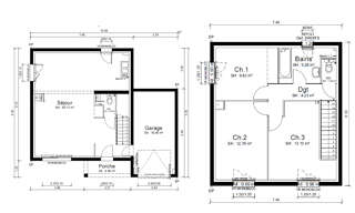
Offre exceptionnelle : 10 m² offert + 1 pack au choix produit rare à saisir au plus vite. Situé sur la jolie commune de pizay dans un cadre calme et arboré. Sur une parcelle de 525 m² hors lotissement, maisons punch vous propose une construction neuve à étage de 94 m². Cette maison est composée d’une partie jour avec une très belle pièce de vie de 45 m² avec cuisine ouverte sur le séjour et un wc au rez de chaussé. La partie nuit est répartie en 3 chambres dont 2 de 13 m² et une de 10 m² ainsi qu’une salle de bain avec baignoire ou douche au choix, un lavabo et un wc séparé. Pour finir, la maison possède un garage de 18 m² permettant de garer une voiture et d’avoir un espace de stockage au fond. Plan entièrement personnalisables au bon vouloir des futurs acquéreurs. Nombreuses prestations possibles construction, terrain et vrd inclus dans le prix. Prestations de qualités : volets roulants intégrés électrique et connectés, pompe à chaleur maison conforme à la re 2020 terrain proposé et vendu par notre partenaire foncier selon disponibilités, le constructeur n’étant pas mandaté pour réaliser la vente du terrain. Prix terrain inclus : 140 000 € frais de notaire non inclus : € prix maison inclus : 186 000 € vrd non inclus : € hors aménagements extérieurs (extensions, terrasse, piscine etc), papiers peints, peintures, moquettes dans les chambres (tarif en vigueur au 20 mai 2025, modifiable sans préavis, prix variables suivant les prestations souhaitées). Hors frais d’hypothèque. Différents modèles disponibles pour chaque terrain. Assurance rc professionnelle / décennale / dommage ouvrage groupe aviva. Garantie de remboursement de l'acompte / livraison à prix et délai convenu cgi. Partenaire financier : à préciser le numéro de tva intracommunautaire : fr 14 498 627 272 00012 contact : contact@maisons-punch.fr.
Offre exceptionnelle : 10 m² offert + 1 pack au choix produit rare à saisir au plus vite. Situé sur la jolie commune de pizay dans un cadre calme et arboré. Sur une parcelle de 525 m² hors lotissement, maisons punch vous propose une construction neuve de plain-pied de 80 m². Cette maison est composée d’une partie jour avec une très belle pièce de vie de 38 m² avec cuisine ouverte sur le séjour. La partie nuit est répartie en 3 chambres dont 2 de 10,50 m² et une de 11,50 m² ainsi qu’une salle de bain avec baignoire ou douche au choix, un lavabo et un wc séparé. Pour finir, la maison possède un garage de 15 m². Plan entièrement personnalisables au bon vouloir des futurs acquéreurs. Nombreuses prestations possibles. Construction, terrain et vrd inclus dans le prix. Prestations de qualités : volets roulants intégrés électrique et connectés, pompe à chaleur maison conforme à la re 2020 terrain proposé et vendu par notre partenaire foncier selon disponibilités, le constructeur n’étant pas mandaté pour réaliser la vente du terrain. Prix terrain inclus : 140 000 € frais de notaire non inclus : € prix maison inclus : 158 200 € vrd non inclus : € hors aménagements extérieurs (extensions, terrasse, piscine etc), papiers peints, peintures, moquettes dans les chambres (tarif en vigueur au 20 mai 2025, modifiable sans préavis, prix variables suivant les prestations souhaitées). Hors frais d’hypothèque. Différents modèles disponibles pour chaque terrain. Assurance rc professionnelle / décennale / dommage ouvrage groupe aviva. Garantie de remboursement de l'acompte / livraison à prix et délai convenu cgi. Partenaire financier : à préciser le numéro de tva intracommunautaire : fr 14 498 627 272 00012 contact : contact@maisons-punch.fr.

Recevez en temps réel les dernières annonces correspondant à votre recherche
Offre exceptionnelle : 10 m² offert + 1 pack au choix produit rare à saisir au plus vite. Situé sur la jolie commune de pizay dans un cadre calme et arboré. Sur une parcelle de 525 m² hors lotissement, maisons punch vous propose une construction neuve à étage de 94 m². Cette maison est composée d’une partie jour avec une très belle pièce de vie de 45 m² avec cuisine ouverte sur le séjour et un wc au rez de chaussé. La partie nuit est répartie en 3 chambres dont 2 de 13 m² et une de 10 m² ainsi qu’une salle de bain avec baignoire ou douche au choix, un lavabo et un wc séparé. Pour finir, la maison possède un garage de 18 m² permettant de garer une voiture et d’avoir un espace de stockage au fond. Plan entièrement personnalisables au bon vouloir des futurs acquéreurs. Nombreuses prestations possibles construction, terrain et vrd inclus dans le prix. Prestations de qualités : volets roulants intégrés électrique et connectés, pompe à chaleur maison conforme à la re 2020 terrain proposé et vendu par notre partenaire foncier selon disponibilités, le constructeur n’étant pas mandaté pour réaliser la vente du terrain. Prix terrain inclus : 140 000 € frais de notaire non inclus : € prix maison inclus : 186 000 € vrd non inclus : € hors aménagements extérieurs (extensions, terrasse, piscine etc), papiers peints, peintures, moquettes dans les chambres (tarif en vigueur au 20 mai 2025, modifiable sans préavis, prix variables suivant les prestations souhaitées). Hors frais d’hypothèque. Différents modèles disponibles pour chaque terrain. Assurance rc professionnelle / décennale / dommage ouvrage groupe aviva. Garantie de remboursement de l'acompte / livraison à prix et délai convenu cgi. Partenaire financier : à préciser le numéro de tva intracommunautaire : fr 14 498 627 272 00012 contact : contact@maisons-punch.fr.
Vous recherchez une maison familiale alliant tranquillité, espace et proximité des commodités ? Cette propriété à bressolles est faite pour vous ! Nichée dans un environnement verdoyant, elle profite d'un emplacement privilégié, à seulement quelques minutes de dagneux, à moins de 5 km de la gare de montluel et à proximité immédiate de l'autoroute. Offrant près de 250 m² habitables, cette maison se distingue par ses volumes généreux et son fort potentiel d'aménagement. Au rez-de-chaussée, vous apprécierez une grande pièce de vie lumineuse, une cuisine indépendante et un garage attenant. À l'étage, 4 à 5 chambres et une salle de bains composent un espace nuit idéal pour accueillir toute la famille. Le confort n'est pas en reste : la maison est équipée d'une pompe à chaleur neuve et d'une climatisation réversible, garantissant un bien-être optimal tout au long de l'année. Ne laissez pas passer cette belle opportunité ! Venez découvrir tout le potentiel de ce bien lors d'une visite avec votre agence guy hoquet de miribel ? Vous serez conquis par son cadre de vie serein et ses multiples possibilités. Honoraires à la charge du vendeur. Guy hoquet l'immobilier de miribel l'agence immobilière spécialiste de la côtière 04 72 25 40 00. Achat / vente / location bressolles appartement, maison, terrain bressolles. Prix / m² bressolles. Estimation offerte de votre bien immobilier sur simple demande.
Offre exceptionnelle : 10 m² offert + 1 pack au choix produit rare à saisir au plus vite. Situé sur la jolie commune de béligneux dans un cadre calme et arboré. Sur une parcelle de 250 m² entièrement viabilisée, maisons punch vous propose une construction neuve à étage de 94 m². Cette maison est composée d’une partie jour avec une très belle pièce de vie de 45 m² avec cuisine ouverte sur le séjour et un wc au rez de chaussé. La partie nuit est répartie en 3 chambres dont 2 de 13 m² et une de 10 m² ainsi qu’une salle de bain avec baignoire ou douche au choix, un lavabo et un wc séparé. Pour finir, la maison possède un garage de 18 m² permettant de garer une voiture et d’avoir un espace de stockage au fond. Plan entièrement personnalisables au bon vouloir des futurs acquéreurs. Nombreuses prestations possibles construction, terrain et vrd inclus dans le prix. Prestations de qualités : volets roulants intégrés électrique et connectés, pompe à chaleur maison conforme à la re 2020 terrain proposé et vendu par notre partenaire foncier selon disponibilités, le constructeur n’étant pas mandaté pour réaliser la vente du terrain. Prix terrain inclus : 99 000 € frais de notaire non inclus : € prix maison inclus : 171 400 € vrd non inclus : € hors aménagements extérieurs (extensions, terrasse, piscine etc), papiers peints, peintures, moquettes dans les chambres (tarif en vigueur au 20 mai 2025, modifiable sans préavis, prix variables suivant les prestations souhaitées). Hors frais d’hypothèque. Différents modèles disponibles pour chaque terrain. Assurance rc professionnelle / décennale / dommage ouvrage groupe aviva. Garantie de remboursement de l'acompte / livraison à prix et délai convenu cgi. Partenaire financier : à préciser le numéro de tva intracommunautaire : fr 14 498 627 272 00012 contact : contact@maisons-punch.fr.
Offre exceptionnelle : 10 m² offert + 1 pack au choix produit rare à saisir au plus vite. Situé sur la jolie commune de béligneux dans un cadre calme et arboré. Sur une parcelle de 250 m² entièrement viabilisée, maisons punch vous propose une construction neuve à étage de 94 m². Cette maison est composée d’une partie jour avec une très belle pièce de vie de 45 m² avec cuisine ouverte sur le séjour et un wc au rez de chaussé. La partie nuit est répartie en 3 chambres dont 2 de 13 m² et une de 10 m² ainsi qu’une salle de bain avec baignoire ou douche au choix, un lavabo et un wc séparé. Pour finir, la maison possède un garage de 18 m² permettant de garer une voiture et d’avoir un espace de stockage au fond. Plan entièrement personnalisables au bon vouloir des futurs acquéreurs. Nombreuses prestations possibles construction, terrain et vrd inclus dans le prix. Prestations de qualités : volets roulants intégrés électrique et connectés, pompe à chaleur maison conforme à la re 2020 terrain proposé et vendu par notre partenaire foncier selon disponibilités, le constructeur n’étant pas mandaté pour réaliser la vente du terrain. Prix terrain inclus : 99 000 € frais de notaire non inclus : € prix maison inclus : 171 400 € vrd non inclus : € hors aménagements extérieurs (extensions, terrasse, piscine etc), papiers peints, peintures, moquettes dans les chambres (tarif en vigueur au 20 mai 2025, modifiable sans préavis, prix variables suivant les prestations souhaitées). Hors frais d’hypothèque. Différents modèles disponibles pour chaque terrain. Assurance rc professionnelle / décennale / dommage ouvrage groupe aviva. Garantie de remboursement de l'acompte / livraison à prix et délai convenu cgi. Partenaire financier : à préciser le numéro de tva intracommunautaire : fr 14 498 627 272 00012 contact : contact@maisons-punch.fr.
Offre exceptionnelle : 10 m² offert + 1 pack au choix produit rare à saisir au plus vite. Situé sur la jolie commune de béligneux dans un cadre calme et arboré. Sur une parcelle de 250 m² entièrement viabilisée, maisons punch vous propose une construction neuve à étage de 94 m². Cette maison est composée d’une partie jour avec une très belle pièce de vie de 45 m² avec cuisine ouverte sur le séjour et un wc au rez de chaussé. La partie nuit est répartie en 3 chambres dont 2 de 13 m² et une de 10 m² ainsi qu’une salle de bain avec baignoire ou douche au choix, un lavabo et un wc séparé. Pour finir, la maison possède un garage de 18 m² permettant de garer une voiture et d’avoir un espace de stockage au fond. Plan entièrement personnalisables au bon vouloir des futurs acquéreurs. Nombreuses prestations possibles construction, terrain et vrd inclus dans le prix. Prestations de qualités : volets roulants intégrés électrique et connectés, pompe à chaleur maison conforme à la re 2020 terrain proposé et vendu par notre partenaire foncier selon disponibilités, le constructeur n’étant pas mandaté pour réaliser la vente du terrain. Prix terrain inclus : 99 000 € frais de notaire non inclus : € prix maison inclus : 171 400 € vrd non inclus : € hors aménagements extérieurs (extensions, terrasse, piscine etc), papiers peints, peintures, moquettes dans les chambres (tarif en vigueur au 20 mai 2025, modifiable sans préavis, prix variables suivant les prestations souhaitées). Hors frais d’hypothèque. Différents modèles disponibles pour chaque terrain. Assurance rc professionnelle / décennale / dommage ouvrage groupe aviva. Garantie de remboursement de l'acompte / livraison à prix et délai convenu cgi. Partenaire financier : à préciser le numéro de tva intracommunautaire : fr 14 498 627 272 00012 contact : contact@maisons-punch.fr.
Sur la commune de Bourg Saint Christophe, Home Group Conseils vous propose de construire votre villa étage de 80 m² habitable avec 16 m² de garage. Composée d'une pièce de vie, 3 chambres, une salle de bain et un garage. Prestations soignées aux normes RE 2020. Le tout sur un terrain de 500 m² au cadre champêtre. Ce modèle est entièrement personnalisable en aménagements intérieurs et système de chauffage. Terrain sélectionné et vu pour vous sous réserve de disponibilité et au prix affiché par le propriétaire du terrain. Les terrains proposés ci-dessous n'appartiennent pas à Home Group Conseils et ne sont pas commercialisés par notre société. Le prix ne comprend pas : les frais de notaire, vrd les peintures ou papiers peints ainsi que les revêtements de sols dans les chambres. Le prix comprend : la maison, l'assurance dommage ouvrage, le terrain et les viabilités. Photos non contractuelles.
En exclusivité Carole Allegret vous propose cette demeure qui possède un total de 180 m² hab. et se compose de 6 pièces, dont au Rdc 1 gande chambre parentale avec salle d'eau et 2 wc, avec accès direct à la terrasse. À l'étage vous trouverez 2 grandes chambres spacieuses et lumineuses ainsi qu'un bureau, une grande salle de bain et un wc. Le rez-de-chaussée et l'étage bénéficient d'un chauffage au sol, complété par une pompe à chaleur pour plus d'efficacité énergétique, une vaste pièce de vie d'environ 100 m² et un sous-sol de plus de 100 m², cet intérieur spacieux et bien agencé saura séduire les amateurs de tranquillité et de confort. À l'extérieur, la propriété dispose de 4 places de parking, dont 2 couvertes, ainsi qu'un garage. Avec une piscine d'environ 50 m², une grande terrasse, plusieurs stores bans et le jardin aménagé et arboré, cette magnifique et lumineuse maison offre un espace de détente agréable pour profiter des journées ensoleillées. Située dans la paisible commune de Bourg-Saint-Christophe (01800), cette magnifique propriété bénéficie d'un environnement tranquille sur un terrain arboré de 1245 m². À seulement 10 minutes de l'autoroute A42, à 1h30 de Genève, à 30 minutes de Lyon et 35mn de Bourg en Bresse, elle offre un cadre de vie idéal. Les commodités telles que les arrêts de bus et de train, les écoles, les lycées et les collèges se trouvent à proximité, facilitant la vie quotidienne des résidents. Un havre de paix et beaucoup de possibilités pour cette propriété construite autour de la piscine plein Sud pour profiter au maximum de la lumière et du soleil. Les informations sur les risques auxquels ce bien est exposé sont disponibles sur le site Géorisques : Prix de vente : 590 000 € Honoraires charge vendeur Contactez votre conseiller SAFTI : Carole ALLEGRET, Tél. : 06 22 58 50 10, E-mail : carole.allegret@safti.fr - EI - Agent commercial immatriculé au RSAC de BOURG-EN-BRESSE sous le numéro 537613960.
La société Epargne et Patrimoine a le plaisir de vous présenter ce bien entièrement rénové au centre de Dagneux. Ce bien mitoyen a été rénové avec beaucoup de goût et développe 137 m² habitables. Grande cuisine séparée de 18 m², buanderie / cellier 6 m², WC avec douche et lavabo, un joli salon de 30 m² et une salle à manger de 17 m². À l'étage 3 chambres de 14,15 et 16 m² (dont une avec une clim), et une grande salle de bain avec WC de 10 m². Ce bien ne possède pas de jardin, mais il est face à un grand parc public. À proximité, plusieurs places de parking. Ce bien se situe à deux pas du centre-ville et du groupe scolaire Val Cootey. Visite Virtuelle possible après un premier contact téléphonique. Je vous attends pour vous donner plus d'informations sur ce bien et vous le faire découvrir ! DPE D GES A Montant estimé des dépenses annuelles d'énergie pour un usage standard : entre 1440 et 1990€ et par an. Prix moyens des énergies indexés sur l'année 1er janvier 2021 (abonnements compris) Taxe foncière 746€. Pascal Levasseur O6.37. 27.11. 45 Conseiller Privé en Immobilier Agent Commercial Indépendant Mandataire Epargne et Patrimoine RSAC Vienne N°794657858 .
Fiche Id-SIT179474 : Belle villa de plain-pied sur 720 m² de terrain clos sans vis-à-vis, dans un quartier prisé de Dagneux, au calme et à proximité immédiate du centre ville et des écoles. Pièce de vie avec cuisine ouverte équipée récente et fonctionnelle, 3 chambres, salle de bains, wc et garage. En plus de sa situation idéale, cette villa est équipée d'un système de chauffage très performant et économique avec pompe à chaleur AIR / EAU couplée aux panneaux photovoltaïques et chauffe-eau thermodynamique, le tout installé en 2025. Possibilité de garer plusieurs véhicules sans aucun problème. - Mentions légales : Proposé à la vente à 420000 Euros (honoraires à la charge du vendeur) - DPE réalisé le : 13 / 01 / 2026 - Classe-Energie B : 95 kWh. m2. an - Montant estimé des dépenses annuelles d'énergie pour un usage standard compris entre 850 et 1190 Euros - Bien en copropriété - Charges annuelles : 285 Euros / an (soit 24 Euros / mois) - Affaire suivie par Mr Frederic ALBERT (RCS 525 293 486) (Agent commercial independant) - Reseau Immo-Diffusion Montluel - Pour plus d'informations, contactez notre secrétariat au 09 74 53 13 81 (Appel gratuit ou prix d'une communication locale) - Les informations sur les risques auxquels ce bien est exposé sont disponibles sur le site Géorisques : .
Vous cherchez plus qu'une maison ? Vous cherchez un endroit où votre famille pourra enfin respirer, s'épanouir et vivre confortablement, loin du bruit, sans être isolé ? Alors cette propriété est faite pour vous. Située à seulement 30 km de Lyon et à quelques minutes des gares de Saint André de Corcy ou Villars les Dombes, dans un environnement paisible, cette maison de plus de 236 m² dont 200 m² habitables offre des volumes rares et une qualité de vie difficile à trouver aujourd'hui. ? Ce que cette maison va vous faire ressentir Dès l'entrée, vous serez frappé par la lumière, les espaces ouverts, et cette sensation de bien-être immédiat que seules les maisons pensées pour vivre pleinement savent créer. Au rez-de-chaussée : tout pour vivre au quotidien dans le confort Cuisine de 14 m², fonctionnelle, prête à accueillir vos repas en famille Salle à manger de 40 m², idéale pour recevoir Salon cathédrale de plus de 60 m², baigné de lumière, pièce maîtresse de la maison Suite parentale, pour votre confort et votre intimité Bureau, parfait pour télétravail Pièce polyvalente : chambre, salle de sport, salle de jeux ou espace détente Cellier / buanderie pour un quotidien plus simple WC indépendant Ici, chaque espace a été pensé pour faciliter la vie de famille. À l'étage : un véritable coin nuit séparé 3 chambres lumineuses Salle de bains WC indépendant Les enfants disposent de leur propre univers, bien séparé du vôtre. À l'extérieur : un vrai lieu de vacances chez vous Dans un environnement calme sans vis-à-vis, vous profitez de : Piscine 12 × 6 m Pool house avec cuisine d'été aménagée et équipée Espace détente pour recevoir, partager, profiter Grand garage de 100 m², avec porte motorisée Parfait pour garer plusieurs véhicules, stocker, bricoler ou installer un atelier C'est un véritable espace de liberté, rare dans le secteur. Pourquoi cette maison est différente Elle offre des volumes exceptionnels Elle est lumineuse et agréable à vivre Elle permet une vie de famille harmonieuse Elle se situe dans un cadre calme, tout en restant proche de Lyon Elle propose des équipements rares (grand garage, piscine, pool house, salon cathédrale) Les informations sur les risques auxquels ce bien est exposé sont disponibles sur le site Géorisques : Prix de vente : 750 000 € Honoraires charge vendeur Contactez votre conseiller SAFTI : Aurélien MICHEL, Tél. : 06 45 68 01 02, E-mail : aurelien.michel@safti.fr - EI - Agent commercial immatriculé au RSAC de BOURG-EN-BRESSE sous le numéro 889 106 068.
Découvrez à Balan cette maison R + 1 à rénover, offrant 148 m² habitables sur un terrain d’environ 740 m², à seulement 30 minutes de Lyon. Située dans un secteur calme et résidentiel, elle bénéficie d’un beau potentiel pour un projet familial ou un investissement. Le plain-pied s’ouvre sur une entrée qui dessert une cuisine séparée et équipée, avec accès direct à la terrasse. Le séjour, lumineux, dispose d’un sol en marbre et d’une cheminée bois, et profite lui aussi d’une ouverture sur l’extérieur. Ce niveau comprend également une salle de bain, des wc séparés et deux chambres avec placards intégrés. À l’étage, une pièce d’environ 65 m² offre de nombreuses possibilités : création de chambres supplémentaires, suite parentale, salle de jeux ou grand bureau. Une salle de bain et des wc séparés complètent cet espace. Le bien dispose également d’un grand sous-sol semi-enterré d'environs 100 m², comprenant une buanderie, deux caves et un garage pouvant accueillir deux véhicules. Parmi les prestations : moustiquaires à l’étage, pompe à chaleur installée en 2022, système d’alarme avec caméras, et panneaux photovoltaïques pour un meilleur confort énergétique. Pour visiter ce bien Eloria Boudes O6.1O. 31.27. O5 Vous pouvez contacter Eloria BOUDES 06 10 31 27 05 eloria.boudes@rhone-saone-immo.com.
Offre exceptionnelle : 10 m² offert + pack deco ou pack cuisine au choix. Votre maison plain-pied de 85 m² habitables entièrement personnalisable ! Maison punch vous propose une magnifique maison de plain-pied de 85 m² sur la commune de bourg-saint-christophe pensée pour le confort et la modernité. Sur une parcelle de 506 m² entièrement viabilisé, nous vous proposons une construction neuve entièrement modulable à vos goûts. Caractéristiques : • superficie totale : 85 m² habitables • pièce de vie spacieuse de 42 m² avec une cuisine ouverte, pour profiter d’un espace lumineux et convivial • espace nuit comprenant : o 3 chambres confortables : 2 chambres de 10,50 m² ainsi qu’une chambre plus spacieuse de 11,50 m². • salle de bain avec baignoire ou douche, selon vos envies, avec wc séparer. • garage de 15 m² attenant, idéal pour protéger votre véhicule ou pour un espace de rangement supplémentaire. • maison conforme à la re 2020. Prestations de qualités comprenant de nombreuse options au bon vouloir des futurs acquéreurs. Construction, terrain et vrd inclus dans le prix. Venez découvrir cette maison qui allie praticité et esthétisme. Un projet de vie pour toute la famille dans un cadre où chaque mètre carré a été optimisé pour votre confort. Mr romain casini 06 84 82 88 41 chargé de projets maisons punch terrain proposé et vendu par notre partenaire foncier selon disponibilités, le constructeur n’étant pas mandaté pour réaliser la vente du terrain. Prix terrain inclus : 135 000 € frais de notaire non inclus : € prix maison inclus : 139 000 € vrd non inclus : € hors aménagements extérieurs (extensions, terrasse, piscine etc), papiers peints, peintures, moquettes dans les chambres (tarif en vigueur au 20 mai 2025, modifiable sans préavis, prix variables suivant les prestations souhaitées). Hors frais d’hypothèque. Différents modèles disponibles pour chaque terrain. Assurance rc professionnelle / décennale / dommage ouvrage groupe aviva. Garantie de remboursement de l'acompte / livraison à prix et délai convenu cgi. Partenaire financier : à préciser le numéro de tva intracommunautaire : fr 14 498 627 272 00012 contact : contact@maisons-punch.fr.
Offre exceptionnelle : 10 m² offert + 1 pack au choix produit rare à saisir au plus vite. Situé sur la jolie commune de bourg saint christophe dans un cadre calme et arboré. Sur une parcelle de 500 m² entièrement viabilisée, maisons punch vous propose une construction neuve à étage de 94 m². Cette maison est composée d’une partie jour avec une très belle pièce de vie de 45 m² avec cuisine ouverte sur le séjour et un wc au rez de chaussé. La partie nuit est répartie en 3 chambres dont 2 de 13 m² et une de 10 m² ainsi qu’une salle de bain avec baignoire ou douche au choix, un lavabo et un wc séparé. Pour finir, la maison possède un garage de 18 m² permettant de garer une voiture et d’avoir un espace de stockage au fond. Plan entièrement personnalisables au bon vouloir des futurs acquéreurs. Nombreuses prestations possibles construction, terrain et vrd inclus dans le prix. Prestations de qualités : volets roulants intégrés électrique et connectés, pompe à chaleur maison conforme à la re 2020 terrain proposé et vendu par notre partenaire foncier selon disponibilités, le constructeur n’étant pas mandaté pour réaliser la vente du terrain. Prix terrain inclus : 135 000 € frais de notaire non inclus : € prix maison inclus : 178 000 € vrd non inclus : € hors aménagements extérieurs (extensions, terrasse, piscine etc), papiers peints, peintures, moquettes dans les chambres (tarif en vigueur au 20 mai 2025, modifiable sans préavis, prix variables suivant les prestations souhaitées). Hors frais d’hypothèque. Différents modèles disponibles pour chaque terrain. Assurance rc professionnelle / décennale / dommage ouvrage groupe aviva. Garantie de remboursement de l'acompte / livraison à prix et délai convenu cgi. Partenaire financier : à préciser le numéro de tva intracommunautaire : fr 14 498 627 272 00012 contact : contact@maisons-punch.fr.
Offre exceptionnelle : 10 m² offert + 1 pack au choix produit rare à saisir au plus vite. Situé sur la jolie commune de bourg saint christophe dans un cadre calme et arboré. Sur une parcelle de 500 m² hors lotissement, maisons punch vous propose une construction neuve de plain-pied de 80 m². Cette maison est composée d’une partie jour avec une très belle pièce de vie de 38 m² avec cuisine ouverte sur le séjour. La partie nuit est répartie en 3 chambres dont 2 de 10,50 m² et une de 11,50 m² ainsi qu’une salle de bain avec baignoire ou douche au choix, un lavabo et un wc séparé. Pour finir, la maison possède un garage de 15 m². Plan entièrement personnalisables au bon vouloir des futurs acquéreurs. Nombreuses prestations possibles. Construction, terrain et vrd inclus dans le prix. Prestations de qualités : volets roulants intégrés électrique et connectés, pompe à chaleur maison conforme à la re 2020 terrain proposé et vendu par notre partenaire foncier selon disponibilités, le constructeur n’étant pas mandaté pour réaliser la vente du terrain. Prix terrain inclus : 135 000 € frais de notaire non inclus : € prix maison inclus : 160 200 € vrd non inclus : € hors aménagements extérieurs (extensions, terrasse, piscine etc), papiers peints, peintures, moquettes dans les chambres (tarif en vigueur au 20 mai 2025, modifiable sans préavis, prix variables suivant les prestations souhaitées). Hors frais d’hypothèque. Différents modèles disponibles pour chaque terrain. Assurance rc professionnelle / décennale / dommage ouvrage groupe aviva. Garantie de remboursement de l'acompte / livraison à prix et délai convenu cgi. Partenaire financier : à préciser le numéro de tva intracommunautaire : fr 14 498 627 272 00012 contact : contact@maisons-punch.fr.
10 m² OFFERT + CUISINE OFFERTE + PACK DECO OFFERT (peinture + parquet des chambres + faïence sdb + placard pour nos 50 ans. Exclusivité : Construction sur Béligneux Nous sommes ravis de vous présenter notre projet de construction d'une magnifique maison neuve, située sur un terrain spacieux de 350 m². Caractéristiques du bien : Superficie totale : 105 m² possibilité plus grand et plans sur mesure 4 chambres confortables, dont une possible suite parentale avec douche à l'italienne sur demande Plancher chauffant pour un confort optimal tout au long de l'année Volets roulants motorisés pour une sécurité accrue et une gestion aisée de la luminosité Cette maison est conçue pour offrir à ses occupants un cadre de vie exceptionnel, alliant confort, modernité et fonctionnalité. Située dans un quartier paisible, cette maison bénéficie d'un environnement calme et verdoyant, tout en étant proche des commodités et des infrastructures essentielles. Contactez-nous dès aujourd'hui pour en savoir plus sur ce projet de construction exceptionnel. Terrain proposé et vendu par notre partenaire foncier selon disponibilités, le constructeur n’étant pas mandaté pour réaliser la vente du terrain. Prix terrain inclus : 119 000 € Frais de notaire non inclus : € Prix maison inclus : 155 000 € VRD non inclus : € Hors aménagements extérieurs (extensions, terrasse, piscine etc), papiers peints, peintures, moquettes dans les chambres (tarif en vigueur au 20 mai 2025, modifiable sans préavis, prix variables suivant les prestations souhaitées). Hors frais d’hypothèque. Différents modèles disponibles pour chaque terrain. Assurance RC professionnelle / décennale / dommage ouvrage groupe Aviva. Garantie de remboursement de l'acompte / livraison à prix et délai convenu CGI. Partenaire financier : à préciser Le numéro de TVA intracommunautaire : FR 14 498 627 272 00012 Contact : contact@maisons-punch.fr.
Fiche id-sit177458 : vous avez la possibilité de concrétiser votre projet de vie ! Dans ce cadre privilégié, cette maison vous offre à la fois élégance et fonctionnalité, parfaite pour une vie de famille. Votre maison conforme aux normes, offrant une surface habitable de 90 m² avec 4 chambres et un garage inclus, à beligneux, sur un terrain de 220 m² pour un budget de 229500 €. Matériaux de qualité et finitions de premier choix, possibilité d'ajouter ou d'enlever les prestations souhaitées. Demandez une étude gratuite ! Prix de votre maison avec le terrain sélectionné et vu pour vous sous réserve de disponibilité et au prix indiqué par notre partenaire foncier compris, assurance dommages-ouvrage compris, viabilités et vrd compris. Contactez-nous ! - mentions légales : proposé à la vente à 229500 euros (honoraires à la charge du vendeur) - dpe vierge - affaire suivie par mr jean momier (conseiller immobilier salarié) - reseau immo-diffusion genas - pour plus d'informations, contactez notre secrétariat au 09 74 53 13 81 (appel gratuit ou prix d'une communication locale).
Votre Agence Guy Hoquet Lyon 4 forte de ses 25 ans d'expérience sur son marché immobilier Lyonnais. Est fière de vous présenter cette maison de 130 m² avec une terrasse de 15 m², et 650 m² de jardin. plus 25 m² au rdc avec fenêtres salle de douche wc en plus une piscine complète ce bien, deux places de stationnements, à l'intérieur de la cour un local piscine et sdd et wc trois chambres, cuisine équipée meublée séparée, salle de douche à l'étage meuble vasque neuf, WC indépendant, buanderie, beaucoup de rangement dans la maison, Maison habitable actuellement occupée, quelques travaux à prévoir. climatisation, (chaud, froid) taxe foncière 1049 à voir sur Béligneux le bas, centre, proche commerces écoles transports à pied = train bus Anne Monard Bretin 06 09 50 26 08 anne.bretin@guyhoquet.com Les informations sur les risques auxquels ce bien est exposé sont disponibles sur le site Géorisques : .
Maison familiale ossature bois 5 chambres - 2013 - 165 m² habitables - terrain 1083 m² - montluel (01120) année de construction : 2013 surface habitable : environ 165 m² terrain clos et arboré de 1083 m² description de la maison : rez-de-chaussée : entrée fonctionnelle de 4,7 m² belle chambre de plain-pied de 10 m² grand espace de vie lumineux de 66,4 m² avec cuisine semi-ouverte wc indépendant de 1,7 m² demi-niveau : buanderie spacieuse de 12,9 m² salle d'eau avec douche de 5,1 m² wc séparé de 1,2 m² étage : chambre 1 : 18 m² chambre 2 : 14,3 m² chambre 3 : 14,3 m² suite parentale : 15,9 m² sur l'extérieur : hangar indépendant d'environ 50 m² prestations et confort : maison à ossature bois. Isolation exceptionnelle : ouate de cellulose (22 cm dans les murs, 28 cm dans le plancher). Poêle à bois performant, chauffant l'ensemble de la maison. Vmc double-flux. Aspirateur centralisé. Récupération d'eau de pluie via pompe installée sur cuve tampon (alimentation des toilettes). Menuiseries alu avec triple vitrage. Connexion fibre installée il y a 1 mois. Une maison idéale pour les familles recherchant confort, performance énergétique et qualité de vie à proximité de lyon. David bozouklian (ei) agent commercial - numéro rsac : 843728189 - lyon.
Fiche id-sit174662 : montluel, centre ville, maison de vile avec garage sur 3 niveaux. Rdc : garage. Etage 1 : pièce de vie avec coin cuisine, buanderie et wc. Etage 2 : 3 chambres, salle de bains. Emplacement proche commerces, écoles et transports. Surface habitable d'env. 75 m² + 28 m² de garage, le tout à rafraichir. Chauffage gaz de ville. - mentions légales : proposé à la vente à 171000 euros (honoraires à la charge du vendeur) - dpe réalisé le : 25 / 04 / 2025 - classe-energie d : 244 kwh. M2. An - montant estimé des dépenses annuelles d'énergie pour un usage standard compris entre 1590 et 2200 euros - affaire suivie par mr frederic albert (rcs 525 293 486) (agent commercial independant) - reseau immo-diffusion montluel - pour plus d'informations, contactez notre secrétariat au 09 74 53 13 81 (appel gratuit ou prix d'une communication locale) - les informations sur les risques auxquels ce bien est exposé sont disponibles sur le site géorisques : .
Offre exceptionnelle : 10 m² offert + 1 pack au choix produit rare à saisir au plus vite. Situé sur la jolie commune de dans un cadre calme et arboré. Sur une parcelle de entièrement viabilisée, maisons punch vous propose une construction neuve à étage de 94 m². Cette maison est composée d’une partie jour avec une très belle pièce de vie de 45 m² avec cuisine ouverte sur le séjour et un wc au rez de chaussé. La partie nuit est répartie en 3 chambres dont 2 de 13 m² et une de 10 m² ainsi qu’une salle de bain avec baignoire ou douche au choix, un lavabo et un wc séparé. Pour finir, la maison possède un garage de 18 m² permettant de garer une voiture et d’avoir un espace de stockage au fond. Plan entièrement personnalisables au bon vouloir des futurs acquéreurs. Nombreuses prestations possibles construction, terrain et vrd inclus dans le prix. Prestations de qualités : volets roulants intégrés électrique et connectés, pompe à chaleur maison conforme à la re 2020 terrain proposé et vendu par notre partenaire foncier selon disponibilités, le constructeur n’étant pas mandaté pour réaliser la vente du terrain. Prix terrain inclus : 137 000 € frais de notaire non inclus : € prix maison inclus : 192 000 € vrd non inclus : € hors aménagements extérieurs (extensions, terrasse, piscine etc), papiers peints, peintures, moquettes dans les chambres (tarif en vigueur au 20 mai 2025, modifiable sans préavis, prix variables suivant les prestations souhaitées). Hors frais d’hypothèque. Différents modèles disponibles pour chaque terrain. Assurance rc professionnelle / décennale / dommage ouvrage groupe aviva. Garantie de remboursement de l'acompte / livraison à prix et délai convenu cgi. Partenaire financier : à préciser le numéro de tva intracommunautaire : fr 14 498 627 272 00012 contact : contact@maisons-punch.fr.
En Exclusivité ORPI, au coeur d' un village à 10 mn de la gare de Meximieux et dans un environnement paisible et verdoyant, cette maison familiale d'une surface de 194 m² sur une parcelle cadastrée de 2043 m² sera vous séduire ! Le rez-de-chaussée s'ouvre sur une entrée qui dessert un spacieux séjour. L'espace de vie se prolonge sur une terrasse idéalement orientée avec une très belle vue dégagée sur la piscine et la campagne. La cuisine ouverte, entièrement aménagée et équipée, complète harmonieusement cette première partie de la maison La partie nuit du rez-de-chaussée comprend trois chambres, une salle de bains, et un wc Une seconde partie après agrandissement pour un espace parentale en rdc avec une grande chambre, une salle de douche et wc ainsi qu' une autre chambre ou bureau. À son étage une grande pièce de 20 m² aujourd'hui utilisé en bureau et espace télétravail, mais possible chambre ou salon Le sous-sol total de 110 m², aménagé pour une partie, dispose d'une d'une buanderie avec cuisine aménagée ainsi que de nombreux espaces de rangements et une belle cave. Un garage double en enfilade avec atelier complète le bien. À l extérieur une belle piscine très bien exposées. Pour vos moment de détente entre amis, terrasse abritée avec un beau four à pain et barbecue A l'avant de la maison, un portail ouvre sur une allée permettant de stationner plusieurs véhicules ou camping car sous un carport Sur le terrain plusieurs plantations et bassin d' ornement avec un puit pour votre arrosage Pour compléter, Chauffage central avec pompe à chaleur, fibre optique Référence agence : 2738.

Faut-il attendre ou acheter en 2026 ? Analyse d’un marché immobilier plus lent mais négociable, entre ajustement des prix, taux stables et stratégies d’achat.

Votre boussole pour réussir votre premier (ou prochain) achat immobilier Guide de l’acheteur – Acheter un bien immobilier est un projet exaltant. Ce sera un parcours au cours duquel vous devrez prendre des décisions importantes. Il comprend des démarches administratives parfois semé de termes juridiques complexes. Que vous soyez primo-accédant, investisseur débutant ou simple curieux, […]

Acheter maintenant ou attendre encore ? En 2026, cette hésitation peut coûter plus cher qu’une décision imparfaite. Marché plus rationnel, crédit sélectif, prix segmentés : pourquoi l’attentisme devient parfois la vraie erreur immobilière.