14 résultats
10 m² OFFERT + CUISINE OFFERTE + PACK DECO OFFERT (peintures + parquet des chambres + faïence sdb + placards pour nos 50 ans. Exclusivité : Construction sur Montmerle Nous sommes ravis de vous présenter notre projet de construction d'une magnifique maison neuve, située sur un terrain spacieux de 1000 m² sur la commune de Montmerle. Caractéristiques du bien : Superficie totale : 120 m² 5 chambres confortables, dont une suite parentale avec douche à l'italienne Plancher chauffant pour un confort optimal tout au long de l'année Volets roulants motorisés pour une sécurité accrue et une gestion aisée de la luminosité Cette maison est conçue pour offrir à ses occupants un cadre de vie exceptionnel, alliant confort, modernité et fonctionnalité. Située dans un quartier paisible, cette maison bénéficie d'un environnement calme et verdoyant, tout en étant proche des commodités et des infrastructures essentielles. Contactez-nous dès aujourd'hui pour en savoir plus sur ce projet de construction exceptionnel. Terrain proposé et vendu par notre partenaire foncier selon disponibilités, le constructeur n’étant pas mandaté pour réaliser la vente du terrain. Prix terrain inclus : 160 000 € Frais de notaire non inclus : € Prix maison inclus : 225 000 € VRD non inclus : € Hors aménagements extérieurs (extensions, terrasse, piscine etc), papiers peints, peintures, moquettes dans les chambres (tarif en vigueur au 20 mai 2025, modifiable sans préavis, prix variables suivant les prestations souhaitées). Hors frais d’hypothèque. Différents modèles disponibles pour chaque terrain. Assurance RC professionnelle / décennale / dommage ouvrage groupe Aviva. Garantie de remboursement de l'acompte / livraison à prix et délai convenu CGI. Partenaire financier : à préciser Le numéro de TVA intracommunautaire : FR 14 498 627 272 00012 Contact : contact@maisons-punch.fr.
10 m² OFFERT + CUISINE OFFERTE + PACK DECO OFFERT (peintures + parquet des chambres + faïence sdb + placards pour nos 50 ans. Nous sommes ravis de vous présenter notre projet de construction d'une magnifique maison neuve, située sur un terrain spacieux de 400 m² sur la commune de Montceaux. Rapport qualité prix imbattable : Caractéristiques du bien : Superficie totale : 92 m² 4 chambres confortables, un salon séjour de 45 m², plancher chauffant pour un confort optimal tout au long de l'année Volets roulants motorisés pour une sécurité accrue et une gestion aisée de la luminosité Cette maison est conçue pour offrir à ses occupants un cadre de vie exceptionnel, alliant confort, modernité et fonctionnalité. Située dans un quartier paisible : Cette maison bénéficie d'un environnement calme et verdoyant, tout en étant proche des commodités et des infrastructures essentielles. Contactez-nous dès aujourd'hui pour en savoir plus sur ce projet de construction exceptionnel. Terrain proposé et vendu par notre partenaire foncier selon disponibilités, le constructeur n’étant pas mandaté pour réaliser la vente du terrain. Prix terrain inclus : 79 000 € Frais de notaire non inclus : € Prix maison inclus : 180 000 € VRD non inclus : € Hors aménagements extérieurs (extensions, terrasse, piscine etc), papiers peints, peintures, moquettes dans les chambres (tarif en vigueur au 20 mai 2025, modifiable sans préavis, prix variables suivant les prestations souhaitées). Hors frais d’hypothèque. Différents modèles disponibles pour chaque terrain. Assurance RC professionnelle / décennale / dommage ouvrage groupe Aviva. Garantie de remboursement de l'acompte / livraison à prix et délai convenu CGI. Partenaire financier : à préciser Le numéro de TVA intracommunautaire : FR 14 498 627 272 00012 Contact : contact@maisons-punch.fr.
10 m² OFFERT + CUISINE OFFERTE + PACK DECO OFFERT (peinture + parquet des chambres + faïence sdb + placard pour nos 50 ans. Exclusivité : Construction sur Montceaux Nous sommes ravis de vous présenter notre projet de construction d'une magnifique maison neuve, située sur un terrain spacieux de 400 m² sur la commune de Montceaux. Caractéristiques du bien : Superficie totale : 115 m² 4 chambres confortables, dont une suite parentale avec douche à l'italienne Plancher chauffant pour un confort optimal tout au long de l'année Volets roulants motorisés pour une sécurité accrue et une gestion aisée de la luminosité Cette maison est conçue pour offrir à ses occupants un cadre de vie exceptionnel, alliant confort, modernité et fonctionnalité. Située dans un quartier paisible, cette maison bénéficie d'un environnement calme et verdoyant, tout en étant proche des commodités et des infrastructures essentielles (1 minutes à pied des écoles maternelles, primaires, collège et lycée. Contactez-nous dès aujourd'hui pour en savoir plus sur ce projet de construction exceptionnel. Terrain proposé et vendu par notre partenaire foncier selon disponibilités, le constructeur n’étant pas mandaté pour réaliser la vente du terrain. Prix terrain inclus : 79 000 € Frais de notaire non inclus : € Prix maison inclus : 210 000 € VRD non inclus : € Hors aménagements extérieurs (extensions, terrasse, piscine etc), papiers peints, peintures, moquettes dans les chambres (tarif en vigueur au 20 mai 2025, modifiable sans préavis, prix variables suivant les prestations souhaitées). Hors frais d’hypothèque. Différents modèles disponibles pour chaque terrain. Assurance RC professionnelle / décennale / dommage ouvrage groupe Aviva. Garantie de remboursement de l'acompte / livraison à prix et délai convenu CGI. Partenaire financier : à préciser Le numéro de TVA intracommunautaire : FR 14 498 627 272 00012 Contact : contact@maisons-punch.fr.
* montmerle-sur-saône * . En couple ou en famille à la recherche d'une propriété de qualité en rez de jardin avec 4 / 5 chambres ? Génial ! Cette pépite est idéalement exposée et dispose d'un espace de vie comprenant une cuisine indépendante et un salon séjour de 40 m² environ très agréable. Les 4 chambres (2 à finir dans l'extension) sont également en rez-de-jardin. En entresol inférieur, vous disposez d'un très grand garage ainsi que d'une pièce additionnelle pouvant faire office de 5ème chambre d'appoint. Les services (commerces, écoles, administrations, transports) sont à proximité immédiate. La vue est bucoilique sur le jardin arboré. Il convient de finaliser l'extension qui est hors d'eau et d'air (2ch, 1 sde / wc). Le stationnement est aisé, y compris pour un camping car. Le coup de coeur est assuré. Il ne vous reste qu'à choisir votre piscine (à étudier) ou spa. Surfaces - utile 237 m² - habitable 148 m² (avec extension). Dpe : d (196) - ges : b (7) - coût annuel d'énergie entre 1500€ et 2080€. Bien non soumis à la copropriété. Les honoraires sont à la charge de l'acheteur d'un montant de 15999 € soit 330000 € net vendeur (4.85%). Laissez-vous charmer par une visite. La présente annonce immobilière est rédigée sous la responsabilité éditoriale de arnaud madec robillard. Les informations sur les risques auxquels ce bien est exposé sont disponibles sur le site géorisques réf. : 188952-313796 - icomi france immobilier - madec arnaud - 06 74 82 60 52 - arnaud.madec@icomi-france.fr - agent commercial ei - rsac brest 442 450 607 - * livre d or disponible sur le web * .

Recevez en temps réel les dernières annonces correspondant à votre recherche
Idéalement située, cette maison atypique se trouve dans un environnement paisible, à seulement 5 minutes à pied du cœur de Montmerle-sur-Saône. Vous profitez ainsi d'un accès immédiat aux écoles, commerces, cafés, bibliothèque, et aux magnifiques berges de la Saône Côté mobilité, l'emplacement est également un atout majeur : à 5 minutes de Belleville, 12 minutes de Villefranche-sur-Saône et 45 minutes de Lyon, vous bénéficiez d'un accès rapide aux principaux axes autoroutiers (A6, A89, A39) ainsi qu'à une gare SNCF à proximité, facilitant vos déplacements quotidiens. Implantée sur un terrain clos et arboré de 816 m², elle propose environ 170 m² habitables : 6 chambres avec placards intégrés (dont 4 en rez-de-chaussée et 2 à l'étage), ainsi qu'un vaste séjour-cuisine traversant de 63 m², baigné de lumière grâce à ses 4 grandes baies vitrées orientées sud-ouest. Ce bel espace de vie donne directement accès à une terrasse en bois surélevée de 50 m², idéale pour profiter pleinement des beaux jours (à rénover). Côté confort et performance : isolation par l'extérieur réalisée en 2022, VMC double flux professionnelle (BRINK), poêle de masse artisanal type batch box rocket, et brise-soleil orientables installés en 2023. Les extérieurs ne sont pas en reste : piscine creusée de 50 000 L ( à remettre en service), double garage de 60 m² avec mezzanine, grande terrasse en L de 56 m² au rez-de-chaussée, jardin sans pesticides agrémenté d'un chêne centenaire et d'un grand cerisier. Un bien rare, à l'énergie maîtrisée, qui ne demande qu'à être découvert. Les informations sur les risques auxquels ce bien est exposé sont disponibles sur le site Géorisques : Prix de vente : 360 000 € Honoraires charge vendeur Contactez votre conseiller SAFTI : Cédric MAZILLER, Tél. : 06 17 38 09 69, E-mail : cedric.maziller@safti.fr - EI - Agent commercial immatriculé au RSAC de Bourg-en-Bresse sous le numéro 983 039 231.
Découvrez en exclusivité cette superbe maison familiale, idéalement située dans un quartier résidentiel calme de Montmerle-sur-Saône. À seulement 850 mètres du centre, vous rejoignez à pied les commerces, les écoles et les services, facilitant votre quotidien. Sa localisation est un véritable atout : à proximité de la gare de Belleville-en-Beaujolais, vous êtes connectés à Lyon en moins de 50 minutes. Cette maison, parfaitement entretenue, a été conçue pour le confort et la convivialité. Vous serez immédiatement séduit par sa pièce de vie de 50 m², baignée de lumière naturelle, s'ouvrant directement sur une large terrasse, parfaite pour prolonger vos soirées. L'espace nuit, bien séparé, comprend trois chambres, dont une magnifique suite parentale avec sa salle d'eau privative. Une salle de bains supplémentaire, deux WC, bureau, salle de jeux complètent la partie habitable. Un atout majeur de cette propriété est sa pièce polyvalente de 30 m², qui offre un potentiel illimité : bureau, salle de sport, atelier d'artiste ou espace de jeux pour les enfants, elle s'adapte à tous vos besoins. À l'extérieur, le cadre est une véritable invitation à la détente. La grande terrasse mène à un espace de vie extérieur de rêve, avec sa piscine et son espace jacuzzi, idéal pour des moments de convivialité en famille ou entre amis. La cuisine d'été est le lieu parfait pour des déjeuners au soleil et des barbecues. Un atelier permet de garder un espace pour les bricoleurs. Ce bien unique, complet et parfaitement situé, est une opportunité rare à Montmerle-sur-Saône. Les honoraires sont à la charge du vendeur. Les informations sur les risques auxquels ce bien est exposé sont disponibles sur le site Géorisques : www. georisques. gouv. fr. Contactez Frédéric BOIS Entrepreneur Individuel, Agent commercial OptimHome (RSAC N°878 145 309 Greffe de BOURG EN BRESSE) 06 47 87 04 77 (réf. 598925 ).
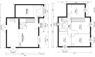
10 m² OFFERT + CUISINE OFFERTE + PACK DECO OFFERT (peintures + parquet des chambres + faïence sdb + placards pour nos 50 ans. Exclusivité : Construction sur Montmerle Nous sommes ravis de vous présenter notre projet de construction d'une magnifique maison neuve, située sur un terrain spacieux de 450 m² viabilisé sur la commune de Montmerle en exclusivité. Caractéristiques du bien : Superficie totale : 115 m² 4 chambres confortables, dont une suite parentale avec douche à l'italienne Plancher chauffant pour un confort optimal tout au long de l'année Volets roulants motorisés pour une sécurité accrue et une gestion aisée de la luminosité Cette maison est conçue pour offrir à ses occupants un cadre de vie exceptionnel, alliant confort, modernité et fonctionnalité. Située dans un quartier paisible, cette maison bénéficie d'un environnement calme et verdoyant, tout en étant proche des commodités et des infrastructures essentielles. Contactez-nous dès aujourd'hui pour en savoir plus sur ce projet de construction exceptionnel. Terrain proposé et vendu par notre partenaire foncier selon disponibilités, le constructeur n’étant pas mandaté pour réaliser la vente du terrain. Prix terrain inclus : 115 000 € Frais de notaire non inclus : € Prix maison inclus : 206 842 € VRD non inclus : € Hors aménagements extérieurs (extensions, terrasse, piscine etc), papiers peints, peintures, moquettes dans les chambres (tarif en vigueur au 20 mai 2025, modifiable sans préavis, prix variables suivant les prestations souhaitées). Hors frais d’hypothèque. Différents modèles disponibles pour chaque terrain. Assurance RC professionnelle / décennale / dommage ouvrage groupe Aviva. Garantie de remboursement de l'acompte / livraison à prix et délai convenu CGI. Partenaire financier : à préciser Le numéro de TVA intracommunautaire : FR 14 498 627 272 00012 Contact : contact@maisons-punch.fr.
Maison de ville de 137 m² 3 chambres avec grande cour ensoleillée. Située dans le charmant village prisé de montmerle-sur-saône tous commerces à pied, belleville-sur-saône (gare ter, a6) à 7 min, villefranche sur saône 20 min et mâcon 30mn. Cette maison de ville r + 2 allie charme, confort immédiat et fort potentiel d'aménagement de 100 m² supplémentaires. Rdc : salon / séjour de 30 m² avec une cuisine équipée attenante de 23 m², une chambre avec salle de bain et wc. 1er étage : suite parentale de 27 m² avec salle de bains, une chambre de 19 m², une buanderie avec verrière, wc et un plateau aménageable de 45 m². 2 ? Étage : plateau de 50 m² aménageable divisé en 3 chambres possibles. À l'extérieur : grande cour d'environ 80 m², au calme, sans vis-à-vis, idéale pour profiter du soleil, un atelier et une chaufferie complètent ce bien. Maison à fort potentiel 100 m² aménageables en plus pour un projet familial, gîtes, colocations, chambres d'hôtes airbnb ! Dominique notin - safti estimation gratuite les informations sur les risques auxquels ce bien est exposé sont disponibles sur le site géorisques : prix de vente : 250 000 € honoraires charge vendeur contactez votre conseiller safti : dominique notin, tél. : 06 08 37 87 17, e-mail : dominique.notin@safti.fr - ei - agent commercial immatriculé au rsac de villefranche-tarare sous le numéro 853 892 768.
À 3 minutes de Montmerle sur Saône et 10 min de la gare de Belleville, coup de coeur assuré pour cette maison T5 de 120 m² dans un ancien corps de ferme en pisé entièrement rénové en 2005 donnant sur un beau terrain plat, clos et arboré de 200 m² au calme et sans vis à vis ! Il se compose au RDC d'une pièce de vie pleine de charme de 50 m² avec sa cuisine US meublée équipée ouvrant sur une belle terrasse carrelée plein Sud et d'un wc. À l'étage, 3 belles chambres, un salon (possibilité 4 ème chambre + bureau), une salle de bain avec douche et baignoire et un wc. Un grand garage (avec mezzanine de rangement et coin buanderie) de 27 m² (portail automatisé) et un adoucisseur complètent ce bien. Le charme de l'ancien (poutres, plafond à la française) et le confort du moderne (chauffage au sol, PAC, clims réversible, adoucisseur, portail automatisé. ), maison très bien entretenue, fibre à proximité, à découvrir au plus vite ! DPE : 152 (C) et GES : 5 (A) Petite copropriété de 6 lots (50 Euros charges / mois). Pour visiter, Laurence Caillaud au 06 62 16 58 29 Vous pouvez contacter Laurence CAILLAUD 06 62 16 58 29 laurence.caillaud@rhone-saone-immo.com.
Iad France - Paulo De Freitas vous propose : En Exclusivité à Montmerle-sur-Saône, Charmante Maison de Ville de 120 m² sur un Terrain de 242 m² Possibilité de division pour investissement locatif. Laissez-vous séduire par cette charmante maison de ville située dans un quartier calme et prisé de Montmerle-sur-Saône. Construite en 1900, cette maison offre un cachet unique alliant le charme de l'ancien et le confort moderne. Dès l'entrée, vous serez accueilli par un agréable séjour lumineux de 15 m², idéal pour se détendre en famille ou entre amis. La maison dispose de 3 chambres spacieuses, offrant chacune une atmosphère chaleureuse pour un repos optimal. Vous retrouverez également une salle de bain, une salle d'eau, et deux WC pour votre confort et votre intimité. La cuisine, séparée et non équipée, laisse place à votre imagination pour créer un espace sur-mesure à votre image. Deux salons de 18 m² et 10 m² offrent des espaces supplémentaires pour recevoir vos proches ou tout simplement profiter d'un moment de détente. La maison, répartie sur 2 étages, est en bon état général, offrant un potentiel certain pour des projets de rénovation ou d'agencement selon vos envies. Côté extérieur, le terrain de 242 m² vous permettra de profiter des beaux jours en toute tranquillité. Une exposition au sud assure une belle luminosité à l'ensemble de la maison. Située à proximité des commerces, des écoles et des transports en commun, cette maison est idéalement placée pour une vie de quartier agréable et pratique au quotidien. Ne manquez pas cette opportunité rare sur le marché. Contactez-nous dès maintenant pour organiser une visite et laissez-vous charmer par le potentiel de ce bien unique à Montmerle-sur-Saône. Honoraires d'agence à la charge du vendeur. Information d'affichage énergétique sur ce bien : classe ENERGIE G indice 443 et classe CLIMAT C indice 14. Les informations sur les risques auxquels ce bien est exposé, y compris l'obligation légale de débroussaillement, sont disponibles sur le site Géorisques : La présente annonce immobilière a été rédigée sous la responsabilité éditoriale de M Paulo De Freitas mandataire indépendant en immobilier (sans détention de fonds), agent commercial de la SAS I@D France immatriculé au RSAC de Villefranche Tarare sous le numéro 844420091, titulaire de la carte de démarchage immobilier pour le compte de la société I@D France SAS.
Dans le charmant village de lurcy, à deux pas de montmerle et de ses commerces, je vous invite à découvrir cette agréable maison de 175 m² habitables. Cette maison récente (2004) située hors lotissement comprend 5 chambres dont 2 de plain pied, un vaste séjour avec cuisine semi-ouverte de plus de 70 m², 2 salles d'eau dont 1 de plain pied. Son jardin arboré sans vis-à-vis avec spa vous permettra de profiter agréablement des soirées estivale. Les +: garage, buanderie et cave. Chauffage au sol électrique - panneaux solaires - menuiseries pvc double vitrage et volets roulants électriques. N’hésitez pas à partager votre projet avec moi. Sophie gaillard e. I. (06 80 70 34 78) rsac 844.671. 537 statut agent commercial. Agence immobilière valdor montmerle "les informations sur les risques auxquels ce bien est exposé sont disponibles sur le site géorisques : ".
Découvrez cette maison familiale située à amareins, sur la commune de francheleins, offrant une superficie de 200 m². Avec ses sept chambres et neuf pièces, elle est idéale pour accueillir une grande famille. Les fenêtres en pvc à double vitrage et ses volets roulants électriques assurent confort et économie d'énergie. Profitez également d’un vaste terrain pour vous détendre. Cette propriété est équipée d’un portail électrique et d'un garage motorisé, ajoutant confort et sécurité. Pour votre tranquillité d'esprit, un visiophone est également installé. Le salon spacieux et lumineux offre un cadre de vie convivial et accueillant. La cuisine d'origine nécessite un budget pour modernisation, et bien que la maison soit, d'un point de vue général, très bien entretenue, elle demande un budget pour le rafraîchissement des peintures. Chauffage au fioul. Fanny blanchard 06 82 26 12 50. (gérante) agence du valdor montmerle-sur-saône. Les informations sur les risques auxquels ce bien est exposé sont disponibles sur le site géorisques : .
Sur les hauts de Montmerle, dans un lotissement, au calme, jolie maison sur sous-sol non enterré bâtie en 1984 sur un terrain clos d'environ 830 m². D'une surface habitable d'environ 110 m², le bien, exposée Est-Ouest se compose au rez-de-chaussée d'un grand garage avec espace chaufferie au sud, côté Nord, une cave, en Nord-Ouest une chambre et en Nord-Est une salle d'eau avec WC. Depuis le garage, côté Nord-Ouest, accès à l'étage principal par un escalier donnant sur un couloir qui distribue deux chambres avec placards, des toilettes séparées, puis une troisième chambre avec placards côté Ouest, un salle d'eau côté Est, puis une cuisine aménagée en chêne massif côté Est ainsi qu'un un salon exposé Est-Ouest d'environ 30 m² avec un insert à buches sur le mur Sud. Le salon donne accès à une terrasse couverte d'environ 11 m² côté Ouest avec un escalier extérieur carrelé permettant d'accéder au jardin. Le jardin, ceinturé de hautes haies de tuyas et d'un muret en moellons enduit d'un crépi blanc, est planté de nombreux arbres dont un cèdre, un bouleau et un chêne. Double vitrage et isolation d'origine et chauffage central au fioul. Portail sur rue motorisé. Accès au centre du village à 10 minutes à pied. Montant estimé des dépenses annuelles d'énergie pour un usage standard : entre 3890 € et 5330 €.Prix moyens des énergies indexés sur les années 2021,2022, 2023 (abonnements compris). Les informations sur les risques auxquels le bien est exposé sont disponibles sur le site Géorisques : .
MONTMERLE-SUR-SAÔNE. À proximité immédiate des bords de Saône, cette propriété datant du 18e a fait l'objet d'une rénovation en 2011. Le château est établi sur deux niveaux, le rez-de-chaussée offre une cuisine, une salle à manger, plusieurs salons de réception ainsi qu'un bureau et une salle d'eau. Accessible par trois escaliers, l'étage dessert sept chambres, une salle d'eau et trois salles de bain. Le parc arboré de près de deux hectares surplombe à la fois la Saône et le Beaujolais. En complément, on trouve une piscine intérieure chauffée avec espace de détente, un tennis, une maison d'invités avec son jardin privatif, un garage et une serre. Honoraires à la charge du vendeur - Montant estimé des dépenses annuelles d'énergie pour un usage standard, établi à partir des prix de l'énergie de l'année 2021 : 9530€ ~ 12960€ - Les informations sur les risques auxquels ce bien est exposé sont disponibles sur le site Géorisques : .
Autres annonces à proximité de Montmerle-sur-Saône (01090) avec vos critères
Iad France - Christelle Klein vous propose : FRANCHELEINS Située dans un secteur résidentiel, belle maison plain pied 5 pièces de 128 m² construite en 2005 sur un terrain de 750 m² clos et arboré. Vous serez séduit dès l'entrée par le bel espace de vie traversant de 55 m² environ avec sa cuisine équipée ouverte sur le salon-salle à manger chaleureux et convivial donnant accès à la terrasse, un cellier attenant à la cuisine complète cet espace. Côté nuit, vous apprécierez les 4 grandes chambres, la salle de bain avec douche et baignoire de, WC séparé. Sa terrasse et son jardin potager offrent un espace de verdure agréable, idéal pour tous. Côté pratique, un car port attenant de 28 m² vous permet de stationner plusieurs véhicules et en complément deux cabanons dont un électrifié et servant d'atelier pour le stockage. Les équipements de confort tels que : le chauffage au sol, le poêle à granulés, moustiquaires, fibre optique, store banne, portail motorisé, assurent une qualité de vie au quotidien. Cette maison présente de nombreux atouts, aucun travaux à prévoir ! Ne manquez pas l'opportunité de visiter ce bien et de vous projeter dans votre futur lieu de vie Honoraires d'agence à la charge du vendeur. Information d'affichage énergétique sur ce bien : classe ENERGIE D indice 191 et classe CLIMAT B indice 6. Les informations sur les risques auxquels ce bien est exposé, y compris l'obligation légale de débroussaillement, sont disponibles sur le site Géorisques : La présente annonce immobilière a été rédigée sous la responsabilité éditoriale de Mme Christelle Klein mandataire indépendant en immobilier (sans détention de fonds), agent commercial de la SAS I@D France immatriculé au RSAC de LYON sous le numéro 823116744, titulaire de la carte de démarchage immobilier pour le compte de la société I@D France SAS.
Iad France - Myriam Devesa vous propose : Grande maison familiale, idéale pour une famille recomposée avec un besoin d'espace pour chacun ou pour une profession libérale avec son premier niveau indépendant. Habitable de suite avec une structure en parfaite état (huisserie, volet roulant, toiture,. ) il ne lui reste qu'un bon coup de peinture, la mise en place d'un parquet et d'une cuisine équipée pour la rendre moderne et à votre goût. Grand garage, une dépendance complémentaire et un superbe terrain. Honoraires d'agence à la charge du vendeur. Information d'affichage énergétique sur ce bien : classe ENERGIE E indice 320 et classe CLIMAT E indice 66. Les informations sur les risques auxquels ce bien est exposé, y compris l'obligation légale de débroussaillement, sont disponibles sur le site Géorisques : La présente annonce immobilière a été rédigée sous la responsabilité éditoriale de Mme Myriam Devesa mandataire indépendant en immobilier (sans détention de fonds), agent commercial de la SAS I@D France immatriculé au RSAC de Villefranche - Tarare sous le numéro 447789744, titulaire de la carte de démarchage immobilier pour le compte de la société I@D France SAS.
Montceaux 01090 - maison + dépendance surface utile totale : 267,64 m² cette maison est assez particulière… elle dispose d'une chambre et d'une salle d'eau au rez-de-jardin. Les deux autres sont à l'étage, elles se partagent la seconde salle de bains. Les deux wc sont séparés. Elle dispose de trois garages (24.52 m², 26.10 m² et 35.69 m², au total 86,31 m²). Une maison annexe d'une surface de 99 m² dont 69.95 m² de plain-pied ne demande qu'à être aménagée. La cour gravillonnée de 350 m² permet de stationner quelques véhicules si besoin… en ce qui concerne les détails qui peuvent aussi compter pour vous : - poêle à granulés - pompe à chaleur air / eau - huisseries pvc double vitrage - volets électriques - portail électrique à crémaillère - terrain entièrement clos et piscinable (1.760 m²) - terrasse de 70 m² environ très belle exposition, calme absolu, très peu de voisins. Je suis à votre disposition pour répondre à toutes vos questions, de préférence par téléphone, vous indiquer le code secret qui déverrouille l'accès à la visite à distance (visite virtuelle) et organiser "une vraie visite" si vous le désirez. - inter-agence bienvenue - les honoraires sont à la charge du vendeur. Les informations sur les risques auxquels ce bien est exposé sont disponibles sur le site géorisques : www. Georisques. Gouv. Fr. Réseau immobilier capifrance - votre agent commercial (rsac n°424 231 421 - greffe de bourg en bresse) gilles deshayes entrepreneur individuel à responsabilité limitée 07 69 46 22 22 - réf. 910802.
-Exclusivité- Belleville en Beaujolais Vous recherchez une maison récente (2017) sans travaux a prévoir et en prime de plain pied alors cette maison est faite pour vous ! À proximité des axes autoroutiers, venez découvrir cette maison d'environ 100 m² habitables sur parcelle de terrain de 480 m². La maison se compose d'un séjour avec cuisine ouverte donnant sur le jardin et sur une terrasse couverte. Vous trouverez également 4 chambres, une salle de bain et une salle d'eau dans une chambre. Vous pourrez profiter également d'une piscine hors sol quand les beaux jours arriveront ! Une buanderie et un un garage complètent le bien. Aucun travaux à prévoir ! Pour plus d'information ou pour planifier une visite contactez moi au 06 66 60 84 64 ! Christopher BOVET, agent commercial immatriculé au RSAC de Bourg en Bresse sous le numéro 824997886 EI Les informations sur les risques auxquels ce bien est exposé sont disponibles sur le site Géorisques : .
Guereins (01090) - exclusivité raphaël masci - jardin à l'exposition traversante est / ouest agrémenté d'une piscine pour cette villa d'environ 145 m² construite sur un terrain de 1121 m². La pièce de vie de près de 85 m² s'ouvre sur la terrasse et le jardin. La cuisine est entièrement équipée et ouverte sur le séjour. Cette maison dispose de trois chambres, d'une grande salle de bains et d'une buanderie. Le garage de 30 m² et la cour permettent de stationner plusieurs véhicules dans l'enceinte de la propriété. Gare sncf et accès a6 à 5 minutes. Les informations sur les risques auxquels ce bien est exposé sont disponibles sur le site géorisques : exclusivité valdor - pour visiter, vous pouvez prendre rendez-vous auprès de raphaël masci au 06 68 85 69 69. Responsabilité civile professionnelle n° vd 7.000. 001 / 19373.
Exclusivité Catherine Sagnes Agence du Valdor Belleville : Sur la commune de Belleville-en-Beaujolais, proche de toutes les commodités à pied : écoles, collèges, lycées, commerces, gare et proche des axes autoroutiers, venez découvrir cette maison récente construite en 2021 de 124 m² habitables sur une parcelle de 387 m². Au rez-de-chaussée vous trouverez une entrée, une cuisine de 15 m², une pièce de vie ouverte sur l'extérieur, une buanderie, des toilettes. Au premier étage, une salle de bain, 4 chambres dont une avec terrasse et des toilettes. Un garage complète ce bien. Si ce projet vous intéresse, n'hésitez-pas à me contacter pour organiser une visite. Catherine Sagnes : 06 58 00 73 35 Agence du Valdor belleville Rsac Bourg - en - Bresse : 848238721 Les informations sur les risques auxquels ce bien est exposé sont disponibles sur le site Géorisques .
10 m² OFFERT + CUISINE OFFERTE + PACK DECO OFFERT (peintures + parquet des chambres + faïence sdb + placards pour nos 50 ans. À vendre : Charmante maison individuelle de 90 m² avec 4 chambres sur la commune de Chaneins Vous recherchez le foyer idéal pour votre famille dans un cadre paisible et accueillant ? Ne cherchez pas plus loin ! Cette maison individuelle de 90 m², située dans la charmante commune de Chaneins, est le parfait futur projet de construction pour vous. Située sur un terrain spacieux de 500 m², cette maison offre un espace extérieur généreux pour profiter des journées ensoleillées en famille ou entre amis. À l'intérieur, vous trouverez quatre chambres lumineuses, offrant amplement d'espace pour accueillir votre famille et vos invités. La maison est également équipée d'une pompe à chaleur, assurant un confort thermique optimal tout au long de l'année, ainsi que des volets roulants motorisés pour plus de praticité au quotidien. Située dans un quartier calme et familial, cette maison est idéalement située à proximité des commodités locales, des écoles et des transports en commun, offrant ainsi un cadre de vie pratique et agréable pour toute la famille. Ne manquez pas cette opportunité unique de réaliser votre rêve d'acquérir une maison neuve dans un cadre enchanteur. Contactez-nous dès aujourd'hui pour organiser une visite et découvrir tout le potentiel de cette charmante maison à Chaneins. Terrain proposé et vendu par notre partenaire foncier selon disponibilités, le constructeur n’étant pas mandaté pour réaliser la vente du terrain. Prix terrain inclus : 92 000 € Frais de notaire non inclus : € Prix maison inclus : 157 139 € VRD non inclus : € Hors aménagements extérieurs (extensions, terrasse, piscine etc), papiers peints, peintures, moquettes dans les chambres (tarif en vigueur au 20 mai 2025, modifiable sans préavis, prix variables suivant les prestations souhaitées). Hors frais d’hypothèque. Différents modèles disponibles pour chaque terrain. Assurance RC professionnelle / décennale / dommage ouvrage groupe Aviva. Garantie de remboursement de l'acompte / livraison à prix et délai convenu CGI. Partenaire financier : à préciser Le numéro de TVA intracommunautaire : FR 14 498 627 272 00012 Contact : contact@maisons-punch.fr.
Exclusivité valdor / elodie lefevre - raphaël masci à saint-georges-de-reneins, dans un hameau résidentiel, découvrez cette maison de plain-pied d’environ 146 m², édifiée en 1975 sur une parcelle de 814 m². Entièrement rénovée en 2023, elle offre de beaux volumes, des prestations soignées et un cadre de vie paisible, tout en restant proche des commodités et des accès routiers et autoroutiers. La pièce de vie de plus de 50 m², lumineuse et ouverte sur l’extérieur, intègre une cuisine ouverte équipée et bien agencée. La maison dispose de deux espaces nuit distincts. Le premier accueille trois chambres de 12 à 13 m² ainsi qu’une salle de bain comprenant douche et baignoire. Le second donne accès à une quatrième chambre de 19 m². Un wc séparé, une buanderie et une cave en sous-sol de 28 m² complètent l’ensemble. À l’extérieur, une véranda permet de profiter de la terrasse en toute saison. Pour toute demande de renseignement, contactez élodie lefevre au o6 95 62 82 92 - agent commercial immatriculé au rsac de villefranche - tarare sous le numéro 789 141 025 - agence immobilière valdor. Les informations sur les risques auxquels ce bien est exposé sont disponibles sur le site géorisques : .
Dans le centre de Belleville, maison de ville en triplex entièrement à rénover exposée Nord-Sud avec courette et garage. D'une surface d'environ 130 m² à rénover, le bien se compose au rez-de-chaussée d'un garage et d'une pièce donnant sur la petite cour. Accès au 1er étage par un très bel escalier de pierre desservant 4 pièces dont une avec une cheminée, un évier en pierre, un dégagement et un balcon. Second étage actuellement en grenier également exploitable et avec un balcon. La toiture a été refaite et compteur EDF existant. Les autres réseaux sont à proximité du bien dans la rue. Bien non soumis à DPE. Un bien dans son jus à rénover et faire revivre. À voir sans hésitation. Les informations sur les risques auxquels le bien est exposé sont disponibles sur le site Géorisques : .
À vendre maison familiale rénovée sur la commune de Saint Georges de Reneins, située à proximité immédiate de toutes les commodités. Sur un terrain de 2080 m² vous aurez un cadre agréable, sans vis à vis. Elle offre de beaux volumes et se compose d'une vaste pièce de vie de 64 m² avec cuisine ouverte, cellier, placards, sde et wc. À l'étage le coin nuit se compose de 3 chambres dont une suite parentale avec sde, dressing, et un bureau. L'extérieur se divise en plusieurs espaces, un préau, deux terrasses, une piscine et un grand terrain. Un atelier et une cour pour se garer, possibilité pour un garage ou car-port, cette maison allie le charme et le confort, contactez moi pour plus de détails et une visite F. Romi 07 50 97 03 74 Vous pouvez contacter Françoise ROMI 07 50 97 03 74 francoise.romi@rhone-saone-immo.com.
Située à Guéreins, à seulement 5 minutes du péage d'autoroute et de Belleville-en-Beaujolais et à 10 minutes de la gare, cette maison de plain-pied d'environ 95 m² construite en 2008 vous offre un cadre de vie agréable, au calme, tout en restant proche de toutes les commodités. Implantée sur un terrain de 800 m² dans un environnement paisible avec de nombreuses possibilités de stationnement à proximité, elle sera idéale pour faciliter votre quotidien. Les écoles de la petite section au CM2 se trouvent à seulement 2 minutes à pied et les commerces, supermarché, salle de sport, crèches et collège sont accessibles en 2 minutes en voiture. La maison s'ouvre sur un grand hall d'entrée avec placard menant à une cuisine ouverte sur un salon et une salle à manger lumineux avec un accès direct à une terrasse sans vis-à-vis. Elle dispose de 4 chambres d'environ 10 m² chacune avec de grands placards muraux., d'une salle de douche et d'un WC séparé. Un garage parfaitement isolé d'environ 20 m² vient compléter ce bien. Le chauffage est assuré par un poêle à bois ainsi que par des convecteurs électriques en complément. Fonctionnelle, bien entretenue et idéalement située, cette maison représente une belle opportunité à découvrir sans tarder. N'hésitez pas à me contacter pour toute information complémentaire ou pour organiser une visite. Les informations sur les risques auxquels ce bien est exposé sont disponibles sur le site Géorisques : Prix de vente : 285 000 € Honoraires charge vendeur Contactez votre conseiller SAFTI : Cédric MAZILLER, Tél. : 06 17 38 09 69, E-mail : cedric.maziller@safti.fr - EI - Agent commercial immatriculé au RSAC de Bourg-en-Bresse sous le numéro 983 039 231.