Logo LSI sombre

Appartement 4 Pièces 79 m² à vendre à Annemasse (74100)
Photo N° 2
2

Vente appartement 4 pièces 79 m² Annemasse (74100)

334 000 €

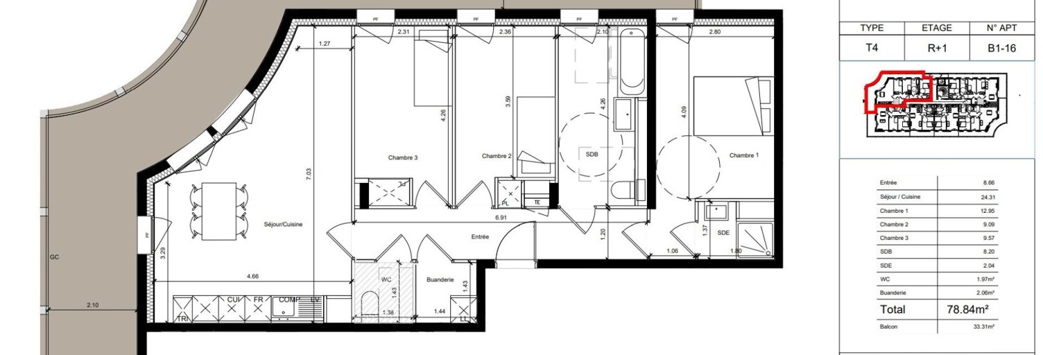
APPARTEMENT T4 BALCON 33.3 M² + PARKING + CAVE

Dans une nouvelle résidence engagée et vertueuse à annemasse au cœur de l'écoquartier château rouge, à 10km de genève et au pied du futur tram. Je vous présente cet appartement neuf de 4 pièces, tva réduite ! Cave et surface extérieure : balcon 33.30 m² stationnement en sous-sol. Résidence vertueuse aux nombreux labels environnement. Prestations soignées, chauffage au sol, le bien comprend 3 lots, et il est situé dans une copropriété de 236 lots (il n'y a pas de charges courantes liées à la copropriété et le syndicat des copropriétaires ne fait pas l'objet d'une procédure citée à l'article l. 721-1 du code de la construction et de l'habitation). Les informations sur les risques auxquels ce bien est exposé sont disponibles sur le site géorisques : prix de vente : 334 000 € honoraires charge vendeur contactez votre conseiller safti : dominique prieto, tél. : 06 99 98 12 66, e-mail : dominique.prieto@safti.fr - ei - agent commercial immatriculé au rsac de thonon-les-bains sous le numéro 441 059 466.

Caractéristiques

Les plus de cette annonce
  • Cave
Confort
  • Chauffage au sol
Pièces
  • 4 pièces
  • 3 chambres
  • 1 WC
  • Salle de bain
Superficies
  • Surface habitable : 79 m²
Extérieur
  • Balcon

Consommation énergétique et gaz à effet de serre

Bilan énergétique (DPE)
NC
Bilan gaz à effet de serre (GES)
NC

Géorisques

Les informations sur les risques auxquels ce bien est exposé sont disponibles sur le site Géorisques : www.georisques.gouv.fr

À propos de la copropriété

  • Nombre de lots de la copropriété : 236

A propos du prix de cet appartement

  • Prix : 334 000 € (soit 4 228 € / m²)
  • Honoraires à charge vendeur

À propos de cette annonce

Mise en ligne:

Dernière mise à jour:

Référence de l'annonce: 1622635
SAFTI agence immobilière à Toulouse (31)
SAFTI
Afficher le numéro

Appartement similaires à acheter Annemasse (74100)

Appartement 4 pièces 339000 €
339 000 €

Appartement 4 pièces 75 m²

Annemasse (74100)

Iad France - Elodie Ribiere vous propose : Coup de COEur : T4 Lumineux avec Vue Salève – Construction 2021 Vous recherchez le confort du neuf sans l’attente de la construction ? Découvrez ce magnifique T4 de 75 m², alliant modernité, finitions soignées et une vue imprenable. Situé au 5ème étage d'une résidence sécurisée de haut standing (2021), cet appartement est prêt à vous accueillir : aucuns travaux à prévoir. Dès l'entrée, vous serez séduit par la luminosité naturelle qui baigne chaque pièce : •Espace de vie : Une cuisine moderne entièrement équipée et ouverte sur le séjour. •Extérieur : Un large balcon de 11 m², véritable pièce supplémentaire pour vos repas en extérieur face à la vue dégagée sur le Salève. •Espace nuit : Trois chambres •Côté pratique : Une salle de bain contemporaine, un WC séparé et un cellier privatif pour un rangement optimal. Les 'Plus' qui font la différence •Stockage rare : Une cave située directement sur le palier (un vrai confort au quotidien ! ). •Vie de copropriété : Accès aux carrés potagers partagés au pied de l'immeuble. •Stationnement : Possibilité d'acquérir un garage double en longueur en supplément. •Économies d'énergie : Excellente isolation et garanties décennales en cours. •Transports : Accès rapide au Tram et aux lignes de Bus •Sécurité : Résidence récente, calme et sécurisée. Ce bien coche toutes vos cases ? Ne tardez pas à venir le découvrir. Contactez-moi dès maintenant pour organiser une visite et laisser le charme opérer ! La presente annonce immobiliere vise 2 lots situés dans une copropriété de 172 lots au total et ne faisant l'objet d'aucune procédure en cours citée à l'article L. 721-1 du code de la construction et de l'habitation. Montant moyen mensuel de charges déclaré par le vendeur : 133.82€ par mois (soit 1605.88 € annuel). Honoraires d'agence à la charge du vendeur. Information d'affichage énergétique sur ce bien : classe ENERGIE C indice 105 et classe CLIMAT C indice 21. Les informations sur les risques auxquels ce bien est exposé, y compris l'obligation légale de débroussaillement, sont disponibles sur le site Géorisques : La présente annonce immobilière a été rédigée sous la responsabilité éditoriale de Mme Elodie Ribiere mandataire indépendant en immobilier (sans détention de fonds), agent commercial de la SAS I@D France immatriculé au RSAC de THONON LES BAINS sous le numéro 832 266 860, titulaire de la carte de démarchage immobilier pour le compte de la société I@D France SAS.

Appartement 4 pièces 400000 €
400 000 €

Appartement 4 pièces 75 m²

Annemasse (74100)

Ce programme immobilier neuf à Annemasse, au cœur de la Haute-Savoie, s’inscrit dans l’un des secteurs les plus prisés du bassin genevois. Dynamique et parfaitement équipée, la commune séduit par sa situation privilégiée, entre vitalité urbaine, proximité des commerces, infrastructures pour toute la famille et accès rapide aux massifs montagneux et stations de sports d’hiver. Un cadre idéal pour conjuguer qualité de vie et nature préservée. Implantée à quelques rues du centre-ville, face au Bois de Collonges, la résidence offre une atmosphère résidentielle sereine et intimiste, composée de seulement 10 logements neufs, du 2 au 4 pièces. Chaque appartement profite d’une conception soignée, d’espaces optimisés et de belles orientations permettant à la lumière naturelle d’illuminer généreusement les pièces de vie. Les prestations haut de gamme renforcent le confort quotidien : salle de bain équipée, vidéophone, porte palière sécurisée 3 points, cave, double vitrage, chauffage individuel au gaz, WC suspendus ou encore volets roulants. Les extérieurs privatifs – terrasses ou balcons – prolongent les intérieurs et créent de véritables espaces de respiration pour partager des moments conviviaux en famille ou entre amis. Une opportunité rare de devenir propriétaire dans un programme immobilier neuf alliant sérénité, confort moderne et cadre privilégié au cœur d’Annemasse. Découvrez également nos 179 autres résidences dans le 74 : Rendez-vous dans notre Agence Médicis Immobilier Neuf, 77 rue Madame de Staël, Saint-Julien-en-Genevois 74160. Les informations sur les risques auxquels ce bien est exposé sont disponibles sur le site Géorisques : .

Appartement 4 pièces 334000 €
334 000 €
-21 %

Appartement 4 pièces 77 m²

Annemasse (74100)

Résidence livrée, emménagez dès maintenant. Dernières opportunités à saisir ! Plus que 4 appartements du 2 au 4 pièces avec balcon ou terrasse. Venez visiter notre appartement témoin décoré ! Avec ce programme immobilier neuf, les nouveaux constructeurs proposent une adresse de choix dans le centre-ville d'annemasse. Essentielles commodités à distance piétonne : établissements scolaires, commerces, équipements publics, parcs, bus, etc. Atout supplémentaire pour les actifs transfrontaliers : une station du tram 17 à 700 m ou le léman express en gare à 550 m vous emmènent à genève en moins de 30 min. Cette résidence d'architecture contemporaine accueille des appartements neufs du studio au 5 pièces, avec balcons, loggias, terrasses, jardins privatifs. Double orientation majoritaire dès le 3 pièces. Programme rt 2012 avec parking privatif et de beaux espaces verts communs. * voir conditions sur lnc. Fr.

À voir pour le même budget

Appartement 3 pièces 310000 €
310 000 €

Appartement 3 pièces 88 m²

Annemasse (74100)

Au cœur du centre-ville d'Annemasse, ce grand appartement T3 traversant situé au 3ᵉ étage d'une copropriété de cinq niveaux avec ascenseur, porte blindée, offre un cadre de vie lumineux et particulièrement agréable. Grâce à son exposition est / ouest, la lumière accompagne chaque moment de la journée et met en valeur les volumes généreux de ce bien. L'appartement se compose d'un séjour accueillant ouvrant sur un balcon, d'une cuisine aménagée, de deux chambres confortables et spacieuses, d'une salle de bain et de toilettes séparées. Deux balcons permettent de profiter d'un extérieur appréciable, tandis qu'une cave et un grenier complètent l'ensemble et offrent de précieux espaces de rangement. Bien que le logement ne dispose pas de place de parking, des solutions de stationnement se trouvent facilement à proximité. Idéalement situé, l'appartement bénéficie d'un accès immédiat aux commerces, aux services et aux transports, avec la gare d'Annemasse accessible en quelques minutes seulement, il est pertinent également pour de la colocation. Une opportunité rare pour profiter d'un emplacement central, pratique et recherché. Nombre de lots de la copropriété : 30, Montant moyen annuel de la quote-part de charges (budget prévisionnel)(Chauffage, eau, charges de copropriété + fond de travaux) : 4160€ soit 346€ par mois. Les honoraires sont à la charge du vendeur. Les informations sur les risques auxquels ce bien est exposé sont disponibles sur le site Géorisques : www. georisques. gouv. fr. Réseau Immobilier CAPIFRANCE - Votre agent commercial (RSAC N°880 334 057 - Greffe de THONON LES BAINS) Sabrina MATEUS Entrepreneur Individuel 06 88 61 24 40 - Réf. 946968.

Appartement 3 pièces 275000 €
275 000 €
-3 %

Appartement 3 pièces 61 m²

Annemasse (74100)

Iad France - Elodie Ribiere vous propose : Appartement T3 61 m² Annemasse Découvrez ce charmant appartement de 3 pièces situé à 17 minutes à pied du parc Montessuit ou 14 minutes à pied du futur terminus du Tram, au sein d’une résidence récente et sécurisée de 2018. Avec ses 61 m² parfaitement agencés, ce bien offre un confort de vie moderne et fonctionnel. Entrée avec cellier pouvant être aménagé pour un confort de rangement optimal, cuisine ouverte sur séjour moderne et équipée, avec son retour plan de travail pour bénéficier d'un espace de repas centrale. Il ne vous manque plus qu'à créer un coin séjour cocooning pour vous sentir dans un cocon à deux pas du centre d'Annemasse. Le séjour s'ouvre sur un balcon permettant de manger et de profiter des premiers rayons du soleil avec son exposition EST. En contre bas de l'immeuble la copropriété bénéficie d'un jardin agréable et sécurisé pouvant permettre à votre enfant de jouer en toute sécurité. Un couloir avec un grand placard de rangement équipé dessert 2 chambres chacune avec son placard intégré et aménagé. Enfin une salle de bain confortable avec emplacement pour la machine à laver, wc indépendant. Vous bénéficiez en plus d'une cave et possibilité d'acquérir un garage en supplément. ATOUTS : Appartement moderne à l'arrière de la route (Bonne performance énergétique) Jardin privatif à la copropriété sécurisé et fermé Possibilité d'acquérir un garage en supplément Exposition Est assurant une belle luminosité tout au long de la journée, Proximité immédiate des commerces et transports (bus, tram) A pied : 17 minutes du parc Montessuit ou 14 minutes du terminus du Tram Glières. Faibles charges de copropriété Cet appartement allie emplacement idéal, confort moderne et luminosité. Un véritable coup de cOEur à découvrir sans tarder ! Contactez-moi dès maintenant pour organiser une visite ! La presente annonce immobiliere vise 2 lots situés dans une copropriété de 120 lots au total et ne faisant l'objet d'aucune procédure en cours citée à l'article L. 721-1 du code de la construction et de l'habitation. Montant moyen mensuel de charges déclaré par le vendeur : 102.33€ par mois (soit 1228 € annuel). Honoraires d'agence à la charge du vendeur. Information d'affichage énergétique sur ce bien : classe ENERGIE C indice 81 et classe CLIMAT C indice 15. Les informations sur les risques auxquels ce bien est exposé, y compris l'obligation légale de débroussaillement, sont disponibles sur le site Géorisques : La présente annonce immobilière a été rédigée sous la responsabilité éditoriale de Mme Elodie Ribiere mandataire indépendant en immobilier (sans détention de fonds), agent commercial de la SAS I@D France immatriculé au RSAC de THONON LES BAINS sous le numéro 832 266 860, titulaire de la carte de démarchage immobilier pour le compte de la société I@D France SAS.

Appartement 5 pièces 380000 €
380 000 €

Appartement 5 pièces 104 m²

Annemasse (74100)

L'Agence immobilière CG PROPERTY à SCIEZ vous propose : Au sein d'un environnement verdoyant, proche du centre-ville et des transports, appartement T5 traversant, sans vis-à-vis, totalisant 103,48 m² Loi CARREZ. Situé au 4ème étage avec ascenseur dans une résidence calme, sécurisée et très bien entretenue, il se compose de : Entrée avec de grands placards intégrés, cuisine équipée neuve, ouverte sur le séjour exposé SUD, balcon sans vis-à-vis disposant d'une vue dégagée sur la nature et les montagnes, une première chambre parentale avec douche, meuble vasque et wc séparés, trois autres chambres spacieuses, une salle de douche avec espace buanderie ainsi qu'un wc séparé. Il bénéficie également d'un grand garage en sous-sol ainsi que d'une cave privative. Possibilité d'installer une borne de recharge dans le garage. Copropriété très bien entretenue, équipée de vidéosurveillance. Parc et parkings publics disponibles au pied de la résidence. Idéalement agencé, il se démarque non seulement par sa luminosité, l'absence de vis-à-vis, sa vue dégagée sur la nature mais également par son emplacement de choix qui permet de profiter du calme tout en conservant un accès rapide à toutes les commodités à pied : Écoles, transports en commun (Tram, bus, gare. ), commerces, marché, piscine, principaux pôles culturels… Sans travaux à prévoir, ce bien est idéal pour une famille qui souhaite s'installer sans attendre, ou pour un projet locatif (Location longue durée, meublée, colocation. Bon rendement locatif). Nous sommes à votre entière disposition pour plus d'informations ou pour convenir d'un rendez-vous de visite. "Les informations sur les risques auxquels ce bien est exposé sont disponibles sur le site georisques Nombre de lots : 30 / Charges annuelles avec fonds de travaux ALUR : 1989 / Pas de procédures DPE C - Montant estimé des dépenses d'énergie pour un usage standard, abonnements compris : entre 1350 et 1826 / an. Prix moyens des énergies indexés sur l'année 2021." Diffuze : votre prestataire de diffusion d'annonces immobilières.

Appartement 3 pièces 342900 €
342 900 €

Appartement 3 pièces 61 m²

Annemasse (74100)

DERNIERES OPPORTUNITES ! Découvrez la Villa Salève à Annemasse : Idéalement située Rue d’Étrembières, dans le quartier le plus prisé d’Annemasse, la Villa Salève vous ouvre ses portes en avant-première. Nichée entre les rives de l’Arve et les collines du Salève, cette résidence rare conjugue nature, sérénité et art de vivre, à seulement quelques minutes du cœur de ville et de la frontière Suisse. Vous profiterez d’un cadre de vie privilégié, alliant la tranquillité d’un environnement arboré à la proximité immédiate des transports, commerces et services du quotidien : - Au pied de l’arrêt lycée professionnel - 200 mètres des pistes cyclables - 1.5km gare d’Annemasse et Leman express. Avec seulement 18 appartements, la Villa Salève propose une adresse confidentielle et intimiste, au cœur d’un jardin soigneusement paysagé. Chaque logement bénéficie de beaux volumes, de prestations de qualité et d’un design architectural élégant et contemporain. Les façades épurées, subtilement animées par le jeu des balcons terrasse et des matières (béton brut, enduits blancs et beiges), créent une esthétique moderne, rythmée et harmonieuse. Vivez l’exception au quotidien, au pied du Salève et aux portes de Genève. Tous les logements bénéficient de parkings et de celliers. Contactez-nous dès maintenant pour bénéficier du lancement en avant-première et choisir votre futur appartement en priorité. Sur rendez vous du lundi au samedi : 05 62 27 27 16 Les informations sur les risques auxquels ce bien est exposé sont disponibles sur le site Géorisques : .

Appartement 3 pièces 270000 €
270 000 €
-3 %

Appartement 3 pièces 79 m²

Annemasse (74100)

Iad France - Marie Hélène Mondié vous propose : T3 coup de cOEur – Lumineux – Proche centre-ville & tramway Situé à deux pas du centre-ville, à seulement 10 minutes du tramway et du parc, découvrez cet appartement T3 alliant confort, luminosité et praticité du quotidien. Dans une copropriété soignée et bien entretenue, ce 3 pièces séduit par son agencement optimisé et son état impeccable. Espace jour : un séjour très lumineux et accueillant, ainsi qu’une cuisine séparée, fonctionnelle et dotée de nombreux rangements. Espace nuit : deux chambres confortables dont une avec accès direct à un grand balcon, une salle d’eau et un WC indépendant. Annexes : une cave privative et 2 garages collectifs complètent ce bien (possibilité de louer un garage supplémentaire), le parking CLos Fleury se trouve à 1 min à pied du bien. Atouts : placards de rangement, proximité immédiate des écoles, commerces, services et police municipale pour plus de sérénité. Un plus considérable : le ravalement de façade prévu en janvier 2026 est déjà payé par les propriétaires, gage de tranquillité et de valorisation future (DPE passant de F à D). On adore : sa luminosité, son grand balcon, ses rangements, sa localisation idéale et la sérénité d’un ravalement déjà financé. Au plaisir d'échanger avec vous sur cette belle proposition️️️ ! La presente annonce immobiliere vise 2 lots situés dans une copropriété de 156 lots au total et ne faisant l'objet d'aucune procédure en cours citée à l'article L. 721-1 du code de la construction et de l'habitation. Montant moyen mensuel de charges déclaré par le vendeur : 284€ par mois (soit 3408 € annuel). Honoraires d'agence à la charge du vendeur. Information d'affichage énergétique sur ce bien : classe ENERGIE F indice 341 et classe CLIMAT F indice 74. Les informations sur les risques auxquels ce bien est exposé, y compris l'obligation légale de débroussaillement, sont disponibles sur le site Géorisques : La présente annonce immobilière a été rédigée sous la responsabilité éditoriale de Mme Marie Hélène Mondié mandataire indépendant en immobilier (sans détention de fonds), agent commercial de la SAS I@D France immatriculé au RSAC de Annecy sous le numéro 893875203, titulaire de la carte de démarchage immobilier pour le compte de la société I@D France SAS.

Appartement 4 pièces 303000 €
303 000 €
+8 %

Appartement 4 pièces 85 m²

Annemasse (74100)

Offre exceptionnelle : frais de notaire offerts * programme en tva a 5,5 % * . Aux portes d'annemasse, à seulement 10 km de genève, découvrez notre résidence située dans le cadre verdoyant de l'écoquartier château rouge ! Ce projet contemporain, éligible à la tva 5,5%, propose des appartements du 2 au 4 pièces duplex, avec balcons ou terrasses, dans un environnement apaisant. Profitez d'une qualité de vie exceptionnelle grâce à la proximité des écoles, commerces, loisirs et transports (future station de tramway annemasse - genève à 300 m, prévue pour fin 2025 / début 2026). Une opportunité unique de vivre entre nature, modernité et accessibilité, au cœur d'annemasse ! *voir conditions sur lnc. Fr.