Logo LSI sombre

Appartement 3 Pièces 64 m² à vendre à Saint-Maur-des-Fossés (94210)
Photo N° 2
2

Vente appartement 3 pièces 64 m² Saint-Maur-des-Fossés (94210)

495 000 €

Vente Appartement 3 pièces

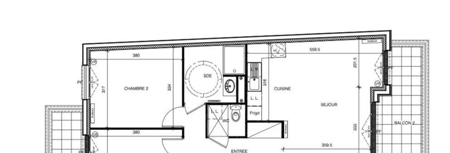
Iad france - danielle iglesias (06 60 66 60 92) vous propose : la varenne-les muriers. Dans une petite résidence sécurisée de bon standing, bel appartement 3 pièces traversant avec 2 terrasses situé au 3 ème étage. Il se compose d'un séjour donnant sur terrasse avec cuisine ouverte, 2 chambres, salle d'eau et wc séparé. Immeuble répondant aux normes handicapés, re 2020 et rt 2012. Une place de parking en sous sol complète ce bien. D'autres lots sont disponibles. Me contacter. Honoraires d’agence à la charge du vendeur. Bien non soumis au dpe. Les informations sur les risques auxquels ce bien est exposé sont disponibles sur le site géorisques : . La présente annonce immobilière a été rédigée sous la responsabilité éditoriale de mme danielle iglesias ei (id 15704), mandataire indépendant en immobilier (sans détention de fonds), agent commercial de la sas i@d france immatriculé au rsac de creteil sous le numéro 811536846, titulaire de la carte de démarchage immobilier pour le compte de la société i@d france sas. Retrouvez tous nos biens sur notre site internet. .

Caractéristiques

Les plus de cette annonce
  • Ascenseur
  • Parking
  • Meublé
  • Terrasse
  • Standing
Confort
  • Chauffage Collectif
  • Chauffage Gaz
Pièces
  • 3 pièces
  • 2 chambres
  • Salle d'eau
  • Cuisine ouverte
Superficies
  • Surface habitable : 64 m²
Sécurité
  • Digicode
  • Interphone

Consommation énergétique et gaz à effet de serre

Bilan énergétique (DPE)
NC
Bilan gaz à effet de serre (GES)
NC

Géorisques

Les informations sur les risques auxquels ce bien est exposé sont disponibles sur le site Géorisques : www.georisques.gouv.fr

A propos du prix de cet appartement

  • Prix : 495 000 € (soit 7 734 € / m²)
  • Honoraires à charge vendeur

À propos de cette annonce

Mise en ligne:

Dernière mise à jour:

Référence de l'annonce: 1639962-9
iad france agence immobilière à Lieusaint (77127)
iad france
Afficher le numéro

Appartement similaires à acheter Saint-Maur-des-Fossés (94210)

Appartement 3 pièces 485000 €
485 000 €

Appartement 3 pièces 64 m²

Saint-Maur-des-Fossés (94210)

Iad france - danielle iglesias (06 60 66 60 92) vous propose : la varenne-les muriers. Dans une petite résidence sécurisée de bon standing, bel appartement 3 pièces traversant avec 2 terrasses situé au 2ème étage. Il se compose d'un séjour donnant sur terrasse avec cuisine ouverte, 2 chambres dont une suite parentale avec salle d'eau, salle d'eau indépendante et wc séparés. Immeuble répondant aux normes handicapés, re 2020 et rt 2012. Une place de parking en sous sol complète ce bien. D'autres lots sont disponibles. Me contacter. Honoraires d’agence à la charge du vendeur. Bien non soumis au dpe. Les informations sur les risques auxquels ce bien est exposé sont disponibles sur le site géorisques : . La présente annonce immobilière a été rédigée sous la responsabilité éditoriale de mme danielle iglesias ei (id 15704), mandataire indépendant en immobilier (sans détention de fonds), agent commercial de la sas i@d france immatriculé au rsac de creteil sous le numéro 811536846, titulaire de la carte de démarchage immobilier pour le compte de la société i@d france sas. Retrouvez tous nos biens sur notre site internet. .

Appartement 3 pièces 475000 €
475 000 €

Appartement 3 pièces 64 m²

Saint-Maur-des-Fossés (94210)

Iad france - danielle iglesias (06 60 66 60 92) vous propose : la varenne-les muriers. Dans une petite résidence sécurisée de bon standing, bel appartement 3 pièces traversant avec 2 terrasses situé au 1er étage. Il se compose d'un séjour donnant sur terrasse avec cuisine ouverte, 2 chambres, salle d'eau indépendante et wc séparés. Immeuble répondant aux normes handicapés, re 2020 et rt 2012. Une place de parking en sous sol complète ce bien. D'autres lots sont disponibles. Me contacter. Honoraires d’agence à la charge du vendeur. Bien non soumis au dpe. Les informations sur les risques auxquels ce bien est exposé sont disponibles sur le site géorisques : . La présente annonce immobilière a été rédigée sous la responsabilité éditoriale de mme danielle iglesias ei (id 15704), mandataire indépendant en immobilier (sans détention de fonds), agent commercial de la sas i@d france immatriculé au rsac de creteil sous le numéro 811536846, titulaire de la carte de démarchage immobilier pour le compte de la société i@d france sas. Retrouvez tous nos biens sur notre site internet. .

Appartement 3 pièces 518000 €
518 000 €

Appartement 3 pièces 64 m²

Saint-Maur-des-Fossés (94100)

Votre agence 123webimmo vous présente : Situé au 2ème étage d'une résidence de standing, cet appartement 3 pièces de 64 m² offre un cadre de vie confortable et fonctionnel, idéal pour une vie de famille. L'agencement optimisé permet de profiter pleinement de chaque espace, avec une cuisine ouverte sur une belle pièce de vie et un balcon exposé SE, 2 chambres bien proportionnées, une salle de bain et un WC séparé. L'appartement se trouve dans le quartier prisé du Parc à Saint-Maur-des-Fossés, à seulement quelques minutes à pied du RER A, de la future ligne 15 du Grand Paris Express, ainsi que de toutes les commodités (commerces, écoles, marchés, espaces verts ? ). Un emplacement rare, mêlant praticité, dynamisme et qualité de vie. Les informations sur les risques auxquels ce bien est exposé sont disponibles sur le site du gouvernement : .

À voir pour le même budget

Appartement 3 pièces 401000 €
401 000 €

Appartement 3 pièces 61 m²

Saint-Maur-des-Fossés (94210)

Optez pour le confort et la modernité dans une résidence à venir sur saint-maur-des-fosses à proximité des transports, écoles et autres commodités. Immotech partners vous propose cet appartement offrant une cuisine ouverte sur séjour, 2 chambres, une salle d'eau ainsi que des wc. Un extérieur complète ce bien. Parking en sus. Frais de notaire réduits dans cette résidence moderne et sécurisée respectant les dernières normes environnementales. Prestations haut de gamme et choix de finitions encore possible ! Idéal 1er achat : - prêt à taux zéro (ptz), ou investisseurs : - eligible lli (défiscalisation), - loueur meublé non-professionnel (lmnp-lmp). Garanties légales : - dommages-ouvrage (décennale) - bon fonctionnement (biennale) - parfait achèvement - isolation phonique choisissez la sobriété énergétique : bâtiment basse consommation (bbc), rt2012 / re2020, faibles charges. Immotech partners vous propose plus de 4000 programmes neufs partout en france. Contactez-nous pour un accompagnement sur votre projet immobilier nos visuels sont non contractuels.

Appartement 3 pièces 439000 €
439 000 €
-2 %

Appartement 3 pièces 76 m²

Saint-Maur-des-Fossés (94210)

Iad France - Joana Peixoto vous propose : La Varenne – Loft atypique avec patio, esprit maison, dans un quartier calme et résidentiel Au sein d’une copropriété récente (2016), parfaitement entretenue et à taille humaine, venez découvrir ce loft au style contemporain, organisé comme une maison et disposé sur trois niveaux, pour une surface habitable d’environ 76 m². Au rez-de-chaussée : Une cuisine moderne entièrement équipée, ouverte sur l’espace salon. De grandes baies vitrées permettent un accès direct à un patio / terrasse de 10 m², idéal pour profiter d’un espace extérieur au calme. À l’étage : Une suite parentale lumineuse, comprenant un grand dressing et une salle d’eau avec WC. En souplex : Une seconde chambre avec rangements, une salle d’eau disposant d’un espace buanderie, des WC séparés et une pièce supplémentaire pouvant servir de bureau ou d’espace de rangement. Atouts du bien : - Climatisation réversible, - Rangements optimisés sur chaque niveau, - Bien rare dans un environnement résidentiel recherché. - Calme Localisation : À 5 minutes du RER A, à proximité immédiate des commerces, des écoles et des bords de Marne. Informations complémentaires : •Copropriété récente et très bien entretenue, •Faibles charges : 100 € / mois. La presente annonce immobiliere vise 1 lot situé dans une copropriété de 18 lots au total et ne faisant l'objet d'aucune procédure en cours citée à l'article L. 721-1 du code de la construction et de l'habitation. Montant moyen mensuel de charges déclaré par le vendeur : 100€ par mois (soit 1200 € annuel). Honoraires d'agence à la charge du vendeur. Information d'affichage énergétique sur ce bien : classe ENERGIE C indice 202 et classe CLIMAT B indice 5. Les informations sur les risques auxquels ce bien est exposé, y compris l'obligation légale de débroussaillement, sont disponibles sur le site Géorisques : La présente annonce immobilière a été rédigée sous la responsabilité éditoriale de Mme Joana Peixoto mandataire indépendant en immobilier (sans détention de fonds), agent commercial de la SAS I@D France immatriculé au RSAC de EVRY sous le numéro 934187287, titulaire de la carte de démarchage immobilier pour le compte de la société I@D France SAS.

Appartement 5 pièces 470000 €
470 000 €

Appartement 5 pièces 86 m²

Saint-Maur-des-Fossés (94100)

Optez pour le confort et la modernité dans une résidence à venir sur saint-maur-des-fossés à proximité des transports, écoles et autres commodités. Immotech partners vous propose cet appartement offrant une cuisine ouverte sur séjour, 4 chambres, une salle d'eau ainsi que des wc. Un extérieur complète ce bien. Parking en sus. Frais de notaire réduits dans cette résidence moderne et sécurisée respectant les dernières normes environnementales. Prestations haut de gamme et choix de finitions encore possible ! Idéal 1er achat : - prêt à taux zéro (ptz), ou investisseurs : - eligible lli (défiscalisation), - loueur meublé non-professionnel (lmnp-lmp). Garanties légales : - dommages-ouvrage (décennale) - bon fonctionnement (biennale) - parfait achèvement - isolation phonique choisissez la sobriété énergétique : bâtiment basse consommation (bbc), rt2012 / re2020, faibles charges. Immotech partners vous propose plus de 4000 programmes neufs partout en france. Contactez-nous pour un accompagnement sur votre projet immobilier nos visuels sont non contractuels.

Appartement 3 pièces 430000 €
430 000 €
-1 %

Appartement 3 pièces 74 m²

Saint-Maur-des-Fossés (94100)

L'agence france immobilier à le plaisir de vous proposer en exclusivite un appartement 3 pièces traversant avec une exposition est ouest idéalement situé dans le quartier d'adamville, au pied des commerces, cinéma le lido, du marché, des écoles et du rer a le parc. Ce bien se compose d'une entrée avec rangement, un double séjour de 29 m², une cuisine indépendante aménagée et équipée, deux chambres, une salle d'eau et des wc indépendants. Une cave et une place de parking extérieure compètent ce bien. À visiter rapidement copropriété de 128 lots (pas de procédure en cours). Charges annuelles : 3768.00 euros.

Appartement 3 pièces 461000 €
461 000 €

Appartement 3 pièces 61 m²

Saint-Maur-des-Fossés (94100)

Votre agence 123webimmo vous présente : Situé au 1er étage d'une résidence de standing, cet appartement 3 pièces de 61 m² offre un cadre de vie confortable et fonctionnel, idéal pour une résidence principale, secondaire ou un investissement locatif. L'agencement optimisé permet de profiter pleinement de chaque espace, avec une belle pièce de vie, deux chambres bien proportionnées et une exposition agréable. L'appartement se trouve dans le quartier prisé du Parc à Saint-Maur-des-Fossés, à seulement quelques minutes à pied du RER A, de la future ligne 15 du Grand Paris Express, ainsi que de toutes les commodités (commerces, écoles, marchés, espaces verts ? ). Un emplacement rare, mêlant praticité, dynamisme et qualité de vie. Les informations sur les risques auxquels ce bien est exposé sont disponibles sur le site du gouvernement : .

Appartement 4 pièces 455000 €
455 000 €
-3 %

Appartement 4 pièces 87 m²

Saint-Maur-des-Fossés (94100)

Situé à Saint-Maur-des-Fossés (94100), cet appartement bénéficie d'un emplacement prisé à proximité de commerces, écoles et transports en commun. Cette commune réputée pour son cadre de vie agréable offre un environnement calme et verdoyant, idéal pour les familles et les actifs en quête de tranquillité. De plus, sa position stratégique à seulement quelques kilomètres de Paris en fait un lieu de résidence recherché. Ce bien se distingue par ses atouts extérieurs, notamment ses 2 places de parking, une précieuse commodité dans cette région. L'appartement de 87 m² dispose également d'une spacieuse terrasse et jardin de 55 m² exposée plein sud, offrant un espace extérieur privilégié pour profiter du soleil et des douces soirées d'été en toute quiétude. L'intérieur de ce bien se compose de 4 pièces, incluant 3 chambres offrant des espaces de vie confortables et lumineux. L'appartement en rez-de-chaussé surélevé (correspond au 1er), construit en 1964, offre une surface habitable généreuse, parfaite pour accueillir une famille. Sa terrasse ensoleillée constitue un réel atout, prolongeant l'espace de vie intérieur vers l'extérieur. Une belle opportunité pour profiter du charme de Saint-Maur-des-Fossés dans un cadre de vie agréable et fonctionnel. Le bien comprend 6 lots, et il est situé dans une copropriété de 96 lots (les charges courantes annuelles moyennes de copropriété sont de 5584 € et le syndicat des copropriétaires ne fait pas l'objet d'une procédure citée à l'article L. 721-1 du code de la construction et de l'habitation). Les informations sur les risques auxquels ce bien est exposé sont disponibles sur le site Géorisques : Prix de vente : 455 000 € Honoraires charge vendeur Contactez votre conseiller SAFTI : Marie-Claire BIRAN, Tél. : 06 47 97 03 12, E-mail : marie-claire.biran@safti.fr - EI - Agent commercial immatriculé au RSAC de Créteil sous le numéro 388 106 437.