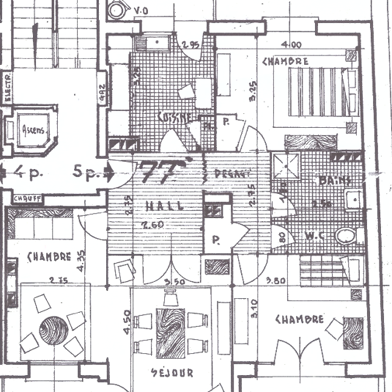
Iad France - Albin Quicampoix vous propose : Lyon 3 – Secteur Part-Dieu | Dernier étage avec balcon, stationnement et fort potentiel À deux pas de la Part-Dieu, au cOEur du 3ᵉ arrondissement de Lyon, découvrez cet appartement T3 traversant de 82 m², situé au 6ᵉ et dernier étage avec ascenseur d’une résidence bien entretenue du milieu des années 70. Un bien rare par sa luminosité, sa vue dégagée et son potentiel d’aménagement. Description du bien : Dès l’entrée, un hall avec placard dessert harmonieusement les différents espaces. Le séjour double spacieux de plus de 30 m² bénéficie de larges baies vitrées ouvrant sur un balcon de près de 8 m² exposé Sud, idéal pour profiter du soleil. La cuisine indépendante de plus de 11 m² offre de belles possibilités de modernisation selon vos envies. L’espace nuit se compose de deux chambres d’environ 10-11 m² (exposées Nord), d’une salle de bains de 4 m² et de WC séparés, un agencement fonctionnel et recherché. Prestations et annexes : - Dernier étage, appartement traversant et lumineux - Balcon sud-ouest d’environ 8 m² - Chauffage collectif au gaz - Volets roulants (électriques côté séjour et manuels côté chambres) - Cave de 4 m² - Place de stationnement privative incluse - Box fermé en sus : 25 000 € (plus de 14 m²) - Diagnostic de performance énergétique : D Environnement et localisation : Adresse recherchée au 16 rue François Gillet, à proximité immédiate de La Part-Dieu, des transports en commun (tram, métro, bus), des commerces, écoles et axes routiers. Un secteur prisé aussi bien pour une résidence principale que pour un investissement patrimonial. À noter : Grâce à ses volumes, sa luminosité et son dernier étage, cet appartement constitue une excellente base pour un projet de modernisation et de valorisation à votre image. Prix de vente : 305 000 € (appartement + cave + place de stationnement privative) Garage fermé en sus : 25 000 € Un bien complet, lumineux et idéalement situé dans le Lyon 3ᵉ. Contactez-moi dès maintenant pour organiser une visite et découvrir tout le potentiel de cet appartement. La presente annonce immobiliere vise 3 lots situés dans une copropriété de 135 lots au total et ne faisant l'objet d'aucune procédure en cours citée à l'article L. 721-1 du code de la construction et de l'habitation. Montant moyen mensuel de charges déclaré par le vendeur : 311.13€ par mois (soit 3733.56 € annuel). Honoraires d'agence à la charge du vendeur. Information d'affichage énergétique sur ce bien : classe ENERGIE D indice 206 et classe CLIMAT D indice 42. Les informations sur les risques auxquels ce bien est exposé, y compris l'obligation légale de débroussaillement, sont disponibles sur le site Géorisques : La présente annonce immobilière a été rédigée sous la responsabilité éditoriale de M Albin Quicampoix mandataire indépendant en immobilier (sans détention de fonds), agent commercial de la SAS I@D France immatriculé au RSAC de LYON sous le numéro 917987745, titulaire de la carte de démarchage immobilier pour le compte de la société I@D France SAS.
Les informations sur les risques auxquels ce bien est exposé sont disponibles sur le site Géorisques : www.georisques.gouv.fr
Mise en ligne:
Dernière mise à jour:
Référence de l'annonce: 1897145
