13 résultats
Loi girardin is 2025 : accord immobilier vous propose à la vente un magnifique t2, programme neuf, de 47 m², idéalement situé sur la ligne paradis (côté bois d'olive) à saint-pierre. Elligible à la défiscalisation, loi girardin is 2025 : dépêchez-vous, vous avez jusqu'au 31 décembre 2025 pour en bénéficier ! Venez visiter cet appartement de type 2, situé au premier étage, d'un bâtiment comptant 4 appartements. T2 de 47.13 m², comprenant un vaste séjour lumineux ouvert sur la cuisine équipée, une chambre équipée de dressing avec miroir, d'une salle d'eau avec douche italienne, d'un wc suspendu, d'un cellier et une varangue / terrasse de 20 m². L'appartement est équipé de deux climatiseurs, de volets électriques, d'un chauffe-eau solaire. Situé dans la résidence, sécurisée, val paradis, elle réunit 12 appartements, du t2 au t3, répartis dans trois bâtiments, avec stationnements en rez-de chaussée, et en parking souterrain. Uite désistement, signature de l'acte prévue avant le 31 / 12 / 2025 pour une livraison prévue : février 2026; d'architecture contemporaine inspirée de l'esprit réunionnais, la résidence privilégie des matériaux durables et des finitions soignées. Les appartements, traversants et spacieux, s'ouvrent sur de larges varangues / terrasses et bénéficient d'équipements haut de gamme (cuisines équipées, douches à l'italienne. ), ainsi que d'une place de parking sécurisée par lot, et un emplacement vélo. L'ensemble conjugue confort moderne et élégance. La loi girardin is (ou « girardin société ») est un dispositif de défiscalisation qui permet aux entreprises soumises à l'impôt sur les sociétés (is) d'obtenir une réduction ou une exonération partielle / totale de leur is lors de l'acquisition d'un logement neuf (ou en état futur d'achèvement) en outre-mer. Pour plus d'informations, merci de contacter sandrine dijoux au 06 92 28 20 00 'les informations sur les risques auxquels ce bien est exposé sont disponibles sur le site .
Koytcha immo vous propose cet appartement t2 situé au 1er et dernier étage sans ascenseur, d'une surface habitable de 50 m² avec varangue de 8 m², dans une résidence sécurisée, calme, proche des commodités et de la 4 voies, dans le quartier de casabona, centre-ville de saint pierre. Ce bien en duplex est doté de : - une chambre climatisées avec salle d'eau, wc et buanderie - un séjour / cuisine climatisé - une varangue - une place de parking l'appartement est libre d'occupation, idéal investissement prix de vente 187 812 € fai honoraires d'agence à la charge de l'acquéreur de 4,34% ttc. Contactez hugo lalos par téléphone au 06 93 91 25 19, ou par mail à hugo@koytchaimmo.re « les informations sur les risques associés à ce bien est exposé sont disponibles sur le site géorisques : » etages : 1nombre de places de parking vl : 1climatisationterrassenombre de pièces : 2 informations complémentaires sur les informations sur les risques auxquels ce bien est exposé sont disponibles sur le site géorisques : .
Koytcha immo vous propose ces appartements t2, d'une surface habitable avec varangue allant de 54 m² à 62 m², situés en rez-de-chaussée jusqu'au 5ème étage, dans une résidence sécurisée et idéalement placée. À seulement 4 rues du front de mer de saint pierre, vous profiterez de cette ville où les balades sur son port et ses activités offrent une réelle qualité de vie. Ces biens défiscalisables livrés au 1er trimestre 2027 seront dotés de : - une chambres avec placard et brasseur d'air - un séjour / cuisine semi-équipé - une salle d'eau - un wc - une varangue - une place de parking sécurisé la copropriété comprendra 64 appartements répartie sur 3 immeubles, offrant des appartements allant du t1 au t4 les immeubles sont pmr et équipés d'ascenseurs et parkings souterrains prix de vente à partir de 258 300 € fai honoraires d'agence à la charge du vendeur de 6% ttc frais notariés réduits contactez hugo lalos par téléphone au 06 93 91 25 19, ou par mail à hugo@koytchaimmo.re « les informations sur les risques associés à ce bien est exposé sont disponibles sur le site géorisques : » nombre de places de parking vl : 1terrassenombre de pièces : 2digicode informations complémentaires sur les informations sur les risques auxquels ce bien est exposé sont disponibles sur le site géorisques : .
Programme immobilier neuf à Saint-Pierre, sur l’île de La Réunion, au cœur d’un territoire aussi dynamique que dépaysant. Capitale du sud de l’île, Saint-Pierre séduit par son cadre de vie privilégié, entre plages de sable, eaux turquoise de l’océan Indien et paysages volcaniques. La commune dispose d’une offre complète d’infrastructures et de services, garantissant un quotidien pratique et agréable. Implantée à seulement 500 mètres du Port de Plaisance, du front de mer et de la plage, cette résidence neuve profite d’un emplacement rare, accessible à pied depuis toutes les commodités essentielles. Dans un quartier résidentiel calme, l’ensemble se compose de trois bâtiments à l’architecture contemporaine, élégamment intégrés à un îlot paysager. Du studio au 4 pièces, les appartements neufs sont pensés pour offrir confort, fonctionnalité et luminosité. Les espaces de vie sont généreux, bien agencés et baignés de lumière naturelle. Chaque logement bénéficie de prestations soignées : cuisine équipée, placards intégrés, brasseurs d’air dans les chambres, stationnement sécurisé en sous-sol, résidence clôturée, locaux pour deux-roues. Prolongement idéal des intérieurs, varangues spacieuses ou jardins privatifs permettent de profiter pleinement du climat tropical. Certains appartements offrent même de magnifiques vues sur l’océan. Une opportunité unique pour un investissement immobilier neuf ou un achat en résidence principale à Saint-Pierre, dans un cadre de vie rare entre ville, mer et nature. * Vous souhaitez réaliser un investissement locatif ? Profitez du CIOP (art 244 quater W) : Le CIOP (art. 244 quater W) : Un dispositif fiscal très avantageux pour un investissement locatif. Le Crédit d'Impôt Outre-mer Productif (CIOP - Art. 244 Quater W) offre une opportunité exceptionnelle pour investir à La Réunion. Les avantages clés : - Crédit d'impôt qui monte jusqu'à 35% du prix de revient du logement ! - Applicable sur l'acquisition en VEFA (logements neufs) destinés à l'investissement locatif Comment en bénéficier : Création d'une société à l'IS - SCI le plus souvent - avec location du bien en résidence principale pendant 5 ans minimum, dans le respect des plafonds de loyers et de ressources. Vous êtes intéressés ? Contactez nos conseillers pour vous accompagner dans votre projet d'investissement CIOP (art. 244 quater W) et optimiser vos avantages fiscaux ! Découvrez également nos 39 autres résidences dans le 97 : Rendez-vous dans notre Agence Médicis Immobilier Neuf, Saint-Gilles les Bains 97434. Les informations sur les risques auxquels ce bien est exposé sont disponibles sur le site Géorisques : .

Recevez en temps réel les dernières annonces correspondant à votre recherche
Orpi mvs vous propose de découvrir dès à présent azkena, la nouvelle résidence de standing située dans le quartier de ravine blanche à saint-pierre. Proche de la mer et de toutes commodités, cette résidence vous accueillera dans un cadre unique et un aménagement intérieur contemporain et lumineux. 14 appartements du t2 au t3, sont proposés au sein de cette résidence sécurisée et idéalement située. Venez dès à présent visiter.
Frais de notaire offerts sur les T2 et T3 et jusqu'à 10 000 euros sur les T3 jusqu'au 30 juin 2025 !* Ce programme immobilier neuf se distingue par une architecture contemporaine à l’esthétique raffinée, qui s’intègre parfaitement au paysage réunionnais. Offrant 15 logements neufs, allant de 2 à 4 pièces, dont 2 villas de toits, ce projet s’adapte à toutes les configurations de vie, en apportant un lot de confort moderne inégalable. Les intérieurs lumineux, dotés de vastes baies vitrées, optimisent les espaces de vie pour un confort quotidien. Ces appartements modernes, isolés thermiquement et phoniquement, respectent les dernières normes environnementales, garantissant bien-être et empreinte carbone réduite. Équipés de salles de bain modernes, de cuisines aménagées pour certains, ainsi que de systèmes de climatisation et de brasseurs d’air, les logements offrent un confort optimal. Les balcons et terrasses, avec des surfaces de 81 à 129 mètres carrés pour les villas, proposent des vues imprenables sur la montagne et la mer, créant ainsi un cadre de vie exceptionnel. * Vous souhaitez réaliser un investissement locatif ? Profitez du CIOP (art 244 quater W) : Le CIOP (art. 244 quater W) : Un dispositif fiscal très avantageux pour un investissement locatif. Le Crédit d'Impôt Outre-mer Productif (CIOP - Art. 244 Quater W) offre une opportunité exceptionnelle pour investir à La Réunion. Les avantages clés : - Crédit d'impôt qui monte jusqu'à 35% du prix de revient du logement ! - Applicable sur l'acquisition en VEFA (logements neufs) destinés à l'investissement locatif Comment en bénéficier : Création d'une société à l'IS - SCI le plus souvent - avec location du bien en résidence principale pendant 5 ans minimum, dans le respect des plafonds de loyers et de ressources. Vous êtes intéressés ? Contactez nos conseillers pour vous accompagner dans votre projet d'investissement CIOP (art. 244 quater W) et optimiser vos avantages fiscaux ! Frais de notaire offerts sur les T2 et T3 et jusqu'à 10 000 euros sur les T3 jusqu'au 30 juin 2025 !* Frais de notaire offerts jusqu'au 30 / 06 / 25 hors frais bancaires, d’hypothèque et frais de règlement de copropriété, hors frais de rédaction d’acte, hors frais de caution et de privilège de prêteurs de deniers ou tout autre frais lié le cas échéant, au financement de l’acquisition. Offres valables pour tout contrat préliminaire de réservation signé aux dates de l’opération pour l’acquisition d’un logement de la résidence, dans la limite des stocks disponibles et sous réserve de la signature de l’acte de vente dans les délais mentionnés dans le contrat de réservation. Remise de 10 000 euros uniquement sur les T3 jusqu'au 30 juin 2025, voir conditions auprès de votre conseiller Offre limitée aux réservations et non cumulable avec toute offre passée ou à venir et dans la limite des stocks disponibles, voir les conditions détaillées de l'offre auprès de votre conseiller. Découvrez également nos 39 autres résidences dans le 97 : Rendez-vous dans notre Agence Médicis Immobilier Neuf, Saint-Gilles les Bains 97434. Les informations sur les risques auxquels ce bien est exposé sont disponibles sur le site Géorisques : .
L'Agence Direct Immobilier vous propose en exclusivité cet appartement T2 de 50 m² + Varangue de 16 m² + Buanderie de 4.80 m² L'ensemble immobilier est complété par 1 place de stationnement privative et un très bel espace piscine avec pool house. La résidence est sécurisée, les espaces communs sont très bien entretenus. La résidence se situe Ligne des Bambous, dans un espace recherché pour son calme, la proximité de l'accès aux réseaux routiers (4 mn de la 4 voies St Pierre / Le Tampon), des écoles, commerces de proximité. Les volumes de cet appartement, les prestations offertes, la résidence et son environnement ne pourront que vous séduire. L'appartement se compose d'un séjour de 21 m², une cuisine ouverte de 9 m², avec un double accès à une varangue de 16 m² (qui peut s'ouvrir ou se fermer selon vos envies),une chambre de 12.68 m² équipée d'une grande penderie et climatisée, une salle d'eau de 4.60 m², un wc indépendant et un espace buanderie de 4.80 m² accessible depuis la salle d'eau. L'appartement est libre de toute occupation. Une visite virtuelle est disponible sur demande, n'hésitez pas à nous la demander. Les charges de copropriété sont de 73 € par mois et la taxe foncière de 1569 €. Copropriété de 157 lots dont 60 lots d'habitation répartis sur 8 bâtiments de 2 étages. Venez découvrir cette belle opportunité !
Plongez dans un cadre de vie idyllique avec AZKENA, une résidence moderne et élégante, alliant confort, sécurité et proximité avec la nature. Chaque appartement bénéficie d'un design soigné et contemporain, pensé pour offrir un maximum de luminosité et de confort. Points Clés : - Vue dégagée : Profitez de panoramas splendides sur les environs, avec des vues sur la mer ou les montagnes, selon l'orientation. - Architecture moderne : Des lignes épurées et des matériaux haut de gamme pour un style résolument moderne et raffiné. - Espaces extérieurs : Balcons et terrasses vous permettent de vivre pleinement l'expérience en plein air, tout en préservant votre intimité. - Espaces verts : La résidence s'entoure de jardins paysagers pour offrir un cadre verdoyant et apaisant. Appartements Disponibles : - T2 à partir de 255 000 € - T3 à partir de 345 000 € - 15 appartements au total, conçus pour maximiser l'espace et la lumière naturelle. À Proximité : - Commerces et centres commerciaux - Complexes sportifs et loisirs - Plages à quelques minutes - Établissements scolaires et cabinets médicaux Accessibilité : - Arrêts de bus à proximité - Accès rapide aux principaux axes routiers Avantages Financiers : - Éligible au PTZ (Prêt à Taux Zéro) - Dispositifs Fiscaux : Loi Pinel, Girardin IS Les informations sur les risques auxquels ce bien est exposé sont disponibles sur le site Géorisques : www. georisques. gouv. fr.
Appartement neuf type 2 de 53,79 m² avec varangue de 13,37 m² Une belle chambre de 13,38 m², une salle de bain et un WC séparé, un séjour / cuisine de 27 m² 1 parking inclus Située au cœur du centre-ville de Saint-Pierre, la résidence bénéficie d’un emplacement de premier choix. À deux pas des commerces et de toutes les commodités et à quelques minutes à pied du front de mer, du port de plaisance, des restaurants et nombreuses animations de Saint-Pierre. D’architecture contemporaine, la résidence proposera des logements modernes et spacieux aux prestations nobles. Des logements entièrement équipés avec de belles varangues & terrasses pour habiter ou investir dans un programme immobilier d’exception. Afin de privilégier le confort des résidents, l’Architecte a conçu des ilots de vie. De grandes et larges allées et de nombreux espaces verts apportent un véritable « cachet » à ce projet. DISPOSITIF PINEL OUTRE MER.
Iad France - Shariff Ghawss vous propose : NOUVEAU APPARTEMENT T2 A VENDRE - SAINT-PIERRE Découvrez ce superbe appartement T2 situé au cOEur de Saint-Pierre, dans une résidence neuve de standing, offrant un cadre de vie moderne et agréable. Idéalement situé au 1er étage d'un immeuble de 4 étages, cet appartement est un véritable bijou architectural conçu pour votre confort et bien-être au quotidien. L'espace de vie de cet appartement de 40.97 m² se compose d'une chambre lumineuse, d'une salle de bain moderne avec WC, d'une cuisine équipée et d'un séjour, offrant ainsi des espaces fonctionnels et conviviaux parfaitement agencés. La terrasse vous permettra de profiter de l'extérieur en toute quiétude. Le quartier environnant regorge de points d'intérêts tels que des écoles, des commerces à seulement 2 minutes à pied, et un accès rapide aux voies rapides à 1 minute, facilitant ainsi votre quotidien. Les équipements de la résidence incluent un digicode, un interphone et un accès sécurisé, assurant ainsi votre tranquillité et votre sécurité au sein de votre nouvel habitat. De plus, vous bénéficierez d'un parking privé pour garer votre véhicule en toute sécurité. Si vous recherchez un appartement moderne, bien situé et pratique, cet appartement est fait pour vous ! Ne manquez pas cette opportunité unique d'acquérir un bien immobilier de qualité à Saint-Pierre. Contactez-nous dès maintenant ! La presente annonce immobiliere vise 2 lots situés dans une copropriété de 32 lots au total et ne faisant l'objet d'aucune procédure en cours citée à l'article L. 721-1 du code de la construction et de l'habitation. Montant moyen mensuel de charges déclaré par le vendeur : 0€ par mois (soit 0 € annuel). Honoraires d'agence à la charge du vendeur. Bien non soumis au DPE. Les informations sur les risques auxquels ce bien est exposé, y compris l'obligation légale de débroussaillement, sont disponibles sur le site Géorisques : La présente annonce immobilière a été rédigée sous la responsabilité éditoriale de M Shariff Ghawss mandataire indépendant en immobilier (sans détention de fonds), agent commercial de la SAS I@D France immatriculé au RSAC de Saint-Pierre de la Réunion sous le numéro 913792693, titulaire de la carte de démarchage immobilier pour le compte de la société I@D France SAS.
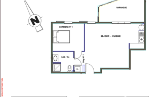
Iad France - Julien Le Gouill vous propose : Appartement T2 Neuf – Saint-Pierre (La Ligne Paradis) 47,13 m² – 1 chambre – 2 terrasses – Parking privatif couvert Dans le secteur très recherché de La Ligne Paradis, découvrez ce superbe appartement T2 neuf, parfait pour un investissement locatif, un premier achat ou un pied-à-terre. Niché dans une résidence de standing dont la livraison est prévue en 2026, ce bien séduit par sa modernité, son confort et son emplacement privilégié. Atouts majeurs : Séjour lumineux avec cuisine ouverte offrant une belle surface de vie 1 chambre spacieuse et fonctionnelle Salle d’eau contemporaine Deux terrasses, dont une couverte Exposition plein sud assurant une excellente luminosité Aucun travaux à prévoir : prestations neuves, finitions soignées et matériaux de qualité La résidence : Résidence neuve, élégante et entièrement sécurisée Accès contrôlé et environnement calme Fibre optique Place de parking privative incluse Cadre paisible et intimiste, parfait pour vivre sereinement ou investir en toute tranquillité Caractéristiques : Surface totale : 47,13 m² Résidence de standing avec fort potentiel locatif Emplacement résidentiel recherché Prestations haut de gamme et conception optimisée Photos chambre et salle de bain non contractuelles – Home staging à titre illustratif. Ne laissez pas passer cette opportunité rare d’acquérir un appartement moderne, lumineux et idéalement situé à Saint-Pierre. Contactez-moi dès maintenant pour plus d’informations ou pour organiser une visite. La presente annonce immobiliere vise 2 lots situés dans une copropriété de 24 lots au total et ne faisant l'objet d'aucune procédure en cours citée à l'article L. 721-1 du code de la construction et de l'habitation. Montant moyen mensuel de charges déclaré par le vendeur : 80€ par mois (soit 960 € annuel). Honoraires d'agence à la charge du vendeur. Bien non soumis au DPE. Les informations sur les risques auxquels ce bien est exposé, y compris l'obligation légale de débroussaillement, sont disponibles sur le site Géorisques : La présente annonce immobilière a été rédigée sous la responsabilité éditoriale de M Julien Le Gouill mandataire indépendant en immobilier (sans détention de fonds), agent commercial de la SAS I@D France immatriculé au RSAC de Saint Denis sous le numéro 952727212, titulaire de la carte de démarchage immobilier pour le compte de la société I@D France SAS.
Iad France - Jean-Philippe Romer vous propose : Superbe Loft Design en Plein COEur de Saint-Pierre, à Découvrir de Toute Urgence ! Ce bien d'exception, d'une surface de 41 m², offre un cadre de vie unique et moderne dans le charmant quartier de Terre Sainte. Il a été pensé pour offrir un espace de vie lumineux, épuré et résolument contemporain. L'appartement se compose d'une grande pièce de vie, d'une cuisine entièrement équipée, et d'une salle d'eau avec WC. Il est vendu entièrement meublé, il possède un confort optimal comme la fibre et la climatisation. Situé au dernier étage sans vis-à-vis de la magnifique villa Morgane, résidence sécurisée de standing avec piscine, ce loft offre une vue panoramique sur l'océan et le port de Saint-Pierre, situé à seulement 100m à pieds de la plage. Depuis la pièce principale, on peut admirer le défilé des baleines ! Entièrement rénové, ce loft est en excellent état, prêt à accueillir ses futurs occupants, il est conçu idéalement pour un couple ou pour un projet d'investissement en location saisonnière car il présente un bilan avec une très forte rentabilité locative. Situé à proximité des points d'intérêt de Saint-Pierre, cet appartement vous offrira un cadre de vie pratique et exceptionnel, proche de toutes commodités (écoles, commerces, CHU, restaurants, etc. ). Les finitions soignées et les matériaux de qualité en font un bien d'exception à ne pas manquer. Ne manquez pas l'opportunité de devenir propriétaire de ce bien exceptionnel. Contactez-moi dès maintenant pour organiser une visite. La presente annonce immobiliere vise 2 lots situés dans une copropriété de 15 lots au total et ne faisant l'objet d'aucune procédure en cours citée à l'article L. 721-1 du code de la construction et de l'habitation. Montant moyen mensuel de charges déclaré par le vendeur : 89€ par mois (soit 1068 € annuel). Honoraires d'agence à la charge du vendeur. Bien non soumis au DPE. Les informations sur les risques auxquels ce bien est exposé, y compris l'obligation légale de débroussaillement, sont disponibles sur le site Géorisques : La présente annonce immobilière a été rédigée sous la responsabilité éditoriale de M Jean-Philippe Romer mandataire indépendant en immobilier (sans détention de fonds), agent commercial de la SAS I@D France immatriculé au RSAC de Saint pierre sous le numéro 932023435, titulaire de la carte de démarchage immobilier pour le compte de la société I@D France SAS.
Iad France - Kristen Le Bour vous propose : Saint-Pierre – T2 lumineux à deux pas de la mairie, idéal premier achat ou investissement Vous cherchez à devenir propriétaire pour la première fois… ou à investir sereinement dans un bien sûr et bien placé ? Cet appartement T2 coche toutes les cases. Situé au 2ᵉ étage d’un immeuble récent, il allie confort, sécurité et emplacement central — le trio gagnant pour habiter ou louer sans mauvaise surprise. Avec ses 49 m² habitables et 63 m² utiles, il offre un séjour convivial d’environ 22 m² avec cuisine ouverte, une chambre agréable d’environ 14 m² avec rangements et balcon attenant, ainsi qu’une belle varangue couverte qui devient une véritable pièce de vie supplémentaire — parfaite pour profiter du climat réunionnais toute l’année. La résidence, sécurisée par portail et porte électrique, dispose d’un parking privatif. Et surtout : toutes les dépenses et travaux d’entretien ont déjà été votés en assemblée générale → aucune charge imprévue à prévoir dans les années à venir. Un vrai gage de tranquillité pour tout propriétaire, occupant ou bailleur. Idéalement situé, à deux pas de la mairie de Saint-Pierre et de toutes les commodités accessibles à pied, ce logement séduit autant par sa praticité que par son potentiel locatif. Un bien complet, sans surprise, prêt à accueillir ses nouveaux propriétaires — ou ses futurs locataires.
Autres annonces à proximité de Saint-Pierre (97410) avec vos critères
Opération " les jardins de babylone " découvrez cet appartement neuf de 55,01 m², idéalement situé au cœur de l'étang-salé, sur l'avenue raymond barre. Offrant une chambre, un salon spacieux, et une salle de bain moderne avec douche à l'italienne, ce bien est parfait pour un confort optimal. Profitez d'une terrasse, d'un jardin de 97 m², d'un ascenseur et d'un parking intérieur. À proximité des écoles et des transports en commun. Prix : 311 826 eur. Contactez-nous pour plus d'informations. Eligible defiscalisation giradin - frais de notaire reduit référence agence : 6048.
Opération " les jardins de babylone" découvrez cet appartement neuf de 49 m² situé au cœur de l'étang-salé, sur l'avenue raymond barre. Ce bien modern offre une chambre spacieuse, un salon lumineux, et une salle de bain équipée d'une douche à l'italienne. Profitez d'une terrasse agréable et des commodités telles qu'un parking intérieur et un ascenseur. Proche des écoles et des transports en commun, ce logement est idéalement placé. Prix : 259.000 eur. Contactez-nous pour plus d'informations. Eligible defiscalisation giradin - frais de notaire reduit référence agence : 6047.
Ce programme immobilier neuf à L'Étang-Salé les Hauts est une occasion unique de vivre au cœur d'une ville en pleine évolution, alliant tradition et modernité. Située dans un cadre dynamique et recherché, à seulement 5 minutes de la plage et des commodités essentielles (commerces, écoles, centres médicaux), cette résidence répond aux attentes d'un quotidien pratique et agréable. Composée de 14 appartements neufs allant du 2 au 3 pièces, la résidence propose des prestations soignées : cuisines équipées, séjours spacieux, salles d'eau modernes avec douche à l'italienne, placards aménagés et chambres cosy pour un confort optimal. Construit selon les normes environnementales les plus récentes, ce programme assure une isolation thermique et phonique de qualité. Chaque logement est doté d'une varangue, un espace extérieur parfait pour profiter de moments de détente. La résidence inclut également des parkings sécurisés, offrant une solution de stationnement pratique et fiable. Une opportunité rare dans un quartier prisé ! *Vous souhaitez réaliser un investissement locatif ? Profitez du CIOP (art 244 quater W) : Le CIOP (art. 244 quater W) : Un dispositif fiscal très avantageux pour un investissement locatif. Le Crédit d'Impôt Outre-mer Productif (CIOP - Art. 244 Quater W) offre une opportunité exceptionnelle pour investir à La Réunion. Les avantages clés : - Crédit d'impôt qui monte jusqu'à 35% du prix de revient du logement ! - Applicable sur l'acquisition en VEFA (logements neufs) destinés à l'investissement locatif Comment en bénéficier : Création d'une société à l'IS - SCI le plus souvent - avec location du bien en résidence principale pendant 5 ans minimum, dans le respect des plafonds de loyers et de ressources. Vous êtes intéressés ? Contactez nos conseillers pour vous accompagner dans votre projet d'investissement CIOP (art. 244 quater W) et optimiser vos avantages fiscaux ! Découvrez également nos 39 autres résidences dans le 97 : Rendez-vous dans notre Agence Médicis Immobilier Neuf, Saint-Gilles les Bains 97434. Les informations sur les risques auxquels ce bien est exposé sont disponibles sur le site Géorisques : .
Imaginez une vie sous le soleil de l’Île de la Réunion, où paysages paradisiaques et dynamisme urbain se rencontrent. Ce programme immobilier neuf à Saint-Louis offre une opportunité unique, que ce soit pour une résidence principale, secondaire ou un investissement locatif. Ce programme se distingue par une résidence de qualité, agrémentée d’un vaste jardin arboré et d’une piscine privative, idéale pour se détendre après une journée ensoleillée. Avec 26 appartements neufs, de 2 à 3 pièces, chaque espace a été conçu avec soin, offrant des pièces généreuses propices à la fois à la sérénité et à la convivialité. Les matériaux durables garantissent une isolation thermique et phonique optimale, préservant ainsi votre confort et votre intimité. Les appartements profitent de grandes ouvertures vitrées qui inondent les espaces de lumière naturelle et s’ouvrent sur des extérieurs privatifs, dont des varangues jusqu’à 14 mètres carrés. Les besoins en stationnement sont également parfaitement satisfaits grâce aux places privatives en sous-sol, assurant sécurité et commodité. Un programme immobilier neuf où chaque détail est pensé pour offrir un cadre de vie exceptionnel et un confort inégalé. * Vous souhaitez réaliser un investissement locatif ? Profitez du CIOP (art 244 quater W) : Le CIOP (art. 244 quater W) : Un dispositif fiscal très avantageux pour un investissement locatif. Le Crédit d'Impôt Outre-mer Productif (CIOP - Art. 244 Quater W) offre une opportunité exceptionnelle pour investir à La Réunion. Les avantages clés : - Crédit d'impôt qui monte jusqu'à 35% du prix de revient du logement ! - Applicable sur l'acquisition en VEFA (logements neufs) destinés à l'investissement locatif Comment en bénéficier : Création d'une société à l'IS - SCI le plus souvent - avec location du bien en résidence principale pendant 5 ans minimum, dans le respect des plafonds de loyers et de ressources. Vous êtes intéressés ? Contactez nos conseillers pour vous accompagner dans votre projet d'investissement CIOP (art. 244 quater W) et optimiser vos avantages fiscaux ! Découvrez également nos 39 autres résidences dans le 97 : Rendez-vous dans notre Agence Médicis Immobilier Neuf, Saint-Gilles les Bains 97434. Les informations sur les risques auxquels ce bien est exposé sont disponibles sur le site Géorisques : .
Koytcha immo vous propose cet appartement t2 situé au 3ème étage avec ascenseur, d'une surface habitable de 50 m², dans une résidence calme et proche de toutes commodités au 11ème km au tampon ce bien datant de 2008 est doté de : - une chambre - un séjour / cuisine - une salle d'eau / wc les places de parking boxés ou non boxés sont vendus à part l'appartement est entièrement rénové et dispose d'un ascenseur, aucuns travaux n'est à prévoir. D'autres appartements t1 et t2 sont également à vendre. Prix de vente 139 616 € fai honoraires d'agence à la charge de l'acquéreur de 4.34% ttc contactez hugo lalos par téléphone au 06 93 91 25 19, ou par mail à hugo@koytchaimmo.re « les informations sur les risques auxquels ce bien est exposé sont disponibles sur le site géorisques : » nombre de pièces : 2vue mer informations complémentaires sur les informations sur les risques auxquels ce bien est exposé sont disponibles sur le site géorisques : .
Votre agence Direct Immobilier du Tampon, vous propose à la vente un appartement T2 résidence Les "Sénioriales du Tampon" D'une surface habitable de 44,06 m² et d'une surface utile de 51,64 m² incluant une varangue de 7,58 m². donnant sur le jardin intérieur. Situé au niveau 1 d'une Résidence Séniors de 69 logements, comprenant un séjour / cuisine équipée de 25,36 m², une chambre de 13,24 m² et une salle d'eau de 5,46 m² avec toilettes. Un ensemble immobilier construit en forme de U, avec 3 ailes de distribution de logements incluant les accès PMR et desservies par ascenseur. Un salon / club au coeur de la résidence, lieu d'animation, vient compléter cet espace efficace et aéré. Dédiée aux séniors, la convivialité et les inter échanges sont privilégiés avec possibilité de services "à la carte" tels que coiffure, esthétisme, livraison de repas, réflexologue, etc. Disponible dès juin 2025. Acquisition éligible au crédit d'impôt quater W 244 pour investissement locatif (Crédit d'Impôt prévisionnel : 56 734€) Idéal également pour résidence principale avec services et confort à la clef. Charge de copropriété : 317 € / mois Frais de notaire offerts.
Votre agence Direct Immobilier du Tampon, vous propose vous propose à la vente un appartement T2 résidence Les "Sénioriales du Tampon" D'une surface habitable de 44,06 m² et d'une surface utile de 51,64 m² incluant une varangue de 7,58 m². donnant sur le jardin intérieur. Situé au niveau 1 d'une Résidence Séniors de 69 logements, comprenant un séjour / cuisine équipée de 25,36 m², une chambre de 13,24 m² et une salle d'eau de 5,46 m² avec toilettes. Un ensemble immobilier construit en forme de U, avec 3 ailes de distribution de logements incluant les accès PMR et desservies par ascenseur. Un salon / club au coeur de la résidence, lieu d'animation, vient compléter cet espace efficace et aéré. Dédiée aux séniors, la convivialité et les inter échanges sont privilégiés avec possibilité de services "à la carte" tels que coiffure, esthétisme, livraison de repas, réflexologue, etc. Acquisition éligible au crédit d'impôt quater W 244 pour investissement locatif (Crédit d'Impôt prévisionnel : 57 470€) Idéal également pour résidence principale avec services et confort à la clef. Charge de copropriété : 329 € / mois Frais de notaire offerts.
Koytcha immo vous propose cet appartement t2 situé au rez-de-chaussée, d'une surface habitable de 38 m² entièrement rénové, dans une résidence calme et proche de toutes commodités au 11ème km au tampon ce bien datant de 2008 est doté de : - une chambre - un séjour / cuisine - une salle d'eau / wc - une varangue de 4 m² - une terrasse de 14 m² les places de parking boxés ou non boxés sont vendus à part l'appartement est entièrement rafraîchit. D'autres appartements t1 et t2 sont également à vendre. Prix de vente 120 686 € fai honoraires d'agence à la charge de l'acquéreur de 4.34% ttc contactez hugo lalos par téléphone au 06 93 91 25 19, ou par mail à hugo@koytchaimmo.re « les informations sur les risques auxquels ce bien est exposé sont disponibles sur le site géorisques : » terrassenombre de pièces : 2digicode informations complémentaires sur les informations sur les risques auxquels ce bien est exposé sont disponibles sur le site géorisques : .
Teka immo vous propose au tampon un appartement t2 libre de toute occupation. Le logement fait 40 m² + une varangue de 10 m², située dans la résidence charlotte qui est à proximité du centre-ville. Une résidence sécurisée avec ascenseur et piscine. Cet appartement t2 est composé d'une pièce de vie avec cuisine us, une chambre avec placard, une salle de bain avec baignoire, un wc, une grande varangue ou vous pourrez admirer la jolie vue. De plus possède un box fermé pour garer votre voiture. L'appartement est vendu libre de toute occupation. Prix 111 500€ honoraires à la charge du vendeur. Montant annuel des charges de copropriétés : environ 856€ par an. Taxe foncière environ 1050€ dont 281€ de taxes d'ordures ménagères récupéré avec le locataire) nombres de lots : 78 appartements. Pour tous renseignements et visites, contactez votre agent mandataire indépendante teka immo : hoarau cindy ei au 06 93 03 29 75 ou cindy@tekaimmo.fr, inscrite au tgi st pierre sous le n° rsac 82212926800014. (ref de l'annonce 6464) barème visible sur le site de l'agence teka immo ou sous la responsabilité éditoriale de l'agent les informations sur les risques auxquels ce bien est exposé sont disponibles sur le site géorisques : \n.
Iad France - Marc Lauret vous propose : Superbe T2 duplex de 48 m² à Ligne des Bambous, Saint-Pierre - Idéal pour un premier achat ou un investissement locatif ! Situé dans un quartier prisé de Saint-Pierre, proche de toutes les commodités, ce charmant appartement en duplex offrira à ses futurs occupants un cadre de vie paisible et agréable. Dans une résidence bien tenue construite en 2010, cet appartement bénéficie d'une conception moderne et de finitions soignées, prêt à accueillir de nouveaux propriétaires en quête de confort et de bien-être. Vous bénéficiez également d'un parking privé et couvert afin de stationner votre véhicule en toute sécurité. Au rez-de-chaussée, vous trouverez dès l'entrée un jardinet privatif et une une varangue puis, à l'intérieur, un espace de vie lumineux comprenant une belle cuisine ouverte sur un salon chaleureux. Enfin, une salle d'eau, un toilette et plusieurs rangement viennent compléter ce niveau pour un confort optimal. Par ailleurs, la cuisine a récemment été remplacée et modernisée avec goût et matériaux nobles. À l'étage, une chambre spacieuse vous offre un espace intime et chaleureux pour des nuits paisibles. Un balcon offrant une belle luminosité et une vue dégagée vient agrémenter l'ensemble de même qu'une seconde salle d'eau et un toilette. Cet appartement bénéficie de climatiseurs fonctionnels et révisés ainsi que de brasseurs d'air à LED. Les deux salles d'eau ont été équipés de sèche-serviettes et de nombreux rangements viennent astucieusement agrémenter l'ensemble. Les prestations de qualité et les aménagements bien pensés font de ce duplex un véritable cocon où il fait bon vivre. La résidence, avec ses deux piscines et son environnement arboré, est bien tenue et vous garantit tranquillité et sérénité au quotidien. Elle comprend 200 lots. Son exposition orientée sud-ouest offre une belle luminosité tout au long de la journée, pour un confort optimal. Les avantages de ce bien : - Duplex moderne, fonctionnel, ventilé - Chambre spacieuse avec Balcon - Deux salles d'eau - Proche des commodités, services, écoles, commerces et bien desservi - Garage privé pour stationner en sécurité - Résidence avec deux piscines privées - Résidence calme et correctement tenue N'hésitez plus et contactez-moi pour visiter ce beau T2 Duplex à Ligne des Bambous ! La presente annonce immobiliere vise 2 lots situés dans une copropriété de 200 lots au total et ne faisant l'objet d'aucune procédure en cours citée à l'article L. 721-1 du code de la construction et de l'habitation. Montant moyen mensuel de charges déclaré par le vendeur : 74€ par mois (soit 888 € annuel). Honoraires d'agence à la charge du vendeur. Bien non soumis au DPE. Les informations sur les risques auxquels ce bien est exposé, y compris l'obligation légale de débroussaillement, sont disponibles sur le site Géorisques : La présente annonce immobilière a été rédigée sous la responsabilité éditoriale de M Marc Lauret mandataire indépendant en immobilier (sans détention de fonds), agent commercial de la SAS I@D France immatriculé au RSAC de SAINT PIERRE DE LA REUNION sous le numéro 939679387, titulaire de la carte de démarchage immobilier pour le compte de la société I@D France SAS.
Iad France - Bertrand Labrousse vous propose : Situé à Saint-Joseph, cet appartement neuf de type T2 est une véritable pépite à 5 minutes du centres commercial 'Les Terasses', dans un quartier calme. Idéalement conçu, ce bien vous séduira par ses prestations, sa luminosité exceptionnelle et sa vue montagne panoramique. Ce logement est éligible à la loi de défiscalisation Girardin IS (jusque 25%) et au credit d'impôts 244 quarter W à l'IR. Proche du centre-ville et du centre commercial, cette résidence de standing de 2025 vous propose un appartement au 2ème étage, bénéficiant d'un balcon de 12.7 m² vue montagne en plein sud sauvage. Vous découvrirez une chambre cosy, une salle d'eau moderne, une cuisine et un espace de vie ouvert sur le balcon. Chaque espace a été pensé pour votre confort et votre bien-être au quotidien. Au sein de ce logement, vous pourrez profiter d'équipements de qualité tels que des espaces de rangement pratiques, un accès sécurisé, et un environnement calme. De plus, vous bénéficierez d'une place de parking pour garer votre véhicule en toute sécurité (portail électrique). Ce bien conjugue modernité, fonctionnalité et confort, offrant un cadre de vie privilégié à ses résidents. Ne manquez pas l'opportunité de devenir propriétaire de ce bijou immobilier à Saint-Joseph. Idéal pour investir ou y habiter. Contactez-nous dès maintenant pour organiser une visite et laissez-vous séduire par ce lieu d'exception. La presente annonce immobiliere vise 2 lots situés dans une copropriété de 18 lots au total et ne faisant l'objet d'aucune procédure en cours citée à l'article L. 721-1 du code de la construction et de l'habitation. Montant moyen mensuel de charges déclaré par le vendeur : 80€ par mois (soit 960 € annuel). Honoraires d'agence à la charge du vendeur. Bien non soumis au DPE. Les informations sur les risques auxquels ce bien est exposé, y compris l'obligation légale de débroussaillement, sont disponibles sur le site Géorisques : La présente annonce immobilière a été rédigée sous la responsabilité éditoriale de M Bertrand Labrousse mandataire indépendant en immobilier (sans détention de fonds), agent commercial de la SAS I@D France immatriculé au RSAC de Saint Denis de la Réunion sous le numéro 940316110, titulaire de la carte de démarchage immobilier pour le compte de la société I@D France SAS.
Iad France - Adèle Begue vous propose : APPARTEMENT NEUF - DEFISCALISATION Situé à Saint-Joseph, cet appartement neuf de type T2 est une véritable pépite offrant un cadre de vie moderne et confortable. Idéalement conçu, ce bien vous séduira par ses prestations, sa luminosité exceptionnelle et sa vue montagne et mer. Ce logement est éligible à la loi de défiscalisation Girardin à l'IS (25%) et au credit d'impôts 244 Quarter W (34%). Proche du centre-ville et du centre commercial, cette résidence de standing de 2025 vous propose un appartement au 1er étage, bénéficiant d'un balcon de 10 m² vue montagne en plein sud sauvage. Vous découvrirez une chambre cosy, une salle d'eau moderne, une cuisine et un espace de vie ouvert sur le balcon. Chaque espace a été pensé pour votre confort et votre bien-être au quotidien. Au sein de ce logement, vous pourrez profiter d'équipements de qualité tels que des espaces de rangement pratiques, un accès sécurisé, et un environnement calme. De plus, vous bénéficierez d'une place de parking couverte pour garer votre véhicule en toute sécurité. Ce bien conjugue modernité, fonctionnalité et confort, offrant un cadre de vie privilégié à ses résidents. Ne manquez pas l'opportunité de devenir propriétaire de ce bijou immobilier à Saint-Joseph. Idéal pour investir ou y habiter. Contactez-nous dès maintenant pour organiser une visite et laissez-vous séduire par ce lieu d'exception. La presente annonce immobiliere vise 2 lots situés dans une copropriété de 18 lots au total et ne faisant l'objet d'aucune procédure en cours citée à l'article L. 721-1 du code de la construction et de l'habitation. Montant moyen mensuel de charges déclaré par le vendeur : 80€ par mois (soit 960 € annuel). Honoraires d'agence à la charge du vendeur. Bien non soumis au DPE. Les informations sur les risques auxquels ce bien est exposé, y compris l'obligation légale de débroussaillement, sont disponibles sur le site Géorisques : La présente annonce immobilière a été rédigée sous la responsabilité éditoriale de Mme Adèle Begue mandataire indépendant en immobilier (sans détention de fonds), agent commercial de la SAS I@D France immatriculé au RSAC de saint denis de la reunion sous le numéro 884276734, titulaire de la carte de démarchage immobilier pour le compte de la société I@D France SAS.