Logo LSI sombre

Appartement 2 Pièces 51 m² à vendre à La Chapelle-Saint-Mesmin (45380)
1

Vente appartement 2 pièces 51 m² La Chapelle-Saint-Mesmin (45380)

222 650 €

Vente Appartement 2 pièces

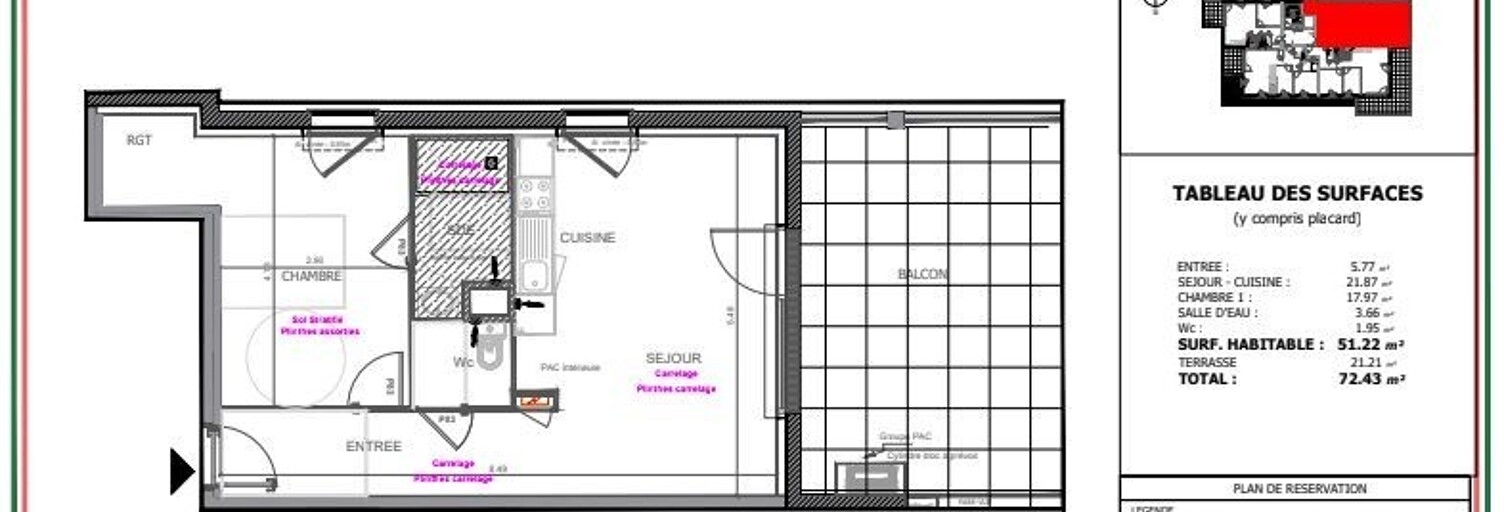
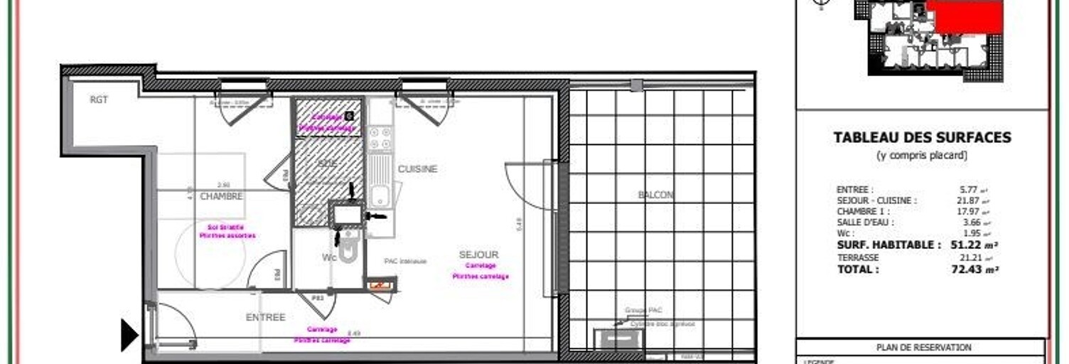
Iad france - philippe gonzalez (06 19 04 47 89) vous propose : la chapelle saint mesmin (côte loire) - appartement 2 pièces neuf en vefa avec terrasse de 21,21 m² environ et parking couvert dans une résidence neuve à taille humaine (une dizaine de logements seulement), idéalement située côté loire à la chapelle-saint-mesmin, découvrez cet agréable appartement 2 pièces de 51,22 m² environ habitables avec une vaste terrasse privative de 21,21 m² environ et parking couvert au rez-de-chaussée. Situé au 2ème étage (lot 202), ce logement vous propose une configuration confortable et fonctionnelle, comprenant : • une entrée de 5,77 m² environ, • un séjour-cuisine lumineux de 21,87 m² environ, • une chambre spacieuse de 17,97 m² environ, • une salle d’eau de 3,66 m² environ, • un wc indépendant de 1,95 m² environ. Avec une surface totale utile de 72,43 m² environ, cet appartement est une belle opportunité pour habiter ou investir dans un environnement paisible et verdoyant, à deux pas de la loire, proche de toutes les commodités : commerces, transports, écoles, et accès rapide à orléans. Je reste à votre entière disposition pour tout complément d’information ou pour vous accompagner dans la concrétisation de votre projet. Honoraires d’agence à la charge du vendeur. Bien non soumis au dpe. Les informations sur les risques auxquels ce bien est exposé sont disponibles sur le site géorisques : . La présente annonce immobilière a été rédigée sous la responsabilité éditoriale de m. Philippe gonzalez ei (id 33714), mandataire indépendant en immobilier (sans détention de fonds), agent commercial de la sas i@d france immatriculé au rsac de orleans sous le numéro 804001295, titulaire de la carte de démarchage immobilier pour le compte de la société i@d france sas. Retrouvez tous nos biens sur notre site internet. .

Caractéristiques

Les plus de cette annonce
  • Parking
  • Ensoleillé
  • Terrasse
Confort
  • Chauffage Individuel
  • Chauffage Electrique
Pièces
  • 2 pièces
Superficies
  • Surface habitable : 51 m²

Consommation énergétique et gaz à effet de serre

Bilan énergétique (DPE)
NC
Bilan gaz à effet de serre (GES)
NC

Géorisques

Les informations sur les risques auxquels ce bien est exposé sont disponibles sur le site Géorisques : www.georisques.gouv.fr

A propos du prix de cet appartement

  • Prix : 222 650 € (soit 4 366 € / m²)
  • Honoraires à charge vendeur

À propos de cette annonce

Mise en ligne:

Dernière mise à jour:

Référence de l'annonce: 1730513-6
iad france agence immobilière à Lieusaint (77127)
iad france
Afficher le numéro

Appartement similaires à acheter La Chapelle-Saint-Mesmin (45380)

Appartement 2 pièces 219500 €
219 500 €

Appartement 2 pièces 50 m²

La Chapelle-Saint-Mesmin (45380)

Iad france - philippe gonzalez (06 19 04 47 89) vous propose : la chapelle saint mesmin (côté loire) - appartement 2 pièces neuf en vefa avec grande terrasse et parking couvert. Dans une résidence neuve à taille humaine (une dizaine de logements seulement), idéalement située côté loire à la chapelle-saint-mesmin, découvrez cet agréable appartement 2 pièces de 50,94 m² environ habitables avec terrasse spacieuse de 21,96 m² environ et parking couvert au rez-de-chaussée. Situé au 1er étage, ce bien se compose de : • une entrée de 6,96 m² environ, • un séjour-cuisine lumineux de 24,58 m² environ, • une chambre confortable de 14,20 m² environ, • une salle d’eau de 3,97 m² environ, • un wc indépendant de 1,23 m² environ. Avec sa surface utile totale de 72,90 m² environ, ce logement offre un cadre de vie agréable et fonctionnel, idéal pour un premier achat, une résidence secondaire ou un investissement patrimonial. La résidence se situe dans un environnement calme et verdoyant, à proximité immédiate de toutes commodités : commerces, écoles, transports, accès rapide à orléans. Je reste à votre entière disposition pour tout complément d’information ou pour vous accompagner dans votre projet. Honoraires d’agence à la charge du vendeur. Bien non soumis au dpe. Les informations sur les risques auxquels ce bien est exposé sont disponibles sur le site géorisques : . La présente annonce immobilière a été rédigée sous la responsabilité éditoriale de m. Philippe gonzalez ei (id 33714), mandataire indépendant en immobilier (sans détention de fonds), agent commercial de la sas i@d france immatriculé au rsac de orleans sous le numéro 804001295, titulaire de la carte de démarchage immobilier pour le compte de la société i@d france sas. Retrouvez tous nos biens sur notre site internet. .

À voir pour le même budget

Appartement 4 pièces 194000 €
194 000 €

Appartement 4 pièces 79 m²

La Chapelle-Saint-Mesmin (45380)

La chappelle saint mesmin - contacter isabelle fagot pour cet appartement en très bon état, spacieux, situé au premier étage d'un immeuble construit en 1997, qui offre un cadre de vie agréable et fonctionnel. Composé de quatre pièces, il se distingue par sa pièce de vie avec cuisine ouverte aménagée et équipée, bien agencée, propice à des moments de convivialité avec un accès à la belle terrasse. Ses trois chambres lumineuses sont parfaites pour accueillir une famille ou des amis. L'appartement dispose d'une salle d'eau moderne, d'un wc séparé et d'un espace buanderie, garantissant un confort optimal. Un cellier / grenier au dernier étage, un emplacement de parking au sein de la résidence sécurisée et un ascenseur ajoutent un confort indéniable au quotidien. Cet appartement représente une belle opportunité pour les acheteurs en quête d'un lieu de vie harmonieux et fonctionnel. Ce bien fait partie d'une copropriété de 35 lots à usage d'habitation. Pas de procédure en cours, les charges prévisionnelles sont de 1656 euros par an, soit environ 138 euros par mois. Montant estimé des dépenses annuelles d'énergie pour un usage standard : entre 1130 € et 1580 € par an. Prix moyens des énergies indexés sur les années 2021 2022 2023 (abonnement compris). Dpe : c ges : a; pour visiter et vous accompagner dans votre projet, contactez isabelle fagot 06 19 66 55 14 prix de vente 194 000 € - honoraires : 4,86 % ttc à la charge de l'acquéreur prix hors honoraires d'agence : 185 000 €. Selon l'article l. 561.5 du code monétaire et financier, pour l'organisation de la visite, la présentation d'une pièce d'identité vous sera demandée. Les informations sur les risques auxquels ce bien est exposé sont disponibles sur le site géorisques : cette présente annonce a été rédigée sous la responsabilité éditoriale de isabelle fagot agissant sous le statut d'agent commercial immatriculé au ville du greffe : orleans sous le numéro rsac n° 837 661 933 auprès de la sas immo reseau au capital de 10 000€ - réseau national immobilier sur internet, 44 allée des cinq continents - 44120 vertou - rne nantes 519 718 886. Carte professionnelle t et g n° cpi 3002 2018 000 024 971 cci de nantes-saint-nazaire (44) ; garantie par galian – 89 rue de la boétie - 75008 paris n°171379g pour 120 000€ pour t. Assurance responsabilité civile professionnelle par galian n° de police 120 137 405 (réf. 38755) - le professionnel garantit et sécurise votre projet immobilier.

Appartement 2 pièces 240500 €
240 500 €

Appartement 2 pièces 51 m²

La Chapelle-Saint-Mesmin (45380)

Iad france - philippe gonzalez (06 19 04 47 89) vous propose : la chapelle saint mesmin (côte loire) - appartement 2 pièces neuf en vefa avec terrasse de 39 m² environ et parking couvert dans une résidence neuve à taille humaine (une dizaine de logements seulement), idéalement située côté loire à la chapelle-saint-mesmin, découvrez cet agréable appartement 2 pièces de 51,22 m² environ habitables avec une vaste terrasse privative de 39 m² environ et parking couvert au rez-de-chaussée. Situé au 1er étage (lot 102), ce logement vous propose une configuration confortable et fonctionnelle, comprenant : • une entrée de 5,77 m² environ, • un séjour-cuisine lumineux de 21,87 m² environ, • une chambre spacieuse de 17,97 m² environ, • une salle d’eau de 3,66 m² environ, • un wc indépendant de 1,95 m² environ. Avec une surface totale utile de 90,22 m² environ, cet appartement est une belle opportunité pour habiter ou investir dans un environnement paisible et verdoyant, à deux pas de la loire, proche de toutes les commodités : commerces, transports, écoles, et accès rapide à orléans. Je reste à votre entière disposition pour tout complément d’information ou pour vous accompagner dans la concrétisation de votre projet. Honoraires d’agence à la charge du vendeur. Bien non soumis au dpe. Les informations sur les risques auxquels ce bien est exposé sont disponibles sur le site géorisques : . La présente annonce immobilière a été rédigée sous la responsabilité éditoriale de m. Philippe gonzalez ei (id 33714), mandataire indépendant en immobilier (sans détention de fonds), agent commercial de la sas i@d france immatriculé au rsac de orleans sous le numéro 804001295, titulaire de la carte de démarchage immobilier pour le compte de la société i@d france sas. Retrouvez tous nos biens sur notre site internet. .

Appartement 2 pièces 219500 €
219 500 €

Appartement 2 pièces 50 m²

La Chapelle-Saint-Mesmin (45380)

Iad france - philippe gonzalez (06 19 04 47 89) vous propose : la chapelle saint mesmin (côté loire) - appartement 2 pièces neuf en vefa avec grande terrasse et parking couvert. Dans une résidence neuve à taille humaine (une dizaine de logements seulement), idéalement située côté loire à la chapelle-saint-mesmin, découvrez cet agréable appartement 2 pièces de 50,94 m² environ habitables avec terrasse spacieuse de 21,96 m² environ et parking couvert au rez-de-chaussée. Situé au 1er étage, ce bien se compose de : • une entrée de 6,96 m² environ, • un séjour-cuisine lumineux de 24,58 m² environ, • une chambre confortable de 14,20 m² environ, • une salle d’eau de 3,97 m² environ, • un wc indépendant de 1,23 m² environ. Avec sa surface utile totale de 72,90 m² environ, ce logement offre un cadre de vie agréable et fonctionnel, idéal pour un premier achat, une résidence secondaire ou un investissement patrimonial. La résidence se situe dans un environnement calme et verdoyant, à proximité immédiate de toutes commodités : commerces, écoles, transports, accès rapide à orléans. Je reste à votre entière disposition pour tout complément d’information ou pour vous accompagner dans votre projet. Honoraires d’agence à la charge du vendeur. Bien non soumis au dpe. Les informations sur les risques auxquels ce bien est exposé sont disponibles sur le site géorisques : . La présente annonce immobilière a été rédigée sous la responsabilité éditoriale de m. Philippe gonzalez ei (id 33714), mandataire indépendant en immobilier (sans détention de fonds), agent commercial de la sas i@d france immatriculé au rsac de orleans sous le numéro 804001295, titulaire de la carte de démarchage immobilier pour le compte de la société i@d france sas. Retrouvez tous nos biens sur notre site internet. .

Appartement 2 pièces 208500 €
208 500 €

Appartement 2 pièces 51 m²

La Chapelle-Saint-Mesmin (45380)

Iad france - philippe gonzalez (06 19 04 47 89) vous propose : la chapelle saint mesmin (côte loire) - appartement 2 pièces neuf en vefa avec terrasse de 8.25 m² environ et parking couvert dans une résidence neuve à taille humaine (une dizaine de logements seulement), idéalement située côté loire à la chapelle-saint-mesmin, découvrez cet agréable appartement 2 pièces de 50,94 m² environ habitables avec une terrasse privative de 8,25 m² environ et parking couvert au rez-de-chaussée. Situé au 2ème étage (lot 201), ce logement vous propose une configuration confortable et fonctionnelle, comprenant : • une entrée de 6,96 m² environ, • un séjour-cuisine lumineux de 24,58 m² environ, • une chambre spacieuse de 14,20 m² environ, • une salle d’eau de 3,97 m² environ, • un wc indépendant de 1,23 m² environ. Avec une surface totale utile de 59,19 m² environ, cet appartement est une belle opportunité pour habiter ou investir dans un environnement paisible et verdoyant, à deux pas de la loire, proche de toutes les commodités : commerces, transports, écoles, et accès rapide à orléans. Je reste à votre entière disposition pour tout complément d’information ou pour vous accompagner dans la concrétisation de votre projet. Honoraires d’agence à la charge du vendeur. Bien non soumis au dpe. Les informations sur les risques auxquels ce bien est exposé sont disponibles sur le site géorisques : . La présente annonce immobilière a été rédigée sous la responsabilité éditoriale de m. Philippe gonzalez ei (id 33714), mandataire indépendant en immobilier (sans détention de fonds), agent commercial de la sas i@d france immatriculé au rsac de orleans sous le numéro 804001295, titulaire de la carte de démarchage immobilier pour le compte de la société i@d france sas. Retrouvez tous nos biens sur notre site internet. .

Appartement 3 pièces 179700 €
179 700 €

Appartement 3 pièces 61 m²

Saint-Pryvé-Saint-Mesmin (45750)

La campagne à la ville ! Dans un petit ensemble immobilier récent proche d'Orléans, des grands axes routiers, des commodités. Découvrez ce bel appartement de trois pièces principales qui vous réserve au rez-de-chaussée : séjour / cuisine, salle d'eau. À l'étage : deux chambres, salle de bains, dégagement et le droit à la jouissance exclusive d'un jardin privatif attenant. Stationnement extérieur sécurisé à l'intérieur de la résidence. Une visite s'impose !

Appartement 3 pièces 179900 €
179 900 €
-1 %

Appartement 3 pièces 60 m²

Saint-Pryvé-Saint-Mesmin (45750)

De la ville à la campagne. Le calme et la sérénité seront vos guides dans ce bel environnement verdoyant. Vous découvrirez un ensemble immobilier de 2016, proche d'Orléans et des grands axes routiers. L'appartement est situé au deuxième et dernier étage de la résidence et comprend : un séjour / cuisine de 29 m², deux chambres, salle de bains, une terrasse de 9 m² en prolongement du salon, offrant une vue dégagée sur de la verdure et bien plus encore ! Chauffage individuel, stationnement sécurisé à l'intérieur de la résidence. La meilleure description c'est la visite, alors qu'attendez vous pour le visiter ?