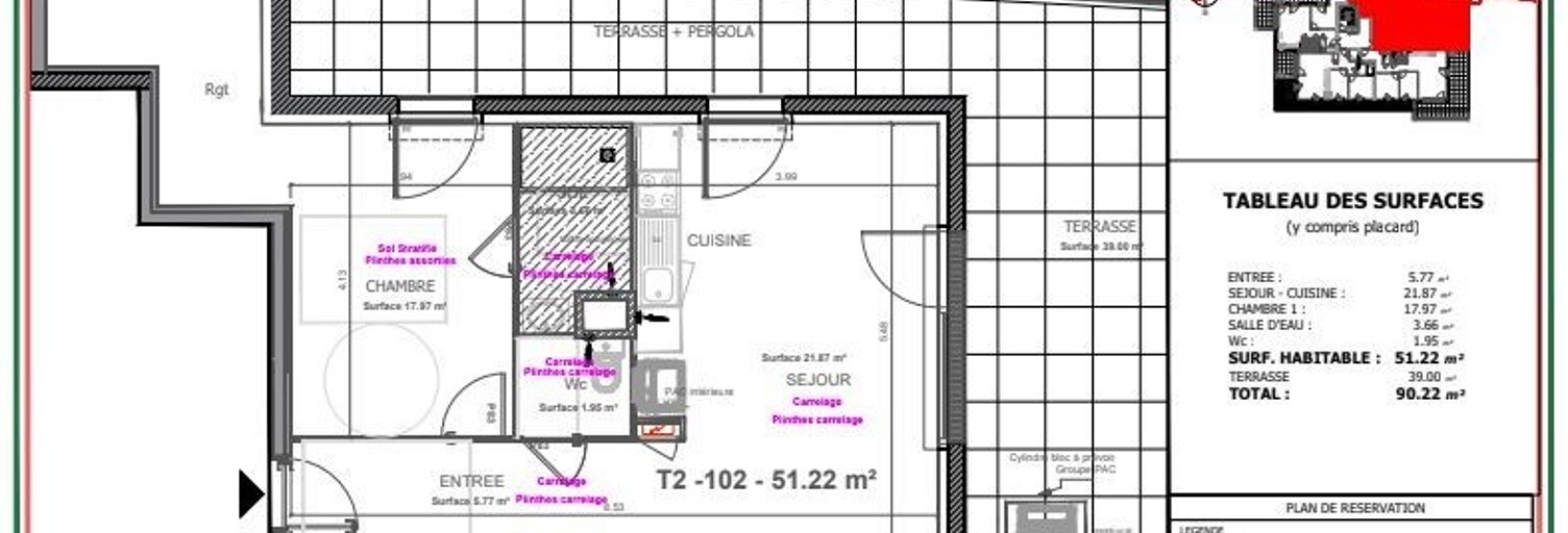
Iad france - philippe gonzalez (06 19 04 47 89) vous propose : la chapelle saint mesmin (côte loire) - appartement 2 pièces neuf en vefa avec terrasse de 39 m² environ et parking couvert dans une résidence neuve à taille humaine (une dizaine de logements seulement), idéalement située côté loire à la chapelle-saint-mesmin, découvrez cet agréable appartement 2 pièces de 51,22 m² environ habitables avec une vaste terrasse privative de 39 m² environ et parking couvert au rez-de-chaussée. Situé au 1er étage (lot 102), ce logement vous propose une configuration confortable et fonctionnelle, comprenant : • une entrée de 5,77 m² environ, • un séjour-cuisine lumineux de 21,87 m² environ, • une chambre spacieuse de 17,97 m² environ, • une salle d’eau de 3,66 m² environ, • un wc indépendant de 1,95 m² environ. Avec une surface totale utile de 90,22 m² environ, cet appartement est une belle opportunité pour habiter ou investir dans un environnement paisible et verdoyant, à deux pas de la loire, proche de toutes les commodités : commerces, transports, écoles, et accès rapide à orléans. Je reste à votre entière disposition pour tout complément d’information ou pour vous accompagner dans la concrétisation de votre projet. Honoraires d’agence à la charge du vendeur. Bien non soumis au dpe. Les informations sur les risques auxquels ce bien est exposé sont disponibles sur le site géorisques : . La présente annonce immobilière a été rédigée sous la responsabilité éditoriale de m. Philippe gonzalez ei (id 33714), mandataire indépendant en immobilier (sans détention de fonds), agent commercial de la sas i@d france immatriculé au rsac de orleans sous le numéro 804001295, titulaire de la carte de démarchage immobilier pour le compte de la société i@d france sas. Retrouvez tous nos biens sur notre site internet. .
Les informations sur les risques auxquels ce bien est exposé sont disponibles sur le site Géorisques : www.georisques.gouv.fr
Mise en ligne:
Dernière mise à jour:
Référence de l'annonce: 1730513-2
