10 résultats
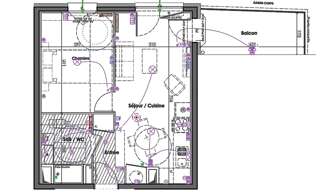
Iad france - corinne rouyer (06 33 91 84 03) vous propose : venez découvrir cet appartement d'environ 40 m² environ avec balcon et 2 places de parking dans un village situé à environ 20 minutes de grenoble en voiture. Chauffage avec pompe à chaleur individuelle, local à vélos commun. Ne passez pas devant cette belle opportunité honoraires d’agence à la charge du vendeur. Bien non soumis au dpe. Les informations sur les risques auxquels ce bien est exposé sont disponibles sur le site géorisques : . La présente annonce immobilière a été rédigée sous la responsabilité éditoriale de mme corinne rouyer ei (id 61495), mandataire indépendant en immobilier (sans détention de fonds), agent commercial de la sas i@d france immatriculé au rsac de clermont-ferrand sous le numéro 851754317, titulaire de la carte de démarchage immobilier pour le compte de la société i@d france sas. Retrouvez tous nos biens sur notre site internet. .
Iad France - Sarah Rozière (06 99 86 19 42) vous propose : Appartement T2 avec balcon à Claix. Située Montée de la Croix Blanche à Claix, au sud de Grenoble, la résidence Effet Vercors offre un cadre de vie unique entre ville et nature, avec une vue imprenable sur le massif du Vercors. Cette résidence conjugue architecture élégante, performance énergétique et douceur de vivre au cOEur d’un environnement verdoyant. Disponible 2027. Un appartement raffiné : Situé au 2 ème étage, cet appartement T2 de 47 m² environ habitables se prolonge par un balcon de 8 m² environ. - Séjour / cuisine de 20 m² environ. - Chambre confortable. - Salle d’eau moderne. - Annexes incluses : 1 cellier et 2 parkings extérieurs. De belles prestations : - Chauffage et eau chaude par pompe à chaleur individuelle vecteur air. - Grandes baies vitrées et volets roulants motorisés. - Espaces verts paysagers, jardin partagé et cheminements piétons en bois. L’art de vivre à Claix : - À 8 minutes à pied du centre-bourg, commerces et services de proximité. - Bus 21 (arrêt La Chièze) à 350 m et gare TER de Pont-de-Claix à 3 min en voiture. - Accès rapide aux autoroutes A480 et A51 vers Grenoble ou Marseille. - Écoles, collège, médiathèque et équipements sportifs à proximité. - Espaces naturels à deux pas : Parc de la Ronzy, Fort de Comboire, réserve naturelle du Peuil. N’hésitez pas à me contacter pour plus d’informations ou pour un accompagnement sur mesure. Honoraires d’agence à la charge du vendeur. Bien non soumis au DPE. Les informations sur les risques auxquels ce bien est exposé sont disponibles sur le site Géorisques : . La présente annonce immobilière a été rédigée sous la responsabilité éditoriale de Mlle Sarah Rozière EI (ID 83696), mandataire indépendant en immobilier (sans détention de fonds), agent commercial de la SAS I@D France immatriculé au RSAC de Clermont-Ferrand sous le numéro 978616993, titulaire de la carte de démarchage immobilier pour le compte de la société I@D France SAS. Retrouvez tous nos biens sur notre site internet. .
Iad France - Sarah Rozière (06 99 86 19 42) vous propose : Appartement T2 avec balcon à Claix. Située Montée de la Croix Blanche à Claix, au sud de Grenoble, la résidence Effet Vercors offre un cadre de vie unique entre ville et nature, avec une vue imprenable sur le massif du Vercors. Cette résidence conjugue architecture élégante, performance énergétique et douceur de vivre au cOEur d’un environnement verdoyant. Disponible 2027. Un appartement raffiné : Situé au 2 ème étage, cet appartement T2 de 41 m² environ habitables se prolonge par un balcon de 8 m² environ. - Séjour / cuisine de 21 m² environ. - Chambre confortable. - Salle d’eau moderne. - Annexes incluses : 1 cellier, 1 parking extérieur et 1 parking intérieur. De belles prestations : - Chauffage et eau chaude par pompe à chaleur individuelle vecteur air. - Grandes baies vitrées et volets roulants motorisés. - Espaces verts paysagers, jardin partagé et cheminements piétons en bois. L’art de vivre à Claix : - À 8 minutes à pied du centre-bourg, commerces et services de proximité. - Bus 21 (arrêt La Chièze) à 350 m et gare TER de Pont-de-Claix à 3 min en voiture. - Accès rapide aux autoroutes A480 et A51 vers Grenoble ou Marseille. - Écoles, collège, médiathèque et équipements sportifs à proximité. - Espaces naturels à deux pas : Parc de la Ronzy, Fort de Comboire, réserve naturelle du Peuil. N’hésitez pas à me contacter pour plus d’informations ou pour un accompagnement sur mesure. Honoraires d’agence à la charge du vendeur. Bien non soumis au DPE. Les informations sur les risques auxquels ce bien est exposé sont disponibles sur le site Géorisques : . La présente annonce immobilière a été rédigée sous la responsabilité éditoriale de Mlle Sarah Rozière EI (ID 83696), mandataire indépendant en immobilier (sans détention de fonds), agent commercial de la SAS I@D France immatriculé au RSAC de Clermont-Ferrand sous le numéro 978616993, titulaire de la carte de démarchage immobilier pour le compte de la société I@D France SAS. Retrouvez tous nos biens sur notre site internet. .
Iad France - Sarah Rozière (06 99 86 19 42) vous propose : Appartement T2 avec terrasse à Claix. Située Montée de la Croix Blanche à Claix, au sud de Grenoble, la résidence Effet Vercors offre un cadre de vie unique entre ville et nature, avec une vue imprenable sur le massif du Vercors. Ce programme conjugue architecture élégante, performance énergétique et douceur de vivre au cOEur d’un environnement verdoyant. Livraison prévue en 2027. D’une surface de 41 m² environ habitables, cet appartement T2 situé en rez-de-chaussée surélevé se prolonge par une terrasse de 11 m² environ. Il comprend un séjour / cuisine de 21 m² environ, une chambre confortable et une salle d’eau moderne. Un cellier, une place de parking extérieure et une place de parking intérieure complètent le bien. Le chauffage et la production d’eau chaude sont assurés par une pompe à chaleur individuelle vecteur air, garantissant confort et économies d’énergie. AUTRES T2 DISPONIBLES À PARTIR DE 220 000 € – Plans et demande d'informations sur simple contact Nichée dans un cadre résidentiel paisible, la résidence Effet Vercors se distingue par son architecture contemporaine et son intégration harmonieuse au paysage. Entourée d’espaces verts, elle a été pensée pour offrir un quotidien serein et pratique : bâtiments à taille humaine, stationnements sécurisés, celliers privatifs et espaces communs paysagers. Les habitants profitent d’un emplacement privilégié : le centre-bourg et ses commerces sont accessibles en 8 minutes à pied, le bus 21 (arrêt La Chièze) se situe à 350 m, et la gare TER de Pont-de-Claix à seulement 3 minutes en voiture. Les écoles, collège, médiathèque et équipements sportifs se trouvent à proximité immédiate, tout comme les espaces naturels : Parc de la Ronzy, Fort de Comboire et réserve naturelle du Peuil. Acheter dans le neuf, c’est bénéficier de frais de notaire réduits, de garanties constructeur et d’un logement conforme aux dernières normes thermiques et acoustiques. Vous pouvez également personnaliser certains aménagements selon vos envies. Vous pouvez me contacter dès maintenant pour recevoir le plan détaillé, obtenir plus d’informations ou bénéficier d’un accompagnement personnalisé. Honoraires d’agence à la charge du vendeur. Bien non soumis au DPE. Les informations sur les risques auxquels ce bien est exposé sont disponibles sur le site Géorisques : . La présente annonce immobilière a été rédigée sous la responsabilité éditoriale de Mlle Sarah Rozière EI (ID 83696), mandataire indépendant en immobilier (sans détention de fonds), agent commercial de la SAS I@D France immatriculé au RSAC de Clermont-Ferrand sous le numéro 978616993, titulaire de la carte de démarchage immobilier pour le compte de la société I@D France SAS. Retrouvez tous nos biens sur notre site internet. .

Recevez en temps réel les dernières annonces correspondant à votre recherche
Iad France - Sarah Rozière (06 99 86 19 42) vous propose : Appartement T2 avec balcon à Claix. Nichée au cOEur d’un parc classé à la française dans la commune de Claix, à seulement 15 minutes de Grenoble, la résidence Domaine Férédie offre un cadre de vie exceptionnel alliant charme et architecture contemporaine. Cette résidence s’inscrit dans un environnement verdoyant, entre nature préservée et proximité immédiate des commodités. Disponible 2027. Un appartement raffiné : Situé au 2 ème étage, cet appartement T2 de 50 m² environ habitables se prolonge par un balcon de 20 m² environ. - Séjour / cuisine de 26 m² environ. - Chambre confortable. - Salle d’eau moderne. - Annexe incluse : 1 garage privatif. De belles prestations : - Chauffage collectif au bois granulés, avec thermostat d’ambiance programmable. - Menuiseries aluminium à rupture de pont thermique et volets roulants motorisés. - Résidence sécurisée avec accès par badge nominatif et parking en sous-sol. - Jardin à la française privatif, espaces verts et aires de détente pour les résidents L’art de vivre à Claix : - À seulement 300 m du centre-bourg et de ses commerces. - Accès rapide à l’A480 et à l’A51. - Tramway et gare SNCF de Pont-de-Claix à 10 minutes. - Espaces naturels et randonnées accessibles directement depuis la résidence. - Vues dégagées sur les massifs du Vercors et de Belledonne. N’hésitez pas à me contacter pour plus d’informations ou pour un accompagnement sur mesure. Honoraires d’agence à la charge du vendeur. Bien non soumis au DPE. Les informations sur les risques auxquels ce bien est exposé sont disponibles sur le site Géorisques : . La présente annonce immobilière a été rédigée sous la responsabilité éditoriale de Mlle Sarah Rozière EI (ID 83696), mandataire indépendant en immobilier (sans détention de fonds), agent commercial de la SAS I@D France immatriculé au RSAC de Clermont-Ferrand sous le numéro 978616993, titulaire de la carte de démarchage immobilier pour le compte de la société I@D France SAS. Retrouvez tous nos biens sur notre site internet. .
Iad France - Sarah Rozière (06 99 86 19 42) vous propose : Appartement T2 avec balcon à Claix. Nichée au cOEur d’un parc classé à la française dans la commune de Claix, à seulement 15 minutes de Grenoble, la résidence Domaine Férédie offre un cadre de vie exceptionnel alliant charme et architecture contemporaine. Cette résidence s’inscrit dans un environnement verdoyant, entre nature préservée et proximité immédiate des commodités. Disponible 2027. Un appartement raffiné : Situé au 1 er étage, cet appartement T2 de 44 m² environ habitables se prolonge par un balcon de 16 m² environ. - Séjour / cuisine de 23 m² environ. - Chambre confortable. - Salle d’eau moderne. - Annexe incluse : 1 garage privatif. De belles prestations : - Chauffage collectif au bois granulés, avec thermostat d’ambiance programmable. - Menuiseries aluminium à rupture de pont thermique et volets roulants motorisés. - Résidence sécurisée avec accès par badge nominatif et parking en sous-sol. - Jardin à la française privatif, espaces verts et aires de détente pour les résidents L’art de vivre à Claix : - À seulement 300 m du centre-bourg et de ses commerces. - Accès rapide à l’A480 et à l’A51. - Tramway et gare SNCF de Pont-de-Claix à 10 minutes. - Espaces naturels et randonnées accessibles directement depuis la résidence. - Vues dégagées sur les massifs du Vercors et de Belledonne. N’hésitez pas à me contacter pour plus d’informations ou pour un accompagnement sur mesure. Honoraires d’agence à la charge du vendeur. Bien non soumis au DPE. Les informations sur les risques auxquels ce bien est exposé sont disponibles sur le site Géorisques : . La présente annonce immobilière a été rédigée sous la responsabilité éditoriale de Mlle Sarah Rozière EI (ID 83696), mandataire indépendant en immobilier (sans détention de fonds), agent commercial de la SAS I@D France immatriculé au RSAC de Clermont-Ferrand sous le numéro 978616993, titulaire de la carte de démarchage immobilier pour le compte de la société I@D France SAS. Retrouvez tous nos biens sur notre site internet. .
Effet vercors, une résidence neuve à claix, offre des appartements neufs configurables du studio au 5 pièces avec espaces extérieurs généreux. Profitez de vues dégagées sur le vercors et les massifs, ainsi que dun emplacement préservé proche des commodités. Dans un secteur calme et pavillonnaire de claix, la résidence effet vercors est idéalement située : à seulement 8 minutes à pied du centre bourg avec ses commerces et services de proximité : pharmacie, boulangerie, coiffeur, fleuriste, restaurants, la poste. Le supermarché de claix se situe à 4 minutes en voiture. Vous pourrez rejoindre grenoble en seulement quelques minutes en voiture, ainsi que le centre commercial de comboire. De plus, la résidence est aux portes du parc naturel régional du vercors offrant un cadre de vie agréable en gardant son esprit village. Les 41 appartements neufs proposés vont du studio au 5 pièces. Ils sont configurables selon vos besoins. Profitez despaces extérieurs généreux, que ce soit un balcon ou une terrasse. Certains appartements en attique offrent même une terrasse à ciel ouvert. La résidence respecte la norme rt2012-20%, et un aménagement paysagé avec plus de 120 arbres invite à la sérénité. Profitez de cette opportunité unique à claix et découvrez les avantages de vivre dans la résidence effet vercors. Offre de lancement : frais de notaire offerts + frais de dossier bancaire + 2000 euros remise / pièce.
Découvrez Domaine Féredie, une résidence d'exception située à seulement 300 mètres du centre-bourg de Claix, dans un cadre rare et préservé, au sud de Grenoble. La résidence intimiste propose 14 appartements de grand standing, allant du 2 au 4 pièces, aux volumes généreux. Grâce à de larges ouvrants, chaque appartement bénéficie d'une luminosité naturelle et d'un cadre de vie convivial avec un beau jardin à la française. Pour plus de confort, la résidence dispose d'un local à vélos et d'un parking en sous-sol, permettant de faciliter vos déplacements quotidiens tout en préservant l'harmonie avec l'environnement. Claix s'étend le long du Drac, entourée de montagnes et de sentiers de randonnée, offrant un environnement naturel incomparable. Ce charmant village a su conserver son esprit authentique, avec sa mairie, son église, ses demeures bourgeoises et ses commerces de proximité. Venez vivre au coeur de la nature dans un lieu où prestige et tranquillité se rencontrent, et laissez-vous séduire par cette résidence aux prestations haut de gamme. Les informations sur les risques auxquels ce bien est exposé sont disponibles sur le site Géorisques : .
Découvrez Domaine Féredie, une résidence d'exception située à seulement 300 mètres du centre-bourg de Claix, dans un cadre rare et préservé, au sud de Grenoble. La résidence intimiste propose 14 appartements de grand standing, allant du 2 au 4 pièces, aux volumes généreux. Grâce à de larges ouvrants, chaque appartement bénéficie d'une luminosité naturelle et d'un cadre de vie convivial avec un beau jardin à la française. Pour plus de confort, la résidence dispose d'un local à vélos et d'un parking en sous-sol, permettant de faciliter vos déplacements quotidiens tout en préservant l'harmonie avec l'environnement. Claix s'étend le long du Drac, entourée de montagnes et de sentiers de randonnée, offrant un environnement naturel incomparable. Ce charmant village a su conserver son esprit authentique, avec sa mairie, son église, ses demeures bourgeoises et ses commerces de proximité. Venez vivre au coeur de la nature dans un lieu où prestige et tranquillité se rencontrent, et laissez-vous séduire par cette résidence aux prestations haut de gamme. Les informations sur les risques auxquels ce bien est exposé sont disponibles sur le site Géorisques : .
Remises exceptionnelles * bénéficiez d'une remise exceptionnelle * sur certains logements de cette résidence du 1er au 31 décembre 2025. Découvrez le programme neuf effet vercors à claix, au sud de grenoble. Profitez d'un cadre de vie exceptionnel avec des appartements neufs du 2 au 5 pièces, des prestations de qualité et des vues imprenables sur les massifs de belledonne et du vercors. La résidence est idéalement située à proximité des commodités, des transports et du parc naturel régional du vercors. ( * ) conditions détaillées sur simple demande ou sur le site contactez-nous dès à présent au 01 55 18 70 00 pour découvrir notre résidence et rencontrez nos équipes. Les informations sur les risques auxquels ce bien est exposé sont disponibles sur le site géorisques : .
Autres annonces à proximité de Claix (38640) avec vos critères
Le pont de claix, résidence les olympiades, agréable 2 pièces composé d'une cuisine semi équipée, un grand séjour, une chambre avec dressing, salle de douche, wc séparé, cave et une place de parking privative. L'appartement est situé au 5ème étage avec ascenseur et possède une vue dégagée, exposé sud. Chauffage et eau chaude collectifs pour un montant incluant les charges de 182 eur / mois. Dans une copropriété fermée et sécurisée de 499 lots. Ideal 1er achat ou investisseur. Classe énergie : d estimation des coûts annuels d'énergie entre 826 eur et 1118 eur - année de référence : 2024 les informations sur les risques auxquels ce bien est exposé sont disponibles sur le site exclusivite.
Pont de Claix, proche gendarmerie, appartement de type 2 au 2eme et dernier étage sans ascenseur, dans une copropriété de 2020 de 10 logements, surface de 39.62 m², composé d'un séjour avec cuisine équipée, une salle d'eau avec toilettes, rangements muraux, une chambre, un grenier et une place de parking privative. idéal premier logement ou pour un investissement. Honoraires à la charge du vendeur. Dans une copropriété. Quote-part moyenne du budget prévisionnel 500 € / an. Aucune procédure n'est en cours. Classe énergie C, Classe climat A Montant moyen estimé des dépenses annuelles d'énergie pour un usage standard, établi à partir des prix de l'énergie de l'année 2021 : entre 470.00 et 690.00 €. Les informations sur les risques auxquels ce bien est exposé sont disponibles sur le site Géorisques : georisques. gouv. fr.
Le Pont-de-Claix Beau T2 avec terrasse de 52 m² sans vis-à-vis Dans une résidence récente, sécurisée et bien entretenue, découvrez ce très bel appartement T2 en bon état offrant un cadre de vie agréable et lumineux. Il se compose d'un séjour avec cuisine équipée ouverte, d'une chambre confortable, d'une salle de bains moderne avec douche, et de WC séparés. ? Le vrai plus : toutes les pièces ouvrent sur une magnifique terrasse de 52 m², exposée plein ciel sans aucun vis-à-vis, parfaite pour profiter des beaux jours en toute intimité. ? Atouts supplémentaires : Chauffage individuel au gaz Cave privative grand parking fermé possibilité garage Proche tram, commerces et toutes commodités ? Idéal pour un premier achat ou un investissement locatif ! Copropriété de 156 lots - dont 52 lots habitation. (Pas de procédure en cours). Charges annuelles : 900.00 euros.
La résidence LE VAN GOGH s'implante dans un environnement urbain mixant des logements collectifs récents et pavillonnaires, à l'entrée nord de la commune du Pont-de-Claix. La résidence offre 27 appartements du 2 au 4 pièces, lumineux, traversants, prolongés par de généreux balcons ou terrasses avec vues dégagées ou jardins privatifs. Conçus pour le confort, les logements proposent des espaces modulables, une pièce en plus possible dès le 2 pièces, et des équipements domotiques pilotables depuis votre smartphone. L'architecture originale s'inspire d'Amsterdam, avec des accès indépendants, des halls lumineux et une palette de couleurs douces. Close et sécurisée, la résidence dispose d'un jardin paysager, d'un jardin de pluie central, de garages boxés en sous-sol et de locaux à vélos. Les informations sur les risques auxquels ce bien est exposé sont disponibles sur le site Géorisques : .
La résidence offre un lieu de vie idéal à ses résidents, rythmé par la nature et ultra connectéUn cadre de vie repensé entre Vercors et BelledonneConçu autour de la ligne A du tramway et du pôle multimodal, bénéficiant de cheminements piétons et cyclistes aménagés, le quartier des Minotiers, ainsi baptisé par les habitants du Pont-de-Claix, se veut le reflet de la ville de demain. Transports, commerces, loisirs et espaces verts contribuent ainsi à créer un lieu de vie à part entière. C'est une adresse pensée pour vivre la nature sous toutes ses formesDes façades cristallines, animées par de multiples balcons et terrasses et protégés par des garde-corps en verre prolongent les intérieurs largement vitrés de manière à assurer un maximum d'ensoleillement. La résidence est composée de logements du 2 au 5 pièces, majoritairement traversants, bi ou tri orientés, Elle propose des espaces communs paysagers, imaginés comme de véritables lieux de partage et de vie. Certains logements sont évolutifs ou mutables, au gré des évolutions familiales et des besoins. Découvrez également nos 93 autres résidences dans le 38 : Rendez-vous dans notre Agence Médicis Immobilier Neuf, 73 avenue de la république, Seyssinet-Pariset 38170. Les informations sur les risques auxquels ce bien est exposé sont disponibles sur le site Géorisques : .
Sur la commune de Seyssins (secteur privilégié de Seyssins-Village), à 10 minutes de Grenoble et de l'accès à la rocade et de la A48, à proximité des transports en commun et des écoles, venez découvrir cet appartement de type T2 de 45 m² environ, au sein d'une copropriété calme et très récente, aux abords de la nature. Accessible aux PMR, l'appartement se compose d'un séjour lumineux, ouvert sur la terrasse grâce à une baie vitrée + une porte-fenêtre, intégrant une cuisine tout équipée, d'une grande chambre de 13 m² environ, d'une confortable salle de bain moderne et de WC séparés. Il bénéficie d'une grande terrasse de 44 m² environ, exposée sud-est. L'appartement est vendu avec un Cellier. Au sein d'une copropriété récente, en bordure du parc de Pré Nouvel, l'appartement profite d'une "très bonne performance" d'isolation et d'un bon confort thermique l'été. Un Une place de parking couverte est proposée en option. Le bien comprend 2 lots, et il est situé dans une copropriété de 146 lots (les charges courantes annuelles moyennes de copropriété sont de 1770 € et le syndicat des copropriétaires ne fait pas l'objet d'une procédure citée à l'article L. 721-1 du code de la construction et de l'habitation). Les informations sur les risques auxquels ce bien est exposé sont disponibles sur le site Géorisques : Prix de vente : 150 000 € Honoraires charge vendeur Contactez votre conseiller SAFTI : Dimitri WENDLING, Tél. : 06 02 41 54 33, E-mail : dimitri.wendling@safti.fr - EI - Agent commercial immatriculé au RSAC de GRENOBLE sous le numéro 910 646 561.
Bianco Bavella : Le confort citadin, l'esprit des hauteurs, à portée de main. Bianco Bavella est l'opportunité idéale pour devenir propriétaire de votre premier logement, sans compromis sur le confort, la qualité ou l'emplacement. Idéalement située à l'angle du cours Jean Jaurès et de la rue Gabriel Péri, la résidence vous place au cœur d'un quartier pratique, avec écoles, commerces, et transports en commun accessibles à pied. Tout est pensé pour vous simplifier la vie. Imaginez-vous ici : un appartement moderne, spacieux et bien agencé, avec balcon, terrasse, ou même un jardin privé. Chaque logement est équipé d'un garage en sous-sol et d'une cave, pour un confort optimal. Isolation performante, chauffage individuel et matériaux de qualité ajoutent une touche de sérénité au quotidien. Une acquisition abordable, des avantages exclusifs Grâce à Isère Habitat, l'accession devient accessible : prix réduits grâce à une TVA à 5,5 %, frais de notaire réduits, et garantie 3R (rachat, revente, relogement) pour une tranquillité d'esprit. Tous les logements sont éligibles au prêt à taux zéro. Votre projet, votre avenir Découvrez Bianco Bavella et trouvez l'appartement qui vous correspond. Contactez-nous dès aujourd'hui pour un rendez-vous personnalisé et donnez vie à votre projet immobilier. Découvrez la résidence : Les informations sur les risques auxquels ce bien est exposé sont disponibles sur le site Géorisques : .
NOUVELLE RESIDENCE à ECHIROLLES ! Soyez les premiers à choisir votre appartement neuf du 2 au 4 pièces avec espace extérieur ! Située au sud de Grenoble, Échirolles séduit par son dynamisme et son environnement agréable. Ville en pleine évolution, elle bénéficie d'une situation stratégique, avec un accès rapide aux pôles économiques grenoblois, notamment le CHU, accessible en 5 min en voiture * , ainsi qu'à de nombreux espaces verts préservés. Son accessibilité est optimale grâce à la ligne A du tramway et aux lignes de bus situées à proximité de la résidence, permettant de rejoindre facilement le centre de Grenoble et ses facultés. La gare d'Échirolles, à seulement 9 min en transports en commun * , offre des liaisons rapides vers la gare TGV de Grenoble. Pour faciliter le quotidien de tous, les commerces et services essentiels sont à portée de main, offrant sérénité et praticité. À quelques pas seulement se trouvent une pharmacie, un supermarché, un primeur ainsi que le centre commercial Grand'Place moins de 10 min en voiture. Afin de simplifier les démarches administratives, la mairie est accessible en 11 min à pied * . Les parents apprécieront l'offre éducative complète, composé d'école primaire située juste en face de la résidence, d'un collège et un lycée également à proximité immédiate. La résidence s'intègre parfaitement dans cet environnement dynamique et verdoyant, profitant d'un jardin public en accès direct à l'arrière du projet. Pensée pour offrir confort et bien-être, elle propose des appartements du 2 au 4 pièces, tous dotés d'un espace extérieur privatif, qu'il s'agisse d'un jardin, d'une terrasse ou d'un balcon. Pour un quotidien facilité, la résidence dispose également d'un stationnement en sous-sol et de locaux vélos, garantissant praticité et sécurité aux résidents. Contactez vite un de nos conseillers pour découvrir tous nos appartements neufs à Echirolles et bénéficier de notre offre exclusive ! Les informations sur les risques auxquels ce bien est exposé sont disponibles sur le site Géorisques : .
Echirolles, rue gabriel peri, dans copropriete avec parking privatif et ferme, au 4ème et dernier etage, joli 2p + c tres bien presente offrant sejour ouvert sur balcon, cuisine amenagee, chambre et salle d eau. Cave. Chauffage et eaux collectifs.
Iad france - virginie fournier vous propose : echirolles t2 appartement terrasse cave parking sur la commune d'echirolles, au 3 bis rue rené thomas, appartement de type t2 d’une superficie de 46 m² situé au 1er étage avec ascenseur d’une petite copropriété de 4 étages construite dans les années 80. Il est composé d’une chambre de 11,58 m², un séjour avec accès vers la terrasse exposée sud-ouest, une cuisine indépendante de 10 m², une salle de bain avec toilettes ainsi que des placards de rangement. Il est vendu avec une cave au sous-sol et une place de parking extérieure. Dpe c prestations : double vitrage huisseries bois et pvc volets roulants électriques chauffage individuel - chaudière gaz (changée en 2021) les charges comprennent l’eau froide ainsi que l’entretien de la copropriété. Proche des commodités et à proximité des transports en communs, il bénéficie également d'une excellente accessibilité en voiture (à moins de 5 minutes de la rocade). À 5 minutes à pied : supermarché, boulangerie, pharmacie, tabac presse, coiffeur, primeur, snack, brasserie… ecole primaire et maternelle à 5 minutes à pied la presente annonce immobiliere vise 3 lots situés dans une copropriété de 115 lots au total et ne faisant l'objet d'aucune procédure en cours citée à l'article l. 721-1 du code de la construction et de l'habitation. Montant moyen mensuel de charges déclaré par le vendeur : 110€ par mois (soit 1320 € annuel). Honoraires d'agence à la charge du vendeur. Information d'affichage énergétique sur ce bien : classe energie c indice 127 et classe climat c indice 23. Les informations sur les risques auxquels ce bien est exposé, y compris l'obligation légale de débroussaillement, sont disponibles sur le site géorisques : la présente annonce immobilière a été rédigée sous la responsabilité éditoriale de mme virginie fournier mandataire indépendant en immobilier (sans détention de fonds), agent commercial de la sas i@d france immatriculé au rsac de grenoble sous le numéro 843066135, titulaire de la carte de démarchage immobilier pour le compte de la société i@d france sas.
Propriétés-privées nicolas abonnenc vous propose à la vente : ce bel appartement t2 à fort potentiel, avec vue imprenable ! Idéalement situé, cet appartement t2 de 42 m² vous séduira par son emplacement privilégié et sa vue dégagée à 180°, situé en étage élevé avec ascenseur d'une copropriété fermée et sécurisée. - l'appartement offrant une belle opportunité de personnalisation. - les fenêtres ont été récemment remplacées, assurant une excellente isolation thermique et phonique. - reprise des murs avec des tons sobres et épurés. - le tableau électrique est neuf, un vrai plus pour votre tranquillité d'esprit. Atouts supplémentaires : luminosité exceptionnelle toute la journée grâce à ses deux expositions. Résidence calme et bien entretenue. Une chaudière gaz individuelle gère l'eau chaude et le chauffage de l'appartement. Une cave accompagne ce bien. Charges de copropriété : 228 euros / trimestre comprenant l'eau froide et l'entretien de la copropriété. Transports, commerces et commodités à proximité immédiate. Que vous cherchiez à y vivre ou à investir, ce bien représente une opportunité rare sur le secteur. Une visite s'impose ! Prix : 99 000 euros ttc honoraires à la charge du vendeur. Dpe : d ges : d estimation des coûts annuels : entre 940 euros et 1320 euros par an prix moyens des énergies indexés sur les années 2021,2022, 2023. Pour visiter et vous accompagner dans votre projet, contactez nicolas abonnenc, au o682618661 ou, par courriel à n.abonnenc@proprietes-privees.com. Selon l'article l. 561.5 du code monétaire et financier, pour l'organisation de la visite, la présentation d'une pièce d'identité vous sera demandée. Cette présente annonce a été rédigée sous la responsabilité éditoriale de nicolas abonnenc agissant sous le statut d'agent commercial immatriculé au rsac grenoble 918 096 603 auprès de sas proprietes privees, au capital de 44 920 euros, zac le chêne ferré - 44 allée des cinq continents 44120 vertou; siret 487 624 777 00040, rcs nantes. Carte professionnelle transactions sur immeubles et fonds de commerce (t) et gestion immobilière (g) n°cpi 4401 2016 000 010 388 délivrée par la cci nantes - saint nazaire. Compte séquestre n°309 32 50 84 67 bpa saint-sebastien-sur-loire (44230). Garantie galian-smabtp - 89 rue de la boétie, 75008 paris - n°28137 j pour 2 000 000 euros pour t et 120 000 euros pour g. Assurance responsabilité civile professionnelle par galian-smabtp n° de police 28137. J mandat réf : 433314 - le professionnel garantit et sécurise votre projet immobilier. Les informations sur les risques auxquels ce bien est exposé sont disponibles sur le site géorisques : nicolas abonnenc (ei) agent commercial - numéro rsac : grenoble 918 096 603 -. Nicolas abonnenc (ei) agent commercial - numéro rsac : grenoble 918 096 603 -.
Situé au 5ème et dernier étage d'une résidence récente de 2010, équipée de panneaux solaires, ce bel appartement t2 de 52 m² offre une exposition idéale et un grand balcon de 16 m² avec une vue exceptionnelle sur les montagnes. L'immeuble est conforme aux normes pmr et bénéfice d'un confort énergétique moderne. Possibilité de garage en supplément. Charges incluant : chauffage, eau froide et eau chaude. Proximité commerces, transports, gare et écoles. Le bien comprend 1 lot, et il est situé dans une copropriété de 350 lots (les charges courantes annuelles moyennes de copropriété sont de 1680 € et le syndicat des copropriétaires ne fait pas l'objet d'une procédure citée à l'article l. 721-1 du code de la construction et de l'habitation). Les informations sur les risques auxquels ce bien est exposé sont disponibles sur le site géorisques : prix de vente : 135 000 € honoraires charge vendeur contactez votre conseiller safti : graziella lastella, tél. : 06 51 33 50 66, e-mail : graziella.lastella@safti.fr - ei - agent commercial immatriculé au rsac de grenoble sous le numéro 912 782 810.
Iad france - jean-françois baudin vous propose : t2 avec terrasse 50 m² à échirolles. Idéal pour premier achat ou investissement locatif garage en sus. Vous recherchez un appartement chaleureux et fonctionnel dans un quartier paisible d'échirolles ? Ne cherchez plus, cet appartement de 2 pièces saura vous séduire par ses prestations de qualité et sa grande terrasse. Situé au 1er niveau d'un immeuble de 5 niveaux construit en 2003, cet appartement de 47 m² vous offre une surface de vie bien agencée, comprenant une chambre lumineuse, une salle de bain, wc séparé, et une cuisine équipée. Vous pourrez profiter de moments conviviaux sur la terrasse de 50 m², idéale pour les repas en extérieur et les bains de soleil. L'appartement est en bon état général, offrant un cadre de vie agréable et confortable. Il bénéficie de plusieurs avantages pour votre confort quotidien, tels que la fibre optique, l'ascenseur, la climatisation, le chauffage collectif urbain, et l'accès pmr. Vous apprécierez la facilité de stationnement dans le quartier mais un garage privatif peut être proposé en sus. Vous pourrez également profiter de la proximité des commodités telles que des transports en commun, des commerces et des espaces verts pour un quotidien pratique et agréable. Que vous soyez à la recherche d'une première acquisition ou d'un investissement locatif, cet appartement saura répondre à vos attentes. Ne manquez pas cette opportunité, contactez-moi dès maintenant pour organiser une visite. La presente annonce immobiliere vise 2 lots situés dans une copropriété de 212 lots au total et ne faisant l'objet d'aucune procédure en cours citée à l'article l. 721-1 du code de la construction et de l'habitation. Montant moyen mensuel de charges déclaré par le vendeur : 142€ par mois (soit 1703.96 € annuel). Honoraires d'agence à la charge du vendeur. Information d'affichage énergétique sur ce bien : classe energie d indice 198 et classe climat c indice 13. Les informations sur les risques auxquels ce bien est exposé, y compris l'obligation légale de débroussaillement, sont disponibles sur le site géorisques : la présente annonce immobilière a été rédigée sous la responsabilité éditoriale de m jean-françois baudin mandataire indépendant en immobilier (sans détention de fonds), agent commercial de la sas i@d france immatriculé au rsac de grenoble sous le numéro 909 566 887, titulaire de la carte de démarchage immobilier pour le compte de la société i@d france sas.
À Échirolles, au cœur d’une résidence étudiante moderne, découvrez cet appartement de 28 m², idéalement conçu pour un investissement locatif sécurisé. Situé dans un environnement calme et bien entretenu, l'appartement bénéficie d’une exposition ensoleillée et d’un accès à de nombreux services, dont une salle de sport au sein de la résidence. À proximité immédiate des commerces, transports en commun, sa localisation est un véritable atout. Bail commercial en cours jusqu’à Aout 2028 Loyer garanti : 378 € / mois (même si pas loué) Possibilité de louer une place de parking en supplément Idéal pour un investissement sans souci, avec gestion locative assurée et revenus réguliers. Contact : Romain VIAL Stendhal Immobilier romainvialimmobilier@gmail.com | 06 61 54 81 60 Prix : 69 000 € Honoraires à la charge du vendeur Référence de l’ annonce : 1065 Les informations sur les risques auxquels ce bien est exposé sont disponibles sur le site : Date de la réalisation du diagnostique : 11 / 04 / 2025 A propos de la copropriété : Pas de procédure en cours Nombre de lots : 105 Montant estimé des dépenses annuelles d'énergie pour un usage standard : entre 550 € et 790 € par an. Prix moyens des énergies indexés sur l'année 2023 (abonnements compris) Consommation énergie primaire : 208 kWh / m2 / an. Consommation énergie finale : Non communiquée. Pour plus de renseignements, contacter : Romain VIAL (RSAC 484273156) Cette annonce a été rédigée sous la responsabilité de Romain VIAL.
Propriétés-privées - nicolas abonnenc vous présente en exclusivité : appartement t2 de 47 m² avec terrasse, résidence récente et de standing (2018). Garage en option. Dans une résidence sécurisée de 2018, découvrez ce bel appartement, offrant confort moderne et prestations de qualité. Il se compose d'une grande pièce de vie lumineuse avec cuisine ouverte équipée, donnant sur une agréable terrasse sans vis-à-vis avec vue imprenable sur chamrousse. La partie nuit comprend une grande chambre avec placard intégré, ainsi qu'un placard de rangement à l'entrée offrant un espace de vie fonctionnel et optimisé. Appartement conforme aux normes pmr et bénéficiant d'une excellente performance énergétique (classe b). Les + : - résidence récente et de bon standing - cuisine moderne entièrement équipée - terrasse privative sans vis-à-vis - classe énergétique b - accès pmr - ascenseur, résidence sécurisée - proximité commerces et transports en supplément : garage en sous-sol sécurisé avec vidéosurveillance et hauteur sous plafond permettant la création d'une mezzanine. 17 000 euros en sus. Un bien rare sur le secteur, à visiter sans tarder ! Charges de copropriété (garage compris) : 378 euros / trimestre comprenant l'eau chaude, le chauffage et l'entretien de la copropriété. Prix : 139 000 euros ttc honoraires à la charge du vendeur. Dpe : b ges : b estimation des coûts annuels : entre 380 euros et 570 euros par an prix moyens des énergies indexés sur les années 2021,2022, 2023. Pour visiter et vous accompagner dans votre projet, contactez nicolas abonnenc, au o682618661 ou, par courriel à n.abonnenc@proprietes-privees.com. Selon l'article l. 561.5 du code monétaire et financier, pour l'organisation de la visite, la présentation d'une pièce d'identité vous sera demandée. Cette présente annonce a été rédigée sous la responsabilité éditoriale de nicolas abonnenc agissant sous le statut d'agent commercial immatriculé au rsac grenoble 918 096 603 auprès de sas proprietes privees, au capital de 44 920 euros, zac le chêne ferré - 44 allée des cinq continents 44120 vertou; siret 487 624 777 00040, rcs nantes. Carte professionnelle transactions sur immeubles et fonds de commerce (t) et gestion immobilière (g) n°cpi 4401 2016 000 010 388 délivrée par la cci nantes - saint nazaire. Compte séquestre n°309 32 50 84 67 bpa saint-sebastien-sur-loire (44230). Garantie galian-smabtp - 89 rue de la boétie, 75008 paris - n°28137 j pour 2 000 000 euros pour t et 120 000 euros pour g. Assurance responsabilité civile professionnelle par galian-smabtp n° de police 28137. J mandat réf : 431677 - le professionnel garantit et sécurise votre projet immobilier. Nicolas abonnenc (ei) agent commercial - numéro rsac : grenoble 918 096 603 -. Les informations sur les risques auxquels ce bien est exposé sont disponibles sur le site géorisques : www. Georisques. Gouv. Fr.