Logo LSI sombre

Maison 6 Pièces 132 m² à vendre à Le Thou (17290)
Photo N° 2
Photo N° 3
Photo N° 4
Photo N° 5
5

Vente maison 6 pièces 132 m² Le Thou (17290)

349 987 €

Maison à construire à Le Thou (17290)

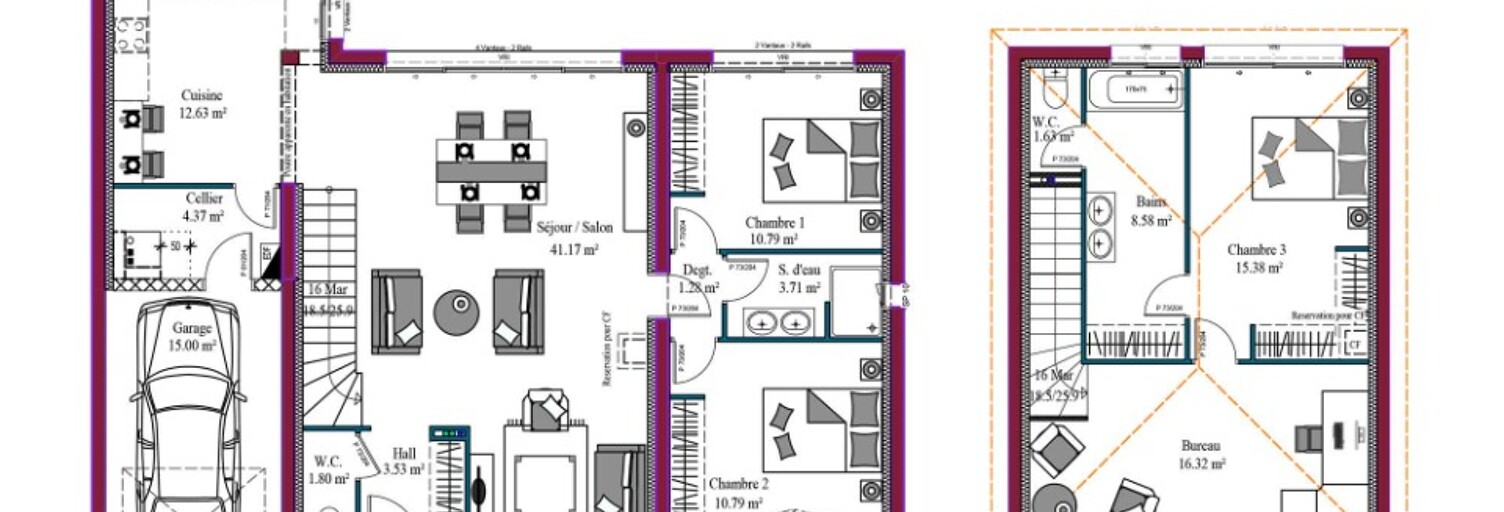
Cette maison à toit plat, se caractérise par ses formes audacieuses et le volume de son espace de vie. Cette maison contemporaine avec un salon-séjour spacieux et traversant, vous permettra de profiter au maximum de l'ensoleillement offert par la grande baie vitrée. Une cuisine semi-ouverte complète l'espace de vie. Cette maison à étage est présentée en deux versions : 118 m² et 132 m². Le plan de 118 m² est composé de deux chambres à l'étage et la suite parentale de 23 m² (avec un dressing) au rez-de-chaussée. Le plan de 132 m² se décline avec 3 chambres, 2 salles de bains et un grand bureau pouvant accueillir une salle de jeu, un espace home office ou un atelier. Laissez libre court à votre imagination en personnalisant ce modèle de maison à étage. Contactez Cédric RÊTEUX au O7 67 07 20 68 pour des renseignements et rdv Idée de réalisation en modèle prêt à décorer sur l'un de nos terrains partenaires, sous réserve de disponibilités. Voir détails en agence. Les informations sur les risques auxquels ce bien est exposé sont disponibles sur le site Géorisques : .

Caractéristiques

Les plus de cette annonce
  • Garage
  • Jardin
Pièces
  • 6 pièces
  • 3 chambres
Superficies
  • Surface habitable : 132 m²

Consommation énergétique et gaz à effet de serre

Bilan énergétique (DPE)
NC
Bilan gaz à effet de serre (GES)
NC

Géorisques

Les informations sur les risques auxquels ce bien est exposé sont disponibles sur le site Géorisques : www.georisques.gouv.fr

A propos du prix de cette maison

  • Prix : 349 987 € (soit 2 651 € / m²)

À propos de cette annonce

Mise en ligne:

Dernière mise à jour:

Référence de l'annonce: CR2385533_7
Maisons Mca agence immobilière à Artigues-près-Bordeaux (33370)
Maisons Mca
Afficher le numéro

Maison similaires à acheter Le Thou (17290)

Maison  335000 €
335 000 €
-9 %

Maison 114 m²

Le Thou (17290)

Vous cherchez votre maison familiale dans une commune dynamique et en pleine croissance ? Nous vous présentons cette maison neuve de 114 m² située sur le village de le thou, commune attractive avec tout les commerces de proximité disponible ainsi que les services médicaux. Cette maison neuve, bénéficiant des frais de notaire réduits, s'articule autour d'une lumineuse pièce de vie d'environ 50 m²; on y retrouve trois chambres de bonne superficie, salle de bain, wc, cellier et garage. Le tout agrémenté d'un jardin exposé sud et d'un patio exposé ouest. La construction de celle ci terminera en juin 2025. Les plus de cette habitation : - maison sur vide sanitaire - adoucisseur d'eau - domotique à distance - norme re2020 contactez-nous dès aujourd'hui pour plus d'informations et pour planifier une visite ! Visite virtuelle sur demande nous pratiquons des honoraires d'agence à charge acquéreur, ce qui vous permet de bénéficier de frais de notaire réduit.

À voir pour le même budget

Maison  335000 €
335 000 €
-9 %

Maison 114 m²

Le Thou (17290)

Vous cherchez votre maison familiale dans une commune dynamique et en pleine croissance ? Nous vous présentons cette maison neuve de 114 m² située sur le village de le thou, commune attractive avec tout les commerces de proximité disponible ainsi que les services médicaux. Cette maison neuve, bénéficiant des frais de notaire réduits, s'articule autour d'une lumineuse pièce de vie d'environ 50 m²; on y retrouve trois chambres de bonne superficie, salle de bain, wc, cellier et garage. Le tout agrémenté d'un jardin exposé sud et d'un patio exposé ouest. La construction de celle ci terminera en juin 2025. Les plus de cette habitation : - maison sur vide sanitaire - adoucisseur d'eau - domotique à distance - norme re2020 contactez-nous dès aujourd'hui pour plus d'informations et pour planifier une visite ! Visite virtuelle sur demande nous pratiquons des honoraires d'agence à charge acquéreur, ce qui vous permet de bénéficier de frais de notaire réduit.

Maison 5 pièces 355000 €
355 000 €
-2 %

Maison 5 pièces 157 m²

Le Thou (17290)

Iad france - vanessa bonnin vous propose : maison familiale 157 m² – terrain 1880 m² – proche la rochelle / châtelaillon-plage / surgères à 15 min de châtelaillon-plage et de la gare tgv de surgères, proches de toutes les commodités, découvrez cette maison non mitoyenne de 157 m² habitables sur une parcelle paysagée et constructible de 1880 m². Grande pièce de vie lumineuse de 80 m² avec cuisine ouverte équipée, poêle à bois et climatisation réversible. Quatre chambres, cellier et garage attenant. Jardin piscinable exposé plein sud, stationnement pour plusieurs véhicules, camping-car possible. Panneaux solaires avec revenu annuel de 1 980 € et fibre optique. Maison spacieuse et évolutive, idéale pour une famille aux portes de la rochelle. Contactez-moi dès maintenant pour organiser une visite honoraires d'agence à la charge du vendeur. Information d'affichage énergétique sur ce bien : classe energie c indice 153 et classe climat a indice 4. Les informations sur les risques auxquels ce bien est exposé, y compris l'obligation légale de débroussaillement, sont disponibles sur le site géorisques : la présente annonce immobilière a été rédigée sous la responsabilité éditoriale de mme vanessa bonnin mandataire indépendant en immobilier (sans détention de fonds), agent commercial de la sas i@d france immatriculé au rsac de la rochelle sous le numéro 499359362, titulaire de la carte de démarchage immobilier pour le compte de la société i@d france sas.

Maison 4 pièces 302555 €
302 555 €

Maison 4 pièces 122 m²

Le Thou (17290)

Un modèle de maison durableDans une perspective de développement durable, votre constructeur de maisons individuelles MCA a fait de la maison à énergie positive un véritable argument de construction. En effet, plus que jamais, il devient urgent d'améliorer notre bilan énergétique. Chaque geste compte, au quotidien mais également dans son projet de vie. Pour cela, la maison éco-zen HORIZON offre un meilleur confort de vie grâce à- la maîtrise des coûts liés aux dépenses en énergie (électricité, gaz, fioul),- et la maîtrise des émissions de gaz à effet de serre, quasi nulles. Un plan de maison bioclimatiqueLa maison bioclimatique HORIZON, d'une superficie de 122 m², associe modernité et écologie. Ce modèle de maison offre un plan en H qui dispose : - d'un grand séjour lumineux,- d'une belle cuisine de 12 m²- et d'un cellier bien proportionné et fonctionnel de 5 m². Quant à l'espace nuit, il est scindé en deux parties : la suite parentale d'un côté et 2 chambres de l'autre. Un grand espace bureau et une place de stationnement couverte complètent cette maison. Enfin, l'originalité de ce modèle se retrouve dans son aspect évolutif avec sa cuisine d'été de 18 m². HORIZON est un modèle de maison bioclimatique qui pense à tous les conforts qu'une maison doit procurer. Ainsi, le plan de cette maison de plain-pied offre des espaces optimisés avec de nombreux rangements pour profiter de chaque m². Idée de réalisation en modèle prêt à décorer sur l'un de nos terrains partenaires, sous réserve de disponibilités. Voir détails en agence. Les informations sur les risques auxquels ce bien est exposé sont disponibles sur le site Géorisques : .

Maison 5 pièces 295000 €
295 000 €

Maison 5 pièces 116 m²

Le Thou (17290)

Viv'Home constructeur de maisons individuelles est une marque d' Eiffage Construction acteur majeur du BTP. Pour votre projet de maison traditionnelle, moderne ou totalement personnalisée nos équipes vous accompagnent à chaque étape de votre projet de maison. Le Thou, commune agréable située entre Surgères et La Rochelle dispose de plusieurs commerces dans son centre bourg, d'écoles, et d'une gare. Vous apprécierez ce terrain viabilisé de 626 m² à seulement cinq minutes de Aigrefeuille d'Aunis pour y faire construire votre future habitation. Cette maison familiale bien agencée dispose d'un beau volume intérieur de 116 m². Elle comprend un grand salon séjour lumineux avec cuisine ouverte, quatre chambres dont une suite parentale avec sa salle de douche privative, une deuxième salle d'eau principale et un wc indépendant. Pour plus de rangements ou pour mettre votre véhicule à l'abri elle dispose d'un garage. Elle est équipée d'une pompe à chaleur, de volets roulants électrique, d'un système de gestion crépusculaire. Cette maison est 100% personnalisable suivant votre projet. Prix se décomposant entre un prix de maison prête à décorer hors coûts peintures, sol chambres, viabilisation, terrassement et frais de notaire (Garanties et assurances obligatoires incluses) et un prix de terrain proposé par un de nos partenaires fonciers sous réserve de sa disponibilité. Visuels non contractuels. Voir conditions en agence : ECH905 Les informations sur les risques auxquels ce bien est exposé sont disponibles sur le site Géorisques : .

Maison 6 pièces 355000 €
355 000 €
-3 %

Maison 6 pièces 157 m²

Le Thou (17290)

Située dans la charmante ville du Thou (17290) à proximité d'Aigrefeuille, cette maison de plain pied de 157 m² offre un cadre de vie paisible tout en restant à proximité des écoles, du collège, et des arrêts de bus pour un accès facile aux commodités. L'environnement calme et verdoyant ainsi que le jardin clos et arboré en font un lieu idéal pour profiter de la nature. À l'extérieur, cette propriété s'étend sur un terrain de 1810 m² qui bénéficie d'un agréable patio pour se détendre en plein air. Un garage et plusieurs stationnements viennent compléter le tout. À l'intérieur, cette maison comprend une cuisine équipée avec buanderie, une spacieuse pièce de vie de 39 m², 4 grandes chambres dont 3 avec placards, une salle d'eau et un toilette séparé. Les aménagements tels que la climatisation, le poêle à bois, l'interphone et les panneaux photovoltaïques qui génèrent un revenu annuel d'environ 1900e sont des équipements modernes qui garantissent confort et fonctionnalité au quotidien. Venez découvrir cette maison qui sera vous séduire. Visite virtuelle sur demande. Les informations sur les risques auxquels ce bien est exposé sont disponibles sur le site Géorisques : Prix de vente : 355 000 € Honoraires charge vendeur Contactez votre conseiller SAFTI : Anthony MARCHESSON, Tél. : 06 86 18 32 53, E-mail : anthony.marchesson@safti.fr - EI - Agent commercial immatriculé au RSAC de La Rochelle sous le numéro 831 435 433.

Maison 5 pièces 288000 €
288 000 €

Maison 5 pièces 130 m²

Le Thou (17290)

Viv'Home constructeur de maisons individuelles est une marque d' Eiffage Construction acteur majeur du BTP. Pour votre projet de maison traditionnelle, moderne ou totalement personnalisée nos équipes vous accompagnent à chaque étape de votre projet de maison. LE THOU, commune disposant de commerces, écoles, médecins, gare avec plusieurs trains par jour pour rejoindre LA ROCHELLE à seulement cinq minutes de AIGREFEUILLE D'AUNIS. Vous apprécierez ce terrain viabilisé, bien exposé et piscinable pour y faire construire votre futur lieu de vie. Cette maison familiale moderne et spacieuse de 130 m² en forme de L est idéalement agencée. Vous entrez par un sas avec placard donnant sur une pièce de vie avec cuisine ouverte très lumineuse. Elle dispose de deux coins nuits, le premier avec trois chambres, une salle de douche et un wc et le deuxième avec une suite parentale avec dressing et salle de douche. Elle bénéficie également d'un garage pour du stockage ou pour y stationner un véhicule. Venez la visiter en réalité virtuelle à notre agence. Prix se décomposant entre un prix de maison prête à décorer hors coûts peintures, sol chambres, viabilisation, terrassement et frais de notaire (Garanties et assurances obligatoires incluses) et un prix de terrain proposé par un de nos partenaires fonciers sous réserve de sa disponibilité. Visuels non contractuels. Voir conditions en agence : ECH975 Les informations sur les risques auxquels ce bien est exposé sont disponibles sur le site Géorisques : .