
Immobilier à Créteil (94000) : une ville-préfecture au cœur du Grand Paris
En 2025, Créteil confirme son statut de ville-préfecture…
3 résultats
Iad France - Jennifer Le Brize vous propose : À vendre – Maison familiale rénovée de 150 m² – Quartier Val-de-Brie Située dans le secteur très recherché du Val-de-Brie, à quelques pas de Créteil Village, cette maison d'environ 150 m² habitable sur un terrain de 296 m² vous séduira par ses prestations modernes et ses volumes généreux. Entièrement rénovée en 2020, elle se compose au rez-de-chaussée : D’une très grande pièce de vie lumineuse avec une superbe cuisine ouverte aménagée et équipée, Le tout donnant directement sur une spacieuse terrasse et un jardin sans vis-à-vis, D’une salle d’eau moderne avec WC. À l’étage, vous découvrirez : Quatre belles chambres avec rangements, Une salle de bains contemporaine, Des WC séparés. Possibilité d'aménager une cinquième chambre selon vos besoins. Côté confort, la maison est équipée : D’un chauffage électrique performant, De la domotique complète (volets roulants motorisés, portail électrique, etc.), De la climatisation dans plusieurs chambres D’équipements récents et de qualité. Exposition traversante est / ouest Environnement calme, proche des écoles, des commerces et des transports. Les plus : rénovation récente, grands espaces, prestations modernes, emplacement idéal ! Une visite s’impose ! Honoraires d'agence à la charge du vendeur. Information d'affichage énergétique sur ce bien : classe ENERGIE D indice 224 et classe CLIMAT B indice 7. Les informations sur les risques auxquels ce bien est exposé, y compris l'obligation légale de débroussaillement, sont disponibles sur le site Géorisques : La présente annonce immobilière a été rédigée sous la responsabilité éditoriale de Mme Jennifer Le Brize mandataire indépendant en immobilier (sans détention de fonds), agent commercial de la SAS I@D France immatriculé au RSAC de Créteil sous le numéro 948294400, titulaire de la carte de démarchage immobilier pour le compte de la société I@D France SAS.
Iad France - Jennifer Le Brize vous propose : Maison 4 pièces, 3 chambres, sur beau terrain de 454 m² - Secteur Centre Val de Brie Proche des bords de marne, des transports et de toutes les commodités, cette maison entièrement rénovée en 2019 de 80 m² habitables (96 m² au sol et 53 m² de sous-sol aménagé) se compose comme suit : Au rez-de-chaussée, une entrée spacieuse, une belle pièce de vie avec un espace salon, salle à manger et cuisine ouverte, une chambre, une salle de bains et des wc séparés. À l'étage deux chambres et une salle d'eau avec wc. Le sous-sol de 53 m² est accessible par la maison ou le jardin. Il est aménagé en buanderie, salle de jeux, wc et cave. Pas de travaux à prévoir ! La maison bénéficie de belles prestations : portail motorisé, alarme, double vitrage avec volets roulants électriques. Possibilité de garer 2 véhicules sur la parcelle. Extension possible avec permis accordé. Sectorisation Victor Hugo. Contactez-moi rapidement pour une visite ! Honoraires d'agence à la charge du vendeur. Information d'affichage énergétique sur ce bien : classe ENERGIE D indice 161 et classe CLIMAT C indice 32. Les informations sur les risques auxquels ce bien est exposé, y compris l'obligation légale de débroussaillement, sont disponibles sur le site Géorisques : La présente annonce immobilière a été rédigée sous la responsabilité éditoriale de Mme Jennifer Le Brize mandataire indépendant en immobilier (sans détention de fonds), agent commercial de la SAS I@D France immatriculé au RSAC de Créteil sous le numéro 948294400, titulaire de la carte de démarchage immobilier pour le compte de la société I@D France SAS.
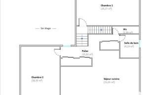
Iad france - roxane taravello vous propose : opporturnité sur créteil dans une rue calme à 5mn à pieds de la rue piètonne maison 4 pièces 69.35 m² entrée, séjour, cuisine ouverte équipée, 3 chambres dont 2 en enfilade, salle de bains + toilette, sous sol total plan 3d du projet à disposition lors de la visite. À ne pas manquer idéal première acquisition honoraires d'agence à la charge du vendeur. Information d'affichage énergétique sur ce bien : classe energie d indice 226 et classe climat d indice 37. Les informations sur les risques auxquels ce bien est exposé, y compris l'obligation légale de débroussaillement, sont disponibles sur le site géorisques : la présente annonce immobilière a été rédigée sous la responsabilité éditoriale de mme roxane taravello mandataire indépendant en immobilier (sans détention de fonds), agent commercial de la sas i@d france immatriculé au rsac de creteil sous le numéro 823672829, titulaire de la carte de démarchage immobilier pour le compte de la société i@d france sas.
Autres annonces à proximité de Créteil (94000) avec vos critères
Découvrez prochainement cette nouvelle résidence : a 25 minutes de paris à saint-maur-des-fossés a 5 min à pied des bords de marne environnement calme au cœur d'un quartier pavillonnaire stationnement privatif sécurisé en sous-sol la résidence les patios d’hinata vous propose 3 univers pour que chacun puisse y trouver son style : lofts atypiques agencés autour d'un patio, de 4 ou 5 pièces maisons longères de 4 pièces appartement citadin de standing de 4 pièces les informations sur les risques auxquels ce bien est exposé sont disponibles sur le site géorisques : .

Recevez en temps réel les dernières annonces correspondant à votre recherche
Située dans le quartier prisé de Charentonneau, à 10 minutes à pied du métro et de la place René Coty (commerces, marché, écoles), cette maison des années 30 offre un cadre de vie agréable. Elle se compose d'une belle pièce de vie lumineuse d'une cuisine ouverte et aménagée, d'une salle de bain avec espace buanderie, et de WC indépendants. À l'étage, une chambre avec placards et un espace salon. Les combles aménageables offrent un bel espace supplémentaire à aménager selon vos goûts. En rez-de-jardin, une pièce en sous-sol semi-enterrée peut faire office de chambre d'appoint, bureau ou salle de loisirs. Le bien dispose également d'un espace de stationnement et d'une grande terrasse d'environ 30 m², idéale pour profiter des beaux jours. Maison à fort potentiel, dans un secteur recherché à proximité immédiate des transports, commerces, écoles et infrastructures. Les informations sur les risques auxquels ce bien est exposé sont disponibles sur le site Géorisques : Prix de vente : 710 000 € Honoraires charge vendeur Contactez votre conseiller SAFTI : Morgane TALLON, Tél. : 06 31 41 26 22, E-mail : morgane.tallon@safti.fr - EI - Agent commercial immatriculé au RSAC de CRÉTEIL sous le numéro 801 043 175.
Situé au sein du quartier Charentonneau, à moins de 5min à pieds du métro STADE, découvrez cette maison en fond de parcelle, baignée de lumière et au calme absolu. Elle offre au rez-de-chaussée une très belle pièce de vie de 37 m² a aménagé selon vos goûts, à l'étage deux belles et grandes chambres lumineuses dont une avec accès balcon, salle d'eau avec fenêtres et WC séparés. À l'étage inférieur une chambre supplémentaire de 15 m² ainsi qu'une salle d'eau avec WC et buanderie. Joli jardin à aménager, exposé plein sud. Cette maison saura vous séduire par ses volumes, sa clarté et son emplacement au calme à proximité des transports ainsi que de la place René Coty et de ses commerces ! Les informations sur les risques auxquels ce bien est exposé sont disponibles sur le site Géorisques : Prix de vente : 679 000 € Honoraires charge vendeur Contactez votre conseiller SAFTI : Massis ISCI, Tél. : 06 03 96 14 72, E-mail : massis.isci@safti.fr - EI - Agent commercial immatriculé au RSAC de Créteil sous le numéro 523 510 279.
Iad france - fabrice varela vous propose : charentonneau - idéalement située en plein coeur de charentonneau à quelques pas de place rené coty et une dizaine de minutes) pieds du métro stade. Edifiée sur une parcelle de terrain de 213 m², maison de 4 pièces principales au calme et d'une superficie de 90 m² (hors entresol). Elle se compose comme suit : entrée, cuisine séparée, double séjour avec accès jardin, chambre. À l'étage deux chambres et une salle de bains. Un entresol avec garage en complément (55 m²). Jardin sur l'arrière (100 m² environ). Honoraires d'agence à la charge du vendeur. Information d'affichage énergétique sur ce bien : classe energie f indice 363 et classe climat f indice 80. Les informations sur les risques auxquels ce bien est exposé, y compris l'obligation légale de débroussaillement, sont disponibles sur le site géorisques : la présente annonce immobilière a été rédigée sous la responsabilité éditoriale de m fabrice varela mandataire indépendant en immobilier (sans détention de fonds), agent commercial de la sas i@d france immatriculé au rsac de creteil sous le numéro 510154370, titulaire de la carte de démarchage immobilier pour le compte de la société i@d france sas.
Dans le quartier recherché de Charentonneau, à quelques pas de la place René Coty avec son marché et ses commerces. Belle maison de caractère des années 1950, non mitoyenne, sur un magnifique terrain de 453 m². Elle dispose au rdc d'une entrée, d'un double séjour traversant, d'une cuisine indépendante s'ouvrant sur une grande terrasse d'environ 30 m², et d'un wc indépendant. À l'étage : deux belles chambres, un dressing, une sdb spacieuse avec wc; Au dessus les combles sont aménagés. Le sous-sol total comprend un garage, une buanderie, une chaufferie et une cave. La maison est très bien entretenue, le ravalement est récent tout comme la chaudière (au gaz), les fenêtres sont en double vitrage PVC. Cette maison a conservé son charme authentique avec une belle façade en brique rouge, une belle hauteur sous plafond, un parquet d'origine, de grandes ouvertures. Elle offre aussi une belle luminosité, un beau jardin arboré et un beau potentiel pour d'éventuels projets de modernisation et d'agrandissement. Les informations sur les risques auxquels ce bien est exposé sont disponibles sur le site Géorisques : Prix de vente : 840 000 € Honoraires charge vendeur Contactez votre conseiller SAFTI : Céline LEDENT, Tél. : 07 66 44 38 26, E-mail : celine.ledent@safti.fr - EI - Agent commercial immatriculé au RSAC de Créteil sous le numéro 911622751.
Située à Alfortville (94140), cette maison de 90 m² de surface habitable sur un terrain de 95 m² se trouve dans le Quartier des Fleurs, à seulement 4 minutes de la Gare RER D Maisons Alfort / Alfortville. Ce quartier prisé offre un cadre de vie agréable, proche de toutes les commodités et des transports en commun, idéal pour une famille ou des professionnels en déplacement. À l'extérieur, la propriété dispose d'une cour permettant le stationnement d'un véhicule. De plus, une belle cave aménagée avec coin buanderie offre un espace supplémentaire et pratique pour le rangement. À l'intérieur, au rez-de-chaussée, vous trouverez un séjour lumineux, une salle à manger avec cuisine équipée, ainsi qu'un wc. À l'étage, un dégagement dessert deux chambres et une salle d'eau. Enfin, au deuxième étage, une charmante chambre sous les combles avec sa propre salle d'eau offre un espace cocooning. Cette maison de 4 pièces et 3 chambres, avec 2 toilettes et 2 salles de bain, offre un agencement fonctionnel et confortable pour ses occupants. Les informations sur les risques auxquels ce bien est exposé sont disponibles sur le site Géorisques : Prix de vente : 560 000 € Honoraires charge vendeur Contactez votre conseiller SAFTI : Massis ISCI, Tél. : 06 03 96 14 72, E-mail : massis.isci@safti.fr - EI - Agent commercial immatriculé au RSAC de Créteil sous le numéro 523 510 279.
Située dans la commune d'ALFORTVILLE, dans un quartier pavillonnaire très prisé, à moins de 10 minutes à pied du centre-ville, des écoles et commerces, cette maison lumineuse et parfaitement agencée vous séduira dès les premières secondes. Au rez-de-chaussée : une entrée avec rangements, un vaste séjour baigné de lumière ouvrant sur un jardin intime sans aucun vis-à-vis, une cuisine équipée, des WC séparés et un accès direct au garage. À l'étage : trois belles chambres, une salle de bain avec WC, une salle d'eau, et des matériaux modernes de qualité. Les combles (35 à 40 m² au sol) offrent un beau potentiel d'aménagement selon vos envies. Chauffage électrique au sol pour un confort optimal. 3 stationnements (garage + 2 extérieurs). Une maison coup de cœur, rare sur le secteur, alliant confort, calme et proximité de tout ! Les informations sur les risques auxquels ce bien est exposé sont disponibles sur le site Géorisques : Prix de vente : 575 000 € Honoraires charge vendeur Contactez votre conseiller SAFTI : Houda NAIMI, Tél. : 06 59 33 29 05, E-mail : houda.naimi@safti.fr - EI - Agent commercial immatriculé au RSAC de Créteil sous le numéro 510971492.
Situé sur un terrain de 390 m², une maison traversante de 97 m² à 6 minutes de la gare rer d vert de maison et à 7 minutes de la futur ligne 15, comprenant une entrée, séjour, salle à manger, cuisine aménagée donnant sur un beau jardin, wc séparé. À l'étage 3 belles chambres, salle de bains salle d'eau avec wc. Rafraichissement à prévoir. La maison comprend aussi 2 dépendance de 80 m² beau potentiel. Les informations sur les risques auxquels ce bien est exposé sont disponibles sur le site géorisques : prix de vente : 345 000 € honoraires charge vendeur contactez votre conseiller safti : massis isci, tél. : 06 03 96 14 72, e-mail : massis.isci@safti.fr - ei - agent commercial immatriculé au rsac de créteil sous le numéro 523 510 279.
Proches des quais de seine et à moins de 10 minutes de la Gare RER D Maisons-Alfort / Alfortville, venez découvrir cette charmante maison de ville de 71 m² sur un terrain de 140 m² situé dans un quartier pavillonnaire calme et recherché. Elle se compose d'une terrasse de 35 m² avec jardinet exposé plein sud, une cuisine fermée, aménagée et équipée, un coin buanderie, une salle d'eau, un wc séparé et un agréable séjour. À l'étage, un bureau et deux chambres complètent ce bien. Cette Maisons de ville comprend également un garage et un atelier pour vos projet de bricolage ou vos passions. À visiter sans tarder ! Le bien comprend 2 lots, et il est situé dans une copropriété de 2 lots (il n'y a pas de charges courantes liées à la copropriété et le syndicat des copropriétaires ne fait pas l'objet d'une procédure citée à l'article L. 721-1 du code de la construction et de l'habitation). Les informations sur les risques auxquels ce bien est exposé sont disponibles sur le site Géorisques : Prix de vente : 369 000 € Honoraires charge vendeur Contactez votre conseiller SAFTI : Massis ISCI, Tél. : 06 03 96 14 72, E-mail : massis.isci@safti.fr - EI - Agent commercial immatriculé au RSAC de Créteil sous le numéro 523 510 279.
Située dans la charmante ville d'Alfortville (94140), cette maison bénéficie d'un emplacement idéal à seulement 8 minutes à pied du métro École vétérinaire. Proche des transports en commun tels que le métro et les bus, cette propriété offre également un accès facile à la fibre, assurant une connectivité modern. Avec un jardin privatif, cette maison offre un espace extérieur paisible pour profiter des beaux jours en toute intimité. La maison de 107 m² sur un terrain de 149 m² propose un agencement fonctionnel avec 4 pièces, dont 3 chambres, vous trouverez un séjour spacieux ouvert sur une cuisine aménagée, une belle chambre de 15 m² et un WC séparé. Au rez-de-chaussée, un séjour double avec mezzanine s'ouvre sur le jardin, accompagné d'un coin bureau, d'une salle de bains, d'un WC et d'une seconde chambre. Cette propriété offre un cadre de vie confortable et lumineux, idéal pour une famille en quête d'espace et de tranquillité. Les informations sur les risques auxquels ce bien est exposé sont disponibles sur le site Géorisques : Prix de vente : 499 000 € Honoraires charge vendeur Contactez votre conseiller SAFTI : Massis ISCI, Tél. : 06 03 96 14 72, E-mail : massis.isci@safti.fr - EI - Agent commercial immatriculé au RSAC de Créteil sous le numéro 523 510 279.
Iad France - Henri Dupin vous propose : Maison avec entrepôt et potentiel pour activité artisanale ou deux logements à Bonneuil-sur-Marne À Bonneuil-sur-Marne, découvrez cette maison de 75 m² offrant un cadre de vie agréable et de nombreuses possibilités d’aménagement. Idéalement située dans un quartier calme et recherché, elle se trouve à proximité immédiate des commerces, écoles, transports, parcs et équipements culturels. Cette maison se compose d’un séjour lumineux, d’une salle à manger conviviale, d’une cuisine et de deux chambres. Elle comprend également une salle d’eau avec WC, un WC séparé, une buanderie, un dressing et un débarras, offrant de nombreux espaces de rangement. Un atout majeur de ce bien réside dans son grand garage-entrepôt d’environ 60 m² avec point d’eau et WC, parfait pour développer une activité artisanale ou de stockage. Cet espace peut également être aménagé selon vos besoins professionnels. Le bien offre en outre un fort potentiel de division : il est possible d’aménager deux logements distincts, l’un au rez-de-chaussée et l’autre au rez-de-jardin, idéal pour un investissement locatif ou une activité mixte habitation et professionnelle. Cette maison représente une opportunité rare à Bonneuil-sur-Marne pour les artisans, entrepreneurs ou investisseurs recherchant un bien polyvalent alliant confort de vie et fonctionnalité professionnelle. Pour plus d’informations ou pour organiser une visite, contactez dès aujourd’hui votre conseiller immobilier. Honoraires d'agence à la charge du vendeur. Information d'affichage énergétique sur ce bien : classe ENERGIE G indice 406 et classe CLIMAT G indice 127. Les informations sur les risques auxquels ce bien est exposé, y compris l'obligation légale de débroussaillement, sont disponibles sur le site Géorisques : La présente annonce immobilière a été rédigée sous la responsabilité éditoriale de M Henri Dupin mandataire indépendant en immobilier (sans détention de fonds), agent commercial de la SAS I@D France immatriculé au RSAC de CRETEIL sous le numéro 418169611, titulaire de la carte de démarchage immobilier pour le compte de la société I@D France SAS.
Iad france - fatiha el idrissi vous propose : maison de ville à rafraichir offrant un potentiel incroyable idéale pour les investisseurs ou les amateurs de rénovation. ___ av de paris, ___ quartier recherché du parc du rancy, ___ proche de toutes commodités, commerces, écoles, transports (métro l8 à 10min en bus ou 20min à pied). ___ maison de ville sans jardin comprenant une entrée de 8 m² au rez-de-chaussée. À l'étage : un palier distribuant une 1ere chambre de 25 m² donnant sur balcon avec vue dégagée, une cuisine ouverte sur le séjour de 31 m² avec une terrasse de 18 m² sans aucun vis a vis, une 2eme chambre de 18 m², un dégagement avec placards, une salle de bains avec fenêtre, et wc séparés. ___ rafraichissement à prévoir. ___ exposition est / ouest. ___ taxe fonciere : 1800 euros ___ double vitrage. ___ conseiller disponible 7 / 7 honoraires d'agence à la charge du vendeur. Information d'affichage énergétique sur ce bien : classe energie e indice 240 et classe climat e indice 52. Les informations sur les risques auxquels ce bien est exposé, y compris l'obligation légale de débroussaillement, sont disponibles sur le site géorisques : la présente annonce immobilière a été rédigée sous la responsabilité éditoriale de mme fatiha el idrissi mandataire indépendant en immobilier (sans détention de fonds), agent commercial de la sas i@d france immatriculé au rsac de creteil sous le numéro 410 896 633, titulaire de la carte de démarchage immobilier pour le compte de la société i@d france sas.
Située en plein cœur du quartier de La Pie et à proximité immédiate des bords de la Marne, cette maison de ville de 93 m² habitables (165 m² de surface utile) séduira les familles à la recherche d'un cadre de vie paisible, proche de tout. -> Le rez-de-chaussée offre : - Une entrée fonctionnelle, - Une cuisine ouverte avec son coin repas, - Un séjour traversant de 38 m², baigné de lumière naturelle, - Une chambre de plain-pied, - Une salle de bains, une salle d'eau indépendante et des toilettes séparées. -> À l'étage : Une chambre mansardée de 11 m² (loi Carrez), idéale pour un ado ou un espace d'appoint. -> En sous-sol : - Une pièce polyvalente de 30 m² : salle de jeux, bureau, chambre, home cinéma… - Une chaufferie / buanderie. -> À l'extérieur : Une terrasse végétalisée sans vis-à-vis -> Sectorisation scolaire recherchée : École de la Pie – Collège Ronsard – Lycées Marcelin Berthelot et d'Arsonval. Les + : - Aucun travaux à prévoir. - Volumes généreux et espaces modulables. Possibilité de faire 2 chambres au rez-de-chaussée. Quartier calme et familial, à proximité immédiate des commerces, écoles et bords de Marne. Une maison idéale pour ceux qui recherchent le confort d'un bien prêt à vivre, dans un environnement agréable à 20 min de la gare de St Maur Créteil Honoraires à la charge du vendeur - Montant estimé des dépenses annuelles d'énergie pour un usage standard, établi à partir des prix de l'énergie de l'année 2021,2022, 2023 : 1480€ ~ 2050€ - Alexandre CORDANI - Agent commercial - EI - RSAC Creteil 509 325 007.
Iad France - Isabelle Coura vous propose : À VENDRE maison de 4 pièces. Charme et Confort au cOEur de Saint-Maur-des-Fossés Maison située à Saint-Maur-des-Fossés, offrant un cadre de vie paisible et confortable. Construite en 2012, cette maison de 88.83 m² propose des prestations de qualité et se trouve dans un excellent état général, idéale pour une famille ou des personnes en quête de tranquillité. Les espaces de vie sont bien agencés avec 4 pièces au total, dont 3 chambres spacieuses pour accueillir toute la famille. La maison dispose d'une salle de bain, de 2 toilettes, d'une salle d'eau et d'une cuisine aménagée et équipée ouverte sur un séjour. Un jardin de 55 m² offre un espace extérieur verdoyant et agréable pour profiter des beaux jours en toute quiétude. Les équipements modernes sont présents pour votre confort quotidien, avec la fibre optique pour rester connecté, le câble TV pour vos divertissements, et un système de chauffage individuel fonctionnel et économique. La résidence, sécurisée, propose un interphone et un digicode pour assurer votre tranquillité. Profitez également d'une terrasse ensoleillée pour de bons moments de détente en extérieur. Sans oublier la possibilité de garer votre véhicule dans un double box sécurisé. Idéalement exposée au sud et à l'ouest, cette maison vous assure une luminosité naturelle tout au long de la journée. Vous serez séduit par son environnement calme et résidentiel, à proximité des commerces, écoles et transports en commun. Ne manquez pas l'opportunité de visiter ce havre de paix au cOEur de Saint-Maur-des-Fossés. Contactez-nous pour plus d'informations et planifiez votre visite dès maintenant. La presente annonce immobiliere vise 2 lots situés dans une copropriété de 38 lots au total et ne faisant l'objet d'aucune procédure en cours citée à l'article L. 721-1 du code de la construction et de l'habitation. Montant moyen mensuel de charges déclaré par le vendeur : 190€ par mois (soit 2280 € annuel). Honoraires d'agence à la charge du vendeur. Information d'affichage énergétique sur ce bien : classe ENERGIE C indice 179 et classe CLIMAT A indice 5. Les informations sur les risques auxquels ce bien est exposé, y compris l'obligation légale de débroussaillement, sont disponibles sur le site Géorisques : La présente annonce immobilière a été rédigée sous la responsabilité éditoriale de Mme Isabelle Coura mandataire indépendant en immobilier (sans détention de fonds), agent commercial de la SAS I@D France immatriculé au RSAC de CRETEIL sous le numéro 823316732, titulaire de la carte de démarchage immobilier pour le compte de la société I@D France SAS.
Iad France - Bradley Silva Brito vous propose : Magnifique Maison Rénovée, de 3 Chambres avec Jardin à Saint-Maur-des-Fossés Située dans la charmante ville de Saint-Maur-des-Fossés, cette maison rénovée est un véritable bijou offrant un espace de vie confortable et moderne. Avec ses 3 chambres, elle conviendra parfaitement à une famille en quête de calme et de sérénité. Dès l'entrée, vous serez séduit par le soin apporté aux détails et la luminosité qui inonde chaque pièce. Le salon spacieux et chaleureux sera le lieu parfait pour vous détendre en famille ou entre amis. La cuisine ouverte et entièrement équipée offre un espace convivial pour préparer de délicieux repas. Les 3 chambres de la maison offrent des espaces confortables, idéaux pour se reposer et se ressourcer. Chacune bénéficie d'une salle de bain privative, offrant ainsi intimité et confort à ses occupants. Vous trouverez également un toilette supplémentaire pour plus de praticité. Le jardin, véritable havre de paix, vous invite à profiter des beaux jours et des soirées estivales en toute tranquillité. Parfait pour des repas en extérieur ou des moments de détente en plein air. La maison, entièrement rénovée, est en excellent état, prête à accueillir ses nouveaux propriétaires sans besoin de travaux supplémentaires. Située dans un quartier recherché et paisible de Saint-Maur-des-Fossés, cette maison offre un cadre de vie idyllique, proche de toutes commodités : commerces, écoles, transports en commun. Ne manquez pas l'occasion de découvrir cette perle rare. Contactez-nous dès maintenant pour planifier une visite et laissez-vous séduire par le charme de cette maison exceptionnelle. Honoraires d'agence à la charge du vendeur. Information d'affichage énergétique sur ce bien : classe ENERGIE C indice 173 et classe CLIMAT C indice 5. Les informations sur les risques auxquels ce bien est exposé, y compris l'obligation légale de débroussaillement, sont disponibles sur le site Géorisques : La présente annonce immobilière a été rédigée sous la responsabilité éditoriale de M Bradley Silva Brito mandataire indépendant en immobilier (sans détention de fonds), agent commercial de la SAS I@D France immatriculé au RSAC de CRETEIL sous le numéro 845072826, titulaire de la carte de démarchage immobilier pour le compte de la société I@D France SAS.
Venez découvrir cette charmante maison située à Adamville - Square des deux lions. Cette maison entièrement réhabilitée, offrant 110 m² de confort et de modernité, avec jardin et emplacement de stationnement privatif. Au rez-de-chaussée, vous profiterez d'une belle pièce de vie lumineuse comprenant un séjour-salle à manger, le tout donnant sur l'extérieur grâce à de grandes baies vitrées. De plein pied, la maison dispose d'une suite parentale avec dressing, salle d'eau et WC et d'une autre chambre disposant de rangement et d'une salle d'eau. Ce niveau bénéficie également d'un WC indépendant. À l'étage, une chambre supplémentaire et une salle d'eau avec WC offrent un espace nuit fonctionnel et agréable. Vous serez séduits par les prestations de qualité de cette maison : double vitrage, volets roulants électriques, cuisine aménagée et équipée, DPE : B. Le bien comprend 1 lot, et il est situé dans une copropriété de 3 lots (les charges courantes annuelles moyennes de copropriété sont de 650 € et le syndicat des copropriétaires ne fait pas l'objet d'une procédure citée à l'article L. 721-1 du code de la construction et de l'habitation). Les informations sur les risques auxquels ce bien est exposé sont disponibles sur le site Géorisques : Prix de vente : 685 000 € Honoraires charge vendeur Contactez votre conseiller SAFTI : Morgane BERNARD-HERBEMONT, Tél. : 06 64 33 64 85, E-mail : morgane.bernard@safti.fr - EI - Agent commercial immatriculé au RSAC de CRETEIL sous le numéro 831372305.
Charmante maison des années 30 située à La Varenne Saint Hilaire à 12 minutes à pied du RER A, des écoles et commerces. Ce bien se compose d'une entrée avec le charme de l'ancien (carreaux de ciment d'origine, escalier bois. ), dune cuisine indépendante avec la possibilité d'ouvrir sur le séjour. d'une véranda donnant accès sur un jardin sans vis à vis. Au premier étage deux chambres, une salle de bains. Au deuxième étage un plateau de 20 m² au sol. Ce bien comporte également un sous-sol total. À viisiter rapidement ;.
Venez découvrir cette agréable maison de 93,50 m² habitables (81,50 m² carrez), idéalement située au cœur d'une impasse, offrant un environnement calme et résidentiel. Au rez-de-chaussée, elle se compose : d'une entrée, d'une belle pièce de vie avec cheminée, d'une cuisine ouverte, aménagée et équipée, d'un wc indépendant. La pièce de vie donne accès à une terrasse exposée ouest. À l'étage, vous bénéficierez de : trois chambres, dont une avec espace dressing, une salle d'eau avec wc. Un garage, accessible directement depuis la cuisine, permet d'aménager un espace buanderie et de stationner un véhicule. Une cave complète ce bien. Transports : rer a la varennechennevières accessible en 14 minutes en bus (ligne 111). Atouts : maison fonctionnelle, environnement très calme, idéale pour une famille le bien comprend 2 lots, et il est situé dans une copropriété de 14 lots (les charges courantes annuelles moyennes de copropriété sont de 2139 € et le syndicat des copropriétaires ne fait pas l'objet d'une procédure citée à l'article l. 721-1 du code de la construction et de l'habitation). Les informations sur les risques auxquels ce bien est exposé sont disponibles sur le site géorisques : prix de vente : 596 000 € honoraires charge vendeur contactez votre conseiller safti : morgane bernard-herbemont, tél. : 06 64 33 64 85, e-mail : morgane.bernard@safti.fr - ei - agent commercial immatriculé au rsac de creteil sous le numéro 831372305.
Venez découvrir cette charmante maison située à Adamville - Square des deux lions. Cette maison entièrement réhabilitée, offrant 105 m² de confort et de modernité, avec jardin et emplacement de stationnement privatif. Au rez-de-chaussée, vous profiterez d'une belle pièce de vie lumineuse comprenant un séjour-salle à manger, le tout donnant sur l'extérieur grâce à de grandes baies vitrées. Une chambre avec rangements et salle d'eau attenante, ainsi qu'un WC séparé, complètent ce niveau. À l'étage, deux chambres supplémentaires et une salle d'eau avec WC offrent un espace nuit fonctionnel et agréable. Vous serez séduits par les prestations de qualité de cette maison : double vitrage, volets roulants électriques, cuisine aménagée et équipée, DPE : B. Le bien comprend 1 lot, et il est situé dans une copropriété de 3 lots (les charges courantes annuelles moyennes de copropriété sont de 550 € et le syndicat des copropriétaires ne fait pas l'objet d'une procédure citée à l'article L. 721-1 du code de la construction et de l'habitation). Les informations sur les risques auxquels ce bien est exposé sont disponibles sur le site Géorisques : Prix de vente : 610 000 € Honoraires charge vendeur Contactez votre conseiller SAFTI : Morgane BERNARD-HERBEMONT, Tél. : 06 64 33 64 85, E-mail : morgane.bernard@safti.fr - EI - Agent commercial immatriculé au RSAC de CRETEIL sous le numéro 831372305.
Iad France - Tania Rumor vous propose : C’est au cOEur du prestigieux quartier résidentiel « Le Parc », à Saint-Maur-des-Fossés, que se dévoile cette élégante maison aux volumes généreux (115 m² Loi Carrez / 124 m² de surface au sol) et aux nombreuses possibilités, nichée dans un cadre verdoyant et paisible. Au rez-de-chaussée, une belle entrée vous mène vers un vaste double séjour lumineux, une cuisine aménagée et semi-ouverte, le tout ouvert sur une spacieuse terrasse surélevée surplombant un jardin arboré, véritable havre de paix pour vos moments en extérieur. Un WC vient compléter ce niveau. À l’étage, vous profiterez de 2 grandes chambres, d’une salle de bain avec baignoire et douche, ainsi que de WC séparés : un espace nuit confortable, idéal pour une vie de famille. Le sous-sol semi-enterré, avec entrée indépendante, propose une grande pièce de 25 m² aujourd’hui aménagée en chambre et salle de jeux. Cet espace est parfaitement adapté à une activité professionnelle, un bureau ou un logement indépendant. Une buanderie et de nombreux rangements complètent ce niveau. Un grand garage, accessible depuis la rue, dispose également d’une fenêtre et d’une porte indépendante, offrant un potentiel rare : atelier, studio, local professionnel… à adapter à vos envies. À seulement 7 / 8 minutes à pied, vous trouverez l’école maternelle et primaire 'Le Parc-Tilleuls' ainsi que le collège 'Le Parc', un emplacement parfait pour une vie de famille au quotidien. Et pour vos déplacements, la gare RER A – Le Parc de Saint-Maur est accessible en 8 à 10 minutes à pied, vous permettant de rejoindre Paris rapidement tout en profitant d’un cadre de vie paisible. Calme, verdure, volumes et emplacement privilégié : cette maison rare sur le secteur est une opportunité à ne pas manquer. Honoraires d'agence à la charge du vendeur. Information d'affichage énergétique sur ce bien : classe ENERGIE D indice 164 et classe CLIMAT D indice 35. Les informations sur les risques auxquels ce bien est exposé, y compris l'obligation légale de débroussaillement, sont disponibles sur le site Géorisques : La présente annonce immobilière a été rédigée sous la responsabilité éditoriale de Mme Tania Rumor mandataire indépendant en immobilier (sans détention de fonds), agent commercial de la SAS I@D France immatriculé au RSAC de CRETEIL sous le numéro 901374017, titulaire de la carte de démarchage immobilier pour le compte de la société I@D France SAS.
Iad France - Alexandre Poirier vous propose : Opportunité Rare à Saint-Maur-des-Fossés - Maison à Rénover avec Grand Terrain- actuellement occupé illégalement Saisissez l'opportunité de rénover et de transformer cette maison individuelle offrant un potentiel exceptionnel à Saint-Maur-des-Fossés. Située sur un terrain de 425 m², cette maison datant de 1930 offre une surface de 70 m² à exploiter selon vos envies et besoins. Bien que la maison soit dans un état délabré, elle représente une toile vierge pour laisser libre cours à votre imagination et créer la maison de vos rêves. Imaginez les possibilités infinies pour transformer cet espace en un havre de paix moderne et élégant, à votre image. La maison actuelle ne dispose pas de chambres, salles d'eau ou cuisine, offrant ainsi une liberté totale pour concevoir l'intérieur selon vos souhaits. Vous pourrez laisser parler votre créativité pour agencer les pièces comme bon vous semble et créer un espace de vie parfaitement adapté à votre style de vie. L'extérieur offre également de belles perspectives avec un grand terrain qui pourra accueillir un jardin aménagé sur mesure, une terrasse pour profiter des beaux jours ou tout autre aménagement paysager qui embellira votre propriété. Imaginez-vous déjà en train de prendre votre petit-déjeuner en plein air ou de vous détendre avec vos proches dans un cadre verdoyant et paisible. La maison est alimentée par le gaz naturel pour le système de chauffage individuel, offrant une solution économique et confortable pour votre futur foyer une fois les travaux réalisés. Cette propriété représente une opportunité rare de laisser libre cours à votre créativité et de créer la maison de vos rêves dans un environnement paisible et recherché de Saint-Maur-des-Fossés. Ne manquez pas cette chance unique de donner vie à un projet de rénovation exceptionnel ! Honoraires d'agence à la charge du vendeur. Information d'affichage énergétique sur ce bien : classe ENERGIE G indice 599 et classe CLIMAT G indice 119. Les informations sur les risques auxquels ce bien est exposé, y compris l'obligation légale de débroussaillement, sont disponibles sur le site Géorisques : La présente annonce immobilière a été rédigée sous la responsabilité éditoriale de M Alexandre Poirier mandataire indépendant en immobilier (sans détention de fonds), agent commercial de la SAS I@D France immatriculé au RSAC de Créteil sous le numéro 537819542, titulaire de la carte de démarchage immobilier pour le compte de la société I@D France SAS.
Quartier de la prairie au sein d'un secteur pavillonnaire, nous vous proposons cette charmante maison de 4 pièces principales. Vous serez accueilli par un bel espace séjour et cuisine ouverte de plus de 30 m² ouvrant sur la terrasse ensoleillé. Au même niveau vous trouverez une chambre et wc. À l'étage le dégagement distribue deux chambres spacieuses et une salle d'eau avec wc. Vous bénéficierez d'un beau jardin sans vis-à-vis, d'un sous-sol total divisé en garage, buanderie et atelier. N'hésitez pas à venir vistier votre futur chez vous.