Logo LSI sombre

Maison 4 Pièces 101 m² à vendre à Agen (47000)
Photo N° 2
Photo N° 3
Photo N° 4
Photo N° 5
5

Vente maison 4 pièces 101 m² Agen (47000)

250 000 €

Maison à construire à Agen (47000)

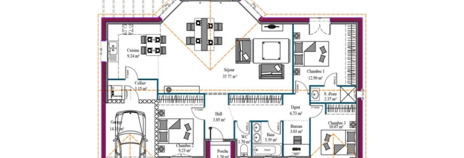
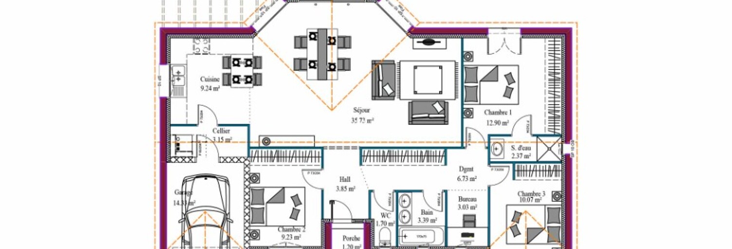
VENTE : maison moderne 4 pièces 101 m² Maison T4 à Estillac (47310) Idéalement située. À proximité des commerces, écoles, médecins, lignes de bus et accès autoroute. ? Modèle EOS : - 3 chambres avec placards dont suite parentale- Grand salon / séjour très lumineux - Cuisine ouverte avec cellier communiquant au garage.- Terrasse- Grand hall d'entrée avec placard- DPE : À (norme RE2020)- Modèle personnalisable - CCMI et garantie de livraisonChiffrage projet réalisé sur la base d'une maison prêt à décorer, hors frais de notaire. Pour toute information sur la maison, sur les modalités de vente ou sur les démarches à suivre, contactez Hugo Chambon au numéro indiqué sur la photo. Idée de réalisation en modèle prêt à décorer sur l'un de nos terrains partenaires, sous réserve de disponibilités. Voir détails en agence. Les informations sur les risques auxquels ce bien est exposé sont disponibles sur le site Géorisques : .

Caractéristiques

Les plus de cette annonce
  • Garage
  • Ensoleillé
  • Jardin
Pièces
  • 4 pièces
  • 3 chambres
  • Cuisine ouverte
Superficies
  • Surface habitable : 101 m²

Consommation énergétique et gaz à effet de serre

Bilan énergétique (DPE)
NC
Bilan gaz à effet de serre (GES)
NC

Géorisques

Les informations sur les risques auxquels ce bien est exposé sont disponibles sur le site Géorisques : www.georisques.gouv.fr

A propos du prix de cette maison

  • Prix : 250 000 € (soit 2 475 € / m²)

À propos de cette annonce

Mise en ligne:

Dernière mise à jour:

Référence de l'annonce: HC2430360_3
Maisons Mca agence immobilière à Artigues-près-Bordeaux (33370)
Maisons Mca
Afficher le numéro

Maison similaires à acheter Agen (47000)

Maison 4 pièces 243800 €
243 800 €

Maison 4 pièces 100 m²

Agen (47000)

À Boé, proche La Couronne et zones commerciales, à l'ombre des arbres, sur un joli parc plat, agréable maison en pierres avec vie de plain-pied, grand grenier avec toiture récente et dépendances. Ce bien à rénover offre un beau potentiel sur un terrain constructible. Vous y trouverez du cachet et de beaux volumes. Honoraires inclus dans le prix : 6%.

À voir pour le même budget

Maison 5 pièces 245000 €
245 000 €
-3 %

Maison 5 pièces 143 m²

Agen (47000)

Iad France - Catherine MARTY (06 99 50 30 70) vous propose : Idéale maison de 143 m² environ habitable, située en plein centre ville d'Agen. Charmante, chaleureuse et pratique. Pour votre confort un grand salon suivi d'un séjour sous véranda chauffée et agrémentée de végétaux comme un jardin d'hiver, puis une cuisine américaine totalement équipée le tout climatisé. Aux étages en partie climatisés également, 4 chambres, un dressing, deux salles d'eau, une salle de bain, une salle de jeu et un bureau. Côté extérieur, une très agréable terrasse sans vis à vis et au calme, pour vos moments de repos et déjeuners à la belle saison. De plus, ce bien est doté d'un garage avec portail motorisé. Offrez vous la tranquillité au plus proche des commerces et écoles. Prenez rendez-vous, vous serez séduit inévitablement. Honoraires d’agence à la charge du vendeur. Information d'affichage énergétique sur ce bien : classe ENERGIE D indice 187 et classe CLIMAT D indice 35. Les informations sur les risques auxquels ce bien est exposé sont disponibles sur le site Géorisques : . La présente annonce immobilière a été rédigée sous la responsabilité éditoriale de Mme Catherine MARTY EI (ID 47169), mandataire indépendant en immobilier (sans détention de fonds), agent commercial de la SAS I@D France immatriculé au RSAC de Agen sous le numéro 411008295, titulaire de la carte de démarchage immobilier pour le compte de la société I@D France SAS. Le présent bien est commercialisé dans le cadre d'une délégation de mandat. Retrouvez tous nos biens sur notre site internet. .

Maison 5 pièces 219000 €
219 000 €

Maison 5 pièces 132 m²

Agen (47000)

Iad France - Mariam Nadiradze vous propose : Charmante maison en pierre à fort potentiel avec un extérieur et 4 chambres. Découvrez cette belle maison en pierre pleine de caractère, idéalement située à Agen, à proximité immédiate d’une école très réputée. Offrant un fort potentiel de rénovation, ce bien séduira les amateurs de projets et de lieux authentiques. Dès l’entrée, le charme opère avec une organisation de vie principalement au rez-de-chaussée. Vous y trouverez un vaste séjour chaleureux, sublimé par une cheminée imposante, une cuisine indépendante ainsi qu’un débarras pratique pour le rangement. À l’extérieur : une véranda conviviale avec son coin barbecue, ainsi qu’une agréable courette à l’esprit provençal, idéale pour profiter des beaux jours en toute intimité. Le premier étage accueille trois grandes chambres, des toilettes ainsi qu’une spacieuse salle de bain, offrant un espace nuit fonctionnel. Au dernier étage, une grande chambre supplémentaire de plus de 23 m² au sol (dont 11,5 m² habitables) vient compléter l’ensemble. La maison nécessite des travaux de rénovation, laissant libre cours à vos envies d’aménagement. Elle dispose déjà de double vitrage partiel et d’une toiture isolée constituant une base intéressante pour votre projet. Les volumes généreux et la distribution des pièces rendent cette maison particulièrement agréable à repenser, avec un véritable potentiel pour devenir un lieu de vie unique et plein de charme. La surface habitable : 132.76 m² La surface de plancher : 147 m² Une opportunité rare à saisir ! Contactez moi dès maintenant pour organiser une visite. Honoraires d'agence à la charge du vendeur. Information d'affichage énergétique sur ce bien : classe ENERGIE D indice 181 et classe CLIMAT B indice 7. Les informations sur les risques auxquels ce bien est exposé, y compris l'obligation légale de débroussaillement, sont disponibles sur le site Géorisques : La présente annonce immobilière a été rédigée sous la responsabilité éditoriale de Mme Mariam Nadiradze mandataire indépendant en immobilier (sans détention de fonds), agent commercial de la SAS I@D France immatriculé au RSAC de AGEN sous le numéro 845084334, titulaire de la carte de démarchage immobilier pour le compte de la société I@D France SAS.

Maison 5 pièces 240000 €
240 000 €
-14 %

Maison 5 pièces 170 m²

Agen (47000)

En exclusivite ! Agen rive gauche - située sur la commune de roquefort, à proximité immédiate de l’échangeur autoroutier et de tous les services du quotidien, cette maison familiale offre un cadre de vie pratique et agréable au sein d’un lotissement conçu avec soin. De bonne construction, l’ensemble est spacieux et bien agencé. Quelques travaux de rafraîchissement permettront de révéler tout le potentiel de ce bien. Le rez-de-chaussée accueille deux chambres, une buanderie, ainsi qu’une salle d’eau avec wc. Grand garage d'environ 50 m². À l’étage, vous serez séduit par une belle cuisine fonctionnelle et un vaste salon lumineux. L'espace nuit comprend deux autres chambres, une salle de bain et un wc indépendant complètent ce niveau. Un bien idéal pour une famille en quête d’espace et de confort, avec une situation géographique stratégique entre calme résidentiel et accès rapide aux axes routiers ! Classe energie : d - classe climat : d estimation des coûts annuels d'énergie entre 3 300 € et 4 520 € honoraires ttc à la charge de l'acquéreur, soit 6.48%, le prix net vendeur est de 225 400 €. Cette annonce vous est proposée par mr anthony d'alfo, agent commercial - rsac 907 653 778 les informations sur les risques auxquels ce bien est exposé sont disponibles sur le site géorisques : ' .

Maison 4 pièces 243800 €
243 800 €

Maison 4 pièces 100 m²

Agen (47000)

À Boé, proche La Couronne et zones commerciales, à l'ombre des arbres, sur un joli parc plat, agréable maison en pierres avec vie de plain-pied, grand grenier avec toiture récente et dépendances. Ce bien à rénover offre un beau potentiel sur un terrain constructible. Vous y trouverez du cachet et de beaux volumes. Honoraires inclus dans le prix : 6%.

Maison 5 pièces 220000 €
220 000 €

Maison 5 pièces 134 m²

Agen (47000)

Située dans le quartier de la Préfecture, Laforêt Agen vous propose cette maison de ville sur 3 niveaux avec garage et local commercial loué en rez-de-chaussée. Une place de stationnement privative devant la maison. Elle se compose : - Au rez-de-chaussée d'une grande entrée donnant accès à la maison et au local professionnel loué (bail commercial. Rapport locatif 320 € mensuel, 3840 € / an) - Au 1er étage : un séjour de 31 m² avec cheminée s'ouvrant sur un patio fermé d'environ 20 m² avec grand puits de jour, une cuisine et un bureau. - Au 2ème étage : deux grandes chambres de 14 et 16 m², un bureau de 8 m² avec rangement, une salle de bains et un wc indépendant. Des travaux de rafraichissement et la création d'un système de chauffage (DPE vierge) pour cette maison sont à prévoir. Travaux d'isolation déjà réalisés, menuiseries en PVC double vitrage. Contactez nous pour organiser une visite !

Maison 4 pièces 210000 €
210 000 €

Maison 4 pièces 102 m²

Agen (47000)

Agen centre ville, dans rue calme, lumineuse maison de ville (pas de jardin) en parfait état d'entretien d'une surface habitable de 102 m² comprenant en rez-de chaussée : deux grands garages de 24 m² chacun avec portail électriques, entrée. Au 1er étage : dégagement vers spacieux et lumineux salon-séjour avec cheminée, climatisation réversible et grand balcon, grande cuisine de 15,20 m² et arrière cuisine attenante 3,41 m², WC. Au 9ème étage : Deux chambres avec climatisation réversible et placards, une pièce de 8,44 m² actuellement aménagée en chambre, Spacieuse salle de bains avec WC séparé une véranda 10 m². L'ensemble de la maison bénéficie de prestations modernes : L'ensemble des huisseries sont en PVC double vitrage de qualité, portails électriques, climatisations, Chauffage gaz de ville, tout à l'égout aux normes, foncier 2050 €. La maison est à proximité de toutes les commodités du centre ville. Prix : 210 000 € honoraires d'agence inclus. Honoraires : 5 % TTC à la charge de l'acquéreur. Prix hors honoraires : 200 000 €.