Logo LSI sombre

Appartement  72 m² à vendre à Annecy (74940)
Photo N° 2
Photo N° 3
3

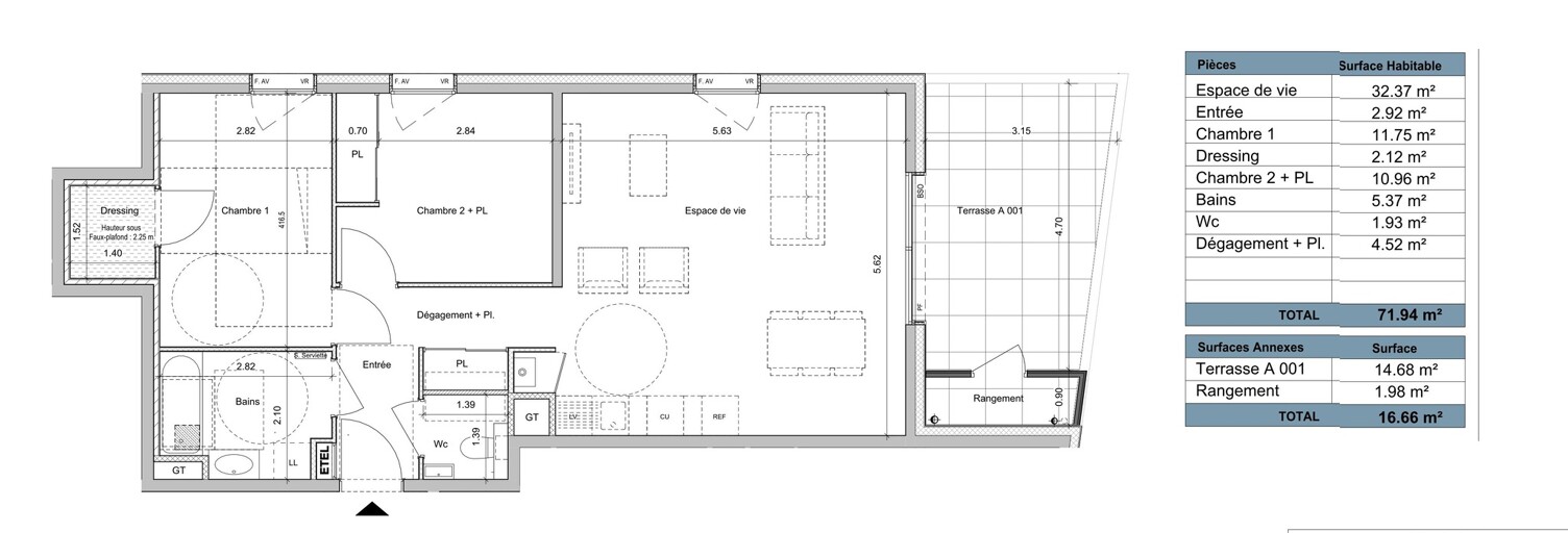
Vente appartement 72 m² Annecy (74940)

515 000 €

Vente appartement 72 m² Annecy (74940)

Idéalement située sur les premières hauteurs d'annecy-le-vieux, dans un secteur résidentiel et calme. À deux pas du collège d'evires. Livraison immediate pour ce grand t3 neuf au rez de chaussée de 72 m² avec un espace de vie lumineux de 32.4 m² ouvert sur une terrasse confortable de 13 m², exposé sud est 2 chambres dont une avec dressing. Chauffage par pompe à chaleur, isolation renforcée, brise soleil orientable dans la pièce de vie. Un garage en sus pour 21000euros soit un total de 536000euros. Frais de notaire réduit, livraison immédiate ! Pour plus d'information, votre conseiller home line est à votre disposition au 07 86 94 82 50. Copropriété de 47 lots pas de procédure en cours charges annuelles 1500 euros honoraires à la charge du vendeur.

Caractéristiques

Les plus de cette annonce
  • Garage
  • Ensoleillé
  • Terrasse
  • Calme

Consommation énergétique et gaz à effet de serre

Bilan énergétique (DPE)
NC
Bilan gaz à effet de serre (GES)
NC

Géorisques

Les informations sur les risques auxquels ce bien est exposé sont disponibles sur le site Géorisques : www.georisques.gouv.fr

A propos du prix de cet appartement

  • Prix : 515 000 € (soit 7 153 € / m²)

À propos de cette annonce

Mise en ligne:

Dernière mise à jour:

Référence de l'annonce: 122362_HLPA001
Home Line promoteur à La Tronche (38700)
Home Line
Afficher le numéro

Appartement similaires à acheter Annecy (74940)

Appartement 3 pièces 495000 €
495 000 €

Appartement 3 pièces 62 m²

Annecy (74000)

Iad France - Elodie Ferte vous propose : Annecy-centre – T3 rénové avec balcon plein sud 62 m² | 2 belles chambres lumineuses | Balcon 14,35 m² | 1er étage | Résidence de standing Au cOEur d’Annecy-centre, magnifique appartement T3 entièrement rénové dans la résidence de standing très sécurisée Le Palladio, avec gardien et accès contrôlé. Parquet en bâton rompu, séjour lumineux ouvert sur balcon plein sud avec vue dégagée sur parc arboré réservé aux résidents. Toutes les pièces, y compris les chambres, ont un accès direct au balcon et profitent d’une exposition optimale plein sud sur le parc verdoyant. Cuisine entièrement ouverte sur le séjour, coin nuit séparé avec 2 belles chambres lumineuses avec placards intégrés, salle d’eau moderne et WC séparé. Cave et local vélo inclus. Possibilité d’acquérir un garage fermé en sous-sol, extrêmement prisé dans le centre d’Annecy. Confort moderne : chauffage au sol inclus dans les charges, double vitrage, volets, eau chaude individuelle. Vivre en centre-ville tout en profitant d’un cadre verdoyant – un vrai coup de cOEur. Contactez-moi pour organiser une visite. La presente annonce immobiliere vise 3 lots situés dans une copropriété de 280 lots au total et ne faisant l'objet d'aucune procédure en cours citée à l'article L. 721-1 du code de la construction et de l'habitation. Montant moyen mensuel de charges déclaré par le vendeur : 160.58€ par mois (soit 1927 € annuel). Honoraires d'agence à la charge du vendeur. Information d'affichage énergétique sur ce bien : classe ENERGIE C indice 169 et classe CLIMAT B indice 6. Les informations sur les risques auxquels ce bien est exposé, y compris l'obligation légale de débroussaillement, sont disponibles sur le site Géorisques : La présente annonce immobilière a été rédigée sous la responsabilité éditoriale de Mme Elodie Ferte mandataire indépendant en immobilier (sans détention de fonds), agent commercial de la SAS I@D France immatriculé au RSAC de annecy sous le numéro 893295824, titulaire de la carte de démarchage immobilier pour le compte de la société I@D France SAS.

Appartement 4 pièces 525000 €
525 000 €

Appartement 4 pièces 80 m²

Annecy (74000)

À annecy, secteur cran-gevrier à 8 min du lac d'annecy, 15 min à pied du centre-ville et à proximité immédiate des commodités - découvrez ce bel appartement neuf 4 pièces de 82,85 m² situé au 3ème étage côté s-e au sein du bâtiment a de la nouvelle résidence « passage de flore », dont la livraison est prévue à partir de l'été 2026. La résidence calme et contemporaine se compose de 5 bâtiments harmonieusement intégrés dans un écrin de verdure. Composition de l'appartement t4 : -entrée : 5,59 m² -séjour / cuisine : 34,43 m² -dégagement : 3,64 m² -salle de bains : 5,18 m² -wc séparé : 1,84 m² -3 chambres : 11,16 m² / 9,12 m² / 9,18 m² l'appartement bénéficie d'une terrasse de 19,08 m² côté sud-est. Vendu avec 1 garage au sous-sol. Présence de locaux vélos et poussettes. Prestations & équipements : le chauffage et l'eau chaude sanitaire sont assurés par une installation collective combinant pac et chaudière gaz. Les huisseries sont en bois double vitrage avec volets roulants électrique. Porte d'entrée sécurisée. Contactez votre agence wellcome immobilier pour obtenir plus d'informations et réserver cet appartement ! D'autres t4 et t5 sont disponibles dans la résidence. Frais de notaire offerts. Programme au normes re2020. Éligible pinel (zone a), ptz + , lli tva 10 %. Bien soumis au statut juridique de la copropriété. Nb de lots : 105. Pas de procédure en cours. Prix ttc et honoraires à charge vendeur ttc.

Appartement 3 pièces 535000 €
535 000 €

Appartement 3 pièces 78 m²

Annecy (74000)

T3 de standing dans une résidence innovante et élégante Annecy, au sein d'une résidence de standing moderne et épurée, issue d’une alliance réussie entre élégance et innovation combinant béton et ossature bois, ce T3 en étage élevé et aux beaux volumes saura vous séduire pleinement. Il comprend un séjour / Cuisine de plus de 33 m² ouvert sur un large balcon, 3 grandes chambres dont une suite parentale avec salle d'eau, une salle de bains, WC séparé. Garage à vélos. Au contact du cœur historique de la ville, des boutiques, des restaurants et des infrastructures culturelles et sportives (cinéma, salles de spectacles Bonlieu et Arcadium, parc des Sports), cet emplacement idéal fera le bonheur des familles, des actifs ou des seniors, en recherche d’une qualité de vie hors du commun.

À voir pour le même budget

Appartement 2 pièces 520000 €
520 000 €
-5 %

Appartement 2 pièces 77 m²

Annecy (74000)

Iad France - Jeanne Claret vous propose : Baisse de prix ! Appartement atypique rénové à Annecy Découvrez ce bien unique de 77 m², entièrement rénové avec soin. L'appartement offre une chambre principale, un espace modulable pouvant servir de séjour ou de seconde chambre, ainsi qu'une cuisine équipée séparée. Pour un confort absolu, un jacuzzi et un hammam privatifs complètent cet espace, créant un cadre idéal pour la détente et le bien être. Luminosité, modernité et prestations hauts de gamme se mêlent à un emplacement à deux pas des commerces, restaurants et d'un parc verdoyant. Un appartement atypique où luxe et confort se rencontrent La presente annonce immobiliere vise 3 lots situés dans une copropriété de 25 lots au total et ne faisant l'objet d'aucune procédure en cours citée à l'article L. 721-1 du code de la construction et de l'habitation. Montant moyen mensuel de charges déclaré par le vendeur : 100€ par mois (soit 1200 € annuel). Honoraires d'agence à la charge du vendeur. Information d'affichage énergétique sur ce bien : classe ENERGIE C indice 161 et classe CLIMAT A indice 4. Les informations sur les risques auxquels ce bien est exposé, y compris l'obligation légale de débroussaillement, sont disponibles sur le site Géorisques : La présente annonce immobilière a été rédigée sous la responsabilité éditoriale de Mme Jeanne Claret mandataire indépendant en immobilier (sans détention de fonds), agent commercial de la SAS I@D France immatriculé au RSAC de ANNECY sous le numéro 940938376, titulaire de la carte de démarchage immobilier pour le compte de la société I@D France SAS.

Appartement 4 pièces 460000 €
460 000 €

Appartement 4 pièces 81 m²

Annecy (74000)

Iad France - Nadia Sifar vous propose : Duplex au cOEur de la Vieille Ville – Calme sur cour intérieure Au cOEur de la Vieille Ville, découvrez ce charmant appartement en duplex, situé au dernier étage, à l’abri des nuisances grâce à son emplacement sur cour intérieure. Avec 81 m² au sol, ce bien offre une atmosphère chaleureuse et pleine de caractère, idéale pour celles et ceux qui recherchent un lieu de vie atypique et parfaitement situé. L’espace nuit propose 1 chambre à chaque étage, chacune bénéficiant de sa propre salle d’eau, apportant un confort rare et une vraie indépendance pour une vie de famille, un couple ou un usage en résidence secondaire. Il dispose également d’une mezzanine bureau ainsi qu’un grenier. Appartement situé au 3ᵉ étage sans ascenseur. Chauffage par radiateur électrique et poêle à bois. Un bien unique, à l’adresse idéale pour profiter pleinement du centre historique, tout en conservant le calme d’un appartement orienté sur cour. Venez me visiter. La presente annonce immobiliere vise 2 lots situés dans une copropriété de 30 lots au total et ne faisant l'objet d'aucune procédure en cours citée à l'article L. 721-1 du code de la construction et de l'habitation. Montant moyen mensuel de charges déclaré par le vendeur : 100€ par mois (soit 1200 € annuel). Honoraires d'agence à la charge du vendeur. Information d'affichage énergétique sur ce bien : classe ENERGIE E indice 263 et classe CLIMAT B indice 8. Les informations sur les risques auxquels ce bien est exposé, y compris l'obligation légale de débroussaillement, sont disponibles sur le site Géorisques : La présente annonce immobilière a été rédigée sous la responsabilité éditoriale de Mme Nadia Sifar mandataire indépendant en immobilier (sans détention de fonds), agent commercial de la SAS I@D France immatriculé au RSAC de ANNECY sous le numéro 930230024, titulaire de la carte de démarchage immobilier pour le compte de la société I@D France SAS.

Appartement 4 pièces 486000 €
486 000 €

Appartement 4 pièces 77 m²

Annecy (74000)

Iad France - Pierre Magerand (06 37 21 92 42) vous propose : Appartement T4 avec balcon et box à Annecy. Située Avenue de Vert-Bois, la résidence Les Camarines s’érige comme un havre résidentiel et verdoyant, à seulement quelques minutes du centre historique d’Annecy et de son lac. Disponible 2027. Au 1 er étage, découvrez un appartement T4 de 77 m² environ, prolongé par un balcon de 12 m² environ. Il se compose d’un séjour / cuisine lumineux de 30 m² environ, de trois belles chambres et d’une salle d’eau moderne. Annexes : box privatif en sous-sol. Belles prestations : - Pompe à chaleur 3 en 1 (chauffage, rafraîchissement, eau chaude). - Grandes baies vitrées, volets roulants électriques. - Résidence sécurisée avec espaces paysagers, locaux vélos et stationnements boxés. Une adresse recherchée : - Centre d’Annecy et gare SNCF à 10 minutes. - Lac d’Annecy et plages accessibles en vélo. - Commerces, écoles et services au pied de la résidence. Cet appartement conjugue modernité, confort et emplacement stratégique, au sein d’un cadre verdoyant et durable. N’hésitez pas à me contacter pour plus d’informations ou pour un accompagnement sur mesure. Honoraires d’agence à la charge du vendeur. Bien non soumis au DPE. Les informations sur les risques auxquels ce bien est exposé sont disponibles sur le site Géorisques : . La présente annonce immobilière a été rédigée sous la responsabilité éditoriale de M. Pierre Magerand EI (ID 86098), mandataire indépendant en immobilier (sans détention de fonds), agent commercial de la SAS I@D France immatriculé au RSAC de Cusset sous le numéro 938729175, titulaire de la carte de démarchage immobilier pour le compte de la société I@D France SAS. Retrouvez tous nos biens sur notre site internet. .

Appartement 4 pièces 588000 €
588 000 €
-11 %

Appartement 4 pièces 87 m²

Annecy (74000)

Iad France - Pierre Magerand (06 37 21 92 42) vous propose : Appartement 4 pièces avec balcon à Annecy. Au cOEur du Quartier des Hirondelles, adresse contemporaine et verte signée par Nicolas Laisné Architectes et Groupe 6, la résidence Hypnose s’inscrit dans une démarche innovante, mêlant design et performance énergétique. Disponible 2028. Située avenue des Hirondelles, à quelques minutes du centre d’Annecy, cette résidence conjugue sérénité résidentielle et proximité urbaine. Un appartement intimiste : Au 6 ème étage, découvrez un 4 pièces de 87 m² environ habitables, prolongé par un balcon de 23 m² environ. - Séjour / cuisine de 31 m² environ, ouvert sur l’extérieur. - Deux belles chambres et une suite parentale avec salle d’eau. - Salle de bains et WC séparés. - Deux caves privatives et garage. Belles prestations : - Menuiseries bois-aluminium avec double vitrage isolant. - Volets roulants électriques. - Chauffage collectif biomasse (pellets), performant et durable. - Résidence sécurisée avec visiophone. Une adresse recherchée à Annecy : - À deux pas des commerces et services. - À proximité immédiate des liaisons vers le centre-ville et le lac. - Un quartier neuf et verdoyant, pensé comme un nouvel art de vivre. Cet appartement conjugue fonctionnalité, confort moderne et adresse de choix dans l’un des secteurs les plus dynamiques d’Annecy. N’hésitez pas à me contacter pour plus d’informations ou pour un accompagnement sur mesure. Honoraires d’agence à la charge du vendeur. Bien non soumis au DPE. Les informations sur les risques auxquels ce bien est exposé sont disponibles sur le site Géorisques : . La présente annonce immobilière a été rédigée sous la responsabilité éditoriale de M. Pierre Magerand EI (ID 86098), mandataire indépendant en immobilier (sans détention de fonds), agent commercial de la SAS I@D France immatriculé au RSAC de Cusset sous le numéro 938729175, titulaire de la carte de démarchage immobilier pour le compte de la société I@D France SAS. Retrouvez tous nos biens sur notre site internet. .

Appartement 4 pièces 541000 €
541 000 €
+6 %

Appartement 4 pièces 90 m²

Annecy (74000)

Iad France - Pierre Magerand (06 37 21 92 42) vous propose : Appartement T4 avec balcon et box à Annecy. Située Avenue de Vert-Bois, la résidence Les Camarines s’érige comme un havre résidentiel et verdoyant, à seulement quelques minutes du centre historique d’Annecy et de son lac. Disponible 2027. Au 2 ème étage, découvrez un appartement T4 de 90 m² environ, prolongé par un balcon de 10 m² environ. Il se compose d’un séjour / cuisine lumineux de 30 m² environ, de trois belles chambres, d'un module, d'un cellier et d’une salle d’eau moderne. Annexes : box privatif en sous-sol. Belles prestations : - Pompe à chaleur 3 en 1 (chauffage, rafraîchissement, eau chaude). - Grandes baies vitrées, volets roulants électriques. - Salle d’eau équipée et personnalisable. - Résidence sécurisée avec espaces paysagers, locaux vélos et stationnements boxés. Une adresse recherchée : - Centre d’Annecy et gare SNCF à 10 minutes. - Lac d’Annecy et plages accessibles en vélo. - Commerces, écoles et services au pied de la résidence. Cet appartement conjugue modernité, confort et emplacement stratégique, au sein d’un cadre verdoyant et durable. N’hésitez pas à me contacter pour plus d’informations ou pour un accompagnement sur mesure. Honoraires d’agence à la charge du vendeur. Bien non soumis au DPE. Les informations sur les risques auxquels ce bien est exposé sont disponibles sur le site Géorisques : . La présente annonce immobilière a été rédigée sous la responsabilité éditoriale de M. Pierre Magerand EI (ID 86098), mandataire indépendant en immobilier (sans détention de fonds), agent commercial de la SAS I@D France immatriculé au RSAC de Cusset sous le numéro 938729175, titulaire de la carte de démarchage immobilier pour le compte de la société I@D France SAS. Retrouvez tous nos biens sur notre site internet. .

Appartement 4 pièces 559200 €
559 200 €
-2 %

Appartement 4 pièces 88 m²

Annecy (74000)

Iad France - Pierre Magerand (06 37 21 92 42) vous propose : Appartement T4 avec balcon et parking à Annecy. Au cOEur de la résidence contemporaine Passage de Flore, à seulement quelques minutes du centre historique d’Annecy et du lac, découvrez un cadre de vie qui conjugue modernité, confort et sérénité. Nichée avenue de la République, cette adresse bénéficie d’un emplacement stratégique, à proximité immédiate des commerces, écoles, transports et pistes cyclables. Disponible 2026. Un appartement intimiste : Situé au 1 er étage, cet appartement T4 de 88 m² environ habitables se prolonge par un balcon de 9 m² environ. - Séjour / cuisine de 41 m² environ. - Trois chambres. - Une salle de bains avec meuble-vasque et sèche-serviettes. - Annexes : parking privatif Belles prestation : - Menuiseries bois double vitrage, volets roulants électriques centralisés. - Chauffage collectif par pompe à chaleur. - Résidence sécurisée avec cOEur d’îlot végétalisé. Un emplacement recherché : - Centre d’Annecy et gare à 1,5 km. - Lac d’Annecy en 15 minutes à vélo. - Accès rapide à l’autoroute (4 min) et à l’aéroport de Genève (30 min). - Commerces, écoles et transports au pied de la résidence. N’hésitez pas à me contacter pour plus d’informations ou pour un accompagnement sur mesure. Honoraires d’agence à la charge du vendeur. Bien non soumis au DPE. Les informations sur les risques auxquels ce bien est exposé sont disponibles sur le site Géorisques : . La présente annonce immobilière a été rédigée sous la responsabilité éditoriale de M. Pierre Magerand EI (ID 86098), mandataire indépendant en immobilier (sans détention de fonds), agent commercial de la SAS I@D France immatriculé au RSAC de Cusset sous le numéro 938729175, titulaire de la carte de démarchage immobilier pour le compte de la société I@D France SAS. Retrouvez tous nos biens sur notre site internet. .