1 résultats
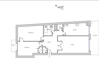
Iad France - Mohamed Trabelsi vous propose : Opportunité d’investissement – Appartement 2 pièces à rénover à Contes Idéal investisseur, cet appartement de type 2 situé au cOEur de Contes représente une excellente opportunité à fort potentiel. D’une superficie d’environ 46 m², ce bien se trouve au premier et dernier étage d’un petit immeuble. Il nécessite une rénovation complète, offrant ainsi une véritable liberté d’aménagement pour créer un espace de vie optimisé et valoriser pleinement son potentiel. Actuellement configuré en plateau, l’appartement ne dispose pas d’aménagement intérieur (cuisine, salle d’eau, chambres), ce qui en fait une base idéale pour un projet sur mesure, adapté à vos objectifs patrimoniaux ou locatifs. Situé dans une petite copropriété sans charges, ce bien présente un atout supplémentaire pour un investissement rentable. Le bien est vendu loué, dans le cadre d’un bail d’habitation vide 3 / 6/9, avec un loyer mensuel de 460 €, offrant ainsi une rentabilité immédiate. La commune de Contes séduit par son cadre de vie paisible, tout en restant proche des commodités, des écoles et des axes principaux. Une opportunité rare pour les investisseurs souhaitant allier rentabilité et valorisation à moyen terme. Contactez-nous dès maintenant pour plus d’informations ou pour organiser une visite. La presente annonce immobiliere vise 1 lot situé dans une copropriété de 3 lots au total et ne faisant l'objet d'aucune procédure en cours citée à l'article L. 721-1 du code de la construction et de l'habitation. Montant moyen mensuel de charges déclaré par le vendeur : 30€ par mois (soit 360 € annuel). Honoraires d'agence à la charge du vendeur. Information d'affichage énergétique sur ce bien : classe ENERGIE C indice 144 et classe CLIMAT A indice 4. Les informations sur les risques auxquels ce bien est exposé, y compris l'obligation légale de débroussaillement, sont disponibles sur le site Géorisques : La présente annonce immobilière a été rédigée sous la responsabilité éditoriale de M Mohamed Trabelsi mandataire indépendant en immobilier (sans détention de fonds), agent commercial de la SAS I@D France immatriculé au RSAC de Grasse sous le numéro 917428898, titulaire de la carte de démarchage immobilier pour le compte de la société I@D France SAS.
Autres annonces à proximité de Contes (06390) avec vos critères
Nice - cais de pierlas - 2 pieces appartement 2 pièces bien situé dans une rue calme à proximité de la place du pin et de la place garibaldi à rénover. Petite terrasse, cave. Votre contact : evelyne vabre 06 83 61 80 68.
Nice - cais de pierlas - 2 pieces appartement 2 pièces à rénover, bien situé à proximité de la place du pin, de la place garibaldi, de tous commerces et de tous transports. Petite terrasse, cave. Votre contact : evelyne vabre 06 83 61 80 68.
Nice - cais de pierlas - 2 pieces vendu appartement à rénover, très bien situé, dans une rue calme, à proximité de la place du pin, de la place garibaldi et de tous commerces et transports; petite terrasse, cave. Votre contact : evelyne vabre 06 83 61 80 68.

Recevez en temps réel les dernières annonces correspondant à votre recherche
Appartement d’exception 84 m² en rez-de-jardin avec terrasse de 90 m² – nice / aspremont un écrin de charme à réinventer sur les hauteurs de nice découvrez un * appartement de 3 / 4 pièces * (84 m²) en rez-de-jardin, niché dans une petite copropriété luxueuse, offrant un cadre de vie rare et exclusif. Ce bien unique, situé proche du village d’aspremont, bénéficie d’une terrasse-jardin de 90 m² exposée à l’ouest, baignée de lumière jusqu’au coucher du soleil. Atouts majeurs : -double garage * pour un confort optimal. -emplacement privilégié : à proximité des écoles, commerces et accès faciles. -potentiel exceptionnel : cet appartement, à rénover et a décorer, est une * toile blanche * pour créer une habitation alliant élégance et modernité. Un projet sur mesure pour les amateurs d’espace et de came.
Nice Bon Voyage, Pont Michel grand 3 P 72 m² Nice Bon Voyage, Pont Michel, à 2 pas du terminus du Tram et du centre commercial Leclerc, dans une résidence récente, en étage élevé, grand 3 pièces de72 m² avec 2 terrasses de 8 et 11 m², exposés sud et ouest. Très grand séjour / cuisine ouverte de 32.60 m², lumineux et ensoleillé. La vue est complètement dégagée sur la ville et les collines niçoises. L'appartement est à rénover. Avec l'appartement, vous bénéficiez d'un parking couvert en sous / sol. DPE : C - Les informations sur les risques auxquels ce bien est exposé sont disponibles sur le site Géorisques : georisques. gouv. fr Charges 1829euros / an.
'gairaut' sous offre - unique - dernier étage - gairaut dans un hôtel particulier, magnifique appartement de 130 m² situé au dernier étage, avec une grande terrasse de 23 m² exposée plein sud. Vaste double séjour de 40 m² ouvrant sur la terrasse, offrant une vue dégagée avec aperçu mer. Appartement à rénover entièrement, actuellement configuré en type t4 / t5. Un petit jardin privatif exposé nord et une place de parking extérieure complètent ce bien rare. Possibilité d’acquérir un garage en supplément. Gros coup de cœur assuré ! À proximité immédiate du centre-ville, arrêt de bus au pied de la résidence et tramway à deux pas. Faibles charges.
L’office notarial selas les notaires du 21 rue d'antibes notaires associes, scp vous propose : studio à vendre en immo-interactif - adresse du bien : 1335 route de authion 06440 peira cava - peira cava : vente en immo-interactif notaires vente en immo-interactif notaires - biens - curateur- etat francais luceram (06440) – lieudit peira cava, 1335 route de l’authion appartement de type t1 de 34 m² loi carrez à rénover avec terrasse, coursive, caves, vue panoramique sur les montagnes, dans une copropriété historiquement ancien hôtel stationnement dans la rue face à la copropriété restaurant à proximité immédiate espaces communs de convivialité - visites : sur rendez-vous visite le vendredi 10 avril 2026 de 12h à 13h30 contact : 06 84 49 69 24 - conditions de la vente : le bien est présenté en immo-interactif à la hausse : - 1ère offre possible : à partir de 12 500 euros (honoraires de négociation inclus) - offres suivantes : multiples de 500 euros. - réception des offres du 20 / 04 / 2026 à 13 : 00 au 21 / 04 / 2026 à 13 : 00 sur le site immo-interactif®. - annonce de l’étude selas les notaires du 21 rue d'antibes notaires associes - notaires à cannes - n° siret : 31119762800010 - immo-interactif® : le système d'enchères immobilières sans contrainte, transparent et sécurisé, proposé par votre notaire.
Situé dans le quartier résidentiel et recherché de Cimiez, ce 3 pièces en rez-de-chaussée de 47 m² à rénover, représente une belle opportunité d'investissement. Au calme, cet appartement se compose actuellement de : - une Entrée, - un Séjour, - une Cuisine indépendante, - deux Chambres, - une Salle de bains, - un WC indépendant, Cave, Parking collectif, Jardin commun, Une cloison peut être supprimée, permettant de créer un bel espace Séjour / Salle à manger plus spacieux et convivial, adapté aux modes de vie actuels. Son implantation en rez-de-chaussée facilite l'accès et offre un cadre de vie pratique au quotidien. Il conviendra parfaitement à un projet de résidence principale, de pied-à-terre ou d'investissement locatif. Une opportunité à saisir pour les amateurs de rénovation et de valorisation patrimoniale. Nombre de lots de la copropriété : 40, Montant moyen annuel de la quote-part de charges (budget prévisionnel) : 920€ soit 76€ par mois. Les honoraires sont à la charge du vendeur. Les informations sur les risques auxquels ce bien est exposé sont disponibles sur le site Géorisques : www. georisques. gouv. fr. Réseau Immobilier CAPIFRANCE - Votre agent commercial (RSAC N°524 641 636 - Greffe de NICE) Christian ARIONE Entrepreneur Individuel 06 72 32 13 76 - Réf. 941761.
Nice / Cimiez Venez découvrir cet exceptionnel Penthouse de 144 m² avec 408 m² de terrasses. Au coeur de Cimiez, en dernier étage d'une résidence de standing avec gardien, ce lumineux 4 pièces de 144 m², à rénover, offre une triple exposition et une fabuleuse terrasse de 370 m² de plain pied ainsi qu'une vue panoramique. Composé d'une entrée, d'un grand séjour de 50 m², d'une cuisine indépendante, d'une chambre de maître avec dressing et d'une salle de bain, puis de deux autres chambres dont une avec douche, de toilettes séparées et de nombreux rangements. Un grand garage complète de bien d'exception. Vidéo et plus d'informations sur demande Honoraires de 5% inclus à la charge du vendeur. Les informations sur les risques auxquels ce bien est exposé sont disponibles sur le site Géorisques : georisques. gouv. fr.
Quartier du Parc Chambrun à Nice, voici une jolie opportunité pour ce 3 pièces lumineux et traversant de 71,49 m² avec terrasse au sein d'un immeuble de standing avec ascenseur. Vous pourrez l'agencer à vos goûts, celui-ci étant à rénover entièrement. Vous aurez un espace de vie de plus de 30 m² si vous décidez de créer une cuisine américaine. La cuisine et le séjour donnent sur une terrasse profonde sans vis à vis. Il y a deux grandes chambres (12 et 14 m² environs), une salle de bains, un wc indépendant. Sans oublier la cave au sous-sol. À proximité du tramway, des bus, des commerces, écoles et université. DPE : D. Prix de vente : 250000 € honoraires d’agence charge vendeur. Les informations sur les risques auxquels ce bien est exposé sont disponibles sur le site Géorisques. Pour visiter : , Conseillère en immobilier et Chasseur d'appartement à Nice et sa région (EI) : . Agence THL Properties, NICE.
À proximité du parc Chambrun, dans un immeuble des années 70, bien entretenu, studio en avant dernier étage à rénover, composé d'une entrée avec placards, séjour donnant sur balcon, kitchenette et salle de bains avec WC. Charges de copropriété : 65€ / mois Lots : 28 principaux.
Situé sur les collines de Rimiez, l'un des quartiers les plus prisés de Nice, à deux pas de la clinique Saint-Georges. Au cœur d'une copropriété intimiste de seulement 2 logements, nous vous proposons ce T3 de 73 m² de plain-pied à rénover et à vivre comme une maison avec un grand balcon de 19 m² exposé plein Sud et jardin privatif d'environ 121 m², offrant une vue imprenable sur la mer Méditerranée ! La configuration actuelle se compose d'un séjour, de deux chambres, d'une cuisine indépendante, d'une salle de bains et WC indépendant. L'ensemble à rénover totalement offrant ainsi un vrai potentiel de valorisation patrimonial compte tenu de la qualité du secteur. Ce bien s'adresse idéalement aux professionnels du bâtiment ou aux passionnés de rénovation pour habiter ou investir dans un environnement verdoyant, tout en restant à proximité du centre de Nice. Pour les amateurs de potager ou d'espaces de jeux supplémentaires pour les enfants, il est possible d'acquérir des parcelles de jardins supplémentaires. Garage fermé potentiellement à vendre en supplément. Une perle rare dans un cadre de vie exceptionnel offrant un vrai potentiel de valorisation patrimonial : Vue mer panoramique Jardin arboré de 121 m² Projet sur mesure Quartier très recherché Copropriété à taille humaine A saisir sans tarder ! COVALEM est propriétaire de tous les biens que nous proposons à la vente : Achetez en direct sans frais d'agence ! Vous vendez votre maison ? Nous l'achetons !
Borriglione 4 pièces à rénover situé au rez-de-chaussée d'une copropriété bien entretenue à nice, découvrez cet appartement 4 pièces de 68,27 m². Configuration : entrée : 7,47 m² séjour : 11,71 m² ouvrant sur un balcon exposé sud cuisine indépendante : 6,71 m² chambre 1 : 10,57 m² chambre 2 : 12,01 m² chambre 3 : 11,25 m² salle d'eau : 3,77 m² wc indépendant : 1,24 m² cellier : 1,66 m² dégagement : 1,87 m² balcon : environ 11 m² balcon donnant sur le jardin de la copropriété; exposition sud. Cave copropriété entretenue travaux à prévoir électricité menuiseries (fenêtres) rafraîchissement général informations complémentaires chauffage collectif au gaz charges : environ 200 € / mois taxe foncière : environ 1 500 € (à confirmer) quartier recherché et pratique, avec : tramway, bus commerces écoles surface carrez : 68.27 m² prix de vente 275 000 € honoraires : 3,77 % ttc à la charge de l'acquéreur prix hors honoraires d'agence : 265 000 € montant estimé des dépenses annuelles d'énergie pour un usage standard : entre 1 033 € et 1 397 € par an. Prix moyens des énergies indexés sur les années 2021 2022 2023 (abonnement compris). Dpe : d ges : c pour visiter et vous accompagner dans votre projet, contactez elodie picon-brun 06 67 44 38 75 honoraires : 3,77 % ttc à la charge de l'acquéreur prix hors honoraires d'agence : 265 000 € prix de vente 275 000 € selon l'article l. 561.5 du code monétaire et financier, pour l'organisation de la visite, la présentation d'une pièce d'identité vous sera demandée. Les informations sur les risques auxquels ce bien est exposé sont disponibles sur le site géorisques : cette présente annonce a été rédigée sous la responsabilité éditoriale de elodie picon-brun agissant sous le statut d'agent commercial immatriculé au ville du greffe : nice sous le numéro rsac n° 823 722 293 auprès de la sas immo reseau au capital de 10 000€ - réseau national immobilier sur internet, 44 allée des cinq continents - 44120 vertou - rne nantes 519 718 886. Carte professionnelle t et g n° cpi 3002 2018 000 024 971 cci de nantes-saint-nazaire (44) ; garantie par galian 89 rue de la boétie - 75008 paris n°171379g pour 120 000€ pour t. Assurance responsabilité civile professionnelle par galian n° de police 120 137 405 (réf. 39082) - le professionnel garantit et sécurise votre projet immobilier prix de vente 275 000 € honoraires : 3,77 % ttc à la charge de l'acquéreur prix hors honoraires d'agence : 265 000 € montant estimé des dépenses annuelles d'énergie pour un usage standard : entre 1 033 € et 1 397 € par an. Prix moyens des énergies indexés sur les années 2021 2022 2023 (abonnement compris). Dpe : d ges : c pour visiter et vous accompagner dans votre projet, contactez elodie picon-brun 06 67 44 38 75 honoraires : 3,77 % ttc à la charge de l'acquéreur prix hors honoraires d'agence : 265 000 € prix de vente 275 000 € selon l'article l. 561.5 du code monétaire et financier, pour l'organisation de la visite, la présentation d'une pièce d'identité vous sera demandée. Les informations sur les risques auxquels ce bien est exposé sont disponibles sur le site géorisques : cette présente annonce a été rédigée sous la responsabilité éditoriale de elodie picon-brun agissant sous le statut d'agent commercial immatriculé au ville du greffe : nice sous le numéro rsac n° 823 722 293 auprès de la sas immo reseau au capital de 10 000€ - réseau national immobilier sur internet, 44 allée des cinq continents - 44120 vertou - rne nantes 519 718 886. Carte professionnelle t et g n° cpi 3002 2018 000 024 971 cci de nantes-saint-nazaire (44) ; garantie par galian 89 rue de la boétie - 75008 paris n°171379g pour 120 000€ pour t. Assurance responsabilité civile professionnelle par galian n° de police 120 137 405 (réf. 39082) - le professionnel garantit et sécurise votre projet immobilier bien soumis au statut juridique de la copropriété. Nb de lots : 100. Charges annuelles de copropriété (montant moyen annuel quote-part du budget prévisionnel vendeur) : 2 500 €. Pas de procédure en cours. Prix de vente 275 000 € honoraires : 3,77 % ttc à la charge de l'acquéreur prix hors honoraires d'agence : 265 000 € montant estimé des dépenses annuelles d'énergie pour un usage standard : entre 1 033 € et 1 397 € par an. Prix moyens des énergies indexés sur les années 2021 2022 2023 (abonnement compris). Dpe : d ges : c surface carrez : 68.27 m² bien soumis au statut juridique de la copropriété. Nb de lots : 100. Charges annuelles de copropriété (montant moyen annuel quote-part du budget prévisionnel vendeur) : 2 500 €. Pas de procédure en cours. Prix de vente 275 000 € honoraires : 3,77 % ttc à la charge de l'acquéreur prix hors honoraires d'agence : 265 000 € montant estimé des dépenses annuelles d'énergie pour un usage standard : entre 1 033 € et 1 397 € par an. Prix moyens des énergies indexés sur les années 2021 2022 2023 (abonnement compris). Dpe : d ges : c.
Nice Cimiez - Proche de la place commandant Gérôme - 2 pièces situé en RDC d'une résidence au calme dans un environnement "petite campagne à la ville". L'appartement se compose d'une entrée, d'une pièce de vie, d'une chambre, d'une cuisine séparée ouvrant sur un balcon, d'une salle de bain et d'un WC indépendant. Une cave complète ces prestations. Le bien est à rénover. Proche commerces et transports en commun. Honoraires à la charge de l'acquéreur.
Cessole : À proximité immédiate des commerces et transports, spacieux appartement de trois pièces à rénover au 6ème étage d'un immeuble bien entretenu. Lumineux, ce bien dispose de plusieurs extérieurs et d'une très jolie vue dégagée. Facilement transformable en 4 pièces, il vous offre l'occasion de réaliser une rénovation propre à vos goûts. L'appartement est vendu avec une cave. Possibilité d'acquérir un garage fermé dans la copropriété. Copropriété de 222 lots - dont 82 lots habitation. (Pas de procédure en cours). Charges annuelles : 3600.00 euros.
ST ROCH. 3 pièces traversant de 67 m² à rénover entièrement Il est composé d'un hall d'entrée desservant toutes les pièces de l'appartement, un beau séjour ouvrant sur une terrasse avec vue sur les collines de l'observatoire, une grande séparée, 2 chambres avec rangements donnant sur un grand balcon exposé ouest au calme, une salle de bain et un wc indépendant. L'appartement est accompagné d'une cave. Idéalement situé à proximité de nombreux commerces, du tramway et des établissements scolaires. Beau potentiel de rénovation. Idéal pour une famille. Charges annuelles : 2892 € en Tout Collectif (Eau chaude et froide et chauffage inclus).
Nice - le port- 4 pieces - balcons en plein coeur du quartier du port a 100m du tramway et de la place du pin. Très beau potentiel pour ce 3 / 4 pièces d'angle lumineux avec une belle hauteur sous plafond à rénover. Au deuxième étage d'un immeuble niçois avec ascenseur disposant de 2 balcons (au sud et à l'ouest) avec vue dégagée. Les informations sur les risques auxquels ce bien est exposé sont disponibles sur le site géorisques : 'georisques. Gouv. Fr'. Votre contact : chantal pattou 06 09 97 18 36.
Dans un quartier en plein développement, entre les facultés et tnl, approximité de la gare et du tramway, a vendre 2 appartements de 3 pieces de 60 m² chacun à rénover / à diviser (gestion libre) en 3 studios chacuns toutes formes de locations possibles rénovation des parties communes + façades. + toiture actées pour plus d'informations (plans, diags etc) me contacter. Revalys - cousin rodrigue - 06 21 03 58 99 - plus d'informations sur (réf. 06 02 01 09 04) bien soumis au statut juridique de la copropriété. Nb de lots : 17. Pas de procédure en cours. Honoraires à la charge du vendeur.
Appartement 3 pieces - mont boron - terrasse - garage idéalement situé sur le boulevard du mont boron et avec une très belle vue sur la ville, la mer et le château du mont boron, un appartement de type 3 pièces, traversant, à rénover et composé de la manière suivante : une entrée, un séjour ouvert sur un terrasse jouissant d'une exposition à l'ouest et avec une agréable vue, une cuisine avec balcon, deux chambres avec balcon, salle de bains avec toilettes, placards. Une cave appartient au bien. Un garage peut être acquis en supplément. Les honoraires de l'agence sont à la charge du vendeur.
Le Groupe REVALYS vous propose à la vente un ensemble immobilier de 110 m² sur deux niveaux à rénover, situé à Beausoleil, au sein d'une petite copropriété à quelques minutes du Boulevard des Moulins à Monaco. Intégralité du dernier étage, bien rare avec vue mer imprenable & fort potentiel de valorisation. Honoraires à la charge du vendeur.
EZE bord de mer - 3 / 4 pièces Emplacement privilégié avec vue mer panoramique et exposition Sud Sud / Est Cet appartement à rénover est actuellement composé d une entrée, d une cuisine indépendant, de 2 chambres d un bureau d une salle d eau et de toilettes indépendants Un grand balcon filant donnant sur le séjour et la cuisine permet d accueillir une table bistrot avec des chaises, un second donnant sur une des chambres Une grande cave complète ce bien qui, après rénovation, grâce a son emplacement exceptionnel, sera un lieu de vie parfait en résidence principale ou secondaire.
Iad France - Maelle Zamolo vous propose : 4 pièces lumineux à rénover – Fort potentiel à Nice Nord Découvrez ce 4 pièces traversant de 61 m² offrant un superbe potentiel avec son balcon exposé Sud avec aperçue mer. Il se compose d’un séjour avec cuisine semi-ouverte, de trois chambres, d’une salle de bains et de WC indépendants. Sa double exposition assure une belle luminosité naturelle. Situé à proximité immédiate des commerces, transports et écoles, il offre un cadre de vie pratique et recherché. Des travaux sont à prévoir : une belle opportunité de créer un intérieur entièrement à votre goût. ️ Cave incluse ️ Parking collectif dans la copropriété ️ Home staging réalisé sur certaines photos pour vous aider à vous projeter Idéal résidence principale ou investissement. Contactez-moi rapidement pour une visite. Honoraires d'agence à la charge du vendeur. Information d'affichage énergétique sur ce bien : classe ENERGIE F indice 260 et classe CLIMAT F indice 78. Les informations sur les risques auxquels ce bien est exposé, y compris l'obligation légale de débroussaillement, sont disponibles sur le site Géorisques : La présente annonce immobilière a été rédigée sous la responsabilité éditoriale de Mme Maelle Zamolo mandataire indépendant en immobilier (sans détention de fonds), agent commercial de la SAS I@D France immatriculé au RSAC de Nice sous le numéro 932665243, titulaire de la carte de démarchage immobilier pour le compte de la société I@D France SAS.
Appartement 3 pieces situe au coeur de beaulieu-sur-mer, cet appartement offre une vue panoramique sur la mer allant de eze a saint jean cap ferrat. Ce bien est localisé à quelques minutes des plages, des jardins et du charmant centre-ville avec son petit marché typique, ses commerces, cafés, restaurants et écoles dans un des lieux les plus select de la côte d’azur. Ce bel et confortable appartement de trois pièces fait parti d'une residence de standing des années 70. Il possède la particularité d'être tranversant. Sa circulation est desservie par une entrée avec des rangements, un couloir ouvert menant à sa droite, à un sejour baigne de lumiere prolonge par une belle terrasse. Elle embrasse à son premier plan, un paysage aux somptueuses demeures belle epoque aux jardins remarquables. Au second plan, c’est la vue sur la mer qui prend place où, émerge la villa kerylos. La seconde partie de l’appartement se compose d’un couloir menant à une cuisine indépendante à rénover et aux deux chambres spacieuses de chaque côté avec des placards intégrés, une salle de douche et wc sont séparés. Un grand balcon relie ces pièces donnant sur un écran de verdure sans vis-a-vis. Le chauffage est collectif et son diagnostic énergétique est « c ». Une cave et un parking fermé en sous-sol sont desservis par l’ascenseur principal, cette résidence est bien entretenue et possède une concierge.
Centre ville - appartement 2 pieces a renover - double terrasse - vue mer notre agence alp vous propose à la vente, un appartement traversant 2 pièces de 54 m² à rénover, au dernier étage d'une résidence située en plein centre ville. Il se compose d'un couloir d'entrée avec rangements, qui dessert un séjour ouvert sur une terrasse orientée est avec vue mer, une cuisine séparée et une chambre ouverte sur une seconde terrasse orientée ouest avec vue sur les collines, une salle de bain et un wc séparé. Une cave en rez de chaussée complète ce bien. L'appartement est à rénover et transformable en 3 pièces, une réelle opportunité pour un projet de vie ou d'investissement sur beaulieu. Un parking public est en cours de réalisation à proximité immédiate. Honoraires d'agence 6% ttc inclus à charge vendeur. Les informations sur les risques auxquels ce bien est exposé sont disponibles sur le site géorisques : georisques. Gouv. Fr.