Logo LSI sombre

Appartement 5 Pièces 177 m² à vendre à Nîmes (30000)
Photo N° 2
Photo N° 3
3

Vente appartement 5 pièces 177 m² Nîmes (30000)

880 500 €

Vente Duplex 5 pièces

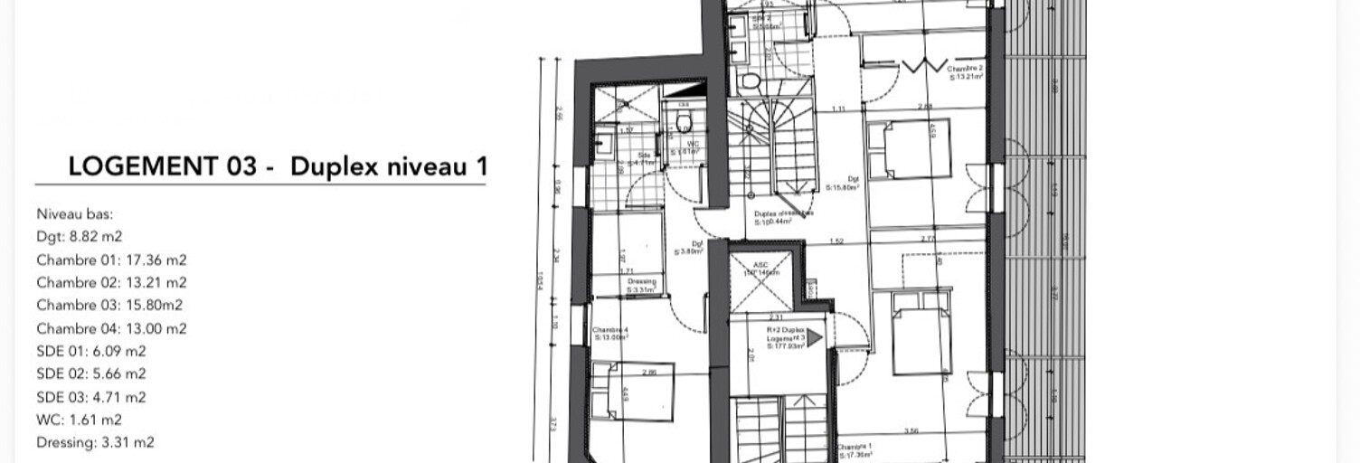
Iad France - Déborah Quincieu vous propose : À proximité du centre-ville de Nîmes, duplex T5 avec terrasse exposée sud et ascenseur desservant les deux niveaux. Idéalement situé à proximité immédiate des Arènes de Nîmes, dans un secteur apprécié pour son accessibilité et sa qualité de vie, ce duplex T5 de 178 m² prend place aux deuxième et troisième, et derniers, étages d’une copropriété de standing composée de trois lots. Il en occupe à lui seul les deux derniers niveaux, offrant ainsi une réelle tranquillité et indépendance. Actuellement en cours d’achèvement, sa livraison est prévue en mars. Conçu en duplex inversé, il développe au premier niveau un espace nuit organisé autour de quatre chambres. Un premier espace comprend une chambre avec dressing et salle d’eau, complété par un WC indépendant. La suite parentale bénéficie également d’un dressing et d’une salle d’eau privative avec WC. Deux autres chambres avec rangements intégrés partagent une salle d’eau avec WC. L’une des chambres est aménagée pour répondre aux normes PMR. À l’étage supérieur, la pièce de vie lumineuse accueille un salon et une salle à manger aux volumes équilibrés, ainsi qu’une cuisine complétée par une arrière-cuisine intégrant un espace buanderie. L’ensemble s’ouvre sur une terrasse de plus de 32 m² exposée plein sud, avec vue dégagée sur les toits et sans vis-à-vis direct. Les prestations ont été sélectionnées avec soin, privilégiant des matériaux et des finitions de qualité, notamment un carrelage grand format 80x80, une climatisation gainable et une desserte par ascenseur sur les deux niveaux du duplex. Une place de stationnement complète l’ensemble. Un bien offrant une configuration familiale, un dernier étage avec ascenseur et un extérieur en cOEur de ville. Pour tout renseignement complémentaire ou pour organiser une présentation du projet, je reste à votre disposition. La presente annonce immobiliere vise 1 lot situé dans une copropriété de 3 lots au total et ne faisant l'objet d'aucune procédure en cours citée à l'article L. 721-1 du code de la construction et de l'habitation. Montant moyen mensuel de charges déclaré par le vendeur : 0€ par mois (soit 0 € annuel). Honoraires d'agence à la charge du vendeur. Bien non soumis au DPE. Les informations sur les risques auxquels ce bien est exposé, y compris l'obligation légale de débroussaillement, sont disponibles sur le site Géorisques : La présente annonce immobilière a été rédigée sous la responsabilité éditoriale de Mme Déborah Quincieu mandataire indépendant en immobilier (sans détention de fonds), agent commercial de la SAS I@D France immatriculé au RSAC de Montpellier sous le numéro 892670969, titulaire de la carte de démarchage immobilier pour le compte de la société I@D France SAS.

Caractéristiques

Les plus de cette annonce
  • Ascenseur
  • Parking
  • Climatisation
  • Dernier étage
  • Terrasse
  • Jardin
  • Standing
  • Vue dégagée
  • Sans vis-à-vis
Pièces
  • 5 pièces
Superficies
  • Surface habitable : 177 m²
Etage
  • Duplex

Consommation énergétique et gaz à effet de serre

Bilan énergétique (DPE)
NC
Bilan gaz à effet de serre (GES)
NC

Géorisques

Les informations sur les risques auxquels ce bien est exposé sont disponibles sur le site Géorisques : www.georisques.gouv.fr

À propos de la copropriété

  • Nombre de lots de la copropriété : 3

A propos du prix de cet appartement

  • Prix : 880 500 € (soit 4 975 € / m²)
  • Honoraires à charge vendeur

À propos de cette annonce

Mise en ligne:

Dernière mise à jour:

Référence de l'annonce: 1953633
iad france agence immobilière à Lieusaint (77127)
iad france
Afficher le numéro

À voir pour le même budget

Appartement 4 pièces 748000 €
748 000 €

Appartement 4 pièces 126 m²

Nîmes (30900)

Magnifique appartement T4 au dernier étage composé de 3 chambres dont une suite parentale avec sa salle d'eau, une buanderie, un grand séjour de 48m donnant sur une grande terrasse de 50m et un coin cuisine séparé. Située sur une colline à 10 minutes de marche du centre-ville de Nîmes, cette résidence de standing de 16 logements seulement bénéficie d'une position dominante dans un cadre végétal préservé. Son écrin de verdure et le calme de son impasse en font un lieu unique. Seulement 16 appartements sont disponibles à la vente avec stationnement privatif, ascenseur, climatisation et terrasse pour vous apporter tout le confort nécessaire tout au long de l'année. Toutes les loggias et terrasses, font plus de 2,20 m de profondeur et ont vue sur le grand jardin de la résidence avec ses arbres de grande hauteur conservés. Pour le calme et le confort de ses habitants, les stationnements sont nombreux et très majoritairement situés en sous-sols accessibles par les ascenseurs. Un local vélos spacieux et sécurisé permettra également aux cyclistes de stationner facilement. Référence agence : 4721.

Appartement 6 pièces 987000 €
987 000 €

Appartement 6 pièces 283 m²

Nîmes (30000)

NIMES PREFECTURE L'agence Portal et Pio Immobilier vous présente ce somptueux appartement de 283 m² situé au deuxième étage (avec ascenseur privatif) d'un immeuble Haussmannien. Les esthètes, amateurs de lieux chargés d'Histoire, seront séduits par les hauteurs sous plafonds, les cheminées et les sols de marbre. Une double réception, avec balcon filant et trois belles chambres (dont une de 40 m²) composent le premier niveau de ce bien. En duplex, vous retrouverez un bureau actuellement exploité en atelier par le propriétaire. Visiter ce bien d'exception est une réelle immersion dans un univers d'artistes. Une très belle adresse pour ce bien vendu avec garage et caves. Un véritable coup de coeur.