Logo LSI sombre

Appartement 4 Pièces 105 m² à vendre à Rennes (35000)
1

Vente appartement 4 pièces 105 m² Rennes (35000)

640 000 €
+3 %

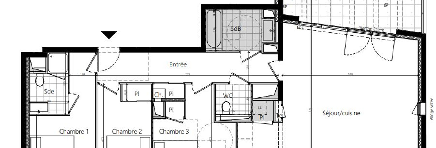
RENNES quartier Lorient - Saint-Brieuc - T4 de 105 m2

Cogir neuf vous propose : rennes quartier lorient - saint-brieuc - a proximité immédiate des commerces et du mail françois mitterrand, venez découvrir cette résidence rayonnante de 40 appartements pour habiter ou investir. Vous y trouverez cet appartement t4 de 105 m² au 5eme étage comprenant : une entrée, une salle de bain, un wc séparé ainsi qu'un séjour / cuisine de 47 m², 2 chambres et une suite parentale donnants sur un balcon de 33 m² exposé plein sud. L'appartement dispose également d'une terrasse de 32 m² ainsi que d'un garage box. Mesures fiscales : pinel / l. M.N. P t1 à partir de 190 000.00 € ttc t2 à partir de 250 000.00 € ttc t3 à partir de 365 000.00 € ttc corinne bouffort : 06 08 47 94 30 / cbn9818.

Caractéristiques

Les plus de cette annonce
  • Ascenseur
  • Garage
  • Terrasse
  • Orientation sud
Pièces
  • 4 pièces
  • 3 chambres
  • Salle de bain
Superficies
  • Surface habitable : 105 m²
Extérieur
  • Balcon
Environnement
  • Orientation : sud

Consommation énergétique et gaz à effet de serre

Bilan énergétique (DPE)
NC
Bilan gaz à effet de serre (GES)
NC

Géorisques

Les informations sur les risques auxquels ce bien est exposé sont disponibles sur le site Géorisques : www.georisques.gouv.fr

A propos du prix de cet appartement

  • Prix : 640 000 € (soit 6 095 € / m²) +3 %

Evolution du prix de ce bien

Le prix de ce bien est en hausse de 3 % (20 000 €) depuis le début de sa diffusion le 29/07/2022.

À propos de cette annonce

Mise en ligne:

Dernière mise à jour:

Référence de l'annonce: 50394497
AGENCE COGIR agence immobilière à Rennes (35)
AGENCE COGIR
Afficher le numéro

Appartement similaires à acheter Rennes (35000)

Appartement 4 pièces 666000 €
666 000 €

Appartement 4 pièces 93 m²

Rennes (35000)

À vendre - soquet immobilier - appartement standing - rennes frais de notaire reduit appartement de standing à rennes thabor- jeanne d'arc disponible immédiatement dans une résidence récente de 2024. Venez découvrir cet appartement neuf en étage de 93 m² avec une terrasse de 36 m² exposé sud-ouest sans vis à vis. Vous serez conquis par son agencement et ces prestations. Séjour cuisine donnant sur la terrasse, 3 grandes chambres avec rangement dont une suite parentale avec salle de douche et wc. Une salle de bains et un cellier. Un stationnement vient compléter cet ensemble. Frais de notaire reduit vous est proposé par l'agence soquet immobilier. L'agence immobilière soquet immobilier est idéale pour acheter ou vendre un appartement / une maison en bretagne. Spécialisée dans la vente de maisons / appartements à dinan, rennes et saint malo, elle diffuse quotidiennement ses annonces immobilières afin de faciliter la vente de votre maison et de vous proposer le logement de vos rêves. Les informations sur les risques auxquels ce bien est exposé sont disponibles sur le site géorisques : .

Appartement 4 pièces 654000 €
654 000 €

Appartement 4 pièces 93 m²

Rennes (35000)

Soquet immobilier - appartement standing - rennes appartement de standing à rennes thabor- jeanne d'arc disponible immédiatement dans une résidence récente de 2024. Venez découvrir cet appartement neuf de 94 m² avec une terrasse de 17,95 m² exposé sud-ouest sans vis à vis. Vous serez conquis par son agencement et ces prestations. Séjour cuisine donnant sur la terrasse, 3 grandes chambres avec rangement dont une suite parentale avec salle de douche et wc. Une salle de bains et un cellier. Un stationnement vient compléter cet ensemble. Frais de notaire reduit vous est proposé par l'agence soquet immobilier. L'agence immobilière soquet immobilier est idéale pour acheter ou vendre un appartement / une maison en bretagne. Spécialisée dans la vente de maisons / appartements à dinan, rennes et saint malo, elle diffuse quotidiennement ses annonces immobilières afin de faciliter la vente de votre maison et de vous proposer le logement de vos rêves. Les informations sur les risques auxquels ce bien est exposé sont disponibles sur le site géorisques : .

Appartement 4 pièces 654000 €
654 000 €
-3 %

Appartement 4 pièces 93 m²

Rennes (35000)

Cogir neuf vous propose : rennes - quartier sévigné / fougères - a proximité immédiate des parcs rennais et du centre-ville grâce à la nouvelle station de métro jules ferry, venez découvrir cette résidence de 7 appartements pour habiter ou investir. Vous y trouverez cet appartement 4 pièces de 93 m² comprenant : 3 chambres avec placard, un cellier, 1 salle d'eau, 1 salle de bain, 1 wc individuel et un spacieux séjour / cuisine de 33 m² donnant sur un balcon de 18 m² exposé sud-ouest. Cette résidence propose également un jardin intérieur commun. Eligible au dispositif pinel t1 à partir de 199 000.00 € ttc. Corinne bouffort : 06 08 47 94 30 / cbn9975.

À voir pour le même budget

Appartement 3 pièces 570000 €
570 000 €

Appartement 3 pièces 79 m²

Rennes (35000)

Iad france - mathis besson vous propose : rennes – bourg l'evêque – appartement t3 neuf et livré - prix promoteur iad france – mathis besson vous propose : à moins de 10 minutes à pied de la place des lices, découvrez cet appartement t3 neuf, de 79 m², situé au quatrième étage (sur cinq) de la résidence de standing rivalto. Vous profitez ici d’un cadre de vie idéal, à proximité immédiate de l’hypercentre rennais, au bord de l’ille, avec commerces et commodités accessibles à pied (métro station anatole france, boulangerie, supermarché, fleuriste,. ). L’appartement s’ouvre sur une entrée avec placards, donnant une spacieuse et lumineuse pièce de vie, bénéficiant d’une exposition sud-est. Cet espace convivial accueille un séjour avec cuisine ouverte. L’espace nuit, bien séparé, comprend une suite parentale donnant directement sur une salle d’eau avec wc ainsi qu’un dressing, une chambre avec placard, une salle d’eau et un wc indépendant. À l’extérieur, un balcon de 12 m² exposé sud-est, prolonge la pièce de vie et permet de profiter pleinement des beaux jours avec une vue imprenable sur l’ille. Un parking privatif complète ce bien. Appartement neuf et livré, idéal pour une résidence principale confortable ou un investissement sécurisé dans un marché locatif très dynamique à rennes. Contactez-moi pour en savoir plus la presente annonce immobiliere vise 2 lots situés dans une copropriété de 45 lots au total et ne faisant l'objet d'aucune procédure en cours citée à l'article l. 721-1 du code de la construction et de l'habitation. Montant moyen mensuel de charges déclaré par le vendeur : 136.22€ par mois (soit 1634.64 € annuel). Honoraires d'agence à la charge du vendeur. Information d'affichage énergétique sur ce bien : classe energie b indice 77 et classe climat b indice 10. Les informations sur les risques auxquels ce bien est exposé, y compris l'obligation légale de débroussaillement, sont disponibles sur le site géorisques : la présente annonce immobilière a été rédigée sous la responsabilité éditoriale de m mathis besson mandataire indépendant en immobilier (sans détention de fonds), agent commercial de la sas i@d france immatriculé au rsac de rennes sous le numéro 994816833, titulaire de la carte de démarchage immobilier pour le compte de la société i@d france sas.

Appartement 3 pièces 580000 €
580 000 €

Appartement 3 pièces 90 m²

Rennes (35000)

Iad france - mathis besson vous propose : rennes – bourg l'evêque – appartement t3 neuf et livré - prix promoteur iad france – mathis besson vous propose : à moins de 10 minutes à pied de la place des lices, découvrez cet appartement t3 neuf, de 90 m², situé au troisième étage (sur cinq) de la résidence de standing rivalto. Vous profitez ici d’un cadre de vie idéal, à proximité immédiate de l’hypercentre rennais, au bord de l’ille, avec commerces et commodités accessibles à pied (métro station anatole france, boulangerie, supermarché, fleuriste,. ). L’appartement s’ouvre sur une entrée fermée, desservant d’un côté un cellier et de l’autre un wc indépendant. Elle mène ensuite à une spacieuse et lumineuse pièce de vie, bénéficiant d’une double exposition sud-ouest et sud-est. Cet espace convivial accueille un séjour avec cuisine ouverte. L’espace nuit, bien séparé, comprend deux chambres (dont une suite parentale donnant directement sur une salle de bain avec wc) et une salle d’eau. À l’extérieur, un grand balcon de 15 m² exposé sud-est, avec espace de rangement, prolonge la pièce de vie et permet de profiter pleinement des beaux jours avec une vue imprenable sur l’ille. Un parking privatif complète ce bien. Appartement neuf et livré, idéal pour une résidence principale confortable ou un investissement sécurisé dans un marché locatif très dynamique à rennes. Contactez-moi pour en savoir plus la presente annonce immobiliere vise 2 lots situés dans une copropriété de 45 lots au total et ne faisant l'objet d'aucune procédure en cours citée à l'article l. 721-1 du code de la construction et de l'habitation. Montant moyen mensuel de charges déclaré par le vendeur : 151.21€ par mois (soit 1814.52 € annuel). Honoraires d'agence à la charge du vendeur. Information d'affichage énergétique sur ce bien : classe energie b indice 64 et classe climat b indice 8. Les informations sur les risques auxquels ce bien est exposé, y compris l'obligation légale de débroussaillement, sont disponibles sur le site géorisques : la présente annonce immobilière a été rédigée sous la responsabilité éditoriale de m mathis besson mandataire indépendant en immobilier (sans détention de fonds), agent commercial de la sas i@d france immatriculé au rsac de rennes sous le numéro 994816833, titulaire de la carte de démarchage immobilier pour le compte de la société i@d france sas.

Appartement 3 pièces 570000 €
570 000 €

Appartement 3 pièces 90 m²

Rennes (35000)

Iad france - mathis besson vous propose : rennes – bourg l'evêque – appartement t3 neuf et livré - prix promoteur iad france – mathis besson vous propose : à moins de 10 minutes à pied de la place des lices, découvrez cet appartement t3 neuf, de 90 m², situé au deuxième étage (sur cinq) de la résidence de standing rivalto. Vous profitez ici d’un cadre de vie idéal, à proximité immédiate de l’hypercentre rennais, au bord de l’ille, avec commerces et commodités accessibles à pied (métro station anatole france, boulangerie, supermarché, fleuriste,. ). L’appartement s’ouvre sur une entrée fermée, desservant d’un côté un cellier et de l’autre un wc indépendant. Elle mène ensuite à une spacieuse et lumineuse pièce de vie, bénéficiant d’une double exposition sud-ouest et sud-est. Cet espace convivial accueille un séjour avec cuisine ouverte. L’espace nuit, bien séparé, comprend deux chambres (dont une suite parentale donnant directement sur une salle de bain avec wc) et une salle d’eau. À l’extérieur, un grand balcon d’environ 15 m² exposé sud-est, avec espace de rangement, prolonge la pièce de vie et permet de profiter pleinement des beaux jours avec une vue imprenable sur l’ille. Un parking privatif complète ce bien. Appartement neuf et livré, idéal pour une résidence principale confortable ou un investissement sécurisé dans un marché locatif très dynamique à rennes. Contactez-moi pour en savoir plus la presente annonce immobiliere vise 2 lots situés dans une copropriété de 45 lots au total et ne faisant l'objet d'aucune procédure en cours citée à l'article l. 721-1 du code de la construction et de l'habitation. Montant moyen mensuel de charges déclaré par le vendeur : 147.64€ par mois (soit 1771.68 € annuel). Honoraires d'agence à la charge du vendeur. Information d'affichage énergétique sur ce bien : classe energie b indice 64 et classe climat b indice 8. Les informations sur les risques auxquels ce bien est exposé, y compris l'obligation légale de débroussaillement, sont disponibles sur le site géorisques : la présente annonce immobilière a été rédigée sous la responsabilité éditoriale de m mathis besson mandataire indépendant en immobilier (sans détention de fonds), agent commercial de la sas i@d france immatriculé au rsac de rennes sous le numéro 994816833, titulaire de la carte de démarchage immobilier pour le compte de la société i@d france sas.

Appartement 5 pièces 578000 €
578 000 €
-3 %

Appartement 5 pièces 120 m²

Rennes (35000)

Iad France - Fabien Caradec vous propose : Superbe appartement situé au Centre Historique de Rennes ! Copropriété entièrement rénovée dans le respect du centre ancien, immeuble emblématique donnant sur le parlement de Bretagne à l'entrée de la rue Saint-Georges. Appartement en Triplex composé au 1er niveau : D'une magnifique entrée donnant sur les toits de Saint Germain, on accède ensuite à la cuisine, une chambre, une salle de bain avec WC, le salon-séjour donnant sur le parlement de Bretagne. Également au petit coin bureau très lumineux. Au 2ème niveau : Belle entrée vitrée donnant sur la 'master Bedroom' avec dressing, salle d'eau et WC séparé. Au 3ème niveau : Un petit espace nuit sous les combles, coin lecture. 2 lots d'habitation ont été réunis pour créer cet endroit unique, il possède donc 2 accès indépendants. Au coeur de cet ensemble immobilier, vous avez un accès privé, tel un petit village, sur l'église Saint-Germain, charme incroyable ! En complément vous bénéficiez de 2 caves. À voir absolument, idéal pour habiter, investir, travailler. ? La presente annonce immobiliere vise 4 lots situés dans une copropriété de 81 lots au total et ne faisant l'objet d'aucune procédure en cours citée à l'article L. 721-1 du code de la construction et de l'habitation. Montant moyen mensuel de charges déclaré par le vendeur : 88€ par mois (soit 1056 € annuel). Honoraires d'agence à la charge du vendeur. Information d'affichage énergétique sur ce bien : classe ENERGIE D indice 189 et classe CLIMAT B indice 6. Les informations sur les risques auxquels ce bien est exposé, y compris l'obligation légale de débroussaillement, sont disponibles sur le site Géorisques : La présente annonce immobilière a été rédigée sous la responsabilité éditoriale de M Fabien Caradec mandataire indépendant en immobilier (sans détention de fonds), agent commercial de la SAS I@D France immatriculé au RSAC de rennes sous le numéro 842048266, titulaire de la carte de démarchage immobilier pour le compte de la société I@D France SAS.

Appartement 5 pièces 547000 €
547 000 €

Appartement 5 pièces 106 m²

Rennes (35000)

Nouveauté chez Pol'Immo ! Situé en plein cœur du centre historique de Rennes, dans un remarquable immeuble du XVIII ? siècle, cet appartement de caractère de 106 m² entièrement rénové conjugue avec finesse le charme de l'ancien et le confort contemporain. Dès l'entrée, vous serez immédiatement séduit par ses volumes généreux, sa belle hauteur sous plafond, ses parquets anciens, ses moulures élégantes et ses cheminées d'époque fonctionnelles, véritables signatures de l'esprit haussmannien. Le bien s'organise autour d'un vaste espace de vie lumineux, comprenant un salon raffiné et chaleureux, une cuisine moderne, entièrement aménagée et équipée avec des matériaux haut de gamme. L'ensemble offre un cadre de vie aussi convivial qu'élégant, idéal pour recevoir. L'espace nuit a été pensé pour allier confort et intimité avec une suite parentale et sa salle d'eau privative, deux chambres supplémentaires et une seconde salle d'eau parfaitement agencée. En complément, vous bénéficierez de prestations rares en centre-ville avec une buanderie indépendante, un grenier, deux caves et la jouissance d'un jardin partagé, véritable havre de paix en plein cœur urbain. N'attendez plus pour venir découvrir un bien rare, où le cachet de l'ancien sublimé par une rénovation de qualité crée une atmosphère unique, à la fois chaleureuse et sophistiquée.

Appartement 3 pièces 550000 €
550 000 €

Appartement 3 pièces 78 m²

Rennes (35000)

Iad france - mathis besson vous propose : rennes – bourg l'evêque – appartement t3 neuf et livré - prix promoteur iad france – mathis besson vous propose : à moins de 10 minutes à pied de la place des lices, découvrez cet appartement t3 neuf, de 78 m², situé au deuxième étage (sur cinq) de la résidence de standing rivalto. Vous profitez ici d’un cadre de vie idéal, à proximité immédiate de l’hypercentre rennais, au bord de l’ille, avec commerces et commodités accessibles à pied (métro station anatole france, boulangerie, supermarché, fleuriste,. ). L’appartement s’ouvre sur une entrée indépendante avec placard desservant d’un côté une spacieuse et lumineuse pièce de vie, bénéficiant d’une exposition sud-est. Cet espace convivial accueille un séjour avec cuisine ouverte. De l’autre côté, l’espace nuit, bien séparé, comprend une suite parentale donnant directement sur une salle d’eau avec wc ainsi qu’un dressing, une chambre avec placard, une salle d’eau et un wc indépendant. À l’extérieur, un balcon de 12 m² exposé sud-est, prolonge la pièce de vie et permet de profiter pleinement des beaux jours avec une vue imprenable sur l’ille. Un parking privatif complète ce bien. Appartement neuf et livré, idéal pour une résidence principale confortable ou un investissement sécurisé dans un marché locatif très dynamique à rennes. Contactez-moi pour en savoir plus la presente annonce immobiliere vise 2 lots situés dans une copropriété de 45 lots au total et ne faisant l'objet d'aucune procédure en cours citée à l'article l. 721-1 du code de la construction et de l'habitation. Montant moyen mensuel de charges déclaré par le vendeur : 127.57€ par mois (soit 1530.88 € annuel). Honoraires d'agence à la charge du vendeur. Information d'affichage énergétique sur ce bien : classe energie b indice 70 et classe climat b indice 8. Les informations sur les risques auxquels ce bien est exposé, y compris l'obligation légale de débroussaillement, sont disponibles sur le site géorisques : la présente annonce immobilière a été rédigée sous la responsabilité éditoriale de m mathis besson mandataire indépendant en immobilier (sans détention de fonds), agent commercial de la sas i@d france immatriculé au rsac de rennes sous le numéro 994816833, titulaire de la carte de démarchage immobilier pour le compte de la société i@d france sas.