Logo LSI sombre

Appartement 4 Pièces 86 m² à vendre à Annecy (74000)
Photo N° 2
Photo N° 3
Photo N° 4
Photo N° 5
Photo N° 6
Photo N° 7
Photo N° 8
Photo N° 9
Photo N° 10
10

Vente appartement 4 pièces 86 m² Annecy (74000)

540 700 €
-3 %

Vente Appartement 4 pièces

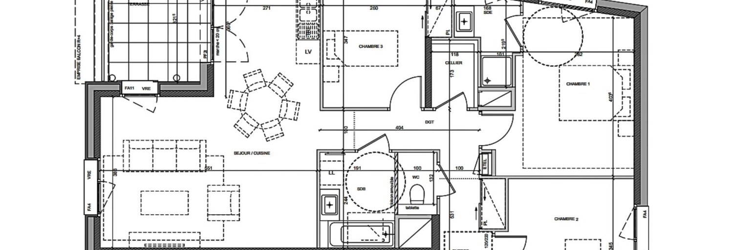
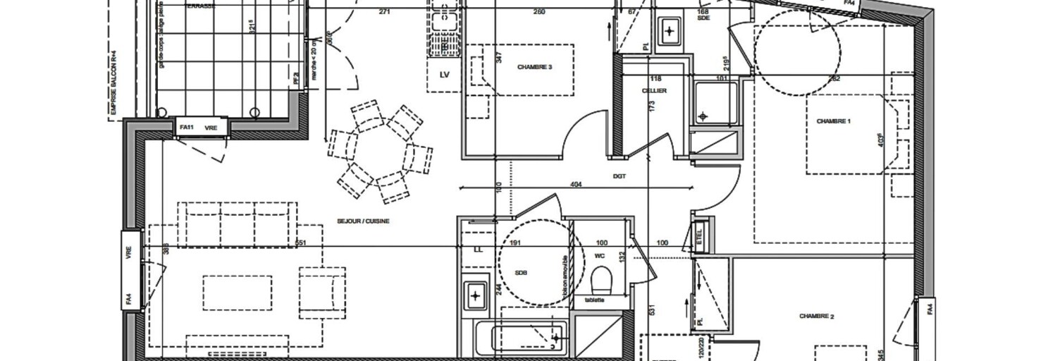
Iad France - Pierre Magerand (06 37 21 92 42) vous propose : Appartement T4 avec terrasse et parking à Annecy. Au cOEur de la résidence contemporaine Passage de Flore, à seulement quelques minutes du centre historique d’Annecy et du lac, découvrez un cadre de vie qui conjugue modernité, confort et sérénité. Nichée avenue de la République, cette adresse bénéficie d’un emplacement stratégique, à proximité immédiate des commerces, écoles, transports et pistes cyclables. Disponible 2027. Un appartement intimiste : Situé au 3 ème étage, cet appartement T4 de 86 m² environ habitables se prolonge par une terrasse de 8 m² environ. - Séjour / cuisine de 31 m² environ. - Trois chambres dont une suite parentale. - Une salle de bains avec meuble-vasque et sèche-serviettes. - Annexes : parking privatif Belles prestation : - Menuiseries bois double vitrage, volets roulants électriques centralisés. - Chauffage collectif par pompe à chaleur. - Résidence sécurisée avec cOEur d’îlot végétalisé. Un emplacement recherché : - Centre d’Annecy et gare à 1,5 km. - Lac d’Annecy en 15 minutes à vélo. - Accès rapide à l’autoroute (4 min) et à l’aéroport de Genève (30 min). - Commerces, écoles et transports au pied de la résidence. N’hésitez pas à me contacter pour plus d’informations ou pour un accompagnement sur mesure. Honoraires d’agence à la charge du vendeur. Bien non soumis au DPE. Les informations sur les risques auxquels ce bien est exposé sont disponibles sur le site Géorisques : . La présente annonce immobilière a été rédigée sous la responsabilité éditoriale de M. Pierre Magerand EI (ID 86098), mandataire indépendant en immobilier (sans détention de fonds), agent commercial de la SAS I@D France immatriculé au RSAC de Cusset sous le numéro 938729175, titulaire de la carte de démarchage immobilier pour le compte de la société I@D France SAS. Retrouvez tous nos biens sur notre site internet. .

Caractéristiques

Les plus de cette annonce
  • Ascenseur
  • Parking
  • Meublé
  • Terrasse
Confort
  • Chauffage Collectif
  • Câble TV
Pièces
  • 4 pièces
  • 3 chambres
  • Salle de bain
Superficies
  • Surface habitable : 86 m²
Sécurité
  • Interphone

Consommation énergétique et gaz à effet de serre

Bilan énergétique (DPE)
NC
Bilan gaz à effet de serre (GES)
NC

Géorisques

Les informations sur les risques auxquels ce bien est exposé sont disponibles sur le site Géorisques : www.georisques.gouv.fr

A propos du prix de cet appartement

  • Prix : 540 700 € (soit 6 287 € / m²) -3 %
  • Honoraires à charge vendeur

Evolution du prix de ce bien

Le prix de ce bien est en baisse de 3 % (-17 000 €) depuis le début de sa diffusion le 18/09/2025.

À propos de cette annonce

Mise en ligne:

Dernière mise à jour:

Référence de l'annonce: 1845935-8
iad france agence immobilière à Lieusaint (77127)
iad france
Afficher le numéro

Appartement similaires à acheter Annecy (74000)

Appartement 4 pièces 614000 €
614 000 €

Appartement 4 pièces 91 m²

Annecy (74000)

Idéalement situé au cœur d’Annecy, ce programme immobilier neuf bénéficie d’un emplacement privilégié, à quelques pas du centre-ville et de toutes ses commodités. Commerces, écoles et transports en commun sont facilement accessibles, tout en profitant de la quiétude d’un quartier résidentiel paisible. Affichant une architecture innovante, cette résidence associe ossature en bois et béton, pour une construction à la fois durable et respectueuse de l’environnement. Conçue selon les normes environnementales les plus exigeantes, elle garantit une excellente isolation thermique et acoustique, tout en minimisant son impact écologique. Ce projet exclusif se compose de 21 appartements neufs, du 2 au 5 pièces, offrant des prestations modernes et haut de gamme. Chaque logement propose des volumes généreux, sublimés par une luminosité naturelle abondante, grâce à de larges baies vitrées ouvrant sur des vues imprenables sur les montagnes environnantes. Côté extérieur, la résidence s’entoure d’espaces verts aménagés, créant un cadre propice à la détente. Chaque appartement dispose également d’un espace extérieur privatif, qu’il s’agisse d’une terrasse ou d’un balcon, pour profiter pleinement du grand air. Pour encore plus de confort, la résidence met à disposition une cave, un garage sécurisé et un local à vélos en rez-de-chaussée, facilitant le quotidien des résidents. Un cadre de vie unique, alliant modernité, nature et praticité, idéal pour habiter ou investir à Annecy. Découvrez également nos 165 autres résidences dans le 74 : Rendez-vous dans notre Agence Médicis Immobilier Neuf, 7 Avenue d'Albigny, Annecy 74000. Les informations sur les risques auxquels ce bien est exposé sont disponibles sur le site Géorisques : .

Appartement 4 pièces 720000 €
720 000 €

Appartement 4 pièces 93 m²

Annecy (74000)

Implanté au coeur d'un quartier en plein renouveau à Annecy, ce programme immobilier neuf bénéficie d'un emplacement privilégié entre lac et montagnes, dans une ville à la fois dynamique, attractive et réputée pour sa qualité de vie. Surnommée la petite Venise des Alpes, Annecy séduit par son tissu économique solide, sa convivialité savoyarde et sa situation stratégique. L'adresse profite d'une proximité immédiate avec les supermarchés, commerces, services de santé et infrastructures du quotidien, offrant un cadre pratique et recherché pour tous les profils d'acquéreurs. La résidence s'intègre harmonieusement dans un environnement résidentiel paisible et propose une architecture contemporaine aux lignes élégantes. Du 2 au 5 pièces, les appartements neufs déclinent une large palette de surfaces adaptées aux styles de vie actuels, que ce soit pour une résidence principale ou un investissement patrimonial. Les intérieurs dévoilent des volumes optimisés, une luminosité généreuse et des espaces de vie ouverts propices aux moments de partage. Les espaces nuit, pensés comme de véritables cocons, invitent à la sérénité. Des prestations soignées viennent parfaire le confort au quotidien, tandis que balcons et terrasses prolongent agréablement les séjours vers l'extérieur, offrant un véritable atout aux beaux jours. Découvrez également nos 165 autres résidences dans le 74 : Rendez-vous dans notre Agence Médicis Immobilier Neuf, 7, avenue d'Albigny, 74000 Annecy. Les informations sur les risques auxquels ce bien est exposé sont disponibles sur le site Géorisques : .

Appartement 4 pièces 519000 €
519 000 €

Appartement 4 pièces 88 m²

Annecy (74000)

Appartement t4 neuf de 88 m² au 2ème étage est - 1 garage – livraison t4 2026 – annecy à annecy, secteur cran-gevrier à 15 minutes à pied du centre-ville et à proximité immédiate des commodités - découvrez ce bel appartement 4 pièces neuf de 87,94 m² au 2ème étage côté est. Frais de notaire réduits – livraison 4ème trimestre 2026 agencement intérieur du t4 : -entrée : 5,59 m² -séjour / cuisine : 40,65 m² – exposition est, grande baie vitrée -dégagement : 3,03 m² -salle de bains : 5,18 m² -wc séparé : 1,84 m² -3 chambres : 11,6 m², 10,07 m², 10,42 m² l'espace de vie s'ouvre sur un balcon de 8,78 m² côté es avec cellier extérieur de 2,69 m². Prestations & confort : chauffage et eau chaude via installation collective (pac + chaudière gaz), menuiseries bois double vitrage, volets roulants électriques, porte d'entrée sécurisée, locaux vélos et poussettes dans la résidence 1 garage sécurisé en sous-sol inclus contactez l'agence wellcome immobilier pour plus d'informations et réserver ce bien. D'autres appartements t4 et t5 sont également disponibles dans la résidence. Frais de notaire reduits livraison : 4ème trimestre 2026 programme au normes re2020. Éligible pinel (zone a), ptz + , lli tva 10 %. Bien soumis au statut juridique de la copropriété. Nb de lots : 105 pas de procédure en cours. Prix ttc et honoraires à charge vendeur ttc surface carrez : 87.94 m².

À voir pour le même budget

Appartement 4 pièces 545000 €
545 000 €

Appartement 4 pièces 91 m²

Annecy (74000)

Michaël PAREIN- CAPIFRANCE vous proposent en exclusivité Appartement T3 – 90,68 m² Carrez – Terrasse – Annexes – Triangle d'Or Annecy Au sein d'un immeuble des années 1920, cet appartement en rez-de-chaussée surélevé offre 90,68 m² Carrez et un charme incomparable. Dès l'entrée, on découvre les parquets massifs, les cheminées en marbre et les volumes généreux qui définissent l'élégance de ce bien. Le séjour profite d'une belle luminosité et communique harmonieusement avec la cuisine, conviviale et fonctionnelle. L'espace nuit se compose de deux chambres, d'un bureau, d'une salle de bains rénovée et de toilettes séparées. Atout rare en hyper-centre : une terrasse privative de 11,68 m² hors Carrez, surélevée et tournée vers une cour pavée arborée, parfaite pour profiter d'un extérieur paisible. Le bien est complété par trois annexes privatives : cave de 16,88 m², cellier de 7,68 m² et réduit extérieur de 1,56 m². Vous indiquez également la jouissance d'une place de parking dans la cour. Emplacement & environnement urbain rénové Situé dans le Triangle d'Or, l'appartement se trouve à quelques minutes à pied du lac et du Pâquier, tout en profitant d'un centre-ville en pleine transformation. La rue de la Paix, désormais piétonne et végétalisée, relie la place François-de-Menthon au site du Haras, actuellement en réhabilitation. Ce projet majeur accueillera d'ici 2026 une halle gourmande, un parc paysager et la Cité internationale du cinéma d'animation, renforçant encore l'attractivité du quartier. Diagnostics Absence d'amiante, plomb non dégradé, gaz sans anomalie, électricité à sécuriser. DPE valide jusqu'en 2035. Un bien de caractère, avec extérieur et annexes, au cœur du quartier le plus recherché d'Annecy. Nombre de lots de la copropriété : 16, Montant moyen annuel de la quote-part de charges (budget prévisionnel) : 2072€ soit 172€ par mois. Les honoraires sont à la charge du vendeur. Logement à consommation énergétique excessive : classe F Les informations sur les risques auxquels ce bien est exposé sont disponibles sur le site Géorisques : www. georisques. gouv. fr. Réseau Immobilier CAPIFRANCE - Votre agent commercial (RSAC N°788 477 248 - Greffe de ANNECY) Michael PAREIN Entrepreneur Individuel 06 52 68 65 52 - Réf. 930561.

Appartement 2 pièces 520000 €
520 000 €
-5 %

Appartement 2 pièces 78 m²

Annecy (74000)

Iad france - jeanne claret vous propose : .

Appartement 4 pièces 550000 €
550 000 €

Appartement 4 pièces 110 m²

Annecy (74000)

Annecy centre – 110 m² (108,87 m² carrez) traversant avec terrasse à 900 m du lac terrasse 7 m² - 3 belles chambres - spacieux salon / salle a manger - 3eme etage - ascenseur - 1 salle de bains + 1 salle d'eau - cave - grand box en sus vivre annecy pleinement, tout à pied ici, vous posez la voiture et vous profitez. La gare est à 200 m, le terminal bus à 150 m, les commerces et écoles au pied de l'immeuble et le lac à seulement 900 m pour vos balades du soir ou de vos week-ends. Un emplacement stratégique, vivant et recherché, parfait pour une vie active, familiale ou un investissement patrimonial solide. Un appartement lumineux, familial et confortable et très bien entretenu. Dès l'entrée, on ressent les volumes. Les 110 m² offrent une circulation fluide et agréable, avec de nombreux rangements intégrés. Le séjour double de 27 m² devient naturellement le cœur de l'appartement : un espace convivial pour recevoir, partager des repas, travailler ou simplement se détendre. La terrasse couverte de 8 m², accessible depuis le séjour et l'une des chambres, prolonge agréablement l'espace de vie. La cuisine indépendante (9 m²), fonctionnelle et équipée, peut facilement être repensée selon vos envies contemporaines. Côté nuit, trois vraies chambres de 13,14 et 15 m², toutes avec placards, permettent à chacun de disposer de son espace. Une salle de bains et une salle d'eau complètent intelligemment l'organisation du quotidien. Traversant sud-est / nord-ouest, l'appartement bénéficie d'une belle luminosité tout au long de la journée. Sol carrelé dans les pièces de vie, parquet dans les chambres. L'ensemble est très bien entretenu — une remise au goût du jour pourra révéler tout son potentiel et en faire un bien d'exception. Une copropriété saine et sécurisée immeuble de 1994, très bien entretenu : ravalements réalisés en 2020 et 2023 parties communes rénovées en 2022 résidence sécurisée (visiophone, vigik) ascenseur confort & équipements double vitrage volets roulants électriques porte blindée 3 points chauffage collectif électrique au sol + convecteurs sèche-serviettes cumulus neuf (2023) fibre récapitulatif clair type : appartement 4 pièces surface : 108 m² étage : 3ᵉ avec ascenseur exposition : traversant se / no extérieur : terrasse couverte 8 m² chambres : 3 (13,14, 15 m²) salle de bains : 1 salle d'eau : 1 dpe : c ges : b annexes : cave en sous-sol incluse grand box fermé en sous-sol en sus. Charges : 800 € / trimestre taxe foncière 2025 : 1 616 € pourquoi ce bien est une opportunité ? Grande surface rare en centre-ville emplacement ultra stratégique copropriété entretenue excellent dpe lac accessible à pied 15min. Un appartement qui offre l'équilibre parfait entre dynamisme urbain et douceur de vivre annécienne. Contactez-moi pour organiser une visite ! Nombre de lots de la copropriété : 63, montant moyen de la quote-part annuelle de charges (budget prévisionnel) : 2500€ soit 208€ par mois. Les honoraires d'agence sont à la charge de l'acquéreur, soit 3,77% ttc du prix hors honoraires. Les informations sur les risques auxquels ce bien est exposé sont disponibles sur le site géorisques : www. Georisques. Gouv. Fr. Contactez julie argoud entrepreneur individuel, agent commercial optimhome (rsac n°752 765 792 greffe de lyon) 07 65 65 63 40 (réf. 601939 ).

Appartement 4 pièces 460000 €
460 000 €

Appartement 4 pièces 81 m²

Annecy (74000)

Iad France - Nadia Sifar vous propose : Duplex au cOEur de la Vieille Ville – Calme sur cour intérieure Au cOEur de la Vieille Ville, découvrez ce charmant appartement en duplex, situé au dernier étage, à l’abri des nuisances grâce à son emplacement sur cour intérieure. Avec 81 m² au sol, ce bien offre une atmosphère chaleureuse et pleine de caractère, idéale pour celles et ceux qui recherchent un lieu de vie atypique et parfaitement situé. L’espace nuit propose 1 chambre à chaque étage, chacune bénéficiant de sa propre salle d’eau, apportant un confort rare et une vraie indépendance pour une vie de famille, un couple ou un usage en résidence secondaire. Il dispose également d’une mezzanine bureau ainsi qu’un grenier. Appartement situé au 3ᵉ étage sans ascenseur. Chauffage par radiateur électrique et poêle à bois. Un bien unique, à l’adresse idéale pour profiter pleinement du centre historique, tout en conservant le calme d’un appartement orienté sur cour. Venez me visiter. La presente annonce immobiliere vise 2 lots situés dans une copropriété de 30 lots au total et ne faisant l'objet d'aucune procédure en cours citée à l'article L. 721-1 du code de la construction et de l'habitation. Montant moyen mensuel de charges déclaré par le vendeur : 100€ par mois (soit 1200 € annuel). Honoraires d'agence à la charge du vendeur. Information d'affichage énergétique sur ce bien : classe ENERGIE E indice 263 et classe CLIMAT B indice 8. Les informations sur les risques auxquels ce bien est exposé, y compris l'obligation légale de débroussaillement, sont disponibles sur le site Géorisques : La présente annonce immobilière a été rédigée sous la responsabilité éditoriale de Mme Nadia Sifar mandataire indépendant en immobilier (sans détention de fonds), agent commercial de la SAS I@D France immatriculé au RSAC de ANNECY sous le numéro 930230024, titulaire de la carte de démarchage immobilier pour le compte de la société I@D France SAS.

Appartement 5 pièces 620000 €
620 000 €
-4 %

Appartement 5 pièces 100 m²

Annecy (74000)

Iad france - isabelle brasset vous propose : exclusivité : annecy secteur courier - appartement de type 4 / 5 de 98 m² - lumineux - terrasse - ascenseur - garage - bel appartement traversant de 4 pièces situé au 4ème étage d'une résidence de standing construite en 2007. Avec une surface de 98 m², cet appartement offre une luminosité exceptionnelle et cadre de vie pratique en plein coeur de la ville, au pied des rues piétonnes et de toutes commodités. Il se compose d'une entrée avec placard, d'un vaste séjour double exposé sud-est à la luminosité exceptionnelle grâce à de larges baies vitrées ouvrant sur une belle terrasse vue montagnes, une cuisine équipée, de 3 chambres dont 1 suite parentale avec placard, salle d'eau et toilette, d'une salle de bain, et d'un second wc séparé. En annexe, une cave inclus et un garage fermé et sécurisé avec électricité est disponible en sus. Résidence sécurisée avec interphone, ascenseur, fibre. Chauffage au sol électrique individuel a 10 min du lac d'annecy et à quelques pas de la vieille ville la presente annonce immobiliere vise 2 lots situés dans une copropriété de 106 lots au total et ne faisant l'objet d'aucune procédure en cours citée à l'article l. 721-1 du code de la construction et de l'habitation. Montant moyen mensuel de charges déclaré par le vendeur : 143.67€ par mois (soit 1724 € annuel). Honoraires d'agence à la charge de l'acquéreur. Prix honoraires inclus : 620000 euros. Prix hors honoraires : 595200 euros. Honoraires ttc à la charge de l'acquéreur (4,17% du prix du bien hors honoraires) : 24800 euros. Information d'affichage énergétique sur ce bien : classe energie c indice 167 et classe climat b indice 6. Les informations sur les risques auxquels ce bien est exposé, y compris l'obligation légale de débroussaillement, sont disponibles sur le site géorisques : la présente annonce immobilière a été rédigée sous la responsabilité éditoriale de mme isabelle brasset mandataire indépendant en immobilier (sans détention de fonds), agent commercial de la sas i@d france immatriculé au rsac de annecy sous le numéro 808479158, titulaire de la carte de démarchage immobilier pour le compte de la société i@d france sas.

Appartement 4 pièces 599000 €
599 000 €

Appartement 4 pièces 100 m²

Annecy (74000)

Iad france - isabelle brasset vous propose : exclusivité : annecy secteur courier - appartement de type 4 / 5 de 98 m² - lumineux - terrasse - ascenseur - garage - bel appartement traversant de 4 pièces situé au 4ème étage d'une résidence de standing construite en 2007. Avec une surface de 98 m², cet appartement offre une luminosité exceptionnelle et cadre de vie pratique en plein coeur de la ville, au pied des rues piétonnes et de toutes commodités. Il se compose d'une entrée avec placard, d'un vaste séjour double exposé sud-est à la luminosité exceptionnelle grâce à de larges baies vitrées ouvrant sur une belle terrasse vue montagnes, une cuisine équipée, de 3 chambres dont 1 suite parentale avec placard, salle d'eau et toilette, d'une salle de bain, et d'un second wc séparé. En annexe, une cave inclus et un garage fermé et sécurisé avec électricité est disponible en sus. Résidence sécurisée avec interphone, ascenseur, fibre. Chauffage au sol électrique individuel a 10 min du lac d'annecy et à quelques pas de la vieille ville la presente annonce immobiliere vise 2 lots situés dans une copropriété de 106 lots au total et ne faisant l'objet d'aucune procédure en cours citée à l'article l. 721-1 du code de la construction et de l'habitation. Montant moyen mensuel de charges déclaré par le vendeur : 143.67€ par mois (soit 1724 € annuel). Honoraires d'agence à la charge du vendeur. Information d'affichage énergétique sur ce bien : classe energie d indice 202 et classe climat b indice 6. Les informations sur les risques auxquels ce bien est exposé, y compris l'obligation légale de débroussaillement, sont disponibles sur le site géorisques : la présente annonce immobilière a été rédigée sous la responsabilité éditoriale de mme isabelle brasset mandataire indépendant en immobilier (sans détention de fonds), agent commercial de la sas i@d france immatriculé au rsac de annecy sous le numéro 808479158, titulaire de la carte de démarchage immobilier pour le compte de la société i@d france sas.