13 résultats
Iad france - laetitia marguiller vous propose : en exclusivité sur la commune de gaillard : appartement t3bis d'environ 77 m², totalement rénové en 2023 et situé à 600m de la frontière suisse. Au 3ème et dernier étage. Il est composé : - une cuisine équipée ouverte - une pièce de vie exposée sud - une chambre de 12,32 m² - une chambre de 13,78 m² - un bureau / dressing de 4,10 m² - une salle d'eau - un wc indépendant côté prestations : - chauffage au fioul - garage en location possible (peut être en vente) - local à vélos - cave de 3 m² - stationnement privatif à la copropriété - raccordé à la fibre - eau froide / chaude, chauffage : compris dans les charges - pas d'ascenseur la presente annonce immobiliere vise 2 lots situés dans une copropriété de 54 lots au total et ne faisant l'objet d'aucune procédure en cours citée à l'article l. 721-1 du code de la construction et de l'habitation. Montant moyen mensuel de charges déclaré par le vendeur : 381.67€ par mois (soit 4580 € annuel). Honoraires d'agence à la charge du vendeur. Information d'affichage énergétique sur ce bien : classe energie f indice 269 et classe climat f indice 76. Les informations sur les risques auxquels ce bien est exposé, y compris l'obligation légale de débroussaillement, sont disponibles sur le site géorisques : la présente annonce immobilière a été rédigée sous la responsabilité éditoriale de mme laetitia marguiller mandataire indépendant en immobilier (sans détention de fonds), agent commercial de la sas i@d france immatriculé au rsac de thonon les bains sous le numéro 752625699, titulaire de la carte de démarchage immobilier pour le compte de la société i@d france sas.
L’office notarial fallara, notaire associé, scp, scp vous propose : appartement à vendre en immo-interactif - adresse du bien : 5 allée des iris 74240 gaillard - gaillard - allée des iris - proche douanes de fossard et moillesulaz appartement de 67 m² en rez-de-jardin exposé au sud avec 100 m² d'exterieur comprenant : - un séjour de 20 m² avec double exposition sur terrasse et jardin privatif ; - deux chambres dont une avec dressing et une sur terrasse ; - cuisine avec balcon ; - une salle de bains et wc séparé ; - sous l'appartement un garage de 15 m² et cave attenante de 7.60 m². Outre parking de copropriété collectif sécurisé. Charges annuelles 1 400 € environ, taxe foncière 924 €; logement vendu loué depuis le 10 juin 2022 renouvelé tacitement, moyennant un loyer hors charges annuel initial de 15 000 €. Errial : / #/4zpv3e8i vente immo-interactif mise en vente via la plateforme immo-interactif : dépôt des offres en ligne pendant 24 h sur le prix indiqué correspond à la première offre possible (prix de départ). Participation soumise à visite du bien, constitution d’un dossier et obtention d’un agrément préalable. Offres visibles et anonymes. Toute offre d’achat reste librement acceptée ou refusée par le vendeur. - contact : 06 08 23 53 46 - conditions de la vente : le bien est présenté en immo-interactif à la hausse : - 1ère offre possible : à partir de 230 000 euros (honoraires de négociation inclus) - offres suivantes : multiples de 3 000 euros. - réception des offres du 30 / 04 / 2026 à 13 : 00 au 01 / 05 / 2026 à 13 : 00 sur le site immo-interactif®. - annonce de l’étude fallara, notaire associé, scp - notaires à annecy - n° siret : 32026786700028 - immo-interactif® : le système d'enchères immobilières sans contrainte, transparent et sécurisé, proposé par votre notaire.
À GAILLARD 74240, à deux pas de l'entrée d'autoroute et de la douane de Vallard, proche bus et commodités, et à 5 min de la douane de Moillesulaz, 15 min du centre de Genève, appartement de type 3 au 1er et dernier étage d'une petite copropriété construite en 2010 comprenant une entrée avec placards, une cuisine ouverte la pièce de vie donnant sur une terrasse couverte, deux chambres, une salle de bains, un WC indépendant. Chauffage électrique au sol. En annexe, un parking couvert, une cave et un parking extérieur. Syndic bénévole, très faibles charges de copropriété. Les informations sur les risques auxquels ce bien est exposé sont disponibles sur le site Géorisques : Retrouvez toutes nos annonces sur notre site : .
Gaillard – Appartement T3 de 67,31 m² – balcon sud – garage – proximité immédiate douane Suisse Situé à Gaillard, à deux pas de la frontière suisse et de la douane, dans un secteur très recherché par les frontaliers, découvrez cet appartement de type T3 de 67,31 m², situé au 1er étage sans ascenseur d'une copropriété sécurisée construite en 2013. Ce bien constitue une opportunité idéale pour un investissement locatif sécurisé avec revenus immédiats ou pour de la résidence principale. L'appartement offre une configuration fonctionnelle et attractive : Une entrée avec accès indépendant Une belle pièce de vie de 28 m² avec salon, séjour et cuisine ouverte Un balcon exposé plein sud, offrant une excellente luminosité et un vrai atout locatif Deux chambres Une salle de douches Un WC séparé Un espace technique avec buanderie Les atouts : Appartement récent (2013) dans copropriété sécurisée Secteur frontalier très recherché Balcon exposé sud Garage aux normes PMR, rare sur le secteur Chauffage individuel au gaz Stores électriques Bon Diagnostic de Performance Énergétique Emplacement stratégique à proximité immédiate de la douane suisse, des transports, des axes principaux et de toutes les commodités, garantissant une forte demande locative et une excellente pérennité de l'investissement. Nombre de lots de la copropriété : 48, Montant moyen annuel de la quote-part de charges (budget prévisionnel)(donc 5,66 de fond alur) : 1430€ soit 119€ par mois. Les honoraires sont à la charge du vendeur. Les informations sur les risques auxquels ce bien est exposé sont disponibles sur le site Géorisques : www. georisques. gouv. fr. Réseau Immobilier CAPIFRANCE - Votre agent commercial (RSAC N°517 579 645 - Greffe de THONON LES BAINS) Delphine PETEY Entrepreneur Individuel 06 62 78 50 82 - Réf. 943216.

Recevez en temps réel les dernières annonces correspondant à votre recherche
Gaillard (74240), à 5 minutes de la Douane de Moillesulaz, proche de toutes les commodités (tram, école, commerces), 20 minutes de Genève, 25 minutes de l'aéroport de Genève, magnifique appartement T3 en attitque d'environ 70 m², dans une résidence sécurisée, il offre une entrée, une cuisine équipée ouverte sur un lumineux salon avec accès sur une grande terrasse d'environ 39 m², une chambre avec placard, une chambre aménagée avec un dressing, une salle de douche, un wc indépendant. Pour compléter ce bien un garage, une cave. Nombreuses places de parking. Les informations sur les risques auxquels ce bien est exposé sont disponibles sur le site Géorisques : Retrouvez toutes nos annonces sur notre site : .
Iad france - nadege bosson vous propose : gaillard magnifique appartement t3 de 72 m² rénové avec balcon idéalement situé (proche tram) à seulement quelques minutes de la frontière suisse et de genève, cet appartement t3 entièrement rénové saura vous séduire par ses prestations de qualité et son emplacement stratégique. Vous serez charmé dès l'entrée par l'espace de vie lumineux comprenant un salon chaleureux, une cuisine séparée équipée et fonctionnelle, deux belles chambres lumineuses, une salle d'eau bien agencée et un wc séparé. Chaque espace a été pensé pour offrir confort et fonctionnalité au quotidien. Profitez des belles journées ensoleillées sur le balcon idéal pour les moments de détente en famille ou entre amis. Cet appartement dispose également d'une cave pour répondre à tous vos besoins en stockage. Un grand parking collectif fermé permettra de stationner vos véhicules en touite sécurité. La résidence dans laquelle se trouve l'appartement est bien entretenue et offre un environnement agréable et sécurisé. Le quartier dynamique de gaillard propose de nombreux commerces, écoles et services à proximité, facilitant le quotidien de ses habitants. N'hésitez plus et venez visiter sans tarder cet appartement rénové avec soin. La presente annonce immobiliere vise 2 lots situés dans une copropriété de 47 lots au total et ne faisant l'objet d'aucune procédure en cours citée à l'article l. 721-1 du code de la construction et de l'habitation. Montant moyen mensuel de charges déclaré par le vendeur : 138.33€ par mois (soit 1660 € annuel). Honoraires d'agence à la charge du vendeur. Information d'affichage énergétique sur ce bien : classe energie e indice 310 et classe climat b indice 10. Les informations sur les risques auxquels ce bien est exposé, y compris l'obligation légale de débroussaillement, sont disponibles sur le site géorisques : la présente annonce immobilière a été rédigée sous la responsabilité éditoriale de mme nadege bosson mandataire indépendant en immobilier (sans détention de fonds), agent commercial de la sas i@d france immatriculé au rsac de annecy sous le numéro 901478800, titulaire de la carte de démarchage immobilier pour le compte de la société i@d france sas.
Iad France - Sophie Cordat vous propose : Gaillard, à deux pas de la mairie et proche de la douane de Moëllesulaz, bel appartement T3 de 80 m² prend place au sein d’une résidence particulièrement recherchée, sécurisée, avec un vaste parc arboré offrant un cadre de vie agréable et verdoyant. Rénové en 2015, l’appartement est en excellent état et bénéficie d’une belle luminosité. Il propose un beau séjour, une cuisine séparée et entièrement équipée, ainsi que deux chambres aux volumes agréables. L’une d’elles dispose d’un dressing et d’un accès à une loggia L’ensemble est complété par une salle de bains avec douche et un WC séparé. Faible charge incluant le chauffage collectif et l’eau froide, un véritable atout. L’emplacement est idéal, à proximité immédiate de l' école, des commerces, des transports et avec un accès rapide à la Suisse, ce qui en fait un bien très recherché sur le secteur. Un garage et une cave viennent compléter ce bien. Un appartement soigné, fonctionnel et parfaitement situé, adapté aussi bien à une résidence principale qu’à un investissement de qualité sur le secteur frontalier. La presente annonce immobiliere vise 3 lots situés dans une copropriété de 244 lots au total et ne faisant l'objet d'aucune procédure en cours citée à l'article L. 721-1 du code de la construction et de l'habitation. Montant moyen mensuel de charges déclaré par le vendeur : 184€ par mois (soit 2208 € annuel). Honoraires d'agence à la charge du vendeur. Information d'affichage énergétique sur ce bien : classe ENERGIE C indice 167 et classe CLIMAT C indice 25. Les informations sur les risques auxquels ce bien est exposé, y compris l'obligation légale de débroussaillement, sont disponibles sur le site Géorisques : La présente annonce immobilière a été rédigée sous la responsabilité éditoriale de Mme Sophie Cordat mandataire indépendant en immobilier (sans détention de fonds), agent commercial de la SAS I@D France immatriculé au RSAC de Thonon-les-Bains sous le numéro 421803289, titulaire de la carte de démarchage immobilier pour le compte de la société I@D France SAS.
Iad France - Elodie Ribiere vous propose : Situé à moins de 5 minutes à pied de la douane de Moillesulaz, ce magnifique appartement T3 de 83 m² offre un cadre de vie paisible et sans vis-à-vis, au sein d'une environnement paysager très agréable. Situé en rez-de-chaussée surélevé dans une petite résidence sécurisée récemment rénovée (façade et parties communes rafraîchies), cet appartement lumineux se compose d'une grande pièce de vie de 40 m², ouverte sur une terrasse ensoleillée de 35 m² exposée plein sud. L'espace nuit dispose de deux chambres, d'une salle de bains et d'un toilette séparé, idéal pour une famille ou un couple souhaitant profiter d'un espace généreux. Une cave complète ce bien, avec la possibilité d'acquérir un grand garage en supplément. Des travaux de rafraîchissement sont à prévoir pour mettre à votre goût ce bel espace. Une opportunité à saisir pour un cadre de vie agréable, proche de toutes commodités. Contactez-moi dès maintenant pour organiser une visite ou toute information complémentaire ! La presente annonce immobiliere vise 2 lots situés dans une copropriété de 106 lots au total et ne faisant l'objet d'aucune procédure en cours citée à l'article L. 721-1 du code de la construction et de l'habitation. Montant moyen mensuel de charges déclaré par le vendeur : 165€ par mois (soit 1980 € annuel). Honoraires d'agence à la charge du vendeur. Information d'affichage énergétique sur ce bien : classe ENERGIE E indice 319 et classe CLIMAT B indice 10. Les informations sur les risques auxquels ce bien est exposé, y compris l'obligation légale de débroussaillement, sont disponibles sur le site Géorisques : La présente annonce immobilière a été rédigée sous la responsabilité éditoriale de Mme Elodie Ribiere mandataire indépendant en immobilier (sans détention de fonds), agent commercial de la SAS I@D France immatriculé au RSAC de THONON LES BAINS sous le numéro 832 266 860, titulaire de la carte de démarchage immobilier pour le compte de la société I@D France SAS.
Idéalement situé dans un quartier recherché et calme de la commune de Gaillard, à deux pas de la Mairie et de toutes les commodités, ce spacieux appartement T3 de 84 m² se trouve au 3ème et dernier étage dune résidence sécurisée. Il se compose dun hall dentrée avec un grand placard, dune cuisine ouverte sur salon / séjour lumineux, de deux chambres, dont une avec dressing et lautre de plus de 14 m², ainsi que dun bureau. Vous trouverez également une salle deau moderne et des WC séparés. Toutes les pièces principales offrent un accès direct au balcon, avec une vue dégagée et sans vis-à-vis. Lappartement dispose de nombreux rangements pour un confort optimal. Une grande cave sécurisée et un parking collectif complètent ce bien.
Sur la commune de gaillard, secteur eglise, spacieux et lumineux t3 traversant de 77.68 m², situé dans une copropriété avec espace vert, proche de toutes commodités. Transports au pied de l'immeuble. L'appartement se compose d'un hall d'entrée, d'une cuisine équipée séparée, d'un grand salon de 27 m², ces 2 pièces pouvant être réunies et former un espace de vie de presque 40 m² avec accès balcon exposé sud ouest, de deux chambres, d'une salle d'eau récente et d'un wc séparé. Une cave au sous-sol de l'immeuble et un parking collectif complètent le bien. Visite virtuelle sur demande.
À coté du tram. Bienvenue dans cet appartement situé dans une maison familiale de 3 étages, offrant un cadre de vie paisible sur la route de Genève. Proche de la douane et de toutes les commodités, cet appartement de 3 pièces comprend 1 salon spacieux, 1 cuisine fermée pouvant être ouverte, 2 grandes chambres dont une avec1 placard encastrée et 1 balcon offrant une vue. 1 salle d'eau complète. À l'extérieur 1 très grande cave au sous-sol, 1 espace de stockage supplémentaire, 1 garage complète ce bien. Bien soumis au statut juridique de la Copropriété. Nb de lots : 8. Charges annuelles de copropriété (Montant moyen annuel quote-part du budget prévisionnel vendeur) : 1 128 €. Pas de procédure en cours. Plus d'informations, consulter notre site Nous contacter : Z. ZAMEO au 06 85 01 11 38 Honoraires TTC charge vendeur.
À coté du tram. Bienvenue dans cet appartement situé dans une maison familiale de 3 étages, offrant un cadre de vie paisible sur la route de Genève. Proche de la douane et de toutes les commodités, cet appartement de 3 pièces comprend 1 salon spacieux, 1 cuisine fermée pouvant être ouverte, 2 grandes chambres dont une avec1 placard encastrée et 1 balcon offrant une vue. 1 salle d'eau complète. À l'extérieur 1 très grande cave au sous-sol, 1 espace de stockage supplémentaire, 1 garage complète ce bien. Bien soumis au statut juridique de la Copropriété. Nb de lots : 8. Charges annuelles de copropriété (Montant moyen annuel quote-part du budget prévisionnel vendeur) : 1 128 €. Pas de procédure en cours. Plus d'informations, consulter notre site Nous contacter : Z. ZAMEO au 06 85 01 11 38 Honoraires TTC charge vendeur.
À proximité immédiate du centre-ville de la commune de Gaillard et au pied du tramway desservant Genève et Annemasse, au 1 er étage appartement T3 neuf de 64 m², hall d'entrée, séjour cuisine avec un accès sur le balcon, 2 chambres, salle de bains, wc séparé, place de parking. Au sommet de la résidence, les toitures végétalisées amènent de la nature en coeur de ville et contribuent à la parfaite intégration des bâtiments dans leur environnement direct. Les généreux appartements de standing du 2 au 4 pièces bénéficient d'une orientation idéale et d'une luminosité naturelle apportant confort et intimité à chaque instant. Les pièces de vie s'ouvrent sur de beaux extérieurs prolongeant les logements et offrant des espaces de détente et de partage. Les prestations ont été rigoureusement sélectionnées pour leur qualité et leur finition afin d'apporter confort et charme au quotidien. Honoraires à la charge du vendeur. Dans une copropriété de 49 lots. Quote-part moyenne du budget prévisionnel 1 € / an. Aucune procédure n'est en cours. DPE vierge. Les informations sur les risques auxquels ce bien est exposé sont disponibles sur le site Géorisques : georisques. gouv. fr.
Autres annonces à proximité de Gaillard (74240) avec vos critères
Iad france - alain ledda-perret (06 31 88 06 26) vous propose : nous vous proposons à l'acquisition cet appartement de type 3 situé dans un quartier calme d'annemasse non loin du centre ville. Il ore un agencement intéressant et tout le confort d'une construction récente, qui seront ses atouts indéniables. La grande pièce de vie et la grande terrasse en angle sauront ravir vos envies d'accueillir du monde, et l'espace nuit doté de deux chambres en feront l'appartement idéal pour un couple avec enfant. En annexe : un garage et un sous sol viennent compléter ce bien la présente annonce immobilière vise 1 lot principal situé dans une copropriété formant 60 lots au total ne faisant l'objet d'aucune procédure en cours déclarée par le vendeur. Honoraires d’agence à la charge du vendeur. Information d'affichage énergétique sur ce bien : classe energie c indice 121 et classe climat c indice 22. Les informations sur les risques auxquels ce bien est exposé sont disponibles sur le site géorisques : . La présente annonce immobilière a été rédigée sous la responsabilité éditoriale de m. Alain ledda-perret ei (id 88817), mandataire indépendant en immobilier (sans détention de fonds), agent commercial de la sas i@d france immatriculé au rsac de thonon les bains sous le numéro 440625911, titulaire de la carte de démarchage immobilier pour le compte de la société i@d france sas. Le présent bien est commercialisé dans le cadre d'une délégation de mandat. Retrouvez tous nos biens sur notre site internet. .
Travaux en cours encore de belle opportunités du 2 au 4 pièces, avec balcon ou terrasse jusqu'à 46 m². À ambilly, dans un quartier pavillonnaire paisible à deux pas de genève, découvrez cette nouvelle résidence contemporaine qui s'intègre avec élégance au sein d'un environnement verdoyant et calme. Elle propose des appartements du 2 au 5 pièces, lumineux et bien agencés, tous prolongés d'un balcon, d'une terrasse ou d'un jardin privatif. Conforme à la re2020, la résidence privilégie les mobilités douces, les espaces végétalisés et le confort thermique. À moins de 5 minutes à pied du tramway vers genève, à proximité immédiate des commerces, écoles, équipements et parcs, le quotidien y est fluide, pratique et agréable. L'autoroute a40 et l'aéroport de genève sont facilement accessibles, tout comme la gare léman express à 1,7 km. Un emplacement stratégique à la frontière suisse, idéal pour habiter ou investir en toute sérénité. * infos sur lnc. Fr.
Aux portes du centre-ville d’Annemasse, ce programme immobilier neuf prend place dans le quartier recherché du Brouaz, un environnement calme à seulement dix minutes à pied des commerces, services et animations. L’emplacement profite de magnifiques vues dégagées sur le Mont Salève et le Mont Blanc, offrant un panorama rare tout en garantissant une connexion optimale vers Genève en vingt minutes grâce au tramway et au Léman Express. Un cadre idéal pour conjuguer confort résidentiel, mobilité et attractivité économique. Les appartements neufs, déclinés du 2 au 5 pièces, présentent des volumes généreux, lumineux et prolongés, pour la plupart, par de vastes espaces extérieurs. Les prestations se distinguent par des revêtements élégants, une belle hauteur sous plafond, des menuiseries performantes et un confort thermique optimisé grâce au chauffage collectif par pompe à chaleur et à une isolation renforcée. Salles de bains équipées, rangements intégrés et finitions soignées complètent des intérieurs raffinés, pensés pour un quotidien serein. L’architecture contemporaine et épurée s’accompagne d’un espace paysager soigneusement aménagé au pied des bâtiments, créant un écrin de verdure propice à la détente. Loggias, balcons et terrasses sont conçus comme de véritables pièces en plein air, parfaits pour savourer des moments de tranquillité face au paysage. Chaque logement bénéficie de solutions de stationnement sécurisées grâce à des garages fermés en sous-sol. Des celliers viennent compléter l’ensemble, apportant un confort de rangement supplémentaire. Une adresse élégante et parfaitement située, pour allier panorama, modernité et qualité de vie. Découvrez également nos 180 autres résidences dans le 74 : Rendez-vous dans notre Agence Médicis Immobilier Neuf, 77 rue Madame de Staël, Saint-Julien-en-Genevois 74160. Les informations sur les risques auxquels ce bien est exposé sont disponibles sur le site Géorisques : .
En exclusivité à Ambilly, idéalement situé à deux pas du tram et de la voie verte, proche douane de Mon Idée, dans une résidence de standing au calme, je vous invite à découvrir cet appartement T3 de 64 m² environ au 3ème étage. Il comprend une spacieuse entrée, une cuisine entièrement équipée ouverte sur un salon / séjour avec terrasse exposée Sud offrant une vue dégagée, 2 chambres dont une avec placard, une salle de bains et un wc séparé. En annexes : une cave et un parking privé extérieur avec accès sécurisé par barrière. Les points forts de cet appartement : -un agencement optimisé pour un confort de vie optimal avec des espaces bien pensés -une belle exposition assurant une luminosité naturelle -un emplacement stratégique parfait pour des primo-accédants ou des investisseurs désireux de profiter de la forte demande locative dans cette zone privilégiée Ce bien attend son nouveau propriétaire pour être personnalisé afin d'en faire un lieu de vie à votre image. Me contacter pour réserver votre visite ! Nombre de lots de la copropriété : 67, Montant moyen annuel de la quote-part de charges (budget prévisionnel)(Incluant charges de copropriété) : 1528€ soit 127€ par mois. Les honoraires sont à la charge du vendeur. Les informations sur les risques auxquels ce bien est exposé sont disponibles sur le site Géorisques : www. georisques. gouv. fr. Réseau Immobilier CAPIFRANCE - Votre agent commercial (RSAC N°451 302 822 - Greffe de THONON LES BAINS) Carole GROS Entrepreneur Individuel 06 13 44 37 45 - Réf. 942048.
Etrembières département haute savoie aux portes de la suisse. Appartement t3 de 61,42 m², hall d'entrée avec placard, cuisine ouverte sur séjour de 25,73 m², avec un accès sur un balcon de 12 m², deux chambres, salle de bains, wc séparé, cave, place de parking. Réglementation thermique 2012 (rt 2012). Proximité immédiate des transports en commun, centre ville, centre commercial. Bus n°8 direction genève, à 5 minutes en voiture autoroute a40. Frais de notaire réduits. Proche : annemasse, ville lagrand, ambilly, lucinges, gaillard, monnetier mornex, vétraz monthoux cranves sales, bonne, saint julien-en-genevois, la douane de veyrier (suisse) est située à 300 mètres. Prestations choix de parquets et carrelages grand format fenêtres équipées de double vitrage isolation acoustique renforcée meuble de salle de bains suspendu sèche-serviette électrique visiophone domotique offre spéciale jusqu'au 14-10-2018 votre cuisine installee et offerte (1) honoraires à la charge du vendeur. Dans une copropriété de 65 lots. Aucune procédure n'est en cours. Non soumis au dpe. Les informations sur les risques auxquels ce bien est exposé sont disponibles sur le site géorisques : georisques. Gouv. Fr.
Etrembières département haute savoie aux portes de la suisse. Au rez de chaussée appartement t3 de 60,81 m², hall d'entrée avec placard, cuisine ouverte sur séjour de 22,51 m², avec un accès sur une terrasse de 22,80 m² et un jardin de 60,30 m², deux chambres, salle de bains, wc séparé, cave, place de parking. Réglementation thermique 2012 (rt 2012). Proximité immédiate des transports en commun, centre ville, centre commercial. Bus n°8 direction genève, à 5 minutes en voiture autoroute a40. Frais de notaire réduits. Proche : annemasse, ville lagrand, ambilly, lucinges, gaillard, monnetier mornex, vétraz monthoux cranves sales, bonne, saint julien-en-genevois, la douane de veyrier (suisse) est située à 300 mètres. Prestations choix de parquets et carrelages grand format fenêtres équipées de double vitrage isolation acoustique renforcée meuble de salle de bains suspendu sèche-serviette électrique visiophone domotique 100% logement certifié basse consommation alarme anti-intrusion. Détecteur de fuites d'eau. Détecteur de gaz. Sonde de qualité de l'air intérieur serrure motorisée. Détecteur d'ouverture de fenêtre (s). Allumage automatique de la lumière des wc. Balisage lumineux. Honoraires à la charge du vendeur. Dans une copropriété de 65 lots. Aucune procédure n'est en cours. Non soumis au dpe. Les informations sur les risques auxquels ce bien est exposé sont disponibles sur le site géorisques : georisques. Gouv. Fr.
Au pied du magnifique Parc Beauquis, son plan d'eau et ses nénuphars, voici un lumineux et spacieux appartement de trois-pièces de 88 mètres carrés, agencé en duplex et offrant des vues panoramiques. Un vaste salon avec cheminée et une cuisine intégrée neuve forment les pièces de vie ouvertes sur deux grandes terrasses joliment orientées offrant des espaces de repos et de réception bien agréables. La partie nuit inclut deux chambres et une salle de bains avec Toilette, en souplex. En parfait complément, une cave et un garage fermé en sous-sol. À proximité immédiate de la douane et de l'accès à Genève, idéalement situé, ce bien est rare à la vente sur ce secteur privilégié. Référence agence : 1631.
Idéalement situé à quelques minutes à pied de toutes les commodités et à seulement dix minutes en voiture de la frontière suisse, tout en offrant un environnement calme et agréable, ce bel appartement 3 pièces se trouve au sein d'une copropriété entretenue et entièrement sécurisée. Lumineux et bien agencé, il se compose d'une entrée desservant, d'un côté, l'espace de vie comprenant un séjour ouvrant sur un balcon avec vue sur les espaces verts, ainsi qu'une grande cuisine indépendante, et de l'autre, l'espace nuit comprenant deux belles chambres, une salle de bains avec fenêtre, un WC séparé et deux espaces de rangement fermés. Les volumes généreux et la luminosité naturelle lui apportent un réel confort de vie. Ses nombreux rangements intérieurs sont complétés par un cellier sur le palier et une cave en sous-sol. La copropriété bénéficie d'un accès entièrement sécurisé par badge, tant pour les piétons que pour les véhicules. Une place de stationnement privative au sein du parking clos est incluse avec le bien. Les travaux récents d'isolation extérieure du bâtiment, associés à un chauffage collectif au gaz de ville, confèrent à l'appartement une excellente performance énergétique. Contactez-moi sans tarder pour organiser une visite ! Nombre de lots de la copropriété : 315, Montant moyen annuel de la quote-part de charges (budget prévisionnel)(y. c. chauffage, eau chaude et eau froide) : 0€ soit 0€ par mois, avec procédure syndic impayé en cours. Les honoraires sont à la charge du vendeur. Les informations sur les risques auxquels ce bien est exposé sont disponibles sur le site Géorisques : www. georisques. gouv. fr. Réseau Immobilier CAPIFRANCE - Votre agent commercial (RSAC N°929 656 247 - Greffe de ANNECY) Anne LANCRENON Entrepreneur Individuel 06 50 08 98 35 - Réf. 934546.
Ce programme immobilier neuf à Annemasse, au cœur de la Haute-Savoie, s’inscrit dans l’un des secteurs les plus prisés du bassin genevois. Dynamique et parfaitement équipée, la commune séduit par sa situation privilégiée, entre vitalité urbaine, proximité des commerces, infrastructures pour toute la famille et accès rapide aux massifs montagneux et stations de sports d’hiver. Un cadre idéal pour conjuguer qualité de vie et nature préservée. Implantée à quelques rues du centre-ville, face au Bois de Collonges, la résidence offre une atmosphère résidentielle sereine et intimiste, composée de seulement 10 logements neufs, du 2 au 4 pièces. Chaque appartement profite d’une conception soignée, d’espaces optimisés et de belles orientations permettant à la lumière naturelle d’illuminer généreusement les pièces de vie. Les prestations haut de gamme renforcent le confort quotidien : salle de bain équipée, vidéophone, porte palière sécurisée 3 points, cave, double vitrage, chauffage individuel au gaz, WC suspendus ou encore volets roulants. Les extérieurs privatifs – terrasses ou balcons – prolongent les intérieurs et créent de véritables espaces de respiration pour partager des moments conviviaux en famille ou entre amis. Une opportunité rare de devenir propriétaire dans un programme immobilier neuf alliant sérénité, confort moderne et cadre privilégié au cœur d’Annemasse. Découvrez également nos 180 autres résidences dans le 74 : Rendez-vous dans notre Agence Médicis Immobilier Neuf, 77 rue Madame de Staël, Saint-Julien-en-Genevois 74160. Les informations sur les risques auxquels ce bien est exposé sont disponibles sur le site Géorisques : .
DERNIERES OPPORTUNITES ! Découvrez la Villa Salève à Annemasse : Idéalement située Rue d’Étrembières, dans le quartier le plus prisé d’Annemasse, la Villa Salève vous ouvre ses portes en avant-première. Nichée entre les rives de l’Arve et les collines du Salève, cette résidence rare conjugue nature, sérénité et art de vivre, à seulement quelques minutes du cœur de ville et de la frontière Suisse. Vous profiterez d’un cadre de vie privilégié, alliant la tranquillité d’un environnement arboré à la proximité immédiate des transports, commerces et services du quotidien : - Au pied de l’arrêt lycée professionnel - 200 mètres des pistes cyclables - 1.5km gare d’Annemasse et Leman express. Avec seulement 18 appartements, la Villa Salève propose une adresse confidentielle et intimiste, au cœur d’un jardin soigneusement paysagé. Chaque logement bénéficie de beaux volumes, de prestations de qualité et d’un design architectural élégant et contemporain. Les façades épurées, subtilement animées par le jeu des balcons terrasse et des matières (béton brut, enduits blancs et beiges), créent une esthétique moderne, rythmée et harmonieuse. Vivez l’exception au quotidien, au pied du Salève et aux portes de Genève. Tous les logements bénéficient de parkings et de celliers. Contactez-nous dès maintenant pour bénéficier du lancement en avant-première et choisir votre futur appartement en priorité. Sur rendez vous du lundi au samedi : 05 62 27 27 16 Les informations sur les risques auxquels ce bien est exposé sont disponibles sur le site Géorisques : .
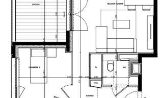
Très bel appartement t3 sur ambilly à saisir. Neuf avec une surface au sol de 80 m², orienté sud-ouest. Comprenant un appartement de 73 m² et une loggia de 13 m². L'appartement se situe au 3ème étage avec un grand séjour-cuisine de 28 m² (cuisine ouverte), 2 chambres, une salle de bain avec le wc séparé et un dressing. De plus vous avez aussi une cave et un parking en intérieur. Sol entrée, cuisine et dégagements : carrelage sol chambres et placards : parquet sols stratifié mur salle de bain : carrelage. 2 prises rj45 dans le séjour et 1 prise par chambre halls sécurisés via digicode et visiophone un local poussette performances énergétiques triple labélisation : - rt 2012 -30% hqe - haute qualité environnementale - label biodivercity appartement connecté flexhom : flexom inclut quatre équipements incontournables de la domotique : la lumière, le chauffage, les volets roulants et le détecteur de fumée connectés. 3 hectares d'espaces verts répartis dans tout le quartier. Des espaces partagés, animés et fédérateurs : - parvis espace rotonde - jardin de la rotonde - place centrale - jardin ferroviaire située à l'est de genève, la commune d'ambilly est limitrophe avec annemasse. Ambilly profite de la proximité avec annemasse et de ses principaux équipements publics. Entre dynamisme économique du bassin genevois, grands espaces alpins, stations de sports d'hiver et paysage serein du lac, le secteur frontalier offre un cadre de vie incomparable. Conçu autour du point d'ancrage de la nouvelle gare d'annemasse, le grand projet redessine le coeur de la ville jusqu'aux abords des communes voisines. Des liaisons vers evian, saint-gervais, annecy, genève, lyon et paris au départ de la gare d'annemasse. Offre speciale jusqu'au 31 mars la garantie bien protégé + les frais de notaire + 2000 € de remise par pièce honoraires à la charge du vendeur. Dans une copropriété de 3 lots. Aucune procédure n'est en cours. Dpe vierge. Les informations sur les risques auxquels ce bien est exposé sont disponibles sur le site géorisques : georisques. Gouv. Fr.
Ambilly au 5 ème étage en plein centre ville, magnifique appartement T3 NEUF de 65 m² exposé sud Est. Très lumineux. Comprenant une entrée avec placard de 6 m², un séjour cuisine de 26 m². Donnant accès sur une loggia de 16 m², 2 chambres, salle de bain avec baignoire WC séparé, garage, cave. Honoraires à la charge du vendeur. Dans une copropriété de 69 lots. Aucune procédure n'est en cours. DPE vierge. Les informations sur les risques auxquels ce bien est exposé sont disponibles sur le site Géorisques : georisques. gouv. fr.