Sur la commune de BONS EN CHABLAIS - 74890 - Au centre, proche toutes commodités, écoles, crèche, gare pour le CEVA - à 30 minutes de Genève, 35 minutes de l'aéroport, dans une résidence sécurisée, un appartement T3 d'envrion 65 m² au 2ème et dernier étage composé d'une entrée, une pièce de vie ouverte, un balcon, deux chambres, une salle de bains et un wc indépendant. Chauffage individuel au gaz. pour compléter ce bien une place de parking en sous-sol et une cave. Les informations sur les risques auxquels ce bien est exposé sont disponibles sur le site Géorisques : .
Les informations sur les risques auxquels ce bien est exposé sont disponibles sur le site Géorisques : www.georisques.gouv.fr
Mise en ligne:
Dernière mise à jour:
Référence de l'annonce: 2488Appartement type 4 de 66,86 m² avec balcon Exposition SUD Installez vous avec votre famille au cœur du village de Vulbens, à 24 km seulement de Genève, dans notre nouvelle résidence profitant de belles vues sur les massifs environnants. Un cadre de vie plaisant avec tout à proximité et à 6 minutes en voiture de la gare de Valleiry. Les avantages Une adresse privilégiée aux portes de la Suisse Une qualité de vie exceptionnelle au cœur d'un environnement rural préservé A proximité du centre-village, une petite copropriété bien intégrée dans le paysage savoyard Ecole et crèche dans un rayon proche, ouverture d'un collège en 2023 Les prestations Appartements du 2 pièces minutieusement agencé au 4 pièces aux volumes spacieux Balcon, terrasse ou jardin privatif pour profiter du panorama sur le Vuache et les Monts du Jura Parking et cave inclus.
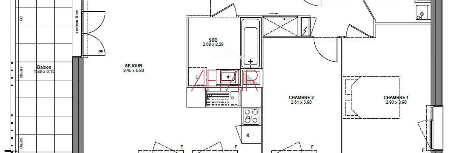
En exclusivité, votre agence immobilière vous présente cet agréable appartement T3 traversant, idéalement situé à quelques minutes à pied des commerces et de la gare de Bons en Chablais, tout en bénéficiant du calme d'une petite résidence. Dès l'entrée, vous accédez à une cuisine équipée prolongée par un balcon, ainsi qu'à une salle à manger ouverte sur un salon lumineux, offrant un bel espace de vie. La partie nuit se compose de deux chambres, d'une salle de bains équipée d'une douche et d'une baignoire, ainsi que de WC séparés. En annexes, vous profiterez d'une grande cave en sous sol pour vos rangements, d'un box de garage pour stationner votre véhicule, et d'un parking extérieur destiné aux visiteurs. Un emplacement privilégié au coeur de la Haute Savoie Située entre lac et montagnes, Bons en Chablais bénéficie d'une position stratégique : - à 59 km d'Annecy, - à 15 km de Thonon les Bains, - à 15,2 km d'Annemasse, - à seulement 30 minutes de l'aéroport international de Genève. La commune est desservie par la ligne 1 du Léman Express, vaste réseau ferroviaire transfrontalier, offrant une mobilité optimale. Un cadre de vie recherché, alliant nature, dynamisme et confort au quotidien.
À seulement 4 minutes de bons-en-chablais, dans une résidence paisible et recherchée, découvrez ce superbe appartement de 61 m² en rez-de-jardin, baigné de lumière grâce à son exposition sud-est. Une spacieuse pièce de vie conviviale deux chambres confortables salle de bain, toilette indépendant et buanderie extérieur privatif sans vis-à-vis, idéal pour vos moments de détente une place de parking privative complète ce bien coup de cœur assuré pour son calme absolu et son cadre résidentiel privilégié, sans aucun bruit, tout en étant proche des commodités et des transports. Un bien rare sur le secteur, à visiter sans tarder ! Nombre de lots de la copropriété : 40, montant moyen annuel de la quote-part de charges (budget prévisionnel)(copro) : 1260€ soit 105€ par mois. Les honoraires sont à la charge du vendeur. Les informations sur les risques auxquels ce bien est exposé sont disponibles sur le site géorisques : www. Georisques. Gouv. Fr. Réseau immobilier capifrance - votre agent commercial (rsac n°889 019 352 - greffe de thonon les bains) bérénice plantier entrepreneur individuel 06 23 49 43 31 - réf. 931975.
Appartement type 4 de 79,29 m² A 20 km de Genève environ, dans la commune rurale de Bons-en-Chablais entre lac et montagne, appartements du studio au 5 P. Prestations de qualité. À deux pas du centre du village et pour les travailleurs frontaliers genevois, à quelques mètres de la future gare du CEVA. Les avantages À proximité d’Annemasse, de Thonon-les-Bains et de Genève Balcon ou terrasse pour tous les appartements Résidence sécurisée avec vidéophone et accès protégé aux parkings Stationnement en sous-sol et en extérieur pour les voitures Les prestations Chauffage et eau chaude sanitaire par chaudière individuelle Volets roulants électriques Isolation thermique haute performance (réglementation RT 2012) Isolation phonique haute qualité.

Journées portes ouvertes du 20 au 22 mars 2026. Offres exceptionnelles : frais de notaire offerts + votre cuisine à 1 euros * . Rendez-vous à l'angle de la rue du marché et de l'avenue louis armand à bons-en-chablais ! Travaux en cours, livraison en 2026, emménagez dans l'année ! Devenez propriétaire au cœur de bons-en-chablais, à 42 min en train de genève ! S'invitant au cœur d'un bel environnement naturel, ce programme immobilier neuf les nouveaux constructeurs s'affirme par une architecture à mi-chemin entre tradition haut-savoyarde et modernité. Il se compose de 3 résidences répartissant entre 11 et 16 logements. Appartements neufs du 2 au 5 pièces, majoritairement bi-orientés, avec balcon, terrasse ou jardin individuel. Programme rt 2012 avec caves et stationnements privatifs. Marché, petits commerces et supermarché dans un rayon de 200 m. Crèche, écoles, collège, équipements culturels et sportifs également à distance piétonne. Forêt communale à 7 min à vélo. Arrêt de bus à 350 m desservi par 3 lignes. Gare ter ceva-léman express à 350 m. Accès à l'a40 à 18,2 km. Rapidité d'accès aux zones d'activités industrielles des bracots et de vongy. * voir conditions sur lnc. Fr les informations sur les risques auxquels ce bien est exposé sont disponibles sur le site géorisques : .
Offres exceptionnelles : remise 5 000e / piece + frais de notaire offerts * travaux en cours - devenez propriétaire coeur de bons-en-chablais, à 42 min en train de genève ! S'invitant au coeur d'un bel environnement naturel, ce programme immobilier neuf les nouveaux constructeurs s'affirme par une architecture à mi-chemin entre tradition haut-savoyarde et modernité. Il se compose de 3 résidences répartissant entre 11 et 16 logements. Appartements neufs du 2 au 5 pièces, majoritairement bi-orientés, avec balcon, terrasse ou jardin individuel. Programme rt 2012 avec caves et stationnements privatifs. Marché, petits commerces et supermarché dans un rayon de 200 m. Crèche, écoles, collège, équipements culturels et sportifs également à distance piétonne. Forêt communale à 7 min à vélo. Arrêt de bus à 350 m desservi par 3 lignes. Gare ter ceva-léman express à 350 m. Accès à l'a40 à 18,2 km. Rapidité d'accès aux zones d'activités industrielles des bracots et de vongy. * voir conditions sur lnc. Fr les informations sur les risques auxquels ce bien est exposé sont disponibles sur le site géorisques : .