Logo LSI sombre

Appartement 2 Pièces 40 m² à vendre à Vaulx-en-Velin (69120)
Photo N° 2
Photo N° 3
Photo N° 4
Photo N° 5
Photo N° 6
Photo N° 7
Photo N° 8
Photo N° 9
Photo N° 10
10

Vente appartement 2 pièces 40 m² Vaulx-en-Velin (69120)

135 000 €

VAULX EN VELIN

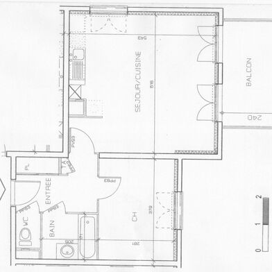
Orpi vous propose en exclusivité, proche des commerces, écoles, un appartement de type 2, vendu loué, d'une surface de 41 m² composé d'un hall d'entrée, une pièce à vivre avec cuisine ouvrant sur une petite terrasse avec une vue dégagée, une chambre, salle de bains et WC. L'appartement est en très bon état et se situe au 4ème étage d'une copropriété très récente (2010) et très bien entretenue Vous pouvez acquérir un grand garage de 15,62 m² au sous sol de la résidence en supplément. À voir rapidement Référence agence : 85.

Caractéristiques

Les plus de cette annonce
  • Ascenseur
  • Garage
  • Terrasse
  • Vue dégagée
Confort
  • Chauffage Collectif
  • Chauffage Gaz
Pièces
  • 2 pièces
  • 1 chambre
  • 1 WC
  • Salle de bain
Superficies
  • Surface habitable : 40 m²
  • Surface carrez : 40 m²
Extérieur
  • Balcon
Etat
  • Etat general : bon

Consommation énergétique et gaz à effet de serre

Bilan énergétique (DPE)
NC
Bilan gaz à effet de serre (GES)
NC

Géorisques

Les informations sur les risques auxquels ce bien est exposé sont disponibles sur le site Géorisques : www.georisques.gouv.fr

A propos du prix de cet appartement

  • Prix : 135 000 € (soit 3 375 € / m²)
  • Honoraires à charge vendeur
  • Taxe foncière : 1 038 €

À propos de cette annonce

Mise en ligne:

Dernière mise à jour:

Référence de l'annonce: 6PGO-NDW-HD7
Immobilière du Parc agence immobilière à Lyon (69)
Immobilière du Parc
Afficher le numéro

Appartement similaires à acheter Vaulx-en-Velin (69120)

Appartement 2 pièces 128000 €
128 000 €

Appartement 2 pièces 40 m²

Vaulx-en-Velin (69120)

Situé à Vaulx-en-Velin village (69120), cet appartement bénéficie d'un emplacement idéal à proximité des transports en commun, tels que les lignes de bus, facilitant les déplacements. La commune offre un cadre de vie agréable avec ses commodités accessibles, ses espaces verts et sa dynamique culturelle, idéal pour les actifs ou les jeunes couples à la recherche d'un premier logement. L'appartement, construit en 2007, propose des équipements pratiques tels qu'un ascenseur, un accès pour les personnes à mobilité réduite, un interphone, un digicode et la fibre optique, assurant confort et sécurité au quotidien. L'exposition est-ouest de l'immeuble permet de bénéficier d'une luminosité optimale dans les pièces, créant une atmosphère chaleureuse et accueillante. À l'intérieur, on découvre un appartement de 40 m² ( 67 m² au sol) composé de 2 pièces, comprenant une entrée, des toilettes, un vaste séjour, une chambre avec salle de bain attenante. La place de parking couverte en sous-sol est un véritable atout dans cette zone résidentielle. Avec une surface habitable de 39,65 m², cet appartement offre un agencement fonctionnel et confortable, parfait pour un investissement locatif ou une première acquisition. Le bien comprend 2 lots, et il est situé dans une copropriété de 262 lots (les charges courantes annuelles moyennes de copropriété sont de 1280 € et le syndicat des copropriétaires ne fait pas l'objet d'une procédure citée à l'article L. 721-1 du code de la construction et de l'habitation). Les informations sur les risques auxquels ce bien est exposé sont disponibles sur le site Géorisques : Prix de vente : 128 000 € Honoraires charge vendeur Contactez votre conseiller SAFTI : Éric BERNET, Tél. : 06 40 05 70 13, E-mail : eric.bernet@safti.fr - EI - Agent commercial immatriculé au RSAC de LYON sous le numéro 848 263 745.

À voir pour le même budget

Appartement 3 pièces 138500 €
138 500 €

Appartement 3 pièces 51 m²

Vaulx-en-Velin (69120)

Nouveaute ! Vaulx - village a proximité du futur tram t9 et de l'entpe, venez découvrir cet appartement t3 dans une copropriété fermée, d'une superficie de 51 m². Une cave et une place de stationnement accompagne ce bien. Proposition d'aménagement virtuel non contractuelle en dernière photo. Honoraires inclus dans le prix : 6.4%.

Appartement 5 pièces 159175 €
159 175 €

Appartement 5 pièces 83 m²

Vaulx-en-Velin (69120)

Centre village, t5 au dernier étage séjour / salon avec blacon, 3 chambres, cuisine. Résidence sécurisée. Honoraires inclus dans le prix : 6.83%. Logement à consommation énergétique excessive : classe f.

Appartement 2 pièces 128000 €
128 000 €

Appartement 2 pièces 40 m²

Vaulx-en-Velin (69120)

Situé à Vaulx-en-Velin village (69120), cet appartement bénéficie d'un emplacement idéal à proximité des transports en commun, tels que les lignes de bus, facilitant les déplacements. La commune offre un cadre de vie agréable avec ses commodités accessibles, ses espaces verts et sa dynamique culturelle, idéal pour les actifs ou les jeunes couples à la recherche d'un premier logement. L'appartement, construit en 2007, propose des équipements pratiques tels qu'un ascenseur, un accès pour les personnes à mobilité réduite, un interphone, un digicode et la fibre optique, assurant confort et sécurité au quotidien. L'exposition est-ouest de l'immeuble permet de bénéficier d'une luminosité optimale dans les pièces, créant une atmosphère chaleureuse et accueillante. À l'intérieur, on découvre un appartement de 40 m² ( 67 m² au sol) composé de 2 pièces, comprenant une entrée, des toilettes, un vaste séjour, une chambre avec salle de bain attenante. La place de parking couverte en sous-sol est un véritable atout dans cette zone résidentielle. Avec une surface habitable de 39,65 m², cet appartement offre un agencement fonctionnel et confortable, parfait pour un investissement locatif ou une première acquisition. Le bien comprend 2 lots, et il est situé dans une copropriété de 262 lots (les charges courantes annuelles moyennes de copropriété sont de 1280 € et le syndicat des copropriétaires ne fait pas l'objet d'une procédure citée à l'article L. 721-1 du code de la construction et de l'habitation). Les informations sur les risques auxquels ce bien est exposé sont disponibles sur le site Géorisques : Prix de vente : 128 000 € Honoraires charge vendeur Contactez votre conseiller SAFTI : Éric BERNET, Tél. : 06 40 05 70 13, E-mail : eric.bernet@safti.fr - EI - Agent commercial immatriculé au RSAC de LYON sous le numéro 848 263 745.

Appartement 3 pièces 140000 €
140 000 €

Appartement 3 pièces 51 m²

Vaulx-en-Velin (69120)

En exclusivité à moins de 10 minutes à pied du centre de Vaulx en Velin Village et de toutes ses commodités (écoles, commerces, services, transports), venez découvrir ce bel appartement T3 de 51,45 m², entièrement rénové à neuf (électricité, salle d'eau, peintures, sols, fenêtres. ). Emplacement idéal : un cadre de vie calme et pratique, à proximité immédiate du coeur de Vaulx-en-Velin Village. L'appartement, situé au 1er étage d'une copropriété fermée et sécurisée, sans ascenseur, se compose de : Une entrée accueillante, Une cuisine semi-ouverte (non équipée) permettant d'aménager un espace moderne et convivial, Un salon lumineux ouvrant sur un balcon exposé plein sud d'environ 6 m², Deux chambres confortables, Une salle d'eau moderne, Et des WC indépendants. En complément : Une cave privative en sous-sol, Stationnement libre au sein de la résidence, Copropriété calme, bien entretenue et sécurisée. Informations pratiques : Charges : 170 EUR / mois (chauffage urbain collectif inclus), DPE : Classe D, Surface : 51,45 m², Idéal pour un premier achat ou un investissement locatif. Les + : rénovation complète, exposition sud, proximité du centre du Village, environnement résidentiel recherché, possibilité de créer un grand T2 si besoin. À visiter sans tarder ! Contactez-nous pour planifier votre visite et découvrir ce bien clé en main à Vaulx-en-Velin Village.

Appartement 1 pièces 128000 €
128 000 €

Appartement 1 pièce 26 m²

Vaulx-en-Velin (69120)

Ce joli T1 de 26 m² en rez-de-jardin est situé dans une résidence récente et sécurisée. L'appartement bénéficie d'une belle exposition plein sud, garantissant une luminosité naturelle tout au long de la journée. Il se compose d'une pièce de vie avec une cuisine ouverte, moderne et fonctionnelle. La salle d'eau est, quant à elle, équipée d'une douche et de WC. L'atout majeur de ce logement est sa terrasse de 4,5 m², exposée plein sud. Proche de toutes commodités, l'appartement bénéficie d'un emplacement pratique à Vaulx-en-Velin, à proximité des transports en commun, des commerces et des établissements scolaires. Ce bien conviendra parfaitement à un étudiant, un jeune actif ou une personne seule à la recherche d'un logement fonctionnel et agréable à vivre.

Appartement 4 pièces 120000 €
120 000 €
-7 %

Appartement 4 pièces 88 m²

Vaulx-en-Velin (69120)

Découvrez cet appartement de type 4 situé à Vaulx-en-Velin, offrant un cadre de vie confortable et pratique. Avec ses 88 m², cet appartement est parfait pour une famille à la recherche d'espace et de fonctionnalité. L'appartement se compose d'un salon lumineux, d'une cuisine séparée, et d'une salle à manger, parfait pour recevoir vos proches. Vous y trouverez également trois chambres spacieuses, une salle de bain et des toilettes séparées pour plus de confort. Pour le côté pratique, un cellier et un dressing sont à votre disposition, offrant de nombreux espaces de rangement. De plus, un garage est inclus, vous garantissant un stationnement sécurisé. Bien classé au niveau énergétique avec une note de C, cet appartement nécessite toutefois un rafraîchissement pour révéler tout son potentiel. Ne manquez pas cette opportunité d'acquérir un bien avec un fort potentiel à Vaulx-en-Velin. Contactez-nous pour organiser une visite ! Les informations sur les risques auxquels ce bien est exposé sont disponibles sur le site Géorisques : .