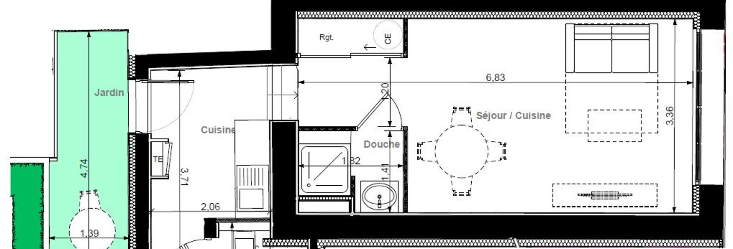
Je vous propose un bien rare sur lyon 69003, en rez-de-jardin, un magnifique studio de 29.66 m² et son jardin. ( livraison immédiate) il se compose d'un séjour / cuisine de 20.06 m² donnant sur le jardin de 6.23 m², une salle d'eau de 2.27 m², et d'un wc indépendant. Cet appartement se situe dans une résidence intimiste entièrement refaite. Située à l'extrémité du quartier très prisé de montchat, la résidence est également reliée aux grands axes et à proximité immédiate des transports en commun : - le tram t6 (à moins de deux minutes à pied) rejoint le métro d en deux arrêts. - le bus c8 (en face de la résidence) rejoint le métro d en cinq minutes. - le bus c26 (à 650 mètres) traverse le quartier montchat puis dessert le campus de la doua et la cité internationale. - le métro d (à 15 minutes à pied) relie l'hypercentre de lyon en quatre arrêts. Les pôles hospitaliers et universitaires aux environs assurent une très forte demande locative. Si vous cherchez un bien moderne et atypique ! Ce bien est pour vous. Pensé pour votre confort, cet appartement offre de vastes espaces, tous orientés pour vous faire bénéficier d'une belle luminosité tout au long de la journée. Dpe : d prix de vente : 219.000 euros mandat 439109 informations, réservations auprès de votre conseiller commercialisateur coll thierry pour ineuf-com au 06 62 37 23 23 ou par courriel à t.coll@proprietes-privees.com agissant sous le statut d'agent en portage salarial auprès de la sas propriétés privées, réseau national immobilier, au capital de 40000 euros, 44 allée des cinq continents - zac le chêne ferré, 44120 vertou, rcs nantes n° 487 624 777 00040, rcs 487 624 777 - le professionnel vous conseille, garantit et sécurise votre projet immobilier. Ce bien est soumis au statut de copropriété. Nombre de lots sur l'ensemble de la copropriété : 6 copropriété de 6 lots - dont 6 lots habitation. Charges annuelles : 600 euros.
Les informations sur les risques auxquels ce bien est exposé sont disponibles sur le site Géorisques : www.georisques.gouv.fr
Mise en ligne:
Dernière mise à jour:
Référence de l'annonce: 2803TC439109TCLJe vous propose un bien rare sur lyon 69003, un magnifique studio de 22.59 m² et sa terrasse de 18.30 m² exposé plein sud. (livraison immédiate) il se compose d'un séjour / cuisine de 19.22 m² donnant sur la terrasse de 183.30 m², une salle d'eau de 3.37 m² avec wc. Cet appartement se situe dans une résidence intimiste entièrement refaite. Située à l'extrémité du quartier très prisé de montchat, la résidence est également reliée aux grands axes et à proximité immédiate des transports en commun : - le tram t6 (à moins de deux minutes à pied) rejoint le métro d en deux arrêts. - le bus c8 (en face de la résidence) rejoint le métro d en cinq minutes. - le bus c26 (à 650 mètres) traverse le quartier montchat puis dessert le campus de la doua et la cité internationale. - le métro d (à 15 minutes à pied) relie l'hypercentre de lyon en quatre arrêts. Les pôles hospitaliers et universitaires aux environs assurent une très forte demande locative. Si vous cherchez un bien moderne et atypique ! Ce bien est pour vous. Pensé pour votre confort, cet appartement offre de vastes espaces, tous orientés pour vous faire bénéficier d'une belle luminosité tout au long de la journée. Dpe non requis. Prix de vente : 210.000 euros mandat 439108 informations, réservations auprès de votre conseiller commercialisateur coll thierry pour ineuf-com au 06 62 37 23 23 ou par courriel à t.coll@proprietes-privees.com agissant sous le statut d'agent en portage salarial auprès de la sas propriétés privées, réseau national immobilier, au capital de 40000 euros, 44 allée des cinq continents - zac le chêne ferré, 44120 vertou, rcs nantes n° 487 624 777 00040, rcs 487 624 777 - le professionnel vous conseille, garantit et sécurise votre projet immobilier. Ce bien est soumis au statut de copropriété. Nombre de lots sur l'ensemble de la copropriété : 6 copropriété de 6 lots - dont 6 lots habitation. Charges annuelles : 600 euros.
S'élevant dans la partie Est animée de la ville, au cœur d'un quartier dynamique, cette résidence offre un cadre privilégié proche de toutes les commodités de votre quotidien (commerces, transports TCL T2 / T/métro D), école. ) ! Nichée au sein d'un environnement verdoyant, votre nouvelle résidence est une petite construction intime de 4 étages abritant seulement 19 appartements neufs, allant du T1 au T5. Derrière les arbres et les parterres floraux se dressent des façades contemporaines épurées. Chaque étage bénéficie d'un espace extérieur donnant sur un jardin clos au premier niveau, ainsi que de balcons ou de pergolas aux dimensions généreuses. Vous pourrez ainsi profiter de retrouvailles conviviales avec vos amis et votre famille ! La résidence propose des prestations de qualité telles qu'une salle de bain équipée, une résidence sécurisée et connectée, un garage simple ou double en sous-sol, et bien d'autres encore. Grâce à leur orientation, les appartements sont baignés d'une douce lumière tout au long de la journée, les pièces à vivre sont spacieuses, et un système domotique vient renforcer votre confort quotidien. Ce projet allie praticité, esthétique et plaisir pour vous offrir l'appartement de vos rêves et concrétiser votre projet d'achat en résidence principale ou d'investissement locatif. Découvrez également nos 184 autres résidences dans le 69 : Rendez-vous dans notre Agence Médicis Immobilier Neuf, 32 avenue Maréchal Foch, Lyon 06 69006. Les informations sur les risques auxquels ce bien est exposé sont disponibles sur le site Géorisques : .
Cette résidence contemporaine offre un design esthétique avec une allure épurée et l'utilisation de matériaux durables, entre l’enduit clair et la façade boisée. Située sur une parcelle végétale, elle propose des appartements neufs du studio au 5 pièces, idéaux pour un investissement locatif ou pour une acquisition de résidence principale avec le Prêt à Taux Zéro. Les appartements répondent à des normes d'excellence, apportées par le cahier des charges de l’immobilier neuf. Leurs espaces intérieurs sont optimisés pour maximiser l’espace, avant de s’ouvrir à la luminosité naturelle grâce à de grandes expositions. Les équipements comprennent des salles de bains aménagées et un système domotique, pratique pour une consommation responsable. Les appartements sont également dotés de jardins au rez-de-chaussée et de balcons ou terrasses aux étages, offrant des espaces supplémentaires à apprécier. Enfin, des garages simples et doubles sont disponibles en sous-sol selon les plans. Découvrez également nos 195 autres résidences dans le 69 : Rendez-vous dans notre Agence Médicis Immobilier Neuf, 32 avenue Maréchal Foch, Lyon 06 69006. Les informations sur les risques auxquels ce bien est exposé sont disponibles sur le site Géorisques : .
Situé au coeur du très recherché 2 ? Arrondissement de lyon, à proximité immédiate de la place bellecour, guy boccard vous propose cet appartement t2 de 36 m² situé dans un bel immeuble bourgeois, alliant cachet et emplacement d'exception. L'appartement offre une surface confortable et bien agencée au sein d'une copropriété à taille humaine de seulement 10 appartements, gage de calme et de bonne gestion. Grâce à son emplacement premium, ce bien représente une belle opportunité rare dans un quartier emblématique de lyon. Pour visiter et vous accompagner dans votre projet, contactez guy boccard, au 06 27 30 41 82 ou, par courriel à g.boccard@proprietes-privees.com. Selon l'article l. 561.5 du code monétaire et financier, pour l'organisation de la visite, la présentation d'une pièce d'identité vous sera demandée. Cette présente annonce a été rédigée sous la responsabilité éditoriale de guy boccard agissant en qualité de conseiller immobilier indépendant sous portage salarial auprès de sas proprietes privees, au capital de 44 920 euros, zac le chêne ferré - 44 allée des cinq continents 44120 vertou; siret 487 624 777 00040, rcs nantes. Carte professionnelle transactions sur immeubles et fonds de commerce (t) et gestion immobilière (g) n°cpi 4401 2016 000 010 388 délivrée par la cci nantes - saint nazaire. Compte séquestre n°309 32 50 84 67 bpa saint-sebastien-sur-loire (44230). Garantie galian-smabtp - 89 rue de la boétie, 75008 paris - n°28137 j pour 2 000 000 euros pour t et 120 000 euros pour g. Assurance responsabilité civile professionnelle par galian-smabtp n° de police 28137. J dpe f ges b - prix 250 000 euros photos non contractuelles montant estimé des dépenses annuelles d'énergie pour un usage standard entre 1020 et 1410 euros indexées aux années 2021,2022 et 2023 (logement à consommation énergétique excessive : classe f) mandat réf : 434319- le professionnel garantit et sécurise votre projet immobilier. Copropriété de 12 lots - dont 10 lots habitation. Charges annuelles : 864 euros. Les informations sur les risques auxquels ce bien est exposé sont disponibles sur le site géorisques : www. Georisques. Gouv. Fr.
Idéalement situé quai saint-gailletton, en arrière-cour au calme, cet appartement de type t2 bénéficie d'un emplacement recherché, à deux pas de place bellecour et de son quartier historique, offrant un cadre de vie urbain privilégié. Situé au troisième étage avec ascenseur, l'appartement s'ouvre sur une entrée desservant une agréable pièce de vie, une cuisine indépendante, une chambre parquetée, ainsi qu'une salle d'eau et des sanitaires séparés. Issu d'un immeuble ancien de caractère, le bien séduit par ses beaux volumes et sa hauteur sous plafond de 2,80 m, apportant charme, cachet et une belle luminosité à l'ensemble des pièces. Appartement vendu avec locataire en place, idéal pour un investissement patrimonial sécurisé. Copropriété de 41 lots, dont 16 lots à usage d'habitation. À 5 minutes à pied de la place bellecour, 10 minutes à pied de la gare de perrache, proximité parking et métro nombre de lots de la copropriété : 28, montant moyen annuel de la quote-part de charges (budget prévisionnel) : 1100€ soit 91€ par mois. Les honoraires sont à la charge du vendeur. Les informations sur les risques auxquels ce bien est exposé sont disponibles sur le site géorisques : www. Georisques. Gouv. Fr. Réseau immobilier capifrance - votre agent commercial (rsac n°840 209 118 - greffe de romans sur isere) françoise gimenez entrepreneur individuel 06 15 17 15 40 - réf. 932433.
À lyon 5e : point du jouren exclusivite, a quelques minutes a pied de la place benedict teissier, dans une residence securisee avec espaces verts et gardien, au 4e etage avec ascenseur, appartement t3 lumineux et fonctionnel refait à neuf en 2017, traversant sud / nord, d'une superficie de 61,15 m² comprenant : une entrée avec coin bureau aménagé et placard buanderie, un séjour / cuisine us équipée plein sud (24 m²) avec baies vitrées ouvrant sur un balcon (8 m²) sans à vis, 2 chambres (13,37 m², 9,09 m²), une salle de bains, un wc séparé. Une cave complète ce bien. Stationnement libre dans la copropriété. À proximite de toutes commodites bus, commerces, ecoles publiques privees notre dame des minimes, groupe scolaire la favorite, environnement priviligie en bordure du parc de la garde et acces direct a la voie verte, jolie vue degagee. Honoraires à la charge du vendeurprocédure en cours : nonnombre de lots : 297charges prévisionnelles annuelles : 2616 euros comprenant chauffage collectif gaz sol, eau froide, gardien, entretien de la résidence. Taxes foncières 2024 : 902 euroscontactez anthony gentilin 06 68 64 54 09.

Lyon 5ème Rue des aqueducs A 5 minutes à pied du centre du Point du jour et des transports. Dans une copropriété de 1969 complètement réhabilitée, disposant dun parc, dun local vélo, de places libres et dun gardien. Venez découvrir cet appartement de type 3 situé au 1er étage dune superficie de composé dune entrée, dun séjour donnant sur un balcon exposé OUEST, dune cuisine séparée, de deux chambres, dune salle de bains et dun WC indépendant. Lappartement nécessitera quelques travaux (fenêtres, peintures) Vous disposerez également dune place de parking extérieure en intérieur de copropriété et dune cave. Charges mensuelles : 265 comprenant leau froide, leau chaude et le chauffage. Nombre de lots : 153.

Lyon 5ème : 80 rue pierre valdo en exclusivité - venez découvrir dans cette belle résidence sécurisée récente, au calme et arborée. Ce coquet t2 de 44,52 m² au 3ème étage avec ascenseur. Il se compose d'un séjour lumineux avec un coin cuisine aménagée donnant accès à une terrasse de 8,24 m², une chambre avec placard, une salle de bains fonctionnelle et des wc séparés. Vous disposerez également d'un garage privatif (box fermé).Résidence de : 2013. Chauffage au gaz collectif. Taxe foncière : 892. Charges annuelles : 1399. Appartement vendu loué : loyer mensuel : 758,44 hc. * proposition d'aménagement 3d, non contractuelle. Pour plus de renseignements, contacter manon lirio.
À vendre appartement t3 lyon 8e 140 rue villonidéalement situé à lyon 8e, à quelques minutes à pied du tram t6, dans un quartier résidentiel proche de toutes commodités (commerces, écoles, transports).Appartement t3 bien agencé de 60,48 m², situé au 1er étage avec ascenseur dun immeuble moderne construit en 2009, comprenant : une entréeun séjour lumineux avec cuisine ouverte de 30 m² donnant accès à un balcon agréabledeux chambres (10,32 m² et 9,93 m²) une salle de bainsun wc séparélocal 2 roues en sous-solplace de parking en sous-sol disponible en sus au prix de 15 000 informations complémentaires : charges mensuelles prévisionnelles : 87,33 taxes foncières 2024 : 936 nombre de lots dans la copropriété : 56aucune procédure en courshonoraires à la charge du vendeurcontactez anthony gentilin au 06 68 64 54 09 pour plus dinformations ou organiser une visite.