Je vous propose un bien rare sur lyon 69003, en rez-de-jardin, un magnifique studio de 29.66 m² et son jardin. ( livraison immédiate) il se compose d'un séjour / cuisine de 20.06 m² donnant sur le jardin de 6.23 m², une salle d'eau de 2.27 m², et d'un wc indépendant. Cet appartement se situe dans une résidence intimiste entièrement refaite. Située à l'extrémité du quartier très prisé de montchat, la résidence est également reliée aux grands axes et à proximité immédiate des transports en commun : - le tram t6 (à moins de deux minutes à pied) rejoint le métro d en deux arrêts. - le bus c8 (en face de la résidence) rejoint le métro d en cinq minutes. - le bus c26 (à 650 mètres) traverse le quartier montchat puis dessert le campus de la doua et la cité internationale. - le métro d (à 15 minutes à pied) relie l'hypercentre de lyon en quatre arrêts. Les pôles hospitaliers et universitaires aux environs assurent une très forte demande locative. Si vous cherchez un bien moderne et atypique ! Ce bien est pour vous. Pensé pour votre confort, cet appartement offre de vastes espaces, tous orientés pour vous faire bénéficier d'une belle luminosité tout au long de la journée. Dpe : d prix de vente : 219.000 euros mandat 439109 informations, réservations auprès de votre conseiller commercialisateur coll thierry pour ineuf-com au 06 62 37 23 23 ou par courriel à t.coll@proprietes-privees.com agissant sous le statut d'agent en portage salarial auprès de la sas propriétés privées, réseau national immobilier, au capital de 40000 euros, 44 allée des cinq continents - zac le chêne ferré, 44120 vertou, rcs nantes n° 487 624 777 00040, rcs 487 624 777 - le professionnel vous conseille, garantit et sécurise votre projet immobilier. Ce bien est soumis au statut de copropriété. Nombre de lots sur l'ensemble de la copropriété : 6 copropriété de 6 lots - dont 6 lots habitation. (). Charges annuelles : 600 euros.
Les informations sur les risques auxquels ce bien est exposé sont disponibles sur le site Géorisques : www.georisques.gouv.fr
Mise en ligne:
Dernière mise à jour:
Référence de l'annonce: 2702TC439109TCLJe vous propose un bien rare sur lyon 69003, un magnifique studio de 22.59 m² et sa terrasse de 18.30 m² exposé plein sud. (livraison immédiate) il se compose d'un séjour / cuisine de 19.22 m² donnant sur la terrasse de 183.30 m², une salle d'eau de 3.37 m² avec wc. Cet appartement se situe dans une résidence intimiste entièrement refaite. Située à l'extrémité du quartier très prisé de montchat, la résidence est également reliée aux grands axes et à proximité immédiate des transports en commun : - le tram t6 (à moins de deux minutes à pied) rejoint le métro d en deux arrêts. - le bus c8 (en face de la résidence) rejoint le métro d en cinq minutes. - le bus c26 (à 650 mètres) traverse le quartier montchat puis dessert le campus de la doua et la cité internationale. - le métro d (à 15 minutes à pied) relie l'hypercentre de lyon en quatre arrêts. Les pôles hospitaliers et universitaires aux environs assurent une très forte demande locative. Si vous cherchez un bien moderne et atypique ! Ce bien est pour vous. Pensé pour votre confort, cet appartement offre de vastes espaces, tous orientés pour vous faire bénéficier d'une belle luminosité tout au long de la journée. Dpe non requis. Prix de vente : 210.000 euros mandat 439108 informations, réservations auprès de votre conseiller commercialisateur coll thierry pour ineuf-com au 06 62 37 23 23 ou par courriel à t.coll@proprietes-privees.com agissant sous le statut d'agent en portage salarial auprès de la sas propriétés privées, réseau national immobilier, au capital de 40000 euros, 44 allée des cinq continents - zac le chêne ferré, 44120 vertou, rcs nantes n° 487 624 777 00040, rcs 487 624 777 - le professionnel vous conseille, garantit et sécurise votre projet immobilier. Ce bien est soumis au statut de copropriété. Nombre de lots sur l'ensemble de la copropriété : 6 copropriété de 6 lots - dont 6 lots habitation. (). Charges annuelles : 600 euros.
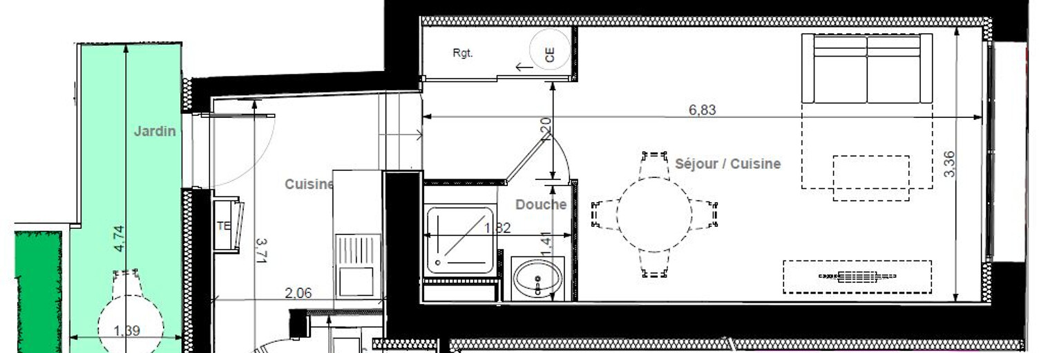
Programme immobilier entièrement réhabilité, idéal pour un investissement locatif sécurisé en LMNP non géré, ce projet propose une sélection de d'appartement réhabilités neufs, studios et de 2 pièces, dans le 3eme arrondissement de Lyon, au cœur des quartiers prisés de Montchat et des Hôpitaux. Niché dans un environnement résidentiel verdoyant, ce programme séduit par sa situation stratégique à proximité piétonne des des lignes de tramway T2 et T6, qui mènent en moins de 10 minutes à Grange Blanche (Metro D) et à la Faculté de Médecine, garantissant une excellente connexion aux campus et au centre-ville. Pensé pour le confort des futurs résidents, chaque appartement réhabilité neuf bénéficie d’une architecture élégante, inspirée des maisons de ville, avec de généreuses surfaces optimisées, de vastes ouvertures vitrées et un espace extérieur privatif (jardin (9 m² avec vue intérieure et une exposition Est) ou grande et belle terrasse). Les prestations haut de gamme — pompe à chaleur réversible, isolation renforcée par l’extérieur, finitions soignées — assurent un cadre de vie moderne, économe en énergie et particulièrement lumineux. Porté par une forte demande locative étudiante et un cadre de vie qualitatif, ce programme immobilier neuf représente une opportunité d’investissement rentable et durable, avec un fort potentiel de valorisation dans l’un des secteurs les plus dynamiques de Lyon. Frais de notaire ancien, voir conditions auprès de nos conseillers * Découvrez également nos 195 autres résidences dans le 69 : Rendez-vous dans notre Agence Médicis Immobilier Neuf, 32 avenue Maréchal Foch, Lyon 06 69006. Les informations sur les risques auxquels ce bien est exposé sont disponibles sur le site Géorisques : .
Idéalement situé quai saint-gailletton, en arrière-cour au calme, cet appartement de type t2 bénéficie d'un emplacement recherché, à deux pas de place bellecour et de son quartier historique, offrant un cadre de vie urbain privilégié. Situé au troisième étage avec ascenseur, l'appartement s'ouvre sur une entrée desservant une agréable pièce de vie, une cuisine indépendante, une chambre parquetée, ainsi qu'une salle d'eau et des sanitaires séparés. Issu d'un immeuble ancien de caractère, le bien séduit par ses beaux volumes et sa hauteur sous plafond de 2,80 m, apportant charme, cachet et une belle luminosité à l'ensemble des pièces. Appartement vendu avec locataire en place, idéal pour un investissement patrimonial sécurisé. Copropriété de 41 lots, dont 16 lots à usage d'habitation. À 5 minutes à pied de la place bellecour, 10 minutes à pied de la gare de perrache, proximité parking et métro nombre de lots de la copropriété : 28, montant moyen annuel de la quote-part de charges (budget prévisionnel) : 1100€ soit 91€ par mois. Les honoraires sont à la charge du vendeur. Les informations sur les risques auxquels ce bien est exposé sont disponibles sur le site géorisques : www. Georisques. Gouv. Fr. Réseau immobilier capifrance - votre agent commercial (rsac n°840 209 118 - greffe de romans sur isere) françoise gimenez entrepreneur individuel 06 15 17 15 40 - réf. 932433.
À lyon 5e : point du jouren exclusivite, a quelques minutes a pied de la place benedict teissier, dans une residence securisee avec espaces verts et gardien, au 4e etage avec ascenseur, appartement t3 lumineux et fonctionnel refait à neuf en 2017, traversant sud / nord, d'une superficie de 61,15 m² comprenant : une entrée avec coin bureau aménagé et placard buanderie, un séjour / cuisine us équipée plein sud (24 m²) avec baies vitrées ouvrant sur un balcon (8 m²) sans à vis, 2 chambres (13,37 m², 9,09 m²), une salle de bains, un wc séparé. Une cave complète ce bien. Stationnement libre dans la copropriété. À proximite de toutes commodites bus, commerces, ecoles publiques privees notre dame des minimes, groupe scolaire la favorite, environnement priviligie en bordure du parc de la garde et acces direct a la voie verte, jolie vue degagee. Honoraires à la charge du vendeurprocédure en cours : nonnombre de lots : 297charges prévisionnelles annuelles : 2616 euros comprenant chauffage collectif gaz sol, eau froide, gardien, entretien de la résidence. Taxes foncières 2024 : 902 euroscontactez anthony gentilin 06 68 64 54 09.

Lyon 5ème Rue des aqueducs A 5 minutes à pied du centre du Point du jour et des transports. Dans une copropriété de 1969 complètement réhabilitée, disposant dun parc, dun local vélo, de places libres et dun gardien. Venez découvrir cet appartement de type 3 situé au 1er étage dune superficie de composé dune entrée, dun séjour donnant sur un balcon exposé OUEST, dune cuisine séparée, de deux chambres, dune salle de bains et dun WC indépendant. Lappartement nécessitera quelques travaux (fenêtres, peintures) Vous disposerez également dune place de parking extérieure en intérieur de copropriété et dune cave. Charges mensuelles : 265 comprenant leau froide, leau chaude et le chauffage. Nombre de lots : 153.

Lyon 5ème : 80 rue pierre valdo en exclusivité - venez découvrir dans cette belle résidence sécurisée récente, au calme et arborée. Ce coquet t2 de 44,52 m² au 3ème étage avec ascenseur. Il se compose d'un séjour lumineux avec un coin cuisine aménagée donnant accès à une terrasse de 8,24 m², une chambre avec placard, une salle de bains fonctionnelle et des wc séparés. Vous disposerez également d'un garage privatif (box fermé).Résidence de : 2013. Chauffage au gaz collectif. Taxe foncière : 892. Charges annuelles : 1399. Appartement vendu loué : loyer mensuel : 758,44 hc. * proposition d'aménagement 3d, non contractuelle. Pour plus de renseignements, contacter manon lirio.
163 ter rue joliot curie 69005 Lyon. Au sein d'une résidence sécurisée, nous vous présentons cet appartement de type 3 situé au 2ième étage avec ascenseur. Cet appartement lumineux orienté EST / OUEST est composé d'un hall d'entrée, d'un séjour donnant accès à un balcon orienté Ouest, d'une cuisine indépendante avec cellier, deux chambres, d'un dressing, d'une salle de bains et d'un WC. Une cave complète le bien. Possibilité d'acquérir une place de parking pour 11.000 euros. Vous apprécierez d'être à proximité immédiate des l'ensemble des commodités tels que les commerces, transports, écoles. Taxe foncière : 1.000 eurosCharge mensuelle : 200 euros tout compris (eau froide et chaude, chauffage, ascenseur, gardien, entretien des parties communes, fond travaux loi alur. Les honoraires d'agences sont à la charge acquéreur (inclus dans le prix affiché) en raison d'une succession soit 5% du prix de ventePour plus de renseignement contacter DROULEZ REMI.
À vendre appartement t3 lyon 8e 140 rue villonidéalement situé à lyon 8e, à quelques minutes à pied du tram t6, dans un quartier résidentiel proche de toutes commodités (commerces, écoles, transports).Appartement t3 bien agencé de 60,48 m², situé au 1er étage avec ascenseur dun immeuble moderne construit en 2009, comprenant : une entréeun séjour lumineux avec cuisine ouverte de 30 m² donnant accès à un balcon agréabledeux chambres (10,32 m² et 9,93 m²) une salle de bainsun wc séparélocal 2 roues en sous-solplace de parking en sous-sol disponible en sus au prix de 15 000 informations complémentaires : charges mensuelles prévisionnelles : 87,33 taxes foncières 2024 : 936 nombre de lots dans la copropriété : 56aucune procédure en courshonoraires à la charge du vendeurcontactez anthony gentilin au 06 68 64 54 09 pour plus dinformations ou organiser une visite.