Logo LSI sombre

Retour
Appartement 2 Pièces 44 m² à louer à Narbonne (11100)

Photo N° 2

Photo N° 3

Photo N° 4

Photo N° 5

Photo N° 6

Photo N° 7
7

Location appartement 2 pièces 44 m² à Narbonne (11100)

530 € CC /mois

Location Appartement 2 pièces

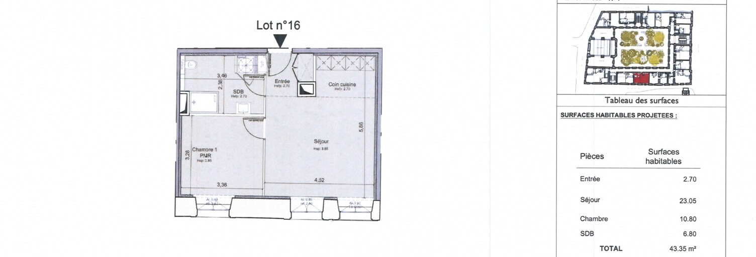
Iad France - Stéphane Ranc vous propose : Situé en plein cOEur de Narbonne, cet appartement rénové de type T2 est idéalement positionné pour offrir un cadre de vie confortable et pratique. D'une surface de 44 m², cet appartement bénéficie d'une rénovation récente qui lui confère un charme certain dans une bâtisse historique (Ancienne Charité). L'espace de vie se compose d'une chambre lumineuse, d'une salle d'eau avec douche et d'un espace cuisine non équipée, idéal pour laisser libre cours à vos envies culinaires. Un WC séparé et un espace buanderie complètent les commodités de cet appartement. Situé au premier étage d'un immeuble de trois niveaux avec ascenseur, vous pourrez profiter d'un accès facile à tous les étages. La présence de la fibre optique assure une connexion internet rapide et fluide pour vos besoins quotidiens. La résidence, sécurisée et dotée d'une ventilation mécanique, offre un environnement paisible et sécurisé pour ses habitants. Vous pourrez profiter de votre intimité dans cette résidence, tout en étant proche des commodités et des transports en commun. Bien que ne disposant pas de garage ni de parking, la localisation centrale de cet appartement permet un stationnement facile à proximité. Pas de travaux à prévoir, vous pourrez emménager rapidement et profiter pleinement de votre nouvel chez-vous. Ne ratez pas cette occasion de vivre au cOEur de la charmante ville de Narbonne. Contactez-nous dès maintenant pour organiser une visite et découvrir ce petit bijou immobilier. Information d'affichage énergétique sur ce bien : classe ENERGIE C indice 154 et classe CLIMAT A indice 4. Les informations sur les risques auxquels ce bien est exposé, y compris l'obligation légale de débroussaillement, sont disponibles sur le site Géorisques : La présente annonce immobilière a été rédigée sous la responsabilité éditoriale de M Stéphane Ranc mandataire indépendant en immobilier (sans détention de fonds), agent commercial de la SAS I@D France immatriculé au RSAC de MONTPELLIER sous le numéro 930433578, titulaire de la carte de démarchage immobilier pour le compte de la société I@D France SAS. Location non meublée. Montant du loyer mensuel charges comprises : 530.00 euros / mois. Provision mensuelle avec récupération annuelle : 45.00 euros / mois. Zone soumise à encadrement : non. Dépôt de garantie : 485 euros. Honoraires TTC à la charge du locataire : 316 euros (soit 7€ / m²).

Caractéristiques

Les plus de cette annonce
  • Ascenseur
  • Garage
  • Parking
  • Meublé
Confort
  • Chauffage Individuel
  • Chauffage Electrique
Pièces
  • 2 pièces
  • 1 chambre
  • Salle d'eau
Superficies
  • Surface habitable : 44 m²

Consommation énergétique et gaz à effet de serre

Bilan énergétique (DPE)
Bilan gaz à effet de serre (GES)

Géorisques

Les informations sur les risques auxquels ce bien est exposé sont disponibles sur le site Géorisques : www.georisques.gouv.fr

A propos du prix de cet appartement

  • Loyer : 530 € CC /mois
  • Honoraires Locataires : 316 €

À propos de cette annonce

Mise en ligne:

Dernière mise à jour:

Référence de l'annonce: 1902178

iad france agence immobilière à Lieusaint (77127)
iad france
Afficher le numéro

Appartement similaires à louer Narbonne (11100)

Appartement 2 pièces 530 €
530 €

À voir pour le même budget

Appartement 2 pièces 475 €
475 €
Appartement 3 pièces 600 €
600 €
-4 %
Appartement 2 pièces 590 €
590 €
-13 %
Appartement 1 pièces 465 €
465 €
-4 %
Appartement 1 pièces 620 €
620 €
Appartement 2 pièces 600 €
600 €