2 résultats
Fütterer Property vous présente à ST PIERRE LA MER : Studio cabine meublé en location longue durée. Situé sur les Hauteurs de St-Pierre-La-Mer, au 1er étage d'une résidence avec piscine collective et terrain de tennis, ce studio cabine, se compose comme suit : un espace salon / kitchenette équipé d'un canapé banquette, la loggia dispose de 2 fauteuils. Une petite chambre séparée est équipée d'un lit double (140x190), commode et ventilateur, et enfin la salle d'eau. Résidence sécurisée et emplacement de parking privatif. Loyer : 380€ / mois + 40€ de provisions pour charges. Dépôt de garantie : 760€ Frais d'agence : 264€ La location est soumise à l'assurance garantie loyer impayé (revenus supérieur à 3x le montant du loyer CC Honoraires de 264 € TTC à la charge du locataire comprenant 72 € TTC pour l'état des lieux. Loyer de base 380 € / mois. Provision sur charges 40 € / mois, régularisation annuelle. Dépôt de garantie 760 €. Classe énergie C, Classe climat A Montant estimé des dépenses annuelles d'énergie pour un usage standard : entre 479.00 € et 647.00 € sur les années 2021,2022 et 2023 (abonnements compris). Les informations sur les risques auxquels ce bien est exposé sont disponibles sur le site Géorisques : georisques. gouv. fr. Retrouvez l'ensemble de nos biens : / .
Appartement F2 de particulier à louer sur Fleury. Disponibilité immédiate pour cette location meublée de 36 mètres carré proposée à 739 euros par mois. Avantages du logement : - Cuisine équipée - Balcon - Transport - Dernier étage - Proche commerce Ce propriétaire utilise LocService pour sélectionner ses futurs locataires. Pour proposer directement votre candidature pour ce logement ET toutes les locations conformes à votre recherche, il suffit de vous inscrire sur LocService. Les propriétaires vous contactent directement et les locations sont certifiées sans frais d'agence. Comment ça marche ? 1/ Vous décrivez votre location idéale sur LocService 2 / Votre candidature est transmise aux propriétaires concernés 3 / Les propriétaires vous contactent directement. Vous réglez une seule fois 34 euros (29 euros pour les étudiants) pour toute la durée de votre recherche. Sans abonnement - Sans prélèvement - Sans commission. Depuis sa création en 2005, LocService a accompagné plus de 2,8 millions de particuliers. Pourquoi pas vous ?
Autres annonces à proximité de Fleury (11560) avec vos critères
À louer, Situé en plein coeur de Lespignan, cet agréable appartement T2 en rez-de-chaussée offre un cadre de vie pratique et confortable, à proximité immédiate des commerces et des commodités. Garantie visale exigée. Disponible de suite - Il comprend une pièce à vivre avec une cuisine équipée - une chambre et salle d'eau avec toilettes - parquet au sol dans tout l'appartement - Loyer 470euros et 70 euros de provisions sur charge - Pour tous Renseignements contactez Renaud Chmura au 06 58 31 32 55.
À louer appartement T2 en meublé de 46 m² à Coursan entre particuliers. Appartement disponible à la location pour un loyer de 520 euros par mois. Avantages du logement : - Cuisine équipée - Proche commerce Ce propriétaire utilise LocService pour sélectionner ses futurs locataires. Pour proposer directement votre candidature pour ce logement ET toutes les locations conformes à votre recherche, il suffit de vous inscrire sur LocService. Les propriétaires vous contactent directement et les locations sont certifiées sans frais d'agence. Comment ça marche ? 1/ Vous décrivez votre location idéale sur LocService 2 / Votre candidature est transmise aux propriétaires concernés 3 / Les propriétaires vous contactent directement. Vous réglez une seule fois 34 euros (29 euros pour les étudiants) pour toute la durée de votre recherche. Sans abonnement - Sans prélèvement - Sans commission. Depuis sa création en 2005, LocService a accompagné plus de 2,8 millions de particuliers. Pourquoi pas vous ?

Recevez en temps réel les dernières annonces correspondant à votre recherche
À Valras-Plage, vous trouverez cet appartement avec une jolie vue sur la mer. L'espace intérieur de 25.94 m² se constitue d'un séjour avec une loggia, d'une chambre, un espace cuisine et une salle d'eau, wc séparé. Il s'agit d'un appartement au 1er étage; ascenseur dans la copropriété. Vous disposez également d'une place de parking privative. Le loyer s'élève à 500 EUR mensuels. Dépôt de garantie : 470 EUR. Si vous voulez en savoir plus, l'agence Albouy se tient à votre disposition.
Location annuelle meublée : Appartement moderne et équipé à Valras-Plage Location annuelle meublée : Découvrez ce charmant appartement de 41,47 m² situé à Valras-Plage, dans le quartier du Carreyrou, composé d'u séjour / cuisine, d'une salle d'eau / WC, et à l'étage, une chambre en mezzanine. L'intérieur est loué meublé, garantissant un accueil chaleureux dès le premier jour. La cuisine est équipée de tous les appareils nécessaires, notamment une cafetière, un congélateur, un four, un micro-ondes, un lave-vaisselle, une plaque de cuisson, et un réfrigérateur. Vous y trouverez également toute la vaisselle nécessaire pour vos repas en famille ou entre amis. Pour vos moments de détente, profitez d'une télévision à écran plat. Un lave-linge est également présent pour votre convenance. Cet appartement est le parfait mélange de confort et de fonctionnalité.
Location à Valras Plage d'un appartement de particulier disponible le 15 / 01 / 26. Ce meublé possède 1 chambre et est à louer 660 euros par mois. Avantages du logement : - Grand séjour - Cuisine équipée - Balcon - Salles de bain multiples - Dernier étage - Sans vis-à-vis Ce propriétaire utilise LocService pour sélectionner ses futurs locataires. Pour proposer directement votre candidature pour ce logement ET toutes les locations conformes à votre recherche, il suffit de vous inscrire sur LocService. Les propriétaires vous contactent directement et les locations sont certifiées sans frais d'agence. Comment ça marche ? 1/ Vous décrivez votre location idéale sur LocService 2 / Votre candidature est transmise aux propriétaires concernés 3 / Les propriétaires vous contactent directement. Vous réglez une seule fois 34 euros (29 euros pour les étudiants) pour toute la durée de votre recherche. Sans abonnement - Sans prélèvement - Sans commission. Depuis sa création en 2005, LocService a accompagné plus de 2,8 millions de particuliers. Pourquoi pas vous ?
Valras-plage - location annuelle - proche du centre-ville et des commerces - studio composé d'un grand séjour, une cuisine indépendante, une salle d'eau et wc. Balcon. Parking privatif. Ce bien est loué meublé. Montant depôt de garantie de 400 euros. Montant de frais d'agence : 237.60eur euros d'honoraires de rédaction de bail ainsi que 89.10eur euros de frais d'etat des lieux. Disponible le 01 / 10 / 2025.
Sauvian - appartement a louer - dispositif pinel (zone b1) aux portes de beziers et a 5 kilometres de la mediterranee, sauvian profite d'un emplacement geographique exceptionnel, entre terres agricoles et vignobles. À 10 minutes a pied du centre-ville, au coeur du nouveau quartier les moulieres, la résidence arborea est située en bordure d'un large parc arbore : un environnement paisible, borde de cheminements doux, ou le vegetal trouve toute sa place. C'est dans cet environnement exceptionnel que sandrine de l'agence immojoy narbonne a le plaisir de vous proposer à la location ce bel appartement t2 de 44 m² situé au 1er étage avec ascenseur d'un immeuble de 2 étages, avec terrasse et place de stationnement. L'espace de vie de 26 m² est composé d'un séjour (avec climatisation réversible) donnant sur une belle terrasse couverte de 9,5 m², d'une cuisine ouverte aménagée et semi équipée (plaque à induction et hotte aspirante). Vous disposerez également d'une belle chambre de 13 m² et d'une spacieuse salle d'eau avec toilettes. Pour votre confort, vous trouverez deux grands placards à l'entrée et dans la chambre. Loyer mensuel : 682 eur cc dont 50 eur de provisions sur charges (avec régularisation annuelle) honoraires d'agence : 473 eur (dont 129 eur d'état des lieux) caution : 632 eur visite virtuelle et video de presentation disponible sur demande les informations sur les risques auxquels ce bien est exposé sont disponibles sur le site géorisques : 1.
Appartement avec 1 chambre de 31,5 m² à louer au cœur de Sérignan, idéalement situé au 9 Rue de la Révolution. Ce logement en bon état offre un séjour lumineux, une chambre confortable et une salle de bains moderne avec douche à l'italienne, pour un confort quotidien apprécié. Vous serez en plein centre-ville, à deux pas des commerces, restaurants et services, et très proche d'une école — parfait pour les familles ou les étudiants. Les transports en commun sont également à proximité, facilitant tous vos déplacements. Loyer attractif de 440 EUR par mois, logement pratique et bien entretenu, à découvrir sans tarder. Pour visiter ou obtenir plus d'informations, contactez-nous dès aujourd'hui et organisez votre visite !
Serignan (34), appartement de 31 m² à louer non meublé. Libre à la location, il se compose de 2 pièces avec 1 chambre. Proposé par un particulier pour un loyer mensuel de 480 euros. Avantages du logement : - Stationnement - Transport - Dernier étage - Baignoire Ce propriétaire utilise LocService pour sélectionner ses futurs locataires. Pour proposer directement votre candidature pour ce logement ET toutes les locations conformes à votre recherche, il suffit de vous inscrire sur LocService. Les propriétaires vous contactent directement et les locations sont certifiées sans frais d'agence. Comment ça marche ? 1/ Vous décrivez votre location idéale sur LocService 2 / Votre candidature est transmise aux propriétaires concernés 3 / Les propriétaires vous contactent directement. Vous réglez une seule fois 34 euros (29 euros pour les étudiants) pour toute la durée de votre recherche. Sans abonnement - Sans prélèvement - Sans commission. Depuis sa création en 2005, LocService a accompagné plus de 2,8 millions de particuliers. Pourquoi pas vous ?
Ref 463 - agence luga immobilier - appartement de type 2 au 2eme etage proche hopital - 39.9 m² comprenant un séjour avec cuisine, 1 chambre avec placards aménagés, salle d'eau avec wc. Loyer 400 eur charges communes comprises + provision d'eau incluse depot de garantie : 360 eur honoraires : 319.20 eur dont état des lieux offert classe énergétique d 1.
Appartement T2 Traversant en Centre-Ville – 3ème Étage Situé au Centre-Ville, quariter de la sous-préfecture, cet appartement T2 traversant au 3ème étage vous séduira par son état impeccable et ses prestations. Il se compose de : Un séjour lumineux, Une cuisine entièrement équipée (plaque de cuisson, réfrigérateur, hotte), Une chambre avec placard intégré, Une salle d’eau avec WC. Idéal pour profiter d'un cadre de vie agréable en plein centre-ville. Ne manquez pas cette belle opportunité !
Coeur de ville à deux pas des rues piétonnes et de la mairie, bel appartement T2 meublé en rez-de-chaussée et une surface annexe en souplex de 38 m², dans un petit immeuble de 2 étages et de 3 logements. Vous serez les locataires d'un appartement qui vient d'être rénové et joliment meublé. Le rez-de-chaussée de 48 m² habitable est composé, d'une entrée, WC indépendant, une pièce de vie en 3 volumes (repas, salon, cuisine Américaine) de 31 m², une chambre de 11 m² et son dressing attenant, une salle d'eau avec douche Italienne et lavabo. En souplex une cave voutée chauffée de 38 m² utile, avec un coin salon, un coin bar et un billard. Disponible de suite. Loyer charges comprises : 690 EUR dont 70EUR de provision pour charges, électricité, eau, commun et ordures ménagères (Régularisation annuelle) Dépôt de garantie : 1240 EUR (2 mois de loyer hors charges) Honoraires agence : 336 EUR Etats des lieux : 144 EUR Pour tous renseignements complémentaires contacter Didier par Tel : 06 82 85 66 22 ou par mail : didier11immojoy@gmail.com L'appartement est soumis à l'acceptation de votre dossier. Les pièces demandées seront communiquées dans nos premiers échanges. 1.
Appartement F2 de particulier à louer sur Narbonne. Disponibilité immédiate pour cette location meublée de 31 mètres carré proposée à 590 euros par mois. Avantages du logement : - Grand séjour - Cuisine équipée - Proche commerce - Sans vis-à-vis Ce propriétaire utilise LocService pour sélectionner ses futurs locataires. Pour proposer directement votre candidature pour ce logement ET toutes les locations conformes à votre recherche, il suffit de vous inscrire sur LocService. Les propriétaires vous contactent directement et les locations sont certifiées sans frais d'agence. Comment ça marche ? 1/ Vous décrivez votre location idéale sur LocService 2 / Votre candidature est transmise aux propriétaires concernés 3 / Les propriétaires vous contactent directement. Vous réglez une seule fois 34 euros (29 euros pour les étudiants) pour toute la durée de votre recherche. Sans abonnement - Sans prélèvement - Sans commission. Depuis sa création en 2005, LocService a accompagné plus de 2,8 millions de particuliers. Pourquoi pas vous ?
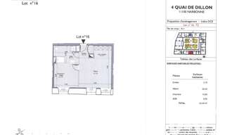
Iad France - Stéphane Ranc vous propose : Situé en plein cOEur de Narbonne, cet appartement rénové de type T2 est idéalement positionné pour offrir un cadre de vie confortable et pratique. D'une surface de 44 m², cet appartement bénéficie d'une rénovation récente qui lui confère un charme certain dans une bâtisse historique (Ancienne Charité). L'espace de vie se compose d'une chambre lumineuse, d'une salle d'eau avec douche et d'un espace cuisine non équipée, idéal pour laisser libre cours à vos envies culinaires. Un WC séparé et un espace buanderie complètent les commodités de cet appartement. Situé au premier étage d'un immeuble de trois niveaux avec ascenseur, vous pourrez profiter d'un accès facile à tous les étages. La présence de la fibre optique assure une connexion internet rapide et fluide pour vos besoins quotidiens. La résidence, sécurisée et dotée d'une ventilation mécanique, offre un environnement paisible et sécurisé pour ses habitants. Vous pourrez profiter de votre intimité dans cette résidence, tout en étant proche des commodités et des transports en commun. Bien que ne disposant pas de garage ni de parking, la localisation centrale de cet appartement permet un stationnement facile à proximité. Pas de travaux à prévoir, vous pourrez emménager rapidement et profiter pleinement de votre nouvel chez-vous. Ne ratez pas cette occasion de vivre au cOEur de la charmante ville de Narbonne. Contactez-nous dès maintenant pour organiser une visite et découvrir ce petit bijou immobilier. Information d'affichage énergétique sur ce bien : classe ENERGIE C indice 154 et classe CLIMAT A indice 4. Les informations sur les risques auxquels ce bien est exposé, y compris l'obligation légale de débroussaillement, sont disponibles sur le site Géorisques : La présente annonce immobilière a été rédigée sous la responsabilité éditoriale de M Stéphane Ranc mandataire indépendant en immobilier (sans détention de fonds), agent commercial de la SAS I@D France immatriculé au RSAC de MONTPELLIER sous le numéro 930433578, titulaire de la carte de démarchage immobilier pour le compte de la société I@D France SAS. Location non meublée. Montant du loyer mensuel charges comprises : 530.00 euros / mois. Provision mensuelle avec récupération annuelle : 45.00 euros / mois. Zone soumise à encadrement : non. Dépôt de garantie : 485 euros. Honoraires TTC à la charge du locataire : 316 euros (soit 7€ / m²).
Location Narbonne libre immédiatement. Entre particuliers appartement à louer meublé de 30 m². Cette location T2 possède 1 chambre et est proposée à 600 euros charges incluses. Avantages du logement : - Cuisine équipée - Proche commerce Ce propriétaire utilise LocService pour sélectionner ses futurs locataires. Pour proposer directement votre candidature pour ce logement ET toutes les locations conformes à votre recherche, il suffit de vous inscrire sur LocService. Les propriétaires vous contactent directement et les locations sont certifiées sans frais d'agence. Comment ça marche ? 1/ Vous décrivez votre location idéale sur LocService 2 / Votre candidature est transmise aux propriétaires concernés 3 / Les propriétaires vous contactent directement. Vous réglez une seule fois 34 euros (29 euros pour les étudiants) pour toute la durée de votre recherche. Sans abonnement - Sans prélèvement - Sans commission. Depuis sa création en 2005, LocService a accompagné plus de 2,8 millions de particuliers. Pourquoi pas vous ?
Rue Gabriel Pelouze, au 2ème étage d'un petit immeuble, T2 de 24 m² comprenant un coin séjour avec son coin cuisine, une chambre avec placard et une salle d'eau avec wc. Disponible dès le 5 janvier 2026 !
Rue Gabriel Pelouze, au 1er étage d'un petit immeuble, joli T2 meublé de 43 m² comprenant un séjour lumineux avec cuisine US équipée, une chambre avec placard et une salle d'eau avec douche, wc et machine à laver ! Disponible dès le 15 décembre 2025 !
Proche de la Place du Forum, superbe T2 meublé, récemment rénové et disposant d'un séjour / cuisine très lumineux avec machine à laver et lave-vaisselle, une chambre avec placard et une salle d'eau avec WC. Provision d'eau comprise dans les charges et disponible immédiatement !
Location à Narbonne d'un appartement de particulier disponible immédiatement. Ce meublé possède 1 chambre et est à louer 550 euros par mois. Avantages du logement : - Stationnement - Cuisine équipée - Cuisine indépendante - Transport - Proche commerce - Cave - Sans vis-à-vis Ce propriétaire utilise LocService pour sélectionner ses futurs locataires. Pour proposer directement votre candidature pour ce logement ET toutes les locations conformes à votre recherche, il suffit de vous inscrire sur LocService. Les propriétaires vous contactent directement et les locations sont certifiées sans frais d'agence. Comment ça marche ? 1/ Vous décrivez votre location idéale sur LocService 2 / Votre candidature est transmise aux propriétaires concernés 3 / Les propriétaires vous contactent directement. Vous réglez une seule fois 34 euros (29 euros pour les étudiants) pour toute la durée de votre recherche. Sans abonnement - Sans prélèvement - Sans commission. Depuis sa création en 2005, LocService a accompagné plus de 2,8 millions de particuliers. Pourquoi pas vous ?
Narbonne, à louer appartement meublé de 30 m² avec 2 pièces dont 1 chambre. Location de particulier 520 euros charges comprises. Disponible le 01 / 11 / 25. Avantages du logement : - Stationnement - Cuisine équipée - Balcon - Transport - Proche commerce - Sans vis-à-vis Ce propriétaire utilise LocService pour sélectionner ses futurs locataires. Pour proposer directement votre candidature pour ce logement ET toutes les locations conformes à votre recherche, il suffit de vous inscrire sur LocService. Les propriétaires vous contactent directement et les locations sont certifiées sans frais d'agence. Comment ça marche ? 1/ Vous décrivez votre location idéale sur LocService 2 / Votre candidature est transmise aux propriétaires concernés 3 / Les propriétaires vous contactent directement. Vous réglez une seule fois 34 euros (29 euros pour les étudiants) pour toute la durée de votre recherche. Sans abonnement - Sans prélèvement - Sans commission. Depuis sa création en 2005, LocService a accompagné plus de 2,8 millions de particuliers. Pourquoi pas vous ?
Sur le Cours République, à l'abri des regards, venez profiter du calme de ce T2 aux portes de toutes les commodités du coeur de ville ! Entièrement rénové, vous profiterez d'une cuisine équipée, d'une chambre aménagée, d'une élégante SDE et d'une mezzanine pouvant servir de chambre d'avoir avec son lot d'étagères de rangement. Disponible de suite ! Faites vite ! Agence HDL : 04 68 41 30 91 - Réf. annonce : 175.
Narbonne (11), appartement de 32 m² à louer meublé. Libre le 16 / 12 / 25, il se compose de 2 pièces avec 1 chambre. Proposé par un particulier pour un loyer mensuel de 590 euros. Avantages du logement : - Cuisine équipée - Cuisine indépendante - Balcon - Transport - Dernier étage - Proche commerce Ce propriétaire utilise LocService pour sélectionner ses futurs locataires. Pour proposer directement votre candidature pour ce logement ET toutes les locations conformes à votre recherche, il suffit de vous inscrire sur LocService. Les propriétaires vous contactent directement et les locations sont certifiées sans frais d'agence. Comment ça marche ? 1/ Vous décrivez votre location idéale sur LocService 2 / Votre candidature est transmise aux propriétaires concernés 3 / Les propriétaires vous contactent directement. Vous réglez une seule fois 34 euros (29 euros pour les étudiants) pour toute la durée de votre recherche. Sans abonnement - Sans prélèvement - Sans commission. Depuis sa création en 2005, LocService a accompagné plus de 2,8 millions de particuliers. Pourquoi pas vous ?
Location appartement à Narbonne de 55 m². Cet appartement F2 de particulier est à louer pour un loyer de 565 euros. Disponible à partir du 01 / 02 / 26 Avantages du logement : - Grand séjour - Cuisine indépendante - Balcon - Transport - Dernier étage - Proche commerce Ce propriétaire utilise LocService pour sélectionner ses futurs locataires. Pour proposer directement votre candidature pour ce logement ET toutes les locations conformes à votre recherche, il suffit de vous inscrire sur LocService. Les propriétaires vous contactent directement et les locations sont certifiées sans frais d'agence. Comment ça marche ? 1/ Vous décrivez votre location idéale sur LocService 2 / Votre candidature est transmise aux propriétaires concernés 3 / Les propriétaires vous contactent directement. Vous réglez une seule fois 34 euros (29 euros pour les étudiants) pour toute la durée de votre recherche. Sans abonnement - Sans prélèvement - Sans commission. Depuis sa création en 2005, LocService a accompagné plus de 2,8 millions de particuliers. Pourquoi pas vous ?