
Taux crédit immobilier mars 2026 : les banques baissent encore leurs offres
En mars 2026, deux grandes banques baissent leurs taux de crédit immobilier. Analyse des meilleures offres et conseils pour optimiser son financement.
3 résultats
Iad France - Elise Bonnet vous propose : Située à quelques minutes du cOEur de Saint-Lô, sur la commune de La Barre-de-Semilly, cette maison en pierre atypique allie avec élégance le cachet de l’ancien et le confort des prestations modernes. Cette propriété séduira les amateurs de biens de caractère recherchant authenticité et confort de vie. En grande partie reconstruite en 2004 à partir de pierres anciennes soigneusement réutilisées, elle a su préserver toute son authenticité tout en bénéficiant d’équipements récents garantissant un confort optimal au quotidien. La maison de 176 m² comprend une entrée indépendante avec placard intégré. Une pièce de vie de 33 m², baignée de lumière, qui s’ouvre sur le jardin grâce à une baie vitrée offrant un cadre de vie chaleureux et convivial. On y retrouve une belle cheminée en pierre réalisée avec des matériaux anciens, véritable élément de caractère de ce séjour semi-cathédrale. La cuisine, indépendante, est aménagée et équipée. Un long couloir dessert une suite parentale de plain-pied composée d’un espace nuit, d’un coin dressing et d’une salle de bain avec lavabo et WC. Le rez-de-chaussée dispose également d’un WC avec lave-mains ainsi que d’une salle d’eau avec coin buanderie. À l’étage, 4 chambres dont une en mezzanine, ainsi que 2 espaces bureaux permettent d’accueillir famille, projets ou passions. Une pièce supplémentaires disposent déjà des arrivées et évacuations d’eau nécessaires et offrent un beau potentiel d’aménagement pour la création d’une salle de bain et d’un WC supplémentaires. Nombreux placards et débarras). La propriété comprend également au rez-de-chaussée une pièce baignée de lumière actuellement aménagée en atelier, qui peut facilement devenir une salle de jeux ou un espace de loisirs selon les besoins. Cette pièce permet de relier la maison à une dépendance comprenant cave, double garage et greniers. ( plus de 100 m²). Le chauffage est assuré par une pompe à chaleur avec chauffage au sol sur l’ensemble du rez-de-chaussée, à l’exception de la chambre, complété par des radiateurs électriques dans les autres pièces. L’ensemble bénéficie d’une isolation récente, de double vitrage, de volets roulants aluminium isolés ainsi que d’une VMC. Implantée sur un grand terrain de 2500 m², orienté vers la nature, la propriété profite d’un environnement verdoyant, calme et agréable à vivre. Une petite mare apporte une touche bucolique supplémentaire et renforce le caractère unique du lieu. Un bien coup de cOEur, rare sur le secteur, offrant un équilibre harmonieux entre authenticité, confort moderne et potentiel d’évolution. Honoraires d'agence à la charge du vendeur. Information d'affichage énergétique sur ce bien : classe ENERGIE C indice 110 et classe CLIMAT A indice 4. Les informations sur les risques auxquels ce bien est exposé, y compris l'obligation légale de débroussaillement, sont disponibles sur le site Géorisques : La présente annonce immobilière a été rédigée sous la responsabilité éditoriale de Mme Elise Bonnet mandataire indépendant en immobilier (sans détention de fonds), agent commercial de la SAS I@D France immatriculé au RSAC de Coutances sous le numéro 888451325, titulaire de la carte de démarchage immobilier pour le compte de la société I@D France SAS.
À quelques minutes de Saint-Lô, sur la commune recherchée de La Barre-de-Semilly, cette propriété en pierre développe un équilibre rare entre authenticité, volumes et potentiel professionnel. Un emplacement stratégique La Barre-de-Semilly séduit par son environnement résidentiel paisible tout en bénéficiant de la proximité immédiate de Saint-Lô : commerces, établissements scolaires, services et axes routiers accessibles rapidement. Un secteur idéal pour conjuguer qualité de vie et efficacité logistique. ⸻ Une maison familiale aux volumes généreux D'une surface habitable de 175,45 m², la maison offre une distribution fluide et lumineuse. Au rez-de-chaussée : • Une entrée • Un grand double séjour lumineux, sublimé par une cheminée en pierre de caractère • Une cuisine aménagée et équipée • Une suite parentale avec salle de bains privative et baignoire balnéo • Une chaufferie • WC indépendants • Une salle d'eau • Accès direct au garage et aux dépendances À l'étage : • Une mezzanine surplombant le séjour (actuellement aménagée en chambre) • Quatre chambres • Un bureau • WC à finaliser Un agencement cohérent, parfaitement adapté à une grande famille. ⸻ Dépendances & potentiel professionnel Les dépendances développent 101,91 m² au sol, avec un étage aménageable accessible depuis l'étage de la maison. Cet ensemble se prête très facilement à l'exercice d'une activité professionnelle, notamment pour un artisan : • espace de stockage, • atelier, • zone technique, • possibilité d'accueil clientèle indépendant de l'espace de vie. La configuration permet également l'aménagement aisé d'une cuisine d'été au sein des dépendances, idéale pour valoriser les extérieurs lors des beaux jours. ⸻ Confort & prestations • Pompe à chaleur • Volets roulants électriques • Terrasse couverte • Terrain clos de 2 560 m² ⸻ Les points différenciants Cachet et authenticité de la pierre Volumes adaptés à la vie familiale Double séjour lumineux Dépendances structurantes Potentiel professionnel évident Proximité immédiate de Saint-Lô Un bien évolutif, pensé autant pour un projet familial ambitieux que pour une activité indépendante souhaitant allier domicile et outil de travail sur un même site. Les honoraires sont à la charge du vendeur. Les informations sur les risques auxquels ce bien est exposé sont disponibles sur le site Géorisques : www. georisques. gouv. fr. Contactez Angélique HOREL Entrepreneur Individuel, Agent commercial OptimHome (RSAC N°810 635 581 Greffe de COUTANCES) 06 59 15 77 33 (réf. 602740 ).
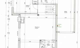
Iad france - geraldine lesage vous propose : maison familiale à la barre-de-semilly (6 km de saint-lô) à deux pas de saint-lô, dans un environnement calme et verdoyant, découvrez cette belle maison familiale alliant charme et confort moderne. Elle offre 4 chambres (dont 2 au rez-de-chaussée), 2 espaces nuit, 2 salles de bains, une cuisine indépendante équipée, un bureau, et un salon chaleureux avec cheminée. Le tout dans un excellent confort grâce à une isolation récente et une pompe à chaleur performante. Sous-sol total avec garage, cave à vin, atelier, buanderie et espaces de rangement. À l’extérieur, un jardin arboré avec serre complète cet ensemble harmonieux. Les + : calme, volumes généreux, charme et efficacité énergétique. Un havre de paix à visiter sans tarder ! Honoraires d'agence à la charge du vendeur. Information d'affichage énergétique sur ce bien : classe energie c indice 136 et classe climat a indice 5. Les informations sur les risques auxquels ce bien est exposé, y compris l'obligation légale de débroussaillement, sont disponibles sur le site géorisques : la présente annonce immobilière a été rédigée sous la responsabilité éditoriale de mme geraldine lesage mandataire indépendant en immobilier (sans détention de fonds), agent commercial de la sas i@d france immatriculé au rsac de coutances cedex sous le numéro 925042905, titulaire de la carte de démarchage immobilier pour le compte de la société i@d france sas.
Autres annonces à proximité de La Barre-de-Semilly (50810) avec vos critères
Iad France - Johann Lepage vous propose : Rare opportunité à 5 mn du centre-ville de Saint-Lô pour cette magnifique maison du célèbre architecte Eugène LESENEY, d'une surface de 275 m², située sur un vaste terrain de 20 000 m² environ. Construite en 1970 et rénovée avec goût pour offrir un confort contemporain alliant modernité et élégance, cette propriété est un véritable bijou immobilier. Dès l'entrée, vous serez séduits par l'atmosphère chaleureuse qui se dégage de cette maison. Le rez-de-chaussée propose une entrée avec rangements, un vaste séjour salon lumineux, une cuisine haut de gamme entièrement équipée et fonctionnelle, une buanderie avec rangements et une lingerie. Vous disposerez d'un coin feu aménagé avec bar intégré et rangement pour le bois. un grand dressing et deux Wc indépendants complètent le rdc. Vie de plain pied avec 4 chambres spacieuses en rez de chaussée, dont 1 suite parentale avec salle d'eau privative, et une grande salle de bains avec douche et baignoire balnéo pour la famille. Toujours en rez de chaussée, vous profiterez d'un grand espace détente, type patio, ouvert sur la nature vous offrant confort et détente. À l'étage, un espace réception aménagé avec bar, salon, vous offre de nombreuses possibilités d'aménagement : salle de sport, home cinéma, salle de jeux, espace lecture détente. Pour vos invités, une suite parentale avec salle de bains, dressing et WC. La vue sur la nature et le magnifique parc arboré est omniprésente dans toutes les pièces de cette propriété. À l'extérieur, un jardin arboré de plus de 20 000 m² offre un espace de détente privilégié, où calme et sérénité règnent en maîtres. Un double garage indépendant avec rangement couvert pour le bois, un autre garage pour le matériel de jardin ou voiture et deux boxes pour chevaux. Plusieurs places de parking sont disponibles pour vos véhicules. Vous disposerez également d'un demi sous sol, avec nombreuses pièces de rangement et caves. =>>> Les plus + - Aucun vis à vis - A 5 mn seulement de Saint- Lô - Installation immédiate sans travaux - Dépendances et boxes. - Prairie de 3000 m² environ attenante à la propriété pour vos animaux Une visite s'impose pour apprécier tous les atouts de cette propriété d'exception ! Honoraires d'agence à la charge du vendeur. Information d'affichage énergétique sur ce bien : classe ENERGIE E indice 215 et classe CLIMAT E indice 51. Les informations sur les risques auxquels ce bien est exposé, y compris l'obligation légale de débroussaillement, sont disponibles sur le site Géorisques : La présente annonce immobilière a été rédigée sous la responsabilité éditoriale de M Johann Lepage mandataire indépendant en immobilier (sans détention de fonds), agent commercial de la SAS I@D France immatriculé au RSAC de Coutances sous le numéro 938545605, titulaire de la carte de démarchage immobilier pour le compte de la société I@D France SAS.

Recevez en temps réel les dernières annonces correspondant à votre recherche
Iad france - guillaume sadot vous propose : venez découvrir cette maison située dans un quartier calme et recherché offrant une vie de plain-pied ! Au rez-de-chaussée vous trouverez : une entrée, un grand salon avec un poêle à bois, une cuisine aménagée, équipée et ouverte sur une salle à manger, une chambre avec un point d'eau et un wc. À l'étage, un couloir dessert une suite parentale avec une salle d'eau privative et dressing, trois grandes chambres, une salle de bains ainsi qu'un wc. Un sous-sol complet comprenant un garage, une buanderie, une chambre ou salle de jeux ainsi qu'une autre pièce vous permettra de nombreux rangements. Le tout sur un terrain de 673 m². Les + : - beaux volumes - quartier calme - zéro travaux a visiter sans tarder ! Honoraires d'agence à la charge du vendeur. Information d'affichage énergétique sur ce bien : classe energie d indice 194 et classe climat c indice 26. Les informations sur les risques auxquels ce bien est exposé, y compris l'obligation légale de débroussaillement, sont disponibles sur le site géorisques : la présente annonce immobilière a été rédigée sous la responsabilité éditoriale de m guillaume sadot mandataire indépendant en immobilier (sans détention de fonds), agent commercial de la sas i@d france immatriculé au rsac de coutances sous le numéro 851700443, titulaire de la carte de démarchage immobilier pour le compte de la société i@d france sas.
Iad France - Florence Zarb vous propose : Venez découvrir cette charmante maison avec jardin, garage et terrasse dans un quartier calme de Saint-Lô. Au rez-de-chaussée, vous trouverez une entrée accueillante, une cuisine ouverte entièrement équipée, un lumineux séjour salon avec une cheminée insert, un wc. À l'étage, un palier dessert trois chambres, une salle de bain avec wc et une pièce pouvant être aménagée en suite parentale. Le point fort de cette propriété est sans aucun doute son jardin arboré, offrant un espace extérieur paisible pour profiter des journées ensoleillées et une terrasse avec store banne de 30 m² environ ajoute un espace de vie. Un garage avec porte motorisée est également disponible pour abriter votre véhicule en toute sécurité et vous disposez également d' un cellier pour entreposer du bois, outils de jardinage. Les + - Fibre - Isolation des combles -ravalement en 2025 -assainissement conforme Située à proximité des commerces, des écoles et des commodités, cette maison est un véritable cocon de tranquillité au cOEur de la ville. Laissez-vous charmer par son cachet et ses nombreux atouts ! Honoraires d'agence à la charge du vendeur. Information d'affichage énergétique sur ce bien : classe ENERGIE E indice 300 et classe CLIMAT B indice 9. Les informations sur les risques auxquels ce bien est exposé, y compris l'obligation légale de débroussaillement, sont disponibles sur le site Géorisques : La présente annonce immobilière a été rédigée sous la responsabilité éditoriale de Mme Florence Zarb mandataire indépendant en immobilier (sans détention de fonds), agent commercial de la SAS I@D France immatriculé au RSAC de COUTANCES sous le numéro 922344395, titulaire de la carte de démarchage immobilier pour le compte de la société I@D France SAS.
Iad France - Geraldine Lesage vous propose : Maison 140 m² avec vaste jardin – Saint-Jean-d’Elle Située dans un environnement calme et verdoyant, cette maison familiale de 140 m² à Saint-Jean-d’Elle offre un cadre de vie idéal pour ceux qui recherchent espace et tranquillité. Dès l’entrée, vous découvrez un espace de vie lumineux et généreux, composé d’un salon chaleureux équipé d’un insert fermé, d’une salle à manger conviviale et d’une cuisine aménagée et entièrement équipée, ouverte sur l’ensemble. Un second salon, facilement transformable en grande chambre selon les besoins, vient compléter cet espace. Le rez-de-chaussée comprend également une chambre actuellement utilisée comme bureau, un WC indépendant ainsi qu’une salle d’eau faisant office de buanderie. Depuis cette dernière, vous accédez directement à un préau. À l’étage, la maison propose deux chambres, dont une dotée d’un dressing, un espace pouvant servir de coin nuit ou de bureau, une salle de bain, un WC indépendant et un dressing supplémentaire offrant un beau volume de rangement. À l’extérieur, le vaste jardin de 2500 m² permet de profiter pleinement du cadre naturel environnant. La propriété dispose également d’un garage double équipé d’une prise pour véhicule électrique, ainsi qu’un second garage actuellement utilisé comme atelier. L’ensemble est sécurisé par un portail motorisé. Les commerces, écoles et pôle santé sont accessibles à pieds ! À voir sans tarder ! Honoraires d'agence à la charge du vendeur. Information d'affichage énergétique sur ce bien : classe ENERGIE C indice 135 et classe CLIMAT A indice 4. Les informations sur les risques auxquels ce bien est exposé, y compris l'obligation légale de débroussaillement, sont disponibles sur le site Géorisques : La présente annonce immobilière a été rédigée sous la responsabilité éditoriale de Mme Geraldine Lesage mandataire indépendant en immobilier (sans détention de fonds), agent commercial de la SAS I@D France immatriculé au RSAC de COUTANCES CEDEX sous le numéro 925042905, titulaire de la carte de démarchage immobilier pour le compte de la société I@D France SAS.
Iad france - philippe bagot vous propose : aux portes de saint-lô, à saint-andré de l'epine, ce pavillon neuf sur terrain clos propose : au rez-de-chaussée, entrée, pièce de vie et espace cuisine (42 m²) exposés sud-ouest, une chambre (14 m²) avec salle d'eau (2,50 m²), cellier, wc et garage avec porte automatisée. À l'étage palier distribuant trois chambres (10,50 m², 12,50 m² et 13,50 m²) et une salle de bain avec wc. Chauffage au sol au rez-de-chaussée par aérothermie, vmc double flux, assainissement collectif. Honoraires d'agence à la charge du vendeur. Information d'affichage énergétique sur ce bien : classe energie a indice 57 et classe climat a indice 1. Les informations sur les risques auxquels ce bien est exposé, y compris l'obligation légale de débroussaillement, sont disponibles sur le site géorisques : la présente annonce immobilière a été rédigée sous la responsabilité éditoriale de m philippe bagot mandataire indépendant en immobilier (sans détention de fonds), agent commercial de la sas i@d france immatriculé au rsac de coutances sous le numéro 411193485, titulaire de la carte de démarchage immobilier pour le compte de la société i@d france sas.
Iad france - aurélien letort vous propose : à découvrir rapidement, maison d'environ 90 m² proche des commerces. Comprenant au rdc : une entrée, un agréable séjour / salon, une cuisine équipée et un wc indépendant. À l'étage, vous trouverez : un palier desservant trois chambres, placard de rangement et une salle de bain avec un wc. La maison dispose également d'un garage attenant, le tout édifié sur un terrain de 228 m², clos. À découvrir rapidement ! Contact 7 jrs / 7 jrs. Honoraires d'agence à la charge du vendeur. Information d'affichage énergétique sur ce bien : classe energie d indice 186 et classe climat d indice 30. Les informations sur les risques auxquels ce bien est exposé, y compris l'obligation légale de débroussaillement, sont disponibles sur le site géorisques : la présente annonce immobilière a été rédigée sous la responsabilité éditoriale de m aurélien letort mandataire indépendant en immobilier (sans détention de fonds), agent commercial de la sas i@d france immatriculé au rsac de coutances sous le numéro 909439291, titulaire de la carte de démarchage immobilier pour le compte de la société i@d france sas.
Maison de 135 m², construite en 2004, offrant un cadre de vie calme et verdoyant. Répartie sur 3 niveaux, elle se compose au rez-de-chaussée d'une salle à manger, d'un salon-séjour avec cheminée, d'une cuisine ouverte neuve, d'une salle d'eau avec douche à l'italienne, d'un wc et d'une chambre parentale. À l'étage : 3 chambres, un bureau, une salle de bains, un wc prestations appréciables : geothermie, chauffage au sol, fenêtres pvc, et un sous-sol complet offrant de nombreux espaces de rangement. Le tout sur un terrain clos de 2 040 m² avec double entrée, portails motorisés, et une piscine semi-enterrée équipée de filtres et d'une pompe neufs. Une terrase plein sud un bien spacieux, lumineux et parfaitement entretenu. Les informations sur les risques auxquels ce bien est exposé sont disponibles sur le site géorisques : prix de vente : 249 000 € honoraires charge vendeur contactez votre conseiller safti : samy el abed, tél. : 06 95 55 99 37, e-mail : samy.elabed@safti.fr - ei - agent commercial immatriculé au rsac de coutances sous le numéro 917629842.
Située à Saint-Lô (50000), cette maison contemporaine de 2023 offre un cadre de vie paisible dans un quartier recherché, à proximité de diverses commodités. Le terrain de 872 m² garantit espace et intimité, avec 2 places de parking pour un confort optimal. À l'extérieur, la propriété se distingue par son allure moderne et soignée, mettant en valeur une architecture élégante. Le jardin offre un espace extérieur accueillant, idéal pour profiter en famille ou entre amis. À l'intérieur, cette maison de 133 m² présente des finitions de qualité. Avec 4 chambres dont une suite parentale, une cuisine équipée et aménagée, un WC, une salle d'eau, une buanderie et un garage, chaque élément a été pensé pour offrir confort et fonctionnalité au quotidien. L'agencement des pièces offre des espaces lumineux et spacieux, idéaux pour une vie de famille agréable. N'hésitez pas à me contacter pour plus d'informations et organiser une visite ! Les informations sur les risques auxquels ce bien est exposé sont disponibles sur le site Géorisques : Prix de vente : 407 200 € Honoraires charge vendeur Contactez votre conseiller SAFTI : Carine RIDEL, Tél. : 06 25 73 66 02, E-mail : carine.ridel@safti.fr - EI - Agent commercial immatriculé au RSAC de COUTANCES sous le numéro 987518925.
Rare à la vente Secteur nord ouest de Saint Lô ! Située dans un environnement calme, commune desservie par le bus de ville, venez découvrir cette spacieuse maison familiale de 160 m² entièrement rénovée en 2023 avec des matériaux de qualité permettant une vie de plain pied. Vous serez séduit par cette vue magnifique ou vous pouvez apercevoire des biches, un jardin paysager de 3 500 m², sans vis-à-vis, avec terrasses ensoleillées exposition Sud et Ouest, Au rez-de-chaussée, vous serez séduit par une vaste pièce de vie d'environ 70 m² lumineuse agrémentée d'un poêle à bois, idéale pour vos soirées en famille avec la salle à manger conviviale s'ouvrant sur une cuisine moderne entièrement équipée et aménagée, parfaite pour les amateurs de gastronomie, deux chambres, une salle de bain, une arrière-cuisine et un WC indépendant complètent ce niveau. À l'étage, un spacieux palier dessert trois belles chambres lumineuses dont une belle suite parentale avec dressing et salle d'eau, un WC indépendant. Sous sol complet de 110 m² permettant de stationner plusieurs véhicules, un coin sauna et atelier indépendant. Une dépendance avec combles complète ce bien aménagée actuellement en double garage mais pouvant être transformée en habitation ou bureau. Les informations sur les risques auxquels ce bien est exposé sont disponibles sur le site Géorisques : Prix de vente : 349 700 € Honoraires charge vendeur Contactez votre conseiller SAFTI : Sylvie BLANCHER, Tél. : 06 64 33 75 74, E-mail : sylvie.blancher@safti.fr - EI - Agent commercial immatriculé au RSAC de CAEN sous le numéro 841 708 969.
Située à saint-lô, cette maison familiale à rénover bénéficie d'un emplacement privilégié dans un quartier calme. Maison de 91 m² mitoyenne par le garage sur un terrain de 220 m² clos avec cabanon de jardin. La maison est composée au rez-de-chaussée d'une entrée, d'une pièce de vie lumineuse, d'une cuisine, un wc et d'un garage. À l'étage, une mezzanine avec coin bureau dessert trois belles chambres, une salle de douche et des toilettes séparés. Idéale première acquisition. Les informations sur les risques auxquels ce bien est exposé sont disponibles sur le site géorisques : prix de vente : 149 000 € honoraires charge vendeur contactez votre conseiller safti : aline tristant, tél. : 06 64 75 60 38, e-mail : aline.tristant@safti.fr - ei - agent commercial immatriculé au rsac de caen sous le numéro 852 455 906.
Situé dans un secteur résidentiel prisé, proche de toutes les commodités (commerces, bus, écoles), ce pavillon des années 90 entièrement rénové avec goût offre volumes, confort moderne et un environnement calme sans vis-à-vis. Le tout sur un magnifique jardin arboré et fleuri de plus de 1 400 m², assorti d'une terrasse de 100 m² idéale pour recevoir. Rez-de-chaussée – adapté pmr - une entrée avec couloir distribuant toutes les pièces. - une cuisine aménagée / équipée avec accès direct terrasse. - une arrière-cuisine avec nombreux rangements. - un grand salon / séjour lumineux avec poêle à bois et ouverture sur l'extérieur. - deux chambres de 10 m² et 14 m². - une belle salle d'eau : meuble vasque, douche à l'italienne, un wc + rangements. À l'étage : - une grande chambre de 24 m² avec espace dressing. - une vaste suite parentale de 40 m² avec un espace nuit de 32 m² et une salle d'eau privative de 8 m²comprenant une douche hydromassante, un lavabo et un wc - un dressing - un débarras extérieurs & annexes garage de plus de 30 m² avec mezzanine de stockage de 18 m². Grand jardin arboré & fleuri offrant intimité et tranquillité. Terrasse de 100 m², idéale pour les repas ou moments de détente. Confort & performances chauffage par géothermie lemasson avec chauffage au sol : économique & performant. Classe énergie b assainissement collectif conforme. Isolation et rénovations soignées pour un confort optimal. Les + qui font la différence rénovation complète et matériaux de qualité grande parcelle paysagée de 1 400 m² système de chauffage performant et économique rdc entièrement adapté pmr double espace nuit séparé environnement calme, aucun vis-à-vis garage xxl + mezzanine a venir decouvrir au plus vite ! Les honoraires sont à la charge du vendeur. Les informations sur les risques auxquels ce bien est exposé sont disponibles sur le site géorisques : www. Georisques. Gouv. Fr. Contactez eric de courtilloles entrepreneur individuel, agent commercial optimhome (rsac n°511 001 208 greffe de coutances) 06 81 10 74 92 (réf. 596795 ).
Exclusivité ! Vous aurez un coup de cœur pour cette maison traditionnelle, en excellent état, de 150 m² au sol (138 m² Carrez), au charme intemporel, nichée dans un écrin de verdure de 2640 m². Située aux portes de St Lô et à proximité de la D972, elle bénéficie d'un emplacement stratégique qui facilitera votre quotidien. Les espaces de vie y sont spacieux, lumineux, bien agencés et fonctionnels. Au rdc, accessible aux PMR : entrée avec rangements, grande pièce de vie traversante de près de 45 m² : salle à manger-salon avec poêle à bois, cuisine dînatoire aménagée et équipée ouverte ou fermée au choix, arrière cuisine / buanderie. L'ensemble donne sur la terrasse de 80 m² exposée Sud-Ouest et sans vis à vis. S'ajoutent une chambre, une salle d'eau et WC indépendants pour une vie de plain-pied. Au 1er : 3 chambres spacieuses, un bureau, une salle de bain et des WC séparés. Un double garage avec beau potentiel d'aménagement des combles complète le bien. D'un point de vue technique : tout électrique, chauffage au sol au rdc et radiateurs à l'étage, mais le poêle à bois Godin installé en 2022 suffit à chauffer la maison; assainissement individuel conforme, fibre, huisseries double vitrage, volets roulants avec centralisation au rdc, aspiration centralisée. Demandez une visite 7 / 7j ! Les informations sur les risques auxquels ce bien est exposé sont disponibles sur le site Géorisques : Prix de vente : 269 000 € Honoraires charge vendeur Contactez votre conseiller SAFTI : Nathalie ROUXEL, Tél. : 06 81 99 97 08, E-mail : nathalie.rouxel@safti.fr - EI - Agent commercial immatriculé au RSAC de Caen sous le numéro 808424733.
À vendre Dans un environnement calme et recherché de Saint-Lô, découvrez cette maison familiale de 104 m² habitables, édifiée sur un terrain de 310 m². Fonctionnelle et lumineuse, elle offre un cadre de vie idéal pour une famille en quête de confort et de praticité, à proximité des commodités. Une maison sur trois niveaux Rez-de-chaussée : Une entrée desservant un salon avec cheminée, un séjour, une cuisine indépendante, une arrière-cuisine et un WC séparé. À l'étage : Quatre chambres spacieuses, ainsi qu'une salle d'eau. En exterieur : Une cave dédiée au stockage et un garage indépendant complètent l'ensemble. Les points forts du bien 6 pièces offrant un beau potentiel d'aménagement Isolation thermique par l'extérieur assurant confort et économies d'énergie Fenêtres et volets en PVC Terrain de 310 m² facile d'entretien Proximité des commerces, écoles et services Les informations sur les risques auxquels ce bien est exposé sont disponibles sur le site Géorisques : Prix de vente : 187 900 € Honoraires charge vendeur Contactez votre conseiller SAFTI : Samy EL ABED, Tél. : 06 95 55 99 37, E-mail : samy.elabed@safti.fr - EI - Agent commercial immatriculé au RSAC de Coutances sous le numéro 917629842.
Dans un environnement calme et verdoyant, à seulement vingt minutes de Bayeux, cette maison contemporaine édifiée en 2007 offre un cadre de vie recherché, alliant confort moderne, fonctionnalité et sérénité. Parfaitement entretenue, elle se distingue par son excellent état général et ne nécessite aucun travaux, permettant une installation immédiate. Dès l'entrée, vous serez séduit par un vaste salon-séjour baigné de lumière naturelle, grâce à de larges ouvertures donnant sur le jardin. Cet espace convivial s'ouvre harmonieusement sur une cuisine neuve, moderne et entièrement fonctionnelle, idéale pour partager des moments en famille ou entre amis. La maison dispose de quatre chambres, dont une suite parentale de plain-pied avec salle d'eau privative, offrant un véritable confort de vie au quotidien. L'étage accueille les autres chambres ainsi qu'une salle de bains, parfaitement adaptée à une vie familiale. Un garage avec buanderie attenante complète l'ensemble. Implantée sur un beau terrain arboré, cette propriété séduit par son environnement paisible et sa qualité de vie. Un bien rare dans un secteur recherché, à découvrir sans tarder. Les honoraires sont à la charge du vendeur. Les informations sur les risques auxquels ce bien est exposé sont disponibles sur le site Géorisques : www. georisques. gouv. fr. Contactez Jean Michel SOUTUMIER Entrepreneur Individuel à Responsabilité Limitée, Agent commercial OptimHome (RSAC N°514 332 386 Greffe de CAEN) 06 65 01 35 66 (réf. 599325 ).
Située au sud de Saint-Lô, dans un environnement calme et résidentiel particulièrement recherché, cette maison récente séduit par son confort, sa luminosité et sa fonctionnalité. Dès l'entrée, vous découvrez une agréable pièce de vie d'environ 40 m², baignée de lumière, avec salon-séjour ouvert sur une cuisine conviviale, idéale pour partager des moments en famille ou entre amis. Dans le prolongement, une arrière-cuisine pouvant faire office de buanderie apporte un vrai confort au quotidien, avec un accès direct au garage. Le rez-de-chaussée propose également une suite parentale avec salle d'eau privative, permettant une véritable vie de plain-pied. À l'étage, un vaste palier dessert trois belles chambres, une grande salle de bains, un toilette indépendant ainsi qu'un bureau, parfait pour le télétravail ou comme espace dédié aux devoirs des enfants. À l'extérieur, tout est pensé pour profiter pleinement des beaux jours : terrasse exposée plein sud, jardin facile d'entretien et double garage. Les + du bien : - Secteur calme et recherché au sud de Saint-Lô - Écoles, commerces, transports, hôpital et services accessibles en quelques minutes - Excellente performance énergétique (DPE C) - Aucun travaux à prévoir Précision importante : la maison est actuellement vide. Les photos présentées meublées ont été réalisées grâce à l'intelligence artificielle afin de vous aider à mieux vous projeter dans les volumes et les espaces. Une maison prête à accueillir votre projet de vie il ne vous reste plus qu'à poser vos valises. Pour organiser une visite : Vanessa Serret Conseillère immobilière SAFTI 06 67 94 74 35 Les informations sur les risques auxquels ce bien est exposé sont disponibles sur le site Géorisques : Prix de vente : 255 000 € Honoraires charge vendeur Contactez votre conseiller SAFTI : Vanessa SERRET, Tél. : 06 67 94 74 35, E-mail : vanessa.serret@safti.fr - EI - Agent commercial immatriculé au RSAC de Caen sous le numéro 518 565 445.
Située en impasse, cette maison rare sur le secteur offre un véritable cadre de campagne en pleine ville, tout en restant à seulement 5 minutes à pied du centre-ville. Vous profitez d'un quartier calme et d'un terrain arboré de 642 m², un vrai atout en ville. Cette maison des années 70, actuellement en rénovation, développe 74 m² habitables incluant la véranda de 10 m² au premier niveau, complétés par : un plateau de 45 m² à l'étage prêt à être aménagé (trémie créée) un sous-sol complet de 45 m² avec accès direct depuis la maison un garage de 15 m² Travaux déjà réalisés : Huisseries aluminium neuves + volets solaires au RDC Deux Velux neufs et fenêtres PVC récentes à l'étage Chauffage central avec radiateurs en fonte Ouverture et trémie pour futur escalier Travaux à prévoir : Isolation intérieure ou extérieure Remplacement de la chaudière Électricité à l'étage Pose de l'escalier Finitions intérieures Fort potentiel d'aménagement : Possibilité de créer 4 chambres, un bureau, une mezzanine ou de belles pièces de vie ouvertes selon vos envies. Un bien idéal pour un premier achat, un projet familial ou une rénovation à personnaliser entièrement. Diagnostique réalisé avant le changement des huisseries Les informations sur les risques auxquels ce bien est exposé sont disponibles sur le site Géorisques : Prix de vente : 168 000 € Honoraires charge vendeur Contactez votre conseiller SAFTI : Vanessa SERRET, Tél. : 06 67 94 74 35, E-mail : vanessa.serret@safti.fr - EI - Agent commercial immatriculé au RSAC de Caen sous le numéro 518 565 445.
Iad france - catherine vautier vous propose : saint- lô - maison sur sous sol de 4 chambres- proximité commerces et ecoles - terrain 310 m²- garage - découvrez cette spacieuse maison de type t5 située à saint-lô, offrant un cadre de vie idéal pour une famille. Au rez-de-chaussée, vous trouverez une entrée donnant accès à un vaste séjour / salon lumineux avec cheminée équipée d'un insert, une cuisine aménagée avec buanderie pour une surface totale de 19 m², un wc séparé. À l'étage, vous découvrirez quatre chambres spacieuses, dont deux avec placards et une salle d'eau avec wc. La maison bénéficie de deux expositions, à la fois à l'ouest et à l'est, offrant une belle luminosité tout au long de la journée. Coté extérieur, un agréable jardin, idéal pour profiter des journées ensoleillées. Un garage est également disponible ainsi qu'un sous sol de 20 m² environ avec cave pour faciliter le stockage. =>>les plus + - menuiseries pvc changées en 2022 - isolation par l'extérieur et combles - garage de 15 m² et sous sol de 20 m² environ - quartier très calme - centre commercial, collège, lycée, bus, centre ville à pied. Cette maison révèle un grand potentiel et saura séduire les amateurs de projets de rénovation à la recherche d'un bien spacieux et lumineux. Honoraires d'agence à la charge du vendeur. Information d'affichage énergétique sur ce bien : classe energie d indice 202 et classe climat d indice 33. Les informations sur les risques auxquels ce bien est exposé, y compris l'obligation légale de débroussaillement, sont disponibles sur le site géorisques : la présente annonce immobilière a été rédigée sous la responsabilité éditoriale de mme catherine vautier mandataire indépendant en immobilier (sans détention de fonds), agent commercial de la sas i@d france immatriculé au rsac de coutances sous le numéro 898056411, titulaire de la carte de démarchage immobilier pour le compte de la société i@d france sas.
Iad france - catherine vautier vous propose : maison d'exception éco-performante – quartier du golf à saint-lô - 198 m² – 5 chambres – dpe a / ges a – vue dégagée - terrain clos 1 361 m² – double garage – exposition sud / ouest située dans le très recherché quartier du golf, au coeur d’un parc urbain de 12 hectares, cette superbe maison familiale de 198 m², construite en 2008, offre un cadre de vie rare, alliant nature, confort moderne et excellence énergétique. Un bien aussi agréable à vivre qu'économe au quotidien. =>performance énergétique exceptionnelle (dpe a / ges a) : panneaux solaires (2024), pompe à chaleur et poêle à granulés consommations maîtrisées, confort thermique optimal et maison tournée vers l’avenir et valorisable dans le temps. =>>volumes, lumière et vie de plain pied. Au rez-de-chaussée : vaste entrée avec rangements, pièce de vie très lumineuse de 70 m² environ comprenant cuisine équipée, espace repas, salon ouvert sur espace bibliothèque, chambre avec salle d'eau, wc avec lave mains, grande buanderie. À l’étage : suite parentale avec salle d'eau et dressing, deux chambres avec rangements, salle de bain, wc, espace dressing. Au dernier niveau : une belle pièce modulable avec salle d'eau (suite parentale, salle de jeux, bureau, espace détente ou chambre supplémentaire). L’exposition sud / ouest garantit une luminosité optimale toute la journée. Terrain parfaitement clos de 1 361 m², jardin aménagé, repas en terrasse, jeux d'enfant, cour bitumée, portail et double garage : un ensemble fonctionnel, sécurisé et agréable au quotidien pour toute la famille. Emplacement premium – tout à pied commerces et centres commerciaux, golf 9 trous, parcours de running et marche dans le parc urbain de 12 ha, aires de jeux pour enfants, tennis, centre aquatique et bus : ici, tout se fait à pied ! =>>>les plus + - dpe a / ges a - panneaux solaires + pompe à chaleur + poêle à granulés - maitrise des dépenses énergétiques - prise de recharge pour véhicule électrique - plancher chauffant rdc et 1er étage - double garage avec grenier, portail automatisé, cour bitumée, stationnements - terrain clos, exposition sud / ouest - robot de tonte - interphone et système d'alarme une visite s'impose ! Honoraires d'agence à la charge du vendeur. Information d'affichage énergétique sur ce bien : classe energie a indice 55 et classe climat a indice 1. Les informations sur les risques auxquels ce bien est exposé, y compris l'obligation légale de débroussaillement, sont disponibles sur le site géorisques : la présente annonce immobilière a été rédigée sous la responsabilité éditoriale de mme catherine vautier mandataire indépendant en immobilier (sans détention de fonds), agent commercial de la sas i@d france immatriculé au rsac de coutances sous le numéro 898056411, titulaire de la carte de démarchage immobilier pour le compte de la société i@d france sas.
Iad France - Catherine Vautier vous propose : Propriété d'exception avec terrain arboré de 3200 m² à Saint-Lô - 5 chambres - Prestations haut de gamme - Située à Saint-Lô, cette somptueuse villa de 296 m² est un véritable joyau immobilier. Nichée au cOEur d'un parc magnifiquement arboré de 3198 m², elle offre un cadre de vie exceptionnel alliant confort, élégance et tranquillité. Dès l'entrée, vous serez séduit par les volumes, notamment un vaste espace de vie de 80 m² environ comprenant un salon très lumineux avec espace TV aménagé, un autre salon avec cheminée, un espace salle à manger réception, une élégante cuisine d'exception, entièrement équipée avec son ilot central. Toujours en rez de chaussée, une somptueuse suite parentale de 36 m² avec son dressing aménagé et sa salle de bain privative avec douche, baignoire et WC. À l'étage, un magnifique escalier en marbre vous conduira vers quatre belles chambres très spatieuses, dont deux avec salle d'eau privative, une salle de bains invités, une mezzanine offrant un espace de détente ou de travail, et des WC indépendants. L'ensemble de la villa a été pensé et aménagé avec des matériaux de haute qualité, offrant une atmosphère chic et raffinée à chaque pièce. Côté extérieur, une terrasse en ardoise naturelle ensoleillée de 150 m² vous permettra de profiter pleinement des moments de détente. Le terrain paysager propose un environnement verdoyant avec une magnifique vue sur la ville. Pour compléter ce bien d'exception, un double garage est également disponible pour garer vos voitures en toute sécurité, une buanderie attenante à la cuisine et une cave. =>> Les Plus : - Sols en marbre en rez de chaussée - Cuisine et aménagements hauts de gamme - Géothermie avec plancher chauffant en rdc et étage - Aspiration centralisée - Grande cour entièrement bitumée Située dans un quartier très calme et résidentiel, à proximité de la gare et du centre ville, cette villa est un véritable coup de coeur pour les amateurs de volumes généreux et de belles prestations. Honoraires d'agence à la charge du vendeur. Information d'affichage énergétique sur ce bien : classe ENERGIE B indice 82 et classe CLIMAT A indice 2. Les informations sur les risques auxquels ce bien est exposé, y compris l'obligation légale de débroussaillement, sont disponibles sur le site Géorisques : La présente annonce immobilière a été rédigée sous la responsabilité éditoriale de Mme Catherine Vautier mandataire indépendant en immobilier (sans détention de fonds), agent commercial de la SAS I@D France immatriculé au RSAC de COUTANCES sous le numéro 898056411, titulaire de la carte de démarchage immobilier pour le compte de la société I@D France SAS.
Iad France - Catherine Vautier vous propose : * Maison de Plain pied 4 pièces à Baudre 85 m² - environnement très calme - Beau Terrain plat de 1297 m² * Découvrez cette maison individuelle construite en 2006 située à Baudre à 5 mn de Saint-Lo, idéal pour une famille, première acquisition ou investissement locatif. * Description des pièces : * - Entrée avec rangements - Belle pièce de vie de 44 m² environ avec cuisine ouverte aménagée non équipée - 3 belles chambres avec placards : Chambre 1 (11.78 m²), Chambre 2 (10.5 m²), Chambre 3 (9.68 m²) - Salle de bain de 4.08 m² - WC séparé - Maison de plain-pied offrant une facilité de circulation et un accès facile à chaque pièce, - Exposition sud, pièces très lumineuses. - Beau terrain de 1297 m² offrant un espace extérieur privilégié pour des moments de détente en plein air. - Garage de 21 m² pratique pour abriter votre véhicule et offrir un espace de stockage supplémentaire. Cette propriété bénéficie également d'un système de chauffage individuel au gaz naturel pour un confort optimal en toutes saisons. Quartier calme et résidentiel, proche des commodités et des écoles, à 5 mn de Saint-Lô. À visiter sans tarder ! Honoraires d'agence à la charge du vendeur. Information d'affichage énergétique sur ce bien : classe ENERGIE C indice 103 et classe CLIMAT C indice 18. Les informations sur les risques auxquels ce bien est exposé, y compris l'obligation légale de débroussaillement, sont disponibles sur le site Géorisques : La présente annonce immobilière a été rédigée sous la responsabilité éditoriale de Mme Catherine Vautier mandataire indépendant en immobilier (sans détention de fonds), agent commercial de la SAS I@D France immatriculé au RSAC de COUTANCES sous le numéro 898056411, titulaire de la carte de démarchage immobilier pour le compte de la société I@D France SAS.
Iad France - Valentin Poullain vous propose : Au cOEur de Saint-Lô, à deux pas des commerces, écoles (de la maternelle au lycée) et transports, venez découvrir cette maison familiale rare en centre-ville, bénéficiant d’un terrain privatif, de deux places de stationnement et d’un grand sous-sol complet. Elle propose une vie de plain-pied avec une entrée, un séjour lumineux, une cuisine aménagée et équipée, une salle de bain avec douche et baignoire, une chambre, une buanderie et un WC. À l’étage, vous trouverez trois chambres supplémentaires, dont une facilement aménageable en bureau ou quatrième chambre, ainsi qu’un WC indépendant. Le bien est en excellent état, aucun gros travaux à prévoir. Avec son DPE classé C, il vous garantit un confort optimal au quotidien. Honoraires d'agence à la charge du vendeur. Information d'affichage énergétique sur ce bien : classe ENERGIE C indice 156 et classe CLIMAT C indice 16. Les informations sur les risques auxquels ce bien est exposé, y compris l'obligation légale de débroussaillement, sont disponibles sur le site Géorisques : La présente annonce immobilière a été rédigée sous la responsabilité éditoriale de M Valentin Poullain mandataire indépendant en immobilier (sans détention de fonds), agent commercial de la SAS I@D France immatriculé au RSAC de Coutances sous le numéro 910140284, titulaire de la carte de démarchage immobilier pour le compte de la société I@D France SAS.
Iad France - Arnaud Potentier vous propose : Située au Nord et à seulement 10 minutes du centre ville de Saint Lô ( La Meauffe ), cette grande maison, dont les huisseries et la chaudière au biofioul sont neufs, de 135 m² sur 2900 m² de terrain plat saura vous séduire. Une grande entrée et son couloir en prolongement desservent le séjour, une cuisine, une salle de bain et trois chambres pour une vie de plain pied. À l'étage vous trouverez deux grandes chambres ainsi qu'une salle de bain, et également la possibilité d'aménager d'autre pièces. Le sous-sol, sec et entretenu, fait toute la surface de la maison et propose un véritable espace de rangement ainsi que la possibilité de rentrer deux véhicules. La terrasse, parfaitement exposée, vous permettra de profiter de l'extérieur soigné, et de contempler le très grand terrain qui vous évitera le choix entre jardinage ou pelouse. Coup de cOEur pour les possibilités énormes de cette maison. Honoraires d'agence à la charge du vendeur. Information d'affichage énergétique sur ce bien : classe ENERGIE D indice 146 et classe CLIMAT D indice 44. Les informations sur les risques auxquels ce bien est exposé, y compris l'obligation légale de débroussaillement, sont disponibles sur le site Géorisques : La présente annonce immobilière a été rédigée sous la responsabilité éditoriale de M Arnaud Potentier mandataire indépendant en immobilier (sans détention de fonds), agent commercial de la SAS I@D France immatriculé au RSAC de CAEN sous le numéro 434271532, titulaire de la carte de démarchage immobilier pour le compte de la société I@D France SAS.

En mars 2026, deux grandes banques baissent leurs taux de crédit immobilier. Analyse des meilleures offres et conseils pour optimiser son financement.

Le marché immobilier débute 2026 dans une phase d’équilibre. Taux de crédit autour de 3 %, stabilisation des prix, pouvoir d’achat en reconstruction et comparatif de départements : découvrez notre baromètre bimestriel Janvier–Février 2026 pour comprendre où et comment acheter intelligemment.

Le marché immobilier du Rhône montre des signes de reprise avec une hausse des ventes, mais les prix restent sous pression. Décryptage d’un marché en phase de rééquilibrage.