3 résultats
Visite virtuelle 3D disponible ainsi que plans métrés ! Vue exceptionnelle sur les Pyrénées et cadre de vie à Couper le Souffle ! Située dans la charmante commune de Lézat-sur-Lèze (09210), cette propriété bénéficie d'un cadre paisible et verdoyant, offrant un véritable havre de paix à ses habitants. Nichée dans un environnement préservé, cette maison jouit d'une proximité avec des commerces locaux, écoles et services, garantissant une qualité de vie agréable. De plus, sa localisation permet un accès aisé aux autoroutes et transports en commun, facilitant les déplacements quotidiens. Cette splendide maison de 202 m², répartie sur 6 pièces dont 4 chambres, est un véritable bijou alliant charme de l'ancien et confort moderne. Avec 4 salles de bain, 2 toilettes, un garage et une belle piscine, cette demeure offre un espace de vie généreux et lumineux. Le tout est implanté sur un vaste terrain de 5220 m², offrant intimité et tranquillité à ses occupants. Ce corps de ferme rénové saura séduire les amateurs d'authenticité à la recherche d'un bien d'exception alliant caractère et fonctionnalité. Les informations sur les risques auxquels ce bien est exposé sont disponibles sur le site Géorisques : Prix de vente : 475 000 € Honoraires charge vendeur Contactez votre conseiller SAFTI : Sylvain CABA, Tél. : 06 08 40 99 31, E-mail : sylvain.caba@safti.fr - EI - Agent commercial immatriculé au RSAC de Toulouse sous le numéro 808004360.
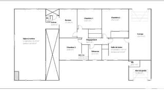
Maison de caractère à vendre à Lézat-sur-Lèze. Bâtisse rénovée en 2004 d'environ 270 m² sur 2 niveaux comprenant 3 logements. - En RDC, vous accéderez à un premier logement T3 de 98 m² disposant d'une terrasse couverte et d'un garage. L'appartement est composé d'une entrée en couloir desservant, une chambre de 13,5 m² dotée d'une salle de douche et WC, une chambre de 17,5 m² et une salle de bain avec WC de 7 m². Un salon séjour lumineux de 40 m², puis une cuisine équipée de 8 m² et un garage de 21 m². Loué meublé 780€ / mois hors charges -Toujours en rdc, un studio disposant d'un terrasse couverte de 9 m², accédant à la pièce de vie avec coin cuisine de 23 m², une mezzanine mansardée de 8 m² au sol pour le côté nuit, puis une salle de douche de 4.7 m². - Le dernier logement s'étend sur l'étage au complet avec une entrée indépendante de 14 m² avec l'escalier d'accès. On arrive sur un salon / séjour de 36 m² avec coin cuisine prolongé d'une buanderie de 7 m², puis un dégagement de 10 m² qui distribue trois chambres (12,6 m² / 15,3 m² / 17,6 m²) et une salle de bain de 7 m². Loué meublé 800€ / mois hors charges Le bâtiment est équipé de fenêtres double vitrage, volets bois, chauffage électrique et fosse septique. Référence agence : 2243.
À proximité du centre ville et un accés facilité vers Toulouse par la vallée de la Lèze, cette maison de plain pied avec sous-sol complet d'une belle hauteur sous plafond saura répondre aux besoins des bricoleurs ou collectionneurs. Spacieux, lumineux et fonctionnel, ce bien vous offre une grande terrasse exposée plein sud. Honoraires inclus dans le prix : 6%.
Autres annonces à proximité de Lézat-sur-Lèze (09210) avec vos critères
À 5 min de Saint-Sulpice-sur-Lèze, venez découvrir cette propriété unique et de caractère dans un cadre surprenant et intimiste. Venez vous immerger dans ce lieu incroyable. Vous profiterez d'une vue imprenable sur la chaîne des Pyrénées ainsi que sur les coteaux. Cette propriété de 1983 fait 282 m² habitable, avec un sous-sol d'environ 230 m², sur 1,5 hectare de terrain. L'extérieur du bien vous offre plusieurs activités tels qu'un étang vous offrant une sérénité unique, un mini terrain de golf pour les amateurs, un terrain de pétanque, une piscine au chlore couverte, et tant d'autres choses à découvrir. Cette propriété se compose au rez-de-chaussée d'une grande entrée avec placards intégrés, un couloir desservant toutes les pièces. Une suite parentale d'environ 30 m² avec dressing et salle d'eau, un accès à la terrasse exposée sud par la chambre ainsi que la salle d'eau. Une seconde chambre avec sa salle d'eau privative. Une troisième chambre, avec une salle d'eau attenante. Une quatrième chambre. Un wc indépendant. Un bureau avec accès à la terrasse, et une jolie vue sur le jardin. Le couloir dessert ensuite un grand séjour / salle à manger lumineux, équipé d'une climatisation réversible, avec accès également à l'extérieur. Une cuisine indépendante équipée, avec aussi accès au jardin. À l'étage, le pallier dessert un bureau, trois chambres identiques avec placards intégrés, une salle d'eau avec wc. De nombreux rangements sont présents à l'étage. Dans la tour de gauche, à l'étage, il y a un très beau potentiel d'aménagement de plus de 50 m². Un sous sol intégral de 230 m², avec accès à l'extérieur. Un garage indépendant d'environ 30 m² se trouve également sur la propriété. Les prestations : panneaux photovoltaïques autoconsommation, chaudière individuelle au fioul, fosse septique, climatisation réversible dans plusieurs pièces, volets roulants électrique. Véritable havre de paix qui offre une intimité rare et un calme absolu. Loin de l'agitation de la vie citadine tout en gardant la proximité de Toulouse. Ici, le temps semble suspendu, invitant à la contemplation avec un chêne de 300 ans, et laissant place à un rythme de vie en symbiose avec la nature. Visite Virtuelle disponible sur demande. Charlotte Gauthier (06 44 36 97 26), Agent commercial (EI) immatriculée au RSAC no 920 667 680, Toulouse, Réseau Immobilier Régional, IMMOJOY Les informations sur les risques auxquels ce bien est exposé sont disponibles sur le site Géorisques : 1.

Recevez en temps réel les dernières annonces correspondant à votre recherche
Bien rare et exceptionnel entre Carbonne et Noé ! Laissez-vous séduire par cette belle villa de standing, construite en 2020 (RT2012), T5 de 142 m² hab env de plain-pied sur une parcelle de 1200 m² avec piscine, sa dépendance et un cabanon bâti, à Marquefave. Cette maison lumineuse et très bien entretenue offre un cadre de vie idéal car elle allie modernité, confort, élégance et prestations haut de gamme. Espaces intérieurs : Vaste espace de vie de 69 m², traversant et lumineux ouvrant sur 2 terrasses idéalement exposées, avec vue sur la piscine et / ou le jardin, Cuisine dinatoire ouverte entièrement aménagée et équipée, disposant d'un grand ilot central et offrant un bel espace convivial, Dégagement spacieux vers le coin nuit (avec ses portes élégantes à hauteur du plafond, parquet massif et placard), Suite parentale (avec parquet massif, salle d'eau / WC privative et dressing aménagé), ouvrant la terrasse et la piscine, 3 chambres confortables avec parquet massif dont 2 avec un grand placard, Une salle de bains (avec baignoire et douche à l'italienne, double vasque, sèche-serviette, WC et fenêtre, 1 WC indépendant avec lave-mains et fenêtre. Annexes & Espaces extérieurs : Un garage attenant de 35 m² env carrelé et isolé, avec porte sectionnelle automatisée, double placard et coin buanderie, Piscine 8 x 4m installée en 2021, avec ses abords aménagés, Une dépendance de 19 m² avec cuisine d'été, barbecue maçonné, comptoir bar, et WC avec lave-mains, Un cabanon carrelé de 9.5 m², Belle parcelle de + de 1200 m² paysagée et arborée, entièrement clôturée avec portillon et portail automatisé, avec allée en béton lissé, 2 terrasses spacieuses et carrelées (77 m²) idéalement exposées avec vue sur la piscine et / ou le jardin, Prestations : Matériaux de qualité et prestations haut de gamme, Chauffage par PAC réversible gainable, Menuiseries en aluminium, oscillo-battantes, avec volets roulants électriques, Spots LED et bandeaux lumineux intégrés, éclairage indirect, Hauteur sous plafond (2.50 à 3m), Parquet massif, Nombreux rangements, Alarme, domotique, fibre optique, Panneaux solaires photovoltaïques (autoconsommation), Toits 4 pentes, toits plats (dépendances), Trottoir autour de la maison, Arrosage automatique intégré, Portail et porte de garage sectionnelle automatisés. Commodités : Commerces < 3km Ecole à < 1km, A64 à 3min et Gare à 5min. Aucun travaux à prévoir & Coup de Coeur assuré ! Ne manquez pas cette opportunité de vivre dans une maison de charme, alliant prestations haut de gamme, confort et beaux espaces dans un environnement privilégié ! Contactez-moi dès maintenant pour tout renseignement complémentaire ou visite ! Christelle COBO (EI) au O6.1O. O7.83. O4 Votre conseiller C3H IMMO : Christelle COBO Agent commercial (Entreprise individuelle) RSAC 830542189.
Iad France - Sandrine Leboeuf vous propose : Magnifique Maison Traditionnelle de 205 m² à Lagrâce-Dieu - Charme et Prestations Haut de Gamme Cette somptueuse maison traditionnelle située à Lagrâce-Dieu offre un cadre de vie exceptionnel, alliant charme et confort. Construite avec des matériaux de qualité, cette propriété de 8 pièces sur un vaste terrain de 1736 m² est un véritable havre de paix. En pénétrant dans cette demeure, vous serez immédiatement séduit par ses grands espaces de vie 70.86 m² lumineux et accueillants. Vous trouverez 3 chambres aménagées au RDC dont une de 21 m² et 4 chambres à l’étage offrant une grande liberté pour personnaliser chaque espace à votre goût. De plus, la maison dispose de plusieurs terrasses dont une orientée plein sud, idéale pour profiter du soleil et des repas en extérieur. L'ensemble est complété par un garage spacieux et d’un atelier, de deux places de parking extérieures, assurant un stationnement facile et sécurisé. Vous pourrez profiter de 3 autres terrasses pour varier les plaisirs et les ambiances en fonction des saisons. Côté équipements, cette maison bénéficie d'un chauffage individuel par géothermie ainsi que d'un système de chauffage au sol et d'une pompe à chaleur, assurant un confort optimal tout au long de l'année. De plus, vous disposerez de la fibre optique pour une connexion internet rapide et stable, ainsi que d'un système de ventilation mécanique pour une atmosphère saine et agréable. Le quartier résidentiel et calme de Lagrâce-Dieu est un véritable atout, offrant un cadre de vie paisible. Cette maison, en excellent état général, ne nécessite aucuns travaux, vous n'avez plus qu'à y poser vos valises et à profiter de ce joyau immobilier. Ne manquez pas cette opportunité unique d'acquérir une maison traditionnelle de caractère dans un cadre enchanteur à Lagrâce-Dieu. Contactez-moi dès maintenant pour organiser une visite et découvrir tous les atouts de ce bien d'exception. Honoraires d'agence à la charge du vendeur. Information d'affichage énergétique sur ce bien : classe ENERGIE C indice 126 et classe CLIMAT A indice 3. Les informations sur les risques auxquels ce bien est exposé, y compris l'obligation légale de débroussaillement, sont disponibles sur le site Géorisques : La présente annonce immobilière a été rédigée sous la responsabilité éditoriale de Mme Sandrine Leboeuf mandataire indépendant en immobilier (sans détention de fonds), agent commercial de la SAS I@D France immatriculé au RSAC de Toulouse sous le numéro 884987306, titulaire de la carte de démarchage immobilier pour le compte de la société I@D France SAS.
[exclusivite][coup de cœur] nichée au cœur du village de puydaniel (31), à seulement quelques minutes d'auterive et de ses commodités, cette villa moderne et irréprochable. De plain-pied, elle offre un cadre de vie confortable et apaisant, idéal pour les familles en quête d'espace et de tranquillité. Développant une surface habitable de 156,95 m², elle se compose d'un bel espace de vie lumineux de 82.48 m² tourné vers l'extérieur, avec de larges ouvertures, et d'une cuisine contemporaine aménagée avec accès direct à la terrasse. Côté nuit, vous trouverez trois chambres confortables, dont une suite parentale indépendante, d'environ 25 m², avec dressing et salle d'eau privative. Un cellier / buanderie attenant donnant sur un second wc séparé et un garage isolé de 44 m² complètent l'ensemble. Possibilité de réaliser une 4ème chambre très facilement. Le terrain de 1466 m², soigneusement aménagé, offre un bel équilibre entre espaces verts et terrasse bois, parfait pour profiter des beaux jours en toute intimité. Celui-ci est piscinable et il reste du droit à construire. Les équipements sont au rendez-vous : -pompe à chaleur gainable pour chauffage et climatisation -chauffe-eau thermodynamique -menuiseries aluminium et baies vitrées à galandage -volets roulants motorisés construction 2022 répondant aux dernières normes, matériaux de qualité et environnement paisible. N'attendez plus, contactez-moi ! Les honoraires d'agence sont à la charge de l'acquéreur, soit 4,36% ttc du prix hors honoraires. Les informations sur les risques auxquels ce bien est exposé sont disponibles sur le site géorisques : www. Georisques. Gouv. Fr. Réseau immobilier capifrance - votre agent commercial (rsac n°903 049 088 - greffe de toulouse) benoit husson entrepreneur individuel 06 67 00 84 37 - réf. 927985.
Venez découvrir cette agréable maison de plain-pied de 102 m², située dans un environnement calme et recherché à Caujac. Elle offre un grand séjour lumineux avec cuisine ouverte refaite en 2024, donnant directement sur une spacieuse terrasse, idéale pour profiter des beaux jours. L'espace nuit comprend 3 chambres, un bureau, une salle d'eau et un WC séparé. Un grand garage attenant avec mezzanine offre de multiples possibilités d'aménagement, voire la création d'une pièce supplémentaire. Le tout sur un terrain d'environ 600 m², piscinable, avec abri de jardin et puits. Un portail coulissant neuf (2024) complète ce bien pratique et bien entretenu. Une maison fonctionnelle, évolutive et agréable à vivre à découvrir sans tarder ! Les informations sur les risques auxquels ce bien est exposé sont disponibles sur le site Géorisques : Prix de vente : 255 000 € Honoraires charge vendeur Contactez votre conseiller SAFTI : Laura ANDRIEUX, Tél. : 06 24 56 16 38, E-mail : laura.andrieux@safti.fr - EI - Agent commercial immatriculé au RSAC de Toulouse sous le numéro 914524954.
Posez les valises et découvrez cette maison de plain-pied, construite en 2009, sur un terrain clos de 687 m². Situé dans le charmant village de Caujac, ce bien lumineux, d'une superficie de 100 m², offre tout le confort et l'espace souhaité. La pièce de vie de 46 m² avec son parquet massif, offre une ambiance chaleureuse et accueillante. La cuisine, entièrement refaite à neuf en 2024, est le cœur de la maison. Elle comprend un îlot central, idéal pour préparer de délicieux repas en famille ou entre amis. Côté nuit, vous serez séduit par ses trois chambres généreuses, parfaites pour accueillir une famille. Vous disposez d'un dressing, offrant un espace de rangement supplémentaire très pratique. La salle de bain (entièrement refaite en 2024), est équipée d'une douche à l'italienne et d'un meuble vasque, tandis que les toilettes sont séparées pour plus de confort. Le garage attenant est un atout majeur, avec une mezzanine de rangement qui répondra à tous vos besoins de stockage. À l'extérieur, vous profiterez d'un magnifique jardin de 687 m², entièrement clos et arboré avec sa terrasse de 40 m² carrelée et son abri de jardin de 8 m² (puits - terrain piscinable). Portail coulissant remplacé en 2024, boite aux lettres neuves, porte de garage électrique, menuiseries PVC double-vitrage et volets roulants électriques (posés en 2024). À découvrir rapidement ! Pour plus d'informations ou pour organiser une visite, contactez-nous dès maintenant. Les honoraires sont à la charge du vendeur. Les informations sur les risques auxquels ce bien est exposé sont disponibles sur le site Géorisques : www. georisques. gouv. fr. Réseau Immobilier CAPIFRANCE - Votre agent commercial (RSAC N°903 049 088 - Greffe de TOULOUSE) Benoit HUSSON Entrepreneur Individuel 06 67 00 84 37 - Réf. 911156.
Iad France - Mélodie Sarpedonti-Bonhoure vous propose : Maison familiale de plain-pied – 153 m² – 4 chambres – Parcelle 885 m² Située dans un environnement calme, cette maison de plain-pied construite en 2010 développe 153 m² habitables sur une parcelle entièrement clôturée de 885 m². Elle propose un bel espace de vie traversant et lumineux, ouvert sur une cuisine entièrement aménagée et équipée, donnant accès à une grande terrasse couverte de 70 m², idéale pour profiter des beaux jours. La partie nuit se compose de trois chambres et d’une suite parentale, offrant confort et intimité à toute la famille. Une salle de bain familiale avec baignoire balnéo complète cet espace. Côté pratique, la maison dispose d’un garage isolé, et d’une cuisine d'été. Le système de chauffage est assuré par des radiateurs électriques performants et le bien bénéficie d’un bon DPE. À l’extérieur, le terrain offre un beau potentiel avec une piscine à terminer et des aménagements à personnaliser selon vos envies. Enfin, la commune dispose d’une école primaire. Le collège est rattaché à la commune voisine de Auterive, et une ligne de bus dessert directement le lycée Pierre d’Aragon à Muret. Honoraires d'agence à la charge de l'acquéreur. Prix honoraires inclus : 329000 euros. Prix hors honoraires : 316000 euros. Honoraires TTC à la charge de l'acquéreur (4,11% du prix du bien hors honoraires) : 13000 euros. Information d'affichage énergétique sur ce bien : classe ENERGIE C indice 177 et classe CLIMAT A indice 5. Les informations sur les risques auxquels ce bien est exposé, y compris l'obligation légale de débroussaillement, sont disponibles sur le site Géorisques : La présente annonce immobilière a été rédigée sous la responsabilité éditoriale de Mme Mélodie Sarpedonti-Bonhoure mandataire indépendant en immobilier (sans détention de fonds), agent commercial de la SAS I@D France immatriculé au RSAC de TOULOUSE sous le numéro 895388304, titulaire de la carte de démarchage immobilier pour le compte de la société I@D France SAS.
« Le Moulin » Au cœur d'un splendide parc arboré, découvrez cette charmante maison de Maître en galet de garonne des années 1900 d'une superficie de 288 m². Spacieux, le rez-de-chaussée se compose d'un séjour très lumineux, d'une salle à manger avec cheminée, d'une cuisine et d'un bureau. Le couloir en carreaux de ciment ancien distribue deux grandes chambres, une salle de bains et deux points d'eau. Au premier étage, se situent deux chambres, une salle de bains et un bureau. Au sous-sol, une cave à vin en terre et de nombreuses pièces (cuisine, buanderie. ) complètent cette demeure. Vous serez séduits par ce bien aussi rare qu'exceptionnel. (Terrain de 3 000 m² en sus) Prix de vente : 650 000euros FAI dont 25 000euros d'honoraires à charge acquéreur (625 000euros net vendeur) Pour le visiter : 05 62 27 59 60 / 62.
À proximité immédiate du centre du village de Saint-Élix-le-Château, cette maison familiale d'environ 140 m² habitables offre un beau potentiel d'aménagement sur un terrain plat et arboré de 1 940 m² avec puits et arrosage automatique. Construite en 1982 par un architecte local, elle se distingue par la qualité de sa conception et la solidité de sa structure : hourdis, charpente traditionnelle, vide sanitaire et volumes bien équilibrés. Elle se compose de : • une entrée avec placards, • un séjour-salon lumineux de 40 m² orienté sud-ouest, • une cuisine indépendante, • trois grandes chambres, dont une de plus de 25 m², • une salle de bains, • un WC indépendant, • une buanderie, • et un garage double préfabriqué en annexe. L'intérieur, propre et sain, nécessite aujourd'hui une rénovation complète : remplacement des menuiseries, amélioration de l'isolation, création d'un système de chauffage, modernisation des sanitaires, installation d'une VMC et mise en conformité de la fosse septique. Ces travaux peuvent être réalisés progressivement, permettant à chacun d'avancer à son rythme et selon ses moyens. Le cadre est calme et verdoyant, à seulement 3 minutes de l'autoroute A64,10 minutes de Carbonne et environ 40 minutes de Toulouse. Commerces, école et services sont accessibles à pied depuis la maison. 233,750 € Honoraires d'agence non inclus - Honoraires agence : 6.95%TTC Honoraires à la charge de l'acquéreur - Les informations sur les risques auxquels ce bien est exposé sont disponibles sur le site Géorisques : - Gilles DE COURS - Agent commercial - EI - RSAC Toulouse 347 713 596.
À 5 min de Carbonne située sur la Commune de Rieux-Volvestre Maison T3 d'environ 70 m² habitables, implantée sur un terrain d'environ 2 800 m² (divisible), offrant de nombreuses possibilités d'évolution. Elle se compose : d'une entrée, d'un séjour lumineux avec cuisine indépendante, de deux chambres, d'un bureau, d'une salle d'eau avec douche, d'un WC indépendant. Les combles sont aménageables, offrant un beau potentiel d'agrandissement. Vous disposerez également d'un garage attenant de 20 m², d'un abri extérieur, et d'un vaste terrain propice à différents aménagements. Assainissement individuel Pour tout renseignement ou organiser une visite : Romain Lacombe O6.69. 05.38. 48.
Maison de plain-pied avec grand jardin arboré 90 m² habitables + garage Située au calme, en bout d'impasse, cette maison allie confort moderne et cadre verdoyant. Implantée sur une parcelle de 1 400 m², elle offre un véritable havre de paix avec son jardin fleuri et arboré, son puits pittoresque, ainsi qu'une cabane en bois et un grand appentis. Les atouts extérieurs : Superficie de terrain : 1 400 m² clôturés Jardin arboré, fleuri et parfaitement entretenu Calme absolu, sans vis-à-vis Puits authentique Cabane en bois et grand appentis pour rangement ou atelier Terrasse donnant sur le jardin. Les atouts intérieurs : Superficie habitable : 90 m² de plain-pied Séjour lumineux de 37 m² climatisé avec poêle à bois Cuisine rénovée de 16 m², équipée, ouverte sur terrasse 3 chambres confortables Salle d'eau moderne + WC séparé Garage attenant Confort et sécurité : Maison entièrement clôturée Quartier paisible et résidentiel À proximité des commodités Cette maison est idéale pour ceux qui recherchent tranquillité, espace et nature, tout en restant proches des services essentiels. Contactez-moi dès maintenant pour organiser une visite : 06 23 03 56 14 Corinne DELHOM Agent Commercial Immatriculée au RSAC de Toulouse n° 535 003 370 Votre conseiller C3H IMMO : Corinne DELHOM Agent commercial (Entreprise individuelle) RSAC 535 003 370.
Coup de coeur en exclusivité ! Dans la commune de Noé, nous vous proposons à la vente dans un lieu charmant, une maison T4 rénovée des années 1970 sur deux niveaux d'environ 117 m² habitable sur un terrain arboré de 815 m². À l'étage elle se compose d'une entrée qui s'ouvre directement sur le séjour / salle à manger très lumineux, équipé d'un poêle à bois. Ainsi qu'une cuisine américaine équipée. Vous trouverez ensuite un wc indépendant. Le rez-de-chaussé se compose d'un espace qui dessert toutes les pièces mais qui peut servir de bureau d'appoint, cet espace amène aux 3 chambres, une salle de bain et une buanderie incluant un wc. À l'extérieur laissez-vous séduire par ce jardin arboré. Le jardin possède un abris bois de jardin servant d'atelier ou de stockage. Un espace de stationnement est dédié pour accueillir plusieurs véhicules. Prestations : double vitrage, poêle à bois, comble isolés, panneaux rayonnants électriques, fibre. À noter qu'à partir de janvier 2026, normalement après simulation réalisée le dpe peut passer de la lettre E à D, par rapport aux nouvelles méthodes de calcul des dpe qui vont être réévaluées. Charlotte Gauthier (06 44 36 97 26), Agent commercial (EI) immatriculée au RSAC no 920 667 680, Toulouse, Réseau Immobilier Régional, IMMOJOY Les informations sur les risques auxquels ce bien est exposé sont disponibles sur le site Géorisques : 1.
Corps de ferme de plus de 160 m² avec du cachet, les propriétaires ont su préserver l'authenticité des lieux, proche des commodité. Vous disposez d'un séjour spacieux et lumineux de 3 chambres et 1 bureau, de nombreuses dépendances pour vos futurs projets. Un grand parc arboré de 5400 m² vous attend pour profiter de la nature. Proposition d'aménagement virtuel non contractuelle en dernière photo. Honoraires inclus dans le prix : 5.9%.
Maison T3 d'environ 70 m² habitables, implantée sur un terrain d'environ 2 800 m² (divisible), offrant de nombreuses possibilités d'évolution. Elle se compose : d'une entrée, d'un séjour lumineux avec cuisine indépendante, de deux chambres, d'un bureau, d'une salle d'eau avec douche, d'un WC indépendant. Les combles sont aménageables, offrant un beau potentiel d'agrandissement. Vous disposerez également d'un garage attenant de 20 m², d'un abri extérieur, et d'un vaste terrain propice à différents aménagements. Assainissement individuel Pour tout renseignement ou organiser une visite : Romain Lacombe O6.69. 05.38. 48.
Découvrez Casa Olivia, une villa T5 de 204 m², construite en 2018. Située en position dominante, elle offre une vue imprenable sur Miremont et la campagne environnante. Le salon, spacieux et lumineux, avec sa cheminée et son mur en briques, crée une ambiance chaleureuse. La cuisine, véritable joyau, se distingue par son design élégant et son meuble remarquable, complété par une arrière-cuisine pratique offrant un accès direct au garage. La suite parentale, avec son accès à la piscine, est un véritable refuge. À l'étage, trois chambres profitent d'une grande terrasse, idéale pour se détendre tout en admirant la vue. La salle de bain des enfants comprend une baignoire, une douche, un toilette et un meuble double vasque. L'ensemble de la maison bénéficie de matériaux haut de gamme et d'une finition irréprochable. Le garage, pratique, ainsi que 20 m² de combles à aménager complètent cet ensemble. La piscine devient un espace idéal pour les moments de détente. Casa Olivia est une maison qui combine élégance, fonctionnalité et confort. Une visite s'impose absolument pour découvrir ce bien magnifique qui vous séduira à coup sûr ! Les informations sur les risques auxquels ce bien est exposé sont disponibles sur le site Géorisques : Prix de vente : 485 000 € Honoraires charge vendeur Contactez votre conseiller SAFTI : Sébastien HOYBEL, Tél. : 06 66 04 89 45, E-mail : sebastien.hoybel@safti.fr - EI - Agent commercial immatriculé au RSAC de Nantes sous le numéro 490961257.
Perchée sur les hauteurs de Miremont, cette villa de caractère vous offre un cadre de vie privilégié, alliant calme, espace et confort. Implantée sur un terrain arboré de 2500 m², elle se compose de 149 m² habitables pensés pour votre bien-être avec son double accès (escalier et plain-pied). L'espace de vie : Vous serez séduit par le grand séjour lumineux avec cuisine ouverte équipée. Les plafonds cathédrale apportent de superbes volumes, tandis qu'un poêle à bois neuf crée une ambiance chaleureuse pour vos soirées d'hiver. L'espace nuit se compose d'une suite parentale de plus de 20 m², véritable havre de paix avec son dressing spacieux et sa baignoire balnéo. Trois chambres supplémentaires complètent cet espace, accompagnées d'une salle de bain et d'un WC indépendant. Les extérieurs, un véritable plus : Le terrain de 2500 m² est aménagé pour profiter pleinement de la vie en extérieur : - Terrasse pour vos repas en famille - Cuisine d'été - Piscine avec pool house (douche et WC) - Terrain de pétanque - Potager pour les amateurs de jardinage - Chalet indépendant pouvant servir de bureau (idéal télétravail) Un potentiel d'aménagement exceptionnel : Le sous-sol offre 3 garages de 180 m² modulables selon vos projets : atelier, salle de sport, cave à vin, espace loisirs Les possibilités sont multiples ! Une propriété rare qui allie espace, tranquillité et qualité de vie. Et si c'était votre futur chez-vous ? Contactez moi pour organiser une visite. Les informations sur les risques auxquels ce bien est exposé sont disponibles sur le site Géorisques : Prix de vente : 430 000 € Honoraires charge vendeur Contactez votre conseiller SAFTI : Manon TOTTOLO, Tél. : 07 61 99 70 36, E-mail : manon.tottolo@safti.fr - EI - Agent commercial immatriculé au RSAC de Toulouse sous le numéro 944741859.
Iad France - Sandrine Leboeuf vous propose : Superbe Maison Familiale de 4 Chambres avec Grand Terrain à Miremont Découvrez cette magnifique maison individuelle de type t5, idéalement située à Miremont, offrant un cadre de vie calme et verdoyant. Récemment rénovée, cette propriété saura séduire les familles à la recherche de confort et d'espace. Le vaste séjour lumineux et la cuisine ouverte équipée offrent un espace de vie convivial et chaleureux. Vous pourrez profiter de moments de détente en famille ou entre amis sur la terrasse extérieure, idéale pour des repas en plein air ou simplement se relaxer en admirant le jardin. Vous serez charmé par les 4 chambres spacieuses offrant un espace privé et cosy à chacun de ses occupants. La maison dispose également d'une salle de bain moderne et de 2 toilettes pour un confort optimal. La maison est implantée sur un grand terrain arboré de 1115 m², offrant de nombreuses possibilités d'aménagement. Pour votre confort, un garage en sous-sol est également disponible pour stationner vos véhicules en toute sécurité. L'emplacement de cette propriété est idéal, proche des commodités et des écoles, tout en bénéficiant d'un environnement calme et préservé. Vous pourrez profiter de la tranquillité de la campagne tout en étant à proximité des axes routiers. Ne laissez pas passer cette opportunité unique d'acquérir une maison familiale offrant confort, espace et sérénité à Miremont. Contactez-nous dès maintenant pour organiser une visite et laissez-vous séduire par ce bien d'exception. Honoraires d'agence à la charge du vendeur. Information d'affichage énergétique sur ce bien : classe ENERGIE D indice 229 et classe CLIMAT D indice 47. Les informations sur les risques auxquels ce bien est exposé, y compris l'obligation légale de débroussaillement, sont disponibles sur le site Géorisques : La présente annonce immobilière a été rédigée sous la responsabilité éditoriale de Mme Sandrine Leboeuf mandataire indépendant en immobilier (sans détention de fonds), agent commercial de la SAS I@D France immatriculé au RSAC de Toulouse sous le numéro 884987306, titulaire de la carte de démarchage immobilier pour le compte de la société I@D France SAS.
Laissez-vous séduire par cette belle villa de standing construite en 2009, de 140 m² habitables de plain-pied à Miremont, sur une parcelle arborée et paysagée de + de 1700 m². Située dans un quartier résidentiel, cette maison lumineuse et très bien entretenue offre un cadre de vie idéal avec des finitions de qualité et des prestations haut de gamme. Espaces intérieurs : Bel espace de vie, traversant et lumineux ouvrant sur la terrasse, avec vue sur la piscine et le jardin arboré et paysagé, Cuisine dinatoire ouverte entièrement aménagée et équipée, disposant d'un ilot central et d'un cellier attenant, Suite parentale (avec parquet massif, grand placard, salle d'eau / WC privative) ouvrant sur une belle terrasse aménagée et intimiste qui invite à la détente avec son spa, 1 chambre de 14 m² env avec placard et mezzanine, 2 chambres confortables avec placard de 10.5 m² env, Espace bureau avec placard, Salle de bains (avec double vasque, sèche-serviette et fenêtre), Buanderie indépendante, WC indépendant. Annexes & Espaces extérieurs : Un garage attenant de 22 m² env carrelé et isolé, avec prise pour recharge véhicule électrique, Un garage indépendant de 18 m² env, carrelé, avec placard et porte sectionnelle, Piscine semi-enterrée avec ses abords aménagés, Belle parcelle de + de 1700 m² paysagée et arborée, entièrement clôturée avec portail automatisé, avec allées pavées et goudronnées, Une grande terrasse idéalement exposée avec vue sur la piscine et le jardin arboré, Une 2ème terrasse arborée et aménagée avec un SPA, Boulodrome. Prestations : Maison de construction traditionnelle, matériaux de qualité, isolation performante, Hauteur sous plafond et plafond rampant, Chauffage par PAC réversible gainable, Cheminée au bioéthanol dans le séjour, Menuiseries en aluminium ou PVC avec volets roulants électriques, Spots LED intégrés, éclairage indirect, Fibre optique, Portail et porte de garage sectionnelle automatisés. Commodités : Commerces et Ecole à < 1km, Axe routier à 4min, Gare à 8min. AUCUN TRAVAUX A PREVOIR ! Ne manquez pas cette opportunité de vivre dans une maison de charme, alliant prestations / finitions haut de gamme, confort et beaux espaces dans un environnement paisible et privilégié ! Contactez-moi dès maintenant pour tout renseignement complémentaire ou visite ! Christelle COBO (EI) au O6.1O. O7.83. O4 Votre conseiller C3H IMMO : Christelle COBO Agent commercial (Entreprise individuelle) RSAC 830542189.
Un cadre de vie privilégié Nichée au cœur du village dynamique et authentique de Miremont, cette maison contemporaine combine esprit familial, modernité et confort haut de gamme. Proche de Toulouse, elle offre une qualité de vie rare : le charme de la campagne avec toutes les commodités à portée de main (commerces, crèche, écoles maternelles et primaires, bibliothèque…). Une maison moderne et lumineuse sans vis à vis Construite en 2016, cette demeure de 204 m² habitables a été pensée pour offrir des volumes généreux et un confort optimal : Un vaste séjour de 40 m² très lumineux Une cuisine équipée moderne et fonctionnelle 2 grandes chambres (14 m² chacune) et une suite parentale (18 m²) offrant espace et confort 7 pièces au total, permettant d'adapter les espaces selon vos besoins (bureau, salle de jeux, etc.) Rangements multiples intégrés et optimisés Un garage de 21 m² et une toiture-terrasse aménagée ajoutant un espace de vie extérieur original et convivial Des prestations haut de gamme Structure en béton cellulaire : isolation renforcée et durabilité Chauffage au sol au gaz pour un confort thermique optimal Insert dans le séjour : chaleur douce et atmosphère chaleureuse, idéal pour les soirées d'hiver et pour réduire sa consommation d'énergie Piscine pour profiter des beaux jours en famille ou entre amis DPE A / A : une maison économe en énergie et respectueuse de l'environnement L'alliance parfaite entre modernité et qualité de vie Implantée sur un terrain de 305 m², la maison offre l'avantage d'avoir un extérieur harmonieux avec piscine, mais sans les contraintes d'entretien d'un grand jardin. Un équilibre parfait pour ceux qui souhaitent profiter des beaux jours tout en gardant du temps libre au quotidien. Avec son emplacement central dans Miremont, ses volumes généreux et ses équipements modernes, cette maison et Idéale pour une famille à la recherche d'espace, de confort et d'un cadre de vie serein, à seulement 5 minutes d'Auterive (collège et lycée) et 30 minutes de Toulouse. Une opportunité rare alliant économie d'énergie, confort moderne et situation privilégiée. Les honoraires sont à la charge du vendeur. Les informations sur les risques auxquels ce bien est exposé sont disponibles sur le site Géorisques : www. georisques. gouv. fr. Réseau Immobilier CAPIFRANCE - Votre agent commercial (RSAC N°422 419 069 - Greffe de TOULOUSE) Stéphane FERRER Entrepreneur Individuel 06 40 96 93 74 - Réf. 920108.
Visite virtuelle disponible sur demande en exclusivité sandrine duport vous présente sur la commune de le fossat en ariège au coeur d'un environnement privilégié une villa 4 faces de 2009. Idéalement située à environs 40 mn de portet sur garonne., 30mn de pamiers, cette localisation offre un accès facile aux commodités tout en préservant la tranquillité. Cette villa spacieuse vous séduira par ses nombreux atouts : - 4 chambres dont une suite parentale en rez-de-chaussée - un vaste salon lumineux avec exposition sud-ouest - une cuisine entièrement équipée - un bureau idéal pour le télétravail - 2 wc séparés, un en rez-de-chaussée et un à l'étage - une salle de bain avec double vasques, douche et baignoire à l'étage - une grande pièce aménagée en cuisine d'été buanderie de plus de 28 m² non comprise dans la surface habitable un garage de 34 m² séparé parfait pour vos véhicules le chauffage est assuré par un clim réversible une pompe à chaleur et un poêle à granulés de 2020. Volets roulants, double vitrage, profitez d'un terrain de 890 m² avec peu d'entretien, d'une piscine de 8m x4 au sel et d 'un pool house parfaits pour se détendre en toute sérénité les journées ensoleillées venez découvrir cette belle région, où la qualité de vie est exceptionnelle. Ne manquez pas cette opportunité unique de vous installer dans un lieu alliant confort et nature. Dpe : b 103 kwh / m2 / an ges : a 3 kg / co2 / m2 / an taxe foncière : 2086 euros pour visiter et vous accompagner dans votre projet, contactez sandrine duport, au 06 35 44 60 05 ou, par courriel à s.duport@proprietes-privees.com. Selon l'article l. 561.5 du code monétaire et financier, pour l'organisation de la visite, la presentation d'une piece d'identite vous sera demanee. Cette présente annonce a été rédigée sous la responsabilité éditoriale de sandrine duport agissant sous le statut d'agent commercial immatriculé au rsac perpignan 821961133 auprès de sas proprietes privees, au capital de 44 920 euros, zac le chêne ferré - 44 allée des cinq continents 44120 vertou; siret 487 624 777 00040, rcs nantes. Carte professionnelle transactions sur immeubles et fonds de commerce (t) et gestion immobilière (g) n°cpi 4401 2016 000 010 388 délivrée par la cci nantes - saint nazaire. Compte séquestre n°309 32 50 84 67 bpa saint-sebastien-sur-loire (44230). Garantie galian-smabtp - 89 rue de la boétie, 75008 paris - n°28137 j pour 2 000 000 euros pour t et 120 000 euros pour g. Assurance responsabilité civile professionnelle par galian-smabtp n° de police 28137. J mandat réf : 398657 - le professionnel garantit et sécurise votre projet immobilier. Sandrine duport (ei) agent commercial - numéro rsac : perpignan 821961133 -. Les informations sur les risques auxquels ce bien est exposé sont disponibles sur le site géorisques : www. Georisques. Gouv. Fr.
Située à Carla-Bayle (09130), cette propriété bénéficie d'un cadre paisible en pleine campagne sans proximité avec le voisinage. Profitant d'une exposition plein sud, elle offre un environnement calme et verdoyant, idéal pour les amoureux de la nature. À proximité, vous trouverez des commerces locaux ainsi que des sentiers de randonnée pour profiter pleinement du cadre naturel exceptionnel offert par la région. À l'extérieur, cette maison de charme en pierre de 210 m² s'étend sur un vaste terrain de 6967 m² certifié Bio et arboré, comprenant une grande terrasse offrant un espace extérieur agréable pour se détendre en toute tranquillité. Une grange attenante de 85 m², un atelier servant également d'ecurie, deux puits et une dépendance. À l'intérieur, la maison se caractérise par ses 4 chambres, ses 2 salles de bain et ses 2 toilettes réparties sur 6 pièces. La cuisine équipée s'ouvre sur un double séjour lumineux donnant accès à la terrasse. Une grande mezzanine surplombe le salon, offrant un espace supplémentaire. Les équipements incluent des panneaux solaires pour la production d'eau chaude, du double vitrage, une cheminée ouverte dans le salon. Avec une toiture en bon état, cette propriété est prête à accueillir ses nouveaux propriétaires dans un cadre chaleureux et fonctionnel. Bien rare sur le secteur, idéal pour divers projets. 6000€ de crédit d'impôt grâce au terrain en Bio. Les informations sur les risques auxquels ce bien est exposé sont disponibles sur le site Géorisques : Prix de vente : 348 870 € Honoraires charge vendeur Contactez votre conseiller SAFTI : Arnaud FAUBERT, Tél. : 06 08 48 52 91, E-mail : arnaud.faubert@safti.fr - EI - Agent commercial immatriculé au RSAC de FOIX sous le numéro 539 262 980.
À découvrir à Auterive, dans un secteur calme et proche des commerces, écoles et commodités, cette maison de plain-pied d'environ 91 m² offre un beau potentiel. Elle se compose d'un séjour lumineux, d'une cuisine indépendante, de 3 chambres, d'une salle de bain, d'une buanderie, d'un garage et de combles offrant un espace de rangement supplémentaire. Le tout sur un terrain agréable et clôturé de plus de 600 m², avec terrasse couverte pour profiter des beaux jours. Maison saine, bien agencée, idéale pour une petite famille, un couple ou des primo-accédants souhaitant réaliser une rénovation à leur goût. Cette maison offre une belle base solide et un cadre de vie agréable à proximité du centre d'Auterive. Des travaux de rafraîchissement sont à prévoir. Les informations sur les risques auxquels ce bien est exposé sont disponibles sur le site Géorisques : Prix de vente honoraires d'agence inclus : 210 000 € Prix de vente hors honoraires d'agence : 200 000 € Honoraires charge acquéreur : 10 000 € soit 5 % TTC de la valeur du bien hors honoraires Contactez votre conseiller SAFTI : Aurélie BECCHIO, Tél. : 06 18 06 26 86, E-mail : aurelie.becchio@safti.fr - EI - Agent commercial immatriculé au RSAC de TOULOUSE sous le numéro 904 129 061.