Logo LSI sombre

Maison 7 Pièces 146 m² à vendre à Nieulle-sur-Seudre (17600)
Photo N° 2
Photo N° 3
Photo N° 4
Photo N° 5
5

Vente maison 7 pièces 146 m² Nieulle-sur-Seudre (17600)

333 200 €

Maison à construire à Nieulle-sur-Seudre (17600)

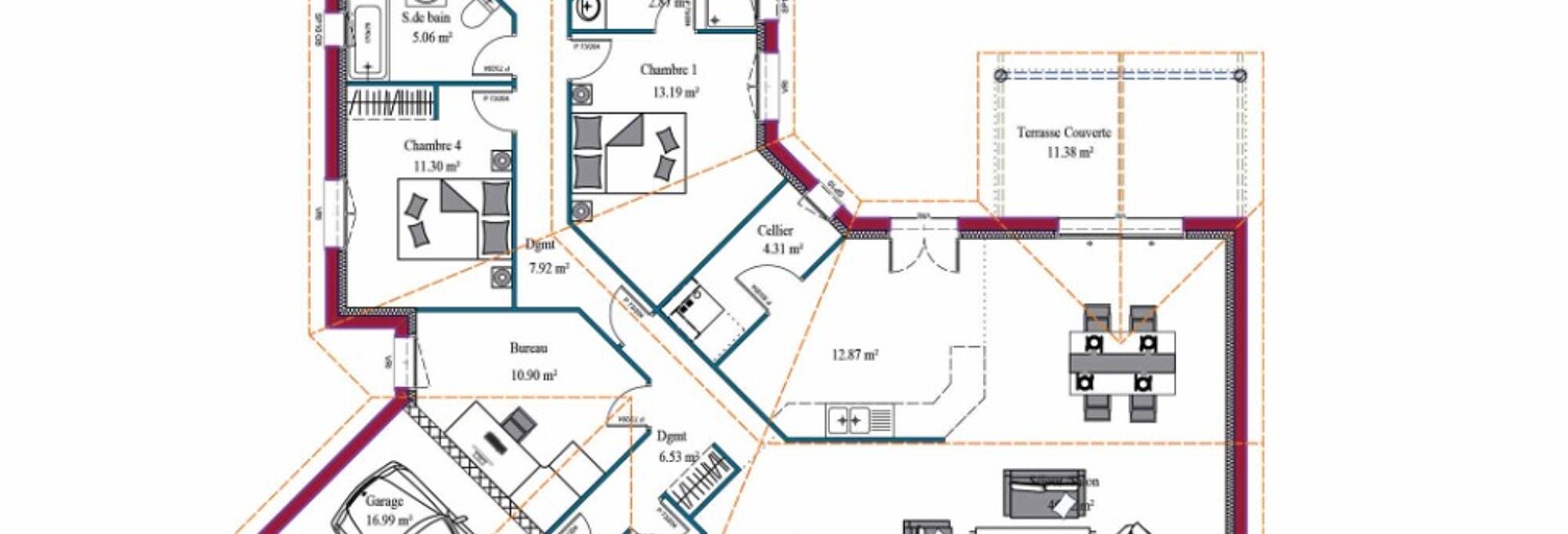
Véronique CANTEAU des maisons MCA à Royan, vous propose d'adapter le modèle Plaisir Sud, sur ce terrain d'environ 380 m², idéalement situé sur la commune de Nieulle sur Seudre. Ce modèle de maison de plain-pied de 145 m² possède de nombreux atouts qui ne vous laisseront pas indifférent. Tout d'abord des espaces généreux : une pièce de vie (cuisine ouverte / séjour) de plus de 60 m², prolongée par une terrasse couverte de 11 m² pour profiter de l'extérieur dès l'arrivée des beaux jours. 4 belles chambres de 11 à 13 m², dont une suite parentale avec salle d'eau. Toutes les chambres sont équipées de rangements. Un grand bureau de 11 m², idéal pour le home office, une salle de jeu pour les enfants ou pour vos activités manuelles. Cette maison est personnalisable pour s'adapter au mode de vie des grandes familles. Vous souhaitez revoir l'agencement d'une pièce ? C'est possible car ce modèle est 100% personnalisable ! Le prix affiché comprend le terrain, les frais de notaire, et cette maison livrée prête à décorer. Contactez vite votre conseillère Véronique CANTEAU au O7.86. 18.39. 78 à l'agence MCA de Royan, afin qu'elle vous guide dans les démarches et vous accompagne dans ce projet de construction personnalisé, aux normes RE2020. Idée de réalisation en modèle prêt à décorer sur l'un de nos terrains partenaires, sous réserve de disponibilités. Voir détails en agence. Les informations sur les risques auxquels ce bien est exposé sont disponibles sur le site Géorisques : .

Caractéristiques

Les plus de cette annonce
  • Garage
  • Terrasse
  • Jardin
Pièces
  • 7 pièces
  • 4 chambres
  • Salle d'eau
  • Cuisine ouverte
Superficies
  • Surface habitable : 146 m²

Consommation énergétique et gaz à effet de serre

Bilan énergétique (DPE)
NC
Bilan gaz à effet de serre (GES)
NC

Géorisques

Les informations sur les risques auxquels ce bien est exposé sont disponibles sur le site Géorisques : www.georisques.gouv.fr

A propos du prix de cette maison

  • Prix : 333 200 € (soit 2 282 € / m²)

À propos de cette annonce

Mise en ligne:

Dernière mise à jour:

Référence de l'annonce: VC2417566_5
Maisons Mca agence immobilière à Artigues-près-Bordeaux (33370)
Maisons Mca
Afficher le numéro

À voir pour le même budget

Maison 4 pièces 307110 €
307 110 €
-3 %

Maison 4 pièces 115 m²

Nieulle-sur-Seudre (17600)

Belle maison de plain pied avec cuisine salon séjour et coin nuit avec trois chambres, salle d'eau et toilette. Double garage attenant et jardin arboré, à voir ! Honoraires inclus dans le prix : 5.9%.

Maison 7 pièces 275600 €
275 600 €
-12 %

Maison 7 pièces 139 m²

Nieulle-sur-Seudre (17600)

Ensemble immobilier offrant différents projets. Deux bâtiments à exploiter plus garage et terrains divisibles et constructibles. Si vous êtes porteur de projet ou investisseur c'est un bien à ne pas louper. Plus 400 m² de construit Honoraires inclus dans le prix : 6%. Logement à consommation énergétique excessive : classe F.

Maison 4 pièces 312450 €
312 450 €

Maison 4 pièces 115 m²

Nieulle-sur-Seudre (17600)

Au cœur d'un environnement paisible et verdoyant, découvrez cette belle maison familiale où confort et convivialité se conjuguent à merveille. Dès l'entrée, vous serez charmé par une pièce de vie spacieuse et baignée de lumière, ouverte sur un jardin paysagé, clos et sans vis-à-vis, un véritable havre de paix pour partager des instants de détente en toute sérénité. La cuisine ouverte récente, à la fois élégante et fonctionnelle, a été pensée pour répondre aux besoins du quotidien. Le coin nuit offre trois chambres confortables, une salle d'eau moderne et un toilette indépendant. Un grand garage double complète l'ensemble, idéal pour le rangement ou les passionnés de bricolage. Située à proximité des écoles et commerces, cette maison allie tranquillité, praticité et qualité de vie. Un bien rare sur le secteur, à découvrir sans tarder ! Les informations sur les risques auxquels ce bien est exposé sont disponibles sur le site Géorisques : Prix de vente : 312 450 € Honoraires charge vendeur Contactez votre conseiller SAFTI : Daniel GIRAULT, Tél. : 06 14 70 30 27, E-mail : daniel.girault@safti.fr - EI - Agent commercial immatriculé au RSAC de SAINTES sous le numéro 504 610 536.

Maison 4 pièces 385000 €
385 000 €

Maison 4 pièces 108 m²

Chaillevette (17890)

Iad France - Claudia Sangiovanni vous propose : Située dans le charmant village de Chaillevette, cette maison neuve de 108 m² sur un terrain de 740 m² est une véritable opportunité pour ceux en quête d'un cadre de vie paisible et de qualité. Construite en 2023, cette maison individuelle offre des prestations modernes et confortables, idéales pour une famille ou des amateurs de résidence secondaire. Le salon spacieux de 56 m² est lumineux et offre un espace de vie convivial. Les 3 chambres, dont une suite parentale avec salle d'eau privative, offrent confort et intimité. Vous bénéficierez également une autres salles d'eau pour plus de praticité. La terrasse de 20 m² en résine est parfaite pour profiter des journées ensoleillées et des soirées d'été. L'exposition sud-ouest de la maison garantit une luminosité optimale tout au long de la journée, créant ainsi une atmosphère chaleureuse et accueillante. De plus, le chauffage au sol et la pompe à chaleur assurent un confort thermique optimal tout au long de l'année, tout en limitant les dépenses énergétiques. Construite dans le respect des normes PMR pour une accessibilité optimale, cette maison offre des équipements modernes tels que la fibre optique, la TV par câble, le chauffage électrique individuel et la ventilation mécanique pour répondre aux besoins contemporains. Le garage intégré vous permettra de stationner votre véhicule en toute sécurité, tandis que le terrain extérieur offre la possibilité d'aménager un espace extérieur selon vos envies. Vivre à Chaillevette, c'est profiter d'un environnement calme, à proximité des commodités locales et des plages de la côte Atlantique. Cette maison neuve représente un investissement sûr dans un cadre de vie préservé et privilégié. Ne manquez pas cette occasion unique de devenir propriétaire d'une maison neuve et fonctionnelle dans un environnement enchanteur. Contactez-nous dès maintenant pour organiser une visite et découvrir votre futur chez-vous à Chaillevette. Honoraires d'agence à la charge du vendeur. Information d'affichage énergétique sur ce bien : classe ENERGIE A indice 40 et classe CLIMAT A indice 1. Les informations sur les risques auxquels ce bien est exposé, y compris l'obligation légale de débroussaillement, sont disponibles sur le site Géorisques : La présente annonce immobilière a été rédigée sous la responsabilité éditoriale de Mme Claudia Sangiovanni mandataire indépendant en immobilier (sans détention de fonds), agent commercial de la SAS I@D France immatriculé au RSAC de SAINTES sous le numéro 511633950, titulaire de la carte de démarchage immobilier pour le compte de la société I@D France SAS.

Maison 5 pièces 326000 €
326 000 €
-2 %

Maison 5 pièces 100 m²

Chaillevette (17890)

Iad France - Christelle Boursier (06 72 50 24 12) vous propose : Cette charmante maison traditionnelle de 115 m² environ dont 100 m² environ de surface utile, édifiée sur un terrain clos et arboré de 617 m² environ. Au rez-de-chaussée, vous découvrirez une cuisine ouverte sur un salon / séjour chaleureux, une véranda lumineuse, deux chambres, une salle de bain, une arrière-cuisine et un WC avec lave-mains. À l’étage, une chambre supplémentaire vient compléter l’espace nuit. À l’extérieur, vous profiterez d’une terrasse, une piscine avec son petit pool housse disposant d'une salle d'eau et d'un WC, un garage, un carport ainsi que de deux cabanons de jardin. Située à proximité immédiate des commerces et services essentiels (école, boulangerie, coiffeuse, café restaurant, bureau de poste) et d’un charmant petit port de plaisance. Un vrai atout énergétique : En usage réel, la maison présente une consommation électrique annuelle d’environ 5 206 kWh, piscine incluse, correspondant à un budget d’environ 1 420 €. L’installation récente de panneaux photovoltaïques (2024) permet une autoproduction de 3 488 kWh / an, générant une économie d’environ 454 € et ramenant les charges d’électricité à près de 965 € par an. Une belle opportunité pour une résidence principale ou secondaire, alliant confort, calme et qualité de vie. Honoraires d’agence à la charge du vendeur. Information d'affichage énergétique sur ce bien : classe ENERGIE D indice 243 et classe CLIMAT B indice 7. Les informations sur les risques auxquels ce bien est exposé sont disponibles sur le site Géorisques : . La présente annonce immobilière a été rédigée sous la responsabilité éditoriale de Mlle Christelle Boursier EI (ID 17292), mandataire indépendant en immobilier (sans détention de fonds), agent commercial de la SAS I@D France immatriculé au RSAC de LA ROCHELLE sous le numéro 815221940, titulaire de la carte de démarchage immobilier pour le compte de la société I@D France SAS. Le présent bien est commercialisé dans le cadre d'une délégation de mandat. Retrouvez tous nos biens sur notre site internet. .

Maison 4 pièces 327288 €
327 288 €

Maison 4 pièces 102 m²

Chaillevette (17890)

Charmante maison plain-pied, construite en 2010, offrant 102.45 m² en parfait état. Elle propose 3 chambres, un séjour lumineux, terrasse, jardin arboré. Stationnement intérieur et extérieur sécurisés. Idéale pour famille recherchant confort et tranquillité à Chaillevette. Visites sur rendez-vous — contactez-nous pour en savoir plus. Référence agence : 91.