4 résultats
Démolition en septembre - Nous démarrons par les travaux de la maison de santé et dans la continuité, nous réalisons 2 bâtiments modernes et dans l'air du temps avec plus de parkings Des commerces spacieux en rez, des bureaux ou locaux d'activités à l'étage ou profession libérale. - c'est le nouvel endroit où il faut être à Charvonnex et au dernier étage de belles terrasses Pour en savoir plus contacter Christelle au 04 50 46 10 10 ou 06 24 20 21 53.
Bâtiment industriel d'une surface plancher de 757 m² avec 28 places de stationnement dans la nouvelle zone artisanale de Charvonnex - Découvrez avec nous les différentes possibilités d'aménagement en fonction de votre activité - Pour plus de renseignement contacter Christelle AU 06 24 20 21 53.
Démolition en septembre - Nous démarrons par les travaux de la maison de santé et dans la continuité, nous réalisons 2 bâtiments modernes et dans l'air du temps avec plus de parkings Des commerces spacieux en rez, des bureaux ou locaux d'activités à l'étage ou profession libérale. - c'est le nouvel endroit où il faut être à Charvonnex et au dernier étage de belles terrasses Pour en savoir plus contacter Christelle au 04 50 46 10 10 ou 06 24 20 21 53.
Démolition en septembre - Nous démarrons par les travaux de la maison de santé et dans la continuité, nous réalisons 2 bâtiments modernes et dans l'air du temps avec plus de parkings Des commerces spacieux en rez, des bureaux ou locaux d'activités à l'étage ou profession libérale. - c'est le nouvel endroit où il faut être à Charvonnex et au dernier étage de belles terrasses Pour en savoir plus contacter Christelle au 04 50 46 10 10 ou 06 24 20 21 53.

Recevez en temps réel les dernières annonces correspondant à votre recherche
Autres annonces à proximité de Charvonnex (74370) avec vos critères
Nous vous proposons à l'acquisition l'un des lots de ce programme neuf de locaux d'activités idéalement situé à l'entrée de Sillingy, et à proximité immédiate d'Epagny-Metz-Tessy et d'Annecy. Ce lot situé au premier étage du bâtiment, d'une surface de 98.88 mètres carrés est livré hors d'eau / hors d'air. Accessible depuis des parties communes impeccables, avec escalier et ascenseur / monte-charge, il saura s'adapter aux besoins de votre activité aisément ! Frais de notaire réduits. Possibilité d'acquérir des places de parking en sus. N'hésitez pas à nous contacter pour plus de renseignements en fonction de votre projet et votre activité. Les informations sur les risques auxquels ce bien est exposé sont disponibles sur le site : georisques. gouv. fr. Pour plus d'informations, contactez Thomas Buttin au 06 32 62 29 29 (RSAC Annecy 947 799 201), agent commercial indépendant pour le compte de l'Immobilière de Valmont, agence sans détention de fonds.
Nous vous proposons à l'acquisition l'un des lots de ce programme neuf de locaux d'activités idéalement situé à l'entrée de Sillingy, et à proximité immédiate d'Epagny-Metz-Tessy et d'Annecy. Ce lot situé au premier étage du bâtiment, d'une surface de 144.47 mètres carrés est livré hors d'eau / hors d'air. Accessible depuis des parties communes impeccables, avec escalier et ascenseur / monte-charge, il saura s'adapter aux besoins de votre activité aisément ! Frais de notaire réduits. Possibilité d'acquérir des places de parking en sus. N'hésitez pas à nous contacter pour plus de renseignements en fonction de votre projet et votre activité. Les informations sur les risques auxquels ce bien est exposé sont disponibles sur le site : georisques. gouv. fr. Pour plus d'informations, contactez Thomas Buttin au 06 32 62 29 29 (RSAC Annecy 947 799 201), agent commercial indépendant pour le compte de l'Immobilière de Valmont, agence sans détention de fonds.
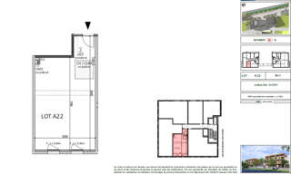
Nous vous proposons à l'acquisition l'un des lots de ce programme neuf de locaux d'activités idéalement situé à l'entrée de Sillingy, et à proximité immédiate d'Epagny-Metz-Tessy et d'Annecy. Ce lot situé au premier étage du bâtiment, d'une surface de 126.21 mètres carrés est livré hors d'eau / hors d'air. Accessible depuis des parties communes impeccables, avec escalier et ascenseur / monte-charge, il saura s'adapter aux besoins de votre activité aisément ! Frais de notaire réduits. Possibilité d'acquérir des places de parking en sus. N'hésitez pas à nous contacter pour plus de renseignements en fonction de votre projet et votre activité. Les informations sur les risques auxquels ce bien est exposé sont disponibles sur le site : georisques. gouv. fr. Pour plus d'informations, contactez Thomas Buttin au 06 32 62 29 29 (RSAC Annecy 947 799 201), agent commercial indépendant pour le compte de l'Immobilière de Valmont, agence sans détention de fonds.
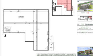
Nous vous proposons à l'acquisition l'un des lots de ce programme neuf de locaux d'activités idéalement situé à l'entrée de Sillingy, et à proximité immédiate d'Epagny-Metz-Tessy et d'Annecy. Ce lot situé en rez-de-chaussée, d'une surface de 125.14 mètres carrés est livré hors d'eau / hors d'air. Il dispose d'une vitrine avec porte et d'une porte sectionnelle. Il saura s'adapter aux besoins de votre activité aisément ! Frais de notaire réduits. Possibilité d'acquérir des places de parking en sus. N'hésitez pas à nous contacter pour plus de renseignements en fonction de votre projet et votre activité. Les informations sur les risques auxquels ce bien est exposé sont disponibles sur le site : georisques. gouv. fr. Pour plus d'informations, contactez Thomas Buttin au 06 32 62 29 29 (RSAC Annecy 947 799 201), agent commercial indépendant pour le compte de l'Immobilière de Valmont, agence sans détention de fonds.
Nous vous proposons à l'acquisition l'un des lots de ce programme neuf de locaux d'activités idéalement situé à l'entrée de Sillingy, et à proximité immédiate d'Epagny-Metz-Tessy et d'Annecy. Ce lot situé au premier étage du bâtiment, d'une surface de 234.29 mètres carrés est livré hors d'eau / hors d'air. Accessible depuis des parties communes impeccables, avec escalier et ascenseur / monte-charge, il saura s'adapter aux besoins de votre activité aisément ! Frais de notaire réduits. Possibilité d'acquérir des places de parking en sus. N'hésitez pas à nous contacter pour plus de renseignements en fonction de votre projet et votre activité. Les informations sur les risques auxquels ce bien est exposé sont disponibles sur le site : georisques. gouv. fr. Pour plus d'informations, contactez Thomas Buttin au 06 32 62 29 29 (RSAC Annecy 947 799 201), agent commercial indépendant pour le compte de l'Immobilière de Valmont, agence sans détention de fonds.
Nous vous proposons à l'acquisition l'un des lots de ce programme neuf de locaux d'activités idéalement situé à l'entrée de Sillingy, et à proximité immédiate d'Epagny-Metz-Tessy et d'Annecy. Ce lot situé au premier étage du bâtiment, d'une surface de 125.14 mètres carrés est livré hors d'eau / hors d'air. Accessible depuis des parties communes impeccables, avec escalier et ascenseur / monte-charge, il saura s'adapter aux besoins de votre activité aisément ! Frais de notaire réduits. Possibilité d'acquérir des places de parking en sus. N'hésitez pas à nous contacter pour plus de renseignements en fonction de votre projet et votre activité. Les informations sur les risques auxquels ce bien est exposé sont disponibles sur le site : georisques. gouv. fr. Pour plus d'informations, contactez Thomas Buttin au 06 32 62 29 29 (RSAC Annecy 947 799 201), agent commercial indépendant pour le compte de l'Immobilière de Valmont, agence sans détention de fonds.
À vendre, annecy-seynod (74600) - programme neuf situé à 5 mins de l'a41,10 minutes d'annecy, 35 minutes aéroport international de genève- 5 lots à usage d'entrepôts avec mezzanines, livrés bruts, escalier pour accès mezzanine et porte sectionnelle motorisée en place - surface de 475 m² à 1280 m² environ, prix à partir de 1 138 800,00 euros ht - honoraires en sus du prix de vente (6 % ht).
Sur les hauteurs d'eteaux nouveau batiment d'activites composé de 6 entrepots et 10 bureaux - pour plus de renseignements contactez christelle au 06 24 20 21 53.
Sur les hauteurs d'eteaux nouveau batiment d'activites composé de 6 entrepots et 10 bureaux - pour plus de renseignements contactez christelle au 06 24 20 21 53.
Sur les hauteurs d'eteaux nouveau batiment d'activites composé de 6 entrepots et 10 bureaux - pour plus de renseignements contactez christelle au 06 24 20 21 53.
Dans la zone industriel de Pers-Jussy, un entrepôt de 400 m² au sol avec un mezzanine de 160 m² (Possibilité d'agrandir la mezzanine de 160 m²) ce qui donnerais une surface de 720 m² + un terrain constructible d'environ 400 m² avec la possibilité de construire 120² au sol. Parking pour plusieurs véhicules. Plusieurs possibilité s'offre aux acheteurs : - Le vendeur peut relouer le bâtiment après l'avoir vendu avec un bail 3-6-9. - Le bien peut être divisé jusqu'à 5 fois pour pouvoir relouer à plusieurs personnes ou entreprise pour augmenter la rentabilité. Ce bien peut convenir à toutes sortes d'acheteurs autant entrepreneurs ou investisseurs. N'hésitez pas à me contacter pour plus d'informations. Référence agence : 0000.