Logo LSI sombre

Retour
Immeuble  94 m² à vendre à Avrillé (85440)
1

Vente immeuble 94 m² Avrillé (85440)

195 000 €
-7 %

Investissement ou résidence

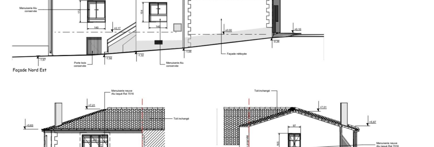
Malika Pulcina vous présente cette opportunité rare au cœur d'Avrillé, charmante commune dynamique à seulement quelques minutes des plages et de Longeville-sur-Mer. Cette immeuble à rénovée peut accueillir trois logements et un local indépendant, idéaux pour un usage mixte résidence principale, pied-à-terre ou investissement locatif. ? Logement 1 (RDC) : 42,54 m² – possibilité de grande pièce de vie, salle d'eau, WC, chambre. ? Logement 2 (R + 1) : 45,08 m² – possibilité de séjoure et de deux chambres, salle d'eau, WC. ? Logement 3 (R + 1) : 32,05 m² – possibilité de séjour et une echambre et salle d'eau. Les travaux de rénovation incluent menuiseries aluminium neuves, bardage bois naturel, façades nettoyées et rafraîchies, toitures conservées en bon état, et une optimisation des volumes pour un confort moderne dans un bâti de caractère. Ce bien peut également convenir à une activité professionnelle, avec la présence d'un ancien cabinet d'infirmiers (entrée distincte, salle d'attente) — parfait pour une profession libérale. Avrillé, commune authentique et bien située, offre toutes les commodités à pied (écoles, commerces, transports). Ne laissez pas passer cette opportunité d'investissement ou de regroupement familial : contactez-moi sans attendre pour une visite ! Malika Pulcina - 06 09 55 16 57 Les informations sur les risques auxquels ce bien est exposé sont disponibles sur le site Géorisques : Prix de vente : 195 000 € Honoraires charge vendeur Contactez votre conseiller SAFTI : Malika BELARBI-PULCINA, Tél. : 06 09 55 16 57, E-mail : malika.belarbi@safti.fr - EI - Agent commercial immatriculé au RSAC de LA ROCHE-SUR-YON sous le numéro 801 018 656.

Caractéristiques

Les plus de cette annonce
  • Meublé
  • Jardin
  • Bien de caractère
Pièces
  • Salle d'eau
Superficies
  • Surface habitable : 94 m²

Consommation énergétique et gaz à effet de serre

Bilan énergétique (DPE)
Bilan gaz à effet de serre (GES)

Géorisques

Les informations sur les risques auxquels ce bien est exposé sont disponibles sur le site Géorisques : www.georisques.gouv.fr

A propos du prix de ce immeuble

  • Prix : 195 000 € (soit 2 074 € / m²) -7 %
  • Honoraires à charge vendeur

Evolution du prix de ce bien

Le prix de ce bien est en baisse de 7 % (-16 000 €) depuis le début de sa diffusion le 08/10/2025.

À propos de cette annonce

Mise en ligne:

Dernière mise à jour:

Référence de l'annonce: 1542341

SAFTI agence immobilière à Toulouse (31)
SAFTI
Afficher le numéro

À voir pour le même budget

Immeuble  195000 €
195 000 €

Immeuble 161 m²

Avrillé (85440)
Immeuble  180650 €
180 650 €

Immeuble 108 m²

Moutiers-les-Mauxfaits (85540)
Immeuble  182070 €
182 070 €

Immeuble

Moutiers-les-Mauxfaits (85540)