1 résultats
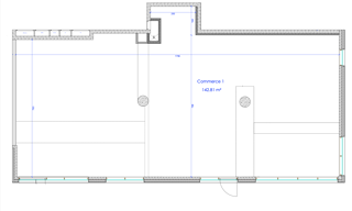
SCIEZ-SUR-LÉMAN (74) - Nous vous proposons un local commercial de 142,81 m² en RDC, toutes destinations (y compris petite restauration), dans une résidence disponible très prochainement. Idéalement placé au coeur du village, avec ses lignes de bus. Gare SNCF de Thonon à 15min en voiture. Les vitrines en acier ou alu seront à charge de l’acquéreur. Ce local, livré en coque brute, dispose également d'un accès à l'extérieur. Fluide et réseaux (eaux, assainissement, ventilation et chauffage) en attente, fourreaux en attente pour téléphonie et électricité. Vendu avec une place de parking en sous-sol et une cave. Frais de notaire réduits. TVA récupérable si assujetti. Pour plus d'information nous contacter.
Autres annonces à proximité de Sciez (74140) avec vos critères
À vendre, murs d'un local professionnel situé sur la commune de Douvaine, au coeur d'une zone commerciale dynamique bénéficiant d'une excellents visibilité et d'une facilité de stationnement pour la clientèle. Le local développe une surface d'environ 71 m² et dispose d'une vitrine linéaire de 5 mètres, idéale pour mettre en valeur une activité commerciale ou artisanale. L'espace est dans bon état général et immédiatement exploitable. Le chauffage est assuré par un système électrique au sol offrant un bon confort thermique. Le local est également équipé d'un grand wc. Ce bien conviendra parfaitement à un commerçant, artisan ou professionnel libéral recherchant un emplacement fonctionnel et visible. Charges maîtrisées : - taxe foncière : 1040 € / an - Eau et électricité : environ 1500 € / an Une opportunité rare sur le secteur. Le bien comprend 1 lot, et il est situé dans une copropriété de 0 lot (les charges courantes annuelles moyennes de copropriété sont de 1000 € et le syndicat des copropriétaires ne fait pas l'objet d'une procédure citée à l'article L. 721-1 du code de la construction et de l'habitation). Les informations sur les risques auxquels ce bien est exposé sont disponibles sur le site Géorisques : Prix de vente honoraires d'agence inclus : 185 000 € HT + 3 000 € TVA, soit 188 000 € TTC Prix de vente hors honoraires d'agence : 170 000 € HT + 0 € TVA, soit 170 000 € TTC Honoraires d'agence : 15 000 € HT + 3 000 € TVA, soit 18 000 € TTC (10.59 % TTC du prix de vente hors honoraires d'agence) Honoraires charge acquéreur Contactez votre conseiller SAFTI : Olivier WITT, Tél. : 06 08 58 41 44, E-mail : olivier.witt@safti.fr - EI - Agent commercial immatriculé au RSAC de Thonon-les-Bains sous le numéro 394 927 677.
Thonon les bains (74200) centre ville investissez dans les murs de ce restaurant situé en centre ville. L'emplacement, la terrasse et la proximité au lac, garantissent la valeur des murs. Le restaurateur est en place depuis plusieurs années et bénéficie d'une grande notoriété. L'environnement 100 % commercial, et la configuration des lieux sont parfaitement adaptés à la clientèle. Loyer annuel ht : 41 052 € ht l'immeuble est en très bon état et il n'y a pas de travaux à prévoir dans les 10 années qui viennent. Cet actif s'adresse prioritairement à un investisseur aguerri dans l'acquisition de murs de restaurants. Le l'ancienneté du fdc et son ca garantissent également la pérennité de l'activité. Points forts : restaurant + terrasse forte visibilité exploitation ( + de 30 ans) nombre de lots de la copropriété : 10, montant moyen annuel de la quote-part de charges (budget prévisionnel)(3060) : 3100€ soit 258€ par mois. Les honoraires sont à la charge du vendeur. Les informations sur les risques auxquels ce bien est exposé sont disponibles sur le site géorisques : www. Georisques. Gouv. Fr. Réseau immobilier capifrance - votre agent commercial (rsac n°420 944 019 - greffe de labastide villefranche) fabrice bailly entrepreneur individuel à responsabilité limitée 06 80 83 30 29 - réf. 897195.
Découvrez ce local commercial de 49,67 m² idéalement situé au cœur des rues piétonnes de Thonon-les-Bains, un emplacement stratégique très recherché. Cette adresse privilégiée garantit une visibilité maximale et une fréquentation piétonne élevée, offrant ainsi un potentiel commercial exceptionnel. Actuellement loué sous bail commercial depuis le 20 février 2023 pour une durée de 9 ans, ce bien génère un revenu locatif attractif de 6 360 € par an HT et HC, hors CRL. Une véritable aubaine pour les investisseurs à la recherche d'un placement sûr et rentable. De plus, les façades de l'immeuble ainsi que les parties communes ont été entièrement rénovées, valorisant encore davantage ce local et augmentant son attractivité sur le marché. Les menuiseries ont été remplacées. Ne manquez pas cette opportunité rare d'investir dans un bien situé dans l'une des zones les plus prisées de Thonon-les-Bains, offrant à la fois stabilité locative et potentiel de valorisation.

Recevez en temps réel les dernières annonces correspondant à votre recherche
À vendre : Fonds de commerce - Pizzeria dans une ville dynamique de Haute-Savoie Type d'activité : Pizzeria, restauration rapide, et livraison à domicile. Localisation : En plein cœur d'une ville dynamique et touristique en Haute-Savoie, bénéficiant d'une forte visibilité et d'une clientèle locale fidèle. Fonds de commerce de pizzeria à vendre, idéalement positionné dans une zone à fort potentiel de développement. Ce commerce bénéficie d'une excellente réputation grâce à la qualité de son offre et sa régularité dans le service à emporter et en livraison. Le local est en parfait état et bien agencé, ce qui en fait un excellent investissement pour tout repreneur souhaitant s'impliquer immédiatement dans une activité rentable. Avantages clés : Croissance continue : Chiffre d'affaires en hausse régulière avec une progression de plus de 10 % en 2023. Clientèle fidélisée : Base de clients réguliers avec un fort potentiel de développement auprès des touristes et des entreprises locales. Emplacement stratégique : Situé dans une zone à fort passage, à proximité de plusieurs résidences et zones commerciales. Matériel et équipements complets : Le fonds de commerce est vendu avec tout le matériel nécessaire à l'activité, en bon état de fonctionnement. Données financières : EBE (2023) : 59 315 € Chiffre d'affaires prévisionnel 2024 : 304 906 € Charges maîtrisées : Gestion optimisée des salaires et des charges d'exploitation. Opportunités de développement : Possibilités d'élargir l'activité en augmentant les horaires d'ouverture ou en proposant des services complémentaires, tels que la consommation sur place, ou en diversifiant l'offre culinaire. Chiffre d'affaires annuel (2023) : 310 536 € Résultat net (2023) : 24 224 € Salaires et charges sociales (2023) : 66 482 € Notre avis : Ce fonds de commerce représente une opportunité rare pour un entrepreneur souhaitant reprendre une activité en plein essor, bénéficiant d'une clientèle fidèle et d'un emplacement de choix. Il est idéal pour un professionnel de la restauration cherchant à s'implanter en Haute-Savoie dans un environnement propice au développement. Pour toute information complémentaire et pour organiser une visite, merci de contacter votre conseiller immobilier. Les informations sur les risques auxquels ce bien est exposé sont disponibles sur le site Géorisques : www. georisques. gouv. fr. Réseau Immobilier CAPIFRANCE - Votre agent commercial (RSAC N°531 545 556 - Greffe de ANNECY) Nezha SAUMET Entrepreneur Individuel 06 29 07 10 22 - Réf. 887983.
Vous rêvez de reprendre un institut avec une clientèle fidèle déjà au rendez-vous ? Ce salon de beauté, situé au cœur de thonon-les-bains, à deux pas d'un grand parking public, bénéficie d'un emplacement idéal offrant fort passage et visibilité maximale. Activités établies depuis 15 ans : stylisme ongulaire soins du regard soins des mains & du visage maquillage traditionnel & semi-permanent vente de produits sur 26 m² intelligemment agencés : 1 cabine de soins + possibilité de l'agrandir bel espace dédié aux prestations ongulaires accueil chaleureux et fonctionnel matériel récent, qualitatif et parfaitement entretenu les atouts qui font la différence : - belle vitrine donnant sur rue passante - institut prêt à travailler dès le premier jour - potentiel de développement immédiat (2 ? Cabine, vente, nouvelles prestations ) - loyer attractif : 5 461 € / an seulement que vous soyez pro en recherche d'expansion ou en reconversion ? Cette reprise est une occasion rare à ne pas laisser filer ! Accompagnement à la reprise possible. Intéressé(e) ? Parlons-en ! Patricia witt votre conseillère chablais / genevois 06 18 58 97 08 les informations sur les risques auxquels ce bien est exposé sont disponibles sur le site géorisques : prix de vente honoraires d'agence inclus : 59 000 € ht + 1 180 € tva, soit 60 180 € ttc prix de vente hors honoraires d'agence : 53 100 € ht + 0 € tva, soit 53 100 € ttc honoraires d'agence : 5 900 € ht + 1 180 € tva, soit 7 080 € ttc (13.33 % ttc du prix de vente hors honoraires d'agence) honoraires charge acquéreur contactez votre conseiller safti : patricia witt, tél. : 06 18 58 97 08, e-mail : patricia.witt@safti.fr - ei - agent commercial immatriculé au rsac de thonon-les-bains sous le numéro 808 059 315.
Saisissez l'opportunité unique d'acquérir un fonds de commerce idéalement situé en emplacement n°1, au cœur de thonon-les-bains. Avec son bail "tous commerces" (hors fleurs, restaurant, bar et boulangerie-pâtisserie), ce local ne nécessite aucun travaux pour une reprise immédiate. Ce que j'aime : un emplacement stratégique, offrant une visibilité optimale un passage piétonnier constant, garant d'une clientèle régulière une fréquentation mixte : résidents locaux et touristes un fort potentiel de développement du chiffre d'affaires la possibilité de s'implanter rapidement, sans travaux à prévoir ne manquez pas cette occasion exceptionnelle d'investir dans un emplacement de tout premier choix à thonon-les-bains ! Les informations sur les risques auxquels ce bien est exposé sont disponibles sur le site géorisques : prix de vente honoraires d'agence inclus : 54 000 € ht + 800 € tva, soit 54 800 € ttc prix de vente hors honoraires d'agence : 50 000 € ht + 0 € tva, soit 50 000 € ttc honoraires d'agence : 4 000 € ht + 800 € tva, soit 4 800 € ttc (9.6 % ttc du prix de vente hors honoraires d'agence) honoraires charge acquéreur contactez votre conseiller safti : nicolas ravet, tél. : 06 12 25 88 67, e-mail : nicolas.ravet@safti.fr - ei - agent commercial immatriculé au rsac de thonon les bains sous le numéro 514 920 800.
Thonon les bains (74200) murs commerciaux loués à une enseigne a proximité des grands axes, en hyper centre ville, en pied d'immeuble. Ces murs commerciaux sont loués à une enseigne nationale, ils sont en parfait état et disposent de différents équipements. Avec un accès pmr et une grande vitrine, ce local profite d'une excellente visibilité. L'environnement commercial dynamique favorise un important flux de piétons. Pas de travaux prévus dans la copropriété. Le locataire en place depuis plus de 10 ans est à jour de ces loyers. Points forts grande surface en parfait état a proximité immédiate de stationnements sur la voie publique nombre de lots de la copropriété : 10, montant moyen annuel de la quote-part de charges (budget prévisionnel) : 3000€ soit 250€ par mois, avec syndic bénévole. Les honoraires sont à la charge du vendeur. Les informations sur les risques auxquels ce bien est exposé sont disponibles sur le site géorisques : www. Georisques. Gouv. Fr. Réseau immobilier capifrance - votre agent commercial (rsac n°420 944 019 - greffe de labastide villefranche) fabrice bailly entrepreneur individuel à responsabilité limitée 06 80 83 30 29 - réf. 897331.
Iad France - Laurent Dupuy (06 03 92 61 74) vous propose : Opportunité rare sur le secteur ! Implantée au cOEur du Haut-Chablais, cette affaire reconnue propose une activité complète et qualitative de boulangerie, pâtisserie, chocolaterie, bénéficiant d’une clientèle fidèle et d’un environnement porteur. Aucun investissement à prévoir : vous démarrez dans des conditions optimales dès la reprise. Le fonds de commerce est complété par un bail incluant un appartement de type T4, offrant un véritable confort de vie et une solution idéale pour un exploitant ou un couple de professionnels. Les points forts de l’affaire : - Matériel et équipements très récents et parfaitement entretenus - Loyer modéré, rare pour ce type d’activité - Gros potentiel de développement (gammes, horaires, saisonnalité, activité glacier / traiteur) - Secteur recherché du Haut-Chablais Produit rare à la vente Type de vente : Fonds de commerce Bail de 9 ans renouvelé en 2024 Chiffre d'affaires (HT) : 475529 € Excédent brut d’exploitation retraité : 152800 € Cette affaire s’adresse à un professionnel souhaitant sécuriser son investissement, tout en disposant de réelles perspectives de croissance dans un secteur dynamique et qualitatif. Dossier complet et informations complémentaires sur demande. Accompagnement confidentiel assuré. Information d'affichage énergétique sur le bien associé à cette annonce : DPE NS indice et GES NS indice. La présente annonce immobilière a été rédigée sous la responsabilité éditoriale de M. Laurent Dupuy (ID 43948), Agent Commercial mandataire en immobilier immatriculé au Registre Spécial des Agents Commerciaux (RSAC) du Tribunal de Commerce de THONON LES BAINS sous le numéro 880530365 Retrouvez tous nos biens sur notre site internet. .
Local en rez-de-chaussée, entièrement rénové, d'environ 115 m², idéalement situé entre thonon et évian, dans un secteur attractif. Bénéficiant d'une exposition sud-ouest, il offre une belle luminosité. Ce bien est parfaitement adapté à des activités artisanales, commerciales ou de bureaux. Il convient notamment pour un atelier ou toute activité nécessitant un espace de travail fonctionnel ainsi qu'une zone de stockage. Le local dispose également d'un coin repas et de sanitaires. Nombre de lots de la copropriété : 1, montant moyen annuel de la quote-part de charges (budget prévisionnel) : 792€ soit 66€ par mois, avec procédure syndic impayé en cours. Les honoraires sont à la charge du vendeur. Les informations sur les risques auxquels ce bien est exposé sont disponibles sur le site géorisques : www. Georisques. Gouv. Fr. Réseau immobilier capifrance - votre agent commercial (rsac n°489 424 267 - greffe de thonon les bains) rosa-maria soares entrepreneur individuel 06 69 43 36 53 - réf. 948871.
À vendre - fond de commerce - restaurant l'ami thieze - avec logement alpesvente vous présente en exclusivité ce fonds de commerce et son appartement de 100 m², situés au coeur du village de féternes. Découvrez ce fonds de commerce de restaurant avec cuisine équipée professionnelle, bénéficiant d'un excellent emplacement et d'une belle visibilité, un établissement déjà bien reconnu. Le local est loué via un bail commercial, comprenant : -une salle de restaurant accueillante et chaleureuse avec une capacité d'accueil modulable d'environ 70 couverts. -une terrasse extérieure agréable avec une capacité de 24 couverts. -une cuisine professionnelle entièrement équipée, avec four neuf, hotte, piano de cuisson, plonge et espace de préparation. -un espace sanitaire pour la clientèle. -un appartement d'environ 100 m² à l'étage (inclus dans le bail), idéal pour un logement de fonction ou une habitation privée. Activité actuelle : restauration traditionnelle (possibilité de développer ou modifier l'activité selon le bail). Conditions du bail : -bail commercial 3 / 6/9 -loyer mensuel : 2532€ ttc (commerces et appartement) -pas de reprise de personnel obligatoire -licence iv potentiel de développement : -clientèle locale fidélisée + passage touristique -etablissement connu et facilement aménageable selon le projet. Prix de vente du fonds de commerce : 122.500€ en exclusivite ! Contactez pauline pour plus d'informations ou organiser une visite au 07 71 89 80 11 a propos du prix : celui-ci comprend les honoraires d'agence à la charge du vendeur. Mesures et surfaces au sol données à titre indicatif. Les informations sur la situation du bien et les risques naturels potentiels auxquels il peut être exposé sont disponibles sur vous souhaitez une estimation de votre bien immobilier ou obtenir un avis de valeur à allinges ? Contactez alpesvente ! Honoraires à la charge du vendeur. Dpe en cours. Les informations sur les risques auxquels ce bien est exposé sont disponibles sur le site géorisques : georisques. Gouv. Fr. Agence immobilière alpesvente située à saint jean d'aulps, allinges et lullin pour la vente et l' achat de tout bien immobilier.
Vallee verte (74) à vendre très bel établissement polyvalent comprenant restaurant, pizzeria, bar et bar de nuit. Emplacement stratégique sur axe passant, excellente visibilité. Salle de restaurant chaleureuse, cuisine équipée, four à pizza, extraction conforme. Terrasse extérieure avec pergola récente. 40 couverts en salle - 40 couverts en extérieur. En sous sol : espace bar de nuit dédié (env. 120 k€ de ca). À l'étage : appartement de fonction, idéal couple exploitant. Clientèle fidèle, matériel entretenu, loyer 2210€ / m. Fort potentiel de développement (organisation interne, soirées, privatisations, emporter). Chiffres clés : ca 2025 = 609 k€ - bar de nuit : 120 k€ - effectif actuel : 5 + gérant idéal pour couple, professionnel de la restauration, repreneur souhaitant optimiser une affaire déjà en place. Dossier complet sur demande. Les informations sur les risques auxquels ce bien est exposé sont disponibles sur le site géorisques : www. Georisques. Gouv. Fr. Réseau immobilier capifrance - votre agent commercial (rsac n°438 586 216 - greffe de annecy) irène dubois entrepreneur individuel 06 01 86 64 72 - réf. 938011.
À Ville-la-Grand (74100 ), au coeur d'une zone commerciale dynamique et recherchée, ce fonds de commerce spécialisé dans la vente au détail et en gros de carrelages en pierres naturelles est une opportunité rare. Destiné aussi bien à l'aménagement extérieur qu'à la décoration intérieure, il bénéficie d'une clientèle variée (particuliers et professionnels) et d'un fort potentiel de développement. L'espace comprend un vaste showroom de 400 m² permettant de mettre en valeur les nombreux modèles proposés dans un cadre attractif, ainsi qu'un terrain extérieur de 1800 m², idéal pour le stockage ou l'exposition de produits volumineux. Les facilités de stationnement et la visibilité de l'emplacement assurent un confort d'accueil et un trafic régulier. Ce commerce combine surface d'exposition, capacité logistique et situation géographique stratégique : une belle opportunité pour un repreneur souhaitant développer son activité dans le secteur du carrelage et de la décoration haut de gamme. Les informations sur les risques auxquels ce bien est exposé sont disponibles sur le site Géorisques : Prix de vente honoraires d'agence inclus : 195 000 € HT + 3 000 € TVA, soit 198 000 € TTC Prix de vente hors honoraires d'agence : 180 000 € HT + 0 € TVA, soit 180 000 € TTC Honoraires d'agence : 15 000 € HT + 3 000 € TVA, soit 18 000 € TTC (10 % TTC du prix de vente hors honoraires d'agence) Honoraires charge acquéreur Contactez votre conseiller SAFTI : Olivier WITT, Tél. : 06 08 58 41 44, E-mail : olivier.witt@safti.fr - EI - Agent commercial immatriculé au RSAC de Thonon-les-Bains sous le numéro 394 927 677.
Murs commerciaux – 3 locaux indépendants – fort rendement potentiel Situé à Ville-la-Grand, à proximité immédiate d'Annemasse et de sa zone commerciale, cet ensemble de murs commerciaux d'environ 149 m² bénéficie d'un environnement dynamique mêlant commerces, services et habitat. Implanté au cœur du bassin économique du Grand Genève, le secteur profite de l'attractivité du marché transfrontalier et d'une forte demande commerciale. L'ensemble immobilier se compose de 3 locaux commerciaux indépendants, offrant une diversification locative et une grande souplesse d'exploitation ou d'investissement. Composition des locaux Local 1– env. 63 m² Salle de restauration d'une vingtaine de couverts. Local 2– env. 15 m² Espace polyvalent pouvant accueillir différentes activités professionnelles : coiffure, esthétique, bureau, profession libérale, services ou activité indépendante. Le local bénéficie également d'un sous-sol aménagé d'environ 26 m², idéal pour une réserve, du stockage ou un espace complémentaire de travail, offrant ainsi une vraie fonctionnalité pour l'exploitation. Surface modulable Adapté à de nombreuses activités Espace de stockage appréciable Local 3– env. 45 m² Surface commerciale avec climatisation réversible, WC et lave-mains. Potentiel locatif • Local 1 : 1 200 € / mois • Local 2 : 1 970 € / mois • Local 3 : 1 100 € / mois Total loyers potentiels : 4 270 € / mois Soit 51 240 € / an Prix de vente : 350 000 € Rendement brut théorique : environ 14,6 % Les atouts 3 locaux commerciaux indépendants Compteurs électriques séparés Sous-sol exploitable Bonne visibilité commerciale Stationnement à proximité Possibilité d'exploitation séparée ou regroupée selon le projet Une situation locative particulière concerne actuellement l'un des lots, pouvant représenter selon le projet de l'acquéreur une opportunité d'optimisation locative et de valorisation de l'actif. Dossier complet et informations complémentaires sur demande. Nombre de lots de la copropriété : 9, Montant moyen annuel de la quote-part de charges (budget prévisionnel) : 1500€ soit 125€ par mois. Les honoraires d'agence sont à la charge de l'acquéreur, soit 9,99% TTC du prix hors honoraires. Le Diagnostic de Performance Énergétique (DPE) a été réalisé selon une méthode valable mais non fiable et non-opposable. Les informations sur les risques auxquels ce bien est exposé sont disponibles sur le site Géorisques : www. georisques. gouv. fr. Réseau Immobilier CAPIFRANCE - Votre agent commercial (RSAC N°531 545 556 - Greffe de ANNECY) Nezha SAUMET Entrepreneur Individuel 06 29 07 10 22 - Réf. 947463.
Local commercial bar exclusivité – investisseur local commercial loué – fillinges au cœur du village de fillinges, local commercial bar-restaurant vendu loué, offrant une rentabilité supérieure à 8 %. Surface totale 178 m² comprenant salle de restauration, espaces bar, cuisine, chaufferie, sanitaires. Caves en sous-sol en annexes. bail commercial 3 / 6/9 bail signé le 19 / 04 / 2022 locataire en place revenus immédiats idéal investissement sécurisé. dossier et infos financières sur demande. Les informations sur les risques auxquels ce bien est exposé sont disponibles sur le site géorisques : logement situé dans une copropriété loi n°65-557 du 10 juillet 1965. Nombre de lots principaux : 8. Montant moyen annuel de la quote-part de charges courantes : 840 euros / an. Aucune procédure en cours menée sur le fondement des articles 29-1a et 29-1 de la loi n°65-557 du 10 juillet 1965 et de l’article l. 615-6 du cch. Murielle marguerettaz (ei), agent commercial indépendant immatriculé au rsac de annecy sous le numéro 839 201 092, de l’agence immobilière marguerettaz, carte professionnelle cpi 7401 2016 000 014 122.
À reprendre, fonds de commerce d'alimentation générale, épicerie fine et bio, idéalement situé au cœur d'un village dynamique, sur la route des pistes de ski. Le magasin, entièrement rénové, offre une surface totale de 159 m², dont plus de 40 m² dédiés au stockage. L'agencement est fonctionnel et récent, permettant une exploitation immédiate sans travaux à prévoir. L'activité bénéficie d'une clientèle fidèle et d'un excellent emplacement, assurant un chiffre d'affaires en constante progression depuis plusieurs années, avec une moyenne de 950 000 € ht. ( + 4,9% sur 2025). Eber : 108 000 € — résultat avant impôts : 35 195 €. Loyer particulièrement attractif : 815 € / mois. Une belle affaire saine et rentable, idéale pour un couple souhaitant reprendre une activité clé en main dans un cadre de vie agréable. Dossier complet sur demande. Les informations sur les risques auxquels ce bien est exposé sont disponibles sur le site géorisques : www. Georisques. Gouv. Fr. Réseau immobilier capifrance - votre agent commercial (rsac n°438 586 216 - greffe de annecy) irène dubois entrepreneur individuel 06 01 86 64 72 - réf. 927911.