3 résultats
Exclusivité bonaparte promotion a dugny nouvel eco quartier village des medias jeux olympiques face au parc georges valbon. Tram au pied de la résidence qui vous emmene rer b le bourget en 1 station, et futurs metro 16 et 17 ! Retour de lot 4 pieces 84 m² plus balcon 6 m² lumineux eligible pret a taux zero tva reduite et frais de notaire reduits appartement déjà livré ! Appelez vite votre conseiller christophe au 06 03 45 30 49 l’appartement ce lumineux 4 pièces de 84 m² vous offre : entrée, séjour cuisine de 27 m² donnant sur un balcon de 6. M², 3 chambres dont une de 14 m², 2 salle de bains, 2 wc, 1 parking en sous sol les prestations parquet dans les pièces sèches, carrelage et faïence vidéophone, visiophone, garage à vélo, fibre optique, hall d’entrée dessinée par architecte d’intérieur garage à vélo l’environnement : dans un secteur en plein renouveau avec l'arrivée de nouveaux transports et immeubles neufs; venez découvrir notre résidence située en face du parc de la courneuve. Cadre de vie exceptionnel ! Prix : 299 000 € eligible tpz, tva r"éduite, action logement. Étude de financement obligatoire et gratuite, sans engagement. Avantages du neuf : -isolation thermique renforcée -isolation phonique entre étages -charges réduites car bâtiment basse consommation et rt2012 -éligible à la loi pinel. -personnalisez votre logement au gré de vos envies. -possibilité d’exonération partiel ou total de la taxe foncière pendant 2 ans les + bonaparte promotion : garantie constructeur 10 ans 450 résidences en cours en idf, plus de 10.000 appartements le plus grand choix de résidences neuves en ile de france contactez rapidement votre conseiller christophe 06 03 45 30 49.
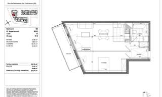
Dans une résidence neuve de standing située a proximite de toutes les commodites et du tramway t11 ! - frais de notaire reduits - pret a taux zero jusqu'a 182000€ - tva reduite * l'appartement * bonaparte promotion vous propose ce superbe et lumineux 3 pièces de 63.91 m². Très bien agencé et fonctionnel, cet appartement dispose d'un séjour / entrée / cuisine de plus de 35 m² avec une exposition plein sud bénéficiant d'un espace cuisine aménagée avec sa propre fenêtre. Le salon s'ouvre sur une belle loggia de prêt de 9 m² avec une vue directe sur parc. Vous aurez accès à une première grande chambre de 12.78 m² ainsi qu'une deuxième chambre de prêt de 10 m². Enfin, vous bénéficierez d'une salle de bain et de wc séparés. Vous profiterez également de nombreux espaces de rangement. Cet appartement très bien pensé est idéal pour de la résidence principale. * l'environnement * la résidence prend racine dans un nouvel éco-quartier situé à proximité immédiate du tramway t11, donnant accès en 5 minutes à la gare rer b du bourget pôle incontournable du grand paris express avec l'arrivée des futures lignes de metro 16 et 17, pour une mobilité facilitée. Au sein du village des médias, vous profiterez de tous les commerces et services de proximité nécessaires au quotidien. Une nouvelle école maternelle et élémentaire ouvrira ses portes à deux pas de la résience dès la rentrée scolaire 2025, offrant un cadre de vie idéal pour les familles. En s’installant face au parc départemental georges valbon, la résidence offre aux logements une vue dégagée sur cet environnement verdoyant, tout en profitant du calme et de la tranquillité des lieux. * les prestations : * prestations haut de gamme : cuisine carrelée, salle d'eau et wc entièrement carrelés. Vidéophone, visiophone, garage à vélo, fibre optique, hall d’entrée dessinée par architecte d’intérieur. * prix * 230554€ (tva 5.5%) avec une place de parking en sous-sol en sus avantages du neuf : frais de notaire réduits (2.5%), isolation thermique renforcée, isolation phonique entre étages, charges réduites car bâtiment basse consommation et rt2012 / re2020, garantie constructeur 10 ans, personnalisez votre logement au gré de vos envies, possibilité d’exonération partiel ou total de la taxe foncière pendant 2 ans bonaparte promotion - un savoir-faire de plus de 15 ans - une solide connaissance du marché immobilier neuf - le plus large choix de programmes immobiliers neufs - des appartements en exclusivité - un gain de temps phénoménal - un accompagnement personnalisé à chaque étape de votre acquisition (réservation du bien, rendez-vous banque, rendez-vous notaire, visites chantier, livraison) le plus grand choix de résidences neuves en ile de france sur : www. Bonaparte-promotion. Fr pour obtenir des renseignements rapidement, contactez votre conseiller dédié dominique passirani 07 52 06 13 71.
Iad france - lahcen ait salah vous propose : grand appartement lumineux de 5 pièces, 86 m². Idéal investissement rentable colocation idéalement placé, vous serez à seulement 10 minutes du rer b du bourget, avec le bus 152 à 3 minutes à pied. Plusieurs autres lignes de bus sont également à proximité (620,609, 607,350). Un grand salon très lumineux, est parfait pour vos moments de détente, un séjour la cuisine séparée, entièrement équipée. L’espace nuit comprend 3 chambres ''possibilité une 4 eme chambre'' une salle d’eau et des wc séparés. Un sillier et placards. En plus de ces avantages, l'appartement inclut une cave, un parking aérien et un box fermé en sous-sol. Je suis joignable 7 / 7 honoraires d'agence à la charge du vendeur. Information d'affichage énergétique sur ce bien : classe energie e indice 246 et classe climat e indice 54. Les informations sur les risques auxquels ce bien est exposé, y compris l'obligation légale de débroussaillement, sont disponibles sur le site géorisques : la présente annonce immobilière a été rédigée sous la responsabilité éditoriale de m lahcen ait salah mandataire indépendant en immobilier (sans détention de fonds), agent commercial de la sas i@d france immatriculé au rsac de bobigny sous le numéro 879039816, titulaire de la carte de démarchage immobilier pour le compte de la société i@d france sas.
Autres annonces à proximité de Dugny (93440) avec vos critères
Ne laissez pas passer cette opportunité rare de devenir propriétaire d'un appartement moderne, lumineux et parfaitement situé dans une commune en plein essor, à deux pas du futur métro grand paris (ligne 16) ! Les atouts du bien : construction récente (2022) ? Aucun travaux à prévoir ! Appartement et lumineux salon spacieux avec cuisine ouverte moderne deux chambres confortables, idéales pour une vie de famille ou un couple salle de bain élégante et wc séparés entrée accueillante avec rangements place de parking sécurisée en sous-sol incluse ? Emplacement stratégique : a 10 min en voiture du centre commercial o'parinor a 10 min de la gare du bourget rer b accès rapide aux principales autoroutes (a1, a3, a86) a 20 min de l'aéroport cdg proximité immédiate des commerces, écoles, salle de sport, station-service et bien plus que vous soyez primo-accédant, jeune couple, ou investisseur, ce bien coche toutes les cases pour un cadre de vie confortable et un placement d'avenir grâce aux projets d'aménagement du grand paris. ? Contactez moi sans tarder pour organiser une visite et découvrir tout le potentiel de ce bien exceptionnel ! Dpe b ges b charges : 1800 euros prix : 250 000 euros honoraires charge vendeur montant estimé des dépenses annuelles d'énergie pour un usage standard entre 337 euros et 455 euros indexées à l'année 2021. Pour visiter et vous accompagner dans votre projet, contactez carla gomes, au 06 46 58 55 65 ou, par courriel à c.gomes@proprietes-privees.com. Selon l'article l. 561.5 du code monétaire et financier, pour l'organisation de la visite, la présentation d'une pièce d'identité vous sera demandée. Cette présente annonce a été rédigée sous la responsabilité éditoriale de carla gomes agissant sous le statut d'agent commercial immatriculé au rsac pontoise 909308249 auprès de sas proprietes privees, au capital de 44 920 euros, zac le chêne ferré - 44 allée des cinq continents 44120 vertou; siret 487 624 777 00040, rcs nantes. Carte professionnelle transactions sur immeubles et fonds de commerce (t) et gestion immobilière (g) n°cpi 4401 2016 000 010 388 délivrée par la cci nantes - saint nazaire. Compte séquestre n°309 32 50 84 67 bpa saint-sebastien-sur-loire (44230). Garantie galian-smabtp - 89 rue de la boétie, 75008 paris - n°28137 j pour 2 000 000 euros pour t et 120 000 euros pour g. Assurance responsabilité civile professionnelle par galian-smabtp n° de police 28137. J mandat réf : '415580- le professionnel garantit et sécurise votre projet immobilier. Copropriété de 142 lots - dont 49 lots habitation. (). Charges annuelles : 1800 euros. Carla gomes (ei) agent commercial - numéro rsac : pontoise 909308249 -. Les informations sur les risques auxquels ce bien est exposé sont disponibles sur le site géorisques : www. Georisques. Gouv. Fr.

Recevez en temps réel les dernières annonces correspondant à votre recherche
Dans une résidence neuve, à deux pas de la future ligne 17 et à proximité de toutes les commodités – frais de notaire offerts ( * ) ! Économisez 14,5 % sur le prix de votre appartement grâce à la tva réduite ! Bénéficiez des avantages du prêt à taux zéro 2025 ! Pour plus d'informations, contactez votre conseiller jonathan legrand au 07 54 35 89 00. ________________________________________ l'environnement cet emplacement bénéficie de nombreux aménagements, avec écoles et commerces à proximité direct, la future ligne 17 à seulement 3 minutes. Vous profiterez ainsi d'un cadre de vie confortable et agréable, à proximité de toutes les commodités. ________________________________________ l'appartement bonaparte promotion vous propose ce superbe appartement 3 pièces de 63 m² avec balcon, situé au 1er étage d'une résidence de standing. Bien agencé et lumineux, il comprend un séjour de 25 m², deux chambres de 12 m² et 11 m², une salle de bains, un wc séparé, ainsi qu’un balcon de 4,5 m². ________________________________________ les transports le blanc-mesnil bénéficie d’un réseau de transport varié et efficace, avec une gare rer b, plusieurs lignes de bus, et les futures lignes 16 et 17 du métro du grand paris. ________________________________________ les avantages du neuf • prestations de qualité • frais de notaire réduits (2,2 %) • isolation thermique renforcée • isolation phonique entre les étages • charges réduites grâce à un bâtiment basse consommation et conforme à la norme rt2020 • label nf habitat • garantie constructeur de 10 ans • possibilité d’exonération partielle ou totale de la taxe foncière pendant 2 ans ________________________________________ bonaparte promotion profitez d’un accompagnement personnalisé avec des experts pour chaque aspect de votre projet, fort d’une expérience de plus de 15 ans. Vous bénéficiez ainsi des meilleurs prix directs promoteur et d’un large choix de projets immobiliers neufs en île-de-france. ________________________________________ prix avec 1 parking obligatoire inclus : 255 000 € (prix tva réduite) ( * ) offre valable en fonction des campagnes nationales. ________________________________________ contactez sans attendre votre conseiller bonaparte promotion : jonathan legrand au 07 54 35 89 00.
Dans une résidence neuve, à deux pas de la future ligne 17 et à proximité de toutes les commodités – frais de notaire offerts ( * ) ! Économisez 14,5 % sur le prix de votre appartement grâce à la tva réduite ! Bénéficiez des avantages du prêt à taux zéro 2025 ! Pour plus d'informations, contactez votre conseiller jonathan legrand au 07 54 35 89 00. ________________________________________ l'environnement cet emplacement bénéficie de nombreux aménagements, avec écoles et commerces à proximité direct, la future ligne 17 à seulement 3 minutes. Vous profiterez ainsi d'un cadre de vie confortable et agréable, à proximité de toutes les commodités. ________________________________________ l'appartement bonaparte promotion vous propose ce superbe appartement 4 pièces de 81 m² avec balcon, situé au 1er étage d'une résidence de standing. Bien agencé et lumineux, il comprend un séjour de 30 m², trois belles chambres dont une parental avec sde, une salle de bains, un wc séparé, ainsi qu’un balcon de 6 m². ________________________________________ les transports le blanc-mesnil bénéficie d’un réseau de transport varié et efficace, avec une gare rer b, plusieurs lignes de bus, et les futures lignes 16 et 17 du métro du grand paris. ________________________________________ les avantages du neuf • prestations de qualité • frais de notaire réduits (2,2 %) • isolation thermique renforcée • isolation phonique entre les étages • charges réduites grâce à un bâtiment basse consommation et conforme à la norme rt2020 • label nf habitat • garantie constructrice de 10 ans • possibilité d’exonération partielle ou totale de la taxe foncière pendant 2 ans ________________________________________ bonaparte promotion profitez d’un accompagnement personnalisé avec des experts pour chaque aspect de votre projet, fort d’une expérience de plus de 15 ans. Vous bénéficiez ainsi des meilleurs prix directs promoteur et d’un large choix de projets immobiliers neufs en île-de-france. ________________________________________ prix avec 1 parking obligatoire inclus : 319 000 € (prix tva réduite) ( * ) offre valable en fonction des campagnes nationales. ________________________________________ contactez sans attendre votre conseiller bonaparte promotion : jonathan legrand au 07 54 35 89 00.
93150 le blanc mesnil-je vous propose dans une résidence arborée et sécurisée, cet appartement 4 pièces pour 60,29 m², comprenant une entrée, un salon / séjour lumineux avec balcon, une cuisine indépendante aménagée, 2 chambres avec placard, une salle de bain, wc indépendant, très bien situé dans la commune proche des commodités. Il vous séduira par sa sobriété et sa clarté. Une cave. Chauffage individuelle gaz, fenêtres double vitrage. À proximité ecoles, commerces de proximité, gare rer b le bourget a 18 minutes en bus 152, accès rapide autoroute a1 et a3, aéroport de paris roissy charles de gaulle à 20 minutes en voiture. Futur grand paris express metro ligne 16 charges annuelles : 2102 euros et 222 lots d'habitation. Prix : 160 000 euros (honoraires charge vendeur). Mandat 431657 dpe d indice 194 et ges d indice 41 pour visiter et vous accompagner dans votre projet, contactez christel ferbus, au 06 10 25 37 13 ou, par courriel à leraincy@proprietes-privees.com. Selon l'article l. 561.5 du code monétaire et financier, pour l'organisation de la visite, la présentation d'une pièce d'identité vous sera demandée. Cette présente annonce a été rédigée sous la responsabilité éditoriale de christel ferbus agissant en qualité de conseiller immobilier indépendant sous portage salarial auprès de sas proprietes privees, au capital de 44 920 euros, zac le chêne ferré - 44 allée des cinq continents 44120 vertou; siret 487 624 777 00040, rcs nantes. Carte professionnelle transactions sur immeubles et fonds de commerce (t) et gestion immobilière (g) n°cpi 4401 2016 000 010 388 délivrée par la cci nantes - saint nazaire. Compte séquestre n°309 32 50 84 67 bpa saint-sebastien-sur-loire (44230). Garantie galian-smabtp - 89 rue de la boétie, 75008 paris - n°28137 j pour 2 000 000 euros pour t et 120 000 euros pour g. Assurance responsabilité civile professionnelle par galian-smabtp n° de police 28137. J #appartementleblancmesnil #achatventeappartement #museedelairetdelespace #4pieces #appartementavendre @leblancmesnil @lebourget #grandparisexpress #investisseur #garesaintlazare #investissement #grandparisexpress #metroligne16 copropriété de 515 lots - dont 222 lots habitation. (). Charges annuelles : 2102 euros. Les informations sur les risques auxquels ce bien est exposé sont disponibles sur le site géorisques : www. Georisques. Gouv. Fr.
Appartement t3 de 56 m² – quartier recherché de la gare, au bourget votre conseillère en immobilier sylvie berton capifrance vous propose : au septième et dernier étage d'un immeuble situé face à la gare du bourget, ce bel appartement idéalement placé et composé : d'un séjour lumineux avec balcon deux chambres spacieuses (11 et 13 m²) une cuisine aménagée une salle d'eau entièrement carrelée wc séparés le tout s'articulant autour d'une belle entrée et d'un couloir équipé d'un généreux placard-penderie double. Il n'y a aucune surface perdue … un grand box en sous-sol fermé et éclairé, ainsi qu'une cave saine complètent ce bien. Les fenêtres pvc double vitrage. Tous les sols sont carrelés, à l'exception des 2 chambres où il y a du parquet. Atouts supplémentaires : - possibilité d'ouverture de la cuisine sur le séjour pour avoir une pièce de vie de plus de 22 m² - accès sécurisé par digicode et interphone - chauffage collectif au gaz - compteur d'eau individuel - double exposition est / ouest - boxe fermé en sous-sol - beau balcon sans vis-à-vis offrant une vue dégagée sur paris à gauche… et sur de magnifiques couchers de soleil en face ! La proximité immédiate des gares rer b (châtelet les halles en 20 minutes), t11, lignes 16 et 17 du grand paris express, station la courneuve ligne 7 à 500 mètres et d'un important réseau d'autobus offrant une grande possibilité de déplacements. Vous avez aussi très proche l'a86 et l'a1. Crèches, écoles, collèges, lycées sont facilement accessibles, à pied, ainsi que de nombreux commerces (lidl, u express, g20, marché frais…) de même que cabinets médical et dentaire. Nombre de lots de la copropriété : 165, montant moyen annuel de la quote-part de charges (budget prévisionnel)(chauffage, eau froide et chaude, ascenseur, entretien des parties communes) : 3866€ soit 322€ par mois. Les honoraires sont à la charge du vendeur. Les informations sur les risques auxquels ce bien est exposé sont disponibles sur le site géorisques : www. Georisques. Gouv. Fr. Réseau immobilier capifrance - votre agent commercial (rsac n°442 471 967 - greffe de bobigny) sylvie berton entrepreneur individuel 06 31 76 58 99 - réf. 933964.
Iad france - montserrat viladoms vous propose : iad france - binghe zheng %phone_number% vous propose : à vendre – appartement t3 (possibilité t4) – 73,58 m² – le bourget (93) surface : 73,58 m² pièces : 3 (possibilité 4) étage : 6e sur 7 balcon, parking, cave inclus situé sur l’avenue jean jaurès, à seulement 7 minutes à pied du rer b le bourget (futures lignes 16 et 17 prévues en 2026), ce bel appartement traversant de 73,58 m² se compose de : •un grand séjour lumineux de 30,35 m² donnant sur un balcon de 6,7 m² exposé plein sud •deux chambres (possibilité de créer une troisième chambre facilement) •une cuisine indépendante, une salle de bains et des wc séparés •une cave et une place de parking complètent ce bien points forts : •résidence calme, sécurisée et bien entretenue avec espaces verts •seulement 3 appartements par étage •proximité immédiate de toutes commodités : supermarchés, écoles, restaurants, cafés, banques, cinéma, etc. •transports : rer b, bus 607 / 609 (accès rapide au métro ligne 7), bus 152 charges mensuelles : env. 313 € (chauffage et eau chaude collectifs) taxe foncière : 1 790 € idéal pour résidence principale ou investissement locatif. Pour plus d’informations ou pour organiser une visite, n’hésitez pas à me contacter en message privé. La présente annonce immobilière vise 1 lot principal situé dans une copropriété formant 21 lots au total ne faisant l'objet d'aucune procédure en cours et d'un montant de charges d’environ 312.67 € par mois (soit 3752 € annuel) déclaré par le vendeur. Honoraires d’agence à la charge du vendeur. Information d'affichage énergétique sur ce bien : classe energie e indice 303 et classe climat e indice 66. Les informations sur les risques auxquels ce bien est exposé sont disponibles sur le site géorisques : . La présente annonce immobilière a été rédigée sous la responsabilité éditoriale de mlle binghe zheng ei (id 45093), mandataire indépendant en immobilier (sans détention de fonds), agent commercial de la sas i@d france immatriculé au rsac de paris sous le numéro 883331639, titulaire de la carte de démarchage immobilier pour le compte de la société i@d france sas. La presente annonce immobiliere vise 3 lots situés dans une copropriété de 63 lots au total et ne faisant l'objet d'aucune procédure en cours citée à l'article l. 721-1 du code de la construction et de l'habitation. Montant moyen mensuel de charges déclaré par le vendeur : 312.67€ par mois (soit 3752 € annuel). Honoraires d'agence à la charge du vendeur. Information d'affichage énergétique sur ce bien : classe energie e indice 303 et classe climat e indice 66. Les informations sur les risques auxquels ce bien est exposé, y compris l'obligation légale de débroussaillement, sont disponibles sur le site géorisques : .
Iad France - Hadjila Belaroussi vous propose : Opportunité Rare à Ne Pas Manquer - Appartement T3 Lumineux avec Balcon à Le Bourget Situé dans la paisible commune de Le Bourget, à proximité de toutes les commodités, ce ravissant appartement de 55 m² offre un cadre de vie agréable et pratique. Au sein d'une résidence bien entretenue sur 4 niveaux, cet appartement est situé au 1er étage, offrant ainsi une belle luminosité tout au long de la journée. Dès l'entrée, vous serez séduit par l'agencement optimal de cet appartement. Il se compose de 2 chambres spacieuses offrant chacune un espace confortable pour se reposer et se ressourcer. La cuisine équipée est fonctionnelle et permet de préparer de délicieux repas. La salle de bain accueillante est parfaite pour se détendre après une longue journée. Les deux balcons offrent un espace extérieur idéal pour profiter d'un café en plein air ou pour créer un coin de verdure à votre goût. Cet appartement bénéficie d'une excellente distribution de chauffage via des radiateurs reliés à une alimentation au gaz naturel, assurant ainsi une chaleur douce et constante tout au long de l'année. De plus, la résidence offre un confort moderne avec la fibre optique pour rester connecté en permanence, un système de ventilation mécanique pour assurer une qualité d'air optimale, ainsi qu'un accès sécurisé avec digicode, interphone, porte blindée une cave et une place de parking. L'emplacement est idéal, avec des expositions nord et sud permettant une belle luminosité et une vue dégagée. La proximité des transports en commun, des commerces, des écoles et des espaces verts en fait un choix de vie pratique et agréable. Ne manquez pas cette opportunité rare d'acquérir un appartement confortable et lumineux à Le Bourget. Planifiez votre visite dès maintenant pour découvrir cet espace de vie idéal qui n'attend que vous La presente annonce immobiliere vise 2 lots situés dans une copropriété de 160 lots au total et ne faisant l'objet d'aucune procédure en cours citée à l'article L. 721-1 du code de la construction et de l'habitation. Montant moyen mensuel de charges déclaré par le vendeur : 198.33€ par mois (soit 2380 € annuel). Honoraires d'agence à la charge du vendeur. Information d'affichage énergétique sur ce bien : classe ENERGIE D indice 218 et classe CLIMAT D indice 56. Les informations sur les risques auxquels ce bien est exposé, y compris l'obligation légale de débroussaillement, sont disponibles sur le site Géorisques : La présente annonce immobilière a été rédigée sous la responsabilité éditoriale de Mme Hadjila Belaroussi mandataire indépendant en immobilier (sans détention de fonds), agent commercial de la SAS I@D France immatriculé au RSAC de BOBIGNY sous le numéro 834950925, titulaire de la carte de démarchage immobilier pour le compte de la société I@D France SAS.
Iad france - elvina gooriah vous propose : le bourget – centre-ville – t3 – garage – cave à deux pas de la gare et des commerces, je vous propose ce bel appartement situé au 5e étage d’une résidence de standing. Il se compose d’une entrée, d’un salon-séjour, d’une cuisine aménagée et équipée récemment rénovée, de deux chambres, d’une salle d’eau et de wc séparés. Une cave, une place de stationnement en sous-sol ainsi qu’une terrasse commune sur le même palier complètent ce bien. Appartement en excellent état : sols et peintures refaits, parquet stratifié neuf, aucun travaux à prévoir. Ses plus : appartement lumineux - nombreux rangements - vue dégagée - possibilité d'une troisième chambre. À découvrir rapidement ! La presente annonce immobiliere vise 3 lots situés dans une copropriété de 3 lots au total et ne faisant l'objet d'aucune procédure en cours citée à l'article l. 721-1 du code de la construction et de l'habitation. Montant moyen mensuel de charges déclaré par le vendeur : 190.67€ par mois (soit 2288 € annuel). Honoraires d'agence à la charge du vendeur. Information d'affichage énergétique sur ce bien : classe energie e indice 264 et classe climat e indice 57. Les informations sur les risques auxquels ce bien est exposé, y compris l'obligation légale de débroussaillement, sont disponibles sur le site géorisques : la présente annonce immobilière a été rédigée sous la responsabilité éditoriale de mme elvina gooriah mandataire indépendant en immobilier (sans détention de fonds), agent commercial de la sas i@d france immatriculé au rsac de bobigny sous le numéro 991524430, titulaire de la carte de démarchage immobilier pour le compte de la société i@d france sas.
Iad France - Doriane Pieragnoli vous propose : À vendre, un appartement deux pièces entièrement refait à neuf, situé au deuxième étage d’une résidence calme et bien entretenue. L’entrée avec placards mène à une cuisine dinatoire moderne et parfaitement équipée, entièrement rénovée en 2023. Le séjour lumineux s’ouvre sur un balcon agréable, idéal pour profiter d’un espace extérieur au quotidien. La chambre d’environ onze mètres carrés offre un cadre confortable, complétée par une salle de bain contemporaine, également refaite en 2023 avec des prestations soignées. Aucun travaux n’est à prévoir : l’appartement est en parfait état et prêt à accueillir ses futurs propriétaires. Une place de parking en parking couvert et une cave viennent compléter ce bien fonctionnel et pratique. Situé au cOEur du Bourget, l’appartement bénéficie d’une localisation stratégique. La commune, en plein essor, profite d’excellentes liaisons de transport avec le RER B, le tramway T11 et l’arrivée prochaine des lignes 16 et 17 du Grand Paris Express. Le cadre de vie est renforcé par la présence de nombreux commerces, écoles, équipements culturels et espaces verts, faisant du secteur un environnement attractif et agréable au quotidien. La presente annonce immobiliere vise 3 lots situés dans une copropriété de 30 lots au total et ne faisant l'objet d'aucune procédure en cours citée à l'article L. 721-1 du code de la construction et de l'habitation. Montant moyen mensuel de charges déclaré par le vendeur : 176.67€ par mois (soit 2120 € annuel). Honoraires d'agence à la charge du vendeur. Information d'affichage énergétique sur ce bien : classe ENERGIE D indice 186 et classe CLIMAT D indice 39. Les informations sur les risques auxquels ce bien est exposé, y compris l'obligation légale de débroussaillement, sont disponibles sur le site Géorisques : La présente annonce immobilière a été rédigée sous la responsabilité éditoriale de Mme Doriane Pieragnoli mandataire indépendant en immobilier (sans détention de fonds), agent commercial de la SAS I@D France immatriculé au RSAC de PONTOISE sous le numéro 897786778, titulaire de la carte de démarchage immobilier pour le compte de la société I@D France SAS.
Iad France - Christel Lavenant vous propose : * APPARTEMENT 4 PIECES * 2 BALCONS * CAVE * PARKING * LE BOURGET * Au cOEur de la ville, vous trouverez ce bel appartement de 4 pièces situé au 5e et dernier étage d'1 immeuble construit en 1975, offrant une surface habitable de 84.85 m². IL a été entretenu avec soin et est en excellent état. Idéal pour les familles, les couples ou les investisseurs à la recherche d'un bien immobilier de qualité. L'appartement se compose d'1 entrée parquetée, 1 cuisine entièrement aménagée et équipée avec son cellier attenant, 1 double séjour lumineux et chaleureux avec accès direct au grand balcon, 2 chambres parquetées dont 1 avec placard (chacune 1 balcon), 1 salle d'eau rénovée, 1 WC séparé, 1 dressing. Les deux balcons offrent un espace extérieur supplémentaire et une vue dégagée sur les environs. Une place de parking en sous-sol est également prévue pour garer votre véhicule en toute tranquillité. Les + : * volets roulants électriques. * store ban manuel. * frigo Whirlpool neuf. * fenêtres changées en 2022. * les charges comprennent tout : eau chaude et froide, chauffage, ascenseur, entretien espaces verts, ménage. * travaux votés et payés pour 2026 avec passage à la géothermie, ravalement et étanchéité des balcons et toit terrasse. L'emplacement de cet appartement est idéal, à proximité des commerces, des écoles, des transports en commun et des espaces verts. Ne manquez pas cette opportunité unique d'acquérir un appartement confortable et bien entretenu dans la résidence recherchée des Acacias. Simulation bancaire datant de - 3 mois demandée avant toute visite. Intercabinet possible. La presente annonce immobiliere vise 3 lots situés dans une copropriété de 126 lots au total et ne faisant l'objet d'aucune procédure en cours citée à l'article L. 721-1 du code de la construction et de l'habitation. Montant moyen mensuel de charges déclaré par le vendeur : 300€ par mois (soit 3600 € annuel). Honoraires d'agence à la charge du vendeur. Information d'affichage énergétique sur ce bien : classe ENERGIE E indice 234 et classe CLIMAT E indice 51. Les informations sur les risques auxquels ce bien est exposé, y compris l'obligation légale de débroussaillement, sont disponibles sur le site Géorisques : La présente annonce immobilière a été rédigée sous la responsabilité éditoriale de Mme Christel Lavenant mandataire indépendant en immobilier (sans détention de fonds), agent commercial de la SAS I@D France immatriculé au RSAC de MEAUX sous le numéro 884511908, titulaire de la carte de démarchage immobilier pour le compte de la société I@D France SAS.
Le Bourget centre : Grand 3 pièces lumineux avec balcon, cave et parking Au cœur du Bourget, à proximité immédiate des transports et des commerces, découvrez ce bel appartement 3 pièces de 70 m² environ, situé au 4ᵉ étage (sur 5) avec ascenseur d'une résidence bien entretenue des années 80. Une vraie opportunité à ne pas manquer, que vous cherchiez votre futur chez-vous ou un placement locatif rentable. Confort, lumière et fonctionnalité : L'appartement se compose d'un vaste séjour baigné de lumière, prolongé par un agréable balcon, idéal pour vos pauses café ou vos soirées d'été. La cuisine équipée est indépendante et fonctionnelle. L'espace nuit, bien séparé, offre deux belles chambres au calme absolu, donnant sur un jardin verdoyant, une salle d'eau moderne, des toilettes séparées, et un grand dressing dans le dégagement. Les plus qui font la différence : Double exposition offrant une excellente luminosité tout au long de la journée, nombreux rangements intégrés, double vitrage, porte blindée, cave et place de parking Appartement vendu meublé, prêt à habiter ou à louer Un investissement attractif Actuellement exploité en location meublée de courte durée, il offre une très bonne rentabilité locative. Vous pouvez continuer cette activité ou en faire votre résidence principale sans aucun travaux à prévoir. Une accessibilité remarquable : Métro ligne 7 à 6 min, RER B à 450 m, Gare SNCF à 400 m, Nouveau tramway à 500 m, Aéroport Roissy-CDG à 26 min en RER, Commerces, écoles et commodités à pied Un cadre de vie serein : Résidence bien tenue, sans amiante, aucune nuisance sonore, bonne performance énergétique Un appartement clé en main, lumineux, calme et idéalement situé. Une visite s'impose ! Contactez-moi dès maintenant pour en savoir plus ou organiser une visite. Nombre de lots de la copropriété : 66, Montant moyen annuel de la quote-part de charges (budget prévisionnel)(Eau, chauffage, entretien des parties communes, ascenseur) : 4920€ soit 410€ par mois. Les honoraires sont à la charge du vendeur. Les informations sur les risques auxquels ce bien est exposé sont disponibles sur le site Géorisques : www. georisques. gouv. fr. Réseau Immobilier CAPIFRANCE - Votre agent commercial (RSAC N°841 926 892 - Greffe de VERSAILLES) Aude BRAUNSTEFFER Entrepreneur Individuel 06 74 68 85 55 - Réf. 932842.
Iad France - Eddy Lesage vous propose : Appartement 2 pièces de 37 m² avec cave, grand jardin partagé, à 700 m du RER Le Bourget Appartement situé dans un environnement calme et agréable, au 3ᵉ étage, bénéficiant d’une belle luminosité et d’une configuration traversante offrant une excellente aération naturelle. Il se compose comme suit : une entrée une cuisine ouverte un séjour lumineux une chambre une salle d’eau avec WC Un grand jardin partagé est accessible aux résidents, idéal pour profiter d’un extérieur verdoyant au quotidien. Une cave complète le bien. L’appartement est en excellent état, aucun travaux à prévoir. Vous pourrez vous y installer immédiatement. Les charges sont très faibles, ce qui en fait un bien particulièrement économique à l’usage. Avantages : Traversant Très lumineux Grand jardin partagé Calme Faibles charges Aucun travaux Cave 3ᵉ étage Situé à 700 mètres du RER Le Bourget, à proximité immédiate des commerces, transports et commodités. La presente annonce immobiliere vise 1 lot situé dans une copropriété de 12 lots au total et ne faisant l'objet d'aucune procédure en cours citée à l'article L. 721-1 du code de la construction et de l'habitation. Montant moyen mensuel de charges déclaré par le vendeur : 51.33€ par mois (soit 616 € annuel). Honoraires d'agence à la charge du vendeur. Information d'affichage énergétique sur ce bien : classe ENERGIE G indice 425 et classe CLIMAT C indice 15. Les informations sur les risques auxquels ce bien est exposé, y compris l'obligation légale de débroussaillement, sont disponibles sur le site Géorisques : La présente annonce immobilière a été rédigée sous la responsabilité éditoriale de M Eddy Lesage mandataire indépendant en immobilier (sans détention de fonds), agent commercial de la SAS I@D France immatriculé au RSAC de PARIS sous le numéro 525404356, titulaire de la carte de démarchage immobilier pour le compte de la société I@D France SAS.
Iad France - Mickaël Garcia vous propose : Grand appartement 3 pièces - 2 chambres avec balcon, box et cave au Bourget, proche de Paris Idéalement situé au Bourget, à proximité de Paris, ce bel appartement offre un cadre de vie confortable et pratique. Profitant des bus 152,607 et 609 au pied de l'immeuble, vous rejoindrez le Métro ligne 7 en seulement quelques minutes. Egalement, la gare RER B du Bourget sera accessible en 15 minutes à pied. Cet appartement de 64.28 m² comprend un séjour lumineux avec accès au balcon, deux chambres spacieuses, une cuisine meublée ainsi qu'une salle de bain et un WC séparé. Le balcon vous permettra de profiter de l'extérieur et de vous détendre en toute tranquillité. De plus, la résidence sécurisée propose un digicode, un interphone et un accès fermé pour votre sérénité. Vous pourrez stationner votre véhicule dans le box qui est vendu avec l'appartement, mais également au niveau du stationnement libre, à l'intérieur de la copropriété. L'appartement dispose de la fibre optique, de fenêtres en double vitrage, ainsi que de volets roulants électriques. Proche des commerces, des écoles et des transports en commun, cet appartement est idéal pour un jeune couple, avec ou sans enfant. Ne manquez pas cette opportunité, contactez moi dès maintenant pour organiser une visite de ce charmant appartement au Bourget. La presente annonce immobiliere vise 3 lots situés dans une copropriété de 292 lots au total et ne faisant l'objet d'aucune procédure en cours citée à l'article L. 721-1 du code de la construction et de l'habitation. Montant moyen mensuel de charges déclaré par le vendeur : 363.37€ par mois (soit 4360.48 € annuel). Honoraires d'agence à la charge du vendeur. Information d'affichage énergétique sur ce bien : classe ENERGIE E indice 318 et classe CLIMAT E indice 69. Les informations sur les risques auxquels ce bien est exposé, y compris l'obligation légale de débroussaillement, sont disponibles sur le site Géorisques : La présente annonce immobilière a été rédigée sous la responsabilité éditoriale de M Mickaël Garcia mandataire indépendant en immobilier (sans détention de fonds), agent commercial de la SAS I@D France immatriculé au RSAC de bobigny sous le numéro 809227549, titulaire de la carte de démarchage immobilier pour le compte de la société I@D France SAS.
Iad France - Hadjila Belaroussi vous propose : Appartement T3 Lumineux et Confortable au Bourget - Idéal Investissement ou 1er Achat Situé à Le Bourget, à seulement quelques minutes de Paris, cet appartement chaleureux de 55 m² vous séduira par ses atouts tant pour un investissement locatif que pour un premier achat. Il est situé au 2ème étage d'une copropriété datant de 1959, est en bon état général, offrant un cadre de vie agréable et fonctionnel. Il se compose de 2 chambres spacieuses, d'une salle de bain avec WC et d'une cuisine équipée. L'agencement des pièces permet une circulation fluide et une optimisation de l'espace. e Il bénéficie d'une double exposition sud-est -ouest, assurant une belle luminosité tout au long de la journée. Les espaces de vie sont lumineux et accueillants, invitant à la détente et à la convivialité. Pas de travaux à prévoir, vous n'avez plus qu'à poser vos valises et profiter de votre nouveau chez-vous. Atout supplémentaire : cet appartement est le seul de l’immeuble à être équipé d’une porte blindée, garantissant sécurité et tranquillité d’esprit pour ses occupants. La situation géographique de cet appartement est également un véritable atout, proche des commerces, des transports en commun et des axes routiers, facilitant ainsi vos déplacements quotidiens. Une opportunité à ne pas manquer pour ceux à la recherche d'un bien confortable, lumineux et bien situé, que ce soit pour son propre logement ou pour un investissement locatif. Contactez-moi dès maintenant pour organiser une visite et laissez-vous séduire par ce charmant appartement au Bourget. La presente annonce immobiliere vise 2 lots situés dans une copropriété de 72 lots au total et ne faisant l'objet d'aucune procédure en cours citée à l'article L. 721-1 du code de la construction et de l'habitation. Montant moyen mensuel de charges déclaré par le vendeur : 190.33€ par mois (soit 2284 € annuel). Honoraires d'agence à la charge du vendeur. Information d'affichage énergétique sur ce bien : classe ENERGIE D indice 196 et classe CLIMAT D indice 42. Les informations sur les risques auxquels ce bien est exposé, y compris l'obligation légale de débroussaillement, sont disponibles sur le site Géorisques : La présente annonce immobilière a été rédigée sous la responsabilité éditoriale de Mme Hadjila Belaroussi mandataire indépendant en immobilier (sans détention de fonds), agent commercial de la SAS I@D France immatriculé au RSAC de BOBIGNY sous le numéro 834950925, titulaire de la carte de démarchage immobilier pour le compte de la société I@D France SAS.
Residence neuve au derniere norme permettant des charges faibles ! – devenez proprietaire a moindre coup grace aux prix maitrises ! – économisez 14.5 % sur le prix de votre appartement avec la tva réduite ! Profitez des nouveaux avantages du futur prêt à taux zéro 2024 ! - pour plus d'informations contactez votre conseiller au 06 19 72 82 62 – appartement – bonaparte promotion vous propose ce superbe appartement 3 pièces de 61 m² avec une grande terrasse exposé sud d'une résidence de standing, spacieux et lumineux cet appartement vous offre un bel espace de vie avec cuisine équipée de 26,5 m², 2 belles chambres, une salle de bain et 1 wc. – la ville – proche de paris et en pleine mutation, le blanc-mesnil mène une politique d’aménagement de son territoire, portée par un grand projet urbain à long terme. La commune ambitionne de devenir la première ville-jardin de seine-saint-denis, tout en préservant son cadre pavillonnaire. À mi-chemin entre l’aéroport roissy-charles-de-gaulle et le stade de france, le blanc-mesnil va consolider sa proximité avec paris transport – le blanc-mesnil possède une gare rer b et se prépare à accueillir deux gares de métro dans le cadre du grand paris express– les prestations – chape acoustique, isolation thermique renforcé, vidéophone, visiophone, garage à vélo, fibre optique, hall d’entrée dessinée par architecte d’intérieur, eau et chauffage assuré par le réseau de chaleur urbain – avantages du neuf – frais de notaire réduits (2.2%), isolation thermique renforcée, isolation phonique entre étages, charges réduites car bâtiment basse consommation et rt2012, label nf habitat, garantie constructeur 10 ans. Possibilité d’exonération partiel ou total de la taxe foncière pendant 2 ans – bonaparte promotion : un accompagnement d’experts sur tous les aspects de votre projet fort d’un savoir-faire de plus de 15 ans d’expérience – un prix direct promoteur avec le plus grand choix de projet immobilier neuf en ile de france. – - pour plus d'informations contactez votre conseiller au 06 19 72 82 62.
Exclusivité — Appartement 2 pièces de 46 m², prix 189 000 €. En rez-de-jardin d'une copropriété sécurisée et calme, ce deux-pièces fonctionnel propose une chambre, un séjour lumineux et une terrasse privative. L'agencement optimisé valorise chaque surface et offre un accès direct aux espaces extérieurs, assurant luminosité et intimité. Un box fermé complète le bien, garantissant confort et sécurité pour le stationnement. Situé dans un secteur recherché, l'immeuble bénéficie d'un environnement de proximité : commerces, marchés et boulangeries accessibles à pied, ainsi que services de quartier. Les écoles et crèches se trouvent à courte distance, facilitant la vie de famille. Les espaces verts et sentiers de promenade à proximité offrent des possibilités de loisirs en plein air. Les bonnes dessertes routières et les lignes de bus proches simplifient les déplacements quotidiens et les connexions vers les gares et pôles d'échanges de la métropole. Ce bien représente une opportunité intéressante pour un premier achat ou pour un couple souhaitant un cadre de vie pratique, avec la sécurité d'un stationnement privatif. Visites sur rendez-vous.
Devenez proprietaire d’un magnifique 5p avec terrasse pour moins d’un loyer par mois – frais de notaire offert – économisez 14.5 % sur le prix de votre appartement avec la tva réduite ! Profitez des nouveaux avantages du futur prêt à taux zéro jusqu’à 180 000 € ! – pour plus d'informations contactez votre conseiller jonathan legrand au 07 54 35 89 00 – profitez de cette adresse unique à deux pas du parc départemental george valbon, véritable poumon vert du département et lieu de rendez-vous des familles et des sportifs. Cet emplacement bénéficie de nombreux aménagements à proximité des commerces et des groupes scolaires, dans un quartier calme. – appartement – bonaparte promotion vous propose ce superbe appartement 5 pièces de 103.68 m² avec une grande terrasse de 56 m² plus un balcon de 10 m² au 4e étage d'une résidence de standing, bien agencé et lumineux, cet appartement vous offre un séjour de 40m, quatre belles chambre une salle de bain et wc séparé. Transport – stains bénéficiant d'un réseau de transport efficace vous rejoindrez les rer b et d ainsi que les nouvelles lignes de métro en moins de 15 min – prix en tva 20% : 377 200 € remise exceptionelle : prix avec 1 parking inclus et remise inclus en tva 5,5 % : 306 622 € – avantages du neuf – frais de notaire réduits (2%), isolation thermique renforcée, isolation phonique entre étages, charges réduites car bâtiment basse consommation et rt2012, label nf habitat, garantie constructeur 10 ans. Possibilité d’exonération partiel ou total de la taxe foncière pendant 2 ans – bonaparte promotion – un accompagnement d’experts sur tous les aspects de votre projet fort d’un savoir-faire de plus de 15 ans d’expérience – un prix direct promoteur avec le plus grand choix de projet immobilier neuf en ile de france. Contactez sans attendre votre conseiller bonaparte promotion : jonathan legrand au 07 54 35 89 00 –.
À vendre ! Appartement drancy 2 pièces 47.13 m² avec un balcon dans une résidence sécurisé. Quartier paris-campagne dans une résidence neuve à l'architecture contemporaine, découvrez ce 2 pièces parfaitement agencé, idéal pour vivre ou investir dans un quartier calme, pratique et recherché. Description du bien : -entrée -séjour lumineux avec cuisine ouverte -une chambres confortables -salle de bains moderne -wc séparés -loggia spacieux -1 place de parking livraison prévue : janvier 2027 commerces de proximité à pied : boulangerie, pharmacie, supermarché écoles à quelques minutes (de la maternelle au lycée) rer facilement accessible accès rapide à la n2, a1 et a3 vendu au prix de 266 000 euros (honoraires à la charge du vendeur) une opportunité à ne pas manquer ! Les informations sur les risques auxquels ce bien est exposé sont disponibles sur le site géorisques : / . Cette vente est garantie 12 mois. Pour visiter et vous accompagner dans votre projet, contactez maïté montes, au 06 06 89 91 86 ou, par courriel à m.montes@proprietes-privees.com. Selon l'article l. 561.5 du code monétaire et financier, pour l'organisation de la visite, la présentation d'une pièce d'identité vous sera demandée. Cette présente annonce a été rédigée sous la responsabilité éditoriale de maïté montes agissant sous le statut d'agent commercial immatriculé au rsac meaux 334 882 800 auprès de sas proprietes privees, au capital de 44 920 euros, zac le chêne ferré - 44 allée des cinq continents 44120 vertou; siret 487 624 777 00040, rcs nantes. Carte professionnelle transactions sur immeubles et fonds de commerce (t) et gestion immobilière (g) n°cpi 4401 2016 000 010 388 délivrée par la cci nantes - saint nazaire. Compte séquestre n°309 32 50 84 67 bpa saint-sebastien-sur-loire (44230). Garantie galian-smabtp - 89 rue de la boétie, 75008 paris - n°28137 j pour 2 000 000 euros pour t et 120 000 euros pour g. Assurance responsabilité civile professionnelle par galian-smabtp n° de police 28137. J mandat réf : 402824 mandat 540c - le professionnel garantit et sécurise votre projet immobilier. Maïté montes (ei) agent commercial - numéro rsac : meaux 334 882 800 -.
Iad France - Pingping Liu vous propose : Appartement T4 lumineux – 90 m² – Résidence sécurisée À découvrir sans tarder ! Situé au 10ᵉ étage sur 15 avec ascenseur d’une résidence fermée, calme et bien entretenue, cet appartement T4 de 90 m² avec un loggia 3.5 m², offre un agencement optimal sans perte d’espace. Il se compose de : - Une entrée, - Un séjour très lumineux, vu dégagé, - Une cuisine indépendante avec un cellier, - Trois chambres (possibilité de double séjour si besoin de deux chambres), - Une salle de bain, - Toilettes séparé. Le bien comprend également une cave et une place de parking. Excellente localisation : à 500 du tram T1 (arrêt Six Routes), permettant de rejoindre la ligne 7 La Courneuve, également proche de futur métro 15,16, 17 Proche de toutes commodités. Idéal pour une famille ou un investissement La presente annonce immobiliere vise 3 lots situés dans une copropriété de 600 lots au total et ne faisant l'objet d'aucune procédure en cours citée à l'article L. 721-1 du code de la construction et de l'habitation. Montant moyen mensuel de charges déclaré par le vendeur : 363€ par mois (soit 4356 € annuel). Honoraires d'agence à la charge du vendeur. Information d'affichage énergétique sur ce bien : classe ENERGIE D indice 241 et classe CLIMAT D indice 48. Les informations sur les risques auxquels ce bien est exposé, y compris l'obligation légale de débroussaillement, sont disponibles sur le site Géorisques : La présente annonce immobilière a été rédigée sous la responsabilité éditoriale de Mme Pingping Liu mandataire indépendant en immobilier (sans détention de fonds), agent commercial de la SAS I@D France immatriculé au RSAC de CRETEIL sous le numéro 952648004, titulaire de la carte de démarchage immobilier pour le compte de la société I@D France SAS.
Iad france - marc franc (07 80 36 67 20) vous propose : === frais de notaire offerts jusqu'au 31 janvier 2026 === 'cour nova' à la courneuve : tva réduite à 5,5% sous réserve d'éligibilité - frais d'agence à la charge du vendeur - métro et transports à proximité immédiate. Située aux portes de paris, au coeur du grand-paris, la courneuve accueille un des plus grands parcs de l'ile de france, véritable poumon vert. La résidence cour nova, quartier des quatre routes, propose des appartements du t1 au t5, lumineux et bien agencés, balcons, terrasses, jardins privatifs., répartis sur deux bâtiments de 2 étages à la signature sobre et moderne. - logement 1 pièce, r + 2,. Exposition sud,. Contenance totale de 34 m² environ,. Balcon de 4 m² environ,. Frais de notaire estimés à 4800 euros en moyenne === offerts jusqu'au 31 janvier 2026 === profitez d’un cadre de vie conjuguant modernisation, dynamisme et havre de paix, un quartier riche de ses commerces, ses groupes scolaires, des services. Autres logements disponibles : - 1 à 5 pièces, - de 30 à 105 m² environ, - jardin, balcon ou terrasse, - parking au sous-sol ou aérien (lot secondaire), nf habitat hqe et re 2020 livraison prévisionnelle 2ème t 2028. Contactez-moi pour en savoir plus et réserver ! Honoraires d’agence à la charge du vendeur. Bien non soumis au dpe. Les informations sur les risques auxquels ce bien est exposé sont disponibles sur le site géorisques : . La présente annonce immobilière a été rédigée sous la responsabilité éditoriale de m. Marc franc ei (id 83540), mandataire indépendant en immobilier (sans détention de fonds), agent commercial de la sas i@d france immatriculé au rsac de vannes sous le numéro 931732952, titulaire de la carte de démarchage immobilier pour le compte de la société i@d france sas. Retrouvez tous nos biens sur notre site internet. .
Iad france - marc franc (07 80 36 67 20) vous propose : === frais de notaire offerts jusqu'au 31 janvier 2026 === 'cour nova' à la courneuve : - tva réduite à 5,5% sous réserve d'éligibilité - frais d'agence à la charge du vendeur - métro et transports à proximité immédiate. Située aux portes de paris, au coeur du grand-paris, la courneuve accueille un des plus grands parcs de l'ile de france, véritable poumon vert. La résidence cour nova, quartier des quatre routes, propose des appartements du t1 au t5, lumineux et bien agencés, balcons, terrasses, jardins privatifs., répartis sur deux bâtiments de 2 étages à la signature sobre et moderne. - logement 2 pièces, r + 2,. Exposition sud,. Contenance totale de 53 m² environ,. Balcon d'un peu plus de 8 m² environ,. Frais de notaire estimés à 7000 euros en moyenne === offerts jusqu'au 31 janvier 2026 ===, profitez d’un cadre de vie conjuguant modernisation, dynamisme et havre de paix, un quartier riche de ses commerces, ses groupes scolaires, des services. Autres logements disponibles : - 1 à 5 pièces, - de 30 à 105 m² environ, - jardin, balcon ou terrasse, - parking au sous-sol ou aérien (lot secondaire), nf habitat hqe et re 2020 livraison prévisionnelle 2ème t 2028. Contactez-moi pour en savoir plus et réserver ! Honoraires d’agence à la charge du vendeur. Bien non soumis au dpe. Les informations sur les risques auxquels ce bien est exposé sont disponibles sur le site géorisques : . La présente annonce immobilière a été rédigée sous la responsabilité éditoriale de m. Marc franc ei (id 83540), mandataire indépendant en immobilier (sans détention de fonds), agent commercial de la sas i@d france immatriculé au rsac de vannes sous le numéro 931732952, titulaire de la carte de démarchage immobilier pour le compte de la société i@d france sas. Retrouvez tous nos biens sur notre site internet. .
Iad france - marc franc (07 80 36 67 20) vous propose : === frais de notaire offerts jusqu'au 31 janvier 2026 === 'cour nova' à la courneuve : - tva réduite à 5,5% sous réserve d'éligibilité - frais d'agence à la charge du vendeur - métro et transports à proximité immédiate. Située aux portes de paris, au coeur du grand-paris, la courneuve accueille un des plus grands parcs de l'ile de france, véritable poumon vert. La résidence cour nova, quartier des quatre routes, propose des appartements du t1 au t5, lumineux et bien agencés, balcons, terrasses, jardins privatifs., répartis sur deux bâtiments de 2 étages à la signature sobre et moderne. - logement 5 pièces, r + 2,. Exposition sud,. Contenance totale de 105 m² environ,. Balcon de 9 m² environ,. Frais de notaire estimés à 11600 euros en moyenne === offerts jusqu'au 31 janvier 2026 === profitez d’un cadre de vie conjuguant modernisation, dynamisme et havre de paix, un quartier riche de ses commerces, ses groupes scolaires, des services. Autres logements disponibles : - 1 à 5 pièces, - de 30 à 105 m² environ, - jardin, balcon ou terrasse, - parking au sous-sol ou aérien (lot secondaire), nf habitat hqe et re 2020 livraison prévisionnelle 2ème t 2028. Contactez-moi pour en savoir plus et réserver ! Honoraires d’agence à la charge du vendeur. Bien non soumis au dpe. Les informations sur les risques auxquels ce bien est exposé sont disponibles sur le site géorisques : . La présente annonce immobilière a été rédigée sous la responsabilité éditoriale de m. Marc franc ei (id 83540), mandataire indépendant en immobilier (sans détention de fonds), agent commercial de la sas i@d france immatriculé au rsac de vannes sous le numéro 931732952, titulaire de la carte de démarchage immobilier pour le compte de la société i@d france sas. Retrouvez tous nos biens sur notre site internet. .