48 résultats
Iad France - Pierre Magerand (06 37 21 92 42) vous propose : Appartement T4 avec terrasse à Saint-Malo. Située rue Amiral Leverger, au cOEur d’un environnement résidentiel verdoyant, la résidence contemporaine Arborea conjugue élégance architecturale et confort de vie. À proximité immédiate des commerces, des transports, des plages et des espaces naturels, cette adresse offre un cadre paisible à seulement quelques minutes du centre de Saint-Malo. Disponible 2028. Un appartement raffiné : Situé au 4 ème étage, cet appartement T4 de 86 m² environ habitables se prolonge par une terrasse de 40 m² environ. - Séjour / cuisine de 33 m² environ. - Trois chambres confortables. - Une salle de bains et une salle d’eau modernes. - Annexes incluses : parkings intérieurs sécurisés. De belles prestations : - Revêtements stratifiés dans le séjour / cuisine et la chambre, gamme Quick-Step Impressive ou équivalent, avec isolant acoustique. - Menuiseries extérieures avec double vitrage isolant, volets roulants électriques. - Résidence sécurisée avec visiophone, contrôle d’accès Vigik. - Local vélos et espaces extérieurs aménagés. L’art de vivre à Saint-Malo : - À proximité immédiate des commerces, services et transports. - À quelques minutes des plages et du quartier de Saint-Servan. - Environnement naturel, calme et recherché. - Accès rapide intra-muros, gare TGV et axes majeurs. N’hésitez pas à me contacter pour plus d’informations ou pour un accompagnement sur mesure. Honoraires d’agence à la charge du vendeur. Bien non soumis au DPE. Les informations sur les risques auxquels ce bien est exposé sont disponibles sur le site Géorisques : . La présente annonce immobilière a été rédigée sous la responsabilité éditoriale de M. Pierre Magerand EI (ID 86098), mandataire indépendant en immobilier (sans détention de fonds), agent commercial de la SAS I@D France immatriculé au RSAC de Cusset sous le numéro 938729175, titulaire de la carte de démarchage immobilier pour le compte de la société I@D France SAS. Retrouvez tous nos biens sur notre site internet. .
Iad France - Pierre Magerand (06 37 21 92 42) vous propose : Appartement T3 avec terrasse à Saint-Malo. Située rue Amiral Leverger, au cOEur d’un environnement résidentiel verdoyant, la résidence contemporaine Arborea conjugue élégance architecturale et confort de vie. À proximité immédiate des commerces, des transports, des plages et des espaces naturels, cette adresse offre un cadre paisible à seulement quelques minutes du centre de Saint-Malo. Disponible 2028. Un appartement raffiné : Situé au 4 ème étage, cet appartement T3 de 74 m² environ habitables se prolonge par une terrasse de 49 m² environ. - Séjour / cuisine de 35 m² environ. - Deux chambres confortables. - Salle d’eau moderne. - Annexes incluses : parkings intérieurs sécurisés. De belles prestations : - Revêtements stratifiés dans le séjour / cuisine et la chambre, gamme Quick-Step Impressive ou équivalent, avec isolant acoustique. - Menuiseries extérieures avec double vitrage isolant, volets roulants électriques. - Résidence sécurisée avec visiophone, contrôle d’accès Vigik. - Local vélos et espaces extérieurs aménagés. L’art de vivre à Saint-Malo : - À proximité immédiate des commerces, services et transports. - À quelques minutes des plages et du quartier de Saint-Servan. - Environnement naturel, calme et recherché. - Accès rapide intra-muros, gare TGV et axes majeurs. N’hésitez pas à me contacter pour plus d’informations ou pour un accompagnement sur mesure. Honoraires d’agence à la charge du vendeur. Bien non soumis au DPE. Les informations sur les risques auxquels ce bien est exposé sont disponibles sur le site Géorisques : . La présente annonce immobilière a été rédigée sous la responsabilité éditoriale de M. Pierre Magerand EI (ID 86098), mandataire indépendant en immobilier (sans détention de fonds), agent commercial de la SAS I@D France immatriculé au RSAC de Cusset sous le numéro 938729175, titulaire de la carte de démarchage immobilier pour le compte de la société I@D France SAS. Retrouvez tous nos biens sur notre site internet. .
Iad France - Pierre Magerand (06 37 21 92 42) vous propose : Appartement T4 avec balcon à Saint-Malo. Située rue Amiral Leverger, au cOEur d’un environnement résidentiel verdoyant, la résidence contemporaine Arborea conjugue élégance architecturale et confort de vie. À proximité immédiate des commerces, des transports, des plages et des espaces naturels, cette adresse offre un cadre paisible à seulement quelques minutes du centre de Saint-Malo. Disponible 2028. Un appartement raffiné : Situé au 2 ème étage, cet appartement T4 de 85 m² environ habitables se prolonge par un balcon de 11 m² environ. - Séjour / cuisine de 32 m² environ. - Trois chambres confortables. - Deux salles d’eau modernes. - Annexes incluses : parking intérieur sécurisé. De belles prestations : - Revêtements stratifiés dans le séjour / cuisine et la chambre, gamme Quick-Step Impressive ou équivalent, avec isolant acoustique. - Menuiseries extérieures avec double vitrage isolant, volets roulants électriques. - Résidence sécurisée avec visiophone, contrôle d’accès Vigik. - Local vélos et espaces extérieurs aménagés. L’art de vivre à Saint-Malo : - À proximité immédiate des commerces, services et transports. - À quelques minutes des plages et du quartier de Saint-Servan. - Environnement naturel, calme et recherché. - Accès rapide intra-muros, gare TGV et axes majeurs. N’hésitez pas à me contacter pour plus d’informations ou pour un accompagnement sur mesure. Honoraires d’agence à la charge du vendeur. Bien non soumis au DPE. Les informations sur les risques auxquels ce bien est exposé sont disponibles sur le site Géorisques : . La présente annonce immobilière a été rédigée sous la responsabilité éditoriale de M. Pierre Magerand EI (ID 86098), mandataire indépendant en immobilier (sans détention de fonds), agent commercial de la SAS I@D France immatriculé au RSAC de Cusset sous le numéro 938729175, titulaire de la carte de démarchage immobilier pour le compte de la société I@D France SAS. Retrouvez tous nos biens sur notre site internet. .
Iad France - Pierre Magerand (06 37 21 92 42) vous propose : Appartement T4 avec balcon à Saint-Malo. Située rue Amiral Leverger, au cOEur d’un environnement résidentiel verdoyant, la résidence contemporaine Arborea conjugue élégance architecturale et confort de vie. À proximité immédiate des commerces, des transports, des plages et des espaces naturels, cette adresse offre un cadre paisible à seulement quelques minutes du centre de Saint-Malo. Disponible 2028. Un appartement raffiné : Situé au 2 ème étage, cet appartement T4 de 80 m² environ habitables se prolonge par un balcon de 6 m² environ. - Séjour / cuisine de 26 m² environ. - Trois chambres confortables. - Deux salles d’eau modernes. - Annexes incluses : parking intérieur sécurisé. De belles prestations : - Revêtements stratifiés dans le séjour / cuisine et la chambre, gamme Quick-Step Impressive ou équivalent, avec isolant acoustique. - Menuiseries extérieures avec double vitrage isolant, volets roulants électriques. - Résidence sécurisée avec visiophone, contrôle d’accès Vigik. - Local vélos et espaces extérieurs aménagés. L’art de vivre à Saint-Malo : - À proximité immédiate des commerces, services et transports. - À quelques minutes des plages et du quartier de Saint-Servan. - Environnement naturel, calme et recherché. - Accès rapide intra-muros, gare TGV et axes majeurs. N’hésitez pas à me contacter pour plus d’informations ou pour un accompagnement sur mesure. Honoraires d’agence à la charge du vendeur. Bien non soumis au DPE. Les informations sur les risques auxquels ce bien est exposé sont disponibles sur le site Géorisques : . La présente annonce immobilière a été rédigée sous la responsabilité éditoriale de M. Pierre Magerand EI (ID 86098), mandataire indépendant en immobilier (sans détention de fonds), agent commercial de la SAS I@D France immatriculé au RSAC de Cusset sous le numéro 938729175, titulaire de la carte de démarchage immobilier pour le compte de la société I@D France SAS. Retrouvez tous nos biens sur notre site internet. .

Recevez en temps réel les dernières annonces correspondant à votre recherche
Iad France - Pierre Magerand (06 37 21 92 42) vous propose : Appartement T2 avec balcon à Saint-Malo. Située rue Amiral Leverger, au cOEur d’un environnement résidentiel verdoyant, la résidence contemporaine Arborea conjugue élégance architecturale et confort de vie. À proximité immédiate des commerces, des transports, des plages et des espaces naturels, cette adresse offre un cadre paisible à seulement quelques minutes du centre de Saint-Malo. Disponible 2028. Un appartement raffiné : Situé au 5 ème étage, cet appartement T2 de 48 m² environ habitables se prolonge par un balcon de 6 m² environ. - Séjour / cuisine de 20 m² environ. - Une chambre confortable. - Salle d’eau moderne. - Annexes incluses : un parking intérieur sécurisé. De belles prestations : - Revêtements stratifiés dans le séjour / cuisine et la chambre, gamme Quick-Step Impressive ou équivalent, avec isolant acoustique. - Menuiseries extérieures avec double vitrage isolant, volets roulants électriques. - Résidence sécurisée avec visiophone, contrôle d’accès Vigik. - Local vélos et espaces extérieurs aménagés. L’art de vivre à Saint-Malo : - À proximité immédiate des commerces, services et transports. - À quelques minutes des plages et du quartier de Saint-Servan. - Environnement naturel, calme et recherché. - Accès rapide intra-muros, gare TGV et axes majeurs. N’hésitez pas à me contacter pour plus d’informations ou pour un accompagnement sur mesure. Honoraires d’agence à la charge du vendeur. Bien non soumis au DPE. Les informations sur les risques auxquels ce bien est exposé sont disponibles sur le site Géorisques : . La présente annonce immobilière a été rédigée sous la responsabilité éditoriale de M. Pierre Magerand EI (ID 86098), mandataire indépendant en immobilier (sans détention de fonds), agent commercial de la SAS I@D France immatriculé au RSAC de Cusset sous le numéro 938729175, titulaire de la carte de démarchage immobilier pour le compte de la société I@D France SAS. Retrouvez tous nos biens sur notre site internet. .
Iad France - Pierre Magerand (06 37 21 92 42) vous propose : Appartement T3 avec balcon à Saint-Malo. Située rue Amiral Leverger, au cOEur d’un environnement résidentiel verdoyant, la résidence contemporaine Arborea conjugue élégance architecturale et confort de vie. À proximité immédiate des commerces, des transports, des plages et des espaces naturels, cette adresse offre un cadre paisible à seulement quelques minutes du centre de Saint-Malo. Disponible 2028. Un appartement raffiné : Situé au 1 er étage, cet appartement T3 de 62 m² environ habitables se prolonge par un balcon de 16 m² environ. - Séjour / cuisine de 30 m² environ. - Deux chambres confortables. - Salle d’eau moderne. - Annexes incluses : parkings intérieurs sécurisés. De belles prestations : - Revêtements stratifiés dans le séjour / cuisine et la chambre, gamme Quick-Step Impressive ou équivalent, avec isolant acoustique. - Menuiseries extérieures avec double vitrage isolant, volets roulants électriques. - Résidence sécurisée avec visiophone, contrôle d’accès Vigik. - Local vélos et espaces extérieurs aménagés. L’art de vivre à Saint-Malo : - À proximité immédiate des commerces, services et transports. - À quelques minutes des plages et du quartier de Saint-Servan. - Environnement naturel, calme et recherché. - Accès rapide intra-muros, gare TGV et axes majeurs. N’hésitez pas à me contacter pour plus d’informations ou pour un accompagnement sur mesure. Honoraires d’agence à la charge du vendeur. Bien non soumis au DPE. Les informations sur les risques auxquels ce bien est exposé sont disponibles sur le site Géorisques : . La présente annonce immobilière a été rédigée sous la responsabilité éditoriale de M. Pierre Magerand EI (ID 86098), mandataire indépendant en immobilier (sans détention de fonds), agent commercial de la SAS I@D France immatriculé au RSAC de Cusset sous le numéro 938729175, titulaire de la carte de démarchage immobilier pour le compte de la société I@D France SAS. Retrouvez tous nos biens sur notre site internet. .
Iad France - Pierre Magerand (06 37 21 92 42) vous propose : Appartement T3 avec balcon à Saint-Malo. Située rue Amiral Leverger, au cOEur d’un environnement résidentiel verdoyant, la résidence contemporaine Arborea conjugue élégance architecturale et confort de vie. À proximité immédiate des commerces, des transports, des plages et des espaces naturels, cette adresse offre un cadre paisible à seulement quelques minutes du centre de Saint-Malo. Disponible 2028. Un appartement raffiné : Situé au 1 er étage, cet appartement T3 de 59 m² environ habitables se prolonge par un balcon de 3 m² environ. - Séjour / cuisine de 22 m² environ. - Deux chambres confortables. - Salle d’eau moderne. - Annexes incluses : un parking intérieur sécurisé. De belles prestations : - Revêtements stratifiés dans le séjour / cuisine et la chambre, gamme Quick-Step Impressive ou équivalent, avec isolant acoustique. - Menuiseries extérieures avec double vitrage isolant, volets roulants électriques. - Résidence sécurisée avec visiophone, contrôle d’accès Vigik. - Local vélos et espaces extérieurs aménagés. L’art de vivre à Saint-Malo : - À proximité immédiate des commerces, services et transports. - À quelques minutes des plages et du quartier de Saint-Servan. - Environnement naturel, calme et recherché. - Accès rapide intra-muros, gare TGV et axes majeurs. N’hésitez pas à me contacter pour plus d’informations ou pour un accompagnement sur mesure. Honoraires d’agence à la charge du vendeur. Bien non soumis au DPE. Les informations sur les risques auxquels ce bien est exposé sont disponibles sur le site Géorisques : . La présente annonce immobilière a été rédigée sous la responsabilité éditoriale de M. Pierre Magerand EI (ID 86098), mandataire indépendant en immobilier (sans détention de fonds), agent commercial de la SAS I@D France immatriculé au RSAC de Cusset sous le numéro 938729175, titulaire de la carte de démarchage immobilier pour le compte de la société I@D France SAS. Retrouvez tous nos biens sur notre site internet. .
Iad France - Pierre Magerand (06 37 21 92 42) vous propose : Appartement T2 avec balcon à Saint-Malo. Située rue Amiral Leverger, au cOEur d’un environnement résidentiel verdoyant, la résidence contemporaine Arborea conjugue élégance architecturale et confort de vie. À proximité immédiate des commerces, des transports, des plages et des espaces naturels, cette adresse offre un cadre paisible à seulement quelques minutes du centre de Saint-Malo. Disponible 2028. Un appartement raffiné : Situé au 1 er étage, cet appartement T2 de 40 m² environ habitables se prolonge par un balcon de 12 m² environ. - Séjour / cuisine de 23 m² environ. - Une chambre confortable. - Salle d’eau moderne. - Annexes incluses : un parking intérieur sécurisé. De belles prestations : - Revêtements stratifiés dans le séjour / cuisine et la chambre, gamme Quick-Step Impressive ou équivalent, avec isolant acoustique. - Menuiseries extérieures avec double vitrage isolant, volets roulants électriques. - Résidence sécurisée avec visiophone, contrôle d’accès Vigik. - Local vélos et espaces extérieurs aménagés. L’art de vivre à Saint-Malo : - À proximité immédiate des commerces, services et transports. - À quelques minutes des plages et du quartier de Saint-Servan. - Environnement naturel, calme et recherché. - Accès rapide intra-muros, gare TGV et axes majeurs. N’hésitez pas à me contacter pour plus d’informations ou pour un accompagnement sur mesure. Honoraires d’agence à la charge du vendeur. Bien non soumis au DPE. Les informations sur les risques auxquels ce bien est exposé sont disponibles sur le site Géorisques : . La présente annonce immobilière a été rédigée sous la responsabilité éditoriale de M. Pierre Magerand EI (ID 86098), mandataire indépendant en immobilier (sans détention de fonds), agent commercial de la SAS I@D France immatriculé au RSAC de Cusset sous le numéro 938729175, titulaire de la carte de démarchage immobilier pour le compte de la société I@D France SAS. Retrouvez tous nos biens sur notre site internet. .
Iad France - Pierre Magerand (06 37 21 92 42) vous propose : Appartement T2 avec terrasse à Saint-Malo. Située rue Amiral Leverger, au cOEur d’un environnement résidentiel verdoyant, la résidence contemporaine Arborea conjugue élégance architecturale et confort de vie. À proximité immédiate des commerces, des transports, des plages et des espaces naturels, cette adresse offre un cadre paisible à seulement quelques minutes du centre de Saint-Malo. Disponible 2028. Un appartement raffiné : Situé au 4 ème étage, cet appartement T2 de 49 m² environ habitables se prolonge par une terrasse de 7 m² environ. - Séjour / cuisine de 20 m² environ. - Une chambre confortable. - Salle d’eau moderne. - Annexes incluses : un parking intérieur sécurisé. De belles prestations : - Revêtements stratifiés dans le séjour / cuisine et la chambre, gamme Quick-Step Impressive ou équivalent, avec isolant acoustique. - Menuiseries extérieures avec double vitrage isolant, volets roulants électriques. - Résidence sécurisée avec visiophone, contrôle d’accès Vigik. - Local vélos et espaces extérieurs aménagés. L’art de vivre à Saint-Malo : - À proximité immédiate des commerces, services et transports. - À quelques minutes des plages et du quartier de Saint-Servan. - Environnement naturel, calme et recherché. - Accès rapide intra-muros, gare TGV et axes majeurs. N’hésitez pas à me contacter pour plus d’informations ou pour un accompagnement sur mesure. Honoraires d’agence à la charge du vendeur. Bien non soumis au DPE. Les informations sur les risques auxquels ce bien est exposé sont disponibles sur le site Géorisques : . La présente annonce immobilière a été rédigée sous la responsabilité éditoriale de M. Pierre Magerand EI (ID 86098), mandataire indépendant en immobilier (sans détention de fonds), agent commercial de la SAS I@D France immatriculé au RSAC de Cusset sous le numéro 938729175, titulaire de la carte de démarchage immobilier pour le compte de la société I@D France SAS. Retrouvez tous nos biens sur notre site internet. .
Iad France - Pierre Magerand (06 37 21 92 42) vous propose : Appartement T2 avec balcon à Saint-Malo. Située rue Amiral Leverger, au cOEur d’un environnement résidentiel verdoyant, la résidence contemporaine Arborea conjugue élégance architecturale et confort de vie. À proximité immédiate des commerces, des transports, des plages et des espaces naturels, cette adresse offre un cadre paisible à seulement quelques minutes du centre de Saint-Malo. Disponible 2028. Un appartement raffiné : Situé au 2 ème étage, cet appartement T2 de 45 m² environ habitables se prolonge par un balcon de 6 m² environ. - Séjour / cuisine de 26 m² environ. - Une chambre confortable. - Salle d’eau moderne. - Annexes incluses : un parking intérieur sécurisé. De belles prestations : - Revêtements stratifiés dans le séjour / cuisine et la chambre, gamme Quick-Step Impressive ou équivalent, avec isolant acoustique. - Menuiseries extérieures avec double vitrage isolant, volets roulants électriques. - Résidence sécurisée avec visiophone, contrôle d’accès Vigik. - Local vélos et espaces extérieurs aménagés. L’art de vivre à Saint-Malo : - À proximité immédiate des commerces, services et transports. - À quelques minutes des plages et du quartier de Saint-Servan. - Environnement naturel, calme et recherché. - Accès rapide intra-muros, gare TGV et axes majeurs. N’hésitez pas à me contacter pour plus d’informations ou pour un accompagnement sur mesure. Honoraires d’agence à la charge du vendeur. Bien non soumis au DPE. Les informations sur les risques auxquels ce bien est exposé sont disponibles sur le site Géorisques : . La présente annonce immobilière a été rédigée sous la responsabilité éditoriale de M. Pierre Magerand EI (ID 86098), mandataire indépendant en immobilier (sans détention de fonds), agent commercial de la SAS I@D France immatriculé au RSAC de Cusset sous le numéro 938729175, titulaire de la carte de démarchage immobilier pour le compte de la société I@D France SAS. Retrouvez tous nos biens sur notre site internet. .
Iad France - Marine Lamé vous propose : À vendre à Saint-Malo, quartier Saint-Servan, dans un environnement calme à proximité immédiate des commerces, au premier étage d'une petite copropriété, venez découvrir cet appartement lumineux de 49,15 m² ! Il est composé d'un salon / séjour, d'une cuisine aménagée, d'une chambre, et d'une salle de bains à rénover entièrement (devis disponibles sur demande), WC indépendant. L'appartement dispose également d'une cave, possibilité de se stationner facilement à proximité immédiate. Chauffage électrique. Fort potentiel pour cet appartement ! À vos projets ! La presente annonce immobiliere vise 3 lots situés dans une copropriété de 8 lots au total et ne faisant l'objet d'aucune procédure en cours citée à l'article L. 721-1 du code de la construction et de l'habitation. Montant moyen mensuel de charges déclaré par le vendeur : 69.58€ par mois (soit 835 € annuel). Honoraires d'agence à la charge du vendeur. Information d'affichage énergétique sur ce bien : classe ENERGIE F indice 351 et classe CLIMAT C indice 11. Les informations sur les risques auxquels ce bien est exposé, y compris l'obligation légale de débroussaillement, sont disponibles sur le site Géorisques : La présente annonce immobilière a été rédigée sous la responsabilité éditoriale de Mme Marine Lamé mandataire indépendant en immobilier (sans détention de fonds), agent commercial de la SAS I@D France immatriculé au RSAC de SAINT-MALO sous le numéro 951438449, titulaire de la carte de démarchage immobilier pour le compte de la société I@D France SAS.
Iad France - Franck Turek vous propose : Bel appartement T3 Sur Saint Malo / Saint- Servan Situé dans le quartier recherché de Saint- Servan, cet appartement T3 de 60 m² se trouve au premier étage d'une petite copropriété calme et bien entretenue. Très lumineux, il se compose d’une agréable pièce de vie avec cuisine ouverte, de deux chambres confortables, d’une salle d’eau et d'espaces de rangements bien pensés. Deux celliers privatifs en rez-de-chaussée viennent compléter ce bien. Vous apprécierez son emplacement idéal, à proximité immédiate des commerces, transports et de toutes les commodités. Un bien rare sur le secteur, parfait pour une résidence principale ou un pied à terre. Ne manquez pas cette opportunité et contactez-moi pour organiser une visite dès maintenant. La presente annonce immobiliere vise 4 lots situés dans une copropriété de 13 lots au total et ne faisant l'objet d'aucune procédure en cours citée à l'article L. 721-1 du code de la construction et de l'habitation. Montant moyen mensuel de charges déclaré par le vendeur : 0€ par mois (soit 0 € annuel). Honoraires d'agence à la charge du vendeur. Information d'affichage énergétique sur ce bien : classe ENERGIE D indice 200 et classe CLIMAT D indice 43. Les informations sur les risques auxquels ce bien est exposé, y compris l'obligation légale de débroussaillement, sont disponibles sur le site Géorisques : La présente annonce immobilière a été rédigée sous la responsabilité éditoriale de M Franck Turek mandataire indépendant en immobilier (sans détention de fonds), agent commercial de la SAS I@D France immatriculé au RSAC de SAINT-MALO sous le numéro 483951901, titulaire de la carte de démarchage immobilier pour le compte de la société I@D France SAS.
À St Servan, dans la grande rue commerçante, cet appartement offre un environnement côtier exceptionnel alliant le calme de la mer à la vie animée de la ville. À proximité des commodités, commerces, transports en commun, les déplacements sont facilités. De plus, la présence d'un digicode assure sécurité et tranquillité aux résidents. Au second étage d'une petite copropriété, d'une surface habitable de 55 m², cet appartement de 2 pièces se compose d'une belle chambre avec placard, d'une salle d'eau, d'un salon et d'une grande pièce de vie avec sa cuisine aménagée ouverte. Il est doté d'une cave et d'un bâtiment annexe offrant des espaces de rangement supplémentaires. Son emplacement à proximité de la mer en fait un lieu de vie privilégié pour les amoureux de la côte, tandis que ses équipements pratiques tels que le digicode ajoutent confort et sécurité au quotidien. Le bien comprend 3 lots, et il est situé dans une copropriété de 17 lots (les charges courantes annuelles moyennes de copropriété sont de 243 € et le syndicat des copropriétaires ne fait pas l'objet d'une procédure citée à l'article L. 721-1 du code de la construction et de l'habitation). Les informations sur les risques auxquels ce bien est exposé sont disponibles sur le site Géorisques : Prix de vente : 235 000 € Honoraires charge vendeur Contactez votre conseiller SAFTI : Marilyne JAN, Tél. : 07 69 64 21 73, E-mail : marilyne.jan@safti.fr - EI - Agent commercial immatriculé au RSAC de SAINT-MALO sous le numéro 832 492 136.
Iad France - Franck Turek vous propose : Charmant studio lumineux avec balcon et parking – aperçu mer À proximité des transports, ce studio de 26 m² offre un cadre de vie pratique et agréable. Situé dans une résidence calme, il se compose d’une pièce principale lumineuse avec cuisine aménagée, d’une salle de bain moderne équipée d’une douche à l’italienne et de WC, ainsi que d’un placard de rangement optimisant l’espace. Le balcon avec aperçu mer et vue dégagée invite à la détente et la sérénité. Le bien dispose également d’une cave et d’une place de parking privative, des atouts rares sur le secteur. Un bien complet, idéal pour un premier achat ou un investissement locatif rentable. Ne manquez pas cette opportunité et contactez-moi dès maintenant pour organiser une visite ! La presente annonce immobiliere vise 3 lots situés dans une copropriété de 224 lots au total et ne faisant l'objet d'aucune procédure en cours citée à l'article L. 721-1 du code de la construction et de l'habitation. Montant moyen mensuel de charges déclaré par le vendeur : 44.17€ par mois (soit 530 € annuel). Honoraires d'agence à la charge du vendeur. Information d'affichage énergétique sur ce bien : classe ENERGIE E indice 302 et classe CLIMAT B indice 9. Les informations sur les risques auxquels ce bien est exposé, y compris l'obligation légale de débroussaillement, sont disponibles sur le site Géorisques : La présente annonce immobilière a été rédigée sous la responsabilité éditoriale de M Franck Turek mandataire indépendant en immobilier (sans détention de fonds), agent commercial de la SAS I@D France immatriculé au RSAC de SAINT-MALO sous le numéro 483951901, titulaire de la carte de démarchage immobilier pour le compte de la société I@D France SAS.
Iad France - Franck Turek vous propose : Bel appartement traversant T3 – Intra-Muros Situé au cOEur d’Intra-Muros, ce bel appartement traversant de 76 m² séduit par sa luminosité exceptionnelle et sa vue dégagée. Niché au 3ᵉ étage d’un immeuble sans ascenseur, il offre un cadre de vie agréable, calme et lumineux. L’entrée s’ouvre sur un dégagement fonctionnel desservant une cuisine indépendante, une pièce de vie spacieuse et lumineuse, ainsi que deux grandes chambres confortables. L’appartement dispose également d’une salle de bain avec baignoire et de toilettes séparées. Un bien rare sur le secteur, alliant charme de l’ancien, beaux volumes et situation privilégiée en plein centre historique. Ne manquez pas cette opportunité et contactez-moi dès maintenant pour organiser une visite ! La presente annonce immobiliere vise 1 lot situé dans une copropriété de 11 lots au total et ne faisant l'objet d'aucune procédure en cours citée à l'article L. 721-1 du code de la construction et de l'habitation. Montant moyen mensuel de charges déclaré par le vendeur : 51.67€ par mois (soit 620 € annuel). Honoraires d'agence à la charge du vendeur. Information d'affichage énergétique sur ce bien : classe ENERGIE E indice 318 et classe CLIMAT E indice 69. Les informations sur les risques auxquels ce bien est exposé, y compris l'obligation légale de débroussaillement, sont disponibles sur le site Géorisques : La présente annonce immobilière a été rédigée sous la responsabilité éditoriale de M Franck Turek mandataire indépendant en immobilier (sans détention de fonds), agent commercial de la SAS I@D France immatriculé au RSAC de SAINT-MALO sous le numéro 483951901, titulaire de la carte de démarchage immobilier pour le compte de la société I@D France SAS.
Dans une petite rue calme, proche de la gare de Saint-Malo, cet appartement T3 de 62 m² offre un cadre de vie privilégié alliant calme et centre ville. Vous trouverez à proximité immédiate des commerces, restaurants et services essentiels comme la gare, la médiathèque ainsi que l'accès à Intra Muros à 10 min à pied. Ce bel appartement, situé au 2ème étage d'une petite copropriété, se compose d'un grand séjour avec sa cuisine ouverte aménagée, d'une salle d'eau, de toilette séparée, de deux chambres offrant ainsi des espaces fonctionnels et agréables. S'ajoute à cela, une grande cave + local à vélo. Peut être vendu meublé. Idéal pour tout projet, en couple, seul ou une petite famille, ce bien saura vous séduire par sa luminosité et sa disposition ingénieuse. Pas de travaux à prévoir. Le bien comprend 1 lot, et il est situé dans une copropriété de 6 lots (les charges courantes annuelles moyennes de copropriété sont de 1180 € et le syndicat des copropriétaires ne fait pas l'objet d'une procédure citée à l'article L. 721-1 du code de la construction et de l'habitation). Les informations sur les risques auxquels ce bien est exposé sont disponibles sur le site Géorisques : Prix de vente : 241 800 € Honoraires charge vendeur Contactez votre conseiller SAFTI : Marilyne JAN, Tél. : 07 69 64 21 73, E-mail : marilyne.jan@safti.fr - EI - Agent commercial immatriculé au RSAC de SAINT-MALO sous le numéro 832 492 136.
Iad France - Nolwenn Frogé Le Mestre vous propose : Saint-Malo, Quartier Rochebonne, Vue Mer, bel APPARTEMENT de 3 pièces, au dernier étage, dans une Maison de Villégiature classée, avec sa cave privative et son grenier aménageable en chambre en sous pente, l'ensemble sur un jardin collectif. Ne manquez pas cette opportunité rare d'acquérir, un charmant appartement situé dans un immeuble datant de 1870, au calme, offrant un cadre de vie privilégié à Saint-Malo, à 2 pas du sillon et de la mer. D'une surface de 65 m², cet appartement en bon état général présente un potentiel incroyable pour les amateurs de charme et d'authenticité. À l'intérieur, vous découvrirez un espace de vie lumineux comprenant un salon avec une vue mer dégagée, jouxtant une cuisine pouvant être ouverte pour profitez d'une double exposition traversante Nord-Sud, deux confortables chambres, une salle d'eau et un WC séparé. L'appartement bénéficie d'une disposition qui favorise la circulation et l'optimisation de l'espace, le tout sur un parquet massif et des plafonds généreux en volume. qui lu confère encore plus de caractère. Côté commodités, cet appartement est équipé d'un système de chauffage individuel au gaz naturel pour un confort optimal tout au long de l'année. Situé dans un quartier prisé de Saint-Malo, vous bénéficierez d'un cadre de vie agréable à proximité des commerces, des écoles, des transports en commun et des espaces verts. Idéal en résidence secondaire ou à l'année avec quelques rafraichissements. N'attendez plus pour visiter cet appartement unique, un véritable coup de cOEur en perspective ! La presente annonce immobiliere vise 3 lots situés dans une copropriété de 12 lots au total et ne faisant l'objet d'aucune procédure en cours citée à l'article L. 721-1 du code de la construction et de l'habitation. Montant moyen mensuel de charges déclaré par le vendeur : 103€ par mois (soit 1236 € annuel). Honoraires d'agence à la charge de l'acquéreur. Prix honoraires inclus : 439900 euros. Prix hors honoraires : 420000 euros. Honoraires TTC à la charge de l'acquéreur (4,74% du prix du bien hors honoraires) : 19900 euros. Information d'affichage énergétique sur ce bien : classe ENERGIE E indice 321 et classe CLIMAT E indice 68. Les informations sur les risques auxquels ce bien est exposé, y compris l'obligation légale de débroussaillement, sont disponibles sur le site Géorisques : La présente annonce immobilière a été rédigée sous la responsabilité éditoriale de Mme Nolwenn Frogé Le Mestre mandataire indépendant en immobilier (sans détention de fonds), agent commercial de la SAS I@D France immatriculé au RSAC de NIMES sous le numéro 751780636, titulaire de la carte de démarchage immobilier pour le compte de la société I@D France SAS.
Iad France - Charlène Géneril vous propose : T2 en plein cOEur de Saint-Malo - Idéal investissement locatif ou pied-à-terre Ce studio de 23 m² est une véritable perle rare située dans le centre historique de Saint-Malo, à deux pas des remparts et de la plage. Parfait pour un investissement locatif ou comme pied-à-terre pour profiter de la douceur de vivre malouine. L'espace de vie comprend un salon avec une cuisine équipée pour préparer de bons repas. Une salle d’eau avec sanitaire. Une chambre donnant sur la cour commune de la copropriété. Bien que compact, ce t2 est optimisé pour offrir un espace de vie agréable et fonctionnel. Sa localisation exceptionnelle a 400 mètres de la rue ville Pépin permet de profiter des nombreux points d'intérêt, des commerces, des restaurants et des animations culturelles. Un vrai bonheur pour les amoureux de la mer et des balades. Situé dans un immeuble calme, cet appartement convient aussi bien à un étudiant souhaitant être proche des universités qu'à un couple en quête d'un petit cocon en bord de mer. Les possibilités d'aménagement sont infinies pour personnaliser cet espace selon vos besoins et vos envies. Ne manquez pas cette opportunité unique de devenir propriétaire d'un petit bijou niché au cOEur de la cité corsaire. La presente annonce immobiliere vise 1 lot situé dans une copropriété de 4 lots au total et ne faisant l'objet d'aucune procédure en cours citée à l'article L. 721-1 du code de la construction et de l'habitation. Montant moyen mensuel de charges déclaré par le vendeur : 23.33€ par mois (soit 280 € annuel). Honoraires d'agence à la charge du vendeur. Information d'affichage énergétique sur ce bien : classe ENERGIE F indice 387 et classe CLIMAT C indice 12. Les informations sur les risques auxquels ce bien est exposé, y compris l'obligation légale de débroussaillement, sont disponibles sur le site Géorisques : La présente annonce immobilière a été rédigée sous la responsabilité éditoriale de Mme Charlène Géneril mandataire indépendant en immobilier (sans détention de fonds), agent commercial de la SAS I@D France immatriculé au RSAC de SAINT-MALO sous le numéro 978319820, titulaire de la carte de démarchage immobilier pour le compte de la société I@D France SAS.
Iad France - Marie Olivier vous propose : Appartement T2, Saint-Malo, Moins de 300m de la Plage ! Idéalement situé à Saint-Malo, cet appartement de type T2 bénéficie d'un cadre de vie agréable et d'un jardin privatif en plein cOEur de la ville. Cet appartement est un véritable cocon de confort et de modernité. Avec ses 2 pièces et une surface habitable de 37 m², il offre un espace de vie cosy et fonctionnel. Cet appartement rénové en 2019 dispose d'une pièce de vie avec cuisine ouverte aménagée, d'une chambre, d'un bureau, d'une salle d'eau avec WC, d'une cour intérieur et également d'un jardin privé, parfait pour vos moments de détente en plein air. La résidence sur 2 niveaux, offre un environnement calme et serein. L'appartement bénéficie d'une exposition plein sud, offrant une luminosité naturelle tout au long de la journée. Un véritable cocon de confort et modernité. Situé à moins de 300 m de la plage et à proximité des commerces, des transports en commun, cet appartement vous permet de profiter pleinement de tout ce que Saint-Malo a à offrir. Une opportunité à ne pas manquer pour vivre, investir ou en résidence secondaire, dans un cadre de vie paisible et confortable. Contactez moi dès maintenant pour organiser une visite et découvrir ce petit bijou immobilier à Saint-Malo. La presente annonce immobiliere vise 3 lots situés dans une copropriété de 9 lots au total et ne faisant l'objet d'aucune procédure en cours citée à l'article L. 721-1 du code de la construction et de l'habitation. Montant moyen mensuel de charges déclaré par le vendeur : 0€ par mois (soit 0 € annuel). Honoraires d'agence à la charge du vendeur. Information d'affichage énergétique sur ce bien : classe ENERGIE C indice 137 et classe CLIMAT C indice 27. Les informations sur les risques auxquels ce bien est exposé, y compris l'obligation légale de débroussaillement, sont disponibles sur le site Géorisques : La présente annonce immobilière a été rédigée sous la responsabilité éditoriale de Mme Marie Olivier mandataire indépendant en immobilier (sans détention de fonds), agent commercial de la SAS I@D France immatriculé au RSAC de SAINT MALO sous le numéro 909601338, titulaire de la carte de démarchage immobilier pour le compte de la société I@D France SAS.
Iad France - Nolwenn Frogé Le Mestre vous propose : Saint-Malo, Quartier Bellevue (impasse) - Appartement T2 avec locataires sérieux - balcon - Ascenseur - Place de parking extérieure Dans une impasse au calme, idéalement situé au 1er étage d'un immeuble de 4 niveaux dans une résidence sécurisée, ce spacieux appartement vous séduira par sa disposition et sa luminosité. Vous serez charmé par la pièce de vie lumineuse exposée au sud et donnant sur le balcon, sa chambre, sa cuisine séparée et semi-équipée, sa salle d'eau avec douche italienne et meuble vasque, toilette indépendant et son cellier débarras. Pour optimiser le rangement, vous bénéficiez d'une cave privative. Cet appartement bénéficie d'un aménagement fonctionnel avec des espaces optimisés pour votre confort. De plus, la présence de l'ascenseur, de la fibre optique et du digicode renforcent le confort et la sécurité de cet appartement. Pas de travaux à venir, ni de frais. Ce logement est vendu avec les locataires en place (bail en cours jusqu'en février 2028). Idéal investisseur. Vous pourrez également profiter du centre historique de Saint-Malo, des plages et des espaces verts à proximité pour des moments de détente inoubliables. Contactez-nous dès maintenant pour organiser une visite ! La presente annonce immobiliere vise 3 lots situés dans une copropriété de 172 lots au total et ne faisant l'objet d'aucune procédure en cours citée à l'article L. 721-1 du code de la construction et de l'habitation. Montant moyen mensuel de charges déclaré par le vendeur : 175€ par mois (soit 2100 € annuel). Honoraires d'agence à la charge de l'acquéreur. Prix honoraires inclus : 239200 euros. Prix hors honoraires : 230000 euros. Honoraires TTC à la charge de l'acquéreur (4,00% du prix du bien hors honoraires) : 9200 euros. Information d'affichage énergétique sur ce bien : classe ENERGIE D indice 179 et classe CLIMAT D indice 37. Les informations sur les risques auxquels ce bien est exposé, y compris l'obligation légale de débroussaillement, sont disponibles sur le site Géorisques : La présente annonce immobilière a été rédigée sous la responsabilité éditoriale de Mme Nolwenn Frogé Le Mestre mandataire indépendant en immobilier (sans détention de fonds), agent commercial de la SAS I@D France immatriculé au RSAC de NIMES sous le numéro 751780636, titulaire de la carte de démarchage immobilier pour le compte de la société I@D France SAS.
Iad France - Lucas Bourdois vous propose : À vendre – Appartement T2 lumineux avec balcon et grand garage – Quartier Hippodrome, Marville (Saint-Malo) Situé dans le quartier recherché de l’Hippodrome à Marville, à Saint-Malo, venez découvrir ce bel appartement 2 pièces de 47 m², au sein d’une résidence récente et sécurisée de 2017, parfaitement entretenue. - Caractéristiques du bien : - Surface habitable : 47 m², agencement fonctionnel et sans perte d’espace - Balcon privatif pour vos moments de détente, repas en extérieur ou plantes - Très lumineux grâce à de grandes ouvertures et une belle exposition - Cuisine ouverte sur un séjour spacieux - Chambre confortable, avec espace de rangement - Salle d’eau moderne, conforme aux normes actuelles Résidence avec ascenseur, aux normes PMR (accessibilité personnes à mobilité réduite) Un plus très rare : Grand garage fermé de 24 m² en sous-sol sécurisé, accessible par l’ascenseur — idéal pour stationner un véhicule et stocker du matériel ou des vélos. Cadre de vie : Résidence au calme absolu, parfaite pour une vie paisible ou un investissement serein Jardin extérieur commun pour profiter des beaux jours, lire ou se détendre Accès sécurisé avec digicode et interphone Localisation – Quartier Hippodrome, Marville : Quartier résidentiel recherché pour sa tranquillité et sa qualité de vie À proximité immédiate des commerces, services, transports et axes routiers Centre-ville de Saint-Malo et plages accessibles rapidement Cadre verdoyant, idéal pour les promenades et la détente Ce que vous allez aimer : Aucun travaux à prévoir : appartement en excellent état Résidence récente (2017), aux dernières normes Confort, sécurité et praticité réunis Faibles charges Idéal pour : résidence principale, pied-à-terre à Saint-Malo, ou investissement locatif de qualité Contactez-moi dès maintenant pour organiser une visite et découvrir ce bien rare sur le secteur ! La presente annonce immobiliere vise 2 lots situés dans une copropriété de 85 lots au total et ne faisant l'objet d'aucune procédure en cours citée à l'article L. 721-1 du code de la construction et de l'habitation. Montant moyen mensuel de charges déclaré par le vendeur : 70€ par mois (soit 840 € annuel). Honoraires d'agence à la charge de l'acquéreur. Prix honoraires inclus : 205000 euros. Prix hors honoraires : 195000 euros. Honoraires TTC à la charge de l'acquéreur (5,13% du prix du bien hors honoraires) : 10000 euros. Information d'affichage énergétique sur ce bien : classe ENERGIE C indice 117 et classe CLIMAT C indice 22. Les informations sur les risques auxquels ce bien est exposé, y compris l'obligation légale de débroussaillement, sont disponibles sur le site Géorisques : La présente annonce immobilière a été rédigée sous la responsabilité éditoriale de M Lucas Bourdois mandataire indépendant en immobilier (sans détention de fonds), agent commercial de la SAS I@D France immatriculé au RSAC de SAINT MALO sous le numéro 949426860, titulaire de la carte de démarchage immobilier pour le compte de la société I@D France SAS.
Iad France - Marine Géneril vous propose : Magnifique appartement T4 entièrement rénové, situé au cOEur de Saint-Malo à Intra-Muros. Vendu meublé * Ce superbe appartement de 4 pièces, avec 3 chambres, offre un espace de vie confortable et lumineux. Rénové avec des matériaux de qualité, il dispose d'une salle à manger, d'un salon cosy, d'une salle d'eau moderne et d'une cuisine fonctionnelle. Situé au 1er étage d'un immeuble de 2 niveaux, cet appartement bénéficie d'un emplacement privilégié à proximité des commerces, des écoles et des transports en commun. La plage est également accessible en quelques minutes à pied, offrant un cadre de vie idéal pour les amateurs de mer et de balades en bord de plage. Les atouts de cet appartement ne s'arrêtent pas là. Vous pourrez profiter d'un environnement calme et agréable, d'une bonne isolation, ainsi que de l'accès à la fibre optique pour un confort digital optimal. Ne manquez pas cette occasion unique d'acquérir un appartement rénové à Saint-Malo. Contactez-nous dès maintenant pour organiser une visite et laissez-vous séduire par ce bien d'exception ! La presente annonce immobiliere vise 3 lots situés dans une copropriété de 16 lots au total et ne faisant l'objet d'aucune procédure en cours citée à l'article L. 721-1 du code de la construction et de l'habitation. Montant moyen mensuel de charges déclaré par le vendeur : 24.42€ par mois (soit 293 € annuel). Honoraires d'agence à la charge du vendeur. Information d'affichage énergétique sur ce bien : classe ENERGIE D indice 233 et classe CLIMAT B indice 7. Les informations sur les risques auxquels ce bien est exposé, y compris l'obligation légale de débroussaillement, sont disponibles sur le site Géorisques : La présente annonce immobilière a été rédigée sous la responsabilité éditoriale de Mme Marine Géneril mandataire indépendant en immobilier (sans détention de fonds), agent commercial de la SAS I@D France immatriculé au RSAC de RENNES sous le numéro 932120850, titulaire de la carte de démarchage immobilier pour le compte de la société I@D France SAS.
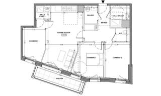
Iad france - marie olivier vous propose : * exclusivite saint malo- le confort d'une maison, la sécurité d'un appartement ! Un véritable coup de coeur pour ce bien atypique- veranda et terrasse ! Situé dans le quartier résidentiel de la briantais : bien rare : appartement de 3 pièces, en rez-de-chaussée surélevé, offrant de véritables atouts d'une maison. D'une surface totale de 96.48 m², cet appartement dispose de 2 chambres, d'une salle d'eau, d'un wc séparé et d'un espace de vie agréable donnant sur une véranda. La cuisine, séparée et équipée, vous permettra de préparer de délicieux repas en toute simplicité. L'atout majeur de cet appartement est sa veranda et sa terasse sans vis à vis, donnant accès au jardin partagé ( + de 1000 m²), exposée sud-ouest, idéale pour profiter des journées ensoleillées et des soirées d'été entre amis ou en famille. Cet appartement se trouve dans une résidence de 3 niveaux avec 6 logements, offrant ainsi calme et tranquillité. La résidence est sécurisée avec un digicode. La présence de deux places de parking et d'une cave en semi enterrée de plus de 20 m², vous permettra de bénéficier d'un espace de rangement supplémentaire. Commodités à proximité : - boulangerie à 250m - écoles à 300m - bus à 110m - supermarché à 300m ne manquez pas l'opportunité de visiter cet appartement à saint-malo et d'en faire votre nouveau chez-vous dès maintenant ! La presente annonce immobiliere vise 3 lots situés dans une copropriété de 18 lots au total et ne faisant l'objet d'aucune procédure en cours citée à l'article l. 721-1 du code de la construction et de l'habitation. Montant moyen mensuel de charges déclaré par le vendeur : 128.7€ par mois (soit 1544.44 € annuel). Honoraires d'agence à la charge du vendeur. Information d'affichage énergétique sur ce bien : classe energie d indice 191 et classe climat d indice 37. Les informations sur les risques auxquels ce bien est exposé, y compris l'obligation légale de débroussaillement, sont disponibles sur le site géorisques : la présente annonce immobilière a été rédigée sous la responsabilité éditoriale de mme marie olivier mandataire indépendant en immobilier (sans détention de fonds), agent commercial de la sas i@d france immatriculé au rsac de saint malo sous le numéro 909601338, titulaire de la carte de démarchage immobilier pour le compte de la société i@d france sas.