1 résultats
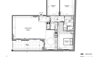
Appartement T4 de 100 m² avec garage double Vendu loué Centre de Vaulx-Milieu Situé au cœur du village de Vaulx-Milieu, à proximité immédiate des commerces, écoles et commodités, cet appartement T4 de 100 m², vendu loué, constitue une opportunité d'investissement locatif dans un environnement calme et recherché. Implanté au sein d'une petite copropriété sécurisée et bien entretenue, le bien offre une spacieuse pièce de vie lumineuse, ouverte sur deux balcons, apportant confort et volume. La cuisine aménagée et fonctionnelle complète harmonieusement l'espace de vie. L'espace nuit se compose de trois chambres confortables, bien agencées, adaptées à une occupation familiale ou locative. Éléments techniques rassurants (issus du diagnostic) L'appartement dispose d'un chauffage individuel électrique, avec programmation pièce par pièce, permettant une maîtrise précise des consommations. La production d'eau chaude est également individuelle électrique, garantissant une gestion autonome et indépendante du logement. Les menuiseries sont en PVC double vitrage à isolation renforcée, équipées de volets roulants, et le logement bénéficie d'une bonne luminosité naturelle ainsi que d'une ventilation mécanique contrôlée (VMC hygroréglable). Les consommations énergétiques annuelles sont estimées entre 1 250 € et 1 730 €, selon les usages (chauffage, eau chaude, électricité), ce qui reste cohérent pour un appartement de cette surface avec équipements individuels. Un garage double sécurisé en sous-sol complète ce bien, apportant un réel confort et une valeur ajoutée patrimoniale. Appartement vendu loué, avec locataire en place et bail en cours jusqu'en décembre 2026. La vente s'effectue occupée, permettant à l'acquéreur de bénéficier immédiatement des revenus locatifs existants, dans le respect du cadre légal en vigueur. Emplacement central, volumes généreux, équipements individuels et copropriété bien tenue : un bien sain, lisible techniquement et sécurisant pour un investissement immobilier serein. Pour toute information complémentaire ou pour organiser une visite, n'hésitez pas à me contacter. Le bien comprend 2 lots, et il est situé dans une copropriété de 11 lots (les charges courantes annuelles moyennes de copropriété sont de 1080 € et le syndicat des copropriétaires ne fait pas l'objet d'une procédure citée à l'article L. 721-1 du code de la construction et de l'habitation). Les informations sur les risques auxquels ce bien est exposé sont disponibles sur le site Géorisques : Prix de vente : 290 000 € Honoraires charge vendeur Contactez votre conseiller SAFTI : Karine PAROLINI, Tél. : 06 74 58 08 11, E-mail : karine.parolini@safti.fr - EI - Agent commercial immatriculé au RSAC de VIENNE sous le numéro 441547262.
Autres annonces à proximité de Vaulx-Milieu (38090) avec vos critères
Situé en hyper-centre de la commune prisée de Villefontaine (38090), ce charmant appartement T4 de 80 m² offre un cadre de vie particulièrement agréable et pratique. Vous pourrez tout faire à pied au quotidien : commerces, écoles, services et transports sont à proximité immédiate. Ville dynamique en pleine expansion, Villefontaine bénéficie d'une localisation stratégique, à seulement quelques minutes de Lyon. L'appartement se trouve à environ 5 minutes de la gare SNCF de La Verpillière et à 3 minutes de l'accès autoroutier A43 sortie n°6, facilitant tous vos déplacements. Construit en 2015, ce lumineux appartement de 4 pièces se compose d'un séjour semi-ouvert sur une cuisine, formant un bel espace de vie d'environ 34 m². Il dispose de trois chambres avec placards, ainsi que d'une agréable terrasse de 12 m², bénéficiant d'une belle exposition et sans vis-à-vis, offrant un espace extérieur privatif particulièrement apprécié. La résidence est équipée d'un ascenseur et de la fibre optique, et l'appartement est vendu avec une cave, idéale pour le rangement. Le logement est doté d'un chauffage individuel au gaz, avec entretien annuel de la chaudière inclus dans les charges de copropriété. Fonctionnel, lumineux et idéalement situé, ce bien réunit tous les critères recherchés pour une vie confortable au cœur de Villefontaine, avec un extérieur agréable, des déplacements facilités et un stationnement aisé et gratuit au pied de la résidence. Le bien comprend 2 lots, et il est situé dans une copropriété de 107 lots (les charges courantes annuelles moyennes de copropriété sont de 1680 € et le syndicat des copropriétaires ne fait pas l'objet d'une procédure citée à l'article L. 721-1 du code de la construction et de l'habitation). Les informations sur les risques auxquels ce bien est exposé sont disponibles sur le site Géorisques : Prix de vente : 229 000 € Honoraires charge vendeur Contactez votre conseiller SAFTI : Laila KOWALZYK, Tél. : 06 49 62 86 64, E-mail : laila.kowalzyk@safti.fr - EI - Agent commercial immatriculé au RSAC de VIENNE sous le numéro 511 349 854.
La Cour des Lys, un cadre d'exception pour une vie d'exception. ! / Acheter neuf, bien placé, et sans surpayer : oui, c'est possible. T2 à T4 avec extérieurs – Résidence neuve dans un parc arboré à La Verpillière – À partir de 159 000 € TTC stationnement inclus (PSLA) Vous cherchez à devenir propriétaire sans faire de concessions ? À La Verpillière, à seulement 25 minutes de Lyon Part-Dieu en train, découvrez La Cour des Lys, une nouvelle résidence nichée dans un parc privé, à deux pas des commerces, des écoles, de la gare SNCF et des grands axes (A43 / RD1006). Seulement 36 logements du T2 au T4, répartis dans 2 bâtiments à l'architecture soignée (R + 4 et R + 5), avec : Parc arboré et cadre de vie résidentiel Appartements lumineux aux plans fonctionnels Balcon, terrasse ou jardin privatif pour chaque logement Stationnement sécurisé en sous-sol inclus Local vélos fermé et accessible Conception RE2020, matériaux durables et finitions qualitatives Accédez à la propriété dans des conditions maîtrisées grâce au PSLA (location-accession) : Exonération de la taxe foncière pendant 15 ans * Paiement du prix entre 6 et 24 mois après la, livraison * Frais de notaire allégés Accompagnement personnalisé de la réservation à l'installation Programme porté par Isère Habitat, promoteur coopératif engagé pour une accession de qualité Nouveau lancement – lots en nombre limité. Profitez dès maintenant du meilleur choix avant les premières réservations. Contactez-nous pour recevoir les plans, vérifier votre éligibilité au PSLA et organiser un rendez-vous personnalisé. * sous réserve d'éligibilité au dispositif psla (location accession, conditions à découvrir en rendez-vous avec l'équipe commerciale Les informations sur les risques auxquels ce bien est exposé sont disponibles sur le site Géorisques : .
EXCLUSIVITÉ ORPI – Rare sur La Verpillière Lumineux T3 Bis Traversant au Cœur du Centre-Ville Situé au 1er étage d'une copropriété prisée pour son calme et son entretien irréprochable, venez découvrir cet appartement T3 Bis alliant confort, luminosité et praticité. Les atouts majeurs : Luminosité Optimale : Un appartement traversant bénéficiant d'une excellente exposition, garantissant une lumière naturelle tout au long de la journée. Espace de Vie : Une pièce de vie chaleureuse complétée par un espace "Bis" idéal pour un bureau (télétravail), un coin lecture, une troisième chambre ou une extension du salon. Cuisine & Bain : Une cuisine entièrement équipée prête à l'emploi et une salle de bain récemment refaite à neuf avec des matériaux modernes. Confort : Chauffage collectif pour une gestion simplifiée et une chaleur homogène. Une localisation stratégique : Vivez le "tout à pied" ! L'appartement se situe en plein centre de La Verpillière, à proximité immédiate des commerces, des écoles et des axes de transport (gare (300 mètres à pied) et accès autoroutiers rapides), tout en restant niché dans un environnement calme et préservé. En résumé : Type : T3 Bis Étage : 1er étage État : Très bien entretenu, aucun gros œuvre à prévoir. Les plus : Emplacement central, salle de bain neuve, luminosité. idéal pour un jeune couple ou des retraités cherchant la proximité des services. L'avis de votre expert ORPI : "Un bien coup de cœur, rare sur le secteur par son état d'entretien et son emplacement central. La salle de bain neuve et la configuration traversante sont de vrais arguments pour un emménagement serein." Référence agence : 140.

Recevez en temps réel les dernières annonces correspondant à votre recherche
Sur la commune de L'Isle d'Abeau, sur les hauteurs de Fondbonnière, un bien d'exception niché au cœur d'une résidence de standing, au calme absolu et sécurisé (Grand parc paysagé, piscine et terrain de pétanque). Dans un cadre verdoyant et soigneusement entretenu, cette résidence offre un environnement rare, alliant sérénité, confort et élégance. Vous serez séduit par ses prestations de qualité, ses volumes généreux et son emplacement privilégié, idéal pour profiter pleinement de la quiétude tout en restant proche de toutes les commodités. Découvrez ce superbe appartement T4 de 80 m² en rez-de-chaussée avec une grande terrasse de 19 m² sans vis à vis. L'appartement offre un espace de vie d'environ 33 m² avec salon séjour et une cuisine ouverte entièrement équipée. Il dispose de 3 belles chambres avec rangements intégrés dont une grande chambre de 15 m² avec double dressing et un accès direct à la terrasse, une salle de bains fonctionnelle et un toilette indépendant. L'appartement est parfaitement agencé, il dispose de nombreux rangements. Aucun travaux à prévoir ! 2 places de stationnement viennent compléter le bien : une place privative extérieure + une place privative en sous-sol. Les charges comprennent : l'eau froide, l'entretien des espaces verts, piscine et terrain de pétanque. Le bien comprend 2 lots, et il est situé dans une copropriété de 218 lots (les charges courantes annuelles moyennes de copropriété sont de 1800 € et le syndicat des copropriétaires ne fait pas l'objet d'une procédure citée à l'article L. 721-1 du code de la construction et de l'habitation). Les informations sur les risques auxquels ce bien est exposé sont disponibles sur le site Géorisques : Prix de vente : 239 000 € Honoraires charge vendeur Contactez votre conseiller SAFTI : Elodie VALAIRE, Tél. : 07 84 65 56 77, E-mail : elodie.valaire@safti.fr - EI - Agent commercial immatriculé au RSAC de VIENNE sous le numéro 888 086 345.
Appartement 4 pièces – 100 m² avec terrasse et garage en option – La Verpillière La Verpillière (38290) DPE : D 195 000 € (garage possible en sus) 100 m² habitables | 3 grandes chambres | Séjour 22 m² Situé au 2ᵉ étage avec ascenseur dans une copropriété bien entretenue, cet appartement spacieux et lumineux de 100 m² vous séduira par ses volumes généreux et sa fonctionnalité. Les + du bien : Séjour de 22 m² avec accès à la terrasse Cuisine indépendante de 13,85 m², attenante au salon Buanderie pratique de 3,14 m² Trois chambres confortables, toutes de plus de 12 m² Salle de bains + WC séparés Terrasse agréable pour vos moments de détente Chauffage collectif au gaz avec consommation indépendante En complément, possibilité d'acquérir un garage sécurisé de 18,5 m² pour 15 000 € : idéal pour stationner ou stocker. Proche du centre-ville, des écoles, commerces et accès A43, cet appartement est idéal pour une famille, un investisseur ou un acquéreur en recherche d'espace au cœur de La Verpillière. DPE : D GES : D Pour plus d'informations ou organiser une visite : Contactez Orpi Françoise Cheval Immobilier – La Verpillière Référence agence : 118.
La verpilliere - investisseur - centre ville - dans résidence 20 ans environ - appart t4 spacieux est / ouest - 87 m² hab env comprenant hall avec rgt - cuisine meublée - séjour avec baie - 3 chambres avec rgt - sd'o - wc - loggia est 12 m² - be - gaz ville - garage - etat locatif en cours - rentabilité intéressante - 210 000 euros - réf. 1323 - les honoraires sont à la charge du vendeur.
Devenez proprietaire de votre 2 pieces a 806,25€ / mois * a la verpilliere. Nouveaux appartements 2,3 et 4 pieces a la vente ! Conditions exceptionnelles grâce au nouveau prêt à taux 0% * 2026 pour acheter votre appartement ou votre maison. Un coup de cœur vous attend : visitez notre maison modèle sur rendez-vous ! Découvrez notre résidence « l'archipel » à la verpillière, une ville dynamique à la situation privilégiée à proximité de lyon et de l'agglomération grenobloise. Profitez de son emplacement unique « avenue de la libération » et retrouvez tous les essentiels à deux pas de chez vous, pour un confort de vie inégalé. Proche du centre-ville, de l'accès rapide à l'a43, et à l'aéroport de lyon-saint-exupéry, c'est le quartier idéal pour habiter. Depuis 50 ans, european homes réinvente la qualité de vie et propose à la verpillière, un nouvel art de vivre dans une résidence aux multiples facettes. Composée d'appartements, de maisons ou des villas-jardins, aux prestations de qualités avec un espace extérieur pour tous. Vivre dans un appartement comme dans une maison c'est possible, grâce au concept unique de la villa-jardin proposé en exclusivité par european homes, les villas-jardins vous offrent le privilège d'une entrée individuelle depuis la rue et d'un jardin engazonné, accessible depuis le séjour. Découvrez également nos maisons d'exception de 4 et 5 pièces prêtes à habiter. Elles sont prolongées d'un jardin privatif engazonné et clôturé. Chaque logement bénéficie d'une place de stationnement privative. Profitez en plus des frais de notaire reduits dans le neuf et des meilleures performances energetiques. * voir conditions sur e-h. Fr. (ref. 964 / 12-400373) les informations sur les risques auxquels ce bien est exposé sont disponibles sur le site géorisques : .
Situé au centre du village de Bonnefamille, découvrez cet appartement neuf de type T4 situé au 1er étage d'une petite résidence avec ascenseur. Idéal pour une famille en quête de confort et de tranquillité, cet appartement vous offre une surface généreuse de 90.12 m². La spacieuse pièce de vie de 44,65 m² est idéale pour des moments de convivialité et son balcon de 12,48 m² est exposé plein sud. L'espace nuit est composé de trois chambres confortables, ainsi qu'une salle d'eau moderne. Garage fermé et place de parking en sous-sol inclus. Local vélo / poussette à disposition. Belles prestations pour cet appartement neuf. Laforêt Immobilier, votre spécialiste du Nord Isère depuis 20 ans, avec des agences à Bourgoin-Jallieu et à L'Isle-d'Abeau, pour vous accompagner dans tous vos projets. Copropriété de 13 lots - dont 11 lots habitation. ().
Livraison printemps 2026- derniers appartements t4 ! Prix stationnement inclus ! À ce prix, il n 'y aura pas d'autres ! - exonération de la taxe foncière pendant 15 ans ! vous rêvez de calme, d'un cadre verdoyant et d'un accès rapide aux commodités ? Ici, vous profitez d'une vue magnifique sur les montagnes et de tous les avantages d'une vie proche de la ville, sans renoncer à la tranquillité. Confort et qualité de vie au quotidien pensée pour s'intégrer parfaitement à son environnement, la résidence « la part des anges » se compose de petits bâtiments contemporains, proches des commerces et à moins de 10 minutes à pied du centre de domarin. Une adresse idéale pour les familles et jeunes acheteurs, où chacun peut se sentir chez soi. Une résidence élégante et accueillante les appartements sont pensés pour être lumineux et fonctionnels. Chaque logement bénéficie de larges ouvertures, laissant entrer la lumière du matin au soir, et s'ouvre sur une belle terrasse. Profitez d'un espace extérieur accueillant, idéal pour des moments en famille, tourné vers la nature environnante. La résidence assure des performances énergétiques optimales pour un confort maximal toute l'année. Isolation renforcée, économies d'énergie et températures agréables en toute saison : tout est pensé pour votre bien-être. Ne laissez pas passer cette opportunité ! Contactez-nous dès maintenant pour en savoir plus sur cette adresse d'exception, où calme et modernité se rencontrent pour un quotidien facile et agréable. - testez votre logement pendant 6 à 24 moins * ! Ne vous engagez pas sans être sûr ! C'est possible avec location-accession ! Achetez toute en douceur votre résidence grâce à la location-accession * ! Et bénéficiez d'une exonération de la taxe foncière pendant 15 ans * ! Vous avez une occasion unique de tester votre logement avant de l'acheter grâce au dispositif psla ! Vos avantages immo-responsables * : - exonération de la taxe foncière pendant 15 ans - éligible au prêt à taux 0% (sous réserve d'éligibilité au ptz) - paiement du prix après la livraison, entre 6 et 24 mois selon votre souhait - frais de notaire réduits - garantie 3r (revente, rachat, relogement) ! (*) sous conditions de plafonds de ressource et sous réserve d'éligibilité à la location-accession - plus d'infos : les informations sur les risques auxquels ce bien est exposé sont disponibles sur le site géorisques : .
Bourgoin-jallieu, dans une résidence de standing, équipé d'une grande terrasse et d'un stationnement. Votre agence laforêt immobilier vous propose ce bel appartement de type 4 aux prestations de qualité et aux dernières normes énergétiques. Composé d'une entrée avec placard de rangement, d'une vaste pièce de vie lumineuse avec cuisine aménagée et d'une grande terrasse bien exposée. Le coin nuit se compose de trois chambres avec placard, d'une salle de bain avec fenêtre et d'un wc indépendant. Vous apprécierez les prestations de qualité, la domotique, la cuisine déjà meublée, les placards aménagés, cela au sein d'une résidence intimiste idéalement située à bourgoin-jallieu prix affiché special portes ouvertes valable, incluant une tva 5,5% réservé uniquement aux primo accédants sous conditions de ressource. Copropriété de 40 lots (). Charges annuelles : 1320.00 euros.
Bourgoin jallieu - 38300 - dans une copropriété neuve de 2021 à taille humaine (14 appartements) appartement de type 4 avec garage en sous sol. Séjour - cuisine ouverte équipée (37 m²) avec accès à la terrasse d'environ 20 m², 3 chambres, salle d'eau, wc. Le bien comprend 2 lots, et il est situé dans une copropriété de 34 lots (les charges courantes annuelles moyennes de copropriété sont de 1300 € et le syndicat des copropriétaires ne fait pas l'objet d'une procédure citée à l'article l. 721-1 du code de la construction et de l'habitation). Les informations sur les risques auxquels ce bien est exposé sont disponibles sur le site géorisques : prix de vente : 315 000 € honoraires charge vendeur contactez votre conseiller safti : christian goy, tél. : 06 84 13 96 60, e-mail : christian.goy@safti.fr - ei - agent commercial immatriculé au rsac de vienne sous le numéro 950 349 779.
Au dernier étage d'une copropriété fermée et sécurisée, à 10 minutes du centre ville, gare et accès autoroutier, venez découvrir ce beau T4 traversant de 104 m² avec vue sur parc et coucher de soleil. Il comprend une vaste entrée, une cuisine équipée ouverte sur grand séjour lumineux avec accès au balcon, 3 chambres, SDE et WC séparés, cellier. Pour un confort total, l'appartemement vous est proposé avec une cave et possibilité de garage dans la résidence. À découvrir rapidement. ICIF - Immobilier Centre Investissement - 40 bis rue de la Libération 38300 Bourgoin-Jallieu 04 37 03 06 71 - agence@icif-immobilier.com.
À découvrir à Bourgoin-Jallieu (38300) au 2e étage d'un immeuble avec ascenseur : grand appartement de 82,6 m² en vente avec terrasse au calme. Son intérieur compte trois chambres de 10 m² à 12 m², une salle de bains et des toilettes. En annexe, il y a une terrasse (12 m²). Plusieurs prestations sont proposées, comme des fenêtres en pvc double vitrage et des volets roulants. À proximité : gares, établissements scolaires, restaurants, bassin de natation, boulangeries, commerces, supermarché, supérette et boucheries-charcuteries. Accès autoroute A43 à 3 km. Quartier calme. Le prix de vente de cet appartement de 4 pièces est de 294 980 . Les frais d'agence sont à la charge du vendeur. Il fait partie d'une copropriété formée de 43 lots et avec pour ce lot 150 de charges annuelles. Votre agence immobilière Guy Hoquet BOURGOIN JALLIEU vous invite à découvrir toutes les originalités de cet appartement à vendre en prenant RDV avec l'un de nos conseillers immobilier. Copropriété de 43 lots (Pas de procédure en cours). Charges annuelles : 150.00 euros.
Découvrez cet appartement neuf de 82,35 m², situé dans un projet immobilier moderne à Bourgoin-Jallieu. Ce bien lumineux offre trois chambres spacieuses et un séjour convivial. Profitez de moments de détente sur le balcon privatif. Idéalement situé, cet appartement est une opportunité à ne pas manquer. Prix de vente : 328 720 EUR. Contactez-nous pour plus d'informations ou pour organiser une visite dès aujourd'hui.
Bourgoin-jallieu, dans une résidence de standing, équipé d'une grande terrasse et d'un stationnement. Votre agence laforêt immobilier vous propose ce bel appartement de type 4 aux prestations de qualité et aux dernières normes énergétiques. Composé d'une entrée avec placard de rangement, d'une vaste pièce de vie lumineuse avec cuisine aménagée et d'une grande terrasse bien exposée. Le coin nuit se compose de trois chambres avec placard, d'une salle de bain avec fenêtre et d'un wc indépendant. Vous apprécierez les prestations de qualité, la domotique, la cuisine déjà meublée, les placards aménagés, cela au sein d'une résidence intimiste idéalement située à bourgoin-jallieu prix affiché special portes ouvertes valable jusqu'au 31 octobre 2024 copropriété de 40 lots (). Charges annuelles : 1320.00 euros.
Découvrez cet appartement neuf de 83 m², idéalement situé à Bourgoin-Jallieu. Faisant partie d'un projet immobilier moderne, ce bien propose 3 chambres confortables, un séjour lumineux et un balcon parfait pour profiter des beaux jours. Cet appartement offre tout le confort moderne. Contactez-nous pour plus d'informations ou pour organiser une visite dès aujourd'hui.
BOURGOIN-JALLIEU- au sein d'une résidence recherchée et sécurisée, avec grand parking privatif. EVIDENCE IMMO vous propose cet appartement très lumineux, de type 3 de 75 m² hab., situé au 4ème étage avec ascenseur. Il se compose d'un hall d'entrée desservant un vaste salon-séjour en L ouvrant sur un grand balcon, une cuisine équipée indépendante, et un espace nuit comprenant 2 belles chambres (dont une avec placard), une salle d'eau et un wc séparé. cet appartement dispose également d'une cave. Les atouts de ce bien : son environnement offrant un cadre de vie au calme tout en restant à proximité de toutes les commodités, et son potentiel d'agencement pour s'adapter à tous les besoins.
Appartement 4 pièces de 83 m² situé à bourgoin-jallieu, dans une résidence recente et securisee. Il se compose d'une pièce de vie lumineuse ouvrant sur une terrasse exposée plein sud, d'une cuisine aménagée et équipée, de trois chambres, d'une salle de bain et de wc séparés. Deux extérieurs complètent le bien : une terrasse principale et un balcon. Un garage fermé et sécurisé est proposé en option. Appartement sans travaux, fonctionnel et confortable, idéal pour une famille ou un couple souhaitant s'installer rapidement. Proximité immédiate des commerces, écoles, services et axes de circulation. Bien rare sur le secteur. Contactez-moi pour organiser une visite. Visite virtuelle disponible sur demande le bien comprend 1 lot, et il est situé dans une copropriété de 76 lots (les charges courantes annuelles moyennes de copropriété sont de 1570 € et le syndicat des copropriétaires ne fait pas l'objet d'une procédure citée à l'article l. 721-1 du code de la construction et de l'habitation). Les informations sur les risques auxquels ce bien est exposé sont disponibles sur le site géorisques : prix de vente : 234 000 € honoraires charge vendeur contactez votre conseiller safti : hervé barcel, tél. : 06 63 70 55 23, e-mail : herve.barcel@safti.fr - ei - agent commercial immatriculé au rsac de vienne sous le numéro 939716411.
Situé dans la charmante ville de Bourgoin-Jallieu (38300), cet appartement offre un cadre de vie agréable proche de toutes les commodités. Sécurisé et bien desservi par les transports en commun tels que les bus, il est également à proximité des écoles, du lycée, du collège et d'une crèche. Son orientation Sud et son environnement urbain en font un lieu dynamique et pratique pour les familles. À l'extérieur, cet appartement dispose d'un balcon offrant un espace extérieur agréable ainsi qu'une cave individuelle pour un espace de rangement supplémentaire. Les menuiseries en double vitrage, les portes-fenêtres et les baies vitrées récentes assurent une luminosité optimale tout en garantissant une isolation phonique et thermique de qualité. À l'intérieur, ce bien de 61,42 m² se compose de 4 pièces dont 2 chambres. Récemment rénové, il bénéficie d'une cuisine équipée de 2023, d'une porte blindée, de menuiseries PVC et de volets roulants électriques. L'appartement propose un chauffage collectif, un accès sécurisé par digicode, un local à vélo, et un stationnement aisé. Les sols sont en carrelage et en stratifié, les placards aménagés ajoutent à la fonctionnalité et au confort de cet appartement. Le bien comprend 2 lots, et il est situé dans une copropriété de 712 lots (les charges courantes annuelles moyennes de copropriété sont de 1200 € et le syndicat des copropriétaires ne fait pas l'objet d'une procédure citée à l'article L. 721-1 du code de la construction et de l'habitation). Les informations sur les risques auxquels ce bien est exposé sont disponibles sur le site Géorisques : Prix de vente : 158 000 € Honoraires charge vendeur Contactez votre conseiller SAFTI : Philippe BONGIBAULT, Tél. : 06 47 85 69 51, E-mail : philippe.bongibault@safti.fr - EI - Agent commercial immatriculé au RSAC de VIENNE sous le numéro 349 147 876.
Découvrez ce magnifique appartement neuf de 82 m² situé dans un projet résidentiel moderne à Bourgoin-Jallieu. Cet espace lumineux offre trois chambres confortables et un salon accueillant, parfaits pour un style de vie urbain. Profitez de votre balcon privé pour des moments de détente. Contactez-nous pour plus d'informations !
En hyper centre de Bourgoin-Jallieu, profitez de la proximité immédiate de tous les commerces et de la gare, L'appartement de 86 m² habitables (80,95 m² carrez) offre une belle pièce de vie d'une surface de 36 m² avec sa cuisine US totalement équipée. Un espace très confortable grâce à son chauffage au sol en saison hivernale, puis à la belle saison la pièce se prolonge de 51 m² grâce à la terrasse protégée du vis à vis. L'espace nuit se compose de 3 chambres : 2 chambres au RDC avec salle d'eau, puis en duplex une chambre avec sa salle d'eau privative. L'appartement profite d'une buanderie et un WC indépendant. Le mode de chauffage est électrique, au sol sur les espaces de jour et radiants dans les chambres et la production d'eau chaude par un cumulus. La classification énergétique D lui confère un confort énergétique aux consommations contrôlées. L'appartement profite d'une cave et de la possibilité d'acquérir un stationnement en sous-sol sécurisé. Une opportunité en exclusivité dans votre agence Laforêt au 04 74 43 49 30 Laforêt Immobilier, votre spécialiste du Nord Isère depuis 20 ans, avec des agences à Bourgoin-Jallieu et à L'Isle-d'Abeau, pour vous accompagner dans tous vos projets.
À vendre, Grand appartement 4 pièces 120 m² avec terrasse Bourgoin-Jallieu centre ville, à 2 pas de la gare. En exclusivité dans votre agence Laforêt Bourgoin-Jallieu, découvrez ce spacieux appartement de 4 pièces idéalement situé en plein centre-ville, à seulement 2 minutes à pied de la gare et à proximité immédiate de tous les commerces. Agencement intérieur : Entrée avec rangements Grande pièce de vie lumineuse Cuisine équipée indépendante Une grande suite parentale avec salle d'eau et coin bureau Deux chambres confortables Salle de bains avec baignoire balnéo WC séparés Les plus de cet appartement 2 terrasses bien exposées Chauffage individuel au gaz de ville Volets roulants électriques centralisés Espace cellier buanderie Résidence sécurisée et recherchée, avec ascenseur Un emplacement idéal : Centre-ville de Bourgoin-Jallieu À 2 minutes de la gare SNCF (accès direct Lyon, Grenoble) Commerces, écoles et services à pied Accès rapide aux autoroutes A43 et A48 À visiter sans tarder ! Contactez votre agence pour plus d'informations ou pour organiser une visite. Laforêt Immobilier, votre spécialiste du Nord Isère depuis 20 ans, avec des agences à Bourgoin-Jallieu et à L'Isle-d'Abeau, pour vous accompagner dans tous vos projets. Copropriété de 119 lots - dont 48 lots habitation. (Pas de procédure en cours). Charges annuelles : 2360.00 euros.
En exclusivité dans votre agence Laforêt Bourgoin-Jallieu, Venez découvrir cet agréable appartement de type 4 d'une superficie d'environ 87,8 m², situé dans une résidence calme, sécurisée et dotée d'un ascenseur, à proximité immédiate des commodités. Vous serez séduit par son grand salon double baigné de lumière offrant une vue dégagée, ainsi que par sa cuisine dînatoire donnant accès à une Loggia. La partie nuit se compose de trois chambres, avec la possibilité d'aménager une quatrième chambre, ainsi qu'une salle d'eau et un WC indépendant. Pour votre confort, l'appartement dispose également d'une place de parking privative et d'une cave. Le chauffage et l'eau sont inclus dans les charges, un véritable atout pour maîtriser votre budget.
Du 01 / 03 / 2026 au 31 / 03 / 2026 : Devenez propriétaire d’un appartement. Empruntez jusqu’à 50 000€ sans payer d’intérêts en complément de votre prêt principal (Offre valable sur certains lots à l'offre des résidences MAJESTEL L'étang et MAJESTEL L'ILET, voir mentions légales et conditions sur ca-immobilier. fr). voir conditions sur ca-immobilier. fr. Les lots du programme Majestel font partie des 2 résidences suivantes : MAJESTEL L'étang, MAJESTEL L'ILET. Les lots de la résidence MAJESTEL L'étang seront livrés à partir du 2026-12-31, les lots de la résidence MAJESTEL L'ILET seront livrés à partir du 2027-03-31. Jusqu’au 31 mars 2026 : Devenez propriétaire d’un appartement. Empruntez jusqu’à 50 000€ sans payer d’intérêts en complément de votre prêt principal (10) Travaux en cours Au sein d'un nouveau quartier en mutation, accolée au parc des Lilattes, votre nouvelle résidence propose des appartements du studio au 5 pièces. De belles pièces à vivre intérieures, de beaux volumes extérieurs comme pièce de vie supplémentaire, des vues dégagées et des appartements en attique avec vue sur le parc. Ce programme immobilier neuf, à Bourgoin-Jallieu, répond aux normes en vigueur et offre des prestations soignées et modernes à ses habitants : carrelage et parquet stratifié, cuisine et salle de bains aménagés * , volets roulants motorisé, chauffage raccordé au réseau urbain, vidéophone et serrure sécurité 5 points, stationnement en sous-sol pour chaque logement et vélos en autopartage à l'entrée du site. Articulé autour de venelles arborées et de mails piétonniers créant des espaces de pause, des lieux de rencontre entre habitants et des placettes agrémentant et rythmant le parcours jusqu'au parc. Des logements éligibles au dispositif LLI * . Le dispositif Logement Locatif Intermédiaire permet aux particuliers, par l’intermédiaire de sociétés civiles immobilières (SCI), de bénéficier d’un investissement immobilier avantageux, ainsi qu’exposé ci-après. En effet, les avantages sont multiples : - TVA réduite à 10% * permettant ainsi de bénéficier d’un prix d'acquisition inférieur au prix de marché, dans les conditions et limites fixées par l’article 279-0 bis A du code général des impôts - Crédit d’impôt sur les sociétés chaque année, égale au montant de la taxe foncière, pendant une période allant jusqu’à 20 ans, dans les conditions et limites fixées par l’article 220 Z septies du code général des impôts; Loyers encadrés permettant de garantir des revenus stables pour l’investisseur Investissement locatif dans des secteurs à forte demande locative (villes classées en A, Abis et B1) - Accompagnement par la mise en place d’un contrat de gestion locative, via Square habitat ou CASIM * , dont les redevances seront déductibles du montant des loyers perçus ? ; - Gestion et transmission du patrimoine facilitée ? via la création d’une société civile immobilière (SCI) - Participation à une réelle démarche citoyenne par le biais du dispositif Logement Locatif Intermédiaire permettant d’augmenter le nombre de biens à la location dans des secteurs à forte demande, tout en maintenant un niveau de loyer accessible. ? Prenez contact avec nos conseillers afin de vous aider à prendre la meilleure décision ! Un programme immobilier neuf aux portes de Lyon Bourgoin-Jallieu est idéalement située entre Lyon (à 40 min * en voiture), Grenoble et les Savoie et à proximité des plus gros bassins d'emploi de la région qui comptent de nombreux sièges sociaux (VALEO, LAFARGE, EDF, HEWLETT PACKARD. ). Très bien desservie par le TER, en gare de Bourgoin-Jallieu, qui mène à Lyon Part Dieu en 25 min * et à Paris Gare de Lyon en 2h30 * . Les autoroutes A43 et A48 facilitent les déplacements vers Lyon et Grenoble et mènent à leurs aéroports respectifs en 30 min * en voiture. Au cœur d'un environnement verdoyant et vallonné, offrant de nombreuses possibilités de randonnées et d'activités de plein air, de nombreux services (culture, sport, crèches et garderies), d'un réseau de transport public efficace et d'un grand centre hospitalier complet le « Médipôle Nord Isère ». Enfin, les premiers sommets enneigés sont à 1h30 * en voiture (Grand Bornand) et la plage à 3h * en voiture (Marseille). Promoteur national et tout particulièrement présent en Auvergne-Rhône-Alpes depuis plus de 25 ans, Crédit Agricole Immobilier vous propose, en tant qu'expert de la promotion immobilière, la résidence située à Bourgoin-Jallieu. N'hésitez pas à nous contacter pour votre projet de résidence principale ou d'investissement locatif en VEFA dans l'Isère. * source Google maps * Les prestations des appartements (salles de bains et cuisines aménagées, balcons, terrasses, jardins. ) peuvent varier selon la typologie des appartements. Les cuisines sont susceptibles d’être différentes (agencement, superficie, nombre de placards), notamment selon leur typologie. Toutes les cuisines bénéficient d’une hotte, de plaques vitrocéramiques et de placards. Les façades des placards de la cuisine bénéficient du style de finition choisi par le client lors de la signature de l’acte authentique de vente, selon l’avancement de travaux. Seul le descriptif technique sommaire joint au contrat de réservation est contractuel. * Crédit Agricole Service Immobilier * Voir renseignements et conditions sur notre site . (10) Offre de prêt immobilier aux conditions en vigueur au 24 / 07 / 25, sous réserve d’étude et d’acceptation du dossier par le prêteur, auprès de Crédit Lyonnais (« LCL ») - SA au capital de 2 037 713 591 € - SIREN 954 509 741 - RCS Lyon - Société de courtage d’assurance immatriculée au registre des intermédiaires en assurance sous le numéro ORIAS : 07001878 - Siège social : 18 rue de la République, 69002 Lyon - Pour tout courrier : LCL, 20, avenue de Paris, 94811 Villejuif Cedex. Offre de prêt accessoire à un prêt principal souscrit auprès de LCL, soumise à conditions, réservée aux particuliers primo-accédants ou secundo-accédants, accessible sans conditions de revenus, valable pour la signature d’un contrat de réservation d’un bien destiné à une résidence principale / secondaire ou d’un investissement locatif réalisée du 1 mars 2026 au 31 mars 2026 et sous réserve de signature de l’acte authentique de vente dans les délais prévus au contrat de réservation. Par cette offre, Crédit Agricole Immobilier Promotion prend à sa charge l’entièreté du coût des intérêts du prêt accessoire, sur la base du taux en vigueur à la date de la demande de financement, applicables aux prêts à taux fixe de même durée distribués, par LCL, conformément aux termes du contrat de réservation, ainsi que les frais de dossier à hauteur de 850 euros, et pour un prêt d’une durée maximum de 180 mois. Le contrat de prêt devra être garanti par une hypothèque ou par toute autre sûreté comparable ou par un droit lié à un bien immobilier à usage d’habitation. L’emprunteur dispose d’un délai de réflexion de 10 jours suivant la réception de l’offre de prêt avant de l’accepter. La vente est subordonnée à l’obtention du prêt et si celui-ci n’est pas obtenu, le vendeur doit lui rembourser les sommes versées. Conformément à la loi, aucun versement de quelque nature que ce soit ne peut être exigé d’un particulier avant l’obtention d’un ou plusieurs prêts d’argent. Offre valable sur les résidences Majestel Ilet et Majestel Etang à Bourgoin-Jallieu (38), pour un financement de 10 000€ pour un studio (T1), 20 000€ pour un appartement 2 pièces (T2), 30 000€ pour un appartement 3 pièces (T3), 40 000€ pour un appartement 4 pièces (T4) et 50 000 euros pour un appartement 5 pièces (T5). Exemple représentatif au 24 / 07 / 2025 : pour un prêt immobilier d’un montant de 50 000€ décaissé en une seule fois, d’une durée totale de 180 mois soit 15 années, le remboursement s’effectue en 179 mensualités de 288,61 € assurance incluse et une dernière mensualité de 288,59€. Taux débiteur fixe de 0,00%. Taux Annuel Effectif Global (TAEG) fixe : 0,76%, assurance emprunteur obligatoire comprise, frais de dossier offerts. Montant total dû de 925,38 € dont 0 € d’intérêts pris en charge par Crédit Agricole Immobilier Promotion, 0 € de frais de dossier, 925€ de frais de garantie (Crédit Logement). Taux Annuel Effectif de l’Assurance (TAEA) de 0,5162%. Coût total de l’assurance sur la durée totale du prêt de 1950 €, coût total de l’assurance sur une durée de 8 ans de 1040 €, coût mensuel de l’assurance de 10,83 € et s’ajoute à la mensualité de remboursement du crédit. Le coût de l’assurance est établi pour une personne âgée de moins de 36 ans et assurée à 100 % à la date de l’offre hors surprime éventuelle pour raisons médicales. La convention AERAS facilite l’accès à l’assurance et au crédit pour les personnes présentant un risque aggravé de santé (plus d’information : ). L’assurance Décès, Perte totale et irréversible d’Autonomie et Arrêt de "travail est assurée par Caci et Caci Non vie et distribuée par Le Crédit Lyonnais. Conditions et évènements garantis indiqués au contrat. Offre non cumulable avec d’autres offres du Crédit Agricole Immobilier, en cours ou à venir. CREDIT AGRICOLE IMMOBILIER PROMOTION, société par actions simplifiée à associé unique au capital de 57 687 000 euros, dont le siège social est situé 12 Place des Etats-Unis, 92545 Montrouge Cedex, immatriculée au RCS Nanterre sous le numéro 397 942 004. Titulaire de la carte professionnelle de transaction sur immeubles et fonds de commerce, délivrée par la CCI de Paris Île-de-France sous le n° CPI 9201 2025 000 000 165. Bénéficiant de garanties financières et responsabilité civile et professionnelle délivrées par CAMCA dont le siège est à Paris (75008), 53 rue La Boétie. Immatriculée à l’ORIAS sous le numéro 25009548 en qualité de Mandataire non-exclusif en opérations de banque et en services de paiement (MOBSP). Les informations sur les risques auxquels ce bien est exposé sont disponibles sur le site Géorisques : .