Logo LSI sombre

Appartement 4 Pièces 95 m² à vendre à Arès (33740)
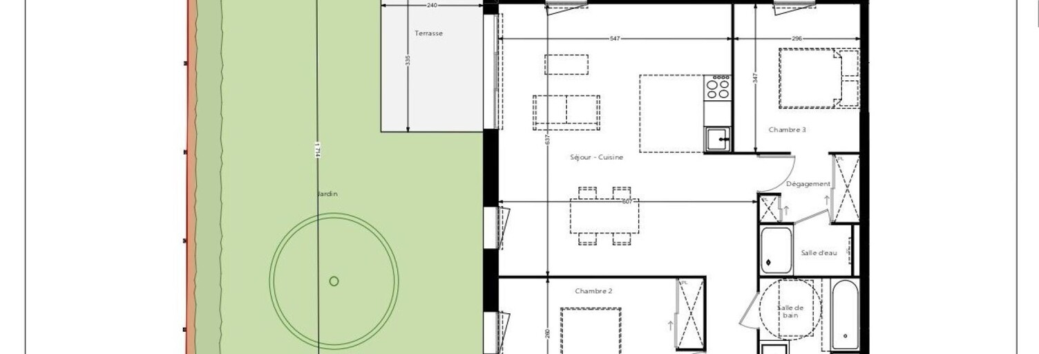
Photo N° 2
Photo N° 3
3

Vente appartement 4 pièces 95 m² Arès (33740)

498 000 €

T4 NEUF - Livraison prévue fin décembre 2027

Emplacement exceptionnel en plein centre ville d'arès (33740) et à deux pas du bassin ! Les commerces, restaurants et services essentiels sont accessibles à pied, offrant un cadre de vie idéal. Votre futur chez-vous vous attend ! Découvrez ce magnifique t4 de 95.12 m² idéalement situé au rez-de-chaussée doté d'un jardin privatif de 205.1 m² ainsi qu'une terrasse de 8.54 m² au sein d'une petite copropriété de 30 lots. Points forts : grande pièce à vivre de 36.48 m² avec cuisine ouverte, un cellier, 3 chambres, une salle de bain, une salle d'eau et un wc séparé. À l'extérieur ce bien dispose de 2 places de parking privative ainsi que d'un local à vélo commun. Les informations sur les risques auxquels ce bien est exposé sont disponibles sur le site géorisques : prix de vente : 498 000 € honoraires charge vendeur contactez votre conseiller safti : claire jardinier, tél. : 06 43 26 89 28, e-mail : claire.jardinier@safti.fr - ei - agent commercial immatriculé au rsac de bordeaux sous le numéro 823554035.

Caractéristiques

Les plus de cette annonce
  • Parking
  • Terrasse
Confort
  • Chauffage Individuel
  • Chauffage Electrique
Pièces
  • 4 pièces
  • 3 chambres
  • 2 WC
  • Salle d'eau
  • Salle de bain
  • Cuisine ouverte
Superficies
  • Surface habitable : 95 m²

Consommation énergétique et gaz à effet de serre

Bilan énergétique (DPE)
NC
Bilan gaz à effet de serre (GES)
NC

Géorisques

Les informations sur les risques auxquels ce bien est exposé sont disponibles sur le site Géorisques : www.georisques.gouv.fr

A propos du prix de cet appartement

  • Prix : 498 000 € (soit 5 242 € / m²)
  • Honoraires à charge vendeur

À propos de cette annonce

Mise en ligne:

Dernière mise à jour:

Référence de l'annonce: 1537689
SAFTI agence immobilière à Toulouse (31)
SAFTI
Afficher le numéro

À voir pour le même budget

Appartement 3 pièces 423000 €
423 000 €

Appartement 3 pièces 96 m²

Andernos-les-Bains (33510)

Magnifique appartement à vendre situé à Andernos-les-Bains. Cet appartement de 96 m² dispose de deux chambres spacieuses, d'un salon lumineux, d'une cuisine équipée et d'une salle de bain moderne. Vous pourrez profiter d'un véritable jardin privé. Idéalement situé au cœur de la ville, à proximité de toutes les commodités, ce bien est parfait pour une famille ou un couple désireux de vivre dans un cadre paisible. Ne manquez pas cette opportunité unique d'acquérir ce charmant appartement pour un prix de 423000 EUR. Contactez-nous dès maintenant pour organiser une visite ! Référence agence : 3783.

Appartement 4 pièces 559000 €
559 000 €

Appartement 4 pièces 104 m²

Andernos-les-Bains (33510)

Andernos les Bains : À proximité des commerces et des transports, situé au 1er étage d'une copropriété neuve de 15 lots (RT 2012), votre agence LAGET & Associés vous propose ce duplex 4 pièces de 107 m² Vous découvrirez au 1er étage une entrée desservant un studio indépendant avec salle de bain et espace cuisine ainsi qu'un coin nuit composé d'un couloir, d'une salle d'eau et de deux chambres. À l'étage, vous apprécierez un vaste salon traversant avec cuisine équipée et une terrasse privative de 27 m². Vous pourrez profiter de deux places de parking et d'un cellier privatif. Idéalement situé sur le bassin d'arcachon et à 1h de la métropole bordelaise, vous pourrez profiter de toute les commodité à proximité immédiate et d'un emplacement privilégié proche de la plage du mauret. Idéal pour une famille ou une résidence secondaire. À saisir sans tarder, contactez nous pour plus d'informations. Les informations sur les risques auxquels ce bien est exposé sont disponibles sur le site Géorisques : 1.

Appartement 4 pièces 445500 €
445 500 €
+7 %

Appartement 4 pièces 74 m²

Arès (33740)

Venez découvrir une nouvelle façon de vivre à Villa Aéria, vous vous sentirez chez vous dès le premier pas à l’intérieur de votre appartement. Située à Arès, cette résidence offre un cadre de vie idéal pour profiter de la beauté naturelle de la région. Proche des plages du bassin, les résidents pourront facilement accéder à de nombreuses activités de plein air. Grâce à une architecture au style arésien, le projet s’intègre naturellement dans son environnement. Les 12 appartements seulement promettent un cadre de vie idyllique avec des jardins privés, des loggias ensoleillées et des espaces de vie lumineux. Un équilibre parfait entre confort, fonctionnalité et charme. Pour faciliter votre quotidien, 2 places de parking sont également proposées pour chaque appartement, ainsi que 2 locaux vélo sécurisés à l'intérieur de la résidence. Et pour faciliter votre installation, on vous offre la cuisine équipée ! AQUIPIERRE vous accompagne dans la personnalisation de votre futur appartement Découvrez les nombreux avantages d'investir à Arès ! Située dans une région idyllique, cette ville côtière vous offre un cadre de vie exceptionnel, baigné par l'océan et bénéficiant d'un climat doux toute l'année. Avec une croissance démographique et économique florissante, Arès est le lieu idéal pour des investissements immobiliers prometteurs et des opportunités d'affaires prospères. De plus, grâce à ses nombreuses activités touristiques et de loisirs, cette destination dynamique attire les visiteurs du monde entier, garantissant ainsi un retour sur investissement attractif. Ne manquez pas cette chance unique d'investir à Arès et de saisir toutes les opportunités qui s'offrent à vous ! Les informations sur les risques auxquels ce bien est exposé sont disponibles sur le site Géorisques : .

Appartement 4 pièces 488480 €
488 480 €

Appartement 4 pièces 89 m²

Andernos-les-Bains (33510)

Proche du centre, venez découvrir ce bel appartement en duplex au 3ème et dernier étage d'une petite résidence de 23 lots avec ascenseur. Très bien agencé, il offre une entrée avec placard, une belle pièce de vie avec cuisine ouverte équipée, cheminée avec insert et balcon. Un couloir mène à la partie nuit composée d'un wc indépendant, d'une salle d'eau d'une chambre et d'un bureau. L'étage quand à lui vous propose un espace parental atypique avec une grande chambre de 12 m², un placard, une salle d'eau avec wc, et une loggia qui permet d'accéder à une terrasse tropézienne de 7 m² offrant une vue exceptionnelle sur le bassin. Pour compléter ce bien, un placard à usage exclusif sur le palier, un cellier au rdc de l'immeuble, et une place de parking extérieur. Un accès direct à la piste cyclable vous permettra de rejoindre le marché couvert et le centre ville en quelques minutes à pied. Charges annuelles : 1400 euros coup de coeur garanti ! Prix de vente hai 488 480 euros. Prix de vente net vendeur 465 000 euros. Honoraires agence charge acquéreurs 23 480 euros soit 5.05% dpe d ges b montant estimé des dépenses annuelles d'énergie pour un usage standard entre 1530 et 2140 euros indexées aux années 2021,2022 et 2023 pour visiter et vous accompagner dans votre projet, contactez delphine dubois et cyril vaudour, au 06 84 80 69 57 ou, par courriel à de.dubois@proprietes-privees.com. Selon l'article l. 561.5 du code monétaire et financier, pour l'organisation de la visite, la présentation d'une pièce d'identité vous sera demandée. Cette présente annonce a été rédigée sous la responsabilité éditoriale de delphine dubois et cyril vaudour agissant sous le statut d'agent commercial immatriculé au rsac bordeaux 821065489 auprès de sas proprietes privees, au capital de 44 920 euros, zac le chêne ferré - 44 allée des cinq continents 44120 vertou; siret 487 624 777 00040, rcs nantes. Carte professionnelle transactions sur immeubles et fonds de commerce (t) et gestion immobilière (g) n°cpi 4401 2016 000 010 388 délivrée par la cci nantes - saint nazaire. Compte séquestre n°309 32 50 84 67 bpa saint-sebastien-sur-loire (44230). Garantie galian-smabtp - 89 rue de la boétie, 75008 paris - n°28137 j pour 2 000 000 euros pour t et 120 000 euros pour g. Assurance responsabilité civile professionnelle par galian-smabtp n° de police 28137. J mandat réf : 420773 - le professionnel garantit et sécurise votre projet immobilier. (5.05 % honoraires ttc à la charge de l'acquéreur.) cyril vaudour et delphine dubois (ei) agent commercial - numéro rsac : bordeaux 821065489 -. Les informations sur les risques auxquels ce bien est exposé sont disponibles sur le site géorisques : www. Georisques. Gouv. Fr.

Appartement 5 pièces 530000 €
530 000 €
-20 %

Appartement 5 pièces 103 m²

Arès (33740)

FRAIS DE NOTAIRE OFFERTS * LIVRAISON 2026 ! Découvrez notre nouveau programme immobilier neuf Les Allées Ostréica situé dans l'hypercentre d'Arès (33). Sur le Bassin d’Arcachon aux portes du Cap-Ferret, Notre programme vous propose des appartements neufs du studio au T5. Nouvel ensemble résidentiel du groupe Pichet, découvrez des logements neufs aux prestations de qualité. Larges balcons, jardins privatifs, les intérieurs modernes et fonctionnels sont prolongés par d’agréables espaces extérieurs et bénéficient d’une luminosité naturelle optimale grâce aux grandes baies vitrées. Ensemble résidentiel à taille humaine, Notre résidence offre un cadre de vie confortable et accueillant. Ici, tout se fait à pied ! Supermarché, boulangerie, pharmacie, restaurants, écoles maternelle et élémentaire, banque, bureau de poste ou médecin généraliste, les nombreux commerces et services du quotidien sont facilement accessibles. Bienvenue dans un quartier résidentiel et intimiste où profiter d’un agréable quotidien. Séduit par le charme authentique d’Arès et sa qualité de vie ? Contactez nos conseillers dès maintenant pour découvrir plus en détail nos appartements neufs et devenir propriétaire Arès, aux portes du Cap-Ferret !* Offre valable pour tout contrat de réservation d’un logement neuf signé sur les appartements neufs de la résidence Les Allées Ostréica à Arès, du 1er au 31 janvier 2026 et réitéré par un acte authentique avant le 30 avril 2026. Offre valable pour les 5 premiers logements réservés sur la période, la date et l’heure de la signature de l’annexe faisant foi. Le montant des frais de notaire est offert (hors frais de procuration, de garantie ou d’hypothèque liés au financement de l’acquisition). Offre non cumulable avec toute autre offre en cours. Les réservations ayant été effectuées avant le 1er janvier 2026, puis annulées et suivies d’une nouvelle réservation dans les programmes précédemment cités ne pourront pas bénéficier de la présente offre. Les informations sur les risques auxquels ce bien est exposé sont disponibles sur le site Géorisques : .

Appartement 4 pièces 440000 €
440 000 €
-20 %

Appartement 4 pièces 82 m²

Arès (33740)

FRAIS DE NOTAIRE OFFERTS * LIVRAISON 2026 ! Découvrez notre nouveau programme immobilier neuf Les Allées Ostréica situé dans l'hypercentre d'Arès (33). Sur le Bassin d’Arcachon aux portes du Cap-Ferret, Notre programme vous propose des appartements neufs du studio au T5. Nouvel ensemble résidentiel du groupe Pichet, découvrez des logements neufs aux prestations de qualité. Larges balcons, jardins privatifs, les intérieurs modernes et fonctionnels sont prolongés par d’agréables espaces extérieurs et bénéficient d’une luminosité naturelle optimale grâce aux grandes baies vitrées. Ensemble résidentiel à taille humaine, Notre résidence offre un cadre de vie confortable et accueillant. Ici, tout se fait à pied ! Supermarché, boulangerie, pharmacie, restaurants, écoles maternelle et élémentaire, banque, bureau de poste ou médecin généraliste, les nombreux commerces et services du quotidien sont facilement accessibles. Bienvenue dans un quartier résidentiel et intimiste où profiter d’un agréable quotidien. Séduit par le charme authentique d’Arès et sa qualité de vie ? Contactez nos conseillers dès maintenant pour découvrir plus en détail nos appartements neufs et devenir propriétaire Arès, aux portes du Cap-Ferret !* Offre valable pour tout contrat de réservation d’un logement neuf signé sur les appartements neufs de la résidence Les Allées Ostréica à Arès, du 1er au 31 janvier 2026 et réitéré par un acte authentique avant le 30 avril 2026. Offre valable pour les 5 premiers logements réservés sur la période, la date et l’heure de la signature de l’annexe faisant foi. Le montant des frais de notaire est offert (hors frais de procuration, de garantie ou d’hypothèque liés au financement de l’acquisition). Offre non cumulable avec toute autre offre en cours. Les réservations ayant été effectuées avant le 1er janvier 2026, puis annulées et suivies d’une nouvelle réservation dans les programmes précédemment cités ne pourront pas bénéficier de la présente offre. Les informations sur les risques auxquels ce bien est exposé sont disponibles sur le site Géorisques : .