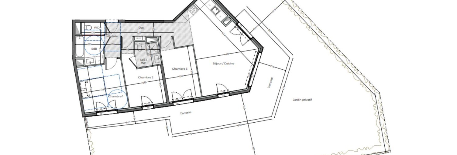
Iad France - Sarah Rozière (06 99 86 19 42) vous propose : Appartement T4 avec jardin à Antibes. Située chemin des Moyennes Bréguières, dans un environnement résidentiel recherché d’Antibes, la résidence contemporaine Dora Mare offre un cadre de vie privilégié au calme, à proximité des plages, des commerces et des axes rapides. Son architecture élégante, ses espaces verts soignés et sa piscine privée en font une adresse qualitative. Disponible 2026. Un appartement raffiné : Situé en rez-de-chaussée, cet appartement T4 de 81 m² environ habitables se prolonge par de beaux espaces extérieurs. - Séjour / cuisine de 30 m² environ. - Trois chambres confortables. - Salle de bain et salle d’eau moderne. Des espaces extérieurs généreux : - Jardin privatif de 168 m² environ. - Terrasse de 31 m² environ. - Annexes incluses : deux parkings et deux caves De belles prestations : - Piscine extérieure dans la résidence. - Menuiseries aluminium, double vitrage isolant. - Chauffage et climatisation par pompe à chaleur collective - Résidence sécurité : vidéophone, contrôle d’accès Vigik, portes palières renforcées. - Parking en sous-sol avec pré-équipement IRVE. Art de vivre à Antibes : - À proximité des plages, du centre d’Antibes et des écoles. - Quartier calme et résidentiel. - Accès rapide vers Sophia Antipolis, juan-les-Pins et autoroute A8. - Résidence avec piscine, jardins paysagers et prestations haut de gamme. N’hésitez pas à me contacter pour plus d’informations ou pour un accompagnement sur mesure. Honoraires d’agence à la charge du vendeur. Bien non soumis au DPE. Les informations sur les risques auxquels ce bien est exposé sont disponibles sur le site Géorisques : . La présente annonce immobilière a été rédigée sous la responsabilité éditoriale de Mlle Sarah Rozière EI (ID 83696), mandataire indépendant en immobilier (sans détention de fonds), agent commercial de la SAS I@D France immatriculé au RSAC de Clermont-Ferrand sous le numéro 978616993, titulaire de la carte de démarchage immobilier pour le compte de la société I@D France SAS. Retrouvez tous nos biens sur notre site internet. .
Les informations sur les risques auxquels ce bien est exposé sont disponibles sur le site Géorisques : www.georisques.gouv.fr
Mise en ligne:
Dernière mise à jour:
Référence de l'annonce: 1866981-8
Implanté entre Nice et Cannes, ce programme immobilier neuf se situe dans la charmante ville d'Antibes, alliant authenticité et dynamisme pour offrir un cadre de vie agréable et serein. Entouré de remparts historiques, de ruelles pavées pittoresques et d'un marché provençal, ce lieu bénéficie également d'une proximité immédiate avec les plages. Un cadre de vie idéal vous attend. La résidence, à l'architecture moderne et raffinée, propose des appartements neufs de 2 à 4 pièces, alliant fonctionnalité et luminosité. Optimisés pour un confort de vie au quotidien, les espaces offrent de généreux volumes, des baies vitrées, des salles de bain équipées et une excellente isolation thermique et phonique. Chaque bien dispose également d'une cave pour un espace de stockage supplémentaire. Pensée pour votre bien-être, cette résidence haut de gamme inclut des services dédiés à la qualité de vie, tels qu'une piscine avec pool house et des espaces paysagers. Les logements bénéficient également d'un extérieur privatif : balcons, rooftops ou jardins en rez-de-chaussée. Saisissez cette occasion unique d'acquérir un bien immobilier neuf à Antibes, où confort, modernité et emplacement privilégié se rencontrent. Découvrez également nos 106 autres résidences dans le 06 : Rendez-vous dans notre Agence Médicis Immobilier Neuf, 25 rue Pertinax, Nice 06000. Les informations sur les risques auxquels ce bien est exposé sont disponibles sur le site Géorisques : .
Appartement 4 pièces avec piscine - Antibes Centre Appartement 4 pièces idéalement situé à Antibes, bénéficiant d’une vue dégagée sur les montagnes et, côté est, d’un aperçu mer. Il se compose de trois chambres, chacune disposant de son propre balcon, de deux salles de bains, ainsi que d’une cuisine ouverte sur une vaste terrasse. L’ensemble de l’appartement est entièrement climatisé. Deux places de parking fermées viennent compléter ce bien. La résidence offre également une piscine, et la location y est autorisée.
Situé entre Nice et Cannes, Antibes séduit par son charme authentique et son dynamisme. Avec ses remparts signés Vauban, ses ruelles pavées, son marché provençal et sa proximité avec Sophia-Antipolis, la ville offre un art de vivre unique. À proximité immédiate de Juan-les-Pins, la résidence le Clos d’Antibes - Domaine de l’Auvert s’inscrit dans ce cadre enchanteur, à proximité des plages (accessibles à pied), des transports et des pôles économiques. Conçue dans une démarche responsable, la résidence propose des bâtiments à l'architecture moderne et élégante et des services comme une piscine avec pool house, rooftops privatifs, caves et espaces paysagers. Les appartements, du 2 au 4 pièces, bénéficient d'extérieurs aux orientations optimales, de jardins en rez-de-chaussée et de prestations soignées. Fonctionnels et lumineux, ils promettent confort et bien-être au quotidien. Idéal pour vivre ou investir, ce projet allie modernité, convivialité et douceur de vivre au cœur de la Côte d’Azur. Contactez nos équipes pour plus d'informations ! Les informations sur les risques auxquels ce bien est exposé sont disponibles sur le site Géorisques : .
Iad France - Pierre Duboisset vous propose : * Splendide Appartement de 5 Pièces avec Terrasse à Antibes * Découvrez cet appartement d'exception à Antibes, situé dans le quartier prisé de la Salis, à deux pas des plages, des commodités (secteur du Ponteil), école du Cap et des transports en commun. Idéalement situé à 25 minutes à pied des remparts du vieil Antibes et de la pinède de Juan les Pins ce bien rare sur le marché offre un confort absolu et de belles prestations pour ses futurs occupants. D'une surface totale de 98 m², ce bien se compose de 4 belles chambres lumineuses, dont deux avec leur salle de douche privative pour un confort optimal. Un vaste séjour d'environ 22.95 m² vous accueille chaleureusement, donnant accès à une magnifique terrasse de 37 m² offrant un bel espace de réception. La cuisine équipée et séparée vous permettra de préparer de délicieux repas en toute convivialité. Les équipements modernes, la climatisation et l'accès à la fibre optique garantissent un quotidien agréable et connecté. L'appartement, en bon état général, est situé dans une résidence sécurisée avec accès privé, offrant tranquillité et sérénité à ses habitants. Les expositions Sud, Est et Ouest offrent une belle luminosité tout au long de la journée. Caractéristiques du bien : - Année de construction : 1964 - Chauffage individuel avec distribution par convecteurs et pompe à chaleur - Climatisation réversible - Prestations de qualité avec mécanisme de ventilation - Alarme et système de vidéosurveillance pour votre sécurité - Volets rideaux à fermeture motorisée - Place de stationnement dans la résidence (location 80 euros / mois) - Absence de travaux à prévoir - Terrasse aménagée pour profiter des beaux jours Cet appartement d'exception constitue un véritable havre de paix et de confort à Antibes. Ne manquez pas cette opportunité unique et contactez nous pour organiser une visite sans plus tarder. La presente annonce immobiliere vise 1 lot situé dans une copropriété de 5 lots au total et ne faisant l'objet d'aucune procédure en cours citée à l'article L. 721-1 du code de la construction et de l'habitation. Montant moyen mensuel de charges déclaré par le vendeur : 130€ par mois (soit 1560 € annuel). Honoraires d'agence à la charge du vendeur. Information d'affichage énergétique sur ce bien : classe ENERGIE D indice 242 et classe CLIMAT B indice 8. Les informations sur les risques auxquels ce bien est exposé, y compris l'obligation légale de débroussaillement, sont disponibles sur le site Géorisques : La présente annonce immobilière a été rédigée sous la responsabilité éditoriale de M Pierre Duboisset mandataire indépendant en immobilier (sans détention de fonds), agent commercial de la SAS I@D France immatriculé au RSAC de GRASSE sous le numéro 851033365, titulaire de la carte de démarchage immobilier pour le compte de la société I@D France SAS.
Antibes - wilson : t3 81 m² + terrasse + garage antibes / wilson : en course de renovation : proche de juan-les-pins et des plages, à proximité immédiate de toutes les commodités, en avant-dernier étage d'un immeuble de standing avec ascenseur, agréable appartement de 81,36 m² traversant sud / nord, avec terrasse et balcon. Il se compose d'une entrée avec placards, salon sur terrasse avec vue panoramique ville et mer, cuisine ouverte, deux chambres, salle de bain et salle de douche, wc séparés. - garage inclus. - charges : 305euros / mois. - taxe foncière : 1600euros / an. Proximités : mer et plages : 150 mètres, parc 150 mètres, port 600 mètres, autoroute 5 km. Les informations sur les risques auxquels ce bien est exposé sont disponibles sur le site géorisques.
Appartement duplex avec grande terrasse et aperçu mer – Juan-les-Pins L’appartement est situé au cœur de Juan-les-Pins, à proximité immédiate des commerces, des restaurants et des plages. Ce duplex de 80 m² offre un cadre de vie lumineux, avec une exposition Sud-Est et un agréable échappée mer. Au 6ᵉ étage on trouve une entrée, des toilettes, un séjour ouvert sur une première terrasse, une cuisine moderne ouverte, ainsi qu’une chambre avec sa salle de douche avec accès à la terrasse. À l’étage supérieur au 7ᵉ étage, il y a deux chambres, supplémentaires avec une salle de douche et toilettes, une terrasse d’environ 20 m² prolonge l’espace de vie et permet de profiter pleinement du soleil et de la vue dégagée. (en option un grand garage avec ouverture motorisé et un coin cave).
Antibes Juan-les-Pins. Superbe appartement 3 pièces. Dernier étage avec grande terrasse et double garage Situé à Juan-les-Pins, proche du centre-ville, au troisième et dernier étage d’un immeuble, superbe appartement 3 pièces. Son emplacement privilégié permet d’effectuer tous les déplacements à pieds (5 minutes du centre-ville de Juan-les-Pins et 10 minutes de celui d’Antibes). Il offre un vaste séjour avec un espace salle à manger, une cuisine américaine raffinée, une suite parentale avec dressing (pouvant faire office de seconde chambre), ainsi qu’une grande salle d’eau de 7 m², équipée d’une double vasque, d’une douche à l’italienne et d’un bidet. Un WC indépendant complète l’ensemble. Une belle terrasse de 22 m², exposée plein sud, permet de profiter d’une vue dégagée dans un environnement calme, à l’abri des nuisances urbaines. Traversant et baigné de lumière, l’appartement séduit par la qualité de ses matériaux, ses équipements haut de gamme, ses nombreux rangements et son spacieux dressing. Il bénéficie de prestations remarquables, dont une cuisine avec plan de travail en granit noir. Le bien dispose également d’un double garage situé au premier sous-sol, doté d’une large porte électrique. Idéalement implanté à proximité immédiate des commerces, des restaurants et à seulement 500 mètres des plages, cet appartement constitue une opportunité parfaite pour une résidence principale, secondaire ou un investissement locatif. Les informations sur les risques auxquels ce bien est exposé sont disponibles sur le site Géorisques : georisques. gouv. fr.
Appartement 4 pièces avec terrasse vue mer - Antibes Situé au 2ᵉ étage d’une résidence sécurisée avec piscine et gardien, cet appartement traversant offre une vue imprenable sur les îles de Lérins. Il se compose d’une entrée, d’une cuisine indépendante prolongée par une loggia fermée, et d’un double séjour lumineux ouvrant sur une belle terrasse avec vue mer. La partie nuit comprend une première chambre avec salle de douche et toilettes attenants, également tournée vers la mer, ainsi qu’un second espace nuit avec deux chambres, une salle de bains et toilettes et une salle de douches et toilettes. Son agencement bénéficie d’une double exposition Nord / Ouest. Une cave et une place de stationnement extérieure complètent ce bien. Disponible à partir d’octobre.
Au cœur du Vieil Antibes, maison individuelle entièrement rénovée avec des prestations et des matériaux de qualité. Elle est composée au RDC d'une chambre en suite, d'un WC indépendant et buanderie. Au premier étage, vous trouverez deux chambres et une salle de douches avec WC. Au dernier étage vous disposerez d'une magnifique pièce à vivre avec sa cuisine ouverte et accès direct à la terrasse baignée de soleil.