Logo LSI sombre

Appartement 3 Pièces 69 m² à vendre à Genas (69740)
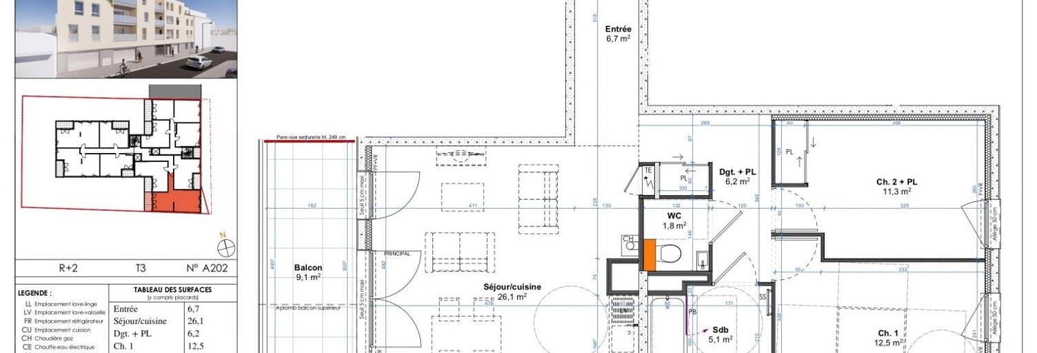
1

Vente appartement 3 pièces 69 m² Genas (69740)

392 000 €

Vente Appartement 3 pièces

Iad france - nicolas joly (06 19 91 65 97) vous propose : au centre de genas, dans la résidence le earl gret à proximité immédiate à pied des commerces et autres commodités, un appartement t3 traversant de 69,70 m² environ situé au 2ème / 3 avec une terrasse de 9,10 m² environ. Il se compose d’une pièce à vivre avec coin cuisine, deux chambres, une salle de bain et un wc séparé. Pour votre confort : porte palière blindées 6 pênes, volets roulants électriques avec centralisation, chauffage individuel au gaz, fibre, visiophone, placards. La résidence, sécurisée, répond aux contraintes thermiques et phoniques de la norme rt2012. Les espaces extérieurs sont paysagers et offrent un lieu de détente, de partage et de bien-être. Vous bénéficierez aussi de la proximité des transports en communs. Des stationnements sont disponibles en sous-sol sécurisé avec contrôle d'accès par télécommandes individuelles. Idéal pour investisseurs désireux de bénéficier de la loi pinel, ou primo-accédant ou simplement une famille à la recherche d’un logement de qualité proche des accès rapides à la métropole, à la frontière entre la campagne et la ville. Contactez-moi rapidement et découvrez le earl gret votre prochain lieu d’épanouissement. Honoraires d’agence à la charge du vendeur. Bien non soumis au dpe. Les informations sur les risques auxquels ce bien est exposé sont disponibles sur le site géorisques : . La présente annonce immobilière a été rédigée sous la responsabilité éditoriale de m. Nicolas joly ei (id 23931), mandataire indépendant en immobilier (sans détention de fonds), agent commercial de la sas i@d france immatriculé au rsac de lyon sous le numéro 830274734, titulaire de la carte de démarchage immobilier pour le compte de la société i@d france sas. Retrouvez tous nos biens sur notre site internet. .

Caractéristiques

Les plus de cette annonce
  • Coup de coeur
Confort
  • Chauffage Individuel
Pièces
  • 3 pièces
  • Salle de bain
Superficies
  • Surface habitable : 69 m²
A proximité
  • Proximité transports

Consommation énergétique et gaz à effet de serre

Bilan énergétique (DPE)
NC
Bilan gaz à effet de serre (GES)
NC

Géorisques

Les informations sur les risques auxquels ce bien est exposé sont disponibles sur le site Géorisques : www.georisques.gouv.fr

A propos du prix de cet appartement

  • Prix : 392 000 € (soit 5 681 € / m²)
  • Honoraires à charge vendeur

À propos de cette annonce

Mise en ligne:

Dernière mise à jour:

Référence de l'annonce: 1475189-13
iad france agence immobilière à Lieusaint (77127)
iad france
Afficher le numéro

Appartement similaires à acheter Genas (69740)

Appartement 3 pièces 379000 €
379 000 €
+8 %

Appartement 3 pièces 66 m²

Genas (69740)

Frais de notaire offerts ( * ) et 2.000 € de remise ( * ) par pièce pour les 5 premiers réservataires du 01 avril au 30 mai 2026, bouygues immobilier vous offre les frais de notaire ( * ) et 2.000 € de remise ( * ) par pièce sur ce logement pour les 5 premiers réservataires. Découvrez "reflets d'adèle" à genas, un programme neuf de bouygues immobilier. Profitez de logements modernes avec jardins privatifs ou terrasses en duplex. Située à 25 min de lyon, cette résidence offre un cadre de vie exceptionnel avec accès rapide aux transports et commodités. Bénéficiez du prêt à taux zéro pour votre achat. Contactez-nous pour plus d'informations. ( * ) et ( * ) offres sous conditions, détails de l’offre sur simple demande ou sur le site bouygues-immobilier. Com. Contactez-nous dès à présent au 01 55 18 70 00 pour découvrir notre résidence et rencontrez nos équipes. Les informations sur les risques auxquels ce bien est exposé sont disponibles sur le site géorisques : .

À voir pour le même budget

Appartement 3 pièces 360000 €
360 000 €

Appartement 3 pièces 107 m²

Genas (69740)

Situé dans une bâtisse de 2 logements seulement, venez découvrir ce spacieux T3 en rez de jardin avec garage et stationnement privatif. Il est composé comme suit : une entrée, un vaste séjour de 37 m² environ avec insert, une cuisine indépendante équipée (poss d'ouvrir sur séjour) une salle à manger donnant directement sur une terrasse intime avec accès au jardin et dépendances, 2 chambres avec rangement, salle d'eau et wc indépendant. Cet appartement est équipé d'un chauffage au gaz de ville, de double vitrage et volets roulants automatisés en partie. De plus il est situé à proximité des commerces du petit centre d'Azieu et dans un environnement calme et familial. Copropriété de 2 lots - dont 2 lots habitation. (Pas de procédure en cours).

Appartement 4 pièces 380000 €
380 000 €
+33 %

Appartement 4 pièces 80 m²

Genas (69740)

Devenez proprietaire du 3 au 4 pieces a genas a 15 min * de lyon ! Exemple de financement : votre 3 pièces à partir de 1 287,11€ / mois * offre exceptionnelle : frais de notaire offerts * conditions exceptionnelles grâce au nouveau prêt à taux 0% * 2026 pour acheter votre appartement. Situé à genas, à seulement vingt minutes de lyon * , le programme les villas gambetta s’inscrit dans un cadre de vie rare et recherché. Cette commune à taille humaine séduit par son atmosphère résidentielle préservée et son équilibre entre dynamisme et sérénité. Elle dispose de toutes les infrastructures pour faciliter le quotidien : écoles, crèches, collège, commerces, services de santé, transports et équipements de loisirs. Conçu dans le respect de la réglementation environnementale re2020, le programme garantit des logements économes en énergie et respectueux de l’environnement. L’architecture sobre et contemporaine, les toitures végétalisées et les espaces extérieurs privatifs participent à l’harmonie du projet, qui s’intègre parfaitement dans son quartier. Les appartements proposés, allant du trois au quatre pièces, se distinguent par leurs surfaces bien pensées et leur luminosité naturelle. Chaque logement dispose d’un espace extérieur, qu’il s’agisse d’un balcon, d’une terrasse ou d’un jardin, pour prolonger le confort intérieur par un lieu de détente à ciel ouvert. Tous les logements possèdent leur stationnement privatif. Les trois pièces offrent des surfaces avoisinant les 60 m², idéales pour un couple ou une jeune famille. Les séjours, spacieux et ouverts sur l’extérieur, s’accompagnent de cuisines fonctionnelles et de rangements intégrés. Les quatre pièces, quant à eux, proposent de véritables volumes familiaux, avec des superficies de plus de 80 m². Les chambres y sont confortables, la suite parentale bénéficie d’une intimité préservée et les espaces de vie sont conçus pour recevoir ou pour partager des moments conviviaux. Les prestations modernes, la qualité des matériaux et la configuration pratique des logements en font des biens faciles à vivre au quotidien, alliant confort et sérénité, tout en profitant de la proximité immédiate de la métropole lyonnaise. Profitez en plus des frais de notaire reduits dans le neuf et des meilleures performances energetiques. * voir conditions sur le site e-h. Fr. * source : google maps (ref. 1046 / 1124-410022) les informations sur les risques auxquels ce bien est exposé sont disponibles sur le site géorisques : .

Appartement 5 pièces 449000 €
449 000 €

Appartement 5 pièces 111 m²

Genas (69740)

Iad France - Didier Burdeyron vous propose : Découvrez ce bel appartement terrasse, idéalement situé à Genas dans le secteur recherché d’Azieu, au sein d’une résidence de 2016 de standing et sécurisée, cet appartement vous séduira par ses volumes généreux, sa luminosité naturelle et ses belles prestations. Dès l’entrée, découvrez une vaste pièce de vie baignée de lumière grâce à de grandes baies vitrées, ouvrant sur une superbe terrasse de 21 m² exposée ouest, idéale pour profiter des beaux jours. La cuisine ouverte contemporaine et fonctionnelle, entièrement équipée et aménagée, s’intègre harmonieusement à cet espace convivial. L’espace nuit offre deux belles chambres avec rangements intégrés, une salle d’eau, des toilettes séparés, ainsi qu’une suite parentale disposant de sa salle d’eau privative. Possibilité de créer une pièce supplémentaire pour une 4e chambre ou un bureau, selon vos besoins. Les plus de ce bien. -Nombreux rangements dans chaque chambre - Volets roulants électriques - Grande terrasse équipée de stores électriques -Climatisation réversible - Alarme - Accès PMR -Fibre - DPE- B A proximité : - Idéalement situé, à seulement 200 mètres des principaux commerces - Ecole primaire et collège - Accès rapide aux grands axes - Tramway T3 (=>Lyon part-dieu) à 3 mns en voiture En complément de ce bien, possibilité d’acquérir un garage double de 35 m², équipé d’une porte motorisée et d’un éclairage. Idéal pour stationner deux véhicules et bénéficier d’un espace de stockage supplémentaire. Un atout rare sur le secteur. Un cadre de vie privilégié pour ceux qui recherchent confort et tranquillité. À visiter sans tarder- coup de coeur assuré ! Vidéo sur demande La presente annonce immobiliere vise 1 lot situé dans une copropriété de 66 lots au total et ne faisant l'objet d'aucune procédure en cours citée à l'article L. 721-1 du code de la construction et de l'habitation. Montant moyen mensuel de charges déclaré par le vendeur : 146.67€ par mois (soit 1760 € annuel). Honoraires d'agence à la charge du vendeur. Information d'affichage énergétique sur ce bien : classe ENERGIE B indice 60 et classe CLIMAT B indice 9. Les informations sur les risques auxquels ce bien est exposé, y compris l'obligation légale de débroussaillement, sont disponibles sur le site Géorisques : La présente annonce immobilière a été rédigée sous la responsabilité éditoriale de M Didier Burdeyron mandataire indépendant en immobilier (sans détention de fonds), agent commercial de la SAS I@D France immatriculé au RSAC de Lyon sous le numéro 891056087, titulaire de la carte de démarchage immobilier pour le compte de la société I@D France SAS.

Appartement 3 pièces 379000 €
379 000 €
+8 %

Appartement 3 pièces 66 m²

Genas (69740)

Frais de notaire offerts ( * ) et 2.000 € de remise ( * ) par pièce pour les 5 premiers réservataires du 01 avril au 30 mai 2026, bouygues immobilier vous offre les frais de notaire ( * ) et 2.000 € de remise ( * ) par pièce sur ce logement pour les 5 premiers réservataires. Découvrez "reflets d'adèle" à genas, un programme neuf de bouygues immobilier. Profitez de logements modernes avec jardins privatifs ou terrasses en duplex. Située à 25 min de lyon, cette résidence offre un cadre de vie exceptionnel avec accès rapide aux transports et commodités. Bénéficiez du prêt à taux zéro pour votre achat. Contactez-nous pour plus d'informations. ( * ) et ( * ) offres sous conditions, détails de l’offre sur simple demande ou sur le site bouygues-immobilier. Com. Contactez-nous dès à présent au 01 55 18 70 00 pour découvrir notre résidence et rencontrez nos équipes. Les informations sur les risques auxquels ce bien est exposé sont disponibles sur le site géorisques : .

Appartement 4 pièces 418000 €
418 000 €
+3 %

Appartement 4 pièces 75 m²

Genas (69740)

Genas, ville prisée de l’Est lyonnais, offre un cadre de vie idéal, alliant dynamisme urbain et sérénité naturelle. À seulement 500 mètres du centre-ville, ce programme immobilier neuf s’installe dans un environnement privilégié, proche de toutes les commodités essentielles. Pensée à taille humaine, cette résidence séduit par son architecture élégante et contemporaine, où les façades lumineuses s’associent harmonieusement à des matériaux naturels. Du 2 au 5 pièces, chaque appartement a été conçu pour maximiser l’espace, la luminosité et le confort. Les doubles orientations assurent une belle circulation de la lumière en toute saison, sublimant des intérieurs à la fois fonctionnels et chaleureux. Matériaux de qualité, prestations soignées et agencements optimisés : tout est pensé pour une qualité de vie incomparable. Atout majeur : un espace extérieur généreux, sous la forme d’une terrasse, d’un jardin privatif ou de jardins partagés, parfait pour savourer des instants conviviaux en famille ou entre voisins. Une adresse d’exception, entre nature et ville, idéale pour habiter ou investir ! Prix indiqués HORS STATIONNEMENT, voir conditions * Découvrez également nos 197 autres résidences dans le 69 : Rendez-vous dans notre Agence Médicis Immobilier Neuf, 32 avenue Maréchal Foch, Lyon 06 69006. Les informations sur les risques auxquels ce bien est exposé sont disponibles sur le site Géorisques : .

Appartement 3 pièces 333000 €
333 000 €
+3 %

Appartement 3 pièces 60 m²

Genas (69740)

Genas, ville prisée de l’Est lyonnais, offre un cadre de vie idéal, alliant dynamisme urbain et sérénité naturelle. À seulement 500 mètres du centre-ville, ce programme immobilier neuf s’installe dans un environnement privilégié, proche de toutes les commodités essentielles. Pensée à taille humaine, cette résidence séduit par son architecture élégante et contemporaine, où les façades lumineuses s’associent harmonieusement à des matériaux naturels. Du 2 au 5 pièces, chaque appartement a été conçu pour maximiser l’espace, la luminosité et le confort. Les doubles orientations assurent une belle circulation de la lumière en toute saison, sublimant des intérieurs à la fois fonctionnels et chaleureux. Matériaux de qualité, prestations soignées et agencements optimisés : tout est pensé pour une qualité de vie incomparable. Atout majeur : un espace extérieur généreux, sous la forme d’une terrasse, d’un jardin privatif ou de jardins partagés, parfait pour savourer des instants conviviaux en famille ou entre voisins. Une adresse d’exception, entre nature et ville, idéale pour habiter ou investir ! Prix indiqués HORS STATIONNEMENT, voir conditions * Découvrez également nos 197 autres résidences dans le 69 : Rendez-vous dans notre Agence Médicis Immobilier Neuf, 32 avenue Maréchal Foch, Lyon 06 69006. Les informations sur les risques auxquels ce bien est exposé sont disponibles sur le site Géorisques : .