Iad France - Marie-Rose Gilles (06 98 85 33 80) vous propose : À saisir, très beau t3 neuf dans un quartier résidentiel. Vous bénéficiez des frais de notaire réduits (2,5%) et d'une exonération de la taxe foncière pendant 2 ans. La résidence est située dans un véritable écrin de verdure. Elle est composée de seulement 17 appartements sur 2 étages. La grande terrasse offre une très belle vue sur les massifs de Belledonne et de l'Oisans. Répondant aux normes de la RT 2012 et la Règlementation Acoustique, son isolation est renforcée vous permettant ainsi de réaliser des économies d'énergie ! Proche de l'autoroute A480 et de la gare TER du Pont-de-Claix, vous rejoindrez rapidement le centre-ville de Grenoble et le Centre Commercial Comboire. Le centre du village et les sentiers de randonnées sont accessibles en quelques minutes à pied. Garage en sus du prix : 16 000€ Pour les investisseurs, le loyer prévisionnel HC est de 708€ Me contactez pour toute information complémentaire et visite. D'autres T3 sont encore disponibles à la vente dans cette résidence achevée : à 285 000€ (hors stationnement), de 68,80 à 69,10 m² environ Honoraires d’agence à la charge du vendeur. Bien non soumis au DPE. Les informations sur les risques auxquels ce bien est exposé sont disponibles sur le site Géorisques : . La présente annonce immobilière a été rédigée sous la responsabilité éditoriale de Mlle Marie-Rose Gilles EI (ID 83761), mandataire indépendant en immobilier (sans détention de fonds), agent commercial de la SAS I@D France immatriculé au RSAC de GRENOBLE sous le numéro 478110612, titulaire de la carte de démarchage immobilier pour le compte de la société I@D France SAS. Retrouvez tous nos biens sur notre site internet. .
Les informations sur les risques auxquels ce bien est exposé sont disponibles sur le site Géorisques : www.georisques.gouv.fr
Mise en ligne:
Dernière mise à jour:
Référence de l'annonce: 1865177-1Situé non loin du centre-bourg de Claix, le programme a été conçu pour vous offrir un havre de paix en pleine nature. Au pied du massif du Vercors, et à proximité immédiate de l’agglomération grenobloise, l’emplacement vous garantit un quotidien tout aussi sportif, paisible que ressourçant. Au sein de votre résidence vous pourrez profiter chaque jour d’une vue imprenable sur les montagnes alentours, dans un écrin de verdure intimiste et familial. Conservant une marque de fabrique du haut de gamme et de l’excellence, les prestations de cette résidence sont soignées et raffinées jusque dans les moindres détails pour rehausser le cachet naturel des lieux. Les grandes terrasses, signature des appartements neufs du 2 au 5 pièces, permettent, elles aussi, de profiter d’un extérieur privé généreux. Les jeux en famille, les retrouvailles entre amis ou le repos seront à l’ordre de chaque journée dans cet environnement idyllique. Un compost collectif est à disposition des habitants au sein de l’espace commun de copropriété; de quoi ravir les personnes soucieuses de notre planète ou celles désireuses de jardiner au petit oignon. La résidence vous offre la possibilité de vivre dans un logement au confort moderne et aux prestations haut de gamme dans un cadre de vie enchanteur. Bienvenue chez vous ! * PRIX INDIQUÉS HORS STATIONNEMENT Découvrez également nos 97 autres résidences dans le 38 : Rendez-vous dans notre Agence Médicis Immobilier Neuf, 73 avenue de la république, Seyssinet-Pariset 38170. Les informations sur les risques auxquels ce bien est exposé sont disponibles sur le site Géorisques : .
Iad France - Pierre Magerand (06 37 21 92 42) vous propose : Appartement T3 avec balcon à Claix. Située Montée de la Croix Blanche à Claix, au sud de Grenoble, la résidence Effet Vercors offre un cadre de vie unique entre ville et nature, avec une vue imprenable sur le massif du Vercors. Ce programme conjugue architecture élégante, performance énergétique et douceur de vivre au cOEur d’un environnement verdoyant. Livraison prévue en 2027. D’une surface de 69 m² environ habitables, cet appartement T3 situé en rez-de-chaussée surélevé se prolonge par un balcon de 11 m² environ. Il comprend un séjour / cuisine de 33 m² environ, deux chambres confortables et une salle d’eau moderne. Un cellier et une place de parking intérieure complètent le bien. Le chauffage et la production d’eau chaude sont assurés par une pompe à chaleur individuelle vecteur air, garantissant confort et économies d’énergie. AUTRES T3 DISPONIBLES À PARTIR DE 285 000 € – Plans et demande d'informations sur simple contact. Nichée dans un cadre résidentiel paisible, la résidence Effet Vercors se distingue par son architecture contemporaine et son intégration harmonieuse au paysage. Entourée d’espaces verts, elle a été pensée pour offrir un quotidien serein et pratique : bâtiments à taille humaine, stationnements sécurisés, celliers privatifs et espaces communs paysagers. Les habitants profitent d’un emplacement privilégié : le centre-bourg et ses commerces sont accessibles en 8 minutes à pied, le bus 21 (arrêt La Chièze) se situe à 350 m, et la gare TER de Pont-de-Claix à seulement 3 minutes en voiture. Les écoles, collège, médiathèque et équipements sportifs se trouvent à proximité immédiate, tout comme les espaces naturels : Parc de la Ronzy, Fort de Comboire et réserve naturelle du Peuil. Acheter dans le neuf, c’est bénéficier de frais de notaire réduits, de garanties constructeur et d’un logement conforme aux dernières normes thermiques et acoustiques. Vous pouvez également personnaliser certains aménagements selon vos envies. Vous pouvez me contacter dès maintenant pour recevoir le plan détaillé, obtenir plus d’informations ou bénéficier d’un accompagnement personnalisé. Honoraires d’agence à la charge du vendeur. Bien non soumis au DPE. Les informations sur les risques auxquels ce bien est exposé sont disponibles sur le site Géorisques : . La présente annonce immobilière a été rédigée sous la responsabilité éditoriale de M. Pierre Magerand EI (ID 86098), mandataire indépendant en immobilier (sans détention de fonds), agent commercial de la SAS I@D France immatriculé au RSAC de Cusset sous le numéro 938729175, titulaire de la carte de démarchage immobilier pour le compte de la société I@D France SAS. Retrouvez tous nos biens sur notre site internet. .
Située face à la chaîne des alpes, entre les rives du drac et les falaises du vercors, claix jouit d'une situation géographique exceptionnelle. À la fois commune rurale bénéficiant de ressources naturelles inestimables qui lui ont permis d'intégrer en 2008 le parc naturel régional du vercors, la ville de claix n'en demeure pas moins une commune dynamique située aux portes de grenoble que l'on rejoint en une dizaine de minutes en voiture. Prestations soignées haut de gamme et raffinées jusque dans les moindres détails. Autres t3 et t4 disponibles. Possibilité garage en sous-sol ou parking extérieur. Prix 285000 euros sans garage - 301000 euros avec garage en sous-sol livraison immédiate - frais de notaire réduits en voiture : à 3 min. Autoroute a480 à 3 min. Commerces de proximité à 6 min. Gare ter le pont-de-claix à 7 min. Centre commercial comboire à 15 min. Grenoble centre, le polygone scientifique a pied : à 7 min. Arrêt de bus (pérouses / bus 48) à 10 min. Centre du village et sentiers de randonnées pour visiter et vous accompagner dans votre projet, contactez bernard ecarnot, au 06 07 55 80 68 ou par courriel à b.ecarnot@proprietes-privees.com selon l'article l. 561.5 du code monétaire et financier, pour l'organisation de la visite, la présentation d'une pièce d'identité vous sera demandée. Cette vente est garantie 12 mois. Cette présente annonce a été rédigée sous la responsabilité éditoriale de bernard ecarnot agissant sous le statut d'agent commercial immatriculé au rsac 383370558 auprès de la sas proprietes privees, au capital de 40 000 euros, zac le chêne ferré - 44 allée des cinq continents 44120 vertou; siret 487 624 777 00040, rcs nantes. Carte professionnelle transactions sur immeubles et fonds de commerce (t) et gestion immobilière (g) n° cpi 4401 2016 000 010 388 délivrée par la cci nantes - saint nazaire. Compte séquestre n°309 32 50 84 67 bpa saint-sebastien-sur-loire (44230). Garantie galian-smabtp - 89 rue de la boétie, 75008 paris - n°28137 j pour 2 000 000 euros pour t et 120 000 euros pour g. Assurance responsabilité civile professionnelle par galian-smabtp entreprise n° de police rcp_01_28137j. " mandat réf : 423596tribcn - le professionnel garantit et sécurise votre projet immobilier. Copropriété de 96 lots - dont 36 lots habitation. Charges annuelles : 1000 euros. Bernard ecarnot (ei) agent commercial - numéro rsac : 383370558 -.
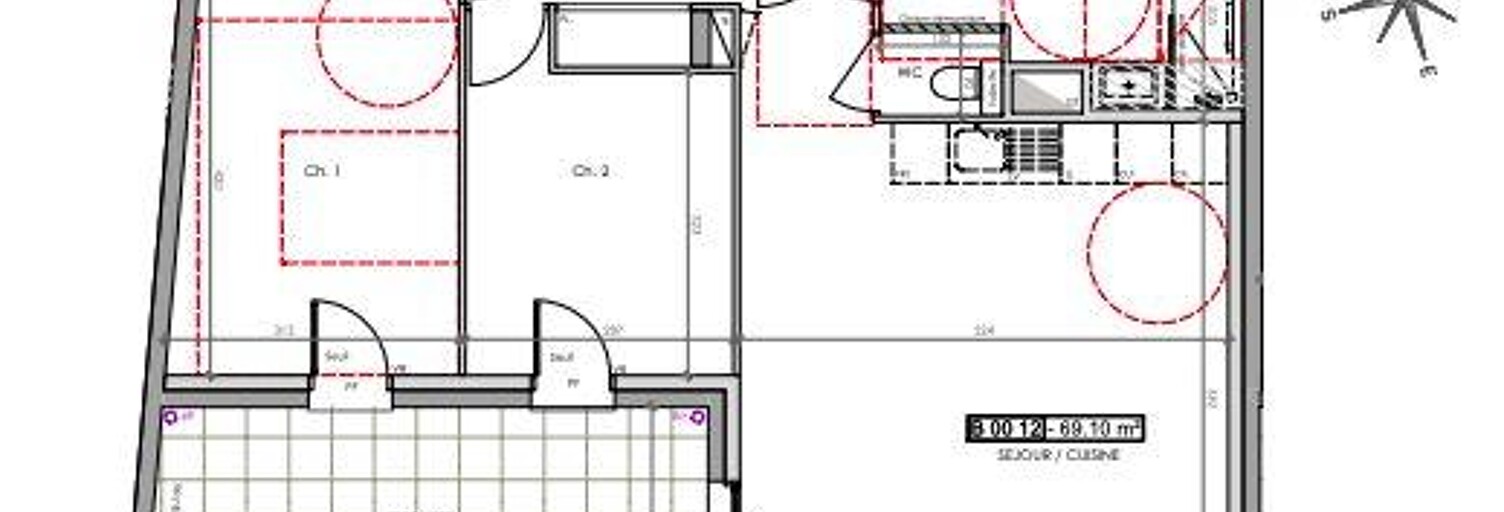
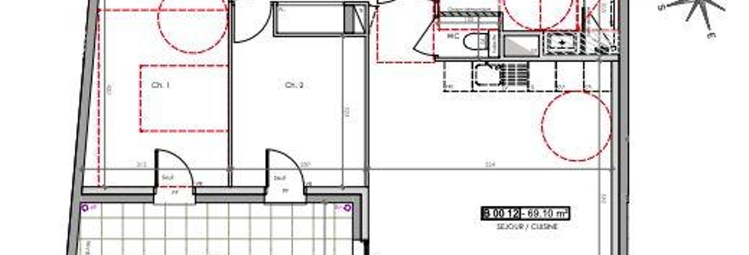
À découvrir beau t3, de 68.8 m² avec terrasse de 16.50 m² ! Frais de notaire réduits. Immeuble de 18 logements sur 2 étages - normes rt 2012 composé de 2 chambres de 14.3 et 10 m², une cuisine ouverte sur séjour de 31 m², salle d'eau de 6.2 m² et wc indépendant. Superbe vue dégagée, très lumineux, vous serez séduit, ne vous restera qu'a installer la cuisine de votre choix. Ref appartement b0013 vendu avec garage en sous sol ! Chauffage et eau chaude produite par une chaudière gaz. Ma carte de visite est dans l'annonce pour contact direct 7j / 7j - copropriété de 18 lots. Charges annuelles : 1520.00 euros. Sébastien sallaz (ei) agent commercial - numéro rsac : 531188688 - grenoble.
Effet vercors, une résidence neuve à claix, offre des appartements neufs configurables du studio au 5 pièces avec espaces extérieurs généreux. Profitez de vues dégagées sur le vercors et les massifs, ainsi que dun emplacement préservé proche des commodités. Dans un secteur calme et pavillonnaire de claix, la résidence effet vercors est idéalement située : à seulement 8 minutes à pied du centre bourg avec ses commerces et services de proximité : pharmacie, boulangerie, coiffeur, fleuriste, restaurants, la poste. Le supermarché de claix se situe à 4 minutes en voiture. Vous pourrez rejoindre grenoble en seulement quelques minutes en voiture, ainsi que le centre commercial de comboire. De plus, la résidence est aux portes du parc naturel régional du vercors offrant un cadre de vie agréable en gardant son esprit village. Les 41 appartements neufs proposés vont du studio au 5 pièces. Ils sont configurables selon vos besoins. Profitez despaces extérieurs généreux, que ce soit un balcon ou une terrasse. Certains appartements en attique offrent même une terrasse à ciel ouvert. La résidence respecte la norme rt2012-20%, et un aménagement paysagé avec plus de 120 arbres invite à la sérénité. Profitez de cette opportunité unique à claix et découvrez les avantages de vivre dans la résidence effet vercors. Offre de lancement : frais de notaire offerts + frais de dossier bancaire + 2000 euros remise / pièce.

Découvrez Domaine Féredie, une résidence d'exception située à seulement 300 mètres du centre-bourg de Claix, dans un cadre rare et préservé, au sud de Grenoble. La résidence intimiste propose 14 appartements de grand standing, allant du 2 au 4 pièces, aux volumes généreux. Grâce à de larges ouvrants, chaque appartement bénéficie d'une luminosité naturelle et d'un cadre de vie convivial avec un beau jardin à la française. Pour plus de confort, la résidence dispose d'un local à vélos et d'un parking en sous-sol, permettant de faciliter vos déplacements quotidiens tout en préservant l'harmonie avec l'environnement. Claix s'étend le long du Drac, entourée de montagnes et de sentiers de randonnée, offrant un environnement naturel incomparable. Ce charmant village a su conserver son esprit authentique, avec sa mairie, son église, ses demeures bourgeoises et ses commerces de proximité. Venez vivre au coeur de la nature dans un lieu où prestige et tranquillité se rencontrent, et laissez-vous séduire par cette résidence aux prestations haut de gamme. Les informations sur les risques auxquels ce bien est exposé sont disponibles sur le site Géorisques : .

Découvrez Domaine Féredie, une résidence d'exception située à seulement 300 mètres du centre-bourg de Claix, dans un cadre rare et préservé, au sud de Grenoble. La résidence intimiste propose 14 appartements de grand standing, allant du 2 au 4 pièces, aux volumes généreux. Grâce à de larges ouvrants, chaque appartement bénéficie d'une luminosité naturelle et d'un cadre de vie convivial avec un beau jardin à la française. Pour plus de confort, la résidence dispose d'un local à vélos et d'un parking en sous-sol, permettant de faciliter vos déplacements quotidiens tout en préservant l'harmonie avec l'environnement. Claix s'étend le long du Drac, entourée de montagnes et de sentiers de randonnée, offrant un environnement naturel incomparable. Ce charmant village a su conserver son esprit authentique, avec sa mairie, son église, ses demeures bourgeoises et ses commerces de proximité. Venez vivre au coeur de la nature dans un lieu où prestige et tranquillité se rencontrent, et laissez-vous séduire par cette résidence aux prestations haut de gamme. Les informations sur les risques auxquels ce bien est exposé sont disponibles sur le site Géorisques : .

Découvrez Domaine Féredie, une résidence d'exception située à seulement 300 mètres du centre-bourg de Claix, dans un cadre rare et préservé, au sud de Grenoble. La résidence intimiste propose 14 appartements de grand standing, allant du 2 au 4 pièces, aux volumes généreux. Grâce à de larges ouvrants, chaque appartement bénéficie d'une luminosité naturelle et d'un cadre de vie convivial avec un beau jardin à la française. Pour plus de confort, la résidence dispose d'un local à vélos et d'un parking en sous-sol, permettant de faciliter vos déplacements quotidiens tout en préservant l'harmonie avec l'environnement. Claix s'étend le long du Drac, entourée de montagnes et de sentiers de randonnée, offrant un environnement naturel incomparable. Ce charmant village a su conserver son esprit authentique, avec sa mairie, son église, ses demeures bourgeoises et ses commerces de proximité. Venez vivre au coeur de la nature dans un lieu où prestige et tranquillité se rencontrent, et laissez-vous séduire par cette résidence aux prestations haut de gamme. Les informations sur les risques auxquels ce bien est exposé sont disponibles sur le site Géorisques : .

Située dans un cadre idyllique, cette résidence offre une qualité de vie exceptionnelle. Claix, charmante commune de l'agglomération, est réputée pour son environnement paisible. Vous profiterez d'un environnement bucolique, tout en étant à proximité des commodités et des infrastructures de Grenoble. Cette résidence se distingue par ses nombreux atouts. La chaudière à granulés de bois assure un chauffage écologique et économique, vous permettant de bénéficier d'un confort thermique optimal, et responsable. Les espaces verts soigneusement aménagés offrent un véritable écrin de verdure où vous pourrez vous ressourcer et profiter de la nature au quotidien. Les prestations et la décoration haut de gamme dans les parties communes témoignent de l'attention portée aux moindres détails. Chaque espace a été pensé pour offrir un cadre de vie raffiné et élégant à ses résidents. Contactez-nous pour visiter les dernières opportunités disponibles immédiatement. Les informations sur les risques auxquels ce bien est exposé sont disponibles sur le site Géorisques : .