230 résultats
L'agence stéphane plaza immobilier sextius d'aix en provence vous propose à la vente dans le centre historique de pertuis, ce t2 en rez-de-chaussée. Il se compose d'une pièce de vie, d'une cuisine indépendante, une chambre, une salle d'eau avec wc une cave au sous sol de l'appartement complète le logement. Dans une rue calme, il est situé à quelques minutes du parking de la dévalade. Il n' y a pas de charges de copropriété. N'hésitez pas à contacter stéphanie au 07 64 54 05 84 agence stéphane plaza immobilier copropriété de 3 lots ().
Sorgues Proche Avignon par le train, au 2ème étage d'une petite résidence, appartement T2 exposé plein sud d'une superficie d'environ 46 m² avec cave et grand garage sécurisé. Bien en copropriété. Charges mensuelles 54euros.
L'Agence Stéphane Plaza Immobilier Sud luberon vous propose à la vente dans le centre historique, ce T2 en rez-de-chaussée. Il se compose d'une pièce de vie, d'une cuisine indépendante, une chambre, une salle d'eau avec WC Une cave au sous sol de l'appartement complète le logement. Dans une rue calme, il est situé à quelques minutes du parking de la Dévalade. Il n' y a pas de charges de copropriété. N'hésitez pas à nous contacter Agence Stéphane Plaza Immobilier 19 allée des Prés Verts 84120 Pertuis Copropriété de 3 lots ().
Avignon Extra-Muros, en exclusivité, A 5 mn à pied de la faculté et du centre-ville Intra-Muros, Spécial investisseurs : Appartement de type 2 avec balcon dans une résidence récente Situé au deuxième étage avec ascenseur, appartement actuellement loué 482 € cc (bail nu depuis le 29 / 05 / 13) 30€ de charge (472€ puis 482€ a partir du 1er Juillet) Acte à partir du 1er Oct 2024 Référence agence : 1935.

Recevez en temps réel les dernières annonces correspondant à votre recherche
Avignon Intra-Muros, dans une résidence de services de grand standing pour seniors, agréable appartement de type 2 d'environ 43 m² au premier étage avec terrasse couverte et accessible par ascenseur. Après quelques travaux intérieurs nécessaires, il permettra à un sénior une installation confortable. Il dispose d'une vue dégagée et d'un ensoleillement d'Ouest Cuisine indépendante, climatisation réversible, cave en sous-sol. La résidence bénéficie d'une hôtesse d'accueil, Cuisinier, Serveurs, homme d'entretien, Veilleur de nuit. Restaurant ouvert midi et soir, au coeur de la résidence, un salon, un bar et des espaces de loisirs sont offerts. Idéal pour retraités voulant s'affranchir des contraintes et préserver leur indépendance. Référence agence : 1556.
Avignon Extra-Muros, en exclusivité, Très Proche Remparts, Au 2ème et dernier étage, appartement de type 2 d'environ 50 m², baigné de lumière grâce à ses belles ouvertures donnant sur le balcon avec vue dégagée. En très bel état, chauffage individuel gaz (chaudière récente), cave en rez de chaussée. Charges de seulement 13 euros / mois ! Vendu Loué 476 euros / mois. Référence agence : 1659.
Prix ultra accessible Rentabilité 6 % Beaumettes village du Vaucluse à 7 km de Gordes situation exceptionnelle au cœur du Lubéron T2 45 m² entièrement meublé tout équipés dans une résidence trois étoiles. Sécurité, Simplicité, Sérénité, Service pour ce placement immobilier privilégié avec un régime fiscal très favorable aux investisseurs. Un emplacement de premier choix pour investir et bénéficier du statut fiscal privilégié du loueur en meublé non professionnel. Service appartement entièrement meublé tout équipé, Sécurité loyer garanti que le bien soit occupé ou pas, Simplicité des revenus immédiats, Sérénité pas de gestion locative préservation de la valeur du patrimoine pour ce placement immobilier. Possibilité d'occupation. Convient a tout investisseur cherchant la création, la valorisation d'un patrimoine avec un revenu complémentaire sous un statut fiscal privilégié.
La Venise provençale, achetez votre résidence secondaire avec 40% de réduction sur les prix habituellement pratiqués ! Et pourtant ce bien est en bon état, ainsi que la résidence dans lequel il se trouve ! Cela est dû à la présence d'un bail commercial qui réduit l'usage possible de ce bien le temps du bail : vous ne pouvez pas en faire votre résidence principale, ni l'avoir à votre disposition comme résidence secondaire du 1er janvier au 31 décembre. MAIS, vos habitudes de vacances ne sont peut-être pas celles de pouvoir et vouloir y aller à tout moment pendant l'année : la grande majorité des propriétaires de résidences secondaires n'y séjournent que quelques semaines par an ! Si c'est votre cas, pourquoi payer cette résidence secondaire au prix fort alors que ce logement vendu 40% en dessous de son prix vous permettra d'occuper votre appartement quand vous le voudrez en résidence secondaire : vous paierez vos séjours au prix public avec une réduction de 20% comme propriétaire, tout en percevant des loyers garantis par an de 4 152 euros (350 euros par mois) qui sont intégralement défiscalisés grâce au statut fiscal et juridique avantageux du LMNP (loueur en meublé non professionnel ), ET que vous percevez même pendant vos séjours payants ! Donc pour résumer : Vous achetez 40% en dessous du prix cet appartement, vous y allez quand vous voulez, en payant votre séjour avec 20% de réduction, et quand vous n'y êtes pas ET sans vous en occuper, vous percevez 350 euros par mois de loyers garantis, revenus sans impôt, ni CSG, et pour finir vos charges sont réduites pour ce T2 de 30 m² et un parking privé.
L’office notarial ollivier et associé, scp vous propose : appartement à vendre en immo-interactif - adresse du bien : 2 rue joseph vernet 84000 avignon - immobilier. Notaires et l'office notarial maître emmanuel ollivier vous proposent : appartement à vendre en immo-interactif - avignon intra-muros, rare et atypique ! Appartement de type 2 avec terrasse à rénover, composé de 3 pièces en enfilade, suivit d'une petite terrasse avec wc. Cet appartement est proposé en vente interactive. Il s'agit d'un appel d'offre dont le prix de départ est de 35 000€ honoraires de négociation inclus et hors frais d'acte. Pour participer pouvoir la visite est obligatoire, les portes ouvertes se dérouleront les lundis 20 / 11 / 2023 et 04 / 12 / 2023 de 11h00 à 12h30 sans rendez-vous. Dossier complet sur demande : marion.perrin.84004@notaires.fr. - conditions de la vente : le bien est présenté en immo-interactif à la hausse : - 1ère offre possible : à partir de 35 000,00 euros (honoraires de négociation inclus) - offres suivantes : multiples de 1 500 euros. - réception des offres du 11 / 12 / 2023 13 : 00 au 12 / 12 / 2023 13 : 00 sur le site immobilier. Notaires. - visites : sans rendez-vous, à l’adresse du bien : le 20 / 11 / 23 de 11 : 00 à 12 : 30 le 04 / 12 / 23 de 11 : 00 à 12 : 30 contact : 04 90 27 29 00 - conditions de la vente : le bien est présenté en immo-interactif à la hausse : - 1ère offre possible : à partir de 35 000 euros (honoraires de négociation inclus) - offres suivantes : multiples de 1 500 euros. - réception des offres du 11 / 12 / 2023 à 13 : 00 au 12 / 12 / 2023 à 14 : 12 sur le site immo-interactif®. - annonce de l’étude ollivier et associé - notaires à avignon - n° siret : 820402 32 90 00 16 - immo-interactif® : le système d'enchères immobilières sans contrainte, transparent et sécurisé, proposé par votre notaire.
Appartement de 47 m² avec jardin dans un village prisé, à côté des toutes commodités Totalement meublé, composé d'un salon avec cuisine ouverte equipée et aménagée, chambre séparée, salle d'eau avec toilettes, rangements, cimatisation réversible, box de 5 m², parking privative et pour visiteurs Nous avons d'autres appartements dans le même bâtiment. Excelent investissement locatif!
Appartement de 47 m² avec balcon dans un village prisé, à côté des toutes commodités Totalement meublé, composé d'un salon avec cuisine ouverte equipée et aménagée, chambre séparée, salle d'eau avec toilettes, rangements, cimatisation réversible, box de 5 m², parking privative et pour visiteurs Nous avons d'autres appartements dans le même bâtiment. Excelent investissement locatif!
Appartement de 47 m² avec jardin dans un village prisé, à côté des toutes commodités Totalement meublé, composé d'un salon avec cuisine ouverte equipée et aménagée, chambre séparée, salle d'eau avec toilettes, rangements, cimatisation réversible, box de 5 m², parking privative et pour visiteurs Nous avons d'autres appartements dans le même bâtiment. Excelent investissement locatif ! Surface CARREZ : 47 m².
Appartement de 47 m² avec balcon dans un village prisé, à côté des toutes commodités Totalement meublé, composé d'un salon avec cuisine ouverte equipée et aménagée, chambre séparée, salle d'eau avec toilettes, rangements, cimatisation réversible, parking privative et pour visiteurs, avec box de 5 m² Nous avons d'autres appartements dans le même bâtiment. Excelent investissement locatif!
Appartement de 47 m² avec jardin dans un village prisé, à côté des toutes commodités Totalement meublé, composé d'un salon avec cuisine ouverte equipée et aménagée, chambre séparée, salle d'eau avec toilettes, rangements, cimatisation réversible, box de 5 m², parking privative et pour visiteurs Nous avons d'autres appartements dans le même bâtiment. Excelent investissement locatif!
Investissement résidence tourisme bail commercial Loyer annuel HT : 2 672,03 Euro Charges générales : 254 Euro Annuel Taxe fonciere : 276 Euro Bail commercial du 31 / 10 / 2012 au 31 / 10 / 2021. Il est actuellement tacitement renouvelé par périodes de 3 ans, soit jusqu'au 31 / 10 / 2024. Loyer fixe payé trimestriellement sur les 3 premières échéances de l'année, puis loyer variable payé le 31 / 12. Le loyer indiqué comprend le loyer fixe de 2 261,94Euro + le loyer variable de 2022 de 410,09Euro. La rentabilité sur loyer fixe est donc de 4,17 %. Article 605 charge preneur, article 606 charge bailleur. Pas de semaines d'occupation, 20% de remise sur les séjours dans la résidence et 10% sur toutes les résidences du catalogue Appartement de type T2 PMR de 44,63 m² meublé, situé au RDC, comprenant une entrée / kitchenette / séjour, une chambre, une cabine, une salle d'eau avec WC. Une loggia de 5,76 m² complète ce bien. La résidence a été construite en 2007 et compte 94 appartements, répartis en 8 bâtiments d'un étage. Pour.
Baisse de prix ! Prenez rendez-vous dès maintenant pour choisir votre appartement ! Au coeur du luberon, c'est dans le quartier des jardins au sud de cavaillon que s'élève la résidence le cabellio. Située dans un environnement paisible à 10 minutes à pied seulement de centre-ville, au calme dans un secteur pavillonnaire, les appartements du t2 au t4 offrent des prestations soignées pour vous offrir tout le confort d'un logement neuf avec un extérieur, et un stationnement privatif. Certains logements bénéficient de vues sur la colline st jacques. L'emplacement de notre résidence vous permettra d'allier sérénité et accessibilité pour profiter des commerces, des établissements scolaires ainsi qu'un accès rapide à l'autoroute a7. Travaux en cours - dernieres opportunites pour toutes informations complémentaires, prenez contact avec nous ! Les informations sur les risques auxquels ce bien est exposé sont disponibles sur le site géorisques : .
Bénéficiez d'une remise allant jusqu'à 18 000€ * sur l'achat de votre logement neuf ! Au coeur de la ceinture verte d'Avignon et à proximité des deux grandes entités paysagères que sont les Prés de Montfavet et le lit de la Durance, elle dispose de grandes qualités paysagères devant être préservées et intégrées au projet du futur quartier durable méditerranéen. À seulement 15 minutes * en voiture du centre-ville d'Avignon, la résidence bénéficie d'un environnement calme, à proximité de toutes les commodités nécessaires, pour faciliter votre quotidien. Bel'Aria propose des appartements neufs du 2 au 4 pièces, les séjours sont prolongés par de grands espaces extérieurs (balcon, ou jardin privatif) pour tous les logements au sein d'un batiment durable méditerranéen. Les appartements neufs de la résidence proposent des intérieurs lumineux aux prestations de qualité pour un meilleur confort de vie. Les parties communes sont agréables et sécurisées. Diminution du prix du logement d'un montant de 4 500€ par pièce sur le prix de vente sur la base de la grille de prix de vente TTC en vigueur au 10 / 01 / 2025, soit une remise de 9 000€ sur les T2,13 500€ sur les T3,18 000€ sur les T4. Offre (s) non cumulable (s) avec toute autre offre promotionnelle, valable (s) pour toute signature d'un contrat de réservation du 10 / 01 / 2025 au 09 / 04 / 2025 d'un logement de la résidence Bel'Aria à Avignon et sous réserve d'une signature d'un acte notarié dans les délais stipulés dans le contrat de réservation. Toute signature d'un contrat de réservation ayant été effectuée avant le 10 / 01 / 2025 puis annulée et suivie d'une nouvelle réservation dans le même programme, ne pourra être prise en compte. Les informations sur les risques auxquels ce bien est exposé sont disponibles sur le site Géorisques : .
Idéalement implantée dans le quartier en plein essor de Beaulieu au bord du lac de Monteux, ville dynamique du Vaucluse, la résidence Senioriales vous permet de réaliser un investissement patrimonial de qualité. Elle bénéficie également de la proximité des transports avec des bus réguliers rejoignant le centre-ville de Monteux et ses commerces, situés à 4 km de la résidence seniors. Les informations sur les risques auxquels ce bien est exposé sont disponibles sur le site Géorisques : .
AVIGNON, dans copropriété sécurisée récente, proche remparts et facultés, Type 2, en 1er étage avec ascenseur, séjour donnant sur belle terrasse plein Sud, coin cuisine équipée, une chambre avec salle d'eau attenante, place de parking privative. Actuellement libre, possibilité de location 550 Charges annuelles 850 Copropriété de 71 lots Prix : 102.000 , frais d'agence inclus (95.000 + 7.000 FA ).
Avignon quartier bonaventure a 2 pas du centre ville, dans une copropriété de 4 lots sans charges, au 1er et dernier étage, appartement de type 2 d'une surface habitable de 41,30 m² lc composé d'un espace séjour cuisine équipée de 20 m², une chambre lumineuse avec placard, salle d'eau avec wc. Terrasse 15 m² expo sud. Dpe d. Ges b. Son prix est de 119 000 euros. Les honoraires sont à la charge du vendeur. Pour visiter et vous accompagner dans votre projet, contactez angélique vignon, au 06 27 36 41 40 ou par courriel à a.vignon@proprietes-privees.com « les informations sur les risques auxquels ce bien est exposé sont disponibles sur le site géorisques : www. Georisques. Gouv. Fr ' cette présente annonce a été rédigée sous la responsabilité éditoriale de angélique vignon agissant sous le statut d'agent commercial immatriculé au rsac avignon 424320059 auprès de la sas proprietes privees, réseau national immobilier, au capital de 40000 euros, 44 allée des cinq continents - zac le chêne ferré, 44120 vertou, rcs nantes n° 487 624 777 00040, carte professionnelle t et g n° cpi 4401 2016 000 010 388 cci nantes-saint nazaire. Garantie galian - 89 rue de la boétie, 75008 paris mandat réf : 395566avg - le professionnel garantit et sécurise votre projet immobilier. Copropriété de 4 lots - dont 4 lots habitation.().
Vous rêvez d'un appartement alliant confort, nature et praticité ? La résidence le jardin des arts vous ouvre ses portes sur avignon, avec une opportunité unique de bénéficier de la tva réduite à 5,5%, du prêt à taux zéro et de frais de notaire réduits. * située à proximité immédiate des commerces, des écoles et des équipements culturels, cette résidence propose un cadre de vie idéal, à mi-chemin entre ville et nature. Son jardin paysager de plus de 4 000 m², en coeur d'îlot, offre un véritable havre de paix, libre de toute circulation, pour des moments de détente et de sérénité. Le jardin des arts propose des appartements lumineux du 2 au 4 pièces, aux espaces fonctionnels et confortables, conçus pour répondre à toutes vos attentes. Profitez de terrasses généreuses offrant des points de vue apaisants sur la végétation méditerranéenne environnante et imaginez vos instants de convivialité ou de farniente en famille ou entre amis. Pour votre confort et votre sécurité : chauffage individuel par panneaux rayonnants eau chaude individuelle par ballon thermodynamique carrelage grès cérame aux couleurs actuelles résidence fermée et sécurisée avec accès par vigik® et digicode parkings sécurisés en sous-sol et en extérieur emplacement privilégié : 15 minutes de l'hyper-centre à vélo tram à 400 mètres à pied écoles maternelle et lycée à 2 minutes à pied gare tgv à 8 minutes en voiture marseille à 1h livraison prévue au 3ème trimestre 2026. Ne manquez pas cette opportunité d'allier investissement malin et qualité de vie. Non soumis au dpe * sous conditions d'éligibilité (résidence principale et conditions de ressources). Prix de 169240 euros indiques en tva 5.5% pour vous accompagner dans votre projet, contactez pamela salvador bonnin, au 06 14 17 91 67 ou, par courriel à p.salvadorbonnin@proprietes-privees.com. Selon l'article l. 561.5 du code monétaire et financier, pour l'organisation de la visite, la présentation d'une pièce d'identité vous sera demandée. Cette annonce a été rédigée sous la responsabilité éditoriale de pamela salvador bonnin agissant sous le statut d'agent commercial immatriculé au rsac 949409007 rsac nîmes auprès de sas proprietes privees, au capital de 44 920 euros, zac le chêne ferré - 44 allée des cinq continents 44120 vertou; siret 487 624 777 00040, rcs nantes. Carte professionnelle transactions sur immeubles et fonds de commerce (t) et gestion immobilière (g) n°cpi 4401 2016 000 010 388 délivrée par la cci nantes - saint nazaire. Compte séquestre n°309 32 50 84 67 bpa saint-sebastien-sur-loire (44230). Garantie galian-smabtp - 89 rue de la boétie, 75008 paris - n°28137 j pour 2 000 000 euros pour t et 120 000 euros pour g. Assurance responsabilité civile professionnelle par galian-smabtp n° de police 28137. J mandat réf : 430806. - le professionnel garantit et sécurise votre projet immobilier. Pamela salvador bonnin (ei) agent commercial - numéro rsac : 949409007 rsac nîmes -. Les informations sur les risques auxquels ce bien est exposé sont disponibles sur le site géorisques : www. Georisques. Gouv. Fr.
Le charme de la campagne, le confort de la ville ! Clotilde et mathis fallas vous présentent ce charmant appartement idéalement situé, à seulement quelques pas du centre-ville d'orange. Son exposition sud et ouest lui confère une belle luminosité tout au long de la journée, en toutes saisons. D'une surface habitable de 74,5 m² loi carrez, cet appartement se distingue par son agencement atypique qui propose une surface réelle de 84.50 m². Ses poutres, ses pierres apparentes et son sol en terres cuites lui apportent un magnifique cachet. Il se compose d'un vaste salon séjour, d'une cuisine aménagée donnant sur un petit salon, d'une chambre, d'une salle de bains douches avec un toilette. Une pièce mansardée offre un espace nuit supplémentaire ainsi qu'un coin bureau agréable. Vous profiterez également d'un stationnement facilité grâce à deux places dédiées. Détails techniques : -chauffage : poêle à granules neuf et chauffage électrique -menuiseries et volets : fenêtres bois double vitrage, volets bois -matériaux : poutres, pierres apparentes, terres cuites au sol -stationnement : 2 places de parking privée cet appartement est une belle opportunité pour les amoureux de la nature, et de calme. Idéal pour une première acquisition immobilière ou pour une résidence secondaire. Prix de vente : 139 000 euros charge vendeur bien soumis au régime de la copropriété, 13 lots, charges annuelles 705 euros, pas de procédure en-cours. Dpe d : 203 kwh / m2 / an, ges b : 6 kg co2 / m2 / an, montant estimé des dépenses annuelles d'énergie pour un usage standard entre 880 et 1240 euros indexées aux années 2021 pour visiter et vous accompagner dans votre projet, contactez mathis fallas, au 07 86 02 08 56 ou par courriel à ma.fallas@proprietes-privees.com selon l'article l. 561.5 du code monétaire et financier, pour l'organisation de la visite, la présentation d'une pièce d'identité vous sera demandée. Cette annonce a été rédigée sous la responsabilité éditoriale de clotilde et mathis fallas agissant sous le statut d'agent commercial immatriculé au rsac avignon 909053597 auprès de sas proprietes privees, au capital de 44 920 euros, zac le chêne ferré - 44 allée des cinq continents 44120 vertou; siret 487 624 777 00040, rcs nantes. Carte professionnelle transactions sur immeubles et fonds de commerce (t) et gestion immobilière (g) n°cpi 4401 2016 000 010 388 délivrée par la cci nantes - saint nazaire. Compte séquestre n°309 32 50 84 67 bpa saint-sebastien-sur-loire (44230). Garantie galian-smabtp - 89 rue de la boétie, 75008 paris - n°28137 j pour 2 000 000 euros pour t et 120 000 euros pour g. Assurance responsabilité civile professionnelle par galian-smabtp n° de police 28137. J mandat réf : 419462- le professionnel garantit et sécurise votre projet immobilier. Copropriété de 13 lots (). Charges annuelles : 702 euros. Clotilde et mathis fallas (ei) agent commercial - numéro rsac : avignon 909053597 -. Les informations sur les risques auxquels ce bien est exposé sont disponibles sur le site géorisques : www. Georisques. Gouv. Fr.
Situé dans une résidence sécurisée et tranquille, ce t2 très lumineux offre un cadre de vie agréable, et emplacement idéal. À quelques minutes à pied à peine du centre du village, il est actuellement loué à une personne soigneuse et sans souci. Sa climatisation réversible comme son entretien méticuleux vous assurent un bien confort et modernité. Son stationnement privatif est un atout indéniable mais, c'est son balcon très agréable qui en fait un bien recherché. 137 500 euros honoraires d'agence inclus dpe c 153 ges a 4 montant estimé des dépenses annuelles d'énergie pour un usage standard entre 406 euros et 550 euros indexées à l'année 2021 (si logement f ou g 'logement à consommation énergétique excessive : classe f ou g') pour visiter et vous accompagner dans votre projet, contactez philippe borg, au 06 03 56 40 68 ou, par courriel à p.borg@proprietes-privees.com. Selon l'article l. 561.5 du code monétaire et financier, pour l'organisation de la visite, la présentation d'une pièce d'identité vous sera demandée. Cette présente annonce a été rédigée sous la responsabilité éditoriale de philippe borg agissant sous le statut d'agent commercial immatriculé au rsac avignon 390 568 400 auprès de sas proprietes privees, au capital de 44 920 euros, zac le chêne ferré - 44 allée des cinq continents 44120 vertou; siret 487 624 777 00040, rcs nantes. Carte professionnelle transactions sur immeubles et fonds de commerce (t) et gestion immobilière (g) n°cpi 4401 2016 000 010 388 délivrée par la cci nantes - saint nazaire. Compte séquestre n°309 32 50 84 67 bpa saint-sebastien-sur-loire (44230). Garantie galian-smabtp - 89 rue de la boétie, 75008 paris - n°28137 j pour 2 000 000 euros pour t et 120 000 euros pour g. Assurance responsabilité civile professionnelle par galian-smabtp n° de police 28137. J mandat réf : 411009 - le professionnel garantit et sécurise votre projet immobilier. Copropriété de 162 lots - dont 69 lots habitation. (). Charges annuelles : 842 euros. Philippe borg (ei) agent commercial - numéro rsac : avignon 390 568 400 -. Les informations sur les risques auxquels ce bien est exposé sont disponibles sur le site géorisques : www. Georisques. Gouv. Fr.
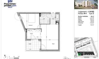
Vaucluse - 84000 avignon - 189 000 euros - primo-accédants : aide à l'accession à la propriété. Prêt sans intérêt aidé par l'etat. Investisseurs en sci, acquisition tva réduite10 %, optimisé en quasi franchise fiscale. Charmant 2 pièces avec loggia ? Résidence sécurisée au coeur de la ceinture verte situé au 1er étage d'une résidence contemporaine et sécurisée de 46 logements, découvrez ce 2 pièces de 46 m² avec loggia de 6 m², exposé sud-ouest pour un ensoleillement optimal. Il se compose d'un séjour lumineux de 20 m², d'une cuisine semi-ouverte de 6,5 m², d'une chambre confortable de 12 m², d'une entrée de 3,7 m² ainsi que d'une salle d'eau aménagée de 4,5 m². La distribution est fonctionnelle et les espaces sont parfaitement optimisés. Bénéficiez d'un confort durable grâce à une isolation thermique et acoustique performante, conforme au référentiel bâtiments durables méditerranéens. L'architecture soignée et contemporaine, ponctuée de nombreuses fenêtres et baies vitrées, garantit une belle luminosité tout au long de la journée. Commodités à proximité immédiate : supermarché et restaurants à 2 minutes à pied, lycée à 7 minutes. Une place de stationnement incluse complète ce bien. Faibles charges prévisionnelles courantes / an : 800 euros. À découvrir : palais des papes, festival d'avignon, hotel d'europe, restaurant la mirande. Nombre de lots à la vente : 2 (appartement, 1 place de stationnement) 189 000 euros (honoraires à la charge du vendeur) 06 72 999 518, n.jenny@proprietes-privees.com. Mandat 427606. Selon l'article l. 561.5 du code monétaire et financier, pour l'organisation de la visite, la présentation d'une pièce d'identité vous sera demandée. Informations sur les risques auxquels ce bien est exposé sont disponibles sur le site géorisques : cette présente annonce a été rédigée sous la responsabilité éditoriale de nicolas jenny agissant en qualité de conseiller immobilier indépendant sous portage salarial auprès de sas proprietes privees, au capital de 44 920 euros, zac le chêne ferré - 44 allée des cinq continents 44120 vertou. Siret 487 624 777 00040, rcs nantes. Carte professionnelle transactions sur immeubles et fonds de commerce (t) et gestion immobilière (g) n°cpi 4401 2016 000 010 388 délivrée par la cci nantes - saint nazaire. Compte séquestre n°309 32 50 84 67 bpa saint-sebastien-sur-loire (44230). Garantie galian-smabtp - 89 rue de la boétie, 75008 paris - n°28137 j pour 2 000 000 euros pour t et 120 000 euros pour g. Assurance responsabilité civile professionnelle par galian-smabtp n° de police 28137. J. Copropriété de 46 lots - dont 46 lots habitation. (). Charges annuelles : 800 euros.
Vaucluse - 84000 avignon -157 000 euros - quartier des halles laurent zerbib vous propose ce duplex 2 pièces rénové vendu meublé au coeur du centre historique. Au pied d'un hôtel particulier, dans une rue piétonne typique d'avignon intra-muros, venez découvrir ce charmant appartement en duplex de 2 pièces, situé à deux pas des halles et de toutes les commodités. Entièrement rénové, ce bien de 26 m² offre un agencement fonctionnel : au rez-de-chaussée : une pièce de vie lumineuse avec cuisine ouverte aménagée. À l'étage : un espace nuit confortable et une salle d'eau moderne avec wc. Ce duplex combine le cachet de l'ancien à une rénovation contemporaine de qualité. Les atouts : emplacement premium dans l'intra-muros rénovation récente, aucun travaux à prévoir petite copropriété idéal résidence secondaire ou investissement locatif un bien rare dans ce secteur très recherché, parfait pour profiter de la vie avignonnaise à pied. Prix : 157 000 euros honoraires à la charge du vendeur. Pour visiter et vous accompagner dans votre projet contactez laurent zerbib au 06 10 79 95 27 ou par courriel à l.zerbib@proprietes-privees.com. Cette présente annonce a été rédigée sous la responsabilité éditoriale de laurent zerbib agissant sous le statut d'agent commercial immatriculé au rsac de nîmes n° 434067575. Mandat réf : 411403 - le professionnel garantit et sécurise votre projet immobilier. Sas proprietes privees - zac du chêne ferré - 44 allée des cinq continents 44120 vertou, carte professionnelle cpi 4401 2016 000 010 388 cci nantes-saint nazaire. Rcs nantes 487 624 777 copropriété de 11 lots (). Charges annuelles : 214 euros. Laurent zerbib (ei) agent commercial - numéro rsac : nîmes 434 067 575 -.