Logo LSI sombre

Appartement 2 Pièces 48 m² à vendre à Sainte-Geneviève-des-Bois (91700)
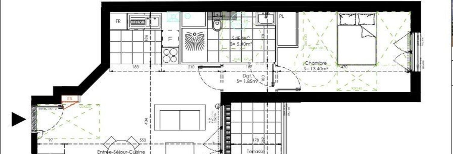
Photo N° 2
2

Vente appartement 2 pièces 48 m² Sainte-Geneviève-des-Bois (91700)

248 500 €

Vente Appartement 2 pièces

Iad france - stéphane gervasi (06 80 65 75 65) vous propose : *programme neuf * avenue gabriel péri, sur le secteur 'centre ville' de sainte geneviève des bois proche de toutes les commodités, dans une petite résidence de standing de 9 appartements aux normes rt2020 et aux prestations soignées qui sera livrée au premier trimestre 2027. Un appartement de type f2 de 48,60 m² environ habitable composé d'une pièce de vie de 28 m² environ avec coin cuisine, d'un couloir desservant une salle de douche équipée avec wc et une grande chambre de 13,50 mètres. Balcon de 4,75 m² environ. + chauffage / eau chaude individuels au gaz + faibles charges + frais de notaire réduits et prêt à taux zéro + d'autres lots disponibles. Contacter moi pour plus de détail. Honoraires d’agence à la charge du vendeur. Bien non soumis au dpe. Les informations sur les risques auxquels ce bien est exposé sont disponibles sur le site géorisques : . La présente annonce immobilière a été rédigée sous la responsabilité éditoriale de m. Stéphane gervasi ei (id 16918), mandataire indépendant en immobilier (sans détention de fonds), agent commercial de la sas i@d france immatriculé au rsac de evry sous le numéro 511705873, titulaire de la carte de démarchage immobilier pour le compte de la société i@d france sas. Retrouvez tous nos biens sur notre site internet. .

Caractéristiques

Les plus de cette annonce
  • Coup de coeur
  • Ascenseur
  • Standing
Confort
  • Chauffage Individuel
  • Chauffage Gaz
  • Placards
  • Câble TV
Pièces
  • 2 pièces
Superficies
  • Surface habitable : 48 m²
Extérieur
  • Balcon
Sécurité
  • Digicode
  • Interphone

Consommation énergétique et gaz à effet de serre

Bilan énergétique (DPE)
NC
Bilan gaz à effet de serre (GES)
NC

Géorisques

Les informations sur les risques auxquels ce bien est exposé sont disponibles sur le site Géorisques : www.georisques.gouv.fr

A propos du prix de cet appartement

  • Prix : 248 500 € (soit 5 177 € / m²)
  • Honoraires à charge vendeur

À propos de cette annonce

Mise en ligne:

Dernière mise à jour:

Référence de l'annonce: 1923589-9
iad france agence immobilière à Lieusaint (77127)
iad france
Afficher le numéro

Appartement similaires à acheter Sainte-Geneviève-des-Bois (91700)

Appartement 2 pièces 252700 €
252 700 €

Appartement 2 pièces 48 m²

Sainte-Geneviève-des-Bois (91700)

Iad france - stéphane gervasi (06 80 65 75 65) vous propose : *programme neuf * avenue gabriel péri, sur le secteur 'centre ville' de sainte geneviève des bois proche de toutes les commodités, dans une petite résidence de standing de 9 appartements aux normes rt2020 et aux prestations soignées qui sera livrée au premier trimestre 2027. Un appartement de type f2 de 48,50 m² environ habitable composé d'une pièce de vie de 27 m² environ avec coin cuisine, d'un couloir desservant une salle de douche équipée avec wc et une grande chambre de 13,70 mètres. Terrasse de 5,65 m² environ. + chauffage / eau chaude individuels au gaz + faibles charges + frais de notaire réduits et prêt à taux zéro + d'autres lots disponibles. Contacter moi pour plus de détail. Honoraires d’agence à la charge du vendeur. Bien non soumis au dpe. Les informations sur les risques auxquels ce bien est exposé sont disponibles sur le site géorisques : . La présente annonce immobilière a été rédigée sous la responsabilité éditoriale de m. Stéphane gervasi ei (id 16918), mandataire indépendant en immobilier (sans détention de fonds), agent commercial de la sas i@d france immatriculé au rsac de evry sous le numéro 511705873, titulaire de la carte de démarchage immobilier pour le compte de la société i@d france sas. Retrouvez tous nos biens sur notre site internet. .

Appartement 2 pièces 259500 €
259 500 €

Appartement 2 pièces 43 m²

Sainte-Geneviève-des-Bois (91700)

EXCLUSIVITÉ - Appartement 2 pièces rez-de-jardin. Venez découvrir ce bel appartement deux pièces de 44 m² env. avec terrasse et jardin de plus de 120 m² env. comprenant une entrée desservant un salon carrelé avec cuisine aménagée ouverte, une chambre parquetée, une salle d'eau et WC. Le bien dispose également d'un stationnement aérien et une place en sous-sol. Le tout dans une résidence sécurisée (portail automatique, double digicode, caméra de surveillance). Il se situe proche des commerces, parc, écoles et accès gare. Sainte-Geneviève-des-Bois est une commune du département de l'Essonne situé à 35 minutes de Paris avec une facilité d'accès. (proche RN 104, RN 20, A6 ou RER C) La commune dispose de nombreux services et infrastructures (sport, loisirs et culture). La présente annonce immobilière a été rédigée sous la responsabilité éditoriale de l'agent commercial mandataire en immobilier.

Appartement 2 pièces 238000 €
238 000 €

Appartement 2 pièces 49 m²

Sainte-Geneviève-des-Bois (91700)

Iad france - stéphane gervasi (06 80 65 75 65) vous propose : * programme neuf * avenue gabriel péri, sur le secteur 'centre ville' de sainte geneviève des bois proche de toutes commodités, dans une petite résidence de standing de 7 appartements aux normes rt2012 et aux prestations soignées qui sera livrée au premier semestre 2022. Au 3ème étage, un appartement de type f2 de 48,50 m² environ habitable composé d'une pièce de vie de 23 m² environ avec coin cuisine, d'un couloir desservant un wc, une salle de douche equipée et une grande chambre de 15 métres. Balcon de 8,80 m² environ. + chauffage / eau chaude individuels au gaz + place de parking privée + faibles charges + frais de notaire réduits et prêt à taux zéro + ! Plans et descriptifs disponibles ! Contacter moi pour plus de détail honoraires d’agence à la charge du vendeur. Bien non soumis au dpe. Les informations sur les risques auxquels ce bien est exposé sont disponibles sur le site géorisques : . La présente annonce immobilière a été rédigée sous la responsabilité éditoriale de m. Stéphane gervasi ei (id 16918), mandataire indépendant en immobilier (sans détention de fonds), agent commercial de la sas i@d france immatriculé au rsac de evry sous le numéro 511705873, titulaire de la carte de démarchage immobilier pour le compte de la société i@d france sas. Retrouvez tous nos biens sur notre site internet. .

À voir pour le même budget

Appartement 4 pièces 210000 €
210 000 €
-3 %

Appartement 4 pièces 67 m²

Sainte-Geneviève-des-Bois (91700)

Iad France - Carole De Souza vous propose : Appartement 4 pièces de 68 m² – grand balcon – Résidence récente et sécurisée – DPE C Dans une résidence moderne de 2004, parfaitement entretenue et sécurisée avec ascenseur et parking en sous-sol, venez découvrir cet agréable appartement 4 pièces situé au 2ème étage avec ascenseur, offrant de très beaux volumes et une belle luminosité. Il se compose d’un double séjour de 30 m² lumineux avec cuisine moderne aménagée et équipée, le tout donnant accès à une spacieuse terrasse de 13 m² Vous trouverez également deux chambres, dont une équipée de placards encastrés, toutes deux avec accès extérieur. Une salle de bain, des WC indépendants, ainsi que des placards dans le couloir complètent l’ensemble. Les + : - DPE classé C, gage de confort énergétique et de maîtrise des dépenses - chauffage individuel avec chaudière gaz neuve (changée en octobre 2024) - cuisine et électroménager neufs - pièce de vie spacieuse - appartement lumineux - place de parking en sous-sol Localisation idéale : Commerces, écoles de la crèche au lycée à quelques minutes à pied, services et transports à proximité directe. La gare RER C de Sainte-Geneviève-des-Bois est accessible en 15 minutes en bus, arrêt à seulement 200 mètres de la résidence. La presente annonce immobiliere vise 2 lots situés dans une copropriété de 128 lots au total et ne faisant l'objet d'aucune procédure en cours citée à l'article L. 721-1 du code de la construction et de l'habitation. Montant moyen mensuel de charges déclaré par le vendeur : 128.67€ par mois (soit 1544 € annuel). Honoraires d'agence à la charge du vendeur. Information d'affichage énergétique sur ce bien : classe ENERGIE C indice 107 et classe CLIMAT C indice 20. Les informations sur les risques auxquels ce bien est exposé, y compris l'obligation légale de débroussaillement, sont disponibles sur le site Géorisques : La présente annonce immobilière a été rédigée sous la responsabilité éditoriale de Mme Carole De Souza mandataire indépendant en immobilier (sans détention de fonds), agent commercial de la SAS I@D France immatriculé au RSAC de EVRY sous le numéro 938445277, titulaire de la carte de démarchage immobilier pour le compte de la société I@D France SAS.

Appartement 3 pièces 206000 €
206 000 €

Appartement 3 pièces 58 m²

Sainte-Geneviève-des-Bois (91700)

Iad France - Stéphanie Petit vous propose : RARE - Très beau 3 pièces avec terrasse et jardin – Sainte-Geneviève-des-Bois Situé à Sainte-Geneviève-des-Bois, dans un environnement calme et agréable, cet appartement 3 pièces offre une surface de 58 m² habitables et bénéficie d’un extérieur rare avec terrasse et jardin privatif. Il se compose d’un séjour lumineux, d’une cuisine aménagée et équipée, de deux chambres confortables, chacune disposant d’une porte-fenêtre, ainsi que d’une salle de bain moderne. L’espace extérieur, avec terrasse et jardin, constitue un véritable prolongement de l’espace de vie, idéal pour profiter des beaux jours. Une place de parking privative complète ce bien. Prestations et atouts : •Résidence récente (2005) en bon état général •Fibre optique •Chauffage individuel au gaz •Environnement calme •Aucun travaux à prévoir L’appartement bénéficie d’un emplacement recherché, à proximité immédiate des commerces, écoles, parcs et transports en commun, offrant un cadre de vie pratique et confortable au quotidien. Un bien rare sur le secteur, idéal pour une résidence principale comme pour un investissement de qualité.

Appartement 2 pièces 265200 €
265 200 €

Appartement 2 pièces 49 m²

Sainte-Geneviève-des-Bois (91700)

Iad france - stéphane gervasi (06 80 65 75 65) vous propose : + programme neuf + avenue gabriel péri, sur le secteur 'centre ville' de sainte geneviève des bois proche de toutes les commodités, dans une petite résidence de standing de 9 appartements aux normes rt2020 et aux prestations soignées qui sera livrée au premier trimestre 2027. Un appartement de type f2 de 50 m² environ habitable composé d'une pièce de vie de 30 m² environ avec coin cuisine, d'un couloir desservant une salle de douche équipée avec wc et une grande chambre de 13,70 mètres. 2 terrasse de balcon de 5,30 et 6 m² environ. + chauffage / eau chaude individuels au gaz + faibles charges + frais de notaire réduits et prêt à taux zéro + d'autres lots disponibles. Contacter moi pour plus de détail. Honoraires d’agence à la charge du vendeur. Bien non soumis au dpe. Les informations sur les risques auxquels ce bien est exposé sont disponibles sur le site géorisques : . La présente annonce immobilière a été rédigée sous la responsabilité éditoriale de m. Stéphane gervasi ei (id 16918), mandataire indépendant en immobilier (sans détention de fonds), agent commercial de la sas i@d france immatriculé au rsac de evry sous le numéro 511705873, titulaire de la carte de démarchage immobilier pour le compte de la société i@d france sas. Retrouvez tous nos biens sur notre site internet. .

Appartement 2 pièces 233000 €
233 000 €

Appartement 2 pièces 48 m²

Sainte-Geneviève-des-Bois (91700)

Iad france - stéphane gervasi (06 80 65 75 65) vous propose : * programme neuf * avenue gabriel péri, sur le secteur 'centre ville' de sainte geneviève des bois proche de toutes commodités, dans une petite résidence de standing de 7 appartements aux normes rt2012 et aux prestations soignées qui sera livrée au premier semestre 2022. Au 3ème étage, un appartement de type f2 de 48,20 m² environ habitable composé d'une pièce de vie de 26 m² environ avec coin cuisine, d'un couloir desservant une salle de douche équipée avec wc et une chambre de 12 métres. Balcon de 4,60 m² environ. + chauffage / eau chaude individuels au gaz + place de parking privée + faibles charges + frais de notaire réduits et prêt à taux zéro + ! Plans et descriptifs disponibles ! Contacter moi pour plus de détail honoraires d’agence à la charge du vendeur. Bien non soumis au dpe. Les informations sur les risques auxquels ce bien est exposé sont disponibles sur le site géorisques : . La présente annonce immobilière a été rédigée sous la responsabilité éditoriale de m. Stéphane gervasi ei (id 16918), mandataire indépendant en immobilier (sans détention de fonds), agent commercial de la sas i@d france immatriculé au rsac de evry sous le numéro 511705873, titulaire de la carte de démarchage immobilier pour le compte de la société i@d france sas. Retrouvez tous nos biens sur notre site internet. .

Appartement 3 pièces 209000 €
209 000 €

Appartement 3 pièces 70 m²

Sainte-Geneviève-des-Bois (91700)

Iad france - renata pietkiewicz vous propose : à vendre – appartement duplex 3 pièces avec balcon et place de parking – sainte-geneviève-des-bois (rer c) dans une résidence construite en 1990, découvrez cet appartement en duplex de 3 pièces situé au 2ᵉ étage, d’une superficie de 70,46 m². Il se compose, au premier niveau, d’une entrée, d’un séjour lumineux avec cuisine ouverte ouvrant sur un balcon, d’une salle de douche ainsi que de wc séparés. À l’étage, l’espace nuit offre deux chambres et un dégagement. Une place de parking privative complète ce bien. Appartement idéal pour un premier achat ou un investissement locatif, à proximité des commerces, des transports (gare rer c, bus) et des axes routiers. À découvrir rapidement. La presente annonce immobiliere vise 2 lots situés dans une copropriété de 12 lots au total et ne faisant l'objet d'aucune procédure en cours citée à l'article l. 721-1 du code de la construction et de l'habitation. Montant moyen mensuel de charges déclaré par le vendeur : 229.67€ par mois (soit 2756.04 € annuel). Honoraires d'agence à la charge du vendeur. Information d'affichage énergétique sur ce bien : classe energie d indice 224 et classe climat b indice 7. Les informations sur les risques auxquels ce bien est exposé, y compris l'obligation légale de débroussaillement, sont disponibles sur le site géorisques : la présente annonce immobilière a été rédigée sous la responsabilité éditoriale de mme renata pietkiewicz mandataire indépendant en immobilier (sans détention de fonds), agent commercial de la sas i@d france immatriculé au rsac de evry sous le numéro 813228293, titulaire de la carte de démarchage immobilier pour le compte de la société i@d france sas.

Appartement 2 pièces 238000 €
238 000 €

Appartement 2 pièces 51 m²

Sainte-Geneviève-des-Bois (91700)

Iad france - stéphane gervasi (06 80 65 75 65) vous propose : avenue gabriel péri, sur le secteur 'centre ville' de sainte geneviève des bois proche de toutes commodités, dans une petite résidence de standing de 7 appartements aux normes rt2012 et aux prestations soignées qui sera livrée au premier semestre 2022. Au premier étage, un appartement de 2 pièces de 50 m² environ composé d'un séjour / cuisine de 24 m² environ donnant sur un balcon de 9 m² environ exposé sud, un dégagement, une grande chambre avec placard, un wc séparé et une salle d'eau équipée. + chauffage / eau chaude individuels au gaz + place de parking privée + faibles charges + frais de notaire réduits et prêt à taux zéro + ! Plans et descriptifs disponibles ! Contacter moi pour plus de détail honoraires d’agence à la charge du vendeur. Bien non soumis au dpe. Les informations sur les risques auxquels ce bien est exposé sont disponibles sur le site géorisques : . La présente annonce immobilière a été rédigée sous la responsabilité éditoriale de m. Stéphane gervasi ei (id 16918), mandataire indépendant en immobilier (sans détention de fonds), agent commercial de la sas i@d france immatriculé au rsac de evry sous le numéro 511705873, titulaire de la carte de démarchage immobilier pour le compte de la société i@d france sas. Retrouvez tous nos biens sur notre site internet. .