Logo LSI sombre

Appartement 2 Pièces 45 m² à vendre à Nîmes (30000)
Photo N° 2
Photo N° 3
3

Vente appartement 2 pièces 45 m² Nîmes (30000)

160 586 €

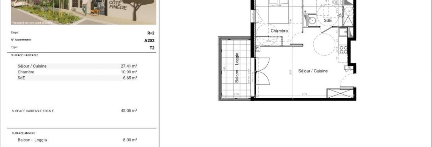
Appartement T2 Neuf À Vendre

Située au Nord-Est de Nîmes, au cœur d'un quartier verdoyant, la résidence offre un cadre de vie rare, alliant nature préservée et proximité urbaine. Apparentement de type 2 avec terrasse, stationnement privatif, cuisine équipée, confort thermique et acoustique. Disponible au prix de 160.586€ avec TVA réduite. Référence agence : 7710.

Caractéristiques

Les plus de cette annonce
  • Ascenseur
  • Parking
  • Terrasse
  • Très bon état
Confort
  • Chauffage Individuel
  • Chauffage Electrique
Pièces
  • 2 pièces
  • 1 chambre
  • Salle d'eau
  • Cuisine équipée
Superficies
  • Surface habitable : 45 m²
  • Surface carrez : 45 m²
Etat
  • Etat general : neuf

Consommation énergétique et gaz à effet de serre

Bilan énergétique (DPE)
DPE Badge
Bilan gaz à effet de serre (GES)
GES Badge Disabled

Géorisques

Les informations sur les risques auxquels ce bien est exposé sont disponibles sur le site Géorisques : www.georisques.gouv.fr

À propos de la copropriété

  • Nombre de lots de la copropriété : 22

A propos du prix de cet appartement

  • Prix : 160 586 € (soit 3 569 € / m²)
  • Honoraires à charge vendeur

À propos de cette annonce

Mise en ligne:

Dernière mise à jour:

Référence de l'annonce: LDCK-27U-2I6
Orpi Bruno Hermabessière Immobilier agence immobilière à Lunel (34400)
Orpi Bruno Hermabessière Immobilier
Afficher le numéro

Appartement similaires à acheter Nîmes (30000)

Appartement 2 pièces 155000 €
155 000 €

Appartement 2 pièces 43 m²

Nîmes (30000)

Appartement de type P2 d'environ 43 m² situé au 3 ? étage avec ascenseur, entièrement rénové avec goût. Il se compose d'un séjour lumineux ouvrant sur un balcon offrant une très belle vue, d'une chambre confortable et d'un espace fonctionnel prêt à vivre. Idéalement placé à proximité immédiate de toutes les commodités. Bien vendu avec un box fermé, un véritable atout pour le stationnement et le stockage. Le bien comprend 2 lots, et il est situé dans une copropriété de 90 lots (les charges courantes annuelles moyennes de copropriété sont de 987 € et le syndicat des copropriétaires ne fait pas l'objet d'une procédure citée à l'article L. 721-1 du code de la construction et de l'habitation). Les informations sur les risques auxquels ce bien est exposé sont disponibles sur le site Géorisques : Prix de vente : 155 000 € Honoraires charge vendeur Contactez votre conseiller SAFTI : Tristan LE BARRILLEC, Tél. : 07 83 68 91 86, E-mail : tristan.lebarrillec@safti.fr - EI - Agent commercial immatriculé au RSAC de Nimes sous le numéro 938832201.

Appartement 2 pièces 158250 €
158 250 €

Appartement 2 pièces 40 m²

Nîmes (30000)

Derniers appartements neufs : du t2 au t4 à 10 minutes à pied des halles & de la coupole • espaces extérieurs : grandes terrasses pour tous les logements • confort : résidence sécurisée avec ascenseur • stationnement : parking privatif inclus • prestations : finitions de standing & économies d'énergie a partir de 158 250€ frais de notaire réduits éligible prêt à taux zéro (ptz).

Appartement 2 pièces 160008 €
160 008 €

Appartement 2 pièces 45 m²

Nîmes (30000)

En exclusivité située au nord-est de nîmes, au cœur d'un quartier verdoyant, la résidence offre un cadre de vie rare, alliant nature préservée et proximité urbaine. Apparentement de type 2 avec terrasse, stationnement privatif, cuisine équipée, placards aménagé climatisation réversible, confort thermique et acoustique. Disponible au prix de 160.008€ avec tva réduite. Éligible ptz. Référence agence : 7710.

À voir pour le même budget

Appartement 4 pièces 173000 €
173 000 €

Appartement 4 pièces 78 m²

Nîmes (30900)

T3 à Nîmes, avenue Jean Jaurès Découvrez ce superbe appartement de type 3, idéalement situé au pied de l'avenue Jean Jaurès, à deux pas des quais de la Fontaine. Profitez d'une vue dégagée sur l'ensemble de Nîmes depuis votre petite terrasse. Ce bien comprend deux chambres confortables, une cuisine indépendante, une salle de bain, un cellier, ainsi qu'un salon-salle à manger lumineux. L'appartement est équipé de la climatisation et l'immeuble dispose d'un ascenseur pour votre confort. Une place de parking privative. Référence agence : 4745.

Appartement 3 pièces 159900 €
159 900 €
-3 %

Appartement 3 pièces 70 m²

Nîmes (30000)

Gard - 30000 - nîmes - appartement 3 pièces - 70 m² - 2 chambres - cave emplacement idéal pour tout faire à pieds ! Avenue georges pompidou, idéalement situé proche de l'avenue jean jaurès et à 10mn à pied des jardins de la fontaine, dans une résidence sécurisée et fermée très bien entretenue, je vous propose en exclusivité cet appartement "prêt à vivre", traversant et très lumineux de 70 m² situé au 8ème et dernier étage avec ascenseur. L'entrée dessert un séjour salle à manger prolongé d'un balcon exposé plein sud avec vue dégagée et sans vis à vis, une cuisine indépendante aménagée et équipée avec loggia avec vue sur la tour magne, deux chambres, une salle d'eau moderne, wc séparés, cave en sous-sol. Aucun travaux à prévoir ! Le ravalement de façade, la modernisation ascenseur, ainsi que la pose de lecteurs de badge d'accès ont été réalisés l'an dernier ! Ce bien dispose d'une cave. Stationnement gratuit derrière la résidence ou abonnement annuel : 180 euros / an soit 15 euros / mois seulement / #zones_abo_res local vélos dans la résidence - con a proximité : les commerces, superettes, restaurants, médecins, pharmacie, écoles, collèges, transports, bureau de poste. Confort de l'appartement : menuiseries pvc double vitrage, volets roulants électriques côté jour, battants bois côté nuit, chauffage collectif bien soumis au statut juridique de la copropriété. Nb de lots : 95 charges annuelles de copropriété : 1600 euros / an taxe foncière : 1351 euros / an dpe : d ges : d montant estimé des dépenses annuelles d'énergie pour un usage standard entre 980 euros et 1370 euros indexées sur l'année 2021. Prix : 159 900 euros honoraires d'agence inclus à la charge du vendeur. Pour visiter et vous accompagner dans votre projet, contactez jérôme caïto, au 06 29 16 56 77 ou, par courriel à j.caito@proprietes-privees.com. Selon l'article l. 561.5 du code monétaire et financier, pour l'organisation de la visite, la présentation d'une pièce d'identité vous sera demandée. Cette annonce a été rédigée sous la responsabilité éditoriale de jérôme caïto agissant sous le statut d'agent commercial immatriculé au rsac nimes 814 607 610 auprès de sas proprietes privees, au capital de 44 920 euros, zac le chêne ferré - 44 allée des cinq continents 44120 vertou; siret 487 624 777 00040, rcs nantes. Carte professionnelle transactions sur immeubles et fonds de commerce (t) et gestion immobilière (g) n°cpi 4401 2016 000 010 388 délivrée par la cci nantes - saint nazaire. Compte séquestre n°309 32 50 84 67 bpa saint-sebastien-sur-loire (44230). Garantie galian-smabtp - 89 rue de la boétie, 75008 paris - n°28137 j pour 2 000 000 euros pour t et 120 000 euros pour g. Assurance responsabilité civile professionnelle par galian-smabtp n° de police 28137. J mandat réf : 430420 - le professionnel garantit et sécurise votre projet immobilier. Copropriété de 95 lots (). Charges annuelles : 1600 euros. Jérôme caïto (ei) agent commercial - numéro rsac : nimes 814 607 610 -. Les informations sur les risques auxquels ce bien est exposé sont disponibles sur le site géorisques : www. Georisques. Gouv. Fr.

Appartement 3 pièces 135000 €
135 000 €

Appartement 3 pièces 58 m²

Nîmes (30900)

Iad France - Stéphane Pottier vous propose : NÎMES DHUODA - Un appartement traversant, au cOEur d’un quartier central et pratique de Nîmes Situé à Nîmes, entre le lycée Dhuoda et la préfecture, cet appartement de 58 m² séduit par sa configuration fonctionnelle et sa belle luminosité. Installé au premier étage d’un petit immeuble, il occupe à lui seul tout le niveau, offrant un confort appréciable au quotidien. L’entrée s’ouvre sur une pièce de vie conviviale, avec cuisine ouverte sur le salon et la salle à manger, équipée d’une climatisation réversible. L’espace nuit comprend deux chambres avec placards, une salle d’eau rénovée, ainsi qu’un WC indépendant avec WC suspendu. Les menuiseries en PVC double vitrage et les volets roulants assurent confort thermique et tranquillité. L’appartement est propre et sain, avec un rafraîchissement décoratif à prévoir. La copropriété, composée de trois lots seulement, est gérée par un syndic bénévole, avec faibles charges. Le quartier bénéficie d’une excellente desserte en transports, de la proximité des services et commerces, facilitant la vie quotidienne.

Appartement 4 pièces 132000 €
132 000 €
-20 %

Appartement 4 pièces 74 m²

Nîmes (30000)

Découvrez cet appartement familial plein de charme, situé au 4e et dernier étage (sans ascenseur) d'un petit immeuble calme et parfaitement entretenu, en plein cœur de la ville mais au calme. Profitez d'un cadre de vie idéal, à deux pas des commerces et des services (écoles, etc.). Ce bien lumineux, au plan optimisé, offre une longue terrasse de 13,47 m² exposée plein sud, vous permettant de profiter d'une vue dégagée sur les environs et d'un ensoleillement optimal tout au long de la journée. Référence agence : 3432.

Appartement 3 pièces 149000 €
149 000 €

Appartement 3 pièces 60 m²

Nîmes (30900)

Iad france - claude durand vous propose : nîmes – quartier république | appartement t3 rénové et entièrement meublé – 60 m² situé au coeur de nîmes, dans le très recherché de la république, cet appartement de type 3 d’environ 60 m² se trouve au 1er et dernier étage d’une petite copropriété à taille humaine, offrant un cadre de vie agréable, central et calme. Un appartement rénové, fonctionnel et prêt à vivre entièrement rénové, l’appartement est vendu entièrement meublé, mobilier inclus dans le prix, permettant une installation immédiate ou une mise en location sans délai. Il se compose : d’une pièce de vie lumineuse avec cuisine ouverte sur le séjour, de deux chambres confortables, d’un cellier / buanderie, et d’une loggia à aménager selon vos besoins (bureau, espace détente, rangement). Un cadre de vie agréable en centre-ville la copropriété dispose d’une cour commune très agréable, offrant un véritable espace de respiration en plein coeur de la ville. Des annexes appréciables l’appartement bénéficie également de deux caves, idéales pour le rangement ou pour un local vélos. Un bien adapté à tous les projets : investisseurs : bien clé en main, vendu meublé, idéal pour location meublée ou longue durée. Primo-accédants : un premier achat sans travaux ni mobilier à prévoir. Résidence principale : un appartement confortable, fonctionnel et immédiatement habitable. Emplacement recherché – quartier république-montcalm à proximité immédiate des commerces, transports, écoles et du centre historique de nîmes. Un bien polyvalent, prêt à vivre ou à louer, à découvrir sans tarder. La presente annonce immobiliere vise 1 lot situé dans une copropriété de 8 lots au total et ne faisant l'objet d'aucune procédure en cours citée à l'article l. 721-1 du code de la construction et de l'habitation. Montant moyen mensuel de charges déclaré par le vendeur : 53.33€ par mois (soit 640 € annuel). Honoraires d'agence à la charge du vendeur. Information d'affichage énergétique sur ce bien : classe energie e indice 329 et classe climat e indice 69. Les informations sur les risques auxquels ce bien est exposé, y compris l'obligation légale de débroussaillement, sont disponibles sur le site géorisques : la présente annonce immobilière a été rédigée sous la responsabilité éditoriale de m claude durand mandataire indépendant en immobilier (sans détention de fonds), agent commercial de la sas i@d france immatriculé au rsac de nimes sous le numéro 918229998, titulaire de la carte de démarchage immobilier pour le compte de la société i@d france sas.

Appartement 2 pièces 185400 €
185 400 €

Appartement 2 pièces 43 m²

Nîmes (30900)

Appartement T2 neuf et livré, disponible immédiatement, situé au 2ème et avant dernier étage, comprenant un séjour cuisine, une salle d'eau toute équipée, une chambre et sa terrasse exposée Ouest. Une place de parking en sous sol est comprise avec l'appartement. Achetez votre appartement neuf et aménagez immédiatement ! Situé quartier Nîmes Ouest, à proximité immédiate de la clinique Kennedy, dans un quartier récent, résidentiel et calme. Les avantages du neufs : - Frais de notaire offerts - Exonération partielle de taxe foncière - Pas de travaux - Nombreuses garanties constructeur - Logement basse consommation - Nouvelles normes thermiques et phoniques - Eligible au prêt à taux 0% A visiter dès maintenant ! Référence agence : 2626.